Pipera
- Suprafata 352.400 mp
- Extravilan
- Deschidere 120 ml
Calculeaza distanta
Descriere anunt
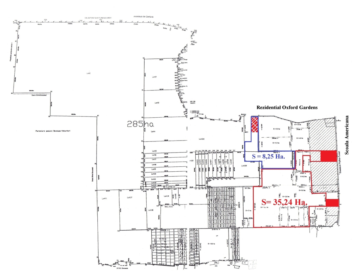
padurea Baneasa, vanzare teren forestier (padure) in suprafata de 35,24 Ha. cu 2 deschideri generoase la Sos. Pipera - Tunari din care suprafata de 1,83 Ha. este situat in intravilanul localitatii Voluntari.
Regimul economic: functiunea zonei V5 – pentru suprafata de 33,41 Ha. – paduri de agrement si plantatii forestiere, este situata in extravilanul Localitatii Voluntari.
Categoria de folosinta: intravilan construibil pentru portiunea de teren (1,83 Ha.) cuprinsa in intravilanul Localitatii Voluntari ce beneficiaza de indicatori urbanistici : pentru U.T.R. M3 – P.O.T. max. 50%. C.U.T. max. = 2,2, pentru parcelele mai mari de 700 mp. (conf. Certificat de Urbanism) C.U.T. -ul poate fi de 2,7 .
Localizare: terenul este situat vav de American International School of Bucharest, in Cartierul Pipera, langa Rezidential Oxford Gardens.
Utilitati: canalizare, gaze, energie electrica si apa.
Facilitati: acces direct la strada betonata – Sos. Pipera - Tunari,
Caracteristici, dotari
Acces mijloace transport
| Statii STB | Timp |
|---|---|
|
Școala Americană
|
5 min. |


Vezi galeria
5 min.