Baneasa, Jandarmeriei, teren padure
- Suprafata 1.250 mp
- Intravilan
- Deschidere 33 ml
Calculeaza distanta
Descriere anunt
Teren de vanzare in Sector 1 – Locatie exclusivista, ideal pentru locuinta! chiar in Padure
Adresa: Str. Jandarmeriei, Sector 1, Bucuresti.
Suprafata: 1.250 mp – intravilan, construibil;
Deschidere: 33 ml la strada Jandarmeriei;
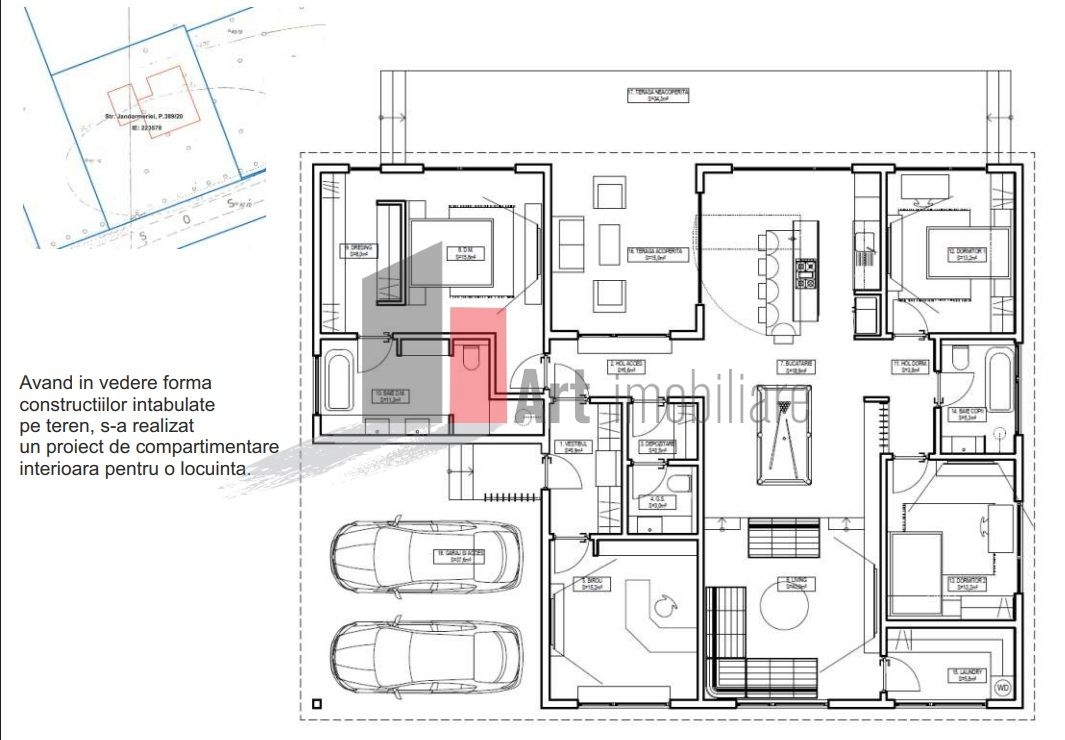
Constructii existente: Doua anexe intabulate (194 mp) La acest moment pe teren mai exista fundatia lor.
Teren liber, fara vegetatie.
Caracteristici urbanistice:
POT: 15% CUT: 0.2 Regim de inaltime permis: P+1
Proiect de compartimentare interioara deja realizat pentru locuinta!
Avantaje:
Zona premium, linistita, cu acces rapid catre DN1, Baneasa si padurea Baneasa;
Ideal pentru constructia unei vile de lux sau reconfigurarea constructiilor existente;
Investitie solida intr-o zona in plina dezvoltare;
Acces mijloace transport
| Statii STB | Timp |
|---|---|
|
Jandarmeriei
|
4 min. |
|
Atlasului
261
|
4 min. |


Vezi galeria
4 min.
261
