Tunari, vila individuala moderna, zona rezidentiala, langa padure
- Suprafata utila 190 mp
- Teren 600 mp
- An 2025
- 5 camere
- In constructie
Calculeaza distanta
Descriere anunt
Agentia Topis va propune spre vanzare cu 0% comision, o vila contemporana individuala, situata intr-o zona rezidentiala aerisita din Tunari, cu acces rapid catre DN1, Pipera si Bucuresti. Proprietatea ofera intimitate, lumina naturala din plin si posibilitatea de personalizare a finisajelor.
Preturi & optiuni de achizitie;
• 325.000 € – la stadiul actual;
• 355.000 € – include manopera pentru finisaje;
• 375.000 € – predare la cheie-Buget estimat finisaje: 20.000 € (deductibil din pret);
* Nu se aplica TVA - proprietatea este pe persoana fizica!!!
** Comision - 0%:
Detalii proprietate:
• Suprafata construita: ~190 mp;
• Regim de inaltime: P+1;
• Teren total: 600 mp;
• 400 mp teren propriu;
• 200 mp cota parte din teren comun;
⸻
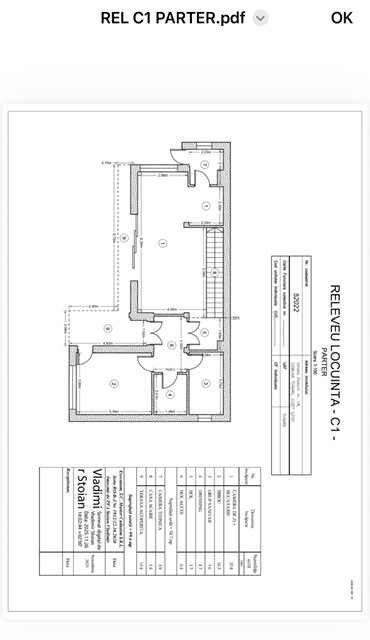
Compartimentare:
Parter:
• Living spatios cu dining si bucatarie open-space;
• Birou / camera multifunctionala;
• Grup sanitar;
• Hol + spatii de depozitare;
• Terasa cu acces in curte;
Etaj:
• 1 Dormitor matrimonial cu dressing si baie proprie;
• 2 dormitoare;
• Baie;
• Hol + spatii de depozitare;
⸻
Constructie & caracteristici;
• Structura din beton armat (cadre de beton) – poze din timpul constructiei;
• Fatada ventilata;
• Incalzire prin pardoseala pe ambele etaje;
• Zidarie Porotherm 30 cm + izolatie 15 cm;
• Arhitectura moderna, ferestre mari, lumina naturala excelenta;
• Curte proprie, ideala pentru relaxare;
• Finisaje interioare personalizabile;
• Buget estimat finisaje: 20.000 € (deductibil din pret);
⸻
Localizare:
• Strada Padurii – Tunari, Ilfov;
• Zona linistita, constructii noi;
• Vecinatate imediata cu padurea;
• Acces facil catre DN1, Pipera si nordul Bucurestiului;
⸻
Pentru informatii suplimentare si vizionari, va rugam sa contactati!
Caracteristici, dotari
Obiective interes
| 1. | Gentle Education - Gradinita Tunari | 0772272303 | Str. Primaverii, nr. 5, Tunari, judetul Ilfov |
| 2. | Pinocchio - Gradinita Tunari Ilfov | 0770774922; 0314205665 | Str. Primaverii, Nr. 5, Tunari, judetul Ilfov |
| 3. | After School Tunari | 0748541503 | Str. 1 Decembrie, nr. 7A, Tunari, judetul Ilfov |
| 4. | Centrul Piticot - Cresa, gradinita, before & after school Tunari | 0787614634 | Calea Bucuresti, nr. 42, Tunari, judetul Ilfov |
| 5. | Alexander Kindergarten - Gradinita Otopeni | 0729122768 | Str. 23 August, nr. 133-135, Otopeni, judetul Ilfov |
| vezi mai multe | |||


Vezi galeria