Snagov, strada Nufarului 50A, central, Ilfov
- Suprafata utila 234 mp
- Teren 1.490 mp
- An 2006
- 6 camere
- La cheie
Calculeaza distanta
Descriere anunt
Reprezentare exclusiva - comision 0% cumparator.
Good Estate va propune spre vanzare o casa cu 6 camere, 3 bai, 2 terase, garaj, spatiu parcare pentru 3 masini si teren 1.490 mp in proprietate, stare interior buna (fara imbuntatiri recente), situata in strada Nufarului nr. 50A, comuna Snagov – Ilfov.
Detalii proprietate:
Casa 6 camere
Regim inaltime: Sp+P+M
An constructie: 2006
Suprafata utila: 234 mp
Suprafata construita (amprenta la sol): 188 mp
Suprafata desfasurata: 316 mp
Nr. bai: 3 (o baie cu cada si wc de serviciu la parter, baie cabina de dus la etaj)
Calitate finisaje: medii
Sistem incalzire: centrala termica proprie, calorifere
Utilitati racordate la reteaua publica: gaze, curent, canalizare, apa
Anexa: Garaj P+M, edificat in 2006
Suprafat garaj = 22,9 mp
Depozitare = 7 mp
Mansarda – garsoniera 32 mp
Camera = 15,9 mp
Hol = 6,9 mp
Baie = 3,1 mp
Bucatarie = 3,2 mp
Casa scarii = 3,2 mp
Suprafata construita la sol anexa 38 mp
Suprafata construita desfasurata anexa 76 mp
Suprafete imobil conform releveu:
Subsol partial
Camera tehnica = 7,4 mp
Pivnita = 7,0 mp
Hol = 2,0 mp
Casa scarii = 3,9
Suprafata totala = 20,3 mp
Parter
Camera de zi = 36,3 mp
Bucatarie + Loc de luat masa = 28,5 mp
Dormitor = 20,2 mp
Hol = 12,6 mp
Dressing = 7,1 mp
Baie = 7,7 mp
Grup sanitar = 2,1 mp
Suprafata utila = 114,5 mp
Casa scarii = 4,6 mp
Terasa acoperita = 25,2 mp
Suprafata totala parter = 144,3 mp
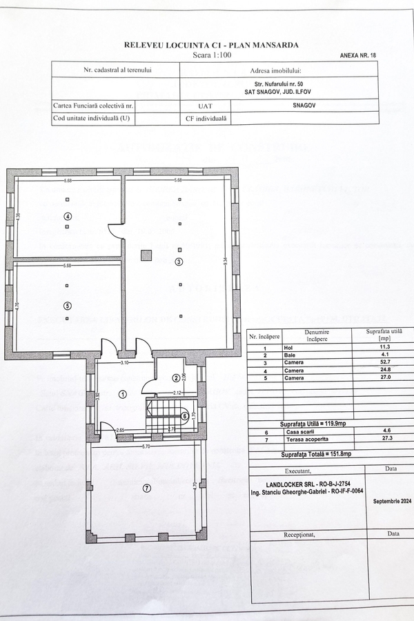
Mansarda
Camera = 52,7 mp
Camera = 27,0 mp
Camera = 24,8 mp
Baie = 4,1 mp
Hol = 11,3 mp
Suprafata utila = 119,9 mp
Terasa acoperita = 27,3 mp
Casa scarii = 4,6 mp
Suprafata totala mansarda = 151,8 mp
Detalii tehnice:
Structura de rezistenta: beton
Inchideri si compartimentari: caramida
Acoperis: tigla
Instalatii electrice: conductori de cupru in tub de protectie PVC
Izolare termica: panouri de polistiren extrudat
Finisaje interioare si exterioare: tamplarie din lemn, faianta, gresie, parchet.
Caracteristici, dotari
Obiective interes
| 1. | Gradinita CLAS - Snagov | 0771351537; 0732822114 | Intr. Tuberozelor, nr. 6, Snagov, judetul Ilfov |
| 2. | Oaki - Gradinita Ciofliceni, Snagov | 0722238682 | Str. Matei Corvin, nr.15 A, Sat Ciofliceni, com. Snagov, judetul Ilfov |
| vezi mai multe | |||


Vezi galeria