Pipera Casa de vanzare in Pipera - Emil Racovita, in Complexul Azur
- Suprafata utila 140 mp
- Teren 200 mp
- An 2006
- 5 camere
- La cheie
Descriere anunt
Iti propun spre vanzare o casa situata in Pipera, pe strada Emil Racovita, in binecunoscutul Complex Azur – un ansamblu rezidential apreciat pentru liniste, siguranta, strazi private, comunitate selecta si accesul rapid catre zonele de birouri, scoli internationale, Mall Promenada, Hub-ul Pipera si DN1.
Complexul este format exclusiv din case, beneficiaza de infrastructura completa, spatii verzi, acces securizat si o pozitionare excelenta pentru familiile care isi doresc confort, intimitate si proximitate fata de toate facilitatile importante din nordul Capitalei.
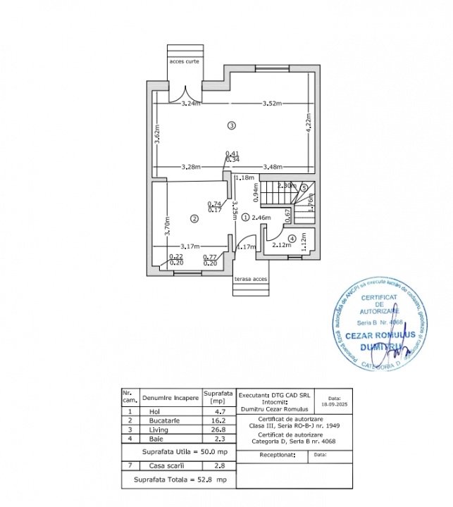
Proprietatea are 140 mp utili, se afla pe un teren de 200 mp, dintre care aproximativ 100 mp reprezinta curtea libera, perfecta pentru relaxare sau amenajare ulterioara. Casa este construita in 2006, solida si bine intretinuta, fiind compartimentata eficient pentru o familie.
La parter regasim un living luminos cu zona de dining, bucatarie inchisa si o baie. Etajele ofera 4 dormitoare si 2 bai, iar compartimentarea este functionala si armonioasa.
In fata casei exista loc de parcare propriu.
Important: Fotografiile din prezentare au fost editate pentru a elimina mobilierul si a evidentia spatiul. La momentul vizionarii, casa este mobilata si utilata, insa se elibereaza complet la vanzare, conform dorintelor viitorului proprietar.
Pretul este de 288.000 euro, iar oferta beneficiaza de comision 0% pentru cumparator


Vezi galeria