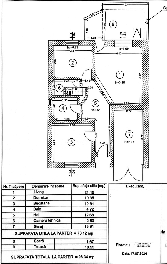
Nicolae Grigorescu, 10 minute metrou si parc IOR, pe strada Malva
- Suprafata utila 190 mp
- Teren 310 mp
- An 2008
- 5 camere
- La cheie
1 Decembrie 1918 ...
19 min.
Calculeaza distanta
Descriere anunt
Va propunem in exclusivitate spre vanzare o vila cu regim de inaltime P+E+pod, amplasata in zona Nicolae Grigorescu, la doar 15 minute de mers pe jos pana la statia de metrou si Parcul IOR, pe strada Malva.
Proprietatea este individuala, fara vecini in curte, si beneficiaza de o compartimentare eficienta: 5 dormitoare, 2 bai prevazute cu ferestre, o terasa situata in spatele casei, balcon, un pod generos ce poate fi amenajat, garaj si o curte frumos amenajata.
Imobilul dispune de multiple imbunatatiri: gresie, faianta, parchet, ferestre cu geam termopan, usa metalica la intrare, centrala termica proprie si este racordat la toate utilitatile.
Actele sunt complete si actualizate, iar proprietatea este eligibila pentru achizitie prin credit bancar.
Caracteristici, dotari
Acces mijloace transport
| Statii metrou | Timp | |
|---|---|---|
![]() |
1 Decembrie 1918 | 19 min. |
| Statii STB | Timp |
|---|---|
|
Malva
|
5 min. |
Obiective interes
| 1. | Aripi spre Succes - Gradinita si Afterschool sector 3 | 0740137944 | Aleea Manastirea Agapia, nr. 32, Sector 3 |
| 2. | Strumfisor - Gradinita Bucuresti | 0744709237 | Bd. Nicolae Grigorescu, Nr. 105 - 109, Sector 3, Bucuresti |
| 3. | Stelutele, After School - Bucuresti | 0734716769 | Str. Vitioara, Nr. 46, Sector 3, Bucuresti |
| 4. | Diamond Kids - Cresa, Gradinita si After School Bucuresti | 0751048000 | Str. Trapezului, nr. 44, Sector 3 |
| 5. | Smart Children - After School Bucuresti | 0774613480; 0760757410 | Str. Prevederii, nr. 6, bl. D2, Ap. 1, Interfon 1, Sector 3, |
| 6. | Cresa Greierasul sector 3 | 0737799585 | Str. Plutonier Major Marin Pazon, nr. 2, sector 3 |
| 7. | Gradinita Nr. 232 sector 3 | 0213485518 | Str. Patriotilor, nr. 3, sector 3 |
| 8. | Ramy\'s Kids - After School sector 3 | 0723523721 | Bd. Nicolae Grigorescu, nr. 46, sector 3 |
| 9. | Gradinita Nr. 211 sector 3 | 0213451165 | Str. Trapezului, Nr. 1A, sector 3 |
| 10. | Marilank - Gradinita si cresa Bucuresti | 0768316808 | Strada Lemnisorului, Nr 21-27, Sector 3 |
| 11. | Gradinita Nr. 196 sector 3 | 0213450636 | Str. Plutonier Ionescu Petre, nr. 76, sector 3 |
| 12. | Gradinita Nr. 241 (Pestisorul De Aur) sector 3 | 0213482910 | Str. Rotunda, nr. 19, Sector 3 |
| 13. | Alice si Taramul Fermecat - Afterschool, Bucuresti | 0741495713; 0748013790 | Str. Jean Alexandru Steriadi, Nr. 14D, Sector 3, Bucuresti |
| 14. | Gradinita Nr. 160 sector 3 | 0213453650 | Aleea Perisoru, nr. 9, sector 3 |
| 15. | Universul Zambetelor - Gradinita si Cresa Bucuresti | 0765410512 | Str. Lunca Dunarii, nr. 7, sector 3 |
| 16. | Gradinita nr. 71 sector 3 | 0213480894 | Aleea Fuiorului, nr. 9 , sector 3 |
| 17. | Clubul Diandra - Gradinita si After School, Bucuresti | 0745075332 | Str. Prisaca Dornei, Nr. 2H, Sector 3, Bucuresti |
| 18. | Gradinita nr. 3 - sector 3 | 0213464112 | Str. Plt. Nedelcu Ion, Nr. 31, sector 3 |
| 19. | Gradinita nr. 24 sector 3 | 0213441760 | Str. Locotenent Pascu Nicolae, nr. 12, sector 3 |
| 20. | Mini Club Condor - Gradinita, Bucuresti | 0725211112; 0722368662; 0314310407 | Str. Col Iosif Albu, Nr. 80 Sector 3, Bucuresti |
| 21. | Gradinita nr. 231 sector 3 | 0310699994; 0314370742 | Str. Codrii Neamtului, nr. 68, sector 3 |
| 22. | A&M afterschool Bucuresti | 0723371319 | Bd. Camil Ressu, Nr. 33, bl. N4, sc. 1, ap. 4, int. 4, sector 3, |
| 23. | Garmy Kids - Gradinita si After School Bucuresti | 0311060294; 0745342225; 0734784673 | Sos. Vitan Birzesti, Nr. 7D-7E, sector 4 |
| 24. | Gradinita Nr. 255 sector 3 | 0213462996; 0213462994 | Bd. Energeticienilor, Nr. 3, sector 3 |
| 25. | Gradinita Floare de colt (nr. 64) sector 3 | 0213464899 | Str. Schitului, nr. 1D, sector 3 |
| 26. | Gradinita nr. 68, sector 3 | 0213450038; 0213450030 | Str. Gura Ialomitei, nr. 20, sector 3 |
| 27. | Neverland Afterschool Bucuresti | 0742139992 | Str. Prisaca Dornei, nr. 16, sector 3 |
| 28. | Anna Afterschool sector 3 | 0733305865 | Aleea Calistrat Hogas, nr. 28 D-E, Sector 3 |
| 29. | Happy Tree - Gradinita & After School Bucuresti | 0761600082; 0763630634; 0213401308 | Aleea Calistrat Hogas, nr. 28A, sector 3, Bucuresti |
| 30. | Gradinita Nr. 191 sector 3 | 0213403046; 0213401059 | Str. Cozla, nr. 1, sector 3 |
| 31. | Ingerul Albastru - Centrul educational pentru copii, Bucuresti | 0727868575 | Str. Serg Cuibaru Ion, Nr. 44, sector 3 |
| 32. | Castelul Fermecat Olimpia - Gradinita, scoala primara, Afterschool, Bucuresti | 0731680372 | Drumul intre Vii, Nr. 24, Sector 3, Bucuresti |
| 33. | OLIMPIA KIDS - gradinita particulara, cresa si after school Bucuresti | 0731680372 | Drumul intre Vii, Nr. 24, Sector 3 |
| 34. | Castelul Fermecat - Gradinita, After School Bucuresti | 0745770001; 0752314458; 0765957032 | Drumul Murgului, Nr. 32, Sector 3, Bucuresti |
| 35. | Sincron - Gradinita, After School Sector 3 | 0722243877 | Calea Vitan, nr. 206, sector 3 |
| 36. | IQ-Est - Gradinita & After School Popesti Leordeni | 0726758183 | Str. Sfantul Gheorghe, nr. 5B, Popesti Leordeni, judetul Ilfov |
| 37. | Plusica - Gradinita & Afterschool sector 3 | 0768596856 | Str. Drumeagului, nr. 51, sector 3 |
| 38. | Robotics School - After School, ateliere de robotica Bucuresti | 0721861565 | Aleea Barajul Cucuteni, nr. 2, Bl M4A, sector 3 |
| 39. | Puiutul Pufos - Gradinita Bucuresti | 0740140968; 0213440010 | Str. Emanoil Marius Buteica, Nr. 30, Sector 3, Bucuresti |
| 40. | Gradinita nr. 216 sector 3 | 0213400395 | Str. Barajul Rovinari, nr. 10, sector 3 |
| 41. | Rose Garden Kids - Gradinita, Ilfov | 0727130130; 0762432222 | Sos. Oltenitei, Nr. 32C-32G, Popesti-Leordeni, judetul Ilfov |
| 42. | Letitia - After school sector 3 | 0733919066; 0722882558 | Str. Baba Novac, nr. 19A,Belvedere Residence, sector 3 |
| 43. | Centrul Educational Nectarel - Afterschool Bucuresti | 0740221854 | Str. Baba Novac, nr. 17, sector 3 |
| 44. | Sfanta Agnes - Gradinita cu program prelungit Popesti Leordeni | 0213615041 | Str. Oltenitei, nr. 6, Popesti-Leorden, judetul Ilfov |
| 45. | Dandi Kids, Gradinita & After School - Bucuresti | 0726758303 | Str. Rasovita, Nr. 18, Sector 3, Bucuresti |
| 46. | Gradinita Nr. 239 sector 3 | 0213245490 | Str. Dristorului, nr. 102, sector 3 |
| 47. | Gradinita Nr. 154 sector 3 | 0213400130 | Aleea Barajul Uzului, Nr. 9, sector 3 |
| 48. | Ghiocelul - Cresa sector 3 | 0729330319 | Bd. 1 Decembrie 1918, nr. 12-14, sector 3 |
| 49. | Centrul Educational Fecioara Maria - Cresa, Gradinita Bucuresti | 0799741474; 0770574645 | Str. Eufrosina Popescu, Nr. 30, Sector 3, Bucuresti |
| 50. | Just4Kids - Scoala Gimnaziala cu nivel gimnazial, primar si prescolar Bucuresti | 0739674601 | Str. Vantului, Nr. 27, Sector 3, Bucuresti |
| 51. | Cresa Potcoava (Titan II) sector 3 | 0213244810; 0213244880 | Str. Pictor Gheorghe Tattarescu, nr. 10, sector 3 |
| 52. | Gradinita nr. 69 sector 3 | 0213244141; 0213240000 | Bd. Pictor Nicolae Grigorescu, nr. 14, sector 3 |
| 53. | Smart Steps - Gradinita , After School sector 3 | 0733965133 | Str. Dristorului, nr. 91-95, bl. E, Parter, sector 3 |
| 54. | Piticul Curajos - Gradinita, After School sector 3 | 0749607276; 0314373583; 0213240124 | Str. Copaceni, Nr. 64, sector 3 |
| 55. | Iuladi Kids - Cresa, gradinita Bucuresti | 0769088777 | Str. Breaza, Nr. 78, Sector 3 |
| 56. | Capsunica - Gradinita sector 3 | 0765516162 | Str. Constantin Nottara, nr. 27, sector 3 |
| 57. | Montessori Yes Place - Gradinita Corbeanca | 0731050108 | Str. Fermei, nr. 26, Corbeanca, judetul Ilfov |
| 58. | Saga Kid - After School sector 3 | 0743266500; 0756169135 | Str. Campia Libertatii, nr. 44, sector 3, |
| 59. | Maria Natalia - Gradinita, After School Ilfov | 0742596945 | Drumul Fermei, Nr. 27E, Popesti-Leordeni, judetul Ilfov |
| 60. | Mica Printesa - Gradinita, after school Bucuresti | 0744321574; 0744703973 | Str. Vulcan Judetu, nr. 16, sector 3, |
| 61. | Little Princess 2 - After School / Before School Bucuresti | 0744703973; 0744321574; 0756070390 | Str. Vulcan Judetu, Nr. 16, Sector 3, Bucuresti |
| 62. | Legolas - Centru Educational sector 3 | 0787322298; 0787460258; 0787298295 | Str. Nucului, nr. 55, sector 3 |
| 63. | Kids Power - Centru educational holistic pentru copii Bucuresti | 0741248260 | Str. Nucului, nr. 55, sector 3 |
| 64. | B-Happy Afterschool sector 3 | 0722396590 | Intr. Horbotei, nr. 12, bl. 4, parter, sector 3 |
| 65. | Teach Little People - Centru educational, Bucuresti | 0727401433 | Str. Alexander von Humboldt, nr. 2, sector 3 |
| 66. | Gradinita nr. 70 sector 3 | 0213400228 | Str. Lucretiu Patrascanu, nr. 12, sector 3 |
| 67. | Liebe Kinder - Gradinita, Bucuresti | 0785378672; 0726349658 | Str. Petre Costescu, Nr. 42, sector 4 |
| 68. | Tic-Pitic, Gradinita & After School - Bucuresti | 0729119398; 0722769224; 0314377383 | Str. Cap. Costescu Petre, Nr. 26, Sector 4, Bucuresti |
| 69. | Piccolo Grande - After School, loc de joaca sector 3 | 0754200258 | Intr. Patinoarului, nr. 52, Sector 3 |
| 70. | Magic Land After School Ilfov | 0799258976 | Str. Sfanta Agnes, nr. 204, Popesti Leordeni, , judetul Ilfov |
| 71. | Dumbo Kids Academy - Cresa, Gradinita, Before & After School sector 3 | 0722320023 | Intr. Patinoarului, nr. 42A, sector 3 |
| 72. | Bulgarasi de Aur - Before & After School Bucuresti | 0723398829 | Str. Cogalnic, nr. 30, sector 3 |
| 73. | AYN RAND - After School, Ilfov | 0722710933 | Str. Pavlicheni, Nr. 96, Popesti Leordeni, judetul Ilfov |
| 74. | Little Princess 1 - Cresa, Gradinita Bucuresti | 0756070390; 0744321574; 0744703973 | Str. Popa Stoica Farcas, Nr. 64-66, Sector 3, Bucuresti |
| 75. | Little Star - Gradinita, After School sector 3 | 0745531279; 0724506631 | Str. Alexandru Magatti, nr. 13 A , sector 3 |
| 76. | ERA Kinderland - Gradinita, after school in limba germana sector 3 | 0728850073; 0213207697 | Str. Dristorului, nr. 67, sector 3 |
| 77. | Smiley After School sector 2 | 0727401829 | Bd. Basarabia, nr. 62A, sector 2 |
| 78. | Kids Adventures - Gradinita Popesti Leordeni | 0745532546 | Str. Sfanta Agnes, nr. 180, Popesti-Leordeni, judetul Ilfov |
| 79. | WhizKidz Hub - Afterschool, Centru educational Bucuresti | 0742602260 | Str. Gradinarilor, nr. 14, Sector 3 |
| 80. | BeMindful Kids - Gradinita si cresa Bucuresti | 0775259518 | Str. Nicolae Florescu, Nr. 126, Sector 4 |
| 81. | Gradinita Nr.161 (Brandusa) sector 3 | 0314250834; 0314250835 | Str. Branduselor, Nr. 37/43, sector 3 |
| 82. | Little Oaks Academy - Gradinita sector 3 | 0766572126; 0766572127 | Sos. Mihai Bravu, Sos. Mihai Bravu nr. 286, sector 3 |
| 83. | Spectrum - Gradinita, Scoala, After School Bucuresti | 0213443344; 0722654161 | Str. Balta Albina, Nr. 9, Sector 3, Bucuresti |
| 84. | Kids\' World Nursery School - Gradinita Bucuresti | 0771242641 | Bd. Basarabia, Nr. 2, Sector 3 |
| 85. | Abcdino, Gradinita - Bucuresti | 0213231070; 0725929616; 0745397739 | Str. Chiparosului, Nr. 31, Sector 3, Bucuresti |
| 86. | Iulia Pantazi - Centrul psihologic pentru copii Bucuresti | 0745480458; 0317304741 | Str. Cernauti, Nr.1, Sector 2, Bucuresti |
| 87. | Gradinita Happy Junior - Bucuresti | 0724229250; 0730309647 | Sos. Berceni, Nr. 8, Sector 4, Bucuresti |
| 88. | Academia Olimpicilor - After School Popesti Leordeni | 0725546338; 0746111458 | Str. Amurgului, nr. 36A, Popesti-Leordeni, judetul Ilfov |
| 89. | Family Kids, Gradinita si After School - Bucuresti | 0722565657; 0723281551 | Str. Mugur Mugurel, Nr. 21, Sector 3, Bucuresti |
| 90. | Gradinita Nr. 187 sector 3 | 0212560038 | Str. Magnetului, nr. 1, sector 3 |
| 91. | Gradinita Nr. 189 Malaxa Bucuresti | 0212554870 | Sos. Vergului, Nr. 12, Sector 2, Bucuresti |
| 92. | Lumea Cocoricilor - Centru educational Bucuresti | 0728855236 | Intrarea Balaci, nr. 9-11, sector 4 |
| 93. | Gradinita nr. 277 Steluta sector 2 | 0212551195 | Sos. Vergului, nr. 14, Sector 2 |
| 94. | Castelul Bucuriei - Gradinita Bucuresti | 0730515181 | Str. Vasile Voiculescu, nr. 30, sector 3 |
| 95. | Kiga 99 Luftballons - Gradinita, After School in limba germana Bucuresti | 0722395197; 0745423467 | Str. Theodor Sperantia, nr. 81, sector 3 |
| 96. | Centrul Social Multifunctional Cresa Mica Sirena sector 4 | 0371360124; 0733200077 | Aleea Emil Racovita, nr. 2B, sector 4 |
| 97. | Bob de Grau, Gradinita si Cresa - Bucuresti | 0720446942 | Str. Agricultori, Nr. 142, Sector 3, Bucuresti |
| 98. | Magic Years - Gradinita si After School Bucuresti | 0733333399 | Sos. Berceni, Nr. 80, sector 4, Bucuresti |
| 99. | Anais & Criss for kids - Centru educational Ilfov | 0799750776; 0721071523 | Str. Posada, nr 5C, Popesti Leordeni, judetul Ilfov |
| 100. | BBIS Bucharest-Beirut International School | 0744309199; 0314381572 | Sos. Vergului, Nr. 14, Sector 2, Bucuresti |
| 101. | Bufnita din Tei - Club de educatie nonformala si activitati recreative | 0751020362 | Str. Sg. Nitu Vasile, nr. 26, Sector 4 |
| 102. | International Kindergarten & Nursery - Gradinita Bucuresti | 0723248978; 0314327798 | Str. Claudiu, Nr. 26, Sector 2, Bucuresti |
| 103. | Kids First - Gradinita Bucuresti | 0748880866; Varnavelena@gmail.com | Str. Sica Alexandrescu, nr. 20, Sector 2, |
| 104. | Maya si Prietenii - Cresa, Gradinita sector 2 | 0755359162 | Str. Herta, nr. 32A, Sector 2, |
| 105. | La Turn - Gradinita sector 2 | 0212751772; 0732122336 | Sos. Morarilor, Nr.1, Sector 2 |
| 106. | Dreamland - Gradinita Bucuresti | 0787521511 | Str. Plugarilor, nr. 20-22, Sector 4, Bucuresti |
| 107. | Madi AfterSchool sector 2 | 0757837644 | Str. Herta, nr. 32A, Sector 2 |
| 108. | Max und Moritz Kinder - Gradinita limba germana & After School Bucuresti | 0726374434 | Str. Plugarilor, Nr. 24, Sector 4, Bucuresti |
| 109. | Land of Kids Afterschool sector 2 | 0766831831; 0726733314 | Str. Constantin Tanase, Nr. 22, Sector 2 |
| 110. | Gradinita Strop de Roua nr. 199 sector 4 | 0214610336 | Str. Emil Racovita, nr. 23, Sector 4 |
| 111. | Funny Clown, Gradinita & After School - Bucuresti | 0740806356 | Str. Ruschita, Nr. 41, Sector 2, Bucuresti |
| 112. | City Kids - Gradinita si afterschool Bucuresti | 0756862825 | Str. Ruschita, Nr. 41, sector 2 |
| 113. | Palatul Copiilor - Gradinita, After School sector 3 | 0740673742; 0314251635 | Str. Morilor, Nr. 19, sector 3 |
| 114. | Martisor - Gradinita sector 4 | 0213325936 | Str. Daracului, Nr. 11, Sector 4 |
| 115. | Centrul Educational Nordic sector 4 | 0786391446 | Splaiul Unirii, Nr. 176, Corp D3, Sector 4 |
| 116. | Mell - Gradinita cu Program Normal sector 3 | 0744564426; 0722958683 | Str. Vlad Dracu, nr. 43, sector 3 |
| 117. | Arlechino & Friends - Gradinita si afterschool - Bucuresti | 0723264032; 0749028820; 0213260584 | Str. Cezar Boliac, Nr. 22-24, Sector 3, Bucuresti |
| 118. | Taramul Magic Voi Reusi - After School sector 2 | 0727540913 | Bd. Chisinau, nr. 6-8, sector 2 |
| 119. | Martisor AfterSchool sector 4 | 0727017553 | Str. Cararuia, nr. 1, sector 4 |
| 120. | Bambi Step by Step- Gradinita Bucuresti | 0213273256; 0317102928 | Str. Gh. Dem Teodorescu, Nr.16 bis, Sector 3, Bucuresti |
| 121. | Bambi Step by Step - Gradinita, Bucuresti | 0741237654 | Str. Ghe. Dem Teodorescu, Nr. 16 bis, Sector 3, Bucuresti |
| 122. | Pick Me Academy - Gradinita si scoala, Bucuresti | 0726000640 | Str. Slt. Pompiliu Manoliu, Nr. 7,Sector 2, Bucuresti |
| 123. | Hai- Hui - Gradinita Popesti Leordeni | 0740424484 | Str. Oituz, Nr. 5, Popesti Leordeni, judetul Ilfov |
| 124. | Cresa Ciobanasului | 0213223085 | Str. Ciobanasului, nr. 23, sector 2, |
| 125. | Casuta lui Ipi - Gradinita | 0762288744 | Drumul Fermei, nr. 78, Popesti-Leordeni, judetul Ilfov |
| 126. | Centrul Educational BUBU | 0735531156 | Sos. Pantelimon, Nr. 355, sector 2 |
| 127. | Aurora - Gradinita & After School sector 3 | 0744317320; 0213224168 | Str. Moise Nicoar?, nr. 9-11, sector 3 |
| 128. | Once Upon a Time - Centrul educational adlerian Bucuresti | 0770590487 | Str. Ciobanasului, Nr. 22A, Sector 2 |
| 129. | Kid2Kids - After School Ilfov | 0771257386 | Str. Amurgului, Nr. 63 Popesti-Leordeni, judetul Ilfov |
| 130. | Academia Fantastica - Gradinita, Before & After School sector 3 | 0731027321; 0723337393; 0213065370 | Str. Moise Nicoara, Nr. 7, Sector 3 |
| 131. | Gradinita nr. 23 sector 2 | 0216275013; 0212550840 | Str. Soldat Gheorghe Raduta, nr. 1, sector 2 |
| 132. | Kids Palace - Gradinita & After School Bucuresti | 0722612031 | Str. Obolului, Nr. 10, Sector 4, Bucuresti |
| 133. | Iepurasul Bocanila - Scoala si Gradinita sector 4 | 0722320773; 0722239508; 0214602246 | Str. Iarba Campului, nr. 91, sector 4, judetul Brasov |
| 134. | PRO Academy Afterschool | 0744501156 | Str. Sibiel, nr. 6, Sector 4 |
| 135. | Gradinita Dumbrava Minunata (nr 193) sector 4 | 0214608287 | Aleea Terasei, nr. 8, sector 4 |
| 136. | Centrul social multifunctional cresa Degetica sector 4 | 0733200060 | Aleea Mirea Mioara Luiza, nr. 1A, sector 4 |
| 137. | Lill put - Centru de educatie nonformala pentru prescolari, Bucuresti | 0722647423 | Str. Sarafinesti, Nr. 29, sector 2 |
| 138. | Gradinita nr. 188 Castel sector 2 | 0212504180; 0213179946 | Bd. Pierre de Coubertin, nr. 1, sector 2 |
| 139. | Gradinita Nr. 280 sector 2 | 0212557980; 0212550205 | Str. Delfinului, nr. 4, sector 2 |
| 140. | I-kids - Club & Afterschool sector 3 | 0743355355 | Sos. Dudesti - Pantelimon, nr. 99A, sector 3 |
| 141. | KeiKo AfterSchool Bucuresti | 0748880866 | Str. Magura Vulturului, nr. 6, Sector 2 |
| 142. | Prietenii Mei - Gradinita cu program prelungit Bucuresti | 0212224642; 0745028876 | Bd. Metalurgiei, nr. 87, Sector 4, Bucuresti |
| 143. | Kindi - Centru de educatie timpurie Montessori, Bucuresti | 0726876873 | Str. Delea Veche, Nr 35, sector 2 |
| 144. | Noel - Gradinita & After School Bucuresti | 0728459857; 0725839363 | Str. Trifoi, Nr. 10, Sector 3, Bucuresti |
| 145. | Gradinita Nr. 256 Bucuresti | 0212506222 | Str. Atanase Ionescu, Nr. 25, Sector 2 |
| 146. | Elefantelul curios- Afterschool & more, sector 4 | 0767332115; 0727222015 | Bd. Constantin Brancoveanu, Nr. 7D, sector 4 |
| 147. | Happy Kids Project - After school si before school, Bucuresti | 0745152802 | Sos. Iancului, Nr. 110, Sector 2, Bucuresti |
| 148. | Paglia - After School sector 4 | 0745209769 | Intr. Gilaului, nr. 5, Sector 4 |
| 149. | Praslea cel Voinic - Gradinita & After School Bucuresti | 0722773103; 0733839824 | Str. Competitiei, Nr. 38, Sector 2, Bucuresti |
| 150. | Sf. Imparati Constantin si Elena, Gradinita Bucuresti | 0722237110; 0722293056; 0213261361 | Str. Labirint, Nr. 137 B , Sector 3, Bucuresti |
| 151. | Gradinita nr. 264 101 Dalmatieni sector 4 | 0214608206; 0732723053 | Str. Aliorului, nr. 5, sector 4 |
| 152. | Zambete Colorate - Gradinita Ilfov | 0749262383 | Sos. Dobroesti, Nr. 30, judetul Ilfov |
| 153. | Montessima Educational - Afterschool zona Iancului, Bucuresti | 0771421104 | Str. Constantin Zlatescu, nr. 12, sector 2 |
| 154. | Oxigen Sport - Befor School, After School Bucuresti | 0722529429 | Str. Duzilor, Nr. 23, sector 2, Bucuresti |
| 155. | Centrul Social Multifunctional Cresa Scufita Rosie sector 4 | 0733200109; 0372874267; 0372715100, 0372715101 | Aleea Tohani, nr. 1, bl.30, sc. 1, parter, sector 4 |
| 156. | Luminita - Gradinita sector 2 | 0212503180 | Sos. Iancului, nr. 4A, sector 2 |
| 157. | Sapte Ani - Gradinita, After School Bucuresti | 0762259115; 0762259116 | Drumul Gilaului, nr. 7E, sector 4 |
| 158. | Mihai Ionescu - Gradinita, Scoala, Liceu Bucuresti | 0213235495 | Str. Parfumului, Nr. 31, Sector 2, Bucuresti |
| 159. | Clopotel - Gradinita Bucuresti | 0212502197 | Str. Elev Dridu Georgescu, nr. 2, sector 2 |
| 160. | Copiii Montessori - Gradinita sector 3 | 0721204642 | Str. Labirint, nr. 95, Sector 3 |
| 161. | Iilo - Gradinita & After School Bucuresti | 0720702910 | Str. Iarba Campului, Nr. 4, Sector 4, Bucuresti |
| 162. | Bell - Gradinita, Afterschool Bucuresti | 0728694516 | Str. Mecet, Nr. 53, Sector 2 |
| 163. | Licurici - Gradinita sector 4 | 0314377556; 0767503191 | Str. Cuza Voda, nr. 141 A, Sector 4 |
| 164. | Teddy Club - Club educational , After school Bucuresti | 0732138368; 0723188995 | Str. Duminicii, nr. 16, sector 4 |
| 165. | BritAcademy, Gradinita in limba engleza - Bucuresti | 0740329105 | Str. Olimpiadei, Nr. 36, Sector 2, Bucuresti |
| vezi mai multe | |||
| 1. | Policlinica Titan | 0213400335; Fax 0213400745 | Bd. Nicolae Grigorescu, nr. 41, sector 3, |
| 2. | Pandora Medical Center - Bucuresti | 0213413098; 0732263626 | Aleea Calistrat Hogas, Nr. 45B, sector 3 |
| 3. | Spitalul Clinic de Urgenta \"Sf. Ioan\" Bucuresti | Tel. 0213345190; 0213345170; Tel/Fax 0213345970 | Sos. Vitan-Barzesti nr. 13, sector 4, |
| 4. | Clinica Medicala Medlife-Bucuresti | 0219646; 0742299843 | Str.Liviu Rebreanu, nr. 8,sector 3, |
| 5. | Spitalul Clinic de Urgenta Sfantul Ioan Bucuresti | Tel. 0213345190; 0213345170 | Sos. Vitan Barzesti, nr. 13, sector 4, Bucuresti |
| 6. | Spitalul Clinic de Urgenta \"Sf. Ioan\" Bucuresti | Tel. 0213345190; 0213345170; Fax 0213345970 | Sos. Vitan Barzesti, nr.13, sector 4, |
| 7. | Prof. Dr. Mina Minovici, Institutul de Medicina Legala Bucuresti | 0314230708; 0213321156 | Sos. Vitan Barzesti, nr. 9-11, sector 4, |
| 8. | Prof. Dr. Mina Minovici, Institutul de Medicina Legala Bucuresti | 0314230700 ; 0213346260 | Sos. Vitan Barzesti, nr. 9, sector 4, |
| 9. | Clinica Nova ORL - Dr. Voda Ioana Alexandra-Bucuresti | 0213254422; 0799848484 | Str. Pictor Gh. Tattarascu , nr. 2, subsol Policlinica Globului, in spatele cinematografului Gloria, Baba Novac, sector 3, |
| 10. | Centrul Medical Rom Med 2000 | 0726366370; 0213270441; Tel/Fax 0213206087 | Intr. Baba Novac, nr. 4 A, Sector 3, |
| 11. | Policlinica Baba Novac | 0770218336; 0748175572 | Str. Baba Novac, nr. 2, sector 3 |
| 12. | Medikali - Clinica Medicala Privata, Bucuresti | 0219806 | Bd. Th. Pallady, Nr. 66A, Sector 3 (statia de metrou Anghel Saligny), Bucuresti |
| 13. | Gral Medical - Centrul Medical, Bucuresti | 0213230000; 0724242259 (programari radiologie); Fax 0213230002 | Str.Traian Popovici (fosta Unitatii), Nr. 79-91, Sector 3, Bucuresti |
| 14. | Clinica Memento Med-Bucuresti | 0213260081 | Str. Brailita, nr. 1, sector 3, |
| 15. | Dr. Victor Babes, Spitalul Clinic de Boli Infectioase si Tropicale Bucuresti | 0213172727 / .28 / .29/ .30 (Centrala); Fax 021 3172721 | Sos. Mihai Bravu, nr. 281, sector 3 , |
| 16. | Centrul Medical Dr. Victor Babes-Bucuresti | 0213179503; Fax: 0213179502 | Sos. Mihai Bravu nr. 281, sector 3 , |
| 17. | Spitalul Clinic de Boli Infectioase si Tropicale Dr. Victor Babes | 0213172727 / .28 / .29/ .30 (Centrala); 0213172721 | Sos. Mihai Bravu, nr. 281, sector 3, |
| 18. | Emergency Medical Care - Servicii medicale de urgenta la domiciliu Bucuresti & Ilfov | 0799058058; 0732528136; 0314250213 | Calea Vitan, Nr. 109B-109D, Sector 3, Bucuresti |
| 19. | Spitalul Clinic Judetean de Urgenta Ilfov | Tel.0213243312; 0213241161; Fax 0213243296 | Bd. Basarabia nr. 49-51, sector 2, |
| 20. | Spitalul Clinic Judetean de Urgenta Ilfov + ambulatoriu-Bucuresti | Tel.021.3243312; 0213241161; Fax .0213243296 | Bd. Basarabia nr. 49-51, sector 2 , |
| 21. | Institutul National de Medicina Sportiva | 0213184704 ; 0213184705 ; 0213184706 | Bd. Basarabia, nr. 37-39, sector 2, Bucuresti |
| 22. | Dr. V. Gomoiu, Centrul Medical Bucuresti | 0314136700; 0314136701 | Bd. Basarabia nr. 21, sector 2, |
| 23. | Cabinet Medical Persepolis- Bucuresti | 0749065961; 0751011893 | Str. Vasile Toneanu , nr. 20, sector 3, |
| 24. | Vitan Policlinica, Grupare de cabinete medicale - Bucuresti | 0727451211; 0213234970; 0213221208 | Calea Dudesti, Nr. 104-124, sector 3, Bucuresti |
| 25. | Spitalul de Boli Cronice Sf. Luca | 0213343010; 0213343014 | Sose. Berceni, nr. 12, sector 4, |
| 26. | Policlinica Regina Maria Sun Plaza | 0219268 | Calea Vacaresti, nr.391, sector 4, mall Sun Plaza, etaj 2, intrarea prin mall, |
| 27. | Dr. V. Gomoiu, Spitalul de Copii - Ambulatoriul de specialitate Bucuresti | 0314136700; 0314136701; 0314136706 | Bd. Basarabia, nr. 21, sector 2, |
| 28. | Centrul Medical Hiperdia | 0213021160; Tel/Fax: 0213340030 | Sos. Berceni, Nr. 10-12, sector 4 (incinta Spitalului de Urgenta Bagdasar Arseni), Bucuresti |
| 29. | Institutul National de Neurologie si Boli Neurovasculare Bucuresti | Tel. 0213343004 interior 1150, 1151 | Sos. Berceni nr. 10-12, sector 4, |
| 30. | Spitalul de Urgenta prof. dr. Bagdasar Arseni | Tel. 0213343025; Fax 0213347350; 0213343027 | Sos. Berceni nr. 10-12, sector 4, |
| 31. | Spitalul Clinic de Urgenta prof. dr. Bagdasar Arseni | 0213343025; 0213343026; 0213343027 | Sos. Berceni, nr. 10-12, sector 4, Bucuresti |
| 32. | Cabinet Medical Alfa | Tel.0319495 | Sos. Oltenitei, nr. 220, bl. 8, sc. 2, ap. 58, sector 4, |
| 33. | Spitalul clinic de copii Dr. Victor Gomoiu | 0314136700; 0314136701 | Bd. Basarabia nr. 21, sector 2, |
| 34. | Spitalul Clinic Nicolae Malaxa + Ambulatoriu | 0212555405; Fax: 0212555275 | Sos. Vergului, Nr. 12, Sector 2 , Bucuresti |
| 35. | Hipocrat 2000-clinica medicala-Bucuresti | 0219605 | Bd. Chisinau, nr. 16, sector 2, |
| 36. | Spitalul de Psihiatrie Prof. Dr. Alexandru Obregia | Tel. 0213320411; 0213321304; 0213347164 | Sos. Berceni, nr. 10-12, sector 4 , |
| 37. | Spitalul de Psihiatrie Prof. Dr. Alexandru Obregia-Bucuresti | Tel. 0213320411; 0213321304; 0213347164 | Sos. Berceni, nr. 10-12, sector 4 , |
| 38. | Spitalul Clinic Nicolae Malaxa + Ambulatoriu | Tel. 0212555405; Fax 0212555275 | Sos. Vergului, nr. 12, sector 2, |
| 39. | Professional Klinic, Bucuresti - Tratament si analize | 0314250805 ; 0742207755 | Str.Agricultori, Nr. 115, bloc 79, Parter, Sector 3, Bucuresti |
| 40. | Centrul Medical Endocenter-Bucuresti | Tel.0764671233; Fax 0213267660 | Str. Arh. G. Sterian, nr. 8, sector 2, |
| 41. | Clinica Life-Med-Bucuresti | 0319981 | Str. Plugarilor , nr. 18,sector 4, |
| 42. | Medisan Family Clinic - Clinica medicala Bucuresti | 0217955980 | Str. Dr. Calin Ottoi, nr. 20-22, sector 2 |
| 43. | Ambulatoriul spitalului Sf. Pantelimon | 0212554090; Fax 0212554025 | Sos. Pantelimon nr. 340-342, sector 2, |
| 44. | Spitalul de Urgenta Sf. Pantelimon + ambulatoriu | 0212554090; 0212554025 | Sos. Pantelimon nr. 340-342, sector 2, |
| 45. | Spitalul de Urgenta Sf. Pantelimon + ambulatoriu | 0212554090; Fax .0212554099 | Sos. Pantelimon nr. 340-342, sector 2, |
| 46. | Da Vinci Medical Center | 0791435957 | Str. Amurgului, nr. 66M, Popesti-Leordeni, judetul Ilfov |
| 47. | Centrul Medical Medcenter - Bucuresti | 0800800599; 0213310599; Fax.0213310592 | Sos.Berceni, nr.8, sector 4, |
| 48. | Omnia Medical Center - Clinica medicala, Bucuresti | 0213230034; 0728841841 | Bd. Octavian Goga, Nr. 14, Bl. M61, Parter, Sector 3, Bucuresti |
| 49. | Centrul Medical Amicus Med | Tel. 0766424841; Tel/Fax 0212508585 | Sos. Iancului nr. 17, bl. 106C, sc. 1, ap. 4, sector 2, |
| 50. | Spitalul Clinic de Urgenta pentru Copii - M.S. Curie (Budimex) + ambulatoriu | 0214603026; 0214601035 (Primiri Urgente); 0214604260 (Ambulatoriul) | Bd. Constantin Brancoveanu, Nr. 20, Sector 4, Bucuresti |
| 51. | Policlinica Iancului-Bucuresti | Tel.0314255277 (laborator); 0212508490 (O.R.L.); 0212503333 | Sos. Iancului , nr. 3, sector 2 , |
| 52. | Spitalul Clinic de Urgenta pentru Copii M.S. Curie + ambulatoriu | Tel. 0214604260; 0214603026 | Bd. Constantin Brancoveanu, nr. 20, sector 4, |
| 53. | Spitalul Prof. Dr. Constantin Angelescu | 0213233040; 0213233041 | Aleea Cauzasi, nr. 49 - 51 sector 3, |
| 54. | SPITALUL PROF. DR. CONSTANTIN ANGELESCU | 0213233040; 0213233041 | Aleea Cauzasi, nr. 49-51, sector 3, |
| 55. | Centrul Medical Veridia-Bucuresti | 0213029434 | Str. Matei Basarab, nr. 45, sector 3, |
| vezi mai multe | |||
| 1. | Scoala Gimnaziala Nr. 92 - Bucuresti | 0213480375 | Aleea Vlahita, Nr. 1A, sector 3 |
| 2. | Profesia, Liceu profil Economic - Bucuresti | 0213486638; 0787889809 | Ilioara , Nr. 16 (in cladirea Scolii de Soferi), et. 2, sector 3 , Bucuresti |
| 3. | Sfantul Ioan, Scoala Postliceala Sanitara - Bucuresti | 0724355298; 0787889809 | Str. Ilioara, nr. 16, et. 2, sector 3, Bucuresti |
| 4. | Scoala Gimnaziala Nr. 20 - Bucuresti | 0213452485 | Str. Prevederii, Nr. 19, Sector 3, Bucuresti |
| 5. | Costin D. Nenitescu, Colegiul Tehnic - Bucuresti | 0213450920 | Bd. Theodor Pallady, Nr. 26, Sector 3, Bucuresti |
| 6. | Liceul Teologic Baptist Logos Bucuresti | 0213451072 | Bd. Theodor Pallady, Nr. 26, sector 3, Bucuresti |
| 7. | Scoala Gimnaziala Nr. 112 | 0213483331 | Str. Patulului, Nr. 2, Sector 3, Bucuresti |
| 8. | Nicolae Labis, Scoala Gimnaziala Nr. 89 - Bucuresti | 0213486271 | Str. Firidei, Nr. 2, Sector 3, Bucuresti |
| 9. | Scoala Gimnaziala Nr. 149 - Bucuresti | 0213451985 | Aleea Perisoru, nr. 4, Sector 3, Bucuresti |
| 10. | Scoala Gimnaziala Nr. 82 - Bucuresti | 0213450962 | Jean Steriad, Nr. 17, Sector 3, Bucuresti |
| 11. | Dante Alighieri, Liceu teoretic - Bucuresti | 0213481950; 0213481545 | Aleea Fuiorului, Nr. 9, Sector 3, Bucuresti |
| 12. | Decebal, Liceul Bilingv - Bucuresti | 0213469233 | Bd. Energeticienilor, Nr. 9-11, Sector 3, Bucuresti |
| 13. | Scoala Gimnaziala Nr. 200 - Bucuresti | 0213453119 | Str. Postavarul, Nr. 13, Sector 3, Bucuresti |
| 14. | Scoala Gimnaziala Nr. 54 - Bucuresti | 0213465143; 0310699824 | Str. Istriei, Nr. 19, Sector 3 |
| 15. | Hamburg, Scoala Gimnaziala Nr.195 - Bucuresti | 0318058603 | Str. Lunca Bradului, Nr. 2, sector 3, Bucuresti |
| 16. | Scoala Gimnaziala Nr. 116 | 0213450102 | Str. Gura Ialomitei, Nr. 20, Sector 3, Bucuresti |
| 17. | Scoala Gimnaziala Nr. 88 - Bucuresti | 0213480445 | Str. Odobesti, Nr. 3, Sector 3, |
| 18. | Federico Garcia Lorca, Scoala Gimnaziala Nr.196 | 0213403710 | Str. Cozla, nr. 2, sector 3, Bucuresti |
| 19. | Traian Vuia, Liceu Tehnologic de Metrologie - Bucuresti | 0213345915; 0372942097 | Sos. Vitan Barzesti, Nr. 11, Sector 4, Bucuresti |
| 20. | Liceul Economic nr. 1 - Bucuresti | 0371417419 | Sos. Vitan Barzesti, Nr. 11, Sector 4, Bucuresti |
| 21. | Mihai Botez, Scoala Gimnaziala Nr. 87 - Bucuresti | 0213462361 | Str. Ramnicu Valcea, Nr. 32, Sector 3, Bucuresti |
| 22. | Mexic, Scoala Gimnaziala Nr. 22 - Bucuresti | 0213401124 | Bd. 1 Decembie 1918, Nr. 34, Sector 3, Bucuresti |
| 23. | Scoala Gimnaziala Mexic - Bucuresti | 0213401124 | Bd. 1 Decembrie 1918, Nr. 34, sector 3 |
| 24. | Scoala Gimnaziala Nr. 86 - Bucuresti | 0314250608 | Intr. Reconstructiei, Nr. 6A, Sector 3, Bucuresti |
| 25. | Radu Popescu, Liceu Teoretic, Clasele I-XII si Gradinita - Popesti-Leordeni | 0214673423; Fax 0213614022 | Leordeni, Nr. 52, Popesti-Leordeni, judetul Ilfov |
| 26. | Alexandru Ioan Cuza, Liceu Teoretic - Bucuresti | 0213404811 | Aleea Barajul Dunarii, Nr. 5, sector 3, Bucuresti |
| 27. | Liviu Rebreanu, Scoala Gimnaziala - Bucuresti | 0213401845 | Aleea Barajul Rovinari, Nr. 1, Sector 3, Bucuresti |
| 28. | Alexandru Ioan Cuza, Scoala Gimnaziala Nr. 199 - Bucuresti | 0213243970 | Bd. Nicolae Grigorescu, Nr. 14, Sector 3, Bucuresti |
| 29. | Scoala Generala nr. 84 Nicolae Balcescu - Bucuresti | 0213216391 | Calea Vitan, Nr. 135, sector 3 |
| 30. | Colegiul Tehnic Mihai Bravu - Bucuresti | 0213217699 | Sos. Mihai Bravu, Nr. 428, Sector 3 |
| 31. | Liceul Tehnologic Theodor Pallady - Bucuresti | 0213453080 | Bd. Theodor Pallady, Nr. 250, sector 3 |
| 32. | Benjamin Franklin, Liceu teoretic - Bucuresti | 0213244890; 0213243010 | Str. Pictor Gh. Tattarescu, Nr. 1, sector 3, Bucuresti |
| 33. | Scoala Gimnaziala Nr. 80 - Bucuresti | 0213214256 | Calea Dudesti, Nr. 191, Sector 3, Bucuresti |
| 34. | About Scoala Metropolitana A.R.C | 0314254343; 0722522198 | Str. Esarfei, nr. 63-71, sector 3, |
| 35. | Anghel Saligny, Colegiu Tehnic - Bucuresti | 0213402654 | Bd. Nicolae Grigorescu, Nr. 12, Sector 3, Bucuresti |
| 36. | Magia Copilariei - After-school Bucuresti | 0761912892 | Strada Nucului, Nr. 55, Sector 3 |
| 37. | Liceul Teoretic Nichita Stanescu - Bucuresti | 0213400440 | Str. Lucretiu Patrascanu, Nr. 12, Sector 3, Bucuresti |
| 38. | Leonardo Da Vinci, Scoala Gimnaziala Nr.75 - Bucuresti | 0213248676 | Str. Pictor Gheorghe Petrascu, Nr. 55, Sector 3, Bucuresti |
| 39. | Neagoe Basarab Voievod, Scoala Gimnaziala (fosta Nr.16) - Bucuresti | 0213403313; 0374464076 | Intr. Constantin Brancusi, nr. 7, sector 3, Bucuresti |
| 40. | Kidos - Before & after school, Bucuresti | 0770775730 | Bulevardul Nicolae Grigorescu, nr. 2 D, sector 3 |
| 41. | Dimitrie Leonida, Colegiul Tehnic - Bucuresti | 0213243294; 0213243295; 0213243293; 0213246902 | Bd. Basarabia, Nr. 47, Sector 2, Bucuresti |
| 42. | Liceul tehnologic Dacia - Bucuresti | 0213344434 | Str. Cap. Grigore Marin, Nr. 42-44, sector 4 |
| 43. | Scoala Gimaziala Nr. 133 - Bucuresti | 0213325837 | Str. Stanjeneilor, Nr. 3, sector 4, Bucuresti |
| 44. | Eremia Grigorescu, Scoala Gimnaziala - Bucuresti | 0213349243 | Str. Capitan Eremia Popescu, Nr. 27, Sector 4, Bucuresti |
| 45. | Liceul Teoretic Hyperion - Bucuresti | 0311032803 | Sos. Mihai Bravu, nr. 288C, sector 2 |
| 46. | Cezar Bolliac, Scoala Gimnaziala Nr. 70 - Bucuresti | 0314040172 | Intr. Tiglina, Nr. 37, Sector 3, Bucuresti |
| 47. | Ghelmez Petre, Scoala gimnaziala Nr. 58 - Bucuresti | 0213245135 | Str. Pescarusului, Nr. 124, Sector 2, Bucuresti |
| 48. | Liceul Teoretic International de Informatica Bucuresti | 0213275443; 0213276570 | Str. Balta Albina, Nr. 9, Sector 3, Bucuresti |
| 49. | Scoala Gimnaziala Nr. 113 | 0213322347 | Str. Parincea, Nr. 4, Sector 4, Bucuresti |
| 50. | Spectrum, Scoala primara - Bucuresti | 0213443344; 0722654161 | Str. Balta Albina, Nr. 9, Sector 3, Bucuresti |
| 51. | Scoala Gimnaziala Nr. 95 - Bucuresti | 0770503408; 0213235185 | Str. Foisorului, Nr. 111-113, Sector 3, Bucuresti |
| 52. | Liceul Tehnologic Dragomir Hurmuzescu - Bucuresti | 0212560083 | Bd. Basarabia, Nr. 256, sector 3 |
| 53. | International Premium School of Bucharest | 0745028876; 0213345324 | Soseaua Berceni, Nr. 24, Sector 4 |
| 54. | Montessori - Scoala si gradinita, Bucuresti | 0754054402 | Str. Maior Ion Coravu, Nr. 53, Sector 2 |
| 55. | Scoala Gimnaziala SEB - Bucuresti | 0314249675; 074502274 | Str. Martisor, Nr. 22, sector 4 |
| 56. | Scoala Gimnaziala Nr. 190 - Bucuresti | 0213324689 | Str. Nitu Vasile, Nr. 16, Sector 4, Bucuresti |
| 57. | Scoala Gimnaziala Nr. 4 - Bucuresti | 0212556425 | Str. Herta, Nr. 14 A, Sector 2, Bucuresti |
| 58. | Scoala Gimnaziala Nr. 67 - Bucuresti | 0212560040 | Str. Magnetului, Nr. 1-3, Sector 3, Bucuresti |
| 59. | BBIS Bucharest - Beirut International School | 0744309199 | Sos. Vergului, Nr. 14, Sector 2, Bucuresti |
| 60. | Emil Racovita, Scoala Gimnaziala Nr. 93 - Bucuresti | 0214610831 | Aleea Emil Racovita, Nr. 1, Sector 4, Bucuresti |
| 61. | Scoala Gimnaziala Nr. 55 - Bucuresti | 0212561066 | Sos. Industriilor, Nr. 46, Sector 3, Bucuresti |
| 62. | Scoala Gimnaziala Nr. 120 Martisor - Bucuresti | 0213325811 | Str. Martisor, Nr. 39, sector 4 |
| 63. | Victoria, Liceu Teoretic - Bucuresti | 0314250543; 0759478014 | Str. Turturelelor, nr. 11A, sector 3, Bucuresti |
| 64. | Scoala Gimnaziala Nr. 66 - Bucuresti | 0212554580 | Str. Logofatul Dan, Nr. 1, Sector 2, Bucuresti |
| 65. | Liceul Tehnologic Sfantul Pantelimon - Bucuresti | 0212559943 | Str. Hambarului, Nr. 12A, sector 2 |
| 66. | Colegiul Tehnic Petru Rares - Bucuresti | 0213304001 | Str. V. V. Stanciu, nr. 6, sector 4 |
| 67. | Waldorf, Liceul Teoretic - Bucuresti | 0212553051 | Str. Sold. Marin Savu, Nr. 29, Sector 2, Bucuresti |
| 68. | Mihai Eminescu, Colegiul National - Bucuresti | 0213304001 | Str. V.V. Stanciu, Nr. 6 , Sector 4, Bucuresti |
| 69. | Scoala Gimnaziala Nr. 3 - Popesti Leordeni | 0374090370 | Str. Domnita Balasa, Nr. 13, Popesti Leordeni, judetul Ilfov |
| 70. | Liceul tehnologic special Regina Elisabeta - Bucuresti | 0212506220 | Str. Vatra Luminoasa, Nr. 108, sector 2 |
| 71. | Emil Racovita, Colegiul National - Bucuresti | 0213217092; Fax 0213217092 | Sos. Mihai Bravu , nr. 169, sector 2, |
| 72. | Marin Sorescu, Scoala Gimnaziala Nr. 194 - Bucuresti | 0214610790 | Bd. Alexandru Obregia, Nr. 3A, Sector 4, Bucuresti |
| 73. | Scoala Gimnaziala Nr. 51 - Bucuresti | 0212554060 | Str. Herta, Nr. 1, Sector 2, Bucuresti |
| 74. | Liceul Teologic Adventist Stefan Demetrescu Bucuresti | 0213345015 | Bd. Metalurgiei, nr. 89, sector 4 |
| 75. | Lucian Blaga, Liceu teoretic - Bucuresti | 0212551265; 0786108825 | Sos. Pantelimon, Nr. 355, Sector 2, Bucuresti |
| 76. | Scoala Gimnaziala Nr. 49 - Bucuresti | 0212502444 | Str. Vatra Luminoasa, Nr. 99, Sector 2, Bucuresti |
| 77. | Scoala Gimnaziala Nr. 77 - Bucuresti | 0212553945 | Sos. Pantelimon, Nr. 289, sector 2 |
| 78. | Scoala Gimnaziala Nr. 62 - Bucuresti | 0212553635 | Str. Potarnichii, Nr. 3, Sector 2, Bucuresti |
| 79. | Apollo Kids - Scoala Primara si Gradinita Ilfov | 0730742782 | Drumul Fermei, Nr. 101, Popesti Leordeni, judetul Ilfov |
| 80. | Pick Me Academy - Scoala Primara Bucuresti | 0726000640; 0722391000 | Strada Agricultori, Nr. 79, Sector 2, Scoala Primara |
| 81. | Miron Nicolescu, Colegiul Tehnic - Bucuresti | 0213344117 | Bd. Metalurgiei, Nr. 89, Sector 4, Bucuresti |
| 82. | Scoala Gimnaziala Nr. 189 - Bucuresti | 0214610040 | Aleea Ciceu, Nr. 12, Sector 4, Bucuresti |
| 83. | Scoala Gimnaziala Nr. 96 Bucuresti | 0214610108 | Str. Rezonantei, nr. 2, sector 4, |
| 84. | Scoala Gimnaziala Nr. 78 - Bucuresti | 0212563261 | Sos. Gara Catelu, Nr. 50, Sector 3, Bucuresti |
| 85. | Kids Kingdom - Before & After School Bucuresti | 0799199627 | Intrarea Traian Demetrescu, Nr. 8, sector 3 |
| 86. | Scoala Gimnaziala Nr. 81 - Bucuresti | 0213263220 | Str. Nerva Traian, Nr. 33, Sector 3, Bucuresti |
| 87. | Mirunette Education, Consiliere si Programe Educationale - Bucuresti | 0212101602 | Valeriu Braniste, Nr. 37-39, Etaj 1, Ap. 3, Cam. 3, Sector 3, Bucuresti |
| 88. | Scoala Gimnaziala Nr. 78 - Bucuresti | 0212563261 | Sos. Garii Catelu, Nr. 50, Sector 3 |
| 89. | Scoala Gimnaziala Nr. 97 - Bucuresti | 0213302545 | Str. Viorele, Nr. 7, Sector 4, Bucuresti |
| 90. | Colegiul National Octav Onicescu - Bucuresti | 0214603544 | Str. Trivale, Nr. 29, Sector 4 |
| 91. | Serban, Scoala de Meserii - Bucuresti | 0722302252; 0212520382 | Intrarea Baritonului, Nr. 9 (prin Str. Matei Voievod Nr. 81-83), Sector 2, Bucuresti |
| 92. | Scoala Gimnaziala Nr. 47 - Bucuresti | 0212564666; 0212561512 | Sos. Garii Catelu, Nr. 132, Sector 3, Bucuresti |
| 93. | Carol Davila, Scoala Sanitara Postliceala - Bucuresti | 0216107068 | Str. Agricultori, nr. 35, 37-39 (cladirea Codecs), sector 2, |
| 94. | Scoala Gimnaziala Nr. 46 - Bucuresti | 0212502527 | Str. Stanescu Gheorghe, Nr. 2-18, sector 2 |
| 95. | Sweet Babies - Cresa, gradinita, after school, Bucuresti | 0785810011 | Strada Teleajen, 26B, sector 2 |
| 96. | Scoala Gimnaziala Nr. 85 | 0212524520 | Str. Dr. Constantin Zlatescu, Nr. 7A, sector 2, Bucuresti |
| 97. | International British School - Bucuresti | 0212531698; 0745340841 | Str. Agricultori, Nr. 21-25, Sector 2, Bucuresti |
| 98. | Montessano - Scoala primara si gradinita, Bucuresti | 0724924070; 0724919711 | Str. Labirint, nr. 97-99, sector 3 |
| 99. | Anastasia Popescu, Liceu Pedagogic Ortodox - Bucuresti | 0212524665; 0725519386; 0722805777 | Popa Nan, 47 B, Sector 2, Bucuresti |
| 100. | International School of Bucharest - Liceu | 0213069530; 0213069534; 0213069544 | Soseaua Garii Catelu, Nr. 1R, Bucuresti |
| 101. | Scoala Gimnaziala Nr. 108 | 0214610039 | Str. Vatra Dornei, nr. 8, sector 4, Bucuresti |
| 102. | Scoala Gimnaziala Nr. 108 - Bucuresti | 0214610039 | Str. Vatra Dornei, Nr. 8, sector 4 |
| 103. | Penticostal Emanuel, Liceul Teologic - Bucuresti | 0213311669 | Str. Cuza Voda, Nr. 116, Sector 4, Bucuresti |
| vezi mai multe | |||
| 1. | Taverna Fierarilor - Restaurant Bucuresti | 0758105629 | Str.Ilioara, Nr. 18, Sector 3, |
| 2. | Ilioara - Restaurant si piscina Bucuresti | 0766379289; 0721244247 | Strada Ilioara, Nr. 16L, sector 3 |
| 3. | Queen Events - Salon evenimente | 0723154564; 0724605209 | Splaiul Unirii, Nr. 773-777, Sector 3 |
| 4. | Marenka - Cofetarie Bucuresti | 0728028827; 0736273652 | Bulevardul Theodor Pallady, Nr. 21, Sector 3 |
| 5. | Savi - Restaurant si club biliard Bucuresti | 0775123051; 0722418555 | B-dul 1 Decembrie 1918, Nr. 56L, Sector 3 |
| 6. | Casa Luminita, Restaurant - Bucuresti | 0749202000 (Lucian Ionescu); 0723500565 | Theodor Pallady, Nr. 287, Sector 3 (zona Ozana), Bucuresti |
| 7. | Eleven - Restaurant Bucuresti | 0723211222; 0786112411 | Strada Postavarul, Nr. 86-90, sector 3 |
| 8. | L\'incontro, Restaurant - Bucuresti | 0732113702; 0751906137; 0767241745 | Postavarul, Nr. 92, Sector 3, Bucuresti |
| 9. | Trattoria Venti - Restaurant Bucuresti | 0731315513 | Str Postavarului, Nr. 84, Sector 3 |
| 10. | Talla - Cofetarie Bucuresti | 0728314326 | Str. Aleea Mizil, Sector 3 |
| 11. | Casa Anca 72, Restaurant - Bucuresti | 0724334499; 0744777499 | Bd. 1 Decembrie 1918 , Nr. 56A, Sector 3, Bucuresti |
| 12. | Xanadu Restaurant - Bucuresti | 0726212114; 0722621717 | Postavarul, Nr. 102, Sector 3, Bucuresti |
| 13. | Xanadu Restaurant, Pub - Bucuresti | 0726212114; 0722621717 | Postavarului, Nr. 102, Sector 3, Bucuresti |
| 14. | Casa Dante - Restaurant cu specific italian, Bucuresti | 0314358069 | Strada Rotunda, nr 4C, sector 3 |
| 15. | Gemenii Pizza - Bucuresti | 0766633686 | Strada Fetesti, Nr. 11A, Sector 3 |
| 16. | Ressu Restaurant & Lounge - Bucuresti | 0723774485; 0731607646; | B-dul Camil Ressu, Nr. 70 A, Sector 3, Bucuresti |
| 17. | Vio Cofetarie - Bucuresti | 0213412082 | Bd. Nicolae Grigorescu, Nr. 20, Sector 3, Bucuresti |
| 18. | Allegro Restaurant - Bucuresti | 0751055536; 0744649177 | Bd. Nicolae Grigorescu, Nr. 20A, Sector 3, Bucuresti |
| 19. | Shaormeria Titan - Fast food Bucuresti | 0771332861; 0755864686 | Bd. Nicolae Grigorescu, Nr. 20, Sector 3 |
| 20. | Camizo, Restaurant - Bucuresti | 0733018778 | Prisaca Dornei, Nr.10A, Sector 3, Bucuresti |
| 21. | Benjamins Restaurant - Nunti, botezuri, evenimente, Bucuresti | 0724248428 | Sos.Vitan-Barzesti, Nr. 5, Sector 4, Bucuresti |
| 22. | Jerry\'s Pizza - Bucuresti | 0373303030 | Calea Vitan, Nr. 236, Sector 3, Bucuresti |
| 23. | Pizzeria Florina - Bucuresti | 0219285 | Strada Nicolae Pascu, nr.1A, sectorul 3 |
| 24. | Chef Gabrielle - Restaurant, Bucuresti | 0766066406 | Strada Tomis, Nr. 5A, Sector 3 |
| 25. | Gloria Jean\'s Coffees Romania | 0760107884 | Bd.Liviu Rebreanu, nr. 4, sector 3 - Mall Park Lake, Bucuresti |
| 26. | KLANdestin - Restaurant Bucuresti | 0731954592 | Str. Liviu Rebreanu, Nr. 6A, Sector 3 |
| 27. | Cartofisserie - Restaurant cu bufet Bucuresti | 0726330960;0740215433 | Liviu Rebreanu, Nr. 4 (ParkLake Shopping Center Mall) |
| 28. | Irina Casa cu Prajituri, Cofetarie - Bucuresti | 0731323192 | Liviu Rebreanu, Nr.12, bl. K2, Cartier Titan Sector 3, Bucuresti |
| 29. | Alba, Restaurant - Bucuresti | 0213404491; 0722820287 | Liviu Rebreanu , Nr. 29 A, Sector. 3, Bucuresti |
| 30. | Vibes Cafe - Restaurant terasa Bucuresti | 0788221270 | Liviu Rebreanu, Nr. 29, Sector 3 |
| 31. | Altfel, Cofetarie - Bucuresti | 0213454005; 0744347848; 0741553448 | Bd 1 Decembrie 1918, Nr 21 ,Sector 3, Bucuresti |
| 32. | Restaurant Paunita - Bucuresti | 0724145707 | Bulevardul Nicolae Grigorescu, Nr. 31A, sector 3 |
| 33. | La Tramvai - Terasa Bucuresti | 0729166021 | Parcul Alexandru Ioan Cuza (I.O.R). intersectie Campia Libertatii, sector 3 |
| 34. | Cofetariile Georgy\'s, Cofetarie,torturi - Bucuresti | 0733060230; 0730618742 | Ramnicu Valcea, Nr. 14, Sector 3, Bucuresti |
| 35. | Fire House Restaurant | 0790409234 | Drumul Gura Crivatului, nr. 80, Sector 3, Bucharest |
| 36. | Papaciu - Bistro, Bucuresti | 0724200070; 0724955952 | Strada Complexului, Nr 3A, sector 3 |
| 37. | Agapi Bistro - Restaurant cu specific international, Popesti-Leordeni | 0721462102 | Sos. Oltenitei, Nr. 45, Popesti-Leordeni, , judetul Ilfov |
| 38. | Gustul Pasiunii Cofetarie - Bucuresti | 0728941816 | Racari, Nr. 5, sector 3, Bucuresti |
| 39. | Atelierul de dulciuri - Torturi de casa, Ilfov | 0761622331 | Sos.Oltenitei, nr 24, Popesti Leordeni, judetul Ilfov |
| 40. | Monza, Trattorie si Restaurant - Bucuresti | 0724802802; 0722661166; 0769200002 | Baba Novac, Nr. 25, Sector 3, Bucuresti |
| 41. | Arancini - Restaurant cu specific sicilian | 0756490490 | Str. Papadiei, Nr. 16-18, sector 3 |
| 42. | La Paraul Rece, Restaurant - Popesti Leordeni | 0731003133; 0731003132 | Soseaua Oltenitei , Nr.26A, Popesti-Leordeni , judetul Ilfov |
| 43. | Monza, Trattorie si Restaurant - Bucuresti | 0722661166; 0769200002; 0724802802 | Baba Novac, Nr. 25, Sector 3, Bucuresti |
| 44. | Ribs Bar&Grill - Restaurant american, Bucuresti | 0720788818 | Str. Constantin Brancusi, Nr. 13, Complex Potcoava, sector 3 |
| 45. | Myti Pizza - Pizzerie, Bucuresti | 0734378358; 0744478578 | Bulevardul 1 Decembrie, Nr 7 D, sector 3 |
| 46. | Casa Tosca, Cofetarie - Bucuresti | 0213461297 | Bd. Camil Ressu, Nr. 1, Sector 3, Bucuresti |
| 47. | Pizza Apetito - Bucuresti | 0770225215 | Eufrosina Popescu, Nr. 57, sector 3, |
| 48. | Dristor Kebap - Shaormerie cu livrare la domiciliu, Bucuresti | 0724851723 | Bd. Camil Ressu, Nr. 1, Sector 3, Bucuresti |
| 49. | Bravu Burger & Crepes - Restaurant fast-food, Bucuresti | 0722118100 | Soseaua Mihai Bravu, Nr 452 - 460, sector 2 |
| 50. | Strada Rustica - Pizzerie Bucuresti | 0213248303; 0768676765; 0728886914 | Str. Baba Novac, Nr 9, Complex Rucar, Sector 3 |
| 51. | Il Bocconcino | 0729451049 | Miraslau, 26, Popesti Leordeni, judetul Ilfov |
| 52. | Gili Pizza - Bucuresti | 0213242387 | Str. Baba Novac, Nr. 9-11, Sector 3 |
| 53. | Bellagio Villa Restaurant - Bucuresti | 0213440661; 0771120177 | Vrejului, Nr. 21, Sector 3, Bucuresti |
| 54. | La Sediu - Restaurant Bucuresti | 0760729007 | Campia Libertatii, Nr. 54, sector 3 |
| 55. | Athos Pizza & Bistro - Livrare non stop, Bucuresti | 0213344287; 0728276192 | Sos Oltenitei, Nr. 250 Berceni Ira |
| 56. | Stejarului 57 - Social Bar, Bucuresti | 0748701058 | Strada Fildesului, Nr. 2, sector 3 |
| 57. | Armonia Cofetarie - Bucuresti | 0213244020 ; 0722616180 | Campia Libertatii, Nr. 46 , bl. 52 , Parter , Sector 3, Bucuresti |
| 58. | NoName, Restaurant - Bucuresti | 0761280642 (Mioara); 0732381801 (Adrian) | Mariuca, Nr 1A,Sector 4, Bucuresti |
| 59. | Mateo Fast Food | 0728199827; 0752777333; 0314362033 | Strada Dristorului, Nr. 87, sector 3 |
| 60. | Qian Bao, Restaurant chinezesc - Bucuresti | 0722622865; 0314306616 | Intrarea Baba Novac, Nr. 2, Sector 3, Bucuresti |
| 61. | NoName, Restaurant si Terasa - Bucuresti | 0761280642 | Mariuca, Nr 1A,Sector 4, Bucuresti |
| 62. | Taverna Baba Novac, Restaurant - Bucuresti | 0771544334; 0760010784 | Intrarea Baba Novac, Nr. 3, Sector 3, Bucuresti |
| 63. | La Mosu - Restaurant Bucuresti | 0765523208; 0314382508 | Soseaua Oltenitei, Nr. 197, Sector 4 |
| 64. | Erra - Restaurant cu specific european modern, Bucuresti | 0734983984 | Str. Constantin Nottara, Nr 13, sector 3 |
| 65. | Casa Dragonului, Restaurant Bucuresti | 0213202666; 0761929019 | Calea Dudesti, nr. 198, sector 3, Bucuresti |
| 66. | Restaurant La Sulea | 0728670862; 0722265639 | Soseaua Oltenitei, Nr. 133, Popesti Leordeni, judetul Ilfov |
| 67. | La Ciotoianu - Restaurant cu preparate la gratar, Ilfov | 0744505073 | Strada Miraslau, 37-39, Popesti-Leordeni, judetul Ilfov |
| 68. | Green Bistro - Terasa Bucuresti | 0728237731 | Parcul Gheorghe Patrascu, |
| 69. | Cofetaria Harissa - Cofetarie specializata in briose, Ilfov | 0767979934;0764444428 | Soseaua Oltenitei, nr. 91, Popesti Leordeni, judetul Ilfov |
| 70. | Casa Pizza - Pizzerie, Bucuresti | 0746544815; 0720923622 | Str. Mariuca, nr. 23A, sector 4 |
| 71. | Friends Pub - Bucuresti | 0728197287 | Bucovina , Nr. 6, Sector 3, Bucuresti |
| 72. | Alouette - Restaurant cu specific international, Bucuresti | 0746339793 | Splaiul Unirii, Nr. 168, sector 4, |
| 73. | Sham Sweet, Cofetarie - Bucuresti | 0748242455 | Bd. Basarabia, Nr.98, Sector 3, Bucuresti |
| 74. | 7 Days - Restaurant cu terasa, organizari evenimente, Bucuresti | 0769042751; 0213241358 | Str. Campia Libertatii, Nr. 23, Sector 3, Bucuresti |
| 75. | Sabatini Pizza, Restaurant - Bucuresti | 0314266069; 0737148520; 0784699751 | B-dul Basarabia, Nr. 108, Bucuresti |
| 76. | La Patrascu - Restaurant Bucuresti | 0771635003; 0767561149; 0754422491 | Str. Prof. Stefan Nicolau, Nr. 2A, Sector 3 |
| 77. | Damascus Palace - Restaurant Bucuresti | 0746696666; 0756616666 | Bld. Basarabia, Nr. 98, sector 2, |
| 78. | Casa Diham - Restaurant Bucuresti | 0213406006; 0727171220 | Bd. Nicolae Grigorescu, Nr. 1 A, Sector 3 |
| 79. | Carina Sweets - Cofetarie Bucuresti | 0771261485 | Sos Oltenitei, Nr. 230, Sector 4 |
| 80. | Ivan\'s bar & grill - Restaurant traditional, Bucuresti | 0723893545;0737276284 | Bulevardul Basarabia, Nr. 170 - 174, sector 2 |
| 81. | Gedi, Restaurant - Bucuresti | 0371119901; 0734207029 | Bd. Basarabia, Nr. 176 B, Sector 2, Bucuresti |
| 82. | La Dolceria, Cofetarie - Bucuresti | 0724315256 | Basarabia, Nr.55, M22, Sector 3, Bucuresti |
| 83. | Simple - Restaurant cu preparate la gratar, Bucuresti | 0799779988 | Strada Frumusani, Nr. 8A, Sector 4 |
| 84. | Pizzeria Da Constantino - Bucuresti | 0763032712 | Strada Oituz, Nr 85, Popesti-Leordeni, judetul Ilfov |
| 85. | Tosca Food - Pizzerie Bucuresti | 0756435785;0757170957 | Strada Intrarea Muncii, Nr. 23, sector 3 |
| 86. | Bistro 37-39 - Restaurant Bucuresti | 0731355939 | Bulevardul Basarabia, Nr. 37-39 , Sector 3 |
| 87. | Pizza Venetia, Pizzerie si catering - Bucuresti | 0720800100; 0213204424; Fax: 0720800100 | Dristorului, Nr.59, Sector 3, Bucuresti |
| 88. | Pajo Garden - Restaurant Bucuresti | 0751227228 | Bulevardul Basarabiei, Nt. 37-39, sector 2 |
| 89. | Greekos Urban Food - Restaurant fast-food, Bucuresti | 0726646976 | Soseaua Mihai Bravu, Nr. 247, sector 3 |
| 90. | Cofetaria Andreea | 0213228845; 0728877033 | Sos. Mihai Bravu , Nr. 286, sector 3, Bucuresti |
| 91. | Andreea, Cofetarie, torturi si patiserie - Bucuresti | 0728877033; 0213228845 | Bulevardul Mihai Bravu, Nr. 286, Sector 3, Bucuresti |
| 92. | Resto Aperto, Restaurant - Bucuresti | 0738741118 | Calea Vitan , Nr.55-59(Bucuresti Mall) Sector 3, Bucuresti |
| 93. | Giorginio Cofetarie - Bucuresti | 0722434002 | Calea Dudesti, Nr. 129 (colt cu str. Scoala Ciocanul) Sector 3, Bucuresti |
| 94. | Kentucky Fried Chicken KFC, Fast Food - Bucuresti | 0757015948; 0212039030; 0213120023 | Soseaua Oltenitei, Nr.85, Sector 4, Bucuresti |
| 95. | Hop Garden - Restaurant cu preparate la gratar, Bucuresti | 0770448443 | Splaiul Unirii, Nr. 225, sector 3 |
| 96. | Mandarin House Stick It - Restaurant cu specific chinezesc, Ilfov | 0771286842 | Strada Amurgului, nr 30, Popesti-Leordeni, judetul Ilfov |
| 97. | Resto Aperto, Restaurant - Bucuresti | 0738741118 | Calea Vitan, Nr.55-59 (Bucuresti Mall) Sector 3, Bucuresti |
| 98. | Rainbow - Bar & Grill, Bucuresti | 0743205054 | Cornul Caprei, nr.53, sector 3 |
| 99. | Gio Cafe - Bucuresti | 0730030757 | Bd. Burebista, Nr.2 , Sector 3, Bucuresti |
| 100. | El Bacha, Restaurant - Bucuresti | 0212691392; 0722833333 | P-ta Alba Iulia, nr.6 bl.15, sector 3, |
| 101. | Nikos Greek Taverna, Restaurant - Bucuresti | 0730001008 (Restaurant); 0215999099 (Livrari) | B-dul Burebista, Nr 2 (Piata Alba Iulia), Sector 3, Bucuresti |
| 102. | Riviera Park, Restaurant - Bucuresti | 0732408408 | Bd. Basarabia , Nr. 23 (Parcul National), Sector 2, Bucuresti |
| 103. | Sara - Cofetarie Ilfov | 0734383118 | Str. Amurgului, nr. 27, Popesti Leordeni, judetul Ilfov |
| 104. | Michelle - Cofetarie, Bucuresti | 0213340084; 0723384312 | Soseaua Berceni, Nr. 35, bl. 104, sector 4 |
| 105. | Hanul Vacaresti - Restaurant fast-food, Bucuresti | 0786200300 | Strada Pridvorului, nr. 23, sector 4 |
| 106. | Pui la Jar - Restaurant, Ilfov | 0764340000 | Strada Amurgului, nr 34, Popesti Leordeni, judetul Ilfov |
| 107. | Gallo Nero, Restaurant - Bucuresti | 0726544889; 0213268128 | Bd. Decebal, Nr. 12, Sector 3, Bucuresti |
| 108. | BigBoy - Pizzerie Bucuresti | 0725570450; 0760925495 | Soseaua Vergului, Nr. 8, Sector 3 |
| 109. | Hanul Haiducilor, Restaurant - Bucuresti | 0213307207; 0771756566 | Pridvorului, Nr. 25 (In incinta Strandul Copiilor Vacaresti) , Sector 4, Bucuresti |
| 110. | Mandaloo - Restaurant lounge Ilfov | 0767222301; 0313335154 | Amurgului, Nr. 34, Popesti-Leordeni, judetul Ilfov |
| 111. | Arogant - Restaurant & Lounge, Bucuresti | 0732764268 | Piata Alba Iulia Piata Alba Iulia, nr 8, sector 3 |
| 112. | Snap - Restaurant, Bucuresti | 0738888885 | Bulevard Decebal, nr. 13, sector 3 |
| 113. | Carols - Restaurant Bucuresti | 0763331270 | Soseaua Berceni, Nr. 62, Sector 4 |
| 114. | Duman - Restaurant cu specific oriental, Bucuresti | 0738170063 | Bulevardul Decebal, Nr. 13, sector 3 |
| 115. | Rich Vip Lounge - Restaurant Bucuresti | 0771790764 | Bd.Decebal, Nr 9, sector 3 |
| 116. | Agio Bistrot - Bistro, Bucuresti | 0763528818 | Bd. Decebal, Nr. 9, sector 3 |
| 117. | Funky Lounge - Terasa, Bucuresti | 0755505505 | Bd. Decebal, nr 9, sector 3 |
| 118. | Casa Lica - Cofetarie Bucuresti | 0725761188 | Bulevardul Decebal, Nr. 5, Sector 3 |
| 119. | Mazzaj Cafe - Restaurant cu specific libanez, Bucuresti | 0757292398 | Splaiul Unirii, Nr. 162, sector 4 |
| 120. | XO Lounge - Restaurant Bucuresti | 0725585388 | B-dul Decebal, Nr. 5, sector 3 |
| 121. | Tress Caffe&Lounge - Bucuresti | 0721988801 | Bulevardul Decebal, Nr 3, sector 3 |
| 122. | Lotus Cafe - Cafenea restaurant Bucuresti | 0722808389 | Bd. Decebal, Nr 1, sector 3 |
| 123. | Padthai - Restaurant Bucuresti | 0726637747 | Bulevardul Decebal, Nr. 3, sector 3 |
| 124. | Terasa Sport House - Restaurant fast-food, Bucuresti | 0755080224 | Maior Ion Coravu, numarul 34, sector 2 |
| 125. | Turquoise - Restaurant cu specific oriental, Bucuresti | 0731826222 | Strada Theodor D. Sperantia, Nr. 96, sector 3 |
| 126. | Restaurant Ali Baba - Specific oriental, Bucuresti | 0213274810; 0722707208 | Sos. Mihai Bravu, Nr. 213, sector 2, Bucuresti |
| 127. | Casa Jienilor Agricultori, Restaurant - Bucuresti | 0735994994 | Agricultori, Nr.12, Sector 2, Bucuresti |
| 128. | Santorini - Restaurant specific grecesc Bucuresti | 0748333334 | Bulevardul Mihai Bravu, Nr. 209, Sector 2 |
| 129. | King Rolls - Fast Food Bucuresti | 0747887206 | Calea Vitan, Nr. 17A, sector 3 |
| 130. | Casa Pedro, Restaurant - Bucuresti | 0722502715; 0212560209; 0722533499 | Soseaua Industriilor, Nr. 30 (colt cu Str. Rodnei) ,Sector 3 , Bucuresti |
| 131. | Check in Lounge - Restaurant, Ilfov | 0771074913 | Strada Amurgului, nr. 46, Popesti Leordeni, judetul Ilfov |
| 132. | Old Mike Pub si Restaurant - Bucuresti | 0787366166 | Morilor, Nr. 46 Sector 3, Bucuresti |
| 133. | Casa Pedro - Restaurant si salon evenimente Bucuresti | 0726456687 | Strada Industriilor, Nr 30, sector 3 |
| 134. | Ubuntu Coffee - Terasa, Bucuresti | 0758635771 | Splaiul Unirii, Nr. 195, sector 3 |
| 135. | Anysan, Restaurant Bucuresti | 0723123853 | Soseaua Berceni, Nr. 82A, Sector 4, Bucuresti |
| 136. | Din Fu - Restaurant chinezesc Bucuresti | 0729313338; 0213260127 | Str. Alexandru Moruzzi, Nr. 76A, Sector 3 |
| 137. | Solitoo - Restaurant, pizza, grill, Ilfov | 0728542122 | Str. Drumul Fermei, Nr. 87, Popesti-Leordeni |
| 138. | La Machedoni - Restaurant cu specific traditional romanesc si american | 0721512236 | Anastasie Panu, nr. 10, sector 3 |
| 139. | Sweet Moments - Cofetarie artizanala Bucuresti | 0745199938 | Aleea Emil Racovita, Nr. 25, sector 4 |
| 140. | Volare - Pizzerie, Bucuresti | 0730622600 | Calea Vacaresti, Nr.203B, sector 4 |
| 141. | Bistro Turturelelor - Restaurant, Bucuresti | 0726310583; 0758887454 | Strada Turturelelor, 11A, corpC, Parter, Sector 3 |
| 142. | Casa Brancoveanu Restaurant - Bucuresti | 0724640000; 0314245890; 0762643010 | Caramidarii de Jos, Nr.14, Sector 5, Bucuresti |
| 143. | Casa Morarilor - Restaurant, Bucuresti | 0765064409 | Soseaua Morarilor, Nr. 2 |
| 144. | Paradis, Cofetarie - Bucuresti | 0724398400 | Sos Pantelimon, Nr.354,Bloc 2, Sector 2, Bucuresti |
| 145. | Cucina di casa - Pizzerie, Bucuresti | 0735868318 | Calea Vacaresti, Nr. 230, sector 4 |
| 146. | Influence - Restaurant, Bucuresti | 0745172403 | Soseaua Oltenitei, Nr. 39-41, sector 4 |
| 147. | Trattoria Fresca - Restaurant cu specific italian, Bucuresti | 0731333410 | Str.Popa Nan, nr.140, Sector 2 |
| 148. | Restaurant Grill Verdetei 5 - Restaurant cu preparate la gratar, Bucuresti | 0766411338 | Strada Verdetei, nr. 5, sector 3 |
| 149. | Zatara - Restaurant cu influente mediteraneene, Bucuresti | 0771670756 | Vatra Luminoasa, Nr. 108, sector 2 |
| 150. | Trattoria la Nave - Restaurant Bucuresti | 0743454626 | Sos. Pantelimon, Nr. 264, Sector 2 |
| 151. | La Mama - Restaurant Bucuresti | 0721526262 | Strada Delea Veche, Nr. 51, sector 2 |
| 152. | MagiCake - Atelier de dulciuri artizanale, Bucuresti | 0772072072 | Strada Alexandru Moruzzi, Nr. 4A, sector 3 |
| 153. | Babylon Fast Food - Bucuresti | 0799666267 | Soseaua Pantelimon, nr. 255, sector 2 |
| 154. | Nicola Cofetarie - Bucuresti | 0214603678 | Nitu Vasile , Nr. 50-54, in Complexul Pajistei (langa Taxe si Impozite) Sector 4 , Bucuresti |
| 155. | La Calinescu - Restaurant cu specific romanesc, Bucuresti | 0788472725; 0213310750 | Strada Piscului, Nr. 16, sector 4 |
| 156. | Photo Cake Cofetarie Bucuresti | 0729737619 ; 0723564103 | Obolului, Nr.9, Sector 4, Bucuresti |
| 157. | Contesa, Restaurant - Bucuresti | 0731831891; 0722244214; 0213317171 | Sibiel, Nr. 5, sector 4, Bucuresti |
| 158. | Casa Lefter - Restaurant Bucuresti | 0723568402; 0743127330 | Strada Lt. Ionescu Baican, Nr. 57, sector 2 |
| 159. | La Coana Mare - Cofetarie Bucuresti | 0771512035 | Strada Magura Vulturului, Nr. 2, sector 2 |
| 160. | Efes - Restaurant cu specific turcesc, Bucuresti | 0737018590 | Bulevardul Nerva Traian, Nr. 17 - 19, sector 3 |
| 161. | Tarab - Restaurant cu specific libanez, Bucuresti | 0774411111 | Strada Nerva Traian, Sector 3 |
| 162. | Nod Urban Food - Gastronomie italiana si romaneasca, Ilfov | 0732301311 | Str.Biruintei, nr.31, Popesti Leordeni, judetul Ilfov |
| 163. | Big Mic - Restaurant, terasa si pizzerie, Bucuresti | 0739244642 | Str. Gospodinelor, Nr. 31, sectorul 4 |
| 164. | Sare si Piper - Restaurant cu specific italian, Bucuresti | 0744663451 | Str. Viorele, nr. 26, zona Timpuri Noi, sector 4, Bucuresti |
| 165. | Beraria Centrala - Restaurant Bucuresti | 0740959311 | Strada Nerva Traian, Nr. 2, Sector 3 |
| 166. | Comics Club - Stand Up, Bucuresti | 0741426426 | Str. Nerva Traian, Numarul 4. sector 3 |
| 167. | House of Burger - Ilfov | 0771778773; 0770778825 | Str. Amurgului, Nr. 72, Popesti Leordeni, judetul Ilfov |
| 168. | Trenta Pizza - Bucuresti | 0219645 | Bd.Chisinau, Nr.5 , sector 2 , Bucuresti |
| 169. | Botanic - Fine dining, Bucuresti | 0721261262 | Calea Piscului, sector 4 |
| 170. | Minimal Cofetarie - Bucuresti | 0212751765 | Straduintei , Nr. 1, Sector 4 , Bucuresti |
| 171. | Bistro Cafe - Cafenea, Ilfov | 0733311622 | Strada Drumul Fermei, Nr 111 bis, Popesti-Leordeni, judetul Ilfov |
| 172. | Cristal - Cofetarie | 0760090324 | Str. Matei Voievod, nr. 108, sector 2 |
| 173. | Delice Grill - Restaurant fast-food Bucuresti | 0721112244 | Soseaua Mihai Bravu, Nr 139-145, sector 2 |
| 174. | Quartier - Restaurant, Bucuresti | 0758222244 | Bd. Mircea Voda, Nr. 43, sector 3 |
| 175. | Koffeev - Cafenea, Bucuresti | 0767195222 | Bulevardul Unirii, Nr. 57, sector 3 |
| 176. | Trofic - Restaurant pentru mic dejun si brunch | 0751276600 | Bd. Mircea Voda, nr. 52, sector 3 |
| 177. | Oktoberfest Pub - Bucuresti | 0724333233 | Popa Nan, Nr. 95, Sector 3, Bucuresti |
| 178. | Madame B - Tea & Pancake House, Bucuresti | 0746030670 | Splaiul Unirii, nr.49,sector 3, |
| 179. | Dada Restaurant - Bucuresti | 0729997405; 0724015800 | Str. Matei Voievod , nr. 94bis, sector 2, |
| 180. | Trattoria Angoli - Restaurant cu specific italian, Bucuresti | 0728264654 | Calea Piscului, Oraselul Copiilor, Sector 4 |
| 181. | Andy Park Ballroom - Salon de evenimente Bucuresti | 0724607607 | Soseaua Oltenitei, Nr. 13-15, Sector 4 |
| 182. | Turquoise Bakery - Bucuresti | 0739037919 | Str. Matei Voievod, nr.101, Sector 2 |
| 183. | Alice, Cofetarie - Bucuresti | 0744486465 | Sos. Mihai Bravu, Nr. 123-135, Sector 2, (zona Piata Iancului - langa Sectia 8 de Politie), Bucuresti |
| 184. | Sardin - Restaurant cu specific italian, Bucuresti | 0729520111 | Bulevardul Mircea Voda, Nr. 39H sector 3, Bucuresti |
| 185. | De Cartier - Restaurant de tip familial, Bucuresti | 0213305556 | Str. Viorele, Nr. 57A, sector 4 |
| 186. | Alceva - Restaurant, Bucuresti | 0770844125 | Matei Voievod, Nr. 79, sector 2, |
| 187. | Club Art Papillon Restaurant - Bucuresti | 0212522520; 0732582278; 0722240930 | Matei Voievod , Nr. 66A Sector 2, Bucuresti |
| 188. | Tabiet 41 - Restaurant, Bucuresti | 0314260278 | Strada Viorele, nr.59, sector 4 |
| 189. | Modelier - Bistro, cocktails Bucuresti | 0799630693 | Strada Duzilor, Nr. 12, sector 2 |
| 190. | Navigli - Restaurant cu specific italian, Ilfov | 0747517568 | Strada Popesti Vest, nr 20, judetul Ilfov |
| 191. | Galeto - Restaurant Bucuresti | 0765253555 | Strada Nitu Vasile, Nr 61, sector 4 |
| 192. | Provence, Restaurant - Bucuresti | 0724212282; 0722683629; 0799683683 | B-dul Alexandru Obregia, Nr 25A, sector 4 (Langa Mega Image), Bucuresti |
| 193. | Events by Tonyo - Restaurant Bucuresti | 0723170007 | Aleea Hobita, Nr 1 Sector 2 |
| 194. | Maroon - Maroon Restaurant Cafe | 0742420000; 0764900000 | Bulevardul Unirii, Nr. 47 C, Sector 3 |
| 195. | Elzada - Restaurant Bucuresti | 0724519898; 0722214001; 0723019747 | Soseaua Oltenitei, Nr. 13-15, Sector 4 |
| 196. | BaKings - Cofetarie Bucuresti | 0744642929 | Strada Ilarie Chendi, Nr. 28, sector 2 |
| 197. | Cofetaria Ina - Bucuresti | 0723300213 | Str. C-tin Radulescu Motru, Nr. 6, Sector 4 |
| 198. | Noeme - Restaurant Bucuresti | 0721490270 | Anton Pann, Nr. 29, sector 3 |
| 199. | Sfeir Lebanese Cuisine - Bar & Grill | 0722311805 | Mircea Voda, Nr. 36, sector 3 |
| 200. | Terasa Marius - Bar & Grill, Bucuresti | 0745777799 | Sos. Pantelimon, Nr. 115-117, sector 2 |
| 201. | Trattoria Adagio - Restaurant cu specific italian Bucuresti | 0311061067; 0751218482 | Bd. Mircea Voda, Nr. 34, sector 3 |
| 202. | Berestroika - Beer Revolution - Bucuresti | 0722560300; 0721100000; 0733200000 | Aleea Cauzasi, Nr. 57, Sector 2, Bucuresti |
| 203. | Chaya TeaHouse - Ceainarie Bucuresti | 0755331000 | Strada Radu Ceaus, Nr. 7, sector 3 |
| 204. | You & Me - Restaurant cu specific international, Bucuresti | 0733918474 | Bd. Constantin Brancoveanu, Nr. 110 D (langa Spitalul de copii Marie Curie), Bucuresti |
| 205. | Cofetaria Madlene - Bucuresti | 0753223222 | Str. Traian, Nr.103, sector 2 |
| 206. | Burger Peter - Restaurant cu burgeri Bucuresti | 0799981031 | Strada Popa Nan, Nr. 48, sector 2 |
| 207. | Thalia - Restaurant cu bucatarie internationala | 0219993 | Strada Cuza Voda, Nr. 147, sector 4 |
| 208. | Pizza Bar - Pizzerie, Bucuresti | 0746013623 | Lanariei, nr. 5, sector 4 |
| 209. | Intermacedonia, Restaurant - Bucuresti | 0212522010; 0212527331; 0212522190 | Sos. Mihai Bravu, Nr.95-100, Sector 2 (P-ta Iancului) , Bucuresti |
| 210. | Politica si Delicateturi Bucuresti - Restaurant cu specific romanesc | 0785516681 | Str. Prof. Dr. Mihail Georgescu, Nr. 24, sector 2 |
| 211. | Nasu & Finu, Restaurant - Bucuresti | 0727933656 ; 0768101345; 0214602572 | Cimpoierilor, Nr. 12, Sector 4, Bucuresti |
| 212. | La Birlic - Terasa, Bucuresti | 0722318168; 0752318168; 0212525151 | Bulevardul Pache Protopopescu, Nr. 125, sector 2 |
| 213. | Patiseria Tineretului - Bucuresti | 0761116622 | Bd. Gheorghe Sincai, Nr 2A, sector 4 |
| 214. | Bouzouki - Restaurant specific grecesc, Bucuresti | 0787528003 | Bulevardul Sincai Gheorghe, Nr. 3, sector 4 |
| 215. | Nasu & Finu, Restaurant | 0739648277; 0727933656; 0768101345 | Cimpoierilor , Nr. 12, Sector 4, Bucuresti |
| 216. | Restaurant Belvedere - Locatie pentru evenimente | 0722307697 | Soseaua Oltenitei, Nr 181, Popesti leordeni, judetul Ilfov |
| 217. | Human Coffee - Cafenea Bucuresti | 0734744429 | Str. Elena Cuza, Nr. 8, Sector 4 |
| 218. | Tarta Ta - Delicii traditionale, Bucuresti | 0771522117 | Bulevardul Mircea Voda, Nr. 52, sector 3 |
| vezi mai multe | |||
| 1. | KIKA | 0372330501; 0372330630; 0372330637 | Bulevardul Theodor Pallady, 51 D ,Sector 3, Bucuresti |
| 2. | BILLA | Tel. 021.345.27.51; Fax 021.345.26.46 | Str. Postavarul 24-52, sector 3 |
| 3. | IRIS SHOPPING CENTER | 021.345.01.29 | Bd. 1 Decembrie 1918, nr. 33A, sector 3, Bucuresti |
| 4. | IRIS SHOPPING CENTER | 0314.38.29.70 Cine Grand | Bd. 1 Decembrie 1918, nr. 33A, sector 3, Bucuresti |
| 5. | Vitantis Shopping Center Bucuresti - Magazine retail Praktiker, Diego si Casa Rusu | 0213104513; Fax: 0213150813 | Soseaua Vitan-Barzesti, nr. 7A, sector 4, Bucuresti |
| 6. | AUCHAN | Tel. 0750.014.150 | Calea Vitan nr. 236, sector 3, |
| 7. | TITAN | Tel. 0732.995.515 | Str. Liviu Rebreanu nr. 6A, sector 3, |
| 8. | Penny Market | 0800.110.111 | Bd.1 Decembrie 1918, nr. 33, sector 3, |
| 9. | BUCURESTI MALL | Tel. 021.327.67.00; 021.327.61.00; 021.327.61.02; Fax 021.320.92.09 | Calea Vitan nr. 55-59, sector 3, |
| 10. | SUPERMARKET MAICOM | Tel. 0722.322.573; Fax 321.78.36 | Str. Vitan nr. 104, sector 3 |
| 11. | Ava Center | 0769240700; 0213201626; 0730096166 | Mihai Bravu, Nr. 540-564, Sector 3, Bucuresti |
| 12. | AUCHAN | Tel. 021.408.01.07; 021.408.01.08 | Bd. 1 Decembrie 1918 nr. 33A, sector 3, |
| 13. | GMARKET | Bucuresti | |
| 14. | SUN PLAZA MALL | 021.233.17.45; 0720.200.582 | Calea Vacaresti, nr. 391, Piata Sudului, sector 4, Bucuresti |
| 15. | CONCORD 2002 | Tel/Fax 323.90.87 | Bd. Decebal nr. 7, sector 3 |
| 16. | FOR YOU | Tel. 0745.094.433 | Bd. Decebal nr. 24, sector 3 |
| 17. | CORA | Tel. 021.205.35.00 | Sos. Vergului, nr. 20, sector 2, |
| 18. | Wini Imobili | Tel.021.307.60.50; 0742.144.034, 0755.068.669; Fax.021.307.60.51 | Pierre de Coubertin, nr. 3-5, sector 2, Bucuresti |
| 19. | MEGA MALL | Str. Pierre de Coubertin, nr. 3-5, langa Arena Nationala, | |
| 20. | FONZI SUPERMARKET | Tel. 0729.005.260; Tel/Fax 021.323.67.52 | Str. Nerva Traian, nr. 17-19, sector 3, |
| 21. | GRAND ARENA MALL | Tel. 031 42.57.514; Fax 031.425.05.17 | Bd. Metalurgiei nr. 12-18, sector 4, |
| vezi mai multe | |||


Vezi galeria