Nicolae Grigorescu | Garsoniera | Decomandat | 41mp | B11802
- Suprafata 37 mp
- An 1988
- Decomandat
- Etaj parter din 8
Costin Georgian ...
7 min.
Calculeaza distanta
Descriere anunt
Pyf018B11802 vanzare 1 camere
Pret: 73000 Euro
Zona: Titan, Bucuresti
Strada: Aleea Barsei
ID oferta: Pyf018B11802
Acasa incepe cu un sentiment.......Poate fi o lumina calda intr-o dupa-amiaza linistita, un balcon cu vedere sau o bucatarie unde iti savurezi cafeaua de dimineata.
Imagineaza-ti locuinta perfecta, care reflecta personalitatea ta si raspunde nevoilor tale zilnice.
Echipa PYF REAL ESTATE te ajuta sa gasesti acel loc special pe care il poti numi acasa. Portofoliul nostru cuprinde proprietati atent selectate, ideale pentru tine si familia ta.
Localizare:
Titan - ( Gradinita Veverita ), una dintre cele mai cautate zone din Bucuresti, cu acces rapid la mijloace de transport in comun (metrou, autobuz, zona comerciala, banca, supermarket, fastfood, piata, hotel, parc, scoala/gradinita), scoli, magazine, parcuri si centre comerciale.
Detalii proprietate:
Tip locuinta: Apartamente
Tip operatiune: vanzare
Numar camere: 1 camere (1 dormitoare)
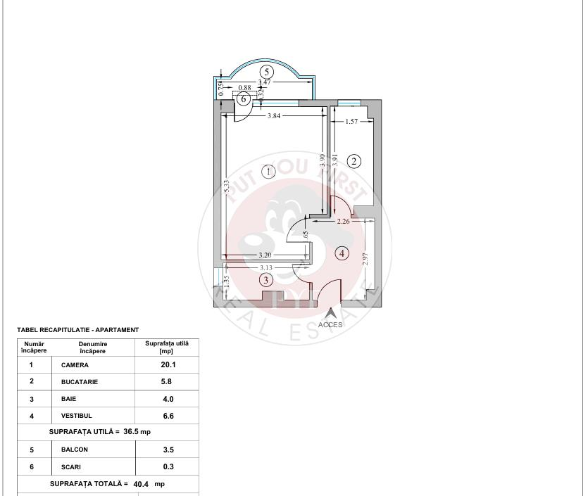
Suprafata utila: 36.5 mp
Suprafata totala: 40.4 mp
Etaj: parter / 8
Compartimentare: decomandat
Confort: 1
An constructie : 1988
Tip imobil: bloc mixt
Incalzire : termoficare
Dotari: calorifere: da; ferestre: pvc; incalzire: termoficare; pereti: faianta, lavabil; podele: parchet, gresie; usa intrare: metal
Bai: 1
Balcoane: 1 (4 mp)
Bucatarii: 1 (da, mobilata, utilata )
Finisaje: calorifere: da; ferestre: pvc; incalzire: termoficare; pereti: faianta, lavabil; podele: parchet, gresie; usa intrare: metal
Mobilare : semi mobilat
Podele: parchet, gresie | Pereti: faianta, lavabil | Ferestre: pvc
Stare generala: Stare Buna
Usa intrare: metal
Vedere: mixta
Destinatie: locuinta, birou, locuinta/birou
Acces rapid la mijloace de transport in comun ( metrou: [ Costin Georgian - 500m distanta / 6minute], autobuze: [ 101, 102, 243, 335 - 560m / 6 minute ], tramvaie: [ ] )
In apropiere: [ Mega Image - 400m distanta - Parc Basarabia - 300m distanta, Liceul Teoretic Nichita Stanescu - 460m distanta, Scoala de FInante Publice si Vama - 450m distanta, Piata Minis - 770m distanta ]
Parcare: posibilitate in strada ( 1 loc )
Apartamente pe palier: 4
Siguranta: interfon - interfon, lift - lift
Izolatii: exterior, interior
Agent responsabil: Robert T
Important de stiut:
Vizionarile se realizeaza in baza unui contract de prestari servicii, semnat intre client si agentie. Este necesara prezentarea unui act de identitate. Neprezentarea acestuia poate duce la anularea sau neprogramarea vizionarii.
Se percepe comision din partea cumparatorului conform politicii Pyf Real Estate
Din cauza numarului mare de oferte si a fluctuatiei pietei imobiliare informatiile din oferta pot suferi modificari atat in sens apreciativ, cat si in sens depreciativ, de asemenea, este posibil sa nu mai fie de actualitate la momentul prezentarii. Pentru clarificarea acestor aspecte va rugam solicitati actualizarea ofertei/ ofertelor dorite!
Alege PYF REAL ESTATE - partenerul tau de incredere in imobiliare.
Transforma visul tau in realitate - contacteaza-ne acum!
Acces mijloace transport
| Statii metrou | Timp | |
|---|---|---|
![]() |
Costin Georgian | 7 min. |
![]() |
Titan | 18 min. |
| Statii STB | Timp |
|---|---|
|
Liviu Rebreanu
101
,102
,253
,311
,330
,335
|
2 min. |
|
Bd. Nicolae Grigorescu
|
2 min. |
|
Titan
|
3 min. |
|
Policlinica Titan
101
,102
,311
|
7 min. |
|
Parcul Titan
101
,102
,202
,335
|
7 min. |
|
Barajul Dunării
|
8 min. |
|
Pod Lacuri
|
9 min. |
Obiective interes
| 1. | Robotics School - After School, ateliere de robotica Bucuresti | 0721861565 | Aleea Barajul Cucuteni, nr. 2, Bl M4A, sector 3 |
| 2. | Gradinita Nr. 191 sector 3 | 0213403046; 0213401059 | Str. Cozla, nr. 1, sector 3 |
| 3. | Neverland Afterschool Bucuresti | 0742139992 | Str. Prisaca Dornei, nr. 16, sector 3 |
| 4. | Gradinita nr. 69 sector 3 | 0213244141; 0213240000 | Bd. Pictor Nicolae Grigorescu, nr. 14, sector 3 |
| 5. | Clubul Diandra - Gradinita si After School, Bucuresti | 0745075332 | Str. Prisaca Dornei, Nr. 2H, Sector 3, Bucuresti |
| 6. | Cresa Potcoava (Titan II) sector 3 | 0213244810; 0213244880 | Str. Pictor Gheorghe Tattarescu, nr. 10, sector 3 |
| 7. | Anna Afterschool sector 3 | 0733305865 | Aleea Calistrat Hogas, nr. 28 D-E, Sector 3 |
| 8. | Happy Tree - Gradinita & After School Bucuresti | 0761600082; 0763630634; 0213401308 | Aleea Calistrat Hogas, nr. 28A, sector 3, Bucuresti |
| 9. | Gradinita Nr. 154 sector 3 | 0213400130 | Aleea Barajul Uzului, Nr. 9, sector 3 |
| 10. | Gradinita nr. 71 sector 3 | 0213480894 | Aleea Fuiorului, nr. 9 , sector 3 |
| 11. | Ghiocelul - Cresa sector 3 | 0729330319 | Bd. 1 Decembrie 1918, nr. 12-14, sector 3 |
| 12. | Piticul Curajos - Gradinita, After School sector 3 | 0749607276; 0314373583; 0213240124 | Str. Copaceni, Nr. 64, sector 3 |
| 13. | Gradinita nr. 216 sector 3 | 0213400395 | Str. Barajul Rovinari, nr. 10, sector 3 |
| 14. | B-Happy Afterschool sector 3 | 0722396590 | Intr. Horbotei, nr. 12, bl. 4, parter, sector 3 |
| 15. | Gradinita nr. 231 sector 3 | 0310699994; 0314370742 | Str. Codrii Neamtului, nr. 68, sector 3 |
| 16. | Dandi Kids, Gradinita & After School - Bucuresti | 0726758303 | Str. Rasovita, Nr. 18, Sector 3, Bucuresti |
| 17. | Gradinita Nr. 241 (Pestisorul De Aur) sector 3 | 0213482910 | Str. Rotunda, nr. 19, Sector 3 |
| 18. | Centrul Educational Nectarel - Afterschool Bucuresti | 0740221854 | Str. Baba Novac, nr. 17, sector 3 |
| 19. | Gradinita nr. 70 sector 3 | 0213400228 | Str. Lucretiu Patrascanu, nr. 12, sector 3 |
| 20. | Letitia - After school sector 3 | 0733919066; 0722882558 | Str. Baba Novac, nr. 19A,Belvedere Residence, sector 3 |
| 21. | A&M afterschool Bucuresti | 0723371319 | Bd. Camil Ressu, Nr. 33, bl. N4, sc. 1, ap. 4, int. 4, sector 3, |
| 22. | Saga Kid - After School sector 3 | 0743266500; 0756169135 | Str. Campia Libertatii, nr. 44, sector 3, |
| 23. | Mini Club Condor - Gradinita, Bucuresti | 0725211112; 0722368662; 0314310407 | Str. Col Iosif Albu, Nr. 80 Sector 3, Bucuresti |
| 24. | Iulia Pantazi - Centrul psihologic pentru copii Bucuresti | 0745480458; 0317304741 | Str. Cernauti, Nr.1, Sector 2, Bucuresti |
| 25. | Gradinita Nr. 232 sector 3 | 0213485518 | Str. Patriotilor, nr. 3, sector 3 |
| 26. | Ramy\'s Kids - After School sector 3 | 0723523721 | Bd. Nicolae Grigorescu, nr. 46, sector 3 |
| 27. | Piccolo Grande - After School, loc de joaca sector 3 | 0754200258 | Intr. Patinoarului, nr. 52, Sector 3 |
| 28. | Gradinita nr. 3 - sector 3 | 0213464112 | Str. Plt. Nedelcu Ion, Nr. 31, sector 3 |
| 29. | Gradinita Nr. 196 sector 3 | 0213450636 | Str. Plutonier Ionescu Petre, nr. 76, sector 3 |
| 30. | Castelul Fermecat - Gradinita, After School Bucuresti | 0745770001; 0752314458; 0765957032 | Drumul Murgului, Nr. 32, Sector 3, Bucuresti |
| 31. | Dumbo Kids Academy - Cresa, Gradinita, Before & After School sector 3 | 0722320023 | Intr. Patinoarului, nr. 42A, sector 3 |
| 32. | Smiley After School sector 2 | 0727401829 | Bd. Basarabia, nr. 62A, sector 2 |
| 33. | Ingerul Albastru - Centrul educational pentru copii, Bucuresti | 0727868575 | Str. Serg Cuibaru Ion, Nr. 44, sector 3 |
| 34. | Smart Children - After School Bucuresti | 0774613480; 0760757410 | Str. Prevederii, nr. 6, bl. D2, Ap. 1, Interfon 1, Sector 3, |
| 35. | La Turn - Gradinita sector 2 | 0212751772; 0732122336 | Sos. Morarilor, Nr.1, Sector 2 |
| 36. | Maya si Prietenii - Cresa, Gradinita sector 2 | 0755359162 | Str. Herta, nr. 32A, Sector 2, |
| 37. | Madi AfterSchool sector 2 | 0757837644 | Str. Herta, nr. 32A, Sector 2 |
| 38. | Gradinita Nr. 189 Malaxa Bucuresti | 0212554870 | Sos. Vergului, Nr. 12, Sector 2, Bucuresti |
| 39. | Centrul Educational Fecioara Maria - Cresa, Gradinita Bucuresti | 0799741474; 0770574645 | Str. Eufrosina Popescu, Nr. 30, Sector 3, Bucuresti |
| 40. | Gradinita nr. 277 Steluta sector 2 | 0212551195 | Sos. Vergului, nr. 14, Sector 2 |
| 41. | Smart Steps - Gradinita , After School sector 3 | 0733965133 | Str. Dristorului, nr. 91-95, bl. E, Parter, sector 3 |
| 42. | Alice si Taramul Fermecat - Afterschool, Bucuresti | 0741495713; 0748013790 | Str. Jean Alexandru Steriadi, Nr. 14D, Sector 3, Bucuresti |
| 43. | Gradinita Nr. 211 sector 3 | 0213451165 | Str. Trapezului, Nr. 1A, sector 3 |
| 44. | Taramul Magic Voi Reusi - After School sector 2 | 0727540913 | Bd. Chisinau, nr. 6-8, sector 2 |
| 45. | Gradinita Floare de colt (nr. 64) sector 3 | 0213464899 | Str. Schitului, nr. 1D, sector 3 |
| 46. | Little Star - Gradinita, After School sector 3 | 0745531279; 0724506631 | Str. Alexandru Magatti, nr. 13 A , sector 3 |
| 47. | Kids\' World Nursery School - Gradinita Bucuresti | 0771242641 | Bd. Basarabia, Nr. 2, Sector 3 |
| 48. | Gradinita Nr. 160 sector 3 | 0213453650 | Aleea Perisoru, nr. 9, sector 3 |
| 49. | Kids First - Gradinita Bucuresti | 0748880866; Varnavelena@gmail.com | Str. Sica Alexandrescu, nr. 20, Sector 2, |
| 50. | BBIS Bucharest-Beirut International School | 0744309199; 0314381572 | Sos. Vergului, Nr. 14, Sector 2, Bucuresti |
| 51. | Gradinita nr. 68, sector 3 | 0213450038; 0213450030 | Str. Gura Ialomitei, nr. 20, sector 3 |
| 52. | Land of Kids Afterschool sector 2 | 0766831831; 0726733314 | Str. Constantin Tanase, Nr. 22, Sector 2 |
| 53. | Strumfisor - Gradinita Bucuresti | 0744709237 | Bd. Nicolae Grigorescu, Nr. 105 - 109, Sector 3, Bucuresti |
| 54. | Gradinita Nr. 239 sector 3 | 0213245490 | Str. Dristorului, nr. 102, sector 3 |
| 55. | Funny Clown, Gradinita & After School - Bucuresti | 0740806356 | Str. Ruschita, Nr. 41, Sector 2, Bucuresti |
| 56. | City Kids - Gradinita si afterschool Bucuresti | 0756862825 | Str. Ruschita, Nr. 41, sector 2 |
| 57. | Gradinita Nr. 280 sector 2 | 0212557980; 0212550205 | Str. Delfinului, nr. 4, sector 2 |
| 58. | Cresa Greierasul sector 3 | 0737799585 | Str. Plutonier Major Marin Pazon, nr. 2, sector 3 |
| 59. | Little Oaks Academy - Gradinita sector 3 | 0766572126; 0766572127 | Sos. Mihai Bravu, Sos. Mihai Bravu nr. 286, sector 3 |
| 60. | Diamond Kids - Cresa, Gradinita si After School Bucuresti | 0751048000 | Str. Trapezului, nr. 44, Sector 3 |
| 61. | Gradinita nr. 24 sector 3 | 0213441760 | Str. Locotenent Pascu Nicolae, nr. 12, sector 3 |
| 62. | Marilank - Gradinita si cresa Bucuresti | 0768316808 | Strada Lemnisorului, Nr 21-27, Sector 3 |
| 63. | Gradinita nr. 188 Castel sector 2 | 0212504180; 0213179946 | Bd. Pierre de Coubertin, nr. 1, sector 2 |
| 64. | Lill put - Centru de educatie nonformala pentru prescolari, Bucuresti | 0722647423 | Str. Sarafinesti, Nr. 29, sector 2 |
| 65. | Puiutul Pufos - Gradinita Bucuresti | 0740140968; 0213440010 | Str. Emanoil Marius Buteica, Nr. 30, Sector 3, Bucuresti |
| 66. | ERA Kinderland - Gradinita, after school in limba germana sector 3 | 0728850073; 0213207697 | Str. Dristorului, nr. 67, sector 3 |
| 67. | Centrul Educational BUBU | 0735531156 | Sos. Pantelimon, Nr. 355, sector 2 |
| 68. | Gradinita nr. 23 sector 2 | 0216275013; 0212550840 | Str. Soldat Gheorghe Raduta, nr. 1, sector 2 |
| 69. | Bulgarasi de Aur - Before & After School Bucuresti | 0723398829 | Str. Cogalnic, nr. 30, sector 3 |
| 70. | Mica Printesa - Gradinita, after school Bucuresti | 0744321574; 0744703973 | Str. Vulcan Judetu, nr. 16, sector 3, |
| 71. | Little Princess 2 - After School / Before School Bucuresti | 0744703973; 0744321574; 0756070390 | Str. Vulcan Judetu, Nr. 16, Sector 3, Bucuresti |
| 72. | Stelutele, After School - Bucuresti | 0734716769 | Str. Vitioara, Nr. 46, Sector 3, Bucuresti |
| 73. | Zambete Colorate - Gradinita Ilfov | 0749262383 | Sos. Dobroesti, Nr. 30, judetul Ilfov |
| 74. | Pick Me Academy - Gradinita si scoala, Bucuresti | 0726000640 | Str. Slt. Pompiliu Manoliu, Nr. 7,Sector 2, Bucuresti |
| 75. | International Kindergarten & Nursery - Gradinita Bucuresti | 0723248978; 0314327798 | Str. Claudiu, Nr. 26, Sector 2, Bucuresti |
| 76. | Aripi spre Succes - Gradinita si Afterschool sector 3 | 0740137944 | Aleea Manastirea Agapia, nr. 32, Sector 3 |
| 77. | Happy Kids Project - After school si before school, Bucuresti | 0745152802 | Sos. Iancului, Nr. 110, Sector 2, Bucuresti |
| 78. | Gradinita Nr. 255 sector 3 | 0213462996; 0213462994 | Bd. Energeticienilor, Nr. 3, sector 3 |
| 79. | Capsunica - Gradinita sector 3 | 0765516162 | Str. Constantin Nottara, nr. 27, sector 3 |
| 80. | Praslea cel Voinic - Gradinita & After School Bucuresti | 0722773103; 0733839824 | Str. Competitiei, Nr. 38, Sector 2, Bucuresti |
| 81. | Little Princess 1 - Cresa, Gradinita Bucuresti | 0756070390; 0744321574; 0744703973 | Str. Popa Stoica Farcas, Nr. 64-66, Sector 3, Bucuresti |
| 82. | KeiKo AfterSchool Bucuresti | 0748880866 | Str. Magura Vulturului, nr. 6, Sector 2 |
| 83. | Gradinita Nr. 256 Bucuresti | 0212506222 | Str. Atanase Ionescu, Nr. 25, Sector 2 |
| 84. | Abcdino, Gradinita - Bucuresti | 0213231070; 0725929616; 0745397739 | Str. Chiparosului, Nr. 31, Sector 3, Bucuresti |
| 85. | Gradinita Nr. 187 sector 3 | 0212560038 | Str. Magnetului, nr. 1, sector 3 |
| 86. | Bob de Grau, Gradinita si Cresa - Bucuresti | 0720446942 | Str. Agricultori, Nr. 142, Sector 3, Bucuresti |
| 87. | Cresa Ciobanasului | 0213223085 | Str. Ciobanasului, nr. 23, sector 2, |
| 88. | Iuladi Kids - Cresa, gradinita Bucuresti | 0769088777 | Str. Breaza, Nr. 78, Sector 3 |
| 89. | Once Upon a Time - Centrul educational adlerian Bucuresti | 0770590487 | Str. Ciobanasului, Nr. 22A, Sector 2 |
| 90. | Universul Zambetelor - Gradinita si Cresa Bucuresti | 0765410512 | Str. Lunca Dunarii, nr. 7, sector 3 |
| 91. | Teach Little People - Centru educational, Bucuresti | 0727401433 | Str. Alexander von Humboldt, nr. 2, sector 3 |
| 92. | Sincron - Gradinita, After School Sector 3 | 0722243877 | Calea Vitan, nr. 206, sector 3 |
| 93. | Kiga 99 Luftballons - Gradinita, After School in limba germana Bucuresti | 0722395197; 0745423467 | Str. Theodor Sperantia, nr. 81, sector 3 |
| 94. | OLIMPIA KIDS - gradinita particulara, cresa si after school Bucuresti | 0731680372 | Drumul intre Vii, Nr. 24, Sector 3 |
| 95. | I-kids - Club & Afterschool sector 3 | 0743355355 | Sos. Dudesti - Pantelimon, nr. 99A, sector 3 |
| 96. | Castelul Fermecat Olimpia - Gradinita, scoala primara, Afterschool, Bucuresti | 0731680372 | Drumul intre Vii, Nr. 24, Sector 3, Bucuresti |
| 97. | BritAcademy, Gradinita in limba engleza - Bucuresti | 0740329105 | Str. Olimpiadei, Nr. 36, Sector 2, Bucuresti |
| 98. | Clopotel - Gradinita Bucuresti | 0212502197 | Str. Elev Dridu Georgescu, nr. 2, sector 2 |
| 99. | Luminita - Gradinita sector 2 | 0212503180 | Sos. Iancului, nr. 4A, sector 2 |
| 100. | Montessima Educational - Afterschool zona Iancului, Bucuresti | 0771421104 | Str. Constantin Zlatescu, nr. 12, sector 2 |
| 101. | Bambi Step by Step- Gradinita Bucuresti | 0213273256; 0317102928 | Str. Gh. Dem Teodorescu, Nr.16 bis, Sector 3, Bucuresti |
| 102. | Arlechino & Friends - Gradinita si afterschool - Bucuresti | 0723264032; 0749028820; 0213260584 | Str. Cezar Boliac, Nr. 22-24, Sector 3, Bucuresti |
| 103. | Domino - Gradinita Bucuresti | 0722492047 | Str. Constantin Georgian,, nr. 27, sector 2, Bucuresti |
| 104. | Plusica - Gradinita & Afterschool sector 3 | 0768596856 | Str. Drumeagului, nr. 51, sector 3 |
| 105. | Just4Kids - Scoala Gimnaziala cu nivel gimnazial, primar si prescolar Bucuresti | 0739674601 | Str. Vantului, Nr. 27, Sector 3, Bucuresti |
| 106. | Legolas - Centru Educational sector 3 | 0787322298; 0787460258; 0787298295 | Str. Nucului, nr. 55, sector 3 |
| 107. | Kindi - Centru de educatie timpurie Montessori, Bucuresti | 0726876873 | Str. Delea Veche, Nr 35, sector 2 |
| 108. | Kids Power - Centru educational holistic pentru copii Bucuresti | 0741248260 | Str. Nucului, nr. 55, sector 3 |
| 109. | Oxigen Sport - Befor School, After School Bucuresti | 0722529429 | Str. Duzilor, Nr. 23, sector 2, Bucuresti |
| 110. | Aurora - Gradinita & After School sector 3 | 0744317320; 0213224168 | Str. Moise Nicoar?, nr. 9-11, sector 3 |
| 111. | Academia Fantastica - Gradinita, Before & After School sector 3 | 0731027321; 0723337393; 0213065370 | Str. Moise Nicoara, Nr. 7, Sector 3 |
| 112. | Noel - Gradinita & After School Bucuresti | 0728459857; 0725839363 | Str. Trifoi, Nr. 10, Sector 3, Bucuresti |
| 113. | Gradinita Nr.161 (Brandusa) sector 3 | 0314250834; 0314250835 | Str. Branduselor, Nr. 37/43, sector 3 |
| 114. | Bell - Gradinita, Afterschool Bucuresti | 0728694516 | Str. Mecet, Nr. 53, Sector 2 |
| 115. | Super Start - Gradinita, After School sector 2 | 0720528738 | Bd. Ferdinand I, nr. 156, Sector 2 |
| 116. | Garmy Kids - Gradinita si After School Bucuresti | 0311060294; 0745342225; 0734784673 | Sos. Vitan Birzesti, Nr. 7D-7E, sector 4 |
| 117. | Sf. Imparati Constantin si Elena, Gradinita Bucuresti | 0722237110; 0722293056; 0213261361 | Str. Labirint, Nr. 137 B , Sector 3, Bucuresti |
| 118. | Gradinita nr. 1 Dobroesti | 0212556121; 0212553765 | Str. Nicolae Balcescu, nr. 16-18, Dobroesti, judetul Ilfov |
| 119. | WhizKidz Hub - Afterschool, Centru educational Bucuresti | 0742602260 | Str. Gradinarilor, nr. 14, Sector 3 |
| 120. | Family Kids, Gradinita si After School - Bucuresti | 0722565657; 0723281551 | Str. Mugur Mugurel, Nr. 21, Sector 3, Bucuresti |
| 121. | Acorns British Style Nursery, Gradinita & After School, Bucuresti | 0722476581; 0788418186 | Str. Popa Soare, Nr. 63, Sector 2, Bucuresti |
| 122. | Mell - Gradinita cu Program Normal sector 3 | 0744564426; 0722958683 | Str. Vlad Dracu, nr. 43, sector 3 |
| 123. | Copiii Montessori - Gradinita sector 3 | 0721204642 | Str. Labirint, nr. 95, Sector 3 |
| 124. | Arc-en-Ciel, Gradinita - Bucuresti | 0212524665; 0725519386; 0726126808 | Str. Ion Heliade Radulescu, Nr. 18, Sector 2, Bucuresti |
| 125. | Castelul Bucuriei - Gradinita Bucuresti | 0730515181 | Str. Vasile Voiculescu, nr. 30, sector 3 |
| 126. | Gradinita nr. 1 Pantelimon | 0213513581; 0213513585 | Bd. Biruintei, nr. 36, Pantelimon, judetul Ilfov |
| 127. | Mihai Ionescu - Gradinita, Scoala, Liceu Bucuresti | 0213235495 | Str. Parfumului, Nr. 31, Sector 2, Bucuresti |
| 128. | Gradinita Magica, Bucuresti | 0765221341; 0723892378 | Str. Stefan Mihaileanu, Nr. 33, Sector 2, Bucuresti |
| 129. | Sonnenblume Kinderinstitut - Gradinita, Cresa Montessori Bucuresti | 0726471469 | Str. Calusei, nr. 36, sector 2 |
| 130. | Puzzle Edu Center - Centru educational sector 2 | 0724536293 | Str. Gheorghe Pop de Basesti, nr. 17, Sector 2 |
| 131. | Palatul Copiilor - Gradinita, After School sector 3 | 0740673742; 0314251635 | Str. Morilor, Nr. 19, sector 3 |
| 132. | Cei Trei Muschetari - Before si After School, Bucuresti | 0724384924 | Str. Vaselor, Nr. 40, Sector 2, Bucuresti |
| 133. | Don Castor, Gradinita & After School - Bucuresti | 0757073929; 0217945396 | Str. Vaselor, Nr. 17A, Sector 2, Bucuresti |
| 134. | Centrul Educational Nordic sector 4 | 0786391446 | Splaiul Unirii, Nr. 176, Corp D3, Sector 4 |
| 135. | Max und Moritz Kinder - Gradinita limba germana & After School Bucuresti | 0726374434 | Str. Plugarilor, Nr. 24, Sector 4, Bucuresti |
| 136. | Dreamland - Gradinita Bucuresti | 0787521511 | Str. Plugarilor, nr. 20-22, Sector 4, Bucuresti |
| 137. | Central Art Studio - After School/Cursuri Pentru Copii/Scoala de Vara Bucuresti | 0745633737; 0765454244 | Str. Popa Soare, nr. 29, sector 2 |
| 138. | Primii Pasi - Gradinita si Cresa Fundeni | 0212400469; 0722522898 | Str. Sucidava, nr. 27, Sector 2, Bucuresti |
| 139. | Apostol - After School sector 2 | 0740951411 | Str. Seneslav Voievod, Nr. 55, Sector 2 |
| 140. | Montessori Edu - Centru educational, Bucuresti | 0721833901 | Str. Mantuleasa, nr. 21, sector 2 |
| 141. | Spectrum - Gradinita, Scoala, After School Bucuresti | 0213443344; 0722654161 | Str. Balta Albina, Nr. 9, Sector 3, Bucuresti |
| 142. | PRO Academy Afterschool | 0744501156 | Str. Sibiel, nr. 6, Sector 4 |
| 143. | Lauder-Reut Kindergarten - Gradinita Bucuresti | 0318055772; 0723098800; 0735505395 | Str. Iuliu Barasch, Nr. 15, Sector 3, Bucuresti |
| 144. | Iepurasul cel Istet - Cresa, Gradinita, After School sector 2 | 0731488715; 0722121779 | Str. Mihai Eminescu, nr. 179, sector 2 |
| 145. | Veverita Jucausa - Gradinita sector 2 | 0726224859 | Str. Litovoi Voievod, Nr. 38, Sector 2 |
| 146. | Dani\'s Children, Cresa, Gradinita, After School - Bucuresti | 0721800099 | Str. Silvestru, Nr. 42, Sector 2, Bucuresti |
| 147. | Junior School - Gradinita Bucuresti | 0751223159 | Str. Calimachi, nr. 17, Sector 2, |
| 148. | Licurici - Gradinita Bucuresti | 0212104790 | Bd. Dacia, Nr. 134, Sector2, Bucuresti |
| 149. | Gradinita nr. 276 Bucuresti | 0212423280 | Str. Corabia, nr. 57, sector 2 |
| 150. | RosaMaria - Gradinita, cresa Bucuresti | 0746808080 | Str. Silvia, Nr. 18, Sector 2 |
| 151. | Casuta cu Pitici Mari si Mici - Gradinita, Afterschool Bucuresti | 0722626268 | Str. Silvia, nr. 11, Sector 2, Bucuresti |
| 152. | Clubul Copiilor Sector 2 - Bucuresti | 0212106432 | Intr. Cobilitei, Nr. 8, Sector 2, Bucuresti |
| 153. | Copacelul Vietii - Gradinita Bucuresti | 0721464185 | Str. Radu Calomfirescu, nr. 9, sector 3 |
| 154. | Gradinita Montessori Livada cu copii sector 2 | 0757467127; 0721204642 | Str. Toamnei, nr. 76-78, sector 2 |
| 155. | Gradinita cu program prelungit Nr. 135 | 0212421805 | Str. Masina de Paine, nr. 65, sector 2 |
| 156. | Ortense - Gradinita si After School, Ilfov | 0735642345 | Intrarea Ciresului, 16c, Dobroesti, judetul Ilfov |
| 157. | Centrul multifunctional Cresa Craiasa Zapezii sector 4 | 0371360117; 0371360127 | Str. Oitelor, nr. 50, sector 4 |
| 158. | Licurici - Gradinita sector 4 | 0314377556; 0767503191 | Str. Cuza Voda, nr. 141 A, Sector 4 |
| 159. | Centrul Social Multifunctional Cresa Scufita Rosie sector 4 | 0733200109; 0372874267; 0372715100, 0372715101 | Aleea Tohani, nr. 1, bl.30, sc. 1, parter, sector 4 |
| 160. | Ina School - Gradinita si scoala primara, Bucuresti | 0722500899 | Str. Lacul Gorgova, nr. 2, Sector 2 |
| 161. | IQ-Est - Gradinita & After School Popesti Leordeni | 0726758183 | Str. Sfantul Gheorghe, nr. 5B, Popesti Leordeni, judetul Ilfov |
| 162. | Gradinita nr. 233 sector 2 | 0216884518 | Str. Antonescu Petre, nr. 20, Sector 2 |
| 163. | Cresa Sinaia sector 2 | 0212403528 | Aleea Sinaia, nr. 4, sector 2 |
| 164. | Gradinita Nr. 257 Alice sector 2 | 0212114524 | Str. Alexandru Donici, Nr. 23, sector 2 |
| 165. | Castelino Baby - Gradinita Bucuresti | 0731995600 | Str. Prof. Ion Ursu, nr. 21, sector 2, |
| 166. | Gradinita nr. 30 sector 4 | 0213362078 | Bd. Dimitrie Cantemir, nr. 16A, Sector 4 |
| 167. | Micii Poznasi - Cresa, Gradinita Bucuresti | 0725911233 | Calea Serban Voda, Nr. 22-24, Sector 4 |
| 168. | Martisor AfterSchool sector 4 | 0727017553 | Str. Cararuia, nr. 1, sector 4 |
| 169. | Clubul Boreal, Gradinita - Bucuresti | 0721124249 | Str. Valerian Prescurea, Nr. 5, Sector 4, Bucuresti |
| 170. | Copii de Poveste - Gradinita sector 4 | 0740051582 | Str. Poterasi, nr. 5, sector 4 |
| 171. | Sfanta Agnes - Gradinita cu program prelungit Popesti Leordeni | 0213615041 | Str. Oltenitei, nr. 6, Popesti-Leorden, judetul Ilfov |
| 172. | Martisor - Gradinita sector 4 | 0213325936 | Str. Daracului, Nr. 11, Sector 4 |
| 173. | Rose Garden Kids - Gradinita, Ilfov | 0727130130; 0762432222 | Sos. Oltenitei, Nr. 32C-32G, Popesti-Leordeni, judetul Ilfov |
| vezi mai multe | |||
| 1. | Clinica Medicala Medlife-Bucuresti | 0219646; 0742299843 | Str.Liviu Rebreanu, nr. 8,sector 3, |
| 2. | Policlinica Titan | 0213400335; Fax 0213400745 | Bd. Nicolae Grigorescu, nr. 41, sector 3, |
| 3. | Pandora Medical Center - Bucuresti | 0213413098; 0732263626 | Aleea Calistrat Hogas, Nr. 45B, sector 3 |
| 4. | Clinica Nova ORL - Dr. Voda Ioana Alexandra-Bucuresti | 0213254422; 0799848484 | Str. Pictor Gh. Tattarascu , nr. 2, subsol Policlinica Globului, in spatele cinematografului Gloria, Baba Novac, sector 3, |
| 5. | Spitalul Clinic Judetean de Urgenta Ilfov + ambulatoriu-Bucuresti | Tel.021.3243312; 0213241161; Fax .0213243296 | Bd. Basarabia nr. 49-51, sector 2 , |
| 6. | Dr. V. Gomoiu, Centrul Medical Bucuresti | 0314136700; 0314136701 | Bd. Basarabia nr. 21, sector 2, |
| 7. | Spitalul Clinic Judetean de Urgenta Ilfov | Tel.0213243312; 0213241161; Fax 0213243296 | Bd. Basarabia nr. 49-51, sector 2, |
| 8. | Institutul National de Medicina Sportiva | 0213184704 ; 0213184705 ; 0213184706 | Bd. Basarabia, nr. 37-39, sector 2, Bucuresti |
| 9. | Hipocrat 2000-clinica medicala-Bucuresti | 0219605 | Bd. Chisinau, nr. 16, sector 2, |
| 10. | Spitalul Clinic Nicolae Malaxa + Ambulatoriu | 0212555405; Fax: 0212555275 | Sos. Vergului, Nr. 12, Sector 2 , Bucuresti |
| 11. | Dr. V. Gomoiu, Spitalul de Copii - Ambulatoriul de specialitate Bucuresti | 0314136700; 0314136701; 0314136706 | Bd. Basarabia, nr. 21, sector 2, |
| 12. | Centrul Medical Rom Med 2000 | 0726366370; 0213270441; Tel/Fax 0213206087 | Intr. Baba Novac, nr. 4 A, Sector 3, |
| 13. | Centrul Medical Dr. Victor Babes-Bucuresti | 0213179503; Fax: 0213179502 | Sos. Mihai Bravu nr. 281, sector 3 , |
| 14. | Dr. Victor Babes, Spitalul Clinic de Boli Infectioase si Tropicale Bucuresti | 0213172727 / .28 / .29/ .30 (Centrala); Fax 021 3172721 | Sos. Mihai Bravu, nr. 281, sector 3 , |
| 15. | Ambulatoriul spitalului Sf. Pantelimon | 0212554090; Fax 0212554025 | Sos. Pantelimon nr. 340-342, sector 2, |
| 16. | Spitalul Clinic Nicolae Malaxa + Ambulatoriu | Tel. 0212555405; Fax 0212555275 | Sos. Vergului, nr. 12, sector 2, |
| 17. | Spitalul clinic de copii Dr. Victor Gomoiu | 0314136700; 0314136701 | Bd. Basarabia nr. 21, sector 2, |
| 18. | Spitalul de Urgenta Sf. Pantelimon + ambulatoriu | 0212554090; 0212554025 | Sos. Pantelimon nr. 340-342, sector 2, |
| 19. | Spitalul de Urgenta Sf. Pantelimon + ambulatoriu | 0212554090; Fax .0212554099 | Sos. Pantelimon nr. 340-342, sector 2, |
| 20. | Spitalul Clinic de Boli Infectioase si Tropicale Dr. Victor Babes | 0213172727 / .28 / .29/ .30 (Centrala); 0213172721 | Sos. Mihai Bravu, nr. 281, sector 3, |
| 21. | Policlinica Baba Novac | 0770218336; 0748175572 | Str. Baba Novac, nr. 2, sector 3 |
| 22. | Medisan Family Clinic - Clinica medicala Bucuresti | 0217955980 | Str. Dr. Calin Ottoi, nr. 20-22, sector 2 |
| 23. | Centrul Medical Endocenter-Bucuresti | Tel.0764671233; Fax 0213267660 | Str. Arh. G. Sterian, nr. 8, sector 2, |
| 24. | Gral Medical - Centrul Medical, Bucuresti | 0213230000; 0724242259 (programari radiologie); Fax 0213230002 | Str.Traian Popovici (fosta Unitatii), Nr. 79-91, Sector 3, Bucuresti |
| 25. | Professional Klinic, Bucuresti - Tratament si analize | 0314250805 ; 0742207755 | Str.Agricultori, Nr. 115, bloc 79, Parter, Sector 3, Bucuresti |
| 26. | Centrul Medical Amicus Med | Tel. 0766424841; Tel/Fax 0212508585 | Sos. Iancului nr. 17, bl. 106C, sc. 1, ap. 4, sector 2, |
| 27. | Clinica Memento Med-Bucuresti | 0213260081 | Str. Brailita, nr. 1, sector 3, |
| 28. | Cabinet Medical Persepolis- Bucuresti | 0749065961; 0751011893 | Str. Vasile Toneanu , nr. 20, sector 3, |
| 29. | Vitan Policlinica, Grupare de cabinete medicale - Bucuresti | 0727451211; 0213234970; 0213221208 | Calea Dudesti, Nr. 104-124, sector 3, Bucuresti |
| 30. | Emergency Medical Care - Servicii medicale de urgenta la domiciliu Bucuresti & Ilfov | 0799058058; 0732528136; 0314250213 | Calea Vitan, Nr. 109B-109D, Sector 3, Bucuresti |
| 31. | Policlinica Iancului-Bucuresti | Tel.0314255277 (laborator); 0212508490 (O.R.L.); 0212503333 | Sos. Iancului , nr. 3, sector 2 , |
| 32. | Centrul Medical Hiperdia-Bucuresti | 0219338; Fax 0212507320 | Str.Ritmului, nr. 24, sector 2, Bucuresti |
| 33. | Centrul Medical Focus | Tel. 0317111515; 0733072910 | Bd. Ferdinand nr. 141, sector 2, |
| 34. | Spitalul de Urgenta Prof. Doctor Dimitrie Gerota | 0212523334; Fax 0212522829 | Str. Vasile Vasilievici Stroescu, nr. 29-31, sector 2, |
| 35. | Village Medical Clinic - Centru medical Bucuresti | 0212323580 | Str. Constantin Kiritescu, nr. 27, sector 2, |
| 36. | Omnia Medical Center - Clinica medicala, Bucuresti | 0213230034; 0728841841 | Bd. Octavian Goga, Nr. 14, Bl. M61, Parter, Sector 3, Bucuresti |
| 37. | Spitalul Clinic de Ortopedie Traumatologie Foisor-Bucuresti | Tel.0212520057; Fax.0212521387; 0310056786(progamari consultatii) | Bd. Ferdinand, nr. 35-37, sector 2 , |
| 38. | Spitalul Clinic de Ortopedie Traumatologie \"Foisor\" + ambulatoriu | Tel. 0310056786; 0212520057; Fax 0212521387 | Bd. Ferdinand, nr. 35-37, sector 2, |
| 39. | Clinica Medicala Estet Laser Medical Center | Tel/Fax 0212531797; 0721241772; 0733625687 | Str. Calusei nr. 11, sector 2, |
| 40. | Centrul Medical Veridia-Bucuresti | 0213029434 | Str. Matei Basarab, nr. 45, sector 3, |
| 41. | Donna Medical Center-Bucuresti | 0219732 | Str. Traian , nr. 234, et.1, sector 2, |
| 42. | Cron Phoenix - Centru de Reabilitare Ortopedica si Neurologica pentru copii Bucuresti | 0721567186; 0790667941 | Piata Pache Protopopescu, nr. 9, sector 2 |
| 43. | Clinica Life-Med-Bucuresti | 0319981 | Str. Plugarilor , nr. 18,sector 4, |
| 44. | Spitalul Prof. Dr. Constantin Angelescu | 0213233040; 0213233041 | Aleea Cauzasi, nr. 49 - 51 sector 3, |
| 45. | SPITALUL PROF. DR. CONSTANTIN ANGELESCU | 0213233040; 0213233041 | Aleea Cauzasi, nr. 49-51, sector 3, |
| 46. | Spitalul Clinic de Urgenta \"Sf. Ioan\" Bucuresti | Tel. 0213345190; 0213345170; Tel/Fax 0213345970 | Sos. Vitan-Barzesti nr. 13, sector 4, |
| 47. | Spitalul Clinic de Urgenta Sfantul Ioan Bucuresti | Tel. 0213345190; 0213345170 | Sos. Vitan Barzesti, nr. 13, sector 4, Bucuresti |
| 48. | Spitalul Clinic de Urgenta \"Sf. Ioan\" Bucuresti | Tel. 0213345190; 0213345170; Fax 0213345970 | Sos. Vitan Barzesti, nr.13, sector 4, |
| 49. | Prof. Dr. Mina Minovici, Institutul de Medicina Legala Bucuresti | 0314230708; 0213321156 | Sos. Vitan Barzesti, nr. 9-11, sector 4, |
| 50. | Institutul Clinic Fundeni | 0212750500; Fax.0213180444; 0212750700 | Sos.Fundeni, nr. 258, sector 2, |
| 51. | Prof. Dr. Dimitrie Gerota, Spitalul de Urgenta MAI - Bucuresti | 0212523334 | Str. Vasile Vasilievici Stroescu, nr. 29-31, sector 2, |
| 52. | Prof. Dr. Mina Minovici, Institutul de Medicina Legala Bucuresti | 0314230700 ; 0213346260 | Sos. Vitan Barzesti, nr. 9, sector 4, |
| 53. | Policlinica Regina Maria Sun Plaza | 0219268 | Calea Vacaresti, nr.391, sector 4, mall Sun Plaza, etaj 2, intrarea prin mall, |
| 54. | Centrul de Diagnostic romano-german Medinst | 0319902 | Str.Sfanta Vineri, nr. 29, sector 3, |
| 55. | Institutul Clinic Fundeni | Tel. 0212750500; Fax.0212750700 | Sos.Fundeni, nr. 258, sector 2, Bucuresti |
| 56. | Standard Med-Bucuresti | 0722435435; 0314053950 | Bd. Carol, nr. 45, ap.5, parter, sector 2, |
| 57. | Centrul Medical Romedical Int | Tel. 0212100381; 0723288108 | Str. Fainari nr. 35, sector 2, |
| 58. | POLICLINICA MASINA DE PAINE | Tel.021. 242.07.82 ; 021.242.00.96 (oftalmologie); 021.242.67.04 (neuropsihiatrie) | Str. Masina de Paine nr. 47, sector 2 , |
| 59. | Optim Sano - Centrul Medical Dr. Ion Socoteanu-Bucuresti | 0728955844 | Str. Salcamilor, Nr. 6A, sector 2, |
| 60. | Centrul Medical Proctoline-Bucuresti | 0213017686- programari | Bd. Dimitrie Cantemir , nr. 1, bl. B2, sc. 3, et. 2, sector 4, |
| 61. | Centrul Medical Psoremiss-Bucuresti | 0213017696 | Bd. Dimitrie Cantemir, nr. 1, bl. B2, sc. 3, et. 2, sector 4, |
| 62. | Podologica - Salon tratament pentru afectiunile picioarelor sector 4 | 0771458874 | Bd. Dimitrie Cantemir, nr. 15, bl.9, sc.6, sector 4, |
| 63. | Clinica Medicala On | .0213017676 | Bd. Dimitrie Cantemir nr. 1, bl. B2, sc. 3, et. 2, sector 4, |
| 64. | Institutul National de Diabet, Nutritie si Boli Metabolice \"Prof. Dr. N. Paulescu\" | Tel. 0212108499 (centrala); 0212106460 (secretariat); Fax 0212109092 | Str. Ion Movila, nr. 5-7, sector 2 , |
| 65. | Cabinet Medical Alfa | Tel.0319495 | Sos. Oltenitei, nr. 220, bl. 8, sc. 2, ap. 58, sector 4, |
| 66. | Spitalul Clinic Dr. I. Cantacuzino | Tel. 0212107100; 0212108499 (diabetologie) | Str. Ioan Movila, nr. 5-7, sector 2, Bucuresti |
| 67. | Institutul National de Diabet, Nutritie si Boli Metabolice \"Prof. Dr. N. Paulescu\" | 0212106460 (secretariat); 0212109092 | Str. Ion Movila, nr.5-7, sector 2, |
| 68. | Spitalul Clinic Dr. I. Cantacuzino-Bucuresti | Tel.0212107100; Fax.0212106435 | Str. Ion Movila nr. 5-7, sector 2 , |
| 69. | Euromedics Stem Life | 0800.800.855 (Apel gratuit); 021 311 55 92 | Str. Lipscani, Nr. 90A, et. 3, Sector 3 , |
| 70. | Spitalul Clinic Coltea | Tel. 0213874100; Fax 0213874101 | Bd. I.C. Bratianu, nr. 1, sector 3, |
| 71. | Spitalul Clinic Coltea | Tel. 0213874100; Fax 0213874101 | Bd. I.C. Bratianu, nr. 1, sector 3, |
| 72. | Centrul Medical Dr. Stoia Ion- Bucuresti | 0212116848 int.219; 0213175025 | Str. Thomas Masaryk , nr. 5, sector 2 , |
| 73. | POLICLINICA CU PLATA NR. 1 | Tel. 021.314.81.15; Fax 021.314.81.14 | Str. Bati?tei nr. 27, sector 2, |
| vezi mai multe | |||
| 1. | Hamburg, Scoala Gimnaziala Nr.195 - Bucuresti | 0318058603 | Str. Lunca Bradului, Nr. 2, sector 3, Bucuresti |
| 2. | Alexandru Ioan Cuza, Liceu Teoretic - Bucuresti | 0213404811 | Aleea Barajul Dunarii, Nr. 5, sector 3, Bucuresti |
| 3. | Federico Garcia Lorca, Scoala Gimnaziala Nr.196 | 0213403710 | Str. Cozla, nr. 2, sector 3, Bucuresti |
| 4. | Alexandru Ioan Cuza, Scoala Gimnaziala Nr. 199 - Bucuresti | 0213243970 | Bd. Nicolae Grigorescu, Nr. 14, Sector 3, Bucuresti |
| 5. | Liviu Rebreanu, Scoala Gimnaziala - Bucuresti | 0213401845 | Aleea Barajul Rovinari, Nr. 1, Sector 3, Bucuresti |
| 6. | Scoala Gimnaziala Nr. 200 - Bucuresti | 0213453119 | Str. Postavarul, Nr. 13, Sector 3, Bucuresti |
| 7. | Anghel Saligny, Colegiu Tehnic - Bucuresti | 0213402654 | Bd. Nicolae Grigorescu, Nr. 12, Sector 3, Bucuresti |
| 8. | Dante Alighieri, Liceu teoretic - Bucuresti | 0213481950; 0213481545 | Aleea Fuiorului, Nr. 9, Sector 3, Bucuresti |
| 9. | Neagoe Basarab Voievod, Scoala Gimnaziala (fosta Nr.16) - Bucuresti | 0213403313; 0374464076 | Intr. Constantin Brancusi, nr. 7, sector 3, Bucuresti |
| 10. | Benjamin Franklin, Liceu teoretic - Bucuresti | 0213244890; 0213243010 | Str. Pictor Gh. Tattarescu, Nr. 1, sector 3, Bucuresti |
| 11. | Liceul Teoretic Nichita Stanescu - Bucuresti | 0213400440 | Str. Lucretiu Patrascanu, Nr. 12, Sector 3, Bucuresti |
| 12. | Mexic, Scoala Gimnaziala Nr. 22 - Bucuresti | 0213401124 | Bd. 1 Decembie 1918, Nr. 34, Sector 3, Bucuresti |
| 13. | Nicolae Labis, Scoala Gimnaziala Nr. 89 - Bucuresti | 0213486271 | Str. Firidei, Nr. 2, Sector 3, Bucuresti |
| 14. | Scoala Gimnaziala Mexic - Bucuresti | 0213401124 | Bd. 1 Decembrie 1918, Nr. 34, sector 3 |
| 15. | Kidos - Before & after school, Bucuresti | 0770775730 | Bulevardul Nicolae Grigorescu, nr. 2 D, sector 3 |
| 16. | Scoala Gimnaziala Nr. 112 | 0213483331 | Str. Patulului, Nr. 2, Sector 3, Bucuresti |
| 17. | Scoala Gimnaziala Nr. 88 - Bucuresti | 0213480445 | Str. Odobesti, Nr. 3, Sector 3, |
| 18. | Dimitrie Leonida, Colegiul Tehnic - Bucuresti | 0213243294; 0213243295; 0213243293; 0213246902 | Bd. Basarabia, Nr. 47, Sector 2, Bucuresti |
| 19. | Scoala Gimnaziala Nr. 86 - Bucuresti | 0314250608 | Intr. Reconstructiei, Nr. 6A, Sector 3, Bucuresti |
| 20. | Ghelmez Petre, Scoala gimnaziala Nr. 58 - Bucuresti | 0213245135 | Str. Pescarusului, Nr. 124, Sector 2, Bucuresti |
| 21. | Leonardo Da Vinci, Scoala Gimnaziala Nr.75 - Bucuresti | 0213248676 | Str. Pictor Gheorghe Petrascu, Nr. 55, Sector 3, Bucuresti |
| 22. | Scoala Gimnaziala Nr. 82 - Bucuresti | 0213450962 | Jean Steriad, Nr. 17, Sector 3, Bucuresti |
| 23. | Scoala Gimnaziala Nr. 92 - Bucuresti | 0213480375 | Aleea Vlahita, Nr. 1A, sector 3 |
| 24. | Scoala Gimnaziala Nr. 54 - Bucuresti | 0213465143; 0310699824 | Str. Istriei, Nr. 19, Sector 3 |
| 25. | Scoala Gimnaziala Nr. 4 - Bucuresti | 0212556425 | Str. Herta, Nr. 14 A, Sector 2, Bucuresti |
| 26. | Profesia, Liceu profil Economic - Bucuresti | 0213486638; 0787889809 | Ilioara , Nr. 16 (in cladirea Scolii de Soferi), et. 2, sector 3 , Bucuresti |
| 27. | Sfantul Ioan, Scoala Postliceala Sanitara - Bucuresti | 0724355298; 0787889809 | Str. Ilioara, nr. 16, et. 2, sector 3, Bucuresti |
| 28. | Waldorf, Liceul Teoretic - Bucuresti | 0212553051 | Str. Sold. Marin Savu, Nr. 29, Sector 2, Bucuresti |
| 29. | Liceul Teologic Baptist Logos Bucuresti | 0213451072 | Bd. Theodor Pallady, Nr. 26, sector 3, Bucuresti |
| 30. | Montessori - Scoala si gradinita, Bucuresti | 0754054402 | Str. Maior Ion Coravu, Nr. 53, Sector 2 |
| 31. | Liceul Tehnologic Sfantul Pantelimon - Bucuresti | 0212559943 | Str. Hambarului, Nr. 12A, sector 2 |
| 32. | Costin D. Nenitescu, Colegiul Tehnic - Bucuresti | 0213450920 | Bd. Theodor Pallady, Nr. 26, Sector 3, Bucuresti |
| 33. | Scoala Gimnaziala Nr. 116 | 0213450102 | Str. Gura Ialomitei, Nr. 20, Sector 3, Bucuresti |
| 34. | Scoala Gimnaziala Nr. 149 - Bucuresti | 0213451985 | Aleea Perisoru, nr. 4, Sector 3, Bucuresti |
| 35. | Scoala Gimnaziala Nr. 51 - Bucuresti | 0212554060 | Str. Herta, Nr. 1, Sector 2, Bucuresti |
| 36. | BBIS Bucharest - Beirut International School | 0744309199 | Sos. Vergului, Nr. 14, Sector 2, Bucuresti |
| 37. | Scoala Gimnaziala Nr. 20 - Bucuresti | 0213452485 | Str. Prevederii, Nr. 19, Sector 3, Bucuresti |
| 38. | Liceul tehnologic special Regina Elisabeta - Bucuresti | 0212506220 | Str. Vatra Luminoasa, Nr. 108, sector 2 |
| 39. | Scoala Gimnaziala Nr. 62 - Bucuresti | 0212553635 | Str. Potarnichii, Nr. 3, Sector 2, Bucuresti |
| 40. | Scoala Gimnaziala Nr. 66 - Bucuresti | 0212554580 | Str. Logofatul Dan, Nr. 1, Sector 2, Bucuresti |
| 41. | Liceul Teoretic Hyperion - Bucuresti | 0311032803 | Sos. Mihai Bravu, nr. 288C, sector 2 |
| 42. | Scoala Gimnaziala Nr. 77 - Bucuresti | 0212553945 | Sos. Pantelimon, Nr. 289, sector 2 |
| 43. | Cezar Bolliac, Scoala Gimnaziala Nr. 70 - Bucuresti | 0314040172 | Intr. Tiglina, Nr. 37, Sector 3, Bucuresti |
| 44. | Decebal, Liceul Bilingv - Bucuresti | 0213469233 | Bd. Energeticienilor, Nr. 9-11, Sector 3, Bucuresti |
| 45. | Scoala Gimnaziala Nr. 80 - Bucuresti | 0213214256 | Calea Dudesti, Nr. 191, Sector 3, Bucuresti |
| 46. | Scoala Gimnaziala Nr. 49 - Bucuresti | 0212502444 | Str. Vatra Luminoasa, Nr. 99, Sector 2, Bucuresti |
| 47. | Lucian Blaga, Liceu teoretic - Bucuresti | 0212551265; 0786108825 | Sos. Pantelimon, Nr. 355, Sector 2, Bucuresti |
| 48. | Colegiul Tehnic Mihai Bravu - Bucuresti | 0213217699 | Sos. Mihai Bravu, Nr. 428, Sector 3 |
| 49. | Liceul Tehnologic Dragomir Hurmuzescu - Bucuresti | 0212560083 | Bd. Basarabia, Nr. 256, sector 3 |
| 50. | Emil Racovita, Colegiul National - Bucuresti | 0213217092; Fax 0213217092 | Sos. Mihai Bravu , nr. 169, sector 2, |
| 51. | Mihai Botez, Scoala Gimnaziala Nr. 87 - Bucuresti | 0213462361 | Str. Ramnicu Valcea, Nr. 32, Sector 3, Bucuresti |
| 52. | Scoala Gimnaziala Nr. 46 - Bucuresti | 0212502527 | Str. Stanescu Gheorghe, Nr. 2-18, sector 2 |
| 53. | Scoala Gimnaziala Nr. 67 - Bucuresti | 0212560040 | Str. Magnetului, Nr. 1-3, Sector 3, Bucuresti |
| 54. | Scoala Generala nr. 84 Nicolae Balcescu - Bucuresti | 0213216391 | Calea Vitan, Nr. 135, sector 3 |
| 55. | Pick Me Academy - Scoala Primara Bucuresti | 0726000640; 0722391000 | Strada Agricultori, Nr. 79, Sector 2, Scoala Primara |
| 56. | Carol Davila, Scoala Sanitara Postliceala - Bucuresti | 0216107068 | Str. Agricultori, nr. 35, 37-39 (cladirea Codecs), sector 2, |
| 57. | Scoala Gimnaziala Nr. 85 | 0212524520 | Str. Dr. Constantin Zlatescu, Nr. 7A, sector 2, Bucuresti |
| 58. | Serban, Scoala de Meserii - Bucuresti | 0722302252; 0212520382 | Intrarea Baritonului, Nr. 9 (prin Str. Matei Voievod Nr. 81-83), Sector 2, Bucuresti |
| 59. | Magia Copilariei - After-school Bucuresti | 0761912892 | Strada Nucului, Nr. 55, Sector 3 |
| 60. | Scoala Gimnaziala Nr. 64 Ferdinand I - Bucuresti | 0213351410 | Bd. Garii Obor, Nr. 16, Sector 2 |
| 61. | International British School - Bucuresti | 0212531698; 0745340841 | Str. Agricultori, Nr. 21-25, Sector 2, Bucuresti |
| 62. | Victoria, Liceu Teoretic - Bucuresti | 0314250543; 0759478014 | Str. Turturelelor, nr. 11A, sector 3, Bucuresti |
| 63. | Sweet Babies - Cresa, gradinita, after school, Bucuresti | 0785810011 | Strada Teleajen, 26B, sector 2 |
| 64. | Scoala Gimnaziala Nr. 55 - Bucuresti | 0212561066 | Sos. Industriilor, Nr. 46, Sector 3, Bucuresti |
| 65. | Scoala Gimnaziala Nr. 78 - Bucuresti | 0212563261 | Sos. Gara Catelu, Nr. 50, Sector 3, Bucuresti |
| 66. | Scoala Gimnaziala Nr. 78 - Bucuresti | 0212563261 | Sos. Garii Catelu, Nr. 50, Sector 3 |
| 67. | Mirunette Education, Consiliere si Programe Educationale - Bucuresti | 0212101602 | Valeriu Braniste, Nr. 37-39, Etaj 1, Ap. 3, Cam. 3, Sector 3, Bucuresti |
| 68. | Scoala Gimnaziala Nr. 56 - Bucuresti | 0212524125; 0733087815 | Bd. Pache Protopopescu, Nr. 109A, Sector 2, Bucuresti |
| 69. | Anastasia Popescu, Liceu Pedagogic Ortodox - Bucuresti | 0212524665; 0725519386; 0722805777 | Popa Nan, 47 B, Sector 2, Bucuresti |
| 70. | Scoala Gimnaziala de Arte nr. 2 - Bucuresti | 0212525703 | Bd. Ferdinand I, Nr. 128, Sectorul 2 |
| 71. | About Scoala Metropolitana A.R.C | 0314254343; 0722522198 | Str. Esarfei, nr. 63-71, sector 3, |
| 72. | Scoala Gimnaziala Nr. 95 - Bucuresti | 0770503408; 0213235185 | Str. Foisorului, Nr. 111-113, Sector 3, Bucuresti |
| 73. | Mihail Sadoveanu, Liceu teoretic - Bucuresti | 0212527856 | Str. Popa Lazar, Nr. 8A, Sector 2, Bucuresti |
| 74. | Liceul Tehnologic Nikola Tesla - Bucuresti | 0212527886 | Sos. Pantelimon, Nr. 25, sector 2 |
| 75. | Ion I.C. Bratianu, Liceu Tehnologic - Bucuresti | 0310699448 | Str. Popa Lazar, Nr. 8A, Sector 2, Bucuresti |
| 76. | Mihai Viteazu, Colegiul National - Bucuresti | 0212525700; 0212525871 | Bd. Pache Protopopescu, Nr. 62, Sector 2, Bucuresti |
| 77. | Iulia Hasdeu, Colegiu National - Bucuresti | 0212524508 | Bd. Ferdinand, Nr. 91, Sector 2, Bucuresti |
| 78. | Ady Endre, Liceu Teoretic - Bucuresti | 0212520192 | Bd. Ferdinand I, Nr. 89, Sector 2, Bucuresti |
| 79. | Scoala Gimnaziala Iancului Nr. 52 | 0212522260 | Bd. Pache Protopopescu, Nr. 50, Sector 2, Bucuresti |
| 80. | Montessano - Scoala primara si gradinita, Bucuresti | 0724924070; 0724919711 | Str. Labirint, nr. 97-99, sector 3 |
| 81. | Scoala Gimnaziala Nr. 145 - Bucuresti | 0212407036 | Str. Heliade Intre Vii, Nr. 36, sector 2 |
| 82. | A.D. Xenopol, Colegiul Economic - Bucuresti | 0213205719 | Str. Traian, Nr. 165, Sector 2, Bucuresti |
| 83. | Liceul Tehnologic Theodor Pallady - Bucuresti | 0213453080 | Bd. Theodor Pallady, Nr. 250, sector 3 |
| 84. | Kids Kingdom - Before & After School Bucuresti | 0799199627 | Intrarea Traian Demetrescu, Nr. 8, sector 3 |
| 85. | Traian Vuia, Liceu Tehnologic de Metrologie - Bucuresti | 0213345915; 0372942097 | Sos. Vitan Barzesti, Nr. 11, Sector 4, Bucuresti |
| 86. | Scoala Gimnaziala Nr. 81 - Bucuresti | 0213263220 | Str. Nerva Traian, Nr. 33, Sector 3, Bucuresti |
| 87. | Liceul Economic nr. 1 - Bucuresti | 0371417419 | Sos. Vitan Barzesti, Nr. 11, Sector 4, Bucuresti |
| 88. | Maica Domnului, Scoala Gimnaziala Nr. 50 - Bucuresti | 0212520310 | Str. Ion Maiorescu, Nr. 32, Sector 2, Bucuresti |
| 89. | Scoala Gimnaziala Nr. 47 - Bucuresti | 0212564666; 0212561512 | Sos. Garii Catelu, Nr. 132, Sector 3, Bucuresti |
| 90. | George Cosbuc, Colegiul National Bilingv - Bucuresti | 0212528080 | Str. Olari, Nr. 29-31, Sector 2, Bucuresti |
| 91. | Mihai Ionescu, Gradinita, Gimnaziu si Liceu - Bucuresti | 0213235495; 0314054929 | Cauzasi, Nr. 43, Sector 3 , Bucuresti |
| 92. | Mihai Ionescu, Scoala Primara, Gimnaziu, Liceu - Bucuresti | 0213235495 | Str. Cauzasi, Nr. 43, Sector 3, Bucuresti |
| 93. | Matei Basarab, Colegiul National - Bucuresti | 0213216640 | Str. Matei Basarab, Nr. 32, Sector 3, Bucuresti |
| 94. | Colegiul Tehnic Petru Rares - Bucuresti | 0213304001 | Str. V. V. Stanciu, nr. 6, sector 4 |
| 95. | Mihai Eminescu, Colegiul National - Bucuresti | 0213304001 | Str. V.V. Stanciu, Nr. 6 , Sector 4, Bucuresti |
| 96. | Scoala Gimnaziala Nr. 25 - Bucuresti | 0212422695 | Str. Silvia, Nr. 54 Sector 2 |
| 97. | International School of Bucharest - Liceu | 0213069530; 0213069534; 0213069544 | Soseaua Garii Catelu, Nr. 1R, Bucuresti |
| 98. | Liceul Teoretic International de Informatica Bucuresti | 0213275443; 0213276570 | Str. Balta Albina, Nr. 9, Sector 3, Bucuresti |
| 99. | Barbu Delavrancea, Scoala Gimnaziala Nr.73 - Bucuresti | 0213237390 | Str. Matei Basarab, Nr. 28-30, Sector 3, Bucuresti |
| 100. | Spectrum, Scoala primara - Bucuresti | 0213443344; 0722654161 | Str. Balta Albina, Nr. 9, Sector 3, Bucuresti |
| 101. | Victor Babes, Colegiul National - Bucuresti | 0212407870 | Sos. Fundeni, Nr. 254, Sector 2, Bucuresti |
| 102. | Laude-Reut, Complex Educational Bucuresti | 0314382046; 0318055772 | Str. Clucerul Udricani, Nr. 12, Sector 3, Bucuresti |
| 103. | Hermes, Colegiul Economic - Bucuresti | 0213147645 | Calea Mosilor, Nr. 152, Sector 2, Bucuresti |
| 104. | Scoala Gimnaziala Nr. 71 - Bucuresti | 0213141395; 0213141391 | Calea Mosilor, Nr. 148, Sector 2, Bucuresti |
| 105. | Sfantul Silvestru, Scoala Gimnaziala Nr. 23 - Bucuresti | 0212102045 | Str. Oltarului, Nr. 11, Sector 2, Bucuresti |
| 106. | Scoala Postliceala Sanitara Fundeni - Bucuresti | 0212405135 | Sos. Fundeni, Nr. 254, Sector 2, Bucuresti |
| 107. | Scoala Gimnaziala Nr. 307 - Bucuresti | 0212100012 | Str. Luncsoara, Nr. 3, Sector 2, Bucuresti |
| 108. | Scoala Gimnaziala Nr. 97 - Bucuresti | 0213302545 | Str. Viorele, Nr. 7, Sector 4, Bucuresti |
| 109. | Kretzulescu Nicolae, Scoala Superioara Comerciala - Bucuresti | 0213139082 | Bd. Hriso Botev, Nr. 17, Sector 3, Bucuresti |
| 110. | Seminarul Teologic Ortodox Bucuresti | 0213305754; 0731205629; 0213305754 | Str. Radu Voda, Nr. 24 A, Sector 4, Bucuresti |
| 111. | Scoala Gimnaziala Nr. 1 Pantelimon - Ilfov | 0213135152 | Str. Mioritei, nr. 24A, Pantelimon, judetul Ilfov |
| 112. | Cuib - After school, Bucuresti | 0751088396 | Str. Fainari, Nr. 45A, sector 2 |
| 113. | Ion Creanga Colegiu National - Bucuresti | 0213362695 | Str. Cuza Voda, Nr. 51, sector 4, Bucuresti |
| 114. | Scoala Gimnaziala Nr. 79 - Bucuresti | 0314257884 | Str. Cuza Voda, Nr. 51, Sector 4, Bucuresti |
| 115. | Scoala Gimnaziala Nr. 27 Principesa Ileana - Bucuresti | 0212421645 | Str. Masina de Paine, nr. 65, sector 2 |
| 116. | Penticostal Emanuel, Liceul Teologic - Bucuresti | 0213311669 | Str. Cuza Voda, Nr. 116, Sector 4, Bucuresti |
| 117. | Cantemir Voda, Colegiul National - Bucuresti | 0212106935 | Str. Viitorului, Nr. 60, Sector 2, Bucuresti |
| 118. | Scoala de Arta Bucuresti | 0213306700 | Str. Cuza Voda, nr. 100, |
| 119. | Monterra - Scoala primara Bucuresti | 0743119481 | Str. Vasile Lascar, nr. 87, sector 2 |
| 120. | Spiru Haret, Colegiu National - Bucuresti | 0213136462 | Str. Italiana, Nr. 17, Sector 2, Bucuresti |
| 121. | Scoala Gimnaziala SEB - Bucuresti | 0314249675; 074502274 | Str. Martisor, Nr. 22, sector 4 |
| 122. | Scoala Gimnaziala Nr. 113 | 0213322347 | Str. Parincea, Nr. 4, Sector 4, Bucuresti |
| 123. | Scoala Gimnaziala Nr. 120 Martisor - Bucuresti | 0213325811 | Str. Martisor, Nr. 39, sector 4 |
| 124. | Radu Popescu, Liceu Teoretic, Clasele I-XII si Gradinita - Popesti-Leordeni | 0214673423; Fax 0213614022 | Leordeni, Nr. 52, Popesti-Leordeni, judetul Ilfov |
| 125. | Gheorghe Sincai, Colegiul National - Bucuresti | 0213369004; 0213361455 | Calea Serban Voda, Nr. 167, Sector 4, Bucuresti |
| 126. | Scoala Gimaziala Nr. 133 - Bucuresti | 0213325837 | Str. Stanjeneilor, Nr. 3, sector 4, Bucuresti |
| 127. | Scoala Gimnaziala Ienachita Vacarescu, Bucuresti | 0213355705 | Calea Serban Voda, Nr. 62-64, sector 4, Bucuresti |
| vezi mai multe | |||
| 1. | Irina Casa cu Prajituri, Cofetarie - Bucuresti | 0731323192 | Liviu Rebreanu, Nr.12, bl. K2, Cartier Titan Sector 3, Bucuresti |
| 2. | Restaurant Paunita - Bucuresti | 0724145707 | Bulevardul Nicolae Grigorescu, Nr. 31A, sector 3 |
| 3. | KLANdestin - Restaurant Bucuresti | 0731954592 | Str. Liviu Rebreanu, Nr. 6A, Sector 3 |
| 4. | Shaormeria Titan - Fast food Bucuresti | 0771332861; 0755864686 | Bd. Nicolae Grigorescu, Nr. 20, Sector 3 |
| 5. | Vio Cofetarie - Bucuresti | 0213412082 | Bd. Nicolae Grigorescu, Nr. 20, Sector 3, Bucuresti |
| 6. | Allegro Restaurant - Bucuresti | 0751055536; 0744649177 | Bd. Nicolae Grigorescu, Nr. 20A, Sector 3, Bucuresti |
| 7. | Ribs Bar&Grill - Restaurant american, Bucuresti | 0720788818 | Str. Constantin Brancusi, Nr. 13, Complex Potcoava, sector 3 |
| 8. | Camizo, Restaurant - Bucuresti | 0733018778 | Prisaca Dornei, Nr.10A, Sector 3, Bucuresti |
| 9. | Alba, Restaurant - Bucuresti | 0213404491; 0722820287 | Liviu Rebreanu , Nr. 29 A, Sector. 3, Bucuresti |
| 10. | Vibes Cafe - Restaurant terasa Bucuresti | 0788221270 | Liviu Rebreanu, Nr. 29, Sector 3 |
| 11. | Monza, Trattorie si Restaurant - Bucuresti | 0724802802; 0722661166; 0769200002 | Baba Novac, Nr. 25, Sector 3, Bucuresti |
| 12. | Casa Dante - Restaurant cu specific italian, Bucuresti | 0314358069 | Strada Rotunda, nr 4C, sector 3 |
| 13. | Monza, Trattorie si Restaurant - Bucuresti | 0722661166; 0769200002; 0724802802 | Baba Novac, Nr. 25, Sector 3, Bucuresti |
| 14. | Arancini - Restaurant cu specific sicilian | 0756490490 | Str. Papadiei, Nr. 16-18, sector 3 |
| 15. | La Tramvai - Terasa Bucuresti | 0729166021 | Parcul Alexandru Ioan Cuza (I.O.R). intersectie Campia Libertatii, sector 3 |
| 16. | L\'incontro, Restaurant - Bucuresti | 0732113702; 0751906137; 0767241745 | Postavarul, Nr. 92, Sector 3, Bucuresti |
| 17. | Eleven - Restaurant Bucuresti | 0723211222; 0786112411 | Strada Postavarul, Nr. 86-90, sector 3 |
| 18. | Myti Pizza - Pizzerie, Bucuresti | 0734378358; 0744478578 | Bulevardul 1 Decembrie, Nr 7 D, sector 3 |
| 19. | Trattoria Venti - Restaurant Bucuresti | 0731315513 | Str Postavarului, Nr. 84, Sector 3 |
| 20. | Casa Diham - Restaurant Bucuresti | 0213406006; 0727171220 | Bd. Nicolae Grigorescu, Nr. 1 A, Sector 3 |
| 21. | Altfel, Cofetarie - Bucuresti | 0213454005; 0744347848; 0741553448 | Bd 1 Decembrie 1918, Nr 21 ,Sector 3, Bucuresti |
| 22. | Friends Pub - Bucuresti | 0728197287 | Bucovina , Nr. 6, Sector 3, Bucuresti |
| 23. | Ivan\'s bar & grill - Restaurant traditional, Bucuresti | 0723893545;0737276284 | Bulevardul Basarabia, Nr. 170 - 174, sector 2 |
| 24. | Gedi, Restaurant - Bucuresti | 0371119901; 0734207029 | Bd. Basarabia, Nr. 176 B, Sector 2, Bucuresti |
| 25. | Gloria Jean\'s Coffees Romania | 0760107884 | Bd.Liviu Rebreanu, nr. 4, sector 3 - Mall Park Lake, Bucuresti |
| 26. | Cartofisserie - Restaurant cu bufet Bucuresti | 0726330960;0740215433 | Liviu Rebreanu, Nr. 4 (ParkLake Shopping Center Mall) |
| 27. | Sabatini Pizza, Restaurant - Bucuresti | 0314266069; 0737148520; 0784699751 | B-dul Basarabia, Nr. 108, Bucuresti |
| 28. | La Dolceria, Cofetarie - Bucuresti | 0724315256 | Basarabia, Nr.55, M22, Sector 3, Bucuresti |
| 29. | Xanadu Restaurant, Pub - Bucuresti | 0726212114; 0722621717 | Postavarului, Nr. 102, Sector 3, Bucuresti |
| 30. | Xanadu Restaurant - Bucuresti | 0726212114; 0722621717 | Postavarul, Nr. 102, Sector 3, Bucuresti |
| 31. | Sham Sweet, Cofetarie - Bucuresti | 0748242455 | Bd. Basarabia, Nr.98, Sector 3, Bucuresti |
| 32. | Tosca Food - Pizzerie Bucuresti | 0756435785;0757170957 | Strada Intrarea Muncii, Nr. 23, sector 3 |
| 33. | Green Bistro - Terasa Bucuresti | 0728237731 | Parcul Gheorghe Patrascu, |
| 34. | Damascus Palace - Restaurant Bucuresti | 0746696666; 0756616666 | Bld. Basarabia, Nr. 98, sector 2, |
| 35. | Casa Anca 72, Restaurant - Bucuresti | 0724334499; 0744777499 | Bd. 1 Decembrie 1918 , Nr. 56A, Sector 3, Bucuresti |
| 36. | Armonia Cofetarie - Bucuresti | 0213244020 ; 0722616180 | Campia Libertatii, Nr. 46 , bl. 52 , Parter , Sector 3, Bucuresti |
| 37. | Savi - Restaurant si club biliard Bucuresti | 0775123051; 0722418555 | B-dul 1 Decembrie 1918, Nr. 56L, Sector 3 |
| 38. | La Sediu - Restaurant Bucuresti | 0760729007 | Campia Libertatii, Nr. 54, sector 3 |
| 39. | Bistro 37-39 - Restaurant Bucuresti | 0731355939 | Bulevardul Basarabia, Nr. 37-39 , Sector 3 |
| 40. | Strada Rustica - Pizzerie Bucuresti | 0213248303; 0768676765; 0728886914 | Str. Baba Novac, Nr 9, Complex Rucar, Sector 3 |
| 41. | Ressu Restaurant & Lounge - Bucuresti | 0723774485; 0731607646; | B-dul Camil Ressu, Nr. 70 A, Sector 3, Bucuresti |
| 42. | 7 Days - Restaurant cu terasa, organizari evenimente, Bucuresti | 0769042751; 0213241358 | Str. Campia Libertatii, Nr. 23, Sector 3, Bucuresti |
| 43. | Pajo Garden - Restaurant Bucuresti | 0751227228 | Bulevardul Basarabiei, Nt. 37-39, sector 2 |
| 44. | Gili Pizza - Bucuresti | 0213242387 | Str. Baba Novac, Nr. 9-11, Sector 3 |
| 45. | Stejarului 57 - Social Bar, Bucuresti | 0748701058 | Strada Fildesului, Nr. 2, sector 3 |
| 46. | BigBoy - Pizzerie Bucuresti | 0725570450; 0760925495 | Soseaua Vergului, Nr. 8, Sector 3 |
| 47. | Pizza Apetito - Bucuresti | 0770225215 | Eufrosina Popescu, Nr. 57, sector 3, |
| 48. | Marenka - Cofetarie Bucuresti | 0728028827; 0736273652 | Bulevardul Theodor Pallady, Nr. 21, Sector 3 |
| 49. | Taverna Fierarilor - Restaurant Bucuresti | 0758105629 | Str.Ilioara, Nr. 18, Sector 3, |
| 50. | Ilioara - Restaurant si piscina Bucuresti | 0766379289; 0721244247 | Strada Ilioara, Nr. 16L, sector 3 |
| 51. | Papaciu - Bistro, Bucuresti | 0724200070; 0724955952 | Strada Complexului, Nr 3A, sector 3 |
| 52. | Riviera Park, Restaurant - Bucuresti | 0732408408 | Bd. Basarabia , Nr. 23 (Parcul National), Sector 2, Bucuresti |
| 53. | Chef Gabrielle - Restaurant, Bucuresti | 0766066406 | Strada Tomis, Nr. 5A, Sector 3 |
| 54. | Terasa Sport House - Restaurant fast-food, Bucuresti | 0755080224 | Maior Ion Coravu, numarul 34, sector 2 |
| 55. | La Patrascu - Restaurant Bucuresti | 0771635003; 0767561149; 0754422491 | Str. Prof. Stefan Nicolau, Nr. 2A, Sector 3 |
| 56. | Casa Morarilor - Restaurant, Bucuresti | 0765064409 | Soseaua Morarilor, Nr. 2 |
| 57. | Trattoria la Nave - Restaurant Bucuresti | 0743454626 | Sos. Pantelimon, Nr. 264, Sector 2 |
| 58. | Greekos Urban Food - Restaurant fast-food, Bucuresti | 0726646976 | Soseaua Mihai Bravu, Nr. 247, sector 3 |
| 59. | Taverna Baba Novac, Restaurant - Bucuresti | 0771544334; 0760010784 | Intrarea Baba Novac, Nr. 3, Sector 3, Bucuresti |
| 60. | Mateo Fast Food | 0728199827; 0752777333; 0314362033 | Strada Dristorului, Nr. 87, sector 3 |
| 61. | Qian Bao, Restaurant chinezesc - Bucuresti | 0722622865; 0314306616 | Intrarea Baba Novac, Nr. 2, Sector 3, Bucuresti |
| 62. | Babylon Fast Food - Bucuresti | 0799666267 | Soseaua Pantelimon, nr. 255, sector 2 |
| 63. | Cofetariile Georgy\'s, Cofetarie,torturi - Bucuresti | 0733060230; 0730618742 | Ramnicu Valcea, Nr. 14, Sector 3, Bucuresti |
| 64. | Cofetaria Andreea | 0213228845; 0728877033 | Sos. Mihai Bravu , Nr. 286, sector 3, Bucuresti |
| 65. | Andreea, Cofetarie, torturi si patiserie - Bucuresti | 0728877033; 0213228845 | Bulevardul Mihai Bravu, Nr. 286, Sector 3, Bucuresti |
| 66. | Zatara - Restaurant cu influente mediteraneene, Bucuresti | 0771670756 | Vatra Luminoasa, Nr. 108, sector 2 |
| 67. | Casa Tosca, Cofetarie - Bucuresti | 0213461297 | Bd. Camil Ressu, Nr. 1, Sector 3, Bucuresti |
| 68. | Trenta Pizza - Bucuresti | 0219645 | Bd.Chisinau, Nr.5 , sector 2 , Bucuresti |
| 69. | Paradis, Cofetarie - Bucuresti | 0724398400 | Sos Pantelimon, Nr.354,Bloc 2, Sector 2, Bucuresti |
| 70. | Gemenii Pizza - Bucuresti | 0766633686 | Strada Fetesti, Nr. 11A, Sector 3 |
| 71. | Restaurant Ali Baba - Specific oriental, Bucuresti | 0213274810; 0722707208 | Sos. Mihai Bravu, Nr. 213, sector 2, Bucuresti |
| 72. | Santorini - Restaurant specific grecesc Bucuresti | 0748333334 | Bulevardul Mihai Bravu, Nr. 209, Sector 2 |
| 73. | Pizza Venetia, Pizzerie si catering - Bucuresti | 0720800100; 0213204424; Fax: 0720800100 | Dristorului, Nr.59, Sector 3, Bucuresti |
| 74. | Casa Luminita, Restaurant - Bucuresti | 0749202000 (Lucian Ionescu); 0723500565 | Theodor Pallady, Nr. 287, Sector 3 (zona Ozana), Bucuresti |
| 75. | Snap - Restaurant, Bucuresti | 0738888885 | Bulevard Decebal, nr. 13, sector 3 |
| 76. | Casa Dragonului, Restaurant Bucuresti | 0213202666; 0761929019 | Calea Dudesti, nr. 198, sector 3, Bucuresti |
| 77. | Duman - Restaurant cu specific oriental, Bucuresti | 0738170063 | Bulevardul Decebal, Nr. 13, sector 3 |
| 78. | Erra - Restaurant cu specific european modern, Bucuresti | 0734983984 | Str. Constantin Nottara, Nr 13, sector 3 |
| 79. | Casa Lefter - Restaurant Bucuresti | 0723568402; 0743127330 | Strada Lt. Ionescu Baican, Nr. 57, sector 2 |
| 80. | Gallo Nero, Restaurant - Bucuresti | 0726544889; 0213268128 | Bd. Decebal, Nr. 12, Sector 3, Bucuresti |
| 81. | La Coana Mare - Cofetarie Bucuresti | 0771512035 | Strada Magura Vulturului, Nr. 2, sector 2 |
| 82. | Pizzeria Florina - Bucuresti | 0219285 | Strada Nicolae Pascu, nr.1A, sectorul 3 |
| 83. | Rich Vip Lounge - Restaurant Bucuresti | 0771790764 | Bd.Decebal, Nr 9, sector 3 |
| 84. | Gustul Pasiunii Cofetarie - Bucuresti | 0728941816 | Racari, Nr. 5, sector 3, Bucuresti |
| 85. | Funky Lounge - Terasa, Bucuresti | 0755505505 | Bd. Decebal, nr 9, sector 3 |
| 86. | Agio Bistrot - Bistro, Bucuresti | 0763528818 | Bd. Decebal, Nr. 9, sector 3 |
| 87. | Events by Tonyo - Restaurant Bucuresti | 0723170007 | Aleea Hobita, Nr 1 Sector 2 |
| 88. | Casa Jienilor Agricultori, Restaurant - Bucuresti | 0735994994 | Agricultori, Nr.12, Sector 2, Bucuresti |
| 89. | Casa Lica - Cofetarie Bucuresti | 0725761188 | Bulevardul Decebal, Nr. 5, Sector 3 |
| 90. | XO Lounge - Restaurant Bucuresti | 0725585388 | B-dul Decebal, Nr. 5, sector 3 |
| 91. | Rainbow - Bar & Grill, Bucuresti | 0743205054 | Cornul Caprei, nr.53, sector 3 |
| 92. | Jerry\'s Pizza - Bucuresti | 0373303030 | Calea Vitan, Nr. 236, Sector 3, Bucuresti |
| 93. | Tress Caffe&Lounge - Bucuresti | 0721988801 | Bulevardul Decebal, Nr 3, sector 3 |
| 94. | Padthai - Restaurant Bucuresti | 0726637747 | Bulevardul Decebal, Nr. 3, sector 3 |
| 95. | El Bacha, Restaurant - Bucuresti | 0212691392; 0722833333 | P-ta Alba Iulia, nr.6 bl.15, sector 3, |
| 96. | Lotus Cafe - Cafenea restaurant Bucuresti | 0722808389 | Bd. Decebal, Nr 1, sector 3 |
| 97. | Bravu Burger & Crepes - Restaurant fast-food, Bucuresti | 0722118100 | Soseaua Mihai Bravu, Nr 452 - 460, sector 2 |
| 98. | Delice Grill - Restaurant fast-food Bucuresti | 0721112244 | Soseaua Mihai Bravu, Nr 139-145, sector 2 |
| 99. | Talla - Cofetarie Bucuresti | 0728314326 | Str. Aleea Mizil, Sector 3 |
| 100. | Terasa Marius - Bar & Grill, Bucuresti | 0745777799 | Sos. Pantelimon, Nr. 115-117, sector 2 |
| 101. | Turquoise - Restaurant cu specific oriental, Bucuresti | 0731826222 | Strada Theodor D. Sperantia, Nr. 96, sector 3 |
| 102. | Gio Cafe - Bucuresti | 0730030757 | Bd. Burebista, Nr.2 , Sector 3, Bucuresti |
| 103. | Nikos Greek Taverna, Restaurant - Bucuresti | 0730001008 (Restaurant); 0215999099 (Livrari) | B-dul Burebista, Nr 2 (Piata Alba Iulia), Sector 3, Bucuresti |
| 104. | Giorginio Cofetarie - Bucuresti | 0722434002 | Calea Dudesti, Nr. 129 (colt cu str. Scoala Ciocanul) Sector 3, Bucuresti |
| 105. | Alice, Cofetarie - Bucuresti | 0744486465 | Sos. Mihai Bravu, Nr. 123-135, Sector 2, (zona Piata Iancului - langa Sectia 8 de Politie), Bucuresti |
| 106. | Cristal - Cofetarie | 0760090324 | Str. Matei Voievod, nr. 108, sector 2 |
| 107. | Arogant - Restaurant & Lounge, Bucuresti | 0732764268 | Piata Alba Iulia Piata Alba Iulia, nr 8, sector 3 |
| 108. | Dada Restaurant - Bucuresti | 0729997405; 0724015800 | Str. Matei Voievod , nr. 94bis, sector 2, |
| 109. | La Mama - Restaurant Bucuresti | 0721526262 | Strada Delea Veche, Nr. 51, sector 2 |
| 110. | Turquoise Bakery - Bucuresti | 0739037919 | Str. Matei Voievod, nr.101, Sector 2 |
| 111. | Bellagio Villa Restaurant - Bucuresti | 0213440661; 0771120177 | Vrejului, Nr. 21, Sector 3, Bucuresti |
| 112. | M&I Clasic Cuisine - Fast-food si catering Bucuresti | 0732948408 | Strada Baicului, Nr 104 Sector 2 |
| 113. | Casa Pedro, Restaurant - Bucuresti | 0722502715; 0212560209; 0722533499 | Soseaua Industriilor, Nr. 30 (colt cu Str. Rodnei) ,Sector 3 , Bucuresti |
| 114. | BaKings - Cofetarie Bucuresti | 0744642929 | Strada Ilarie Chendi, Nr. 28, sector 2 |
| 115. | Resto Aperto, Restaurant - Bucuresti | 0738741118 | Calea Vitan , Nr.55-59(Bucuresti Mall) Sector 3, Bucuresti |
| 116. | Alceva - Restaurant, Bucuresti | 0770844125 | Matei Voievod, Nr. 79, sector 2, |
| 117. | Casa Pedro - Restaurant si salon evenimente Bucuresti | 0726456687 | Strada Industriilor, Nr 30, sector 3 |
| 118. | Club Art Papillon Restaurant - Bucuresti | 0212522520; 0732582278; 0722240930 | Matei Voievod , Nr. 66A Sector 2, Bucuresti |
| 119. | Trattoria Fresca - Restaurant cu specific italian, Bucuresti | 0731333410 | Str.Popa Nan, nr.140, Sector 2 |
| 120. | Resto Aperto, Restaurant - Bucuresti | 0738741118 | Calea Vitan, Nr.55-59 (Bucuresti Mall) Sector 3, Bucuresti |
| 121. | Intermacedonia, Restaurant - Bucuresti | 0212522010; 0212527331; 0212522190 | Sos. Mihai Bravu, Nr.95-100, Sector 2 (P-ta Iancului) , Bucuresti |
| 122. | Bistro Turturelelor - Restaurant, Bucuresti | 0726310583; 0758887454 | Strada Turturelelor, 11A, corpC, Parter, Sector 3 |
| 123. | Modelier - Bistro, cocktails Bucuresti | 0799630693 | Strada Duzilor, Nr. 12, sector 2 |
| 124. | La Birlic - Terasa, Bucuresti | 0722318168; 0752318168; 0212525151 | Bulevardul Pache Protopopescu, Nr. 125, sector 2 |
| 125. | Oktoberfest Pub - Bucuresti | 0724333233 | Popa Nan, Nr. 95, Sector 3, Bucuresti |
| 126. | King Rolls - Fast Food Bucuresti | 0747887206 | Calea Vitan, Nr. 17A, sector 3 |
| 127. | Queen Events - Salon evenimente | 0723154564; 0724605209 | Splaiul Unirii, Nr. 773-777, Sector 3 |
| 128. | Restaurant Grill Verdetei 5 - Restaurant cu preparate la gratar, Bucuresti | 0766411338 | Strada Verdetei, nr. 5, sector 3 |
| 129. | Benjamins Restaurant - Nunti, botezuri, evenimente, Bucuresti | 0724248428 | Sos.Vitan-Barzesti, Nr. 5, Sector 4, Bucuresti |
| 130. | Nabu - Bar Bucuresti | 0787407043 | Pache Protopopescu, Nr. 97, sector 2 |
| 131. | Belli Siciliani - Restaurant autentic sicilian, Bucuresti | 0799090601 | Str. Matasari, Nr. 47, sevtor 2, |
| 132. | Bistro HB - Restaurant Bucuresti | 0735011736; 0735011735; 0735011737 | Strada Matasari, Nr. 49 Sector2 |
| 133. | Din Fu - Restaurant chinezesc Bucuresti | 0729313338; 0213260127 | Str. Alexandru Moruzzi, Nr. 76A, Sector 3 |
| 134. | Burger Peter - Restaurant cu burgeri Bucuresti | 0799981031 | Strada Popa Nan, Nr. 48, sector 2 |
| 135. | Naser - Restaurant specific libanez Bucuresti | 0799980001; 0799980002; 0213135060 | Str. Fluierului, Nr. 18, sector 2 (colt cu Str. Matasari, in spatele PRO TV) |
| 136. | Sale Dolce, Restaurant - Bucuresti | 0736858430; 0735123687 | Matei Voievod, Nr. 20, Sector 2, Bucuresti |
| 137. | La Machedoni - Restaurant cu specific traditional romanesc si american | 0721512236 | Anastasie Panu, nr. 10, sector 3 |
| 138. | Cuptorul cu Lemne, Pizza - Bucuresti | 021.9363; 0212524493; (021) 9363 - tasta 0 | Bd. Pache Protopopescu, Nr. 63, Sector 2, Bucuresti |
| 139. | Cuptorul cu Lemne - Restaurant pizzerie Bucuresti | 0219363 | Bd. Pache Protopopescu, Nr 65, sector 2 |
| 140. | Fire House Restaurant | 0790409234 | Drumul Gura Crivatului, nr. 80, Sector 3, Bucharest |
| 141. | Sweet Sophie - Cofetarie | 0748309063 | Strada Popa Nan, Nr. 22, sector 2 |
| 142. | Paque Bistro - Restaurant cu bar, Bucuresti | 0722330607 | Bulevardul Pache Protopopescu, nr.60, sector 2 |
| 143. | Pizza PPH - Pizza si catering, Bucuresti | 0319441 | Str. Lirei, Nr. 13, sector 2 |
| 144. | La Giuggiola - Gelateria artizanala italiana Bucuresti | 0770107183 | Bulevardul Pache Protopopescu, Nr. 57, Sector 2 |
| 145. | Cofetaria Madlene - Bucuresti | 0753223222 | Str. Traian, Nr.103, sector 2 |
| 146. | Noua - Restaurant cu specific romanesc, Bucuresti | 0217943294 | Strada Popa Nan, Nr. 7, sector 2 |
| 147. | Vanilla, Cofetarie - Bucuresti | 0733058058 | Mihai Bravu, Nr. 47, Parter, Sector 2, Bucuresti |
| 148. | Trattoria Della Nonna - Restaurant cu specific italian, Bucuresti | 0771697503 | Strada Popa Nan, Nr. 5, sector 2 |
| 149. | Koffeev - Cafenea, Bucuresti | 0767195222 | Bulevardul Unirii, Nr. 57, sector 3 |
| 150. | No10 - Restaurant cu specific italian | 0741210003 | Strada Austrului, Nr. 10, sector 2 |
| 151. | Politica si Delicateturi Bucuresti - Restaurant cu specific romanesc | 0785516681 | Str. Prof. Dr. Mihail Georgescu, Nr. 24, sector 2 |
| 152. | Beraria Centrala - Restaurant Bucuresti | 0740959311 | Strada Nerva Traian, Nr. 2, Sector 3 |
| 153. | Alouette - Restaurant cu specific international, Bucuresti | 0746339793 | Splaiul Unirii, Nr. 168, sector 4, |
| 154. | Comics Club - Stand Up, Bucuresti | 0741426426 | Str. Nerva Traian, Numarul 4. sector 3 |
| 155. | Laur Express Food - Restaurant fast-food, Bucuresti | 0732455089 | Bulevardul Ferdinand I, Nr. 60, sector 2 |
| 156. | Old Mike Pub si Restaurant - Bucuresti | 0787366166 | Morilor, Nr. 46 Sector 3, Bucuresti |
| 157. | MagiCake - Atelier de dulciuri artizanale, Bucuresti | 0772072072 | Strada Alexandru Moruzzi, Nr. 4A, sector 3 |
| 158. | SwitchEat - Restaurant cu burgeri Bucuresti | 0726023881 | Strada Horei, Nr 34, sector 2 ( la doi pasi de Foisorul de Foc) |
| 159. | Chong Qing - Restaurant cu specific chinezesc, Bucuresti | 0212525095; 0731383952 | B-dul Pache Protopopescu, Nr.28, sector 2 |
| 160. | Green Tea Ceainarie - Bucuresti | 0213209396; 0749090202 | Dr. Burghelea, Nr. 24, Sector 2, Bucuresti |
| 161. | Hop Garden - Restaurant cu preparate la gratar, Bucuresti | 0770448443 | Splaiul Unirii, Nr. 225, sector 3 |
| 162. | Coftale Coffee Shop - Cafenea, Bucuresti | 0746420874 | Strada Profesor Stefan Mihaileanu, Nr.42, sector 2 |
| 163. | Anira - Cofetarie Ilfov | 0212555961;0729964457 | Str. Prof. Dr. V. Dumitrescu, Nr. 90 Comuna Dobroesti, judetul Ilfov |
| 164. | Chaya TeaHouse - Ceainarie Bucuresti | 0755331000 | Strada Radu Ceaus, Nr. 7, sector 3 |
| 165. | Casa Veche - Restaurant, Ramnicu Valcea | 0747875045 ; 0748702238; 0350418155 | Stirbei Voda, Nr.162, Ramnicu Valcea, judetul Vilcea |
| 166. | Efes - Restaurant cu specific turcesc, Bucuresti | 0737018590 | Bulevardul Nerva Traian, Nr. 17 - 19, sector 3 |
| 167. | Karishma, Restaurant indian - Bucuresti | 0212525157; 0737519953 | Iancu Capitanu, Nr. 36, Sector 2, Bucuresti |
| 168. | Maroon - Maroon Restaurant Cafe | 0742420000; 0764900000 | Bulevardul Unirii, Nr. 47 C, Sector 3 |
| 169. | Ubuntu Coffee - Terasa, Bucuresti | 0758635771 | Splaiul Unirii, Nr. 195, sector 3 |
| 170. | Mazzaj Cafe - Restaurant cu specific libanez, Bucuresti | 0757292398 | Splaiul Unirii, Nr. 162, sector 4 |
| 171. | Borgo Stagioni - Restaurant Bucuresti | 0732163287; 0722220223 | Calea Calarasi, Nr. 78, Sector 3 |
| 172. | Noeme - Restaurant Bucuresti | 0721490270 | Anton Pann, Nr. 29, sector 3 |
| 173. | Hashtag Pub - Bucuresti | 0771555444 | Soseaua Mihai Bravu, Nr 32, sector 2 |
| 174. | Urban Bistro - Restaurant cu fripturi, Bucuresti | 0769918510 | Strada Piata Sfantu Stefan, Nr 6, sector 2 |
| 175. | Krisperie - Restaurant fast-food, Bucuresti | 0762888844 | Strada Doamna Ghica, Nr. 235, sector 2 |
| 176. | Restaurant La Teu - Bucuresti | 0723642022 | Strada Titu Maiorescu, Nr.18, sector 2 |
| 177. | Berestroika - Beer Revolution - Bucuresti | 0722560300; 0721100000; 0733200000 | Aleea Cauzasi, Nr. 57, Sector 2, Bucuresti |
| 178. | Banjo Jack - Restaurant cu burgeri, Bucuresti | 0770653341 | Strada Iancu Capitanu, Nr 26, sector 2 |
| 179. | El Torito, Restaurant - Bucuresti | 0212526688; 0728176059 | Iancu Capitanu , Nr. 30, Sector 2, Bucuresti |
| 180. | La Nenea Iancu - Restaurant cu specific romanesc, Bucuresti | 0745140786 | Str. Romulus, nr. 55, sector 3 |
| 181. | Le Boutique Food Concept Store - Bucuresti | 0722538274; 0314380044 | Str. Sfantul Stefan, Nr. 13, sector 2 |
| 182. | Posh Birt Select - Pub, Bucuresti | 0724004376 | Strada Plantelor, Nr. 26, sector 2 |
| 183. | Terasa Florilor - Restaurant cu terasa, Bucuresti | 0755097931 | Str. Ion Maiorescu, nr. 42, sector 2 |
| 184. | Tarab - Restaurant cu specific libanez, Bucuresti | 0774411111 | Strada Nerva Traian, Sector 3 |
| 185. | GinOteca - Bar, Bucuresti | 0751446446 | Strada Plantelor, Nr. 25, sector 2 |
| 186. | Bragageria Bogdania - Bistro, Bucuresti | 0787877985 | Str. Olari, Nr. 20, Sector 2 |
| 187. | Bistro Cafe Carbon 14 - Bucuresti | 0790408777 | Str. Dimitrie Racovita, Nr. 18, Sector 2 |
| 188. | Della Casa Pizza - Bucuresti | 0721312666; 0746577383; 0768720228 | Sos. Gherase, Nr. 96, (Zona Doamna Ghica) Sector 2, Bucuresti |
| 189. | Quartier - Restaurant, Bucuresti | 0758222244 | Bd. Mircea Voda, Nr. 43, sector 3 |
| 190. | Sardin - Restaurant cu specific italian, Bucuresti | 0729520111 | Bulevardul Mircea Voda, Nr. 39H sector 3, Bucuresti |
| 191. | Trofic - Restaurant pentru mic dejun si brunch | 0751276600 | Bd. Mircea Voda, nr. 52, sector 3 |
| 192. | Gradina Olari - Terasa, Bucuresti | 0770147410 | Strada Olari, nr.8, Sector 2 |
| 193. | Tarta Ta - Delicii traditionale, Bucuresti | 0771522117 | Bulevardul Mircea Voda, Nr. 52, sector 3 |
| 194. | Time Out Cafe - Bar & Cafenea Bucuresti | 0744644400 | Strada Olari, Nr. 7, sector 2 , |
| 195. | Madame B - Tea & Pancake House, Bucuresti | 0746030670 | Splaiul Unirii, nr.49,sector 3, |
| 196. | Prajituri de Casa - Cofetarie Bucuresti | 0751135153 | Calea Mosilor, Nr. 225, sector 2 |
| 197. | Volare - Pizzerie, Bucuresti | 0730622600 | Calea Vacaresti, Nr.203B, sector 4 |
| 198. | Fatafit - Restaurant cu specific libanez, Bucuresti | 0760445555 | Calea Mosilor, Nr. 225, Sector 2 |
| 199. | Mantuleasa 40 - Restaurant Bucuresti | 0754045450; 0751133141 | Str. Mantuleasa, Nr. 40, sector 2 |
| 200. | Sfeir Lebanese Cuisine - Bar & Grill | 0722311805 | Mircea Voda, Nr. 36, sector 3 |
| 201. | Trattoria Adagio - Restaurant cu specific italian Bucuresti | 0311061067; 0751218482 | Bd. Mircea Voda, Nr. 34, sector 3 |
| 202. | Restaurant Burebista Traditional - Bucuresti | 0755041484; 0212109704 | Calea Mosilor, Nr 195, sector 2 |
| 203. | Sarazin - Carol Fast food Bucuresti | 0787625505 | Bulevardul Carol I, Nr. 66, Sector 2, |
| 204. | Cucina di casa - Pizzerie, Bucuresti | 0735868318 | Calea Vacaresti, Nr. 230, sector 4 |
| 205. | Sare si Piper - Restaurant cu specific italian, Bucuresti | 0744663451 | Str. Viorele, nr. 26, zona Timpuri Noi, sector 4, Bucuresti |
| 206. | Hatz Burger Studio - Restaurant cu burgeri | 0770920018 | Soseaua Stefan cel Mare, Nr. 240, Bl. 59A, Sector 2 |
| 207. | Casa Jienilor, Restaurant - Bucuresti | 0212121951; 0722916111 | Fainari, Nr. 5, Sector 2, Bucuresti |
| 208. | TAP Pizza - Pizzerie, Ilfov | 0771382184 | Strada Doinei, 48, Sat Fundeni, Comuna Dobroesti, judetul Ilfov |
| 209. | Casa Jienilor, Restaurant - Bucuresti | 0212121951; 0722916111; Fax 0212121951 | Fainari, N. 5, Sector 2, Bucuresti |
| 210. | Casa Jienilor Fainari, Restaurant - Bucuresti | 0212121951; 0735994994 | Fainari, Nr. 5, Sector 2, Bucuresti |
| 211. | Tip Top, Cofetarii - Bucuresti | 0212422414 | Soseaua Colentina, Nr. 2, Sector 2 (magazinul Bucur-Obor), Bucuresti |
| 212. | Casa Brancoveanu Restaurant - Bucuresti | 0724640000; 0314245890; 0762643010 | Caramidarii de Jos, Nr.14, Sector 5, Bucuresti |
| 213. | Contesa, Restaurant - Bucuresti | 0731831891; 0722244214; 0213317171 | Sibiel, Nr. 5, sector 4, Bucuresti |
| 214. | Blunch Bistro - Restaurant, Bucuresti | 0736898990 | Mihai Eminescu, Nr.181, sector 2 |
| 215. | EXPRESS Food & Drink - Restaurant fast-food, Bucuresti | 0732669922 | Bd. CAROL I, Nr. 62, Sector 2 |
| 216. | Trattoria Soleto - Restaurant cu specific italian | 0734382419 | Soseaua Colentina, nr. 1, sector 2 |
| 217. | Willy\'s Coffee Art - Bucuresti | 0769911077 | Bulevardul Carol I, Nr 62, sector 2, |
| 218. | Simbio - Restaurant Bucuresti | 0756746246 | Str Negustori, nr. 26, sector 2 |
| 219. | Haveli, Restaurant - Bucuresti | 0212110390; 0721721640 | Episcopul Radu, Nr. 3, Sector 2, Bucuresti |
| 220. | Restaurant Karta - Bucuresti | 0744391111 | Bd. Unirii, Nr. 22, sector 3 |
| 221. | Barfly Bucuresti | 0727394131; 0721652899 | Olteni , Nr. 3, Sector 3, Bucuresti |
| 222. | Bucatarasul cel Dibaci - Restaurant cu specific romanesc, Bucuresti | 0730340436;0760966360 | Strada Olteni, Nr 3, sector 3 |
| 223. | Wicked Bar - Bucuresti | 0722615188; 0723574895 | Strada Spatarului, Nr. 4, Sector 2, Bucuresti |
| 224. | Rawyal brunch & cakes - Bucuresti | 0730777221 | Calea Mosilor, Nr 105, Sector 2 |
| 225. | La Calinescu - Restaurant cu specific romanesc, Bucuresti | 0788472725; 0213310750 | Strada Piscului, Nr. 16, sector 4 |
| 226. | Jack Pot - Bar specializat in cocktailuri, Bucuresti | 0372916947; 0770776777 | Zborului, nr. 2, sector 3 |
| 227. | Gran Gelato Italiano - Gelaterie Bucuresti | 0730057909 | Str. Radu Voda, Nr 28 A, Sector 4 |
| 228. | #Aici - Bar, Bucuresti | 0799124330 | Bulevardul Unirii, Nr 35, Sector 3, Bucuresti |
| 229. | Robescu 14 - Bar specializat in cocktailuri | 0773741922 | Strada Robescu F. Constantin, Nr. 14, sector 3 |
| 230. | Il Destino, Restaurant italian - Bucuresti | 0212103039; 0758836278; 0744318094 (Pentru evenimente) | Silvestru, Nr. 67, Sector 2, Bucuresti |
| 231. | DA Giulio - Pizzerie, Bucuresti | 0212420385 | Colentina, Nr. 23 A, sector 2 |
| 232. | Miorita Kebap - Fast food, Ilfov | 0790086089 | Strada Mioritei, Nr. 49, Pantelimon, judetul Ilfov |
| 233. | Casa Jienilor, Restaurant - Bucuresti | 0735994994; 0722916111 | Str. Fainari, nr. 5, sector 2, |
| 234. | JO Lounge - Bar, Bucuresti | 0721811995 | Bd. Unirii, sector 3 |
| 235. | Grand Kebab - Restaurant fast food, Ilfov | 0771770036 | Strada Duzilor, nr.1, Oras Pantelimon, judetul Ilfov |
| 236. | Zen Garden - Restaurant cu specific chinezesc, Bucuresti | 0745102272 | Strada Silvestru, Nr. 3, sector 2 |
| 237. | De Cartier - Restaurant de tip familial, Bucuresti | 0213305556 | Str. Viorele, Nr. 57A, sector 4 |
| 238. | Hanul Vacaresti - Restaurant fast-food, Bucuresti | 0786200300 | Strada Pridvorului, nr. 23, sector 4 |
| 239. | Pe Baricade | Radu Voda, nr. 23A, sector 4 | |
| 240. | Hanul Haiducilor, Restaurant - Bucuresti | 0213307207; 0771756566 | Pridvorului, Nr. 25 (In incinta Strandul Copiilor Vacaresti) , Sector 4, Bucuresti |
| 241. | Get Naked by Bordello - Restaurant pentru mic dejun si brunch, Bucuresti | 0748881086 | Bd. Unirii, intre Bd Dimitrie Cantemir si Bd Mircea Voda |
| 242. | Casa Ede - Restaurant & Beauty - Barber Salon Bucuresti | 0772019516 | Strada Armeneasca, Nr. 8, sector 2 |
| 243. | Zoomserie - Cofetarie Bucuresti | 0751222265 | Sf. Vineri, Nr. 23, sector 3, intersectia Coposu (Calarasilor), |
| 244. | Nicoresti, Restaurant - Bucuresti | 0212112480; 0724290550 | Toamnei, Nr. 13 (colt cu Maria Rosetti nr. 40), Sector 2, Bucuresti |
| 245. | Tabiet 41 - Restaurant, Bucuresti | 0314260278 | Strada Viorele, nr.59, sector 4 |
| 246. | Miss Ale - Bar specializat in cocktailuri | 0745089700 | Constantin F Robescu, Nr 2, sector 3 |
| 247. | Nori Sushi - Restaurant cu specific japonez, Bucuresti | 0771179714 | Splaiul Unirii, nr 6, bl B3A, etaj 7-8 |
| 248. | Cofetaria Lush - Bucuresti | 0720976019?; 0721605303 | Soseaua Stefan cel Mare, Nr. 226, bloc.44, parter, sector 2 |
| 249. | The Dock - Lounge, Bucuresti | 0743680336 | Bulevardul Unirii, nr. 30, sector 3 |
| 250. | Human Coffee - Cafenea Bucuresti | 0734744429 | Str. Elena Cuza, Nr. 8, Sector 4 |
| 251. | Surubelnita - Club, Bucuresti | 0768743593 | Str. Calea Mosilor, nr. 100, sector 2 |
| 252. | Suento - Restaurant cu specific european modern, Bucuresti | 0787605362 | Strada Toamnei, Nr. 101, sector 2 |
| 253. | Moon Brasserie - Restaurant Bucuresti | 0723093170 | Bulevardul Unirii, Nr. 33, sector 3 |
| 254. | Zeppelin Pub - Bucuresti | 0722170024 | Strada Marin Serghiescu, Nr. 7, sector 2 |
| 255. | Manasia Hub - Bar Bucuresti | 0736760063 | Str. Stelea Spatarul, Nr. 13, sector 3 |
| 256. | Ciao Niki - Restaurant cu specific italian, Bucuresti | 0734356217;0756044805 | Strada Bocsa, Nr 4, sector 2 |
| 257. | Hanul Hangitei, Restaurant - Bucuresti | 0744827323; 0758043355 | Bd. Marasesti, Nr.70-72, Sector 4 , Bucuresti |
| 258. | Thalia - Restaurant cu bucatarie internationala | 0219993 | Strada Cuza Voda, Nr. 147, sector 4 |
| 259. | Fabrica de mancare - Restaurant cu supe si ciorbe, Bucuresti | 0744123123 | B-dul Unirii, nr. 31, sector 3 |
| 260. | Cofetaria Ina - Bucuresti | 0723300213 | Str. C-tin Radulescu Motru, Nr. 6, Sector 4 |
| 261. | Kentucky Fried Chicken KFC, Fast Food - Bucuresti | 0757015948; 0212039030; 0213120023 | Soseaua Oltenitei, Nr.85, Sector 4, Bucuresti |
| 262. | The Clique Bistro - Restaurant cu specific international, Bucuresti | 0784901000 | Splaiul Unirii, sector 3 |
| 263. | Papila Kitchen - Restaurant, Bucuresti | 0753087799 | Strada Sfintilor, Nr 6, sector 2 |
| 264. | Cofetaria Luiziana | 0720738498 | Str. Nicolae Balcescu, Nr. 29, Pantelimon, judetul Ilfov |
| 265. | Level Up - Restaurant raw vegan, Bucuresti | 0721085582 | Str Sf. Vineri, Nr 10, sector 3 |
| 266. | Luna Cafe & Bistro - Bucuresti | 0771609431; 0771211246 | Str. Viitorului, Nr. 32, sector 2, |
| 267. | Armand, Cofetarie - Bucuresti | 0310051187; 0741276263 | Armand Calinescu , Nr. 25, Sector 2, Bucuresti |
| 268. | Bomb Doner Kebap - Restaurant fast-food, Bucuresti | 0727771549 | Strada Lizeanu, Nr. 5, sector 2 |
| 269. | FoodVibe - Serviciu de livrare mancare | 0371333222 | Strada Sperantei, nr. 7, sector 2 |
| 270. | Pizza Bar - Pizzerie, Bucuresti | 0746013623 | Lanariei, nr. 5, sector 4 |
| 271. | Nice Touch - Restaurant cu meniu international, Bucuresti | 0771568361 | Strada Sperantei, nr.7, sector 2 |
| 272. | Sweet by MarVio - Cofetarie Bucuresti | 0212105291 | Soseaua Stefan cel Mare, Nr 31, sector 2 |
| 273. | Margineni, Restaurant - Bucuresti | 0733986867; 0212405631; 0720679350 | Sos. Fundeni , Nr. 185, Sector 2, Bucuresti |
| 274. | China Town Restaurant - Bucuresti | 0726130138; 0788671161; Tel/Fax:0212120239 | Viitorului, Nr. 98, Sector 2, Bucuresti |
| 275. | La Mosu - Restaurant Bucuresti | 0765523208; 0314382508 | Soseaua Oltenitei, Nr. 197, Sector 4 |
| 276. | Pizza Gotti - Pizzerie -Pantelimon | 0723439445 | Str. Sfantul Gheorghe, Nr. 11, Pantelimon, judetul Ilfov |
| 277. | Kuma Bar - Bucuresti | 0766440936 | Strada Coltei, Nr. 50, sector 3 |
| 278. | Vis a Vis - Restaurant Bucuresti | 0722102223 | Bd. I. C. Bratianu, |
| 279. | Fast Food Eminescu - Bucuresti | 0723161166 | Str. Mihai Eminescu, nr 137, sector 2 |
| 280. | Gambino\'s Pizza - Bucuresti | 0731707070; 0725271471; 0310050209 | Vasile Lascar, Nr.24, Sector 2, Bucuresti |
| 281. | Bistro Fum de Vorbe - Restaurant Bucuresti | 0748628830; 0723686292 | Vasile Lascar, Nr. 24, Sectorul 2 |
| 282. | DolciConi - Gelaterie Bucuresti | 0753762549 | Vasile Lascar, Nr 26-28, sector 2 |
| 283. | Legere - Bar, Bucuresti | 0730534373 | Piata Rosetti, nr 5, sector 2 |
| 284. | SanThe Fitoceainarie - Ceainarie, Bucuresti | 0730370290 | Lipscani, nr 104, sector 3, |
| 285. | Time to Lunch | 0763200900 | Strada Patriei, Nr 4, sector 3 |
| 286. | BEAT bar umanist - Bar, Bucuresti | 0720854187 | Vasile Lascar, Nr. 29, sector 2 |
| 287. | NoName, Restaurant - Bucuresti | 0761280642 (Mioara); 0732381801 (Adrian) | Mariuca, Nr 1A,Sector 4, Bucuresti |
| 288. | Buoni e Bravi - Pizzerie, Bucuresti | 0735215224 | Piata C. A. Rosetti, nr. 3, sector 2 |
| 289. | Athos Pizza & Bistro - Livrare non stop, Bucuresti | 0213344287; 0728276192 | Sos Oltenitei, Nr. 250 Berceni Ira |
| 290. | NoName, Restaurant si Terasa - Bucuresti | 0761280642 | Mariuca, Nr 1A,Sector 4, Bucuresti |
| 291. | Casual Pub - Restaurant Bucuresti | 0770841212 | Bd. Dacia, Nr. 104, Sector 2 |
| 292. | Carina Sweets - Cofetarie Bucuresti | 0771261485 | Sos Oltenitei, Nr. 230, Sector 4 |
| 293. | Bouzouki - Restaurant specific grecesc, Bucuresti | 0787528003 | Bulevardul Sincai Gheorghe, Nr. 3, sector 4 |
| 294. | McDonald\'s | 0372701091 | Piata Unirii 1, Unirea Shopping Center, Bucuresti |
| 295. | Horoscop, Restaurant, Pizzerie - Bucuresti | 0767562215 | Bd.Dimitrie Cantemir, Nr 2, Sector 4, Bucuresti |
| 296. | Patiseria Tineretului - Bucuresti | 0761116622 | Bd. Gheorghe Sincai, Nr 2A, sector 4 |
| 297. | Ivy - Cafenea, Bucuresti | 0755210748 | Bulevardul Carol I, Nr. 23, sector 2 |
| 298. | Kane - Noua bucatarie romaneasca fina | 0314100016 | Str. Dianei, nr. 9 (Piata Rosetti), sector 2 |
| 299. | Aria Gourmet Burger - Fast food Bucuresti | 0773778860; 0773778860 | Strada Slanic, Nr. 2, Sector 3 |
| 300. | Teos - Restaurant Bucuresti | 0749562843 | Soseaua Cernica, Nr. 9, Pantelimon, judetul Ilfov |
| 301. | Lloyds Pub - Bucuresti | 0723133786 | Str. Coltei, Nr. 16, Sector 3 |
| 302. | Unico Vero - Restaurant cu specific italian, Bucuresti | 0212123338;0758110265 | Strada Viitorului, Nr. 8, sector 2 |
| 303. | Calderon 18 - Restaurant cu terasa, Bucuresti | 0731886789 | Str. Jean Louis Calderon, Nr.18, sector 2, |
| 304. | Borsalino - Pizzerie Bucuresti | 0729954911; 0729954912 | Bulevardul Ion C. Bratianu, Nr. 44, Sector 3 |
| 305. | Emozia coffee manifesto - Cafenea, Bucuresti | 0742023590;0726201527 | Strada Halelor, nr. 17, sector 3 |
| 306. | Sugarography - Atelier de dulciuri Bucuresti | Bucuresti, | |
| 307. | Cofetaria Macarons - Bucuresti | 0771425575 | Bucuresti, |
| 308. | Naive - Restaurant cu bar, Bucuresti | 0725550333 | Bd. I.C. Bratianu, Nr. 36, sector 3 |
| 309. | La 100 de Beri - Bar specializat in bere, Bucuresti | 0733282598 | Str. Gabroveni, Nr.61, sector 3 |
| 310. | Latin Pizza - Pizzerie, Bucuresti | 0751896358 | Bulevardul Ion C. Bratianu, Nr. 34, sector 3 |
| 311. | Joy House - Restaurant Bucuresti | 0730443232 | Str. Teiul Doamnei, Nr. 9A, Sector 2 |
| 312. | Industry Wine Bar- Bar cu vinuri, Bucuresti | 0722777222 | str. Sepcari, Nr. 19, sector 3 |
| 313. | Tropicana, Restaurant - Bucuresti | 0724614723 (Niculae Adrian); 0724571502 (Niculae Valentina) | Grigore Ionescu, Nr 94, Sector 2, Bucuresti |
| 314. | Lacrimi si Sfinti, Restaurant - Bucuresti | 0725558286; 0372773999 | Sepcari, Nr.16 (Centrul Vechi) Sector 3, Bucuresti |
| 315. | Botanic - Fine dining, Bucuresti | 0721261262 | Calea Piscului, sector 4 |
| 316. | Hanul lui Manuc, Restaurant si Cafenea - Bucuresti | 0213131411; 0769075844; 0730188653 | Franceza, Nr. 62-64, Sector 3 , Bucuresti |
| 317. | The Temple Social Pub - Bucuresti | 0723469118 | Bd. Marasesti, Nr. 71-73 sector 4 |
| 318. | L\'Amande - Deserturi fara gluten, Bucuresti | 0744639549 | Str. Lanariei, Nr. 93-95, sector 4 |
| 319. | Hanul lui Manuc, Restaurant - Bucuresti | 0213131411; 0769075844; 0730188653 | Franceza, Nr. 62-64, Sector 3, Bucuresti |
| 320. | Mojo Music Club - Bucuresti | 0737220220 | Gabroveni, Nr.14, Sector 3, Bucuresti |
| 321. | Casa Pizza - Pizzerie, Bucuresti | 0746544815; 0720923622 | Str. Mariuca, nr. 23A, sector 4 |
| 322. | Mica Elvetie Restaurant - Bucuresti | 0212245017 | Franceza, Nr. 60-62, Sector 3, Bucuresti |
| 323. | Hanul lui Manuc, Restaurant - Bucuresti | 0730188653; 0213122811; 0769075844 | Franceza , Nr. 62-64, Sector 3 , Bucuresti |
| 324. | Naser 2 - Restaurant traditional libanez Bucuresti | 0799997111 | Str. Maica Domnului, Nr. 5B, Sector 2 |
| 325. | Mao Pub - Bucuresti | 0771305995 | Str. Lipscani, Nr. 69, Sector 3 |
| 326. | Extra Time - Pub Bucuresti | 0732166605 | Strada Lipscani, Nr. 82A, sector 3 |
| 327. | Gelato D\'Amore - Magazin de inghetata Bucuresti | 0771727627 | Strada Maria Rosetti, Nr. 13, Sector 2 |
| 328. | Beautyfood - Bistro, Bucuresti | 0759030609 | Jean Louis Calderon, Nr. 34, sector 2 |
| 329. | The Urbanist - Bar specializat in cocktailuri, Bucuresti | 0741392558 | Strada Caldarari, Nr. 3, sector 3 |
| 330. | Thors Hammer - Bar Bucuresti | 0729176724 | Str Blanari, Nr. 12, sector 3 |
| 331. | Cald si Bun, Catering - Bucuresti | 0212339457; 0737526215 | Hatmanul Arbore, Nr. 11, Sector 1, Bucuresti |
| 332. | Bazaar - Restaurant Bucuresti | 0721999999 | Strada Covaci, Nr. 10, sector 3 |
| 333. | 1974 Niste Domni si Fii - Bar Restaurant Bucuresti | 0721551099; 0723629306 | Covaci, Nr. 7, Sector 3, Bucuresti |
| 334. | Leonidas Cofetarie - Bucuresti | 0740014695; 0213141377 | Doamnei, Nr. 27 , Sector 3, Bucuresti |
| 335. | OPUS TNB - Bar specializat in cocktailuri | 0771595407 | Bulevardul Nicolae Balcescu, Nr. 2, sector 1 |
| 336. | Angelo Grasso - Restaurant cu specific italian, Bucuresti | 0739955555 | Strada Tudor Arghezi, 12-16, sector 2 |
| 337. | Imperial Turkish Cuisine & Steakhouse- Restaurant Bucuresti | 0720102222 | Strada Jean Louis Calderon, Nr. 33, Sector 2 |
| 338. | Agapi Bistro - Restaurant cu specific international, Popesti-Leordeni | 0721462102 | Sos. Oltenitei, Nr. 45, Popesti-Leordeni, , judetul Ilfov |
| 339. | Bodega La Mahala - Restaurant Bucuresti | 0732166606 | Covaci, Nr. 8, Sector 3 |
| 340. | Mica Elvetie Restaurant | 0212245017 | Franceza, Nr. 60-62, Sector 3, Bucuresti |
| 341. | Fire Club Pub - Bucuresti | 0732166604 | Covaci, Nr. 7, Sector 3, Bucuresti |
| 342. | Atelierul de dulciuri - Torturi de casa, Ilfov | 0761622331 | Sos.Oltenitei, nr 24, Popesti Leordeni, judetul Ilfov |
| 343. | Argentin - Restaurant Bucuresti | 0774462430; 0774462431 | Strada Blanari, Nr. 11-15, Sector 3 |
| 344. | Pizzeria La Coco - Bucuresti | 0731744444 | Str. Gabroveni, Nr. 31, Sector 3 |
| 345. | Private Hell - Club, Bucuresti | 0757508336 | Str. Soarelui, nr. 5, Sector 3 |
| 346. | Bere si Bere - Pub, bere craft si muzica rock | 0723280040 | Str. Gabroveni, Nr. 4, sector 3 |
| 347. | Osteria Zucca - Restaurant cu specific italian, Bucuresti | 0770287979; 0314206814 | Jean-Louis Calderon, Nr. 41, Sector 2, Bucuresti |
| 348. | La Cena - Restaurant cu specific italian, Bucuresti | 0212116717;0730210014 | Maria Rosetti, Nr. 1, sector 2 |
| 349. | La Paraul Rece, Restaurant - Popesti Leordeni | 0731003133; 0731003132 | Soseaua Oltenitei , Nr.26A, Popesti-Leordeni , judetul Ilfov |
| vezi mai multe | |||
| 1. | TITAN | Tel. 0732.995.515 | Str. Liviu Rebreanu nr. 6A, sector 3, |
| 2. | BILLA | Tel. 021.345.27.51; Fax 021.345.26.46 | Str. Postavarul 24-52, sector 3 |
| 3. | Penny Market | 0800.110.111 | Bd.1 Decembrie 1918, nr. 33, sector 3, |
| 4. | IRIS SHOPPING CENTER | 0314.38.29.70 Cine Grand | Bd. 1 Decembrie 1918, nr. 33A, sector 3, Bucuresti |
| 5. | IRIS SHOPPING CENTER | 021.345.01.29 | Bd. 1 Decembrie 1918, nr. 33A, sector 3, Bucuresti |
| 6. | AUCHAN | Tel. 021.408.01.07; 021.408.01.08 | Bd. 1 Decembrie 1918 nr. 33A, sector 3, |
| 7. | CORA | Tel. 021.205.35.00 | Sos. Vergului, nr. 20, sector 2, |
| 8. | Wini Imobili | Tel.021.307.60.50; 0742.144.034, 0755.068.669; Fax.021.307.60.51 | Pierre de Coubertin, nr. 3-5, sector 2, Bucuresti |
| 9. | MEGA MALL | Str. Pierre de Coubertin, nr. 3-5, langa Arena Nationala, | |
| 10. | KIKA | 0372330501; 0372330630; 0372330637 | Bulevardul Theodor Pallady, 51 D ,Sector 3, Bucuresti |
| 11. | CONCORD 2002 | Tel/Fax 323.90.87 | Bd. Decebal nr. 7, sector 3 |
| 12. | FOR YOU | Tel. 0745.094.433 | Bd. Decebal nr. 24, sector 3 |
| 13. | AUCHAN | Tel. 0750.014.150 | Calea Vitan nr. 236, sector 3, |
| 14. | BUCURESTI MALL | Tel. 021.327.67.00; 021.327.61.00; 021.327.61.02; Fax 021.320.92.09 | Calea Vitan nr. 55-59, sector 3, |
| 15. | SUPERMARKET MAICOM | Tel. 0722.322.573; Fax 321.78.36 | Str. Vitan nr. 104, sector 3 |
| 16. | GMARKET | Bucuresti | |
| 17. | Ava Center | 0769240700; 0213201626; 0730096166 | Mihai Bravu, Nr. 540-564, Sector 3, Bucuresti |
| 18. | FONZI SUPERMARKET | Tel. 0729.005.260; Tel/Fax 021.323.67.52 | Str. Nerva Traian, nr. 17-19, sector 3, |
| 19. | Vitantis Shopping Center Bucuresti - Magazine retail Praktiker, Diego si Casa Rusu | 0213104513; Fax: 0213150813 | Soseaua Vitan-Barzesti, nr. 7A, sector 4, Bucuresti |
| 20. | BUCUR OBOR | 021.252.59.34; 021.252.59.35; 021.252.63.82 | Sos.Colentina, nr. 2, sector 2 , Bucuresti |
| 21. | Penny Market XXL | 0800.110.111 | Sos.Fundeni, nr. 38-40, sector 2, Bucuresti |
| 22. | CARREFOUR | Tel. 0374.145.800; Fax 021.307.66.96 | Bd. Corneliu Coposu nr. 2, sector 3, |
| 23. | SUN PLAZA MALL | 021.233.17.45; 0720.200.582 | Calea Vacaresti, nr. 391, Piata Sudului, sector 4, Bucuresti |
| 24. | COCOR | Tel. 021.313.14.03; 021.313.92.39; 021.314.96.64; 021.314.96.65; Fax 021.313.98.48 | Bd. I.C. Bratianu nr. 29-33, sector 3, |
| 25. | DENISA MARKET | Tel. 021.211.71.70; 0722.691.595; 0749.263.036; Fax 021.211.71.70 | Str. Rasuri nr. 1, sector 2 |
| 26. | Cocor Luxury Store | 021.312.43.10; Fax: 021.313.98.48 | Bd. I.C. Bratianu, nr. 29-33, sector 3, |
| vezi mai multe | |||


Vezi galeria
101
,102
,253
,311
,330
,335