Metrou Piata Muncii | Apartament 4 camere | Semidecomandat | 68mp | B12221
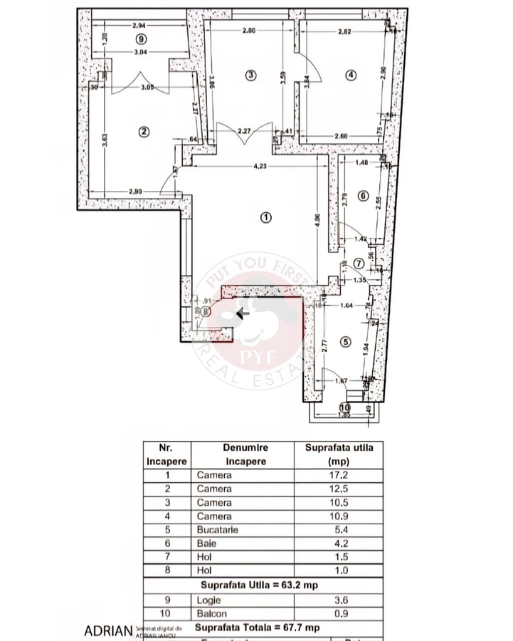
- Suprafata 63 mp
- An 1950
- Semidecomandat
- Etaj 1 din 2
Piața Muncii M1 ...
9 min.
Calculeaza distanta
Descriere anunt
Pyf010B12221 Vanzare 4 camere
Pret: 199.000 Euro
Zona: Piata Muncii, Bucuresti
Strada: Vidraru
ID oferta: Pyf010B12221
Acasa incepe cu un sentiment.......Poate fi o lumina calda intr-o dupa-amiaza linistita, un balcon cu vedere sau o bucatarie unde iti savurezi cafeaua de dimineata.
Imagineaza-ti locuinta perfecta, care reflecta personalitatea ta si raspunde nevoilor tale zilnice.
Echipa PYF REAL ESTATE te ajuta sa gasesti acel loc special pe care il poti numi acasa. Portofoliul nostru cuprinde proprietati atent selectate, ideale pentru tine si familia ta.
Localizare:
Piata Muncii - (Metrou Piata Muncii), una dintre cele mai cautate zone din Bucuresti, cu acces rapid la mijloace de transport in comun (metrou, autobuz, zona comerciala, banca, supermarket, cinema, fastfood, benzinarie, restaurant/pub), scoli, magazine, parcuri si centre comerciale.
Detalii proprietate:
Tip locuinta: Apartamente
Tip operatiune: Vanzare
Numar camere: 4 camere (3 dormitoare)
Suprafata utila: 63 mp
Suprafata totala: 68 mp
Etaj: 1 / 2
Compartimentare: Semidecomandat
Confort: 2
An constructie: 1950
An renovare: 2017
Tip imobil: Vila
Incalzire: Centrala Proprie
Dotari: calorifere: da; ferestre: pvc; incalzire: centrala proprie; pereti: faianta, lavabil; podele: parchet, gresie; usa intrare: metal
Bai: 1
Balcoane: 2 (5 mp)
Bucatarii: 1 (da, mobilata, utilata)
Finisaje: calorifere: da; ferestre: pvc; incalzire: centrala proprie; pereti: faianta, lavabil; podele: parchet, gresie; usa intrare: metal
Mobilare: Complet, Stare Buna
Podele: parchet, gresie | Pereti: faianta, lavabil | Ferestre: pvc
Stare generala: Stare Buna
Usa intrare: metal
Vedere: mixta
Destinatie: locuinta, birou
Acces rapid la mijloace de transport in comun: metrou: Piata Muncii (3min-210m); autobuze: 640, N109 (2min-150m), 104 (3min-190m); tramvaie: 10 (2min-150m), 1 (5min-300m).
In apropiere: Supermarketuri: Mega Image (3min-230m), Profi Go (10min-750m); scoli: Scoala Gimnaziala Nr. 85 (13min-900m), Scoala Serban (14min-1km); UNATC (13min-1km); Gradinita Pick Me Kindergarten (11min-800m); Farmacia Crisia Farm (8min-500m); Parcul National (12min-850m).
Parcare: posibilitate in curte (1 locuri)
Apartamente pe palier: 1
Siguranta: interfon - interfon, lift - lift
Izolatii: exterior, interior
Agent responsabil: Malina R.
Important de stiut:
Vizionarile se realizeaza in baza unui contract de prestari servicii, semnat intre client si agentie. Este necesara prezentarea unui act de identitate. Neprezentarea acestuia poate duce la anularea sau neprogramarea vizionarii.
Se percepe comision din partea cumparatorului conform politicii Pyf Real Estate
Din cauza numarului mare de oferte si a fluctuatiei pietei imobiliare informatiile din oferta pot suferi modificari atat in sens apreciativ, cat si in sens depreciativ, de asemenea, este posibil sa nu mai fie de actualitate la momentul prezentarii. Pentru clarificarea acestor aspecte va rugam solicitati actualizarea ofertei/ ofertelor dorite!
Alege PYF REAL ESTATE - partenerul tau de incredere in imobiliare.
Transforma visul tau in realitate - contacteaza-ne acum!
Acces mijloace transport
| Statii metrou | Timp | |
|---|---|---|
![]() |
Piața Muncii M1 | 9 min. |
![]() |
Metrou Piața Iancului - Ascensor | 18 min. |
| Statii STB | Timp |
|---|---|
|
Mieilor
|
5 min. |
|
Maior Ion Coravu
104
,135
,311
,330
|
6 min. |
|
Piața Hurmuzachi
1
104
,N109
|
9 min. |
|
Piața Muncii
|
10 min. |
|
Gheorghe Petrașcu
1
135
,311
,330
,634
|
15 min. |
Obiective interes
| 1. | Robotics School - After School, ateliere de robotica Bucuresti | 0721861565 | Aleea Barajul Cucuteni, nr. 2, Bl M4A, sector 3 |
| 2. | Gradinita nr. 69 sector 3 | 0213244141; 0213240000 | Bd. Pictor Nicolae Grigorescu, nr. 14, sector 3 |
| 3. | Cresa Potcoava (Titan II) sector 3 | 0213244810; 0213244880 | Str. Pictor Gheorghe Tattarescu, nr. 10, sector 3 |
| 4. | Gradinita Nr. 191 sector 3 | 0213403046; 0213401059 | Str. Cozla, nr. 1, sector 3 |
| 5. | B-Happy Afterschool sector 3 | 0722396590 | Intr. Horbotei, nr. 12, bl. 4, parter, sector 3 |
| 6. | Gradinita Nr. 154 sector 3 | 0213400130 | Aleea Barajul Uzului, Nr. 9, sector 3 |
| 7. | Piticul Curajos - Gradinita, After School sector 3 | 0749607276; 0314373583; 0213240124 | Str. Copaceni, Nr. 64, sector 3 |
| 8. | Ghiocelul - Cresa sector 3 | 0729330319 | Bd. 1 Decembrie 1918, nr. 12-14, sector 3 |
| 9. | Neverland Afterschool Bucuresti | 0742139992 | Str. Prisaca Dornei, nr. 16, sector 3 |
| 10. | Gradinita nr. 216 sector 3 | 0213400395 | Str. Barajul Rovinari, nr. 10, sector 3 |
| 11. | Dandi Kids, Gradinita & After School - Bucuresti | 0726758303 | Str. Rasovita, Nr. 18, Sector 3, Bucuresti |
| 12. | Anna Afterschool sector 3 | 0733305865 | Aleea Calistrat Hogas, nr. 28 D-E, Sector 3 |
| 13. | Gradinita nr. 70 sector 3 | 0213400228 | Str. Lucretiu Patrascanu, nr. 12, sector 3 |
| 14. | Happy Tree - Gradinita & After School Bucuresti | 0761600082; 0763630634; 0213401308 | Aleea Calistrat Hogas, nr. 28A, sector 3, Bucuresti |
| 15. | Clubul Diandra - Gradinita si After School, Bucuresti | 0745075332 | Str. Prisaca Dornei, Nr. 2H, Sector 3, Bucuresti |
| 16. | Centrul Educational Nectarel - Afterschool Bucuresti | 0740221854 | Str. Baba Novac, nr. 17, sector 3 |
| 17. | Gradinita nr. 71 sector 3 | 0213480894 | Aleea Fuiorului, nr. 9 , sector 3 |
| 18. | Gradinita nr. 231 sector 3 | 0310699994; 0314370742 | Str. Codrii Neamtului, nr. 68, sector 3 |
| 19. | Iulia Pantazi - Centrul psihologic pentru copii Bucuresti | 0745480458; 0317304741 | Str. Cernauti, Nr.1, Sector 2, Bucuresti |
| 20. | Letitia - After school sector 3 | 0733919066; 0722882558 | Str. Baba Novac, nr. 19A,Belvedere Residence, sector 3 |
| 21. | Saga Kid - After School sector 3 | 0743266500; 0756169135 | Str. Campia Libertatii, nr. 44, sector 3, |
| 22. | Gradinita Nr. 241 (Pestisorul De Aur) sector 3 | 0213482910 | Str. Rotunda, nr. 19, Sector 3 |
| 23. | La Turn - Gradinita sector 2 | 0212751772; 0732122336 | Sos. Morarilor, Nr.1, Sector 2 |
| 24. | Maya si Prietenii - Cresa, Gradinita sector 2 | 0755359162 | Str. Herta, nr. 32A, Sector 2, |
| 25. | Madi AfterSchool sector 2 | 0757837644 | Str. Herta, nr. 32A, Sector 2 |
| 26. | Piccolo Grande - After School, loc de joaca sector 3 | 0754200258 | Intr. Patinoarului, nr. 52, Sector 3 |
| 27. | Smiley After School sector 2 | 0727401829 | Bd. Basarabia, nr. 62A, sector 2 |
| 28. | Dumbo Kids Academy - Cresa, Gradinita, Before & After School sector 3 | 0722320023 | Intr. Patinoarului, nr. 42A, sector 3 |
| 29. | A&M afterschool Bucuresti | 0723371319 | Bd. Camil Ressu, Nr. 33, bl. N4, sc. 1, ap. 4, int. 4, sector 3, |
| 30. | Gradinita Nr. 189 Malaxa Bucuresti | 0212554870 | Sos. Vergului, Nr. 12, Sector 2, Bucuresti |
| 31. | Gradinita nr. 277 Steluta sector 2 | 0212551195 | Sos. Vergului, nr. 14, Sector 2 |
| 32. | Mini Club Condor - Gradinita, Bucuresti | 0725211112; 0722368662; 0314310407 | Str. Col Iosif Albu, Nr. 80 Sector 3, Bucuresti |
| 33. | Taramul Magic Voi Reusi - After School sector 2 | 0727540913 | Bd. Chisinau, nr. 6-8, sector 2 |
| 34. | Castelul Fermecat - Gradinita, After School Bucuresti | 0745770001; 0752314458; 0765957032 | Drumul Murgului, Nr. 32, Sector 3, Bucuresti |
| 35. | Gradinita Nr. 280 sector 2 | 0212557980; 0212550205 | Str. Delfinului, nr. 4, sector 2 |
| 36. | Kids First - Gradinita Bucuresti | 0748880866; Varnavelena@gmail.com | Str. Sica Alexandrescu, nr. 20, Sector 2, |
| 37. | Gradinita nr. 3 - sector 3 | 0213464112 | Str. Plt. Nedelcu Ion, Nr. 31, sector 3 |
| 38. | BBIS Bucharest-Beirut International School | 0744309199; 0314381572 | Sos. Vergului, Nr. 14, Sector 2, Bucuresti |
| 39. | Gradinita Nr. 232 sector 3 | 0213485518 | Str. Patriotilor, nr. 3, sector 3 |
| 40. | Little Star - Gradinita, After School sector 3 | 0745531279; 0724506631 | Str. Alexandru Magatti, nr. 13 A , sector 3 |
| 41. | Ramy\'s Kids - After School sector 3 | 0723523721 | Bd. Nicolae Grigorescu, nr. 46, sector 3 |
| 42. | Land of Kids Afterschool sector 2 | 0766831831; 0726733314 | Str. Constantin Tanase, Nr. 22, Sector 2 |
| 43. | Funny Clown, Gradinita & After School - Bucuresti | 0740806356 | Str. Ruschita, Nr. 41, Sector 2, Bucuresti |
| 44. | City Kids - Gradinita si afterschool Bucuresti | 0756862825 | Str. Ruschita, Nr. 41, sector 2 |
| 45. | Kids\' World Nursery School - Gradinita Bucuresti | 0771242641 | Bd. Basarabia, Nr. 2, Sector 3 |
| 46. | Centrul Educational Fecioara Maria - Cresa, Gradinita Bucuresti | 0799741474; 0770574645 | Str. Eufrosina Popescu, Nr. 30, Sector 3, Bucuresti |
| 47. | Ingerul Albastru - Centrul educational pentru copii, Bucuresti | 0727868575 | Str. Serg Cuibaru Ion, Nr. 44, sector 3 |
| 48. | Gradinita Nr. 196 sector 3 | 0213450636 | Str. Plutonier Ionescu Petre, nr. 76, sector 3 |
| 49. | Gradinita nr. 188 Castel sector 2 | 0212504180; 0213179946 | Bd. Pierre de Coubertin, nr. 1, sector 2 |
| 50. | Smart Steps - Gradinita , After School sector 3 | 0733965133 | Str. Dristorului, nr. 91-95, bl. E, Parter, sector 3 |
| 51. | Lill put - Centru de educatie nonformala pentru prescolari, Bucuresti | 0722647423 | Str. Sarafinesti, Nr. 29, sector 2 |
| 52. | Gradinita nr. 23 sector 2 | 0216275013; 0212550840 | Str. Soldat Gheorghe Raduta, nr. 1, sector 2 |
| 53. | Little Oaks Academy - Gradinita sector 3 | 0766572126; 0766572127 | Sos. Mihai Bravu, Sos. Mihai Bravu nr. 286, sector 3 |
| 54. | Smart Children - After School Bucuresti | 0774613480; 0760757410 | Str. Prevederii, nr. 6, bl. D2, Ap. 1, Interfon 1, Sector 3, |
| 55. | Centrul Educational BUBU | 0735531156 | Sos. Pantelimon, Nr. 355, sector 2 |
| 56. | Zambete Colorate - Gradinita Ilfov | 0749262383 | Sos. Dobroesti, Nr. 30, judetul Ilfov |
| 57. | Gradinita Floare de colt (nr. 64) sector 3 | 0213464899 | Str. Schitului, nr. 1D, sector 3 |
| 58. | Alice si Taramul Fermecat - Afterschool, Bucuresti | 0741495713; 0748013790 | Str. Jean Alexandru Steriadi, Nr. 14D, Sector 3, Bucuresti |
| 59. | Gradinita Nr. 239 sector 3 | 0213245490 | Str. Dristorului, nr. 102, sector 3 |
| 60. | Happy Kids Project - After school si before school, Bucuresti | 0745152802 | Sos. Iancului, Nr. 110, Sector 2, Bucuresti |
| 61. | Gradinita Nr. 211 sector 3 | 0213451165 | Str. Trapezului, Nr. 1A, sector 3 |
| 62. | Pick Me Academy - Gradinita si scoala, Bucuresti | 0726000640 | Str. Slt. Pompiliu Manoliu, Nr. 7,Sector 2, Bucuresti |
| 63. | Gradinita nr. 68, sector 3 | 0213450038; 0213450030 | Str. Gura Ialomitei, nr. 20, sector 3 |
| 64. | ERA Kinderland - Gradinita, after school in limba germana sector 3 | 0728850073; 0213207697 | Str. Dristorului, nr. 67, sector 3 |
| 65. | Gradinita Nr. 160 sector 3 | 0213453650 | Aleea Perisoru, nr. 9, sector 3 |
| 66. | International Kindergarten & Nursery - Gradinita Bucuresti | 0723248978; 0314327798 | Str. Claudiu, Nr. 26, Sector 2, Bucuresti |
| 67. | Praslea cel Voinic - Gradinita & After School Bucuresti | 0722773103; 0733839824 | Str. Competitiei, Nr. 38, Sector 2, Bucuresti |
| 68. | Bulgarasi de Aur - Before & After School Bucuresti | 0723398829 | Str. Cogalnic, nr. 30, sector 3 |
| 69. | Gradinita Nr. 256 Bucuresti | 0212506222 | Str. Atanase Ionescu, Nr. 25, Sector 2 |
| 70. | KeiKo AfterSchool Bucuresti | 0748880866 | Str. Magura Vulturului, nr. 6, Sector 2 |
| 71. | Puiutul Pufos - Gradinita Bucuresti | 0740140968; 0213440010 | Str. Emanoil Marius Buteica, Nr. 30, Sector 3, Bucuresti |
| 72. | Strumfisor - Gradinita Bucuresti | 0744709237 | Bd. Nicolae Grigorescu, Nr. 105 - 109, Sector 3, Bucuresti |
| 73. | Mica Printesa - Gradinita, after school Bucuresti | 0744321574; 0744703973 | Str. Vulcan Judetu, nr. 16, sector 3, |
| 74. | Little Princess 2 - After School / Before School Bucuresti | 0744703973; 0744321574; 0756070390 | Str. Vulcan Judetu, Nr. 16, Sector 3, Bucuresti |
| 75. | Gradinita nr. 24 sector 3 | 0213441760 | Str. Locotenent Pascu Nicolae, nr. 12, sector 3 |
| 76. | Cresa Greierasul sector 3 | 0737799585 | Str. Plutonier Major Marin Pazon, nr. 2, sector 3 |
| 77. | Marilank - Gradinita si cresa Bucuresti | 0768316808 | Strada Lemnisorului, Nr 21-27, Sector 3 |
| 78. | Cresa Ciobanasului | 0213223085 | Str. Ciobanasului, nr. 23, sector 2, |
| 79. | Diamond Kids - Cresa, Gradinita si After School Bucuresti | 0751048000 | Str. Trapezului, nr. 44, Sector 3 |
| 80. | Bob de Grau, Gradinita si Cresa - Bucuresti | 0720446942 | Str. Agricultori, Nr. 142, Sector 3, Bucuresti |
| 81. | Gradinita Nr. 187 sector 3 | 0212560038 | Str. Magnetului, nr. 1, sector 3 |
| 82. | Once Upon a Time - Centrul educational adlerian Bucuresti | 0770590487 | Str. Ciobanasului, Nr. 22A, Sector 2 |
| 83. | Abcdino, Gradinita - Bucuresti | 0213231070; 0725929616; 0745397739 | Str. Chiparosului, Nr. 31, Sector 3, Bucuresti |
| 84. | Little Princess 1 - Cresa, Gradinita Bucuresti | 0756070390; 0744321574; 0744703973 | Str. Popa Stoica Farcas, Nr. 64-66, Sector 3, Bucuresti |
| 85. | BritAcademy, Gradinita in limba engleza - Bucuresti | 0740329105 | Str. Olimpiadei, Nr. 36, Sector 2, Bucuresti |
| 86. | Capsunica - Gradinita sector 3 | 0765516162 | Str. Constantin Nottara, nr. 27, sector 3 |
| 87. | I-kids - Club & Afterschool sector 3 | 0743355355 | Sos. Dudesti - Pantelimon, nr. 99A, sector 3 |
| 88. | Clopotel - Gradinita Bucuresti | 0212502197 | Str. Elev Dridu Georgescu, nr. 2, sector 2 |
| 89. | Stelutele, After School - Bucuresti | 0734716769 | Str. Vitioara, Nr. 46, Sector 3, Bucuresti |
| 90. | Luminita - Gradinita sector 2 | 0212503180 | Sos. Iancului, nr. 4A, sector 2 |
| 91. | Kiga 99 Luftballons - Gradinita, After School in limba germana Bucuresti | 0722395197; 0745423467 | Str. Theodor Sperantia, nr. 81, sector 3 |
| 92. | Gradinita Nr. 255 sector 3 | 0213462996; 0213462994 | Bd. Energeticienilor, Nr. 3, sector 3 |
| 93. | Domino - Gradinita Bucuresti | 0722492047 | Str. Constantin Georgian,, nr. 27, sector 2, Bucuresti |
| 94. | Aripi spre Succes - Gradinita si Afterschool sector 3 | 0740137944 | Aleea Manastirea Agapia, nr. 32, Sector 3 |
| 95. | Iuladi Kids - Cresa, gradinita Bucuresti | 0769088777 | Str. Breaza, Nr. 78, Sector 3 |
| 96. | Montessima Educational - Afterschool zona Iancului, Bucuresti | 0771421104 | Str. Constantin Zlatescu, nr. 12, sector 2 |
| 97. | Teach Little People - Centru educational, Bucuresti | 0727401433 | Str. Alexander von Humboldt, nr. 2, sector 3 |
| 98. | Bambi Step by Step- Gradinita Bucuresti | 0213273256; 0317102928 | Str. Gh. Dem Teodorescu, Nr.16 bis, Sector 3, Bucuresti |
| 99. | Arlechino & Friends - Gradinita si afterschool - Bucuresti | 0723264032; 0749028820; 0213260584 | Str. Cezar Boliac, Nr. 22-24, Sector 3, Bucuresti |
| 100. | Kindi - Centru de educatie timpurie Montessori, Bucuresti | 0726876873 | Str. Delea Veche, Nr 35, sector 2 |
| 101. | Oxigen Sport - Befor School, After School Bucuresti | 0722529429 | Str. Duzilor, Nr. 23, sector 2, Bucuresti |
| 102. | Sincron - Gradinita, After School Sector 3 | 0722243877 | Calea Vitan, nr. 206, sector 3 |
| 103. | Universul Zambetelor - Gradinita si Cresa Bucuresti | 0765410512 | Str. Lunca Dunarii, nr. 7, sector 3 |
| 104. | OLIMPIA KIDS - gradinita particulara, cresa si after school Bucuresti | 0731680372 | Drumul intre Vii, Nr. 24, Sector 3 |
| 105. | Castelul Fermecat Olimpia - Gradinita, scoala primara, Afterschool, Bucuresti | 0731680372 | Drumul intre Vii, Nr. 24, Sector 3, Bucuresti |
| 106. | Aurora - Gradinita & After School sector 3 | 0744317320; 0213224168 | Str. Moise Nicoar?, nr. 9-11, sector 3 |
| 107. | Academia Fantastica - Gradinita, Before & After School sector 3 | 0731027321; 0723337393; 0213065370 | Str. Moise Nicoara, Nr. 7, Sector 3 |
| 108. | Gradinita nr. 1 Dobroesti | 0212556121; 0212553765 | Str. Nicolae Balcescu, nr. 16-18, Dobroesti, judetul Ilfov |
| 109. | Noel - Gradinita & After School Bucuresti | 0728459857; 0725839363 | Str. Trifoi, Nr. 10, Sector 3, Bucuresti |
| 110. | Super Start - Gradinita, After School sector 2 | 0720528738 | Bd. Ferdinand I, nr. 156, Sector 2 |
| 111. | Legolas - Centru Educational sector 3 | 0787322298; 0787460258; 0787298295 | Str. Nucului, nr. 55, sector 3 |
| 112. | Kids Power - Centru educational holistic pentru copii Bucuresti | 0741248260 | Str. Nucului, nr. 55, sector 3 |
| 113. | Just4Kids - Scoala Gimnaziala cu nivel gimnazial, primar si prescolar Bucuresti | 0739674601 | Str. Vantului, Nr. 27, Sector 3, Bucuresti |
| 114. | Plusica - Gradinita & Afterschool sector 3 | 0768596856 | Str. Drumeagului, nr. 51, sector 3 |
| 115. | Bell - Gradinita, Afterschool Bucuresti | 0728694516 | Str. Mecet, Nr. 53, Sector 2 |
| 116. | Gradinita Nr.161 (Brandusa) sector 3 | 0314250834; 0314250835 | Str. Branduselor, Nr. 37/43, sector 3 |
| 117. | Sf. Imparati Constantin si Elena, Gradinita Bucuresti | 0722237110; 0722293056; 0213261361 | Str. Labirint, Nr. 137 B , Sector 3, Bucuresti |
| 118. | Arc-en-Ciel, Gradinita - Bucuresti | 0212524665; 0725519386; 0726126808 | Str. Ion Heliade Radulescu, Nr. 18, Sector 2, Bucuresti |
| 119. | WhizKidz Hub - Afterschool, Centru educational Bucuresti | 0742602260 | Str. Gradinarilor, nr. 14, Sector 3 |
| 120. | Acorns British Style Nursery, Gradinita & After School, Bucuresti | 0722476581; 0788418186 | Str. Popa Soare, Nr. 63, Sector 2, Bucuresti |
| 121. | Garmy Kids - Gradinita si After School Bucuresti | 0311060294; 0745342225; 0734784673 | Sos. Vitan Birzesti, Nr. 7D-7E, sector 4 |
| 122. | Copiii Montessori - Gradinita sector 3 | 0721204642 | Str. Labirint, nr. 95, Sector 3 |
| 123. | Gradinita nr. 1 Pantelimon | 0213513581; 0213513585 | Bd. Biruintei, nr. 36, Pantelimon, judetul Ilfov |
| 124. | Family Kids, Gradinita si After School - Bucuresti | 0722565657; 0723281551 | Str. Mugur Mugurel, Nr. 21, Sector 3, Bucuresti |
| 125. | Sonnenblume Kinderinstitut - Gradinita, Cresa Montessori Bucuresti | 0726471469 | Str. Calusei, nr. 36, sector 2 |
| 126. | Mell - Gradinita cu Program Normal sector 3 | 0744564426; 0722958683 | Str. Vlad Dracu, nr. 43, sector 3 |
| 127. | Cei Trei Muschetari - Before si After School, Bucuresti | 0724384924 | Str. Vaselor, Nr. 40, Sector 2, Bucuresti |
| 128. | Gradinita Magica, Bucuresti | 0765221341; 0723892378 | Str. Stefan Mihaileanu, Nr. 33, Sector 2, Bucuresti |
| 129. | Puzzle Edu Center - Centru educational sector 2 | 0724536293 | Str. Gheorghe Pop de Basesti, nr. 17, Sector 2 |
| 130. | Mihai Ionescu - Gradinita, Scoala, Liceu Bucuresti | 0213235495 | Str. Parfumului, Nr. 31, Sector 2, Bucuresti |
| 131. | Don Castor, Gradinita & After School - Bucuresti | 0757073929; 0217945396 | Str. Vaselor, Nr. 17A, Sector 2, Bucuresti |
| 132. | Castelul Bucuriei - Gradinita Bucuresti | 0730515181 | Str. Vasile Voiculescu, nr. 30, sector 3 |
| 133. | Primii Pasi - Gradinita si Cresa Fundeni | 0212400469; 0722522898 | Str. Sucidava, nr. 27, Sector 2, Bucuresti |
| 134. | Palatul Copiilor - Gradinita, After School sector 3 | 0740673742; 0314251635 | Str. Morilor, Nr. 19, sector 3 |
| 135. | Apostol - After School sector 2 | 0740951411 | Str. Seneslav Voievod, Nr. 55, Sector 2 |
| 136. | Central Art Studio - After School/Cursuri Pentru Copii/Scoala de Vara Bucuresti | 0745633737; 0765454244 | Str. Popa Soare, nr. 29, sector 2 |
| 137. | Veverita Jucausa - Gradinita sector 2 | 0726224859 | Str. Litovoi Voievod, Nr. 38, Sector 2 |
| 138. | Junior School - Gradinita Bucuresti | 0751223159 | Str. Calimachi, nr. 17, Sector 2, |
| 139. | Centrul Educational Nordic sector 4 | 0786391446 | Splaiul Unirii, Nr. 176, Corp D3, Sector 4 |
| 140. | Dreamland - Gradinita Bucuresti | 0787521511 | Str. Plugarilor, nr. 20-22, Sector 4, Bucuresti |
| 141. | Iepurasul cel Istet - Cresa, Gradinita, After School sector 2 | 0731488715; 0722121779 | Str. Mihai Eminescu, nr. 179, sector 2 |
| 142. | Montessori Edu - Centru educational, Bucuresti | 0721833901 | Str. Mantuleasa, nr. 21, sector 2 |
| 143. | Max und Moritz Kinder - Gradinita limba germana & After School Bucuresti | 0726374434 | Str. Plugarilor, Nr. 24, Sector 4, Bucuresti |
| 144. | Gradinita nr. 276 Bucuresti | 0212423280 | Str. Corabia, nr. 57, sector 2 |
| 145. | Dani\'s Children, Cresa, Gradinita, After School - Bucuresti | 0721800099 | Str. Silvestru, Nr. 42, Sector 2, Bucuresti |
| 146. | RosaMaria - Gradinita, cresa Bucuresti | 0746808080 | Str. Silvia, Nr. 18, Sector 2 |
| 147. | Licurici - Gradinita Bucuresti | 0212104790 | Bd. Dacia, Nr. 134, Sector2, Bucuresti |
| 148. | Lauder-Reut Kindergarten - Gradinita Bucuresti | 0318055772; 0723098800; 0735505395 | Str. Iuliu Barasch, Nr. 15, Sector 3, Bucuresti |
| 149. | Casuta cu Pitici Mari si Mici - Gradinita, Afterschool Bucuresti | 0722626268 | Str. Silvia, nr. 11, Sector 2, Bucuresti |
| 150. | Ortense - Gradinita si After School, Ilfov | 0735642345 | Intrarea Ciresului, 16c, Dobroesti, judetul Ilfov |
| 151. | PRO Academy Afterschool | 0744501156 | Str. Sibiel, nr. 6, Sector 4 |
| 152. | Clubul Copiilor Sector 2 - Bucuresti | 0212106432 | Intr. Cobilitei, Nr. 8, Sector 2, Bucuresti |
| 153. | Gradinita cu program prelungit Nr. 135 | 0212421805 | Str. Masina de Paine, nr. 65, sector 2 |
| 154. | Gradinita Montessori Livada cu copii sector 2 | 0757467127; 0721204642 | Str. Toamnei, nr. 76-78, sector 2 |
| 155. | Spectrum - Gradinita, Scoala, After School Bucuresti | 0213443344; 0722654161 | Str. Balta Albina, Nr. 9, Sector 3, Bucuresti |
| 156. | Copacelul Vietii - Gradinita Bucuresti | 0721464185 | Str. Radu Calomfirescu, nr. 9, sector 3 |
| 157. | Gradinita nr. 233 sector 2 | 0216884518 | Str. Antonescu Petre, nr. 20, Sector 2 |
| 158. | Cresa Sinaia sector 2 | 0212403528 | Aleea Sinaia, nr. 4, sector 2 |
| 159. | Ina School - Gradinita si scoala primara, Bucuresti | 0722500899 | Str. Lacul Gorgova, nr. 2, Sector 2 |
| 160. | Centrul multifunctional Cresa Craiasa Zapezii sector 4 | 0371360117; 0371360127 | Str. Oitelor, nr. 50, sector 4 |
| 161. | Licurici - Gradinita sector 4 | 0314377556; 0767503191 | Str. Cuza Voda, nr. 141 A, Sector 4 |
| 162. | Castelino Baby - Gradinita Bucuresti | 0731995600 | Str. Prof. Ion Ursu, nr. 21, sector 2, |
| 163. | Gradinita Nr. 257 Alice sector 2 | 0212114524 | Str. Alexandru Donici, Nr. 23, sector 2 |
| 164. | Centrul Social Multifunctional Cresa Scufita Rosie sector 4 | 0733200109; 0372874267; 0372715100, 0372715101 | Aleea Tohani, nr. 1, bl.30, sc. 1, parter, sector 4 |
| 165. | Micii Poznasi - Cresa, Gradinita Bucuresti | 0725911233 | Calea Serban Voda, Nr. 22-24, Sector 4 |
| 166. | Gradinita nr. 30 sector 4 | 0213362078 | Bd. Dimitrie Cantemir, nr. 16A, Sector 4 |
| 167. | Gradinita nr. 137 sector 2 | 0212407581; 0217960289 | Str. Plumbuita, nr. 5, sector 2 |
| 168. | Zuppy - Gradinita, After School sector 2 | 0753915058 | Str. Otesani, nr. 69, Sector 2 |
| 169. | Clubul Boreal, Gradinita - Bucuresti | 0721124249 | Str. Valerian Prescurea, Nr. 5, Sector 4, Bucuresti |
| 170. | Copii de Poveste - Gradinita sector 4 | 0740051582 | Str. Poterasi, nr. 5, sector 4 |
| 171. | Gradinita Nr. 133 sector 2 | 0212116749 | Str. Aurel Vlaicu, nr. 30 - 32, sector 2 |
| 172. | Tom Sawyer - Gradinita sector 2 | 0722529958 | Str. Bratului, nr. 14, sector 2 |
| 173. | Cresa Teiul Doamnei Bucuresti | 0314104891 | Str. Teiul Doamnei, nr. 99, Sector 2 |
| vezi mai multe | |||
| 1. | Clinica Medicala Medlife-Bucuresti | 0219646; 0742299843 | Str.Liviu Rebreanu, nr. 8,sector 3, |
| 2. | Policlinica Titan | 0213400335; Fax 0213400745 | Bd. Nicolae Grigorescu, nr. 41, sector 3, |
| 3. | Clinica Nova ORL - Dr. Voda Ioana Alexandra-Bucuresti | 0213254422; 0799848484 | Str. Pictor Gh. Tattarascu , nr. 2, subsol Policlinica Globului, in spatele cinematografului Gloria, Baba Novac, sector 3, |
| 4. | Dr. V. Gomoiu, Centrul Medical Bucuresti | 0314136700; 0314136701 | Bd. Basarabia nr. 21, sector 2, |
| 5. | Spitalul Clinic Judetean de Urgenta Ilfov + ambulatoriu-Bucuresti | Tel.021.3243312; 0213241161; Fax .0213243296 | Bd. Basarabia nr. 49-51, sector 2 , |
| 6. | Spitalul Clinic Judetean de Urgenta Ilfov | Tel.0213243312; 0213241161; Fax 0213243296 | Bd. Basarabia nr. 49-51, sector 2, |
| 7. | Pandora Medical Center - Bucuresti | 0213413098; 0732263626 | Aleea Calistrat Hogas, Nr. 45B, sector 3 |
| 8. | Institutul National de Medicina Sportiva | 0213184704 ; 0213184705 ; 0213184706 | Bd. Basarabia, nr. 37-39, sector 2, Bucuresti |
| 9. | Hipocrat 2000-clinica medicala-Bucuresti | 0219605 | Bd. Chisinau, nr. 16, sector 2, |
| 10. | Spitalul Clinic Nicolae Malaxa + Ambulatoriu | 0212555405; Fax: 0212555275 | Sos. Vergului, Nr. 12, Sector 2 , Bucuresti |
| 11. | Ambulatoriul spitalului Sf. Pantelimon | 0212554090; Fax 0212554025 | Sos. Pantelimon nr. 340-342, sector 2, |
| 12. | Spitalul de Urgenta Sf. Pantelimon + ambulatoriu | 0212554090; 0212554025 | Sos. Pantelimon nr. 340-342, sector 2, |
| 13. | Spitalul de Urgenta Sf. Pantelimon + ambulatoriu | 0212554090; Fax .0212554099 | Sos. Pantelimon nr. 340-342, sector 2, |
| 14. | Dr. V. Gomoiu, Spitalul de Copii - Ambulatoriul de specialitate Bucuresti | 0314136700; 0314136701; 0314136706 | Bd. Basarabia, nr. 21, sector 2, |
| 15. | Spitalul Clinic Nicolae Malaxa + Ambulatoriu | Tel. 0212555405; Fax 0212555275 | Sos. Vergului, nr. 12, sector 2, |
| 16. | Spitalul clinic de copii Dr. Victor Gomoiu | 0314136700; 0314136701 | Bd. Basarabia nr. 21, sector 2, |
| 17. | Centrul Medical Dr. Victor Babes-Bucuresti | 0213179503; Fax: 0213179502 | Sos. Mihai Bravu nr. 281, sector 3 , |
| 18. | Medisan Family Clinic - Clinica medicala Bucuresti | 0217955980 | Str. Dr. Calin Ottoi, nr. 20-22, sector 2 |
| 19. | Dr. Victor Babes, Spitalul Clinic de Boli Infectioase si Tropicale Bucuresti | 0213172727 / .28 / .29/ .30 (Centrala); Fax 021 3172721 | Sos. Mihai Bravu, nr. 281, sector 3 , |
| 20. | Centrul Medical Rom Med 2000 | 0726366370; 0213270441; Tel/Fax 0213206087 | Intr. Baba Novac, nr. 4 A, Sector 3, |
| 21. | Spitalul Clinic de Boli Infectioase si Tropicale Dr. Victor Babes | 0213172727 / .28 / .29/ .30 (Centrala); 0213172721 | Sos. Mihai Bravu, nr. 281, sector 3, |
| 22. | Centrul Medical Endocenter-Bucuresti | Tel.0764671233; Fax 0213267660 | Str. Arh. G. Sterian, nr. 8, sector 2, |
| 23. | Policlinica Baba Novac | 0770218336; 0748175572 | Str. Baba Novac, nr. 2, sector 3 |
| 24. | Professional Klinic, Bucuresti - Tratament si analize | 0314250805 ; 0742207755 | Str.Agricultori, Nr. 115, bloc 79, Parter, Sector 3, Bucuresti |
| 25. | Gral Medical - Centrul Medical, Bucuresti | 0213230000; 0724242259 (programari radiologie); Fax 0213230002 | Str.Traian Popovici (fosta Unitatii), Nr. 79-91, Sector 3, Bucuresti |
| 26. | Centrul Medical Amicus Med | Tel. 0766424841; Tel/Fax 0212508585 | Sos. Iancului nr. 17, bl. 106C, sc. 1, ap. 4, sector 2, |
| 27. | Policlinica Iancului-Bucuresti | Tel.0314255277 (laborator); 0212508490 (O.R.L.); 0212503333 | Sos. Iancului , nr. 3, sector 2 , |
| 28. | Cabinet Medical Persepolis- Bucuresti | 0749065961; 0751011893 | Str. Vasile Toneanu , nr. 20, sector 3, |
| 29. | Clinica Memento Med-Bucuresti | 0213260081 | Str. Brailita, nr. 1, sector 3, |
| 30. | Vitan Policlinica, Grupare de cabinete medicale - Bucuresti | 0727451211; 0213234970; 0213221208 | Calea Dudesti, Nr. 104-124, sector 3, Bucuresti |
| 31. | Emergency Medical Care - Servicii medicale de urgenta la domiciliu Bucuresti & Ilfov | 0799058058; 0732528136; 0314250213 | Calea Vitan, Nr. 109B-109D, Sector 3, Bucuresti |
| 32. | Centrul Medical Hiperdia-Bucuresti | 0219338; Fax 0212507320 | Str.Ritmului, nr. 24, sector 2, Bucuresti |
| 33. | Centrul Medical Focus | Tel. 0317111515; 0733072910 | Bd. Ferdinand nr. 141, sector 2, |
| 34. | Spitalul de Urgenta Prof. Doctor Dimitrie Gerota | 0212523334; Fax 0212522829 | Str. Vasile Vasilievici Stroescu, nr. 29-31, sector 2, |
| 35. | Village Medical Clinic - Centru medical Bucuresti | 0212323580 | Str. Constantin Kiritescu, nr. 27, sector 2, |
| 36. | Clinica Medicala Estet Laser Medical Center | Tel/Fax 0212531797; 0721241772; 0733625687 | Str. Calusei nr. 11, sector 2, |
| 37. | Spitalul Clinic de Ortopedie Traumatologie Foisor-Bucuresti | Tel.0212520057; Fax.0212521387; 0310056786(progamari consultatii) | Bd. Ferdinand, nr. 35-37, sector 2 , |
| 38. | Spitalul Clinic de Ortopedie Traumatologie \"Foisor\" + ambulatoriu | Tel. 0310056786; 0212520057; Fax 0212521387 | Bd. Ferdinand, nr. 35-37, sector 2, |
| 39. | Omnia Medical Center - Clinica medicala, Bucuresti | 0213230034; 0728841841 | Bd. Octavian Goga, Nr. 14, Bl. M61, Parter, Sector 3, Bucuresti |
| 40. | Donna Medical Center-Bucuresti | 0219732 | Str. Traian , nr. 234, et.1, sector 2, |
| 41. | Centrul Medical Veridia-Bucuresti | 0213029434 | Str. Matei Basarab, nr. 45, sector 3, |
| 42. | Cron Phoenix - Centru de Reabilitare Ortopedica si Neurologica pentru copii Bucuresti | 0721567186; 0790667941 | Piata Pache Protopopescu, nr. 9, sector 2 |
| 43. | Institutul Clinic Fundeni | 0212750500; Fax.0213180444; 0212750700 | Sos.Fundeni, nr. 258, sector 2, |
| 44. | Spitalul Prof. Dr. Constantin Angelescu | 0213233040; 0213233041 | Aleea Cauzasi, nr. 49 - 51 sector 3, |
| 45. | SPITALUL PROF. DR. CONSTANTIN ANGELESCU | 0213233040; 0213233041 | Aleea Cauzasi, nr. 49-51, sector 3, |
| 46. | Institutul Clinic Fundeni | Tel. 0212750500; Fax.0212750700 | Sos.Fundeni, nr. 258, sector 2, Bucuresti |
| 47. | Clinica Life-Med-Bucuresti | 0319981 | Str. Plugarilor , nr. 18,sector 4, |
| 48. | Prof. Dr. Dimitrie Gerota, Spitalul de Urgenta MAI - Bucuresti | 0212523334 | Str. Vasile Vasilievici Stroescu, nr. 29-31, sector 2, |
| 49. | Centrul Medical Romedical Int | Tel. 0212100381; 0723288108 | Str. Fainari nr. 35, sector 2, |
| 50. | POLICLINICA MASINA DE PAINE | Tel.021. 242.07.82 ; 021.242.00.96 (oftalmologie); 021.242.67.04 (neuropsihiatrie) | Str. Masina de Paine nr. 47, sector 2 , |
| 51. | Centrul de Diagnostic romano-german Medinst | 0319902 | Str.Sfanta Vineri, nr. 29, sector 3, |
| 52. | Standard Med-Bucuresti | 0722435435; 0314053950 | Bd. Carol, nr. 45, ap.5, parter, sector 2, |
| 53. | Spitalul Clinic de Urgenta \"Sf. Ioan\" Bucuresti | Tel. 0213345190; 0213345170; Tel/Fax 0213345970 | Sos. Vitan-Barzesti nr. 13, sector 4, |
| 54. | Spitalul Clinic de Urgenta \"Sf. Ioan\" Bucuresti | Tel. 0213345190; 0213345170; Fax 0213345970 | Sos. Vitan Barzesti, nr.13, sector 4, |
| 55. | Spitalul Clinic de Urgenta Sfantul Ioan Bucuresti | Tel. 0213345190; 0213345170 | Sos. Vitan Barzesti, nr. 13, sector 4, Bucuresti |
| 56. | Optim Sano - Centrul Medical Dr. Ion Socoteanu-Bucuresti | 0728955844 | Str. Salcamilor, Nr. 6A, sector 2, |
| 57. | Policlinica Regina Maria Sun Plaza | 0219268 | Calea Vacaresti, nr.391, sector 4, mall Sun Plaza, etaj 2, intrarea prin mall, |
| 58. | Prof. Dr. Mina Minovici, Institutul de Medicina Legala Bucuresti | 0314230708; 0213321156 | Sos. Vitan Barzesti, nr. 9-11, sector 4, |
| 59. | Prof. Dr. Mina Minovici, Institutul de Medicina Legala Bucuresti | 0314230700 ; 0213346260 | Sos. Vitan Barzesti, nr. 9, sector 4, |
| 60. | Institutul National de Diabet, Nutritie si Boli Metabolice \"Prof. Dr. N. Paulescu\" | Tel. 0212108499 (centrala); 0212106460 (secretariat); Fax 0212109092 | Str. Ion Movila, nr. 5-7, sector 2 , |
| 61. | Centrul Medical Proctoline-Bucuresti | 0213017686- programari | Bd. Dimitrie Cantemir , nr. 1, bl. B2, sc. 3, et. 2, sector 4, |
| 62. | Centrul Medical Psoremiss-Bucuresti | 0213017696 | Bd. Dimitrie Cantemir, nr. 1, bl. B2, sc. 3, et. 2, sector 4, |
| 63. | Spitalul Clinic Dr. I. Cantacuzino | Tel. 0212107100; 0212108499 (diabetologie) | Str. Ioan Movila, nr. 5-7, sector 2, Bucuresti |
| 64. | Institutul National de Diabet, Nutritie si Boli Metabolice \"Prof. Dr. N. Paulescu\" | 0212106460 (secretariat); 0212109092 | Str. Ion Movila, nr.5-7, sector 2, |
| 65. | Spitalul Clinic Dr. I. Cantacuzino-Bucuresti | Tel.0212107100; Fax.0212106435 | Str. Ion Movila nr. 5-7, sector 2 , |
| 66. | Podologica - Salon tratament pentru afectiunile picioarelor sector 4 | 0771458874 | Bd. Dimitrie Cantemir, nr. 15, bl.9, sc.6, sector 4, |
| 67. | Clinica Medicala On | .0213017676 | Bd. Dimitrie Cantemir nr. 1, bl. B2, sc. 3, et. 2, sector 4, |
| 68. | Euromedics Stem Life | 0800.800.855 (Apel gratuit); 021 311 55 92 | Str. Lipscani, Nr. 90A, et. 3, Sector 3 , |
| 69. | Spitalul Clinic Coltea | Tel. 0213874100; Fax 0213874101 | Bd. I.C. Bratianu, nr. 1, sector 3, |
| 70. | Centrul Medical Dr. Stoia Ion- Bucuresti | 0212116848 int.219; 0213175025 | Str. Thomas Masaryk , nr. 5, sector 2 , |
| 71. | POLICLINICA CU PLATA NR. 1 | Tel. 021.314.81.15; Fax 021.314.81.14 | Str. Bati?tei nr. 27, sector 2, |
| 72. | Spitalul Clinic Coltea | Tel. 0213874100; Fax 0213874101 | Bd. I.C. Bratianu, nr. 1, sector 3, |
| 73. | Spitalul Clinic Colentina + Ambulatoriu | Tel. 0213167320; 0213173245; 0213165895 | Sos. Stefan cel Mare, nr. 19-21, sector 2, |
| 74. | CENTRUL MEDICAL BATISTEI | 021.313.34.80; 021.313.14.55; 021.315.46.05 | Str. Tudor Arghezi nr. 28, sector 2 , |
| 75. | Ambulatoriul Spitalului Clinic Colentina | 0213167320 ; 0213173245 / interior 5732; Fax: 0213161952 | Sos.Stefan cel Mare, nr. 19-21, sector 2, Bucuresti |
| 76. | Spitalul Clinic Colentina + Ambulatoriu | 0213167320; 0213173245 ; Fax: 0213161952 | Sos. Stefan cel Mare, nr. 19-21, sector 2 , |
| 77. | Institutul National de Boli Infectioase Prof. Dr. Matei Bals | Tel.0212010980; 0213186091 | Str. Dr. Calistrat Grozovici, nr. 1, sector 2, |
| 78. | Centru Medical Stb-Bucuresti | 0213183430 (centrala); | Str. Dr. Grozovici, nr. 6, sector 2 , |
| 79. | Institutul National de Boli Infectioase Prof. Dr. Matei Bals | 0212010980 (centrala); 0213186090 | Str. Dr. Grozovici, Nr. 1, sector 2, |
| vezi mai multe | |||
| 1. | Alexandru Ioan Cuza, Scoala Gimnaziala Nr. 199 - Bucuresti | 0213243970 | Bd. Nicolae Grigorescu, Nr. 14, Sector 3, Bucuresti |
| 2. | Alexandru Ioan Cuza, Liceu Teoretic - Bucuresti | 0213404811 | Aleea Barajul Dunarii, Nr. 5, sector 3, Bucuresti |
| 3. | Anghel Saligny, Colegiu Tehnic - Bucuresti | 0213402654 | Bd. Nicolae Grigorescu, Nr. 12, Sector 3, Bucuresti |
| 4. | Hamburg, Scoala Gimnaziala Nr.195 - Bucuresti | 0318058603 | Str. Lunca Bradului, Nr. 2, sector 3, Bucuresti |
| 5. | Liviu Rebreanu, Scoala Gimnaziala - Bucuresti | 0213401845 | Aleea Barajul Rovinari, Nr. 1, Sector 3, Bucuresti |
| 6. | Neagoe Basarab Voievod, Scoala Gimnaziala (fosta Nr.16) - Bucuresti | 0213403313; 0374464076 | Intr. Constantin Brancusi, nr. 7, sector 3, Bucuresti |
| 7. | Federico Garcia Lorca, Scoala Gimnaziala Nr.196 | 0213403710 | Str. Cozla, nr. 2, sector 3, Bucuresti |
| 8. | Kidos - Before & after school, Bucuresti | 0770775730 | Bulevardul Nicolae Grigorescu, nr. 2 D, sector 3 |
| 9. | Liceul Teoretic Nichita Stanescu - Bucuresti | 0213400440 | Str. Lucretiu Patrascanu, Nr. 12, Sector 3, Bucuresti |
| 10. | Benjamin Franklin, Liceu teoretic - Bucuresti | 0213244890; 0213243010 | Str. Pictor Gh. Tattarescu, Nr. 1, sector 3, Bucuresti |
| 11. | Dimitrie Leonida, Colegiul Tehnic - Bucuresti | 0213243294; 0213243295; 0213243293; 0213246902 | Bd. Basarabia, Nr. 47, Sector 2, Bucuresti |
| 12. | Ghelmez Petre, Scoala gimnaziala Nr. 58 - Bucuresti | 0213245135 | Str. Pescarusului, Nr. 124, Sector 2, Bucuresti |
| 13. | Scoala Gimnaziala Nr. 200 - Bucuresti | 0213453119 | Str. Postavarul, Nr. 13, Sector 3, Bucuresti |
| 14. | Dante Alighieri, Liceu teoretic - Bucuresti | 0213481950; 0213481545 | Aleea Fuiorului, Nr. 9, Sector 3, Bucuresti |
| 15. | Scoala Gimnaziala Mexic - Bucuresti | 0213401124 | Bd. 1 Decembrie 1918, Nr. 34, sector 3 |
| 16. | Mexic, Scoala Gimnaziala Nr. 22 - Bucuresti | 0213401124 | Bd. 1 Decembie 1918, Nr. 34, Sector 3, Bucuresti |
| 17. | Leonardo Da Vinci, Scoala Gimnaziala Nr.75 - Bucuresti | 0213248676 | Str. Pictor Gheorghe Petrascu, Nr. 55, Sector 3, Bucuresti |
| 18. | Scoala Gimnaziala Nr. 86 - Bucuresti | 0314250608 | Intr. Reconstructiei, Nr. 6A, Sector 3, Bucuresti |
| 19. | Nicolae Labis, Scoala Gimnaziala Nr. 89 - Bucuresti | 0213486271 | Str. Firidei, Nr. 2, Sector 3, Bucuresti |
| 20. | Scoala Gimnaziala Nr. 88 - Bucuresti | 0213480445 | Str. Odobesti, Nr. 3, Sector 3, |
| 21. | Scoala Gimnaziala Nr. 4 - Bucuresti | 0212556425 | Str. Herta, Nr. 14 A, Sector 2, Bucuresti |
| 22. | Scoala Gimnaziala Nr. 112 | 0213483331 | Str. Patulului, Nr. 2, Sector 3, Bucuresti |
| 23. | Waldorf, Liceul Teoretic - Bucuresti | 0212553051 | Str. Sold. Marin Savu, Nr. 29, Sector 2, Bucuresti |
| 24. | Liceul Tehnologic Sfantul Pantelimon - Bucuresti | 0212559943 | Str. Hambarului, Nr. 12A, sector 2 |
| 25. | Montessori - Scoala si gradinita, Bucuresti | 0754054402 | Str. Maior Ion Coravu, Nr. 53, Sector 2 |
| 26. | Scoala Gimnaziala Nr. 51 - Bucuresti | 0212554060 | Str. Herta, Nr. 1, Sector 2, Bucuresti |
| 27. | Scoala Gimnaziala Nr. 62 - Bucuresti | 0212553635 | Str. Potarnichii, Nr. 3, Sector 2, Bucuresti |
| 28. | Liceul tehnologic special Regina Elisabeta - Bucuresti | 0212506220 | Str. Vatra Luminoasa, Nr. 108, sector 2 |
| 29. | BBIS Bucharest - Beirut International School | 0744309199 | Sos. Vergului, Nr. 14, Sector 2, Bucuresti |
| 30. | Scoala Gimnaziala Nr. 77 - Bucuresti | 0212553945 | Sos. Pantelimon, Nr. 289, sector 2 |
| 31. | Scoala Gimnaziala Nr. 82 - Bucuresti | 0213450962 | Jean Steriad, Nr. 17, Sector 3, Bucuresti |
| 32. | Scoala Gimnaziala Nr. 54 - Bucuresti | 0213465143; 0310699824 | Str. Istriei, Nr. 19, Sector 3 |
| 33. | Scoala Gimnaziala Nr. 66 - Bucuresti | 0212554580 | Str. Logofatul Dan, Nr. 1, Sector 2, Bucuresti |
| 34. | Scoala Gimnaziala Nr. 92 - Bucuresti | 0213480375 | Aleea Vlahita, Nr. 1A, sector 3 |
| 35. | Scoala Gimnaziala Nr. 49 - Bucuresti | 0212502444 | Str. Vatra Luminoasa, Nr. 99, Sector 2, Bucuresti |
| 36. | Liceul Teoretic Hyperion - Bucuresti | 0311032803 | Sos. Mihai Bravu, nr. 288C, sector 2 |
| 37. | Profesia, Liceu profil Economic - Bucuresti | 0213486638; 0787889809 | Ilioara , Nr. 16 (in cladirea Scolii de Soferi), et. 2, sector 3 , Bucuresti |
| 38. | Cezar Bolliac, Scoala Gimnaziala Nr. 70 - Bucuresti | 0314040172 | Intr. Tiglina, Nr. 37, Sector 3, Bucuresti |
| 39. | Lucian Blaga, Liceu teoretic - Bucuresti | 0212551265; 0786108825 | Sos. Pantelimon, Nr. 355, Sector 2, Bucuresti |
| 40. | Sfantul Ioan, Scoala Postliceala Sanitara - Bucuresti | 0724355298; 0787889809 | Str. Ilioara, nr. 16, et. 2, sector 3, Bucuresti |
| 41. | Scoala Gimnaziala Nr. 116 | 0213450102 | Str. Gura Ialomitei, Nr. 20, Sector 3, Bucuresti |
| 42. | Liceul Teologic Baptist Logos Bucuresti | 0213451072 | Bd. Theodor Pallady, Nr. 26, sector 3, Bucuresti |
| 43. | Costin D. Nenitescu, Colegiul Tehnic - Bucuresti | 0213450920 | Bd. Theodor Pallady, Nr. 26, Sector 3, Bucuresti |
| 44. | Scoala Gimnaziala Nr. 149 - Bucuresti | 0213451985 | Aleea Perisoru, nr. 4, Sector 3, Bucuresti |
| 45. | Liceul Tehnologic Dragomir Hurmuzescu - Bucuresti | 0212560083 | Bd. Basarabia, Nr. 256, sector 3 |
| 46. | Scoala Gimnaziala Nr. 80 - Bucuresti | 0213214256 | Calea Dudesti, Nr. 191, Sector 3, Bucuresti |
| 47. | Scoala Gimnaziala Nr. 20 - Bucuresti | 0213452485 | Str. Prevederii, Nr. 19, Sector 3, Bucuresti |
| 48. | Emil Racovita, Colegiul National - Bucuresti | 0213217092; Fax 0213217092 | Sos. Mihai Bravu , nr. 169, sector 2, |
| 49. | Scoala Gimnaziala Nr. 46 - Bucuresti | 0212502527 | Str. Stanescu Gheorghe, Nr. 2-18, sector 2 |
| 50. | Colegiul Tehnic Mihai Bravu - Bucuresti | 0213217699 | Sos. Mihai Bravu, Nr. 428, Sector 3 |
| 51. | Decebal, Liceul Bilingv - Bucuresti | 0213469233 | Bd. Energeticienilor, Nr. 9-11, Sector 3, Bucuresti |
| 52. | Scoala Gimnaziala Nr. 67 - Bucuresti | 0212560040 | Str. Magnetului, Nr. 1-3, Sector 3, Bucuresti |
| 53. | Pick Me Academy - Scoala Primara Bucuresti | 0726000640; 0722391000 | Strada Agricultori, Nr. 79, Sector 2, Scoala Primara |
| 54. | Mihai Botez, Scoala Gimnaziala Nr. 87 - Bucuresti | 0213462361 | Str. Ramnicu Valcea, Nr. 32, Sector 3, Bucuresti |
| 55. | Scoala Gimnaziala Nr. 64 Ferdinand I - Bucuresti | 0213351410 | Bd. Garii Obor, Nr. 16, Sector 2 |
| 56. | Scoala Generala nr. 84 Nicolae Balcescu - Bucuresti | 0213216391 | Calea Vitan, Nr. 135, sector 3 |
| 57. | Carol Davila, Scoala Sanitara Postliceala - Bucuresti | 0216107068 | Str. Agricultori, nr. 35, 37-39 (cladirea Codecs), sector 2, |
| 58. | Scoala Gimnaziala Nr. 85 | 0212524520 | Str. Dr. Constantin Zlatescu, Nr. 7A, sector 2, Bucuresti |
| 59. | Serban, Scoala de Meserii - Bucuresti | 0722302252; 0212520382 | Intrarea Baritonului, Nr. 9 (prin Str. Matei Voievod Nr. 81-83), Sector 2, Bucuresti |
| 60. | International British School - Bucuresti | 0212531698; 0745340841 | Str. Agricultori, Nr. 21-25, Sector 2, Bucuresti |
| 61. | Sweet Babies - Cresa, gradinita, after school, Bucuresti | 0785810011 | Strada Teleajen, 26B, sector 2 |
| 62. | Victoria, Liceu Teoretic - Bucuresti | 0314250543; 0759478014 | Str. Turturelelor, nr. 11A, sector 3, Bucuresti |
| 63. | Magia Copilariei - After-school Bucuresti | 0761912892 | Strada Nucului, Nr. 55, Sector 3 |
| 64. | Scoala Gimnaziala Nr. 55 - Bucuresti | 0212561066 | Sos. Industriilor, Nr. 46, Sector 3, Bucuresti |
| 65. | Scoala Gimnaziala Nr. 56 - Bucuresti | 0212524125; 0733087815 | Bd. Pache Protopopescu, Nr. 109A, Sector 2, Bucuresti |
| 66. | Scoala Gimnaziala de Arte nr. 2 - Bucuresti | 0212525703 | Bd. Ferdinand I, Nr. 128, Sectorul 2 |
| 67. | Scoala Gimnaziala Nr. 78 - Bucuresti | 0212563261 | Sos. Gara Catelu, Nr. 50, Sector 3, Bucuresti |
| 68. | Scoala Gimnaziala Nr. 78 - Bucuresti | 0212563261 | Sos. Garii Catelu, Nr. 50, Sector 3 |
| 69. | Liceul Tehnologic Nikola Tesla - Bucuresti | 0212527886 | Sos. Pantelimon, Nr. 25, sector 2 |
| 70. | Anastasia Popescu, Liceu Pedagogic Ortodox - Bucuresti | 0212524665; 0725519386; 0722805777 | Popa Nan, 47 B, Sector 2, Bucuresti |
| 71. | Mihail Sadoveanu, Liceu teoretic - Bucuresti | 0212527856 | Str. Popa Lazar, Nr. 8A, Sector 2, Bucuresti |
| 72. | Mirunette Education, Consiliere si Programe Educationale - Bucuresti | 0212101602 | Valeriu Braniste, Nr. 37-39, Etaj 1, Ap. 3, Cam. 3, Sector 3, Bucuresti |
| 73. | Ion I.C. Bratianu, Liceu Tehnologic - Bucuresti | 0310699448 | Str. Popa Lazar, Nr. 8A, Sector 2, Bucuresti |
| 74. | Iulia Hasdeu, Colegiu National - Bucuresti | 0212524508 | Bd. Ferdinand, Nr. 91, Sector 2, Bucuresti |
| 75. | Mihai Viteazu, Colegiul National - Bucuresti | 0212525700; 0212525871 | Bd. Pache Protopopescu, Nr. 62, Sector 2, Bucuresti |
| 76. | Ady Endre, Liceu Teoretic - Bucuresti | 0212520192 | Bd. Ferdinand I, Nr. 89, Sector 2, Bucuresti |
| 77. | Scoala Gimnaziala Nr. 145 - Bucuresti | 0212407036 | Str. Heliade Intre Vii, Nr. 36, sector 2 |
| 78. | Scoala Gimnaziala Nr. 95 - Bucuresti | 0770503408; 0213235185 | Str. Foisorului, Nr. 111-113, Sector 3, Bucuresti |
| 79. | Scoala Gimnaziala Iancului Nr. 52 | 0212522260 | Bd. Pache Protopopescu, Nr. 50, Sector 2, Bucuresti |
| 80. | About Scoala Metropolitana A.R.C | 0314254343; 0722522198 | Str. Esarfei, nr. 63-71, sector 3, |
| 81. | Montessano - Scoala primara si gradinita, Bucuresti | 0724924070; 0724919711 | Str. Labirint, nr. 97-99, sector 3 |
| 82. | A.D. Xenopol, Colegiul Economic - Bucuresti | 0213205719 | Str. Traian, Nr. 165, Sector 2, Bucuresti |
| 83. | Maica Domnului, Scoala Gimnaziala Nr. 50 - Bucuresti | 0212520310 | Str. Ion Maiorescu, Nr. 32, Sector 2, Bucuresti |
| 84. | Scoala Gimnaziala Nr. 25 - Bucuresti | 0212422695 | Str. Silvia, Nr. 54 Sector 2 |
| 85. | George Cosbuc, Colegiul National Bilingv - Bucuresti | 0212528080 | Str. Olari, Nr. 29-31, Sector 2, Bucuresti |
| 86. | Kids Kingdom - Before & After School Bucuresti | 0799199627 | Intrarea Traian Demetrescu, Nr. 8, sector 3 |
| 87. | Victor Babes, Colegiul National - Bucuresti | 0212407870 | Sos. Fundeni, Nr. 254, Sector 2, Bucuresti |
| 88. | Mihai Ionescu, Gradinita, Gimnaziu si Liceu - Bucuresti | 0213235495; 0314054929 | Cauzasi, Nr. 43, Sector 3 , Bucuresti |
| 89. | Mihai Ionescu, Scoala Primara, Gimnaziu, Liceu - Bucuresti | 0213235495 | Str. Cauzasi, Nr. 43, Sector 3, Bucuresti |
| 90. | Matei Basarab, Colegiul National - Bucuresti | 0213216640 | Str. Matei Basarab, Nr. 32, Sector 3, Bucuresti |
| 91. | Scoala Gimnaziala Nr. 81 - Bucuresti | 0213263220 | Str. Nerva Traian, Nr. 33, Sector 3, Bucuresti |
| 92. | Scoala Gimnaziala Nr. 47 - Bucuresti | 0212564666; 0212561512 | Sos. Garii Catelu, Nr. 132, Sector 3, Bucuresti |
| 93. | Liceul Tehnologic Theodor Pallady - Bucuresti | 0213453080 | Bd. Theodor Pallady, Nr. 250, sector 3 |
| 94. | Scoala Postliceala Sanitara Fundeni - Bucuresti | 0212405135 | Sos. Fundeni, Nr. 254, Sector 2, Bucuresti |
| 95. | International School of Bucharest - Liceu | 0213069530; 0213069534; 0213069544 | Soseaua Garii Catelu, Nr. 1R, Bucuresti |
| 96. | Barbu Delavrancea, Scoala Gimnaziala Nr.73 - Bucuresti | 0213237390 | Str. Matei Basarab, Nr. 28-30, Sector 3, Bucuresti |
| 97. | Colegiul Tehnic Petru Rares - Bucuresti | 0213304001 | Str. V. V. Stanciu, nr. 6, sector 4 |
| 98. | Hermes, Colegiul Economic - Bucuresti | 0213147645 | Calea Mosilor, Nr. 152, Sector 2, Bucuresti |
| 99. | Scoala Gimnaziala Nr. 307 - Bucuresti | 0212100012 | Str. Luncsoara, Nr. 3, Sector 2, Bucuresti |
| 100. | Mihai Eminescu, Colegiul National - Bucuresti | 0213304001 | Str. V.V. Stanciu, Nr. 6 , Sector 4, Bucuresti |
| 101. | Sfantul Silvestru, Scoala Gimnaziala Nr. 23 - Bucuresti | 0212102045 | Str. Oltarului, Nr. 11, Sector 2, Bucuresti |
| 102. | Traian Vuia, Liceu Tehnologic de Metrologie - Bucuresti | 0213345915; 0372942097 | Sos. Vitan Barzesti, Nr. 11, Sector 4, Bucuresti |
| 103. | Scoala Gimnaziala Nr. 71 - Bucuresti | 0213141395; 0213141391 | Calea Mosilor, Nr. 148, Sector 2, Bucuresti |
| 104. | Laude-Reut, Complex Educational Bucuresti | 0314382046; 0318055772 | Str. Clucerul Udricani, Nr. 12, Sector 3, Bucuresti |
| 105. | Liceul Economic nr. 1 - Bucuresti | 0371417419 | Sos. Vitan Barzesti, Nr. 11, Sector 4, Bucuresti |
| 106. | Liceul Teoretic International de Informatica Bucuresti | 0213275443; 0213276570 | Str. Balta Albina, Nr. 9, Sector 3, Bucuresti |
| 107. | Cuib - After school, Bucuresti | 0751088396 | Str. Fainari, Nr. 45A, sector 2 |
| 108. | Kretzulescu Nicolae, Scoala Superioara Comerciala - Bucuresti | 0213139082 | Bd. Hriso Botev, Nr. 17, Sector 3, Bucuresti |
| 109. | Scoala Gimnaziala Nr. 27 Principesa Ileana - Bucuresti | 0212421645 | Str. Masina de Paine, nr. 65, sector 2 |
| 110. | Spectrum, Scoala primara - Bucuresti | 0213443344; 0722654161 | Str. Balta Albina, Nr. 9, Sector 3, Bucuresti |
| 111. | Scoala Gimnaziala Nr. 1 Pantelimon - Ilfov | 0213135152 | Str. Mioritei, nr. 24A, Pantelimon, judetul Ilfov |
| 112. | Scoala Gimnaziala Nr. 97 - Bucuresti | 0213302545 | Str. Viorele, Nr. 7, Sector 4, Bucuresti |
| 113. | Cantemir Voda, Colegiul National - Bucuresti | 0212106935 | Str. Viitorului, Nr. 60, Sector 2, Bucuresti |
| 114. | Seminarul Teologic Ortodox Bucuresti | 0213305754; 0731205629; 0213305754 | Str. Radu Voda, Nr. 24 A, Sector 4, Bucuresti |
| 115. | Ion Creanga Colegiu National - Bucuresti | 0213362695 | Str. Cuza Voda, Nr. 51, sector 4, Bucuresti |
| 116. | Scoala Gimnaziala Nr. 79 - Bucuresti | 0314257884 | Str. Cuza Voda, Nr. 51, Sector 4, Bucuresti |
| 117. | Monterra - Scoala primara Bucuresti | 0743119481 | Str. Vasile Lascar, nr. 87, sector 2 |
| 118. | Spiru Haret, Colegiu National - Bucuresti | 0213136462 | Str. Italiana, Nr. 17, Sector 2, Bucuresti |
| 119. | Penticostal Emanuel, Liceul Teologic - Bucuresti | 0213311669 | Str. Cuza Voda, Nr. 116, Sector 4, Bucuresti |
| 120. | Scoala de Arta Bucuresti | 0213306700 | Str. Cuza Voda, nr. 100, |
| 121. | Spectrum Colentina, Scoala Primara - Bucuresti | 0314338500; 0733314741 | Sos. Colentina, Nr. 64B, Sector 2, Bucuresti |
| 122. | Scoala Gimnaziala nr. 32 - Bucuresti | 0216556240 | Str. Sportului, Nr. 21, sector 2 |
| 123. | Scoala Gimnaziala Nr. 39 - Bucuresti | 0783292969; 0212403025; 0212400034 | Sos. Colentina, Nr. 91, Sector 2, Bucuresti |
| 124. | Grigore Ghica Voievod, Scoala Gimnaziala Nr. 30 - Bucuresti | 0212421160 | Str. Laptari Tei, Nr. 23, Sector 2, Bucuresti |
| 125. | Scoala Gimnaziala Ienachita Vacarescu, Bucuresti | 0213355705 | Calea Serban Voda, Nr. 62-64, sector 4, Bucuresti |
| 126. | Scoala Gimnaziala SEB - Bucuresti | 0314249675; 074502274 | Str. Martisor, Nr. 22, sector 4 |
| 127. | Gheorghe Sincai, Colegiul National - Bucuresti | 0213369004; 0213361455 | Calea Serban Voda, Nr. 167, Sector 4, Bucuresti |
| 128. | Colegiul National - Scoala Centrala - Bucuresti | 0212118484; 0787288528 | Str. Icoanei, Nr. 3-5, Sector 2, Bucuresti |
| vezi mai multe | |||
| 1. | Restaurant Paunita - Bucuresti | 0724145707 | Bulevardul Nicolae Grigorescu, Nr. 31A, sector 3 |
| 2. | Ribs Bar&Grill - Restaurant american, Bucuresti | 0720788818 | Str. Constantin Brancusi, Nr. 13, Complex Potcoava, sector 3 |
| 3. | Irina Casa cu Prajituri, Cofetarie - Bucuresti | 0731323192 | Liviu Rebreanu, Nr.12, bl. K2, Cartier Titan Sector 3, Bucuresti |
| 4. | KLANdestin - Restaurant Bucuresti | 0731954592 | Str. Liviu Rebreanu, Nr. 6A, Sector 3 |
| 5. | Monza, Trattorie si Restaurant - Bucuresti | 0724802802; 0722661166; 0769200002 | Baba Novac, Nr. 25, Sector 3, Bucuresti |
| 6. | Shaormeria Titan - Fast food Bucuresti | 0771332861; 0755864686 | Bd. Nicolae Grigorescu, Nr. 20, Sector 3 |
| 7. | Vio Cofetarie - Bucuresti | 0213412082 | Bd. Nicolae Grigorescu, Nr. 20, Sector 3, Bucuresti |
| 8. | Allegro Restaurant - Bucuresti | 0751055536; 0744649177 | Bd. Nicolae Grigorescu, Nr. 20A, Sector 3, Bucuresti |
| 9. | Monza, Trattorie si Restaurant - Bucuresti | 0722661166; 0769200002; 0724802802 | Baba Novac, Nr. 25, Sector 3, Bucuresti |
| 10. | Vibes Cafe - Restaurant terasa Bucuresti | 0788221270 | Liviu Rebreanu, Nr. 29, Sector 3 |
| 11. | Alba, Restaurant - Bucuresti | 0213404491; 0722820287 | Liviu Rebreanu , Nr. 29 A, Sector. 3, Bucuresti |
| 12. | Casa Diham - Restaurant Bucuresti | 0213406006; 0727171220 | Bd. Nicolae Grigorescu, Nr. 1 A, Sector 3 |
| 13. | Arancini - Restaurant cu specific sicilian | 0756490490 | Str. Papadiei, Nr. 16-18, sector 3 |
| 14. | Camizo, Restaurant - Bucuresti | 0733018778 | Prisaca Dornei, Nr.10A, Sector 3, Bucuresti |
| 15. | Ivan\'s bar & grill - Restaurant traditional, Bucuresti | 0723893545;0737276284 | Bulevardul Basarabia, Nr. 170 - 174, sector 2 |
| 16. | Gedi, Restaurant - Bucuresti | 0371119901; 0734207029 | Bd. Basarabia, Nr. 176 B, Sector 2, Bucuresti |
| 17. | La Dolceria, Cofetarie - Bucuresti | 0724315256 | Basarabia, Nr.55, M22, Sector 3, Bucuresti |
| 18. | Sabatini Pizza, Restaurant - Bucuresti | 0314266069; 0737148520; 0784699751 | B-dul Basarabia, Nr. 108, Bucuresti |
| 19. | Friends Pub - Bucuresti | 0728197287 | Bucovina , Nr. 6, Sector 3, Bucuresti |
| 20. | Tosca Food - Pizzerie Bucuresti | 0756435785;0757170957 | Strada Intrarea Muncii, Nr. 23, sector 3 |
| 21. | Sham Sweet, Cofetarie - Bucuresti | 0748242455 | Bd. Basarabia, Nr.98, Sector 3, Bucuresti |
| 22. | Myti Pizza - Pizzerie, Bucuresti | 0734378358; 0744478578 | Bulevardul 1 Decembrie, Nr 7 D, sector 3 |
| 23. | La Tramvai - Terasa Bucuresti | 0729166021 | Parcul Alexandru Ioan Cuza (I.O.R). intersectie Campia Libertatii, sector 3 |
| 24. | Damascus Palace - Restaurant Bucuresti | 0746696666; 0756616666 | Bld. Basarabia, Nr. 98, sector 2, |
| 25. | Casa Dante - Restaurant cu specific italian, Bucuresti | 0314358069 | Strada Rotunda, nr 4C, sector 3 |
| 26. | Green Bistro - Terasa Bucuresti | 0728237731 | Parcul Gheorghe Patrascu, |
| 27. | Bistro 37-39 - Restaurant Bucuresti | 0731355939 | Bulevardul Basarabia, Nr. 37-39 , Sector 3 |
| 28. | Altfel, Cofetarie - Bucuresti | 0213454005; 0744347848; 0741553448 | Bd 1 Decembrie 1918, Nr 21 ,Sector 3, Bucuresti |
| 29. | Armonia Cofetarie - Bucuresti | 0213244020 ; 0722616180 | Campia Libertatii, Nr. 46 , bl. 52 , Parter , Sector 3, Bucuresti |
| 30. | La Sediu - Restaurant Bucuresti | 0760729007 | Campia Libertatii, Nr. 54, sector 3 |
| 31. | L\'incontro, Restaurant - Bucuresti | 0732113702; 0751906137; 0767241745 | Postavarul, Nr. 92, Sector 3, Bucuresti |
| 32. | Gloria Jean\'s Coffees Romania | 0760107884 | Bd.Liviu Rebreanu, nr. 4, sector 3 - Mall Park Lake, Bucuresti |
| 33. | Cartofisserie - Restaurant cu bufet Bucuresti | 0726330960;0740215433 | Liviu Rebreanu, Nr. 4 (ParkLake Shopping Center Mall) |
| 34. | Eleven - Restaurant Bucuresti | 0723211222; 0786112411 | Strada Postavarul, Nr. 86-90, sector 3 |
| 35. | Pajo Garden - Restaurant Bucuresti | 0751227228 | Bulevardul Basarabiei, Nt. 37-39, sector 2 |
| 36. | Trattoria Venti - Restaurant Bucuresti | 0731315513 | Str Postavarului, Nr. 84, Sector 3 |
| 37. | 7 Days - Restaurant cu terasa, organizari evenimente, Bucuresti | 0769042751; 0213241358 | Str. Campia Libertatii, Nr. 23, Sector 3, Bucuresti |
| 38. | BigBoy - Pizzerie Bucuresti | 0725570450; 0760925495 | Soseaua Vergului, Nr. 8, Sector 3 |
| 39. | Xanadu Restaurant, Pub - Bucuresti | 0726212114; 0722621717 | Postavarului, Nr. 102, Sector 3, Bucuresti |
| 40. | Xanadu Restaurant - Bucuresti | 0726212114; 0722621717 | Postavarul, Nr. 102, Sector 3, Bucuresti |
| 41. | Strada Rustica - Pizzerie Bucuresti | 0213248303; 0768676765; 0728886914 | Str. Baba Novac, Nr 9, Complex Rucar, Sector 3 |
| 42. | Casa Anca 72, Restaurant - Bucuresti | 0724334499; 0744777499 | Bd. 1 Decembrie 1918 , Nr. 56A, Sector 3, Bucuresti |
| 43. | Gili Pizza - Bucuresti | 0213242387 | Str. Baba Novac, Nr. 9-11, Sector 3 |
| 44. | Stejarului 57 - Social Bar, Bucuresti | 0748701058 | Strada Fildesului, Nr. 2, sector 3 |
| 45. | Savi - Restaurant si club biliard Bucuresti | 0775123051; 0722418555 | B-dul 1 Decembrie 1918, Nr. 56L, Sector 3 |
| 46. | Casa Morarilor - Restaurant, Bucuresti | 0765064409 | Soseaua Morarilor, Nr. 2 |
| 47. | Terasa Sport House - Restaurant fast-food, Bucuresti | 0755080224 | Maior Ion Coravu, numarul 34, sector 2 |
| 48. | Riviera Park, Restaurant - Bucuresti | 0732408408 | Bd. Basarabia , Nr. 23 (Parcul National), Sector 2, Bucuresti |
| 49. | Trattoria la Nave - Restaurant Bucuresti | 0743454626 | Sos. Pantelimon, Nr. 264, Sector 2 |
| 50. | Ressu Restaurant & Lounge - Bucuresti | 0723774485; 0731607646; | B-dul Camil Ressu, Nr. 70 A, Sector 3, Bucuresti |
| 51. | Babylon Fast Food - Bucuresti | 0799666267 | Soseaua Pantelimon, nr. 255, sector 2 |
| 52. | Pizza Apetito - Bucuresti | 0770225215 | Eufrosina Popescu, Nr. 57, sector 3, |
| 53. | La Patrascu - Restaurant Bucuresti | 0771635003; 0767561149; 0754422491 | Str. Prof. Stefan Nicolau, Nr. 2A, Sector 3 |
| 54. | Trenta Pizza - Bucuresti | 0219645 | Bd.Chisinau, Nr.5 , sector 2 , Bucuresti |
| 55. | Zatara - Restaurant cu influente mediteraneene, Bucuresti | 0771670756 | Vatra Luminoasa, Nr. 108, sector 2 |
| 56. | Papaciu - Bistro, Bucuresti | 0724200070; 0724955952 | Strada Complexului, Nr 3A, sector 3 |
| 57. | Greekos Urban Food - Restaurant fast-food, Bucuresti | 0726646976 | Soseaua Mihai Bravu, Nr. 247, sector 3 |
| 58. | Paradis, Cofetarie - Bucuresti | 0724398400 | Sos Pantelimon, Nr.354,Bloc 2, Sector 2, Bucuresti |
| 59. | Cofetaria Andreea | 0213228845; 0728877033 | Sos. Mihai Bravu , Nr. 286, sector 3, Bucuresti |
| 60. | Andreea, Cofetarie, torturi si patiserie - Bucuresti | 0728877033; 0213228845 | Bulevardul Mihai Bravu, Nr. 286, Sector 3, Bucuresti |
| 61. | Chef Gabrielle - Restaurant, Bucuresti | 0766066406 | Strada Tomis, Nr. 5A, Sector 3 |
| 62. | Marenka - Cofetarie Bucuresti | 0728028827; 0736273652 | Bulevardul Theodor Pallady, Nr. 21, Sector 3 |
| 63. | Taverna Baba Novac, Restaurant - Bucuresti | 0771544334; 0760010784 | Intrarea Baba Novac, Nr. 3, Sector 3, Bucuresti |
| 64. | Qian Bao, Restaurant chinezesc - Bucuresti | 0722622865; 0314306616 | Intrarea Baba Novac, Nr. 2, Sector 3, Bucuresti |
| 65. | Mateo Fast Food | 0728199827; 0752777333; 0314362033 | Strada Dristorului, Nr. 87, sector 3 |
| 66. | Taverna Fierarilor - Restaurant Bucuresti | 0758105629 | Str.Ilioara, Nr. 18, Sector 3, |
| 67. | Restaurant Ali Baba - Specific oriental, Bucuresti | 0213274810; 0722707208 | Sos. Mihai Bravu, Nr. 213, sector 2, Bucuresti |
| 68. | Santorini - Restaurant specific grecesc Bucuresti | 0748333334 | Bulevardul Mihai Bravu, Nr. 209, Sector 2 |
| 69. | Ilioara - Restaurant si piscina Bucuresti | 0766379289; 0721244247 | Strada Ilioara, Nr. 16L, sector 3 |
| 70. | Cofetariile Georgy\'s, Cofetarie,torturi - Bucuresti | 0733060230; 0730618742 | Ramnicu Valcea, Nr. 14, Sector 3, Bucuresti |
| 71. | Casa Tosca, Cofetarie - Bucuresti | 0213461297 | Bd. Camil Ressu, Nr. 1, Sector 3, Bucuresti |
| 72. | Casa Lefter - Restaurant Bucuresti | 0723568402; 0743127330 | Strada Lt. Ionescu Baican, Nr. 57, sector 2 |
| 73. | Events by Tonyo - Restaurant Bucuresti | 0723170007 | Aleea Hobita, Nr 1 Sector 2 |
| 74. | Pizza Venetia, Pizzerie si catering - Bucuresti | 0720800100; 0213204424; Fax: 0720800100 | Dristorului, Nr.59, Sector 3, Bucuresti |
| 75. | La Coana Mare - Cofetarie Bucuresti | 0771512035 | Strada Magura Vulturului, Nr. 2, sector 2 |
| 76. | Snap - Restaurant, Bucuresti | 0738888885 | Bulevard Decebal, nr. 13, sector 3 |
| 77. | Duman - Restaurant cu specific oriental, Bucuresti | 0738170063 | Bulevardul Decebal, Nr. 13, sector 3 |
| 78. | Gallo Nero, Restaurant - Bucuresti | 0726544889; 0213268128 | Bd. Decebal, Nr. 12, Sector 3, Bucuresti |
| 79. | Rich Vip Lounge - Restaurant Bucuresti | 0771790764 | Bd.Decebal, Nr 9, sector 3 |
| 80. | Gemenii Pizza - Bucuresti | 0766633686 | Strada Fetesti, Nr. 11A, Sector 3 |
| 81. | Casa Dragonului, Restaurant Bucuresti | 0213202666; 0761929019 | Calea Dudesti, nr. 198, sector 3, Bucuresti |
| 82. | Funky Lounge - Terasa, Bucuresti | 0755505505 | Bd. Decebal, nr 9, sector 3 |
| 83. | Terasa Marius - Bar & Grill, Bucuresti | 0745777799 | Sos. Pantelimon, Nr. 115-117, sector 2 |
| 84. | Agio Bistrot - Bistro, Bucuresti | 0763528818 | Bd. Decebal, Nr. 9, sector 3 |
| 85. | Casa Jienilor Agricultori, Restaurant - Bucuresti | 0735994994 | Agricultori, Nr.12, Sector 2, Bucuresti |
| 86. | Erra - Restaurant cu specific european modern, Bucuresti | 0734983984 | Str. Constantin Nottara, Nr 13, sector 3 |
| 87. | Delice Grill - Restaurant fast-food Bucuresti | 0721112244 | Soseaua Mihai Bravu, Nr 139-145, sector 2 |
| 88. | Casa Lica - Cofetarie Bucuresti | 0725761188 | Bulevardul Decebal, Nr. 5, Sector 3 |
| 89. | XO Lounge - Restaurant Bucuresti | 0725585388 | B-dul Decebal, Nr. 5, sector 3 |
| 90. | Alice, Cofetarie - Bucuresti | 0744486465 | Sos. Mihai Bravu, Nr. 123-135, Sector 2, (zona Piata Iancului - langa Sectia 8 de Politie), Bucuresti |
| 91. | Casa Luminita, Restaurant - Bucuresti | 0749202000 (Lucian Ionescu); 0723500565 | Theodor Pallady, Nr. 287, Sector 3 (zona Ozana), Bucuresti |
| 92. | Tress Caffe&Lounge - Bucuresti | 0721988801 | Bulevardul Decebal, Nr 3, sector 3 |
| 93. | Rainbow - Bar & Grill, Bucuresti | 0743205054 | Cornul Caprei, nr.53, sector 3 |
| 94. | Cristal - Cofetarie | 0760090324 | Str. Matei Voievod, nr. 108, sector 2 |
| 95. | Padthai - Restaurant Bucuresti | 0726637747 | Bulevardul Decebal, Nr. 3, sector 3 |
| 96. | Lotus Cafe - Cafenea restaurant Bucuresti | 0722808389 | Bd. Decebal, Nr 1, sector 3 |
| 97. | Gustul Pasiunii Cofetarie - Bucuresti | 0728941816 | Racari, Nr. 5, sector 3, Bucuresti |
| 98. | El Bacha, Restaurant - Bucuresti | 0212691392; 0722833333 | P-ta Alba Iulia, nr.6 bl.15, sector 3, |
| 99. | Turquoise - Restaurant cu specific oriental, Bucuresti | 0731826222 | Strada Theodor D. Sperantia, Nr. 96, sector 3 |
| 100. | Pizzeria Florina - Bucuresti | 0219285 | Strada Nicolae Pascu, nr.1A, sectorul 3 |
| 101. | M&I Clasic Cuisine - Fast-food si catering Bucuresti | 0732948408 | Strada Baicului, Nr 104 Sector 2 |
| 102. | Dada Restaurant - Bucuresti | 0729997405; 0724015800 | Str. Matei Voievod , nr. 94bis, sector 2, |
| 103. | Gio Cafe - Bucuresti | 0730030757 | Bd. Burebista, Nr.2 , Sector 3, Bucuresti |
| 104. | Turquoise Bakery - Bucuresti | 0739037919 | Str. Matei Voievod, nr.101, Sector 2 |
| 105. | Nikos Greek Taverna, Restaurant - Bucuresti | 0730001008 (Restaurant); 0215999099 (Livrari) | B-dul Burebista, Nr 2 (Piata Alba Iulia), Sector 3, Bucuresti |
| 106. | La Mama - Restaurant Bucuresti | 0721526262 | Strada Delea Veche, Nr. 51, sector 2 |
| 107. | Giorginio Cofetarie - Bucuresti | 0722434002 | Calea Dudesti, Nr. 129 (colt cu str. Scoala Ciocanul) Sector 3, Bucuresti |
| 108. | Bravu Burger & Crepes - Restaurant fast-food, Bucuresti | 0722118100 | Soseaua Mihai Bravu, Nr 452 - 460, sector 2 |
| 109. | BaKings - Cofetarie Bucuresti | 0744642929 | Strada Ilarie Chendi, Nr. 28, sector 2 |
| 110. | Jerry\'s Pizza - Bucuresti | 0373303030 | Calea Vitan, Nr. 236, Sector 3, Bucuresti |
| 111. | Arogant - Restaurant & Lounge, Bucuresti | 0732764268 | Piata Alba Iulia Piata Alba Iulia, nr 8, sector 3 |
| 112. | Alceva - Restaurant, Bucuresti | 0770844125 | Matei Voievod, Nr. 79, sector 2, |
| 113. | Intermacedonia, Restaurant - Bucuresti | 0212522010; 0212527331; 0212522190 | Sos. Mihai Bravu, Nr.95-100, Sector 2 (P-ta Iancului) , Bucuresti |
| 114. | Club Art Papillon Restaurant - Bucuresti | 0212522520; 0732582278; 0722240930 | Matei Voievod , Nr. 66A Sector 2, Bucuresti |
| 115. | Talla - Cofetarie Bucuresti | 0728314326 | Str. Aleea Mizil, Sector 3 |
| 116. | Casa Pedro, Restaurant - Bucuresti | 0722502715; 0212560209; 0722533499 | Soseaua Industriilor, Nr. 30 (colt cu Str. Rodnei) ,Sector 3 , Bucuresti |
| 117. | La Birlic - Terasa, Bucuresti | 0722318168; 0752318168; 0212525151 | Bulevardul Pache Protopopescu, Nr. 125, sector 2 |
| 118. | Trattoria Fresca - Restaurant cu specific italian, Bucuresti | 0731333410 | Str.Popa Nan, nr.140, Sector 2 |
| 119. | Modelier - Bistro, cocktails Bucuresti | 0799630693 | Strada Duzilor, Nr. 12, sector 2 |
| 120. | Casa Pedro - Restaurant si salon evenimente Bucuresti | 0726456687 | Strada Industriilor, Nr 30, sector 3 |
| 121. | Bistro Turturelelor - Restaurant, Bucuresti | 0726310583; 0758887454 | Strada Turturelelor, 11A, corpC, Parter, Sector 3 |
| 122. | Resto Aperto, Restaurant - Bucuresti | 0738741118 | Calea Vitan , Nr.55-59(Bucuresti Mall) Sector 3, Bucuresti |
| 123. | Oktoberfest Pub - Bucuresti | 0724333233 | Popa Nan, Nr. 95, Sector 3, Bucuresti |
| 124. | Bellagio Villa Restaurant - Bucuresti | 0213440661; 0771120177 | Vrejului, Nr. 21, Sector 3, Bucuresti |
| 125. | Resto Aperto, Restaurant - Bucuresti | 0738741118 | Calea Vitan, Nr.55-59 (Bucuresti Mall) Sector 3, Bucuresti |
| 126. | Nabu - Bar Bucuresti | 0787407043 | Pache Protopopescu, Nr. 97, sector 2 |
| 127. | Restaurant Grill Verdetei 5 - Restaurant cu preparate la gratar, Bucuresti | 0766411338 | Strada Verdetei, nr. 5, sector 3 |
| 128. | Belli Siciliani - Restaurant autentic sicilian, Bucuresti | 0799090601 | Str. Matasari, Nr. 47, sevtor 2, |
| 129. | King Rolls - Fast Food Bucuresti | 0747887206 | Calea Vitan, Nr. 17A, sector 3 |
| 130. | Bistro HB - Restaurant Bucuresti | 0735011736; 0735011735; 0735011737 | Strada Matasari, Nr. 49 Sector2 |
| 131. | Naser - Restaurant specific libanez Bucuresti | 0799980001; 0799980002; 0213135060 | Str. Fluierului, Nr. 18, sector 2 (colt cu Str. Matasari, in spatele PRO TV) |
| 132. | Burger Peter - Restaurant cu burgeri Bucuresti | 0799981031 | Strada Popa Nan, Nr. 48, sector 2 |
| 133. | Sale Dolce, Restaurant - Bucuresti | 0736858430; 0735123687 | Matei Voievod, Nr. 20, Sector 2, Bucuresti |
| 134. | Cuptorul cu Lemne, Pizza - Bucuresti | 021.9363; 0212524493; (021) 9363 - tasta 0 | Bd. Pache Protopopescu, Nr. 63, Sector 2, Bucuresti |
| 135. | Cuptorul cu Lemne - Restaurant pizzerie Bucuresti | 0219363 | Bd. Pache Protopopescu, Nr 65, sector 2 |
| 136. | Pizza PPH - Pizza si catering, Bucuresti | 0319441 | Str. Lirei, Nr. 13, sector 2 |
| 137. | Paque Bistro - Restaurant cu bar, Bucuresti | 0722330607 | Bulevardul Pache Protopopescu, nr.60, sector 2 |
| 138. | Vanilla, Cofetarie - Bucuresti | 0733058058 | Mihai Bravu, Nr. 47, Parter, Sector 2, Bucuresti |
| 139. | Sweet Sophie - Cofetarie | 0748309063 | Strada Popa Nan, Nr. 22, sector 2 |
| 140. | La Giuggiola - Gelateria artizanala italiana Bucuresti | 0770107183 | Bulevardul Pache Protopopescu, Nr. 57, Sector 2 |
| 141. | Din Fu - Restaurant chinezesc Bucuresti | 0729313338; 0213260127 | Str. Alexandru Moruzzi, Nr. 76A, Sector 3 |
| 142. | Noua - Restaurant cu specific romanesc, Bucuresti | 0217943294 | Strada Popa Nan, Nr. 7, sector 2 |
| 143. | Trattoria Della Nonna - Restaurant cu specific italian, Bucuresti | 0771697503 | Strada Popa Nan, Nr. 5, sector 2 |
| 144. | No10 - Restaurant cu specific italian | 0741210003 | Strada Austrului, Nr. 10, sector 2 |
| 145. | Cofetaria Madlene - Bucuresti | 0753223222 | Str. Traian, Nr.103, sector 2 |
| 146. | Queen Events - Salon evenimente | 0723154564; 0724605209 | Splaiul Unirii, Nr. 773-777, Sector 3 |
| 147. | Laur Express Food - Restaurant fast-food, Bucuresti | 0732455089 | Bulevardul Ferdinand I, Nr. 60, sector 2 |
| 148. | La Machedoni - Restaurant cu specific traditional romanesc si american | 0721512236 | Anastasie Panu, nr. 10, sector 3 |
| 149. | Politica si Delicateturi Bucuresti - Restaurant cu specific romanesc | 0785516681 | Str. Prof. Dr. Mihail Georgescu, Nr. 24, sector 2 |
| 150. | Anira - Cofetarie Ilfov | 0212555961;0729964457 | Str. Prof. Dr. V. Dumitrescu, Nr. 90 Comuna Dobroesti, judetul Ilfov |
| 151. | Benjamins Restaurant - Nunti, botezuri, evenimente, Bucuresti | 0724248428 | Sos.Vitan-Barzesti, Nr. 5, Sector 4, Bucuresti |
| 152. | SwitchEat - Restaurant cu burgeri Bucuresti | 0726023881 | Strada Horei, Nr 34, sector 2 ( la doi pasi de Foisorul de Foc) |
| 153. | Koffeev - Cafenea, Bucuresti | 0767195222 | Bulevardul Unirii, Nr. 57, sector 3 |
| 154. | Chong Qing - Restaurant cu specific chinezesc, Bucuresti | 0212525095; 0731383952 | B-dul Pache Protopopescu, Nr.28, sector 2 |
| 155. | Comics Club - Stand Up, Bucuresti | 0741426426 | Str. Nerva Traian, Numarul 4. sector 3 |
| 156. | Beraria Centrala - Restaurant Bucuresti | 0740959311 | Strada Nerva Traian, Nr. 2, Sector 3 |
| 157. | Green Tea Ceainarie - Bucuresti | 0213209396; 0749090202 | Dr. Burghelea, Nr. 24, Sector 2, Bucuresti |
| 158. | Coftale Coffee Shop - Cafenea, Bucuresti | 0746420874 | Strada Profesor Stefan Mihaileanu, Nr.42, sector 2 |
| 159. | Krisperie - Restaurant fast-food, Bucuresti | 0762888844 | Strada Doamna Ghica, Nr. 235, sector 2 |
| 160. | Casa Veche - Restaurant, Ramnicu Valcea | 0747875045 ; 0748702238; 0350418155 | Stirbei Voda, Nr.162, Ramnicu Valcea, judetul Vilcea |
| 161. | Karishma, Restaurant indian - Bucuresti | 0212525157; 0737519953 | Iancu Capitanu, Nr. 36, Sector 2, Bucuresti |
| 162. | Hashtag Pub - Bucuresti | 0771555444 | Soseaua Mihai Bravu, Nr 32, sector 2 |
| 163. | MagiCake - Atelier de dulciuri artizanale, Bucuresti | 0772072072 | Strada Alexandru Moruzzi, Nr. 4A, sector 3 |
| 164. | Restaurant La Teu - Bucuresti | 0723642022 | Strada Titu Maiorescu, Nr.18, sector 2 |
| 165. | Old Mike Pub si Restaurant - Bucuresti | 0787366166 | Morilor, Nr. 46 Sector 3, Bucuresti |
| 166. | Chaya TeaHouse - Ceainarie Bucuresti | 0755331000 | Strada Radu Ceaus, Nr. 7, sector 3 |
| 167. | Banjo Jack - Restaurant cu burgeri, Bucuresti | 0770653341 | Strada Iancu Capitanu, Nr 26, sector 2 |
| 168. | Della Casa Pizza - Bucuresti | 0721312666; 0746577383; 0768720228 | Sos. Gherase, Nr. 96, (Zona Doamna Ghica) Sector 2, Bucuresti |
| 169. | Terasa Florilor - Restaurant cu terasa, Bucuresti | 0755097931 | Str. Ion Maiorescu, nr. 42, sector 2 |
| 170. | El Torito, Restaurant - Bucuresti | 0212526688; 0728176059 | Iancu Capitanu , Nr. 30, Sector 2, Bucuresti |
| 171. | Alouette - Restaurant cu specific international, Bucuresti | 0746339793 | Splaiul Unirii, Nr. 168, sector 4, |
| 172. | Borgo Stagioni - Restaurant Bucuresti | 0732163287; 0722220223 | Calea Calarasi, Nr. 78, Sector 3 |
| 173. | Maroon - Maroon Restaurant Cafe | 0742420000; 0764900000 | Bulevardul Unirii, Nr. 47 C, Sector 3 |
| 174. | Urban Bistro - Restaurant cu fripturi, Bucuresti | 0769918510 | Strada Piata Sfantu Stefan, Nr 6, sector 2 |
| 175. | Noeme - Restaurant Bucuresti | 0721490270 | Anton Pann, Nr. 29, sector 3 |
| 176. | Efes - Restaurant cu specific turcesc, Bucuresti | 0737018590 | Bulevardul Nerva Traian, Nr. 17 - 19, sector 3 |
| 177. | Le Boutique Food Concept Store - Bucuresti | 0722538274; 0314380044 | Str. Sfantul Stefan, Nr. 13, sector 2 |
| 178. | Posh Birt Select - Pub, Bucuresti | 0724004376 | Strada Plantelor, Nr. 26, sector 2 |
| 179. | Hop Garden - Restaurant cu preparate la gratar, Bucuresti | 0770448443 | Splaiul Unirii, Nr. 225, sector 3 |
| 180. | La Nenea Iancu - Restaurant cu specific romanesc, Bucuresti | 0745140786 | Str. Romulus, nr. 55, sector 3 |
| 181. | Bragageria Bogdania - Bistro, Bucuresti | 0787877985 | Str. Olari, Nr. 20, Sector 2 |
| 182. | GinOteca - Bar, Bucuresti | 0751446446 | Strada Plantelor, Nr. 25, sector 2 |
| 183. | Berestroika - Beer Revolution - Bucuresti | 0722560300; 0721100000; 0733200000 | Aleea Cauzasi, Nr. 57, Sector 2, Bucuresti |
| 184. | Bistro Cafe Carbon 14 - Bucuresti | 0790408777 | Str. Dimitrie Racovita, Nr. 18, Sector 2 |
| 185. | TAP Pizza - Pizzerie, Ilfov | 0771382184 | Strada Doinei, 48, Sat Fundeni, Comuna Dobroesti, judetul Ilfov |
| 186. | Ubuntu Coffee - Terasa, Bucuresti | 0758635771 | Splaiul Unirii, Nr. 195, sector 3 |
| 187. | Fatafit - Restaurant cu specific libanez, Bucuresti | 0760445555 | Calea Mosilor, Nr. 225, Sector 2 |
| 188. | Prajituri de Casa - Cofetarie Bucuresti | 0751135153 | Calea Mosilor, Nr. 225, sector 2 |
| 189. | Mazzaj Cafe - Restaurant cu specific libanez, Bucuresti | 0757292398 | Splaiul Unirii, Nr. 162, sector 4 |
| 190. | Gradina Olari - Terasa, Bucuresti | 0770147410 | Strada Olari, nr.8, Sector 2 |
| 191. | Time Out Cafe - Bar & Cafenea Bucuresti | 0744644400 | Strada Olari, Nr. 7, sector 2 , |
| 192. | Hatz Burger Studio - Restaurant cu burgeri | 0770920018 | Soseaua Stefan cel Mare, Nr. 240, Bl. 59A, Sector 2 |
| 193. | Tip Top, Cofetarii - Bucuresti | 0212422414 | Soseaua Colentina, Nr. 2, Sector 2 (magazinul Bucur-Obor), Bucuresti |
| 194. | Casa Jienilor, Restaurant - Bucuresti | 0212121951; 0722916111 | Fainari, Nr. 5, Sector 2, Bucuresti |
| 195. | Casa Jienilor, Restaurant - Bucuresti | 0212121951; 0722916111; Fax 0212121951 | Fainari, N. 5, Sector 2, Bucuresti |
| 196. | Casa Jienilor Fainari, Restaurant - Bucuresti | 0212121951; 0735994994 | Fainari, Nr. 5, Sector 2, Bucuresti |
| 197. | Tarab - Restaurant cu specific libanez, Bucuresti | 0774411111 | Strada Nerva Traian, Sector 3 |
| 198. | Trattoria Soleto - Restaurant cu specific italian | 0734382419 | Soseaua Colentina, nr. 1, sector 2 |
| 199. | Mantuleasa 40 - Restaurant Bucuresti | 0754045450; 0751133141 | Str. Mantuleasa, Nr. 40, sector 2 |
| 200. | Restaurant Burebista Traditional - Bucuresti | 0755041484; 0212109704 | Calea Mosilor, Nr 195, sector 2 |
| 201. | Sarazin - Carol Fast food Bucuresti | 0787625505 | Bulevardul Carol I, Nr. 66, Sector 2, |
| 202. | Tarta Ta - Delicii traditionale, Bucuresti | 0771522117 | Bulevardul Mircea Voda, Nr. 52, sector 3 |
| 203. | Blunch Bistro - Restaurant, Bucuresti | 0736898990 | Mihai Eminescu, Nr.181, sector 2 |
| 204. | Quartier - Restaurant, Bucuresti | 0758222244 | Bd. Mircea Voda, Nr. 43, sector 3 |
| 205. | Sardin - Restaurant cu specific italian, Bucuresti | 0729520111 | Bulevardul Mircea Voda, Nr. 39H sector 3, Bucuresti |
| 206. | Haveli, Restaurant - Bucuresti | 0212110390; 0721721640 | Episcopul Radu, Nr. 3, Sector 2, Bucuresti |
| 207. | Trofic - Restaurant pentru mic dejun si brunch | 0751276600 | Bd. Mircea Voda, nr. 52, sector 3 |
| 208. | EXPRESS Food & Drink - Restaurant fast-food, Bucuresti | 0732669922 | Bd. CAROL I, Nr. 62, Sector 2 |
| 209. | Madame B - Tea & Pancake House, Bucuresti | 0746030670 | Splaiul Unirii, nr.49,sector 3, |
| 210. | Willy\'s Coffee Art - Bucuresti | 0769911077 | Bulevardul Carol I, Nr 62, sector 2, |
| 211. | DA Giulio - Pizzerie, Bucuresti | 0212420385 | Colentina, Nr. 23 A, sector 2 |
| 212. | Sfeir Lebanese Cuisine - Bar & Grill | 0722311805 | Mircea Voda, Nr. 36, sector 3 |
| 213. | Trattoria Adagio - Restaurant cu specific italian Bucuresti | 0311061067; 0751218482 | Bd. Mircea Voda, Nr. 34, sector 3 |
| 214. | Simbio - Restaurant Bucuresti | 0756746246 | Str Negustori, nr. 26, sector 2 |
| 215. | Casa Jienilor, Restaurant - Bucuresti | 0735994994; 0722916111 | Str. Fainari, nr. 5, sector 2, |
| 216. | Volare - Pizzerie, Bucuresti | 0730622600 | Calea Vacaresti, Nr.203B, sector 4 |
| 217. | Wicked Bar - Bucuresti | 0722615188; 0723574895 | Strada Spatarului, Nr. 4, Sector 2, Bucuresti |
| 218. | Miorita Kebap - Fast food, Ilfov | 0790086089 | Strada Mioritei, Nr. 49, Pantelimon, judetul Ilfov |
| 219. | Il Destino, Restaurant italian - Bucuresti | 0212103039; 0758836278; 0744318094 (Pentru evenimente) | Silvestru, Nr. 67, Sector 2, Bucuresti |
| 220. | Rawyal brunch & cakes - Bucuresti | 0730777221 | Calea Mosilor, Nr 105, Sector 2 |
| 221. | Grand Kebab - Restaurant fast food, Ilfov | 0771770036 | Strada Duzilor, nr.1, Oras Pantelimon, judetul Ilfov |
| 222. | Barfly Bucuresti | 0727394131; 0721652899 | Olteni , Nr. 3, Sector 3, Bucuresti |
| 223. | Sare si Piper - Restaurant cu specific italian, Bucuresti | 0744663451 | Str. Viorele, nr. 26, zona Timpuri Noi, sector 4, Bucuresti |
| 224. | Cucina di casa - Pizzerie, Bucuresti | 0735868318 | Calea Vacaresti, Nr. 230, sector 4 |
| 225. | Restaurant Karta - Bucuresti | 0744391111 | Bd. Unirii, Nr. 22, sector 3 |
| 226. | Bucatarasul cel Dibaci - Restaurant cu specific romanesc, Bucuresti | 0730340436;0760966360 | Strada Olteni, Nr 3, sector 3 |
| 227. | Robescu 14 - Bar specializat in cocktailuri | 0773741922 | Strada Robescu F. Constantin, Nr. 14, sector 3 |
| 228. | Jack Pot - Bar specializat in cocktailuri, Bucuresti | 0372916947; 0770776777 | Zborului, nr. 2, sector 3 |
| 229. | Zen Garden - Restaurant cu specific chinezesc, Bucuresti | 0745102272 | Strada Silvestru, Nr. 3, sector 2 |
| 230. | Cofetaria Lush - Bucuresti | 0720976019?; 0721605303 | Soseaua Stefan cel Mare, Nr. 226, bloc.44, parter, sector 2 |
| 231. | Contesa, Restaurant - Bucuresti | 0731831891; 0722244214; 0213317171 | Sibiel, Nr. 5, sector 4, Bucuresti |
| 232. | Casa Brancoveanu Restaurant - Bucuresti | 0724640000; 0314245890; 0762643010 | Caramidarii de Jos, Nr.14, Sector 5, Bucuresti |
| 233. | Nicoresti, Restaurant - Bucuresti | 0212112480; 0724290550 | Toamnei, Nr. 13 (colt cu Maria Rosetti nr. 40), Sector 2, Bucuresti |
| 234. | #Aici - Bar, Bucuresti | 0799124330 | Bulevardul Unirii, Nr 35, Sector 3, Bucuresti |
| 235. | Margineni, Restaurant - Bucuresti | 0733986867; 0212405631; 0720679350 | Sos. Fundeni , Nr. 185, Sector 2, Bucuresti |
| 236. | Casa Ede - Restaurant & Beauty - Barber Salon Bucuresti | 0772019516 | Strada Armeneasca, Nr. 8, sector 2 |
| 237. | Gran Gelato Italiano - Gelaterie Bucuresti | 0730057909 | Str. Radu Voda, Nr 28 A, Sector 4 |
| 238. | Suento - Restaurant cu specific european modern, Bucuresti | 0787605362 | Strada Toamnei, Nr. 101, sector 2 |
| 239. | JO Lounge - Bar, Bucuresti | 0721811995 | Bd. Unirii, sector 3 |
| 240. | Cofetaria Luiziana | 0720738498 | Str. Nicolae Balcescu, Nr. 29, Pantelimon, judetul Ilfov |
| 241. | Miss Ale - Bar specializat in cocktailuri | 0745089700 | Constantin F Robescu, Nr 2, sector 3 |
| 242. | Zoomserie - Cofetarie Bucuresti | 0751222265 | Sf. Vineri, Nr. 23, sector 3, intersectia Coposu (Calarasilor), |
| 243. | Bomb Doner Kebap - Restaurant fast-food, Bucuresti | 0727771549 | Strada Lizeanu, Nr. 5, sector 2 |
| 244. | Zeppelin Pub - Bucuresti | 0722170024 | Strada Marin Serghiescu, Nr. 7, sector 2 |
| 245. | Sweet by MarVio - Cofetarie Bucuresti | 0212105291 | Soseaua Stefan cel Mare, Nr 31, sector 2 |
| 246. | Pe Baricade | Radu Voda, nr. 23A, sector 4 | |
| 247. | Get Naked by Bordello - Restaurant pentru mic dejun si brunch, Bucuresti | 0748881086 | Bd. Unirii, intre Bd Dimitrie Cantemir si Bd Mircea Voda |
| 248. | Ciao Niki - Restaurant cu specific italian, Bucuresti | 0734356217;0756044805 | Strada Bocsa, Nr 4, sector 2 |
| 249. | La Calinescu - Restaurant cu specific romanesc, Bucuresti | 0788472725; 0213310750 | Strada Piscului, Nr. 16, sector 4 |
| 250. | Surubelnita - Club, Bucuresti | 0768743593 | Str. Calea Mosilor, nr. 100, sector 2 |
| 251. | Pizza Gotti - Pizzerie -Pantelimon | 0723439445 | Str. Sfantul Gheorghe, Nr. 11, Pantelimon, judetul Ilfov |
| 252. | China Town Restaurant - Bucuresti | 0726130138; 0788671161; Tel/Fax:0212120239 | Viitorului, Nr. 98, Sector 2, Bucuresti |
| 253. | Luna Cafe & Bistro - Bucuresti | 0771609431; 0771211246 | Str. Viitorului, Nr. 32, sector 2, |
| 254. | Nori Sushi - Restaurant cu specific japonez, Bucuresti | 0771179714 | Splaiul Unirii, nr 6, bl B3A, etaj 7-8 |
| 255. | The Dock - Lounge, Bucuresti | 0743680336 | Bulevardul Unirii, nr. 30, sector 3 |
| 256. | Fast Food Eminescu - Bucuresti | 0723161166 | Str. Mihai Eminescu, nr 137, sector 2 |
| 257. | De Cartier - Restaurant de tip familial, Bucuresti | 0213305556 | Str. Viorele, Nr. 57A, sector 4 |
| 258. | Manasia Hub - Bar Bucuresti | 0736760063 | Str. Stelea Spatarul, Nr. 13, sector 3 |
| 259. | Armand, Cofetarie - Bucuresti | 0310051187; 0741276263 | Armand Calinescu , Nr. 25, Sector 2, Bucuresti |
| 260. | Papila Kitchen - Restaurant, Bucuresti | 0753087799 | Strada Sfintilor, Nr 6, sector 2 |
| 261. | FoodVibe - Serviciu de livrare mancare | 0371333222 | Strada Sperantei, nr. 7, sector 2 |
| 262. | Tabiet 41 - Restaurant, Bucuresti | 0314260278 | Strada Viorele, nr.59, sector 4 |
| 263. | Moon Brasserie - Restaurant Bucuresti | 0723093170 | Bulevardul Unirii, Nr. 33, sector 3 |
| 264. | Nice Touch - Restaurant cu meniu international, Bucuresti | 0771568361 | Strada Sperantei, nr.7, sector 2 |
| 265. | Casual Pub - Restaurant Bucuresti | 0770841212 | Bd. Dacia, Nr. 104, Sector 2 |
| 266. | Human Coffee - Cafenea Bucuresti | 0734744429 | Str. Elena Cuza, Nr. 8, Sector 4 |
| 267. | Gambino\'s Pizza - Bucuresti | 0731707070; 0725271471; 0310050209 | Vasile Lascar, Nr.24, Sector 2, Bucuresti |
| 268. | Fabrica de mancare - Restaurant cu supe si ciorbe, Bucuresti | 0744123123 | B-dul Unirii, nr. 31, sector 3 |
| 269. | Kuma Bar - Bucuresti | 0766440936 | Strada Coltei, Nr. 50, sector 3 |
| 270. | Bistro Fum de Vorbe - Restaurant Bucuresti | 0748628830; 0723686292 | Vasile Lascar, Nr. 24, Sectorul 2 |
| 271. | DolciConi - Gelaterie Bucuresti | 0753762549 | Vasile Lascar, Nr 26-28, sector 2 |
| 272. | Level Up - Restaurant raw vegan, Bucuresti | 0721085582 | Str Sf. Vineri, Nr 10, sector 3 |
| 273. | The Clique Bistro - Restaurant cu specific international, Bucuresti | 0784901000 | Splaiul Unirii, sector 3 |
| 274. | Legere - Bar, Bucuresti | 0730534373 | Piata Rosetti, nr 5, sector 2 |
| 275. | BEAT bar umanist - Bar, Bucuresti | 0720854187 | Vasile Lascar, Nr. 29, sector 2 |
| 276. | Hanul Hangitei, Restaurant - Bucuresti | 0744827323; 0758043355 | Bd. Marasesti, Nr.70-72, Sector 4 , Bucuresti |
| 277. | Buoni e Bravi - Pizzerie, Bucuresti | 0735215224 | Piata C. A. Rosetti, nr. 3, sector 2 |
| 278. | Joy House - Restaurant Bucuresti | 0730443232 | Str. Teiul Doamnei, Nr. 9A, Sector 2 |
| 279. | SanThe Fitoceainarie - Ceainarie, Bucuresti | 0730370290 | Lipscani, nr 104, sector 3, |
| 280. | Hanul Vacaresti - Restaurant fast-food, Bucuresti | 0786200300 | Strada Pridvorului, nr. 23, sector 4 |
| 281. | Hanul Haiducilor, Restaurant - Bucuresti | 0213307207; 0771756566 | Pridvorului, Nr. 25 (In incinta Strandul Copiilor Vacaresti) , Sector 4, Bucuresti |
| 282. | Tropicana, Restaurant - Bucuresti | 0724614723 (Niculae Adrian); 0724571502 (Niculae Valentina) | Grigore Ionescu, Nr 94, Sector 2, Bucuresti |
| 283. | Time to Lunch | 0763200900 | Strada Patriei, Nr 4, sector 3 |
| 284. | Thalia - Restaurant cu bucatarie internationala | 0219993 | Strada Cuza Voda, Nr. 147, sector 4 |
| 285. | Vis a Vis - Restaurant Bucuresti | 0722102223 | Bd. I. C. Bratianu, |
| 286. | Cofetaria Ina - Bucuresti | 0723300213 | Str. C-tin Radulescu Motru, Nr. 6, Sector 4 |
| 287. | Unico Vero - Restaurant cu specific italian, Bucuresti | 0212123338;0758110265 | Strada Viitorului, Nr. 8, sector 2 |
| 288. | Teos - Restaurant Bucuresti | 0749562843 | Soseaua Cernica, Nr. 9, Pantelimon, judetul Ilfov |
| 289. | Ivy - Cafenea, Bucuresti | 0755210748 | Bulevardul Carol I, Nr. 23, sector 2 |
| 290. | Naser 2 - Restaurant traditional libanez Bucuresti | 0799997111 | Str. Maica Domnului, Nr. 5B, Sector 2 |
| 291. | Kane - Noua bucatarie romaneasca fina | 0314100016 | Str. Dianei, nr. 9 (Piata Rosetti), sector 2 |
| 292. | McDonald\'s | 0372701091 | Piata Unirii 1, Unirea Shopping Center, Bucuresti |
| 293. | Pizza Bar - Pizzerie, Bucuresti | 0746013623 | Lanariei, nr. 5, sector 4 |
| 294. | Aria Gourmet Burger - Fast food Bucuresti | 0773778860; 0773778860 | Strada Slanic, Nr. 2, Sector 3 |
| 295. | Calderon 18 - Restaurant cu terasa, Bucuresti | 0731886789 | Str. Jean Louis Calderon, Nr.18, sector 2, |
| 296. | Lloyds Pub - Bucuresti | 0723133786 | Str. Coltei, Nr. 16, Sector 3 |
| 297. | Horoscop, Restaurant, Pizzerie - Bucuresti | 0767562215 | Bd.Dimitrie Cantemir, Nr 2, Sector 4, Bucuresti |
| 298. | Sabatini Pizza - Bucuresti | 0770227880; 0766606637; 0731876441 | Teiul Doamnei, Nr. 15, Sector 2, Bucuresti |
| 299. | Sabatini Pizza - Bucuresti | 0212428725; 0731876441; 0766606637 | Teiul Doamnei , Nr 15, Sector 2, Bucuresti |
| 300. | Gelato D\'Amore - Magazin de inghetata Bucuresti | 0771727627 | Strada Maria Rosetti, Nr. 13, Sector 2 |
| 301. | Borsalino - Pizzerie Bucuresti | 0729954911; 0729954912 | Bulevardul Ion C. Bratianu, Nr. 44, Sector 3 |
| 302. | Bouzouki - Restaurant specific grecesc, Bucuresti | 0787528003 | Bulevardul Sincai Gheorghe, Nr. 3, sector 4 |
| 303. | Latin Pizza - Pizzerie, Bucuresti | 0751896358 | Bulevardul Ion C. Bratianu, Nr. 34, sector 3 |
| 304. | Naive - Restaurant cu bar, Bucuresti | 0725550333 | Bd. I.C. Bratianu, Nr. 36, sector 3 |
| 305. | Emozia coffee manifesto - Cafenea, Bucuresti | 0742023590;0726201527 | Strada Halelor, nr. 17, sector 3 |
| 306. | La 100 de Beri - Bar specializat in bere, Bucuresti | 0733282598 | Str. Gabroveni, Nr.61, sector 3 |
| 307. | Kentucky Fried Chicken KFC, Fast Food - Bucuresti | 0757015948; 0212039030; 0213120023 | Soseaua Oltenitei, Nr.85, Sector 4, Bucuresti |
| 308. | Lacrimi si Sfinti, Restaurant - Bucuresti | 0725558286; 0372773999 | Sepcari, Nr.16 (Centrul Vechi) Sector 3, Bucuresti |
| 309. | Beautyfood - Bistro, Bucuresti | 0759030609 | Jean Louis Calderon, Nr. 34, sector 2 |
| 310. | Industry Wine Bar- Bar cu vinuri, Bucuresti | 0722777222 | str. Sepcari, Nr. 19, sector 3 |
| 311. | Patiseria Tineretului - Bucuresti | 0761116622 | Bd. Gheorghe Sincai, Nr 2A, sector 4 |
| 312. | Sugarography - Atelier de dulciuri Bucuresti | Bucuresti, | |
| 313. | Cofetaria Macarons - Bucuresti | 0771425575 | Bucuresti, |
| 314. | Imperial Turkish Cuisine & Steakhouse- Restaurant Bucuresti | 0720102222 | Strada Jean Louis Calderon, Nr. 33, Sector 2 |
| 315. | OPUS TNB - Bar specializat in cocktailuri | 0771595407 | Bulevardul Nicolae Balcescu, Nr. 2, sector 1 |
| 316. | Angelo Grasso - Restaurant cu specific italian, Bucuresti | 0739955555 | Strada Tudor Arghezi, 12-16, sector 2 |
| 317. | Ici et La - Restaurant cu specific francez Bucuresti | 0731453608 | Strada Domnita Ruxandra, Nr. 7, Sector 2 |
| 318. | Hanul lui Manuc, Restaurant si Cafenea - Bucuresti | 0213131411; 0769075844; 0730188653 | Franceza, Nr. 62-64, Sector 3 , Bucuresti |
| 319. | Extra Time - Pub Bucuresti | 0732166605 | Strada Lipscani, Nr. 82A, sector 3 |
| 320. | Pasticceria Giuseppina Cofetarie - Bucuresti | 0730283947 | Soseaua Stefan cel Mare, Nr.46, Sector 2, Bucuresti |
| 321. | La Cena - Restaurant cu specific italian, Bucuresti | 0212116717;0730210014 | Maria Rosetti, Nr. 1, sector 2 |
| 322. | Hanul lui Manuc, Restaurant - Bucuresti | 0213131411; 0769075844; 0730188653 | Franceza, Nr. 62-64, Sector 3, Bucuresti |
| 323. | Mojo Music Club - Bucuresti | 0737220220 | Gabroveni, Nr.14, Sector 3, Bucuresti |
| 324. | Mao Pub - Bucuresti | 0771305995 | Str. Lipscani, Nr. 69, Sector 3 |
| 325. | Thors Hammer - Bar Bucuresti | 0729176724 | Str Blanari, Nr. 12, sector 3 |
| 326. | Leonidas Cofetarie - Bucuresti | 0740014695; 0213141377 | Doamnei, Nr. 27 , Sector 3, Bucuresti |
| 327. | Mica Elvetie Restaurant - Bucuresti | 0212245017 | Franceza, Nr. 60-62, Sector 3, Bucuresti |
| 328. | Hanul lui Manuc, Restaurant - Bucuresti | 0730188653; 0213122811; 0769075844 | Franceza , Nr. 62-64, Sector 3 , Bucuresti |
| 329. | Osteria Zucca - Restaurant cu specific italian, Bucuresti | 0770287979; 0314206814 | Jean-Louis Calderon, Nr. 41, Sector 2, Bucuresti |
| 330. | Bazaar - Restaurant Bucuresti | 0721999999 | Strada Covaci, Nr. 10, sector 3 |
| 331. | 1974 Niste Domni si Fii - Bar Restaurant Bucuresti | 0721551099; 0723629306 | Covaci, Nr. 7, Sector 3, Bucuresti |
| 332. | The Urbanist - Bar specializat in cocktailuri, Bucuresti | 0741392558 | Strada Caldarari, Nr. 3, sector 3 |
| 333. | QP Pub - Bucuresti | 0736405451 | Str. General David Praporgescu, Nr. 13, sector 2 |
| 334. | Fadel - Patiserie Bucuresti | 0786309530; 0722919132 | Strada Jean Louis Calderon, Nr. 56, Sector 2 |
| 335. | Lolita - Boutique de dulciuri Bucuresti | 0757013453 | Strada Vasile Lascar, Nr. 212, sector 2 |
| 336. | Pizzeria La Coco - Bucuresti | 0731744444 | Str. Gabroveni, Nr. 31, Sector 3 |
| 337. | La Mosu - Restaurant Bucuresti | 0765523208; 0314382508 | Soseaua Oltenitei, Nr. 197, Sector 4 |
| 338. | Bodega La Mahala - Restaurant Bucuresti | 0732166606 | Covaci, Nr. 8, Sector 3 |
| 339. | Gradina Urbana - Restaurant cu specific american, Bucuresti | 0745250077 | Strada Batistei, Nr. 14, sector 2 |
| 340. | Argentin - Restaurant Bucuresti | 0774462430; 0774462431 | Strada Blanari, Nr. 11-15, Sector 3 |
| 341. | Mica Elvetie Restaurant | 0212245017 | Franceza, Nr. 60-62, Sector 3, Bucuresti |
| 342. | Fire Club Pub - Bucuresti | 0732166604 | Covaci, Nr. 7, Sector 3, Bucuresti |
| 343. | Newton Bar, Bucuresti | 0770718303; 0213150217 | Jean Louis Calderon, Nr. 56 (Universitate), Sector 2, Bucuresti |
| 344. | The Temple Social Pub - Bucuresti | 0723469118 | Bd. Marasesti, Nr. 71-73 sector 4 |
| 345. | Pizzicato, Pizzerie si catering - Bucuresti | 0212111213 | Strada Icoanei, Nr. 2, Sector 2, Bucuresti |
| 346. | Templul Soarelui, Restaurant chinezesc - Bucuresti | 0212111693; 0723743878 | Vasile Lascar, Nr. 205, Sector 2, Bucuresti |
| 347. | Templul Soarelui, Restaurant chinezesc - Bucuresti | 0212111693; 0723743878 | Vasile Lascar, Nr. 205, Sector 2, Bucuresti |
| 348. | Bere si Bere - Pub, bere craft si muzica rock | 0723280040 | Str. Gabroveni, Nr. 4, sector 3 |
| 349. | Private Hell - Club, Bucuresti | 0757508336 | Str. Soarelui, nr. 5, Sector 3 |
| 350. | Edessa - Restaurant cu specific turcesc | 0735636363;0723656325 | Soseaua Colentina, Nr. 281A, sector 2 |
| 351. | La Baraca - Bar & Grill Bucuresti | 0758986045 | Str. Pargarilor, Nr. 17bis, sector 2 |
| 352. | Boulevard Pub - Bucuresti | 0753966961 | Strada Covaci, Nr. 4, sector 3 |
| 353. | Bruno Wine Bar - Bar cu vinuri, Bucuresti | 0751220229 | Strada Covaci, Nr. 3, Centrul Vechi |
| 354. | Kral CigKofte - Restaurant vegan, Bucuresti | 0725025700 | Soseaua Andronache, Nr. 5, sector 2 |
| 355. | L\'Amande - Deserturi fara gluten, Bucuresti | 0744639549 | Str. Lanariei, Nr. 93-95, sector 4 |
| 356. | Taverna Covaci - Restaurant cu specific romanesc, Bucuresti | 0747226677 | Str. Covaci, Nr. 1, sector 3 |
| 357. | Gilda Music Lounge - Restaurant club Bucuresti | 0786770941 | Strada Lipscani, Nr. 53, sector 3 |
| 358. | Carina Sweets - Cofetarie Bucuresti | 0771261485 | Sos Oltenitei, Nr. 230, Sector 4 |
| 359. | Kiosque des Douceurs - Cofetarie Bucuresti | 0758090763 | Str. Selari, Nr. 3, Sector. 3, Centrul Vechi |
| 360. | UAU Il Gelato - Gelaterie Bucuresti | 0723135015 | Str. Gabroveni, Nr. 1-3, sector 3, |
| 361. | Refugiu - Restaurant Bucuresti | 0763478438;0727626981 | Strada Otesani, Nr 73 , Sector 2 |
| 362. | Curtea Berarilor, Restaurant terasa - Bucuresti | 0213137532 | Selari, Nr.9-11, sector 3, Bucuresti |
| 363. | NoName, Restaurant - Bucuresti | 0761280642 (Mioara); 0732381801 (Adrian) | Mariuca, Nr 1A,Sector 4, Bucuresti |
| 364. | Old Habits - Club de noapte si de dans | 0728776699 | Strada Lipscani, Nr. 38, sector 3 |
| 365. | Sinners - Pub, Bucuresti | 0737343210 | Covaci, nr.2 , Centrul Vechi, sector 3 |
| 366. | Gyros Thessalonikis | 0770302148 | Strada Gabroveni, Nr. 2,sector 3 |
| 367. | Victorita Pescarita - Restaurant pescaresc, Bucuresti | 0764400437 | Sos Andronache, Nr 17, sector 2 |
| 368. | Curtea Berarilor, Bar & Grill - Bucuresti | 0213137532; 0735861682 (Radu); 0735861681 (Sorina) | Selari, Nr. 9-11,Sector 3 (Zona Lipscani), Bucuresti |
| 369. | The Drunken Lords - Pub, Bucuresti | 0736238815 | Intr. Selari, Nr. 3-5, sector 3 |
| 370. | Times Cocktail Bar - Pub, Bucuresti | 0731032330 | Intrarea Nicolae Selari, nr.1,sector 3, |
| 371. | Athos Pizza & Bistro - Livrare non stop, Bucuresti | 0213344287; 0728276192 | Sos Oltenitei, Nr. 250 Berceni Ira |
| 372. | Cald si Bun, Catering - Bucuresti | 0212339457; 0737526215 | Hatmanul Arbore, Nr. 11, Sector 1, Bucuresti |
| 373. | NoName, Restaurant si Terasa - Bucuresti | 0761280642 | Mariuca, Nr 1A,Sector 4, Bucuresti |
| 374. | Xclusive Pub - Bar & Grill, Bucuresti | 0723166463 | Str. Lipscani, nr. 36, sector 3 |
| 375. | Jos Palaria Cafe - Bucuresti | 0314321029 | Toma Caragiu , Nr. 3, Sector 3 , Bucuresti |
| 376. | Shoteria - Shotbar, Bucuresti | 0721203039; 0372916947 | Strada Selari, Nr. 17, sector 3 |
| 377. | Calif - Restaurant fast-food, Bucuresti | 0756200325 | Selari, Nr. 19, sector 3, |
| vezi mai multe | |||
| 1. | TITAN | Tel. 0732.995.515 | Str. Liviu Rebreanu nr. 6A, sector 3, |
| 2. | Penny Market | 0800.110.111 | Bd.1 Decembrie 1918, nr. 33, sector 3, |
| 3. | AUCHAN | Tel. 021.408.01.07; 021.408.01.08 | Bd. 1 Decembrie 1918 nr. 33A, sector 3, |
| 4. | BILLA | Tel. 021.345.27.51; Fax 021.345.26.46 | Str. Postavarul 24-52, sector 3 |
| 5. | IRIS SHOPPING CENTER | 0314.38.29.70 Cine Grand | Bd. 1 Decembrie 1918, nr. 33A, sector 3, Bucuresti |
| 6. | IRIS SHOPPING CENTER | 021.345.01.29 | Bd. 1 Decembrie 1918, nr. 33A, sector 3, Bucuresti |
| 7. | Wini Imobili | Tel.021.307.60.50; 0742.144.034, 0755.068.669; Fax.021.307.60.51 | Pierre de Coubertin, nr. 3-5, sector 2, Bucuresti |
| 8. | MEGA MALL | Str. Pierre de Coubertin, nr. 3-5, langa Arena Nationala, | |
| 9. | CORA | Tel. 021.205.35.00 | Sos. Vergului, nr. 20, sector 2, |
| 10. | CONCORD 2002 | Tel/Fax 323.90.87 | Bd. Decebal nr. 7, sector 3 |
| 11. | FOR YOU | Tel. 0745.094.433 | Bd. Decebal nr. 24, sector 3 |
| 12. | KIKA | 0372330501; 0372330630; 0372330637 | Bulevardul Theodor Pallady, 51 D ,Sector 3, Bucuresti |
| 13. | BUCURESTI MALL | Tel. 021.327.67.00; 021.327.61.00; 021.327.61.02; Fax 021.320.92.09 | Calea Vitan nr. 55-59, sector 3, |
| 14. | SUPERMARKET MAICOM | Tel. 0722.322.573; Fax 321.78.36 | Str. Vitan nr. 104, sector 3 |
| 15. | AUCHAN | Tel. 0750.014.150 | Calea Vitan nr. 236, sector 3, |
| 16. | GMARKET | Bucuresti | |
| 17. | Ava Center | 0769240700; 0213201626; 0730096166 | Mihai Bravu, Nr. 540-564, Sector 3, Bucuresti |
| 18. | FONZI SUPERMARKET | Tel. 0729.005.260; Tel/Fax 021.323.67.52 | Str. Nerva Traian, nr. 17-19, sector 3, |
| 19. | BUCUR OBOR | 021.252.59.34; 021.252.59.35; 021.252.63.82 | Sos.Colentina, nr. 2, sector 2 , Bucuresti |
| 20. | Penny Market XXL | 0800.110.111 | Sos.Fundeni, nr. 38-40, sector 2, Bucuresti |
| 21. | Vitantis Shopping Center Bucuresti - Magazine retail Praktiker, Diego si Casa Rusu | 0213104513; Fax: 0213150813 | Soseaua Vitan-Barzesti, nr. 7A, sector 4, Bucuresti |
| 22. | CARREFOUR | Tel. 0374.145.800; Fax 021.307.66.96 | Bd. Corneliu Coposu nr. 2, sector 3, |
| 23. | DENISA MARKET | Tel. 021.211.71.70; 0722.691.595; 0749.263.036; Fax 021.211.71.70 | Str. Rasuri nr. 1, sector 2 |
| 24. | COCOR | Tel. 021.313.14.03; 021.313.92.39; 021.314.96.64; 021.314.96.65; Fax 021.313.98.48 | Bd. I.C. Bratianu nr. 29-33, sector 3, |
| 25. | Cocor Luxury Store | 021.312.43.10; Fax: 021.313.98.48 | Bd. I.C. Bratianu, nr. 29-33, sector 3, |
| 26. | KAUFLAND | Tel. 0372.091.001 | Sos. Colentina nr. 6, sector 2, |
| 27. | SUN PLAZA MALL | 021.233.17.45; 0720.200.582 | Calea Vacaresti, nr. 391, Piata Sudului, sector 4, Bucuresti |
| vezi mai multe | |||


Vezi galeria
104
,135
,311
,330