265.000 €
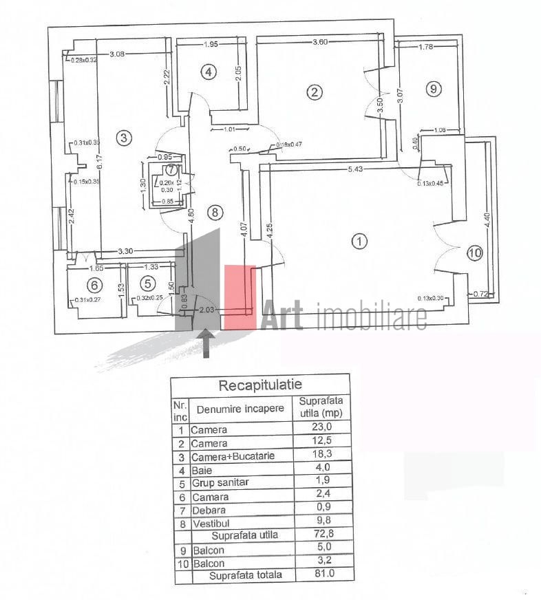
Natiunile Unite Ap. decomandat 3 camere, Suprafata utila 73 mp, Bdul. Natiunile Unite
- Suprafata 73 mp
- An 1995
- Decomandat
- Etaj 2 din 7
Izvor ...
6 min.
Calculeaza distanta
4.916 vizite
Descriere anunt
Natiunile Unite Ap. decomandat 3 camere, Suprafata utila 73 mp, Bdul. Natiunile Unite
Daca va plac spatiile generoase pe care le puteti amenaja dupa propria dumneavoastra dorinta, acest apartament va fi cu siguranta pe placul dvs.
Situat in centrul capitalei, in imediata apropiere a Palatului Parlamentului, pe Bulevardul Natiunile Unite, la etajul 2/7, apartamentul dispune de:
- Living in suprafata de 23 mp
- Bucatarie deschisa + camera in suprafata de 18,3 mp
- Camera in suprafata de 12,5 mp
- 2 grupuri sanitare (baie 4 mp + grup sanitar 1,9 mp)
- 2 balcoane inchise
Apartamentul este semi-mobilat cu 2 biblioteci si 2 birouri avand mobila de colectie din lemn masiv si dispune de doua spatii de depozitare ce se pot amenaja dupa preferintele dvs.
Comisionul agentiei este de 2%+TVA.
Va asteptam la vizionare!
Cod oferta: 2790435
Caracteristici, dotari
Optiuni interior
2 grupuri sanitare
Balcon
Acces mijloace transport
| Statii metrou | Timp | |
|---|---|---|
![]() |
Izvor | 6 min. |
![]() |
Piața Unirii 1 | 13 min. |
![]() |
Piața Unirii 2 | 19 min. |
| Statii STB | Timp |
|---|---|
|
Palatul Parlamentului
136
,385
|
1 min. |
|
Bd. Națiunile Unite
|
5 min. |
|
Pod Izvor
104
,123
,124
,136
,385
|
7 min. |
|
Izvor
|
7 min. |
|
Piața Națiunile Unite
104
,123
,124
,385
|
9 min. |
|
Teatrul Bulandra
104
,123
,124
|
9 min. |
|
Elie Radu
104
,123
,124
,385
|
10 min. |
|
CEC
|
10 min. |
Obiective interes
| 1. | Gradinita nr. 73 sector 5 | 0213154355 | Splaiul Independentei, nr. 68, sector 5 |
| 2. | Ray of Light Montessori - Gradinita, Bucuresti | Str. Gladiolelor, Nr. 15, sector 4 | |
| 3. | Pisicile Aristocrate - Gradinita sector 4 | 0213350635; 0213363680 | Bd. Regina Maria, nr. 28-30, Sector 4 |
| 4. | Prikindel - Cresa, Gradinita & After School - Bucuresti | 0314059269; 0722522198 | Str. Sf. Ilie, nr. 5, sector 4, |
| 5. | Rainbow Kids - Gradinita si scoala primara Bucuresti | 0737081690; 0773349170 | Str. Ion Dragalina, Nr. 8, Sector 5, Bucuresti |
| 6. | Taramul Cunoasterii - Cresa si Gradinita Bucuresti | 0724278826 | Str. Ioan G. Bibicescu, Nr. 11, Sector 1, Bucuresti |
| 7. | Don Quijote - Afterschool Bucuresti | 0725737793 | Str. Ioan Slavici, nr. 4, sector 1 |
| 8. | Children\'s Joy, Gradinita & After School - Bucuresti | 0731258277; 0754317732 | Str. Gramont, Nr. 3, Sector 4, Bucuresti |
| 9. | Buna Vestire - Gradinita, After School sector 4 | 0787435172 | Str. Episcopul Chesarie, nr. 9, Sector 4 |
| 10. | Clubul Micul Print - afterschool Bucuresti | 0733750795 | Str. Dr. Nicolae Staicovici, Nr. 51, Sector 5, Bucuresti |
| 11. | Puisor - Gradinita Nr. 268 Bucuresti | 0214104010 | Str. Ion Creanga, Nr. 8, Sector 5, Bucuresti |
| 12. | My Universe - Afterschool si gradinita, Bucuresti | 0788416164 | Str. Costache Negri, Nr. 9-11, sector 5 |
| 13. | Edu Friends - Before & After School Bucuresti | 0783080096 | Str. Berzei, Nr. 5, Sector 1 |
| 14. | Micii Poznasi - Cresa, Gradinita Bucuresti | 0725911233 | Calea Serban Voda, Nr. 22-24, Sector 4 |
| 15. | Lumea lui Momo - Gradinita Bucuresti | 0748055255 | Str. Ipotesti, Nr. 23, Sector 4 |
| 16. | Gradinita MAPN Nr. 2 Bucuresti | 0213156889 | Str. Constantin Cristescu, nr. 5, sector 1 |
| 17. | Waldorf Christophori - Gradinita Bucuresti | 0770861602 | Str. Putul cu Plopi, Nr. 8, (langa Parcul Cismigiu) - sector 1, Bucuresti |
| 18. | Roxy Baby - Cresa Particulara Bucuresti | 0314254309; 0723274924 | Str. Slobozia, Nr. 29 , Sector 4, Bucuresti |
| 19. | Sfantul Nicolae, Gradinita & After School - Bucuresti | 0729611918 | Str. Sirenelor, Nr. 56-58, Sector 5, Bucuresti |
| 20. | Copacelul Vietii - Gradinita Bucuresti | 0721464185 | Str. Radu Calomfirescu, nr. 9, sector 3 |
| 21. | Fridolin - Gradinita, Scoala Germana Bucuresti | 0723219616; 0723584872 | Str. Temisana, Nr. 1, Sector 1, Bucuresti |
| 22. | Ina School - Gradinita si scoala primara, Bucuresti | 0722500899 | Str. Lacul Gorgova, nr. 2, Sector 2 |
| 23. | Olga Gudynn, Gradinita si Scoala Cotroceni - Bucuresti | 0734411332; 0214106995 | Str. Fagaras, Nr. 6, Sector 1, Bucuresti |
| 24. | Asociatia Conil - Gradinita pentru copii cu nevoi speciale Bucuresti | 0784412222; 0217466704; 0735847526 | Str. Dr. Victor Poloni , nr 14, Sector 5, Bucuresti |
| 25. | Copii de Poveste - Gradinita sector 4 | 0740051582 | Str. Poterasi, nr. 5, sector 4 |
| 26. | Gradinita nr. 30 sector 4 | 0213362078 | Bd. Dimitrie Cantemir, nr. 16A, Sector 4 |
| 27. | Centrul multifunctional Cresa Craiasa Zapezii sector 4 | 0371360117; 0371360127 | Str. Oitelor, nr. 50, sector 4 |
| 28. | Ana Lugojana - Gradinite, Scoala Primara, Gimnaziala si After School Bucuresti | 0724342409 | Str. Constantin Miculescu, nr. 10, sector 5, Bucuresti |
| 29. | Maria International School - Gradinita, Scoala primara si afterschool Bucuresti | 0730432092 | Str. Piata Amzei, Nr. 6, Sector 1, Bucuresti |
| 30. | Gradinita nr. 269 sector 5 | 0213354544 | Str. Constantin Miculescu, nr. 12, sector 5 |
| 31. | Gradinita Nr. 203 Bucuresti | 0213112352 | Str. C. A. Rosetti, nr. 32, Sector 1 |
| 32. | Lauder-Reut Kindergarten - Gradinita Bucuresti | 0318055772; 0723098800; 0735505395 | Str. Iuliu Barasch, Nr. 15, Sector 3, Bucuresti |
| 33. | Clubul Boreal, Gradinita - Bucuresti | 0721124249 | Str. Valerian Prescurea, Nr. 5, Sector 4, Bucuresti |
| 34. | Scufita Rosie - Gradinita sector 4 | 0766541207 | Calea Serban Voda, nr. 170 , sector 4 |
| 35. | Copil Dorit - Gradinita Bucuresti | 0736820068; 0722166358 | Sos. Viilor, Nr. 33, Sector 5, Bucuresti |
| 36. | Elite - Cresa, Gradinita Bucuresti | 0766687691 | Str. Lanariei, Nr. 136, Sector 4, Bucuresti |
| 37. | Genius Academy - Cresa, Gradinita , Scoala Primara si After School Bucuresti | 0724111678; 0744638435 | Calea Serban Voda, nr. 145, sector 4 |
| 38. | Gradinita nr. 271 sector 5 | 0214109024 | Bd. Eroii Sanitari, nr. 77, sector 5 |
| 39. | Melba - Centru Educational Bucuresti | 0722461015 | Str. Lanariei, Nr. 117 , Sector 4, Bucuresti |
| 40. | Montessori Edu - Centru educational, Bucuresti | 0721833901 | Str. Mantuleasa, nr. 21, sector 2 |
| 41. | Kinderakademie - Gradinita & After School Bucuresti | 0724661760; 0727427004 | Str. Sfintii Voievozi, Nr. 28, Sector 1, Bucuresti |
| 42. | Discover Me- Gradinita Bucuresti | 0747774809 | Str. Constantin Noica, Nr. 120, sector 6, Bucuresti |
| 43. | Central Art Studio - After School/Cursuri Pentru Copii/Scoala de Vara Bucuresti | 0745633737; 0765454244 | Str. Popa Soare, nr. 29, sector 2 |
| 44. | Licurici - Gradinita sector 4 | 0314377556; 0767503191 | Str. Cuza Voda, nr. 141 A, Sector 4 |
| 45. | Electromagnetica - Gradinita sector 5 | 0218915699; 0214232110 | Calea Rahovei, nr. 266, sector 5 |
| 46. | Gradinita M.Ap.N. nr. 1 sector 6 | 0213196009; 0766298724 | Calea Plevnei, nr. 137B, sector 6 |
| 47. | Adnan, Gradinita - Bucuresti | 0744606010; 0722205243 | Intr. Buturugeni, Nr. 7 Sector 5, Bucuresti |
| 48. | Ioanid - Gradinita Bucuresti | 0758054441 | Str. Polona, Nr. 4, Sector 1, |
| 49. | Gradinita Nr. 257 Alice sector 2 | 0212114524 | Str. Alexandru Donici, Nr. 23, sector 2 |
| 50. | Mihai Ionescu - Gradinita, Scoala, Liceu Bucuresti | 0213235495 | Str. Parfumului, Nr. 31, Sector 2, Bucuresti |
| 51. | Little Team - Gradinita / After School Bucuresti | 0799774767 | Calea 13 Septembrie, nr. 191, sector 5 |
| 52. | Kinderträume - Gradinita Bucuresti | 0744507988 | Splaiul Independentei, Nr. 195, sector 6, Bucuresti |
| 53. | Gradinita Nr. 133 sector 2 | 0212116749 | Str. Aurel Vlaicu, nr. 30 - 32, sector 2 |
| 54. | Paradisul Copiilor - Gradinita & After School Bucuresti | 0730007062 | Str. G-ral. Haralambie Nicolae, Nr. 38, Sector 4, Bucuresti |
| 55. | Academia Gifted International, Gradinita & After School - Bucuresti | 0724381661; 0722277090 | Str. Sold. Simion Stefan, nr. 39, sector 4, Bucuresti |
| 56. | Copiii Montessori - Gradinita sector 3 | 0721204642 | Str. Labirint, nr. 95, Sector 3 |
| 57. | Smart Kinder Villa - Before & After School Bucuresti | 0726285699; 0728472197 | Str. Nicolae Beldiceanu, nr. 2, sector 1 |
| 58. | Scoala Italiana Aldo Moro - Gradinita,scoala, liceu, Bucuresti | 0212104684 | Intr. Blaj, nr. 1, Sector 1, Bucuresti |
| 59. | Centrul Social Multifunctional Cresa Scufita Rosie sector 4 | 0733200109; 0372874267; 0372715100, 0372715101 | Aleea Tohani, nr. 1, bl.30, sc. 1, parter, sector 4 |
| 60. | Zum Zum - Gradinita Bucuresti | 0745685556; 0740704922 | Str. Vespasian, Nr. 37, Sector 1, Bucuresti |
| 61. | Gradinita Magica, Bucuresti | 0765221341; 0723892378 | Str. Stefan Mihaileanu, Nr. 33, Sector 2, Bucuresti |
| 62. | Casuta cu ferestre - Gradinita Bucuresti | 0721660052 | Str. Gheorghe Lupu, nr. 19, sector 4 |
| 63. | Big Smile - Gradinita, scoala primara, After School Bucuresti | 0722557333 | Str. Cutitul de Argint, nr. 74, sector 4, Bucuresti |
| 64. | Mami si Tati - Gradinita, Before & After School Bucuresti | 0721177543; 0762616442 | Str. Grigore Alexandrescu, Nr. 58, sector 1, Bucuresti |
| 65. | CoolTure MindS - After School Bucuresti | 0743359307 | Bd. Alexandru Ioan Cuza, nr. 37, Sector 1 |
| 66. | Gradinita Nr. 252 Bucuresti | 0212302296 | Calea Dorobantilor, nr. 60, sector 1 |
| 67. | Jolly Pepe - Club educational pentru copii si adulti, Before&After School sector 4 | 0748080088 | Str. Mitropolit Grigore, nr. 4A, parter, sector 4 |
| 68. | Acorns British Style Nursery, Gradinita & After School, Bucuresti | 0722476581; 0788418186 | Str. Popa Soare, Nr. 63, Sector 2, Bucuresti |
| 69. | LTN Liceul Teoretic National - Gradinita, Gimnaziu, Liceu - Bucuresti | 0720000171; 0732151931 | Str. Dr. Iacob Felix, nr. 49, Sector 1, Bucuresti |
| 70. | Mell - Gradinita cu Program Normal sector 3 | 0744564426; 0722958683 | Str. Vlad Dracu, nr. 43, sector 3 |
| 71. | Gradinita nr. 205 sector 5 | 0214233610 | Calea Ferentari, nr. 2, sector 5 |
| 72. | Maria Ward - Gradinita sector 4 | 0722789787 | Calea Serban Voda, nr. 223, sector 4 |
| 73. | Sf. Imparati Constantin si Elena, Gradinita Bucuresti | 0722237110; 0722293056; 0213261361 | Str. Labirint, Nr. 137 B , Sector 3, Bucuresti |
| 74. | Dani\'s Children, Cresa, Gradinita, After School - Bucuresti | 0721800099 | Str. Silvestru, Nr. 42, Sector 2, Bucuresti |
| 75. | Alfred Fronius - Gradinita si afterschool in limba germana Bucuresti | 0729699619; 0726715499 | Str. Tunari, Nr. 39, Sector 2, Bucuresti |
| 76. | Gradinita Montessori Livada cu copii sector 2 | 0757467127; 0721204642 | Str. Toamnei, nr. 76-78, sector 2 |
| 77. | Top Kids - Gradinita sector 5 | 0214237723; 0737215703 ; 0764392790 | Str. Sergent Gheorghe Donici, Nr. 26-28, Sector 5 |
| 78. | Cartea cu Povesti - Gradinita Bucuresti | 0766237114 | Str. Aurel Vlaicu, nr. 127A, sector 2, |
| 79. | Gradinita Nr. 168 sector 5 | 0213363515 | Sos. Viilor, nr. 99, sector 5 |
| 80. | Alfred Fronius - Gradinita si afterschool in limba germana Bucuresti | 0372978427; 0726715499 | Str. Tunari, Nr. 39 (zona Stefan Cel Mare), sector 2 |
| 81. | PRO Academy Afterschool | 0744501156 | Str. Sibiel, nr. 6, Sector 4 |
| 82. | Orhideea Kids - Gradinita & After School Bucuresti | 0748595311 | Calea Plevnei, Nr. 145B, sector 1, Bucuresti |
| 83. | Licurici - Gradinita Bucuresti | 0212104790 | Bd. Dacia, Nr. 134, Sector2, Bucuresti |
| 84. | Gradinita nr. 206 - Gradinita cu program prelungit Bucuresti | 0212229287 | Str. Constantin Disescu, nr. 37, sector 1 |
| 85. | Nicoland - Cresa, Gradinita Bucuresti | 0766237114 | Str. Raspantiilor, Nr. 7, Sector 2 |
| 86. | Palatul Copiilor - Gradinita, After School sector 3 | 0740673742; 0314251635 | Str. Morilor, Nr. 19, sector 3 |
| 87. | Centrul Educational Nordic sector 4 | 0786391446 | Splaiul Unirii, Nr. 176, Corp D3, Sector 4 |
| 88. | Gradinita nr. 138 sector 2 | 0212106377 | Str. Tunari, nr. 52, sector 2 |
| 89. | Creative Minds Kindergarten - Gradinita Bucuresti | 0726152551 | Str. Alexandru Deparateanu, nr. 38, sector 1 |
| 90. | Iepurasul cel Istet - Cresa, Gradinita, After School sector 2 | 0731488715; 0722121779 | Str. Mihai Eminescu, nr. 179, sector 2 |
| 91. | Noel - Gradinita & After School Bucuresti | 0728459857; 0725839363 | Str. Trifoi, Nr. 10, Sector 3, Bucuresti |
| 92. | Tom Sawyer - Gradinita sector 2 | 0722529958 | Str. Bratului, nr. 14, sector 2 |
| 93. | Academia Fantastica - Gradinita, Before & After School sector 3 | 0731027321; 0723337393; 0213065370 | Str. Moise Nicoara, Nr. 7, Sector 3 |
| 94. | Aurora - Gradinita & After School sector 3 | 0744317320; 0213224168 | Str. Moise Nicoar?, nr. 9-11, sector 3 |
| 95. | Happy Planet Kids - Gradinita Bucuresti | 0214106984; 0722319863; 0740843914 | Str. Lt. Col. C-tin Marinescu, Nr. 17B, Sector 6, Bucuresti |
| 96. | Puzzle Edu Center - Centru educational sector 2 | 0724536293 | Str. Gheorghe Pop de Basesti, nr. 17, Sector 2 |
| 97. | Castelino Baby - Gradinita Bucuresti | 0731995600 | Str. Prof. Ion Ursu, nr. 21, sector 2, |
| 98. | Aristokids, Gradinita & After School - Bucuresti | 0722648885 | Str. Lebedei, Nr. 25, Sector 1, Bucuresti |
| 99. | Kinderium - Before & After School Bucuresti | 0726177868 | Drumul Sarii, nr. 4A, sector 6 |
| 100. | Gradinita Nr. 248 Bucuresti | 0212224120 | Str. Artur Vartejeanu, Nr. 15, Sector 1 |
| 101. | Oskar - Before and After School Piata Victoriei | 0730948470 | Str. Monetariei, Nr. 14, Sector 1, Bucuresti |
| 102. | Family Kids, Gradinita si After School - Bucuresti | 0722565657; 0723281551 | Str. Mugur Mugurel, Nr. 21, Sector 3, Bucuresti |
| 103. | Gradinita Nr. 178 Flori de Tei sector 5 | 0214234065 | Str. Iancu Jianu, Nr. 26, Sector 5 |
| 104. | Oskar - Before&After School Bucuresti | 0734040227; 0730948470 | Str. Monetariei, nr. 12, sector 1 |
| 105. | Arlechino & Friends - Gradinita si afterschool - Bucuresti | 0723264032; 0749028820; 0213260584 | Str. Cezar Boliac, Nr. 22-24, Sector 3, Bucuresti |
| 106. | Max und Moritz Kinder - Gradinita limba germana & After School Bucuresti | 0726374434 | Str. Plugarilor, Nr. 24, Sector 4, Bucuresti |
| 107. | Little Primary Education - Gradinita Bucuresti | 0733331333 | Intr. Docherilor, Nr. 3, Sector 2 |
| 108. | Alexandra Kids, Gradinita, After School - Bucuresti | 0722151836; 0214206927 | Str. Petre Ispirescu, Nr. 69, Sector 5, Bucuresti |
| 109. | Dreamland - Gradinita Bucuresti | 0787521511 | Str. Plugarilor, nr. 20-22, Sector 4, Bucuresti |
| 110. | Betty-Mar House - After / Before School, Bucuresti | 0732871827 | Str. Otescu Ion Nonna, nr. 23, sector 6 |
| 111. | Castelul Bucuriei - Gradinita Bucuresti | 0730515181 | Str. Vasile Voiculescu, nr. 30, sector 3 |
| 112. | Bambi Step by Step- Gradinita Bucuresti | 0213273256; 0317102928 | Str. Gh. Dem Teodorescu, Nr.16 bis, Sector 3, Bucuresti |
| 113. | Bell - Gradinita, Afterschool Bucuresti | 0728694516 | Str. Mecet, Nr. 53, Sector 2 |
| 114. | Miro Kids World - Cresa, gradinita Bucuresti | 0767331173; 0756199161 | Str. Miroslavei, nr. 9, Sector 5 |
| 115. | Sonnenblume Kinderinstitut - Gradinita, Cresa Montessori Bucuresti | 0726471469 | Str. Calusei, nr. 36, sector 2 |
| 116. | Kindi - Centru de educatie timpurie Montessori, Bucuresti | 0726876873 | Str. Delea Veche, Nr 35, sector 2 |
| 117. | Don Castor, Gradinita & After School - Bucuresti | 0757073929; 0217945396 | Str. Vaselor, Nr. 17A, Sector 2, Bucuresti |
| 118. | Clubul Copiilor Sector 2 - Bucuresti | 0212106432 | Intr. Cobilitei, Nr. 8, Sector 2, Bucuresti |
| 119. | Marchengarten - Gradinita cu predare bilingva sector 6 | 0744378796 | Str. G-ral Ioan Culcer, nr. 49, sector 6 |
| 120. | Monteclaris - Gradinita, before si afterschool Bucuresti | 0724671560; 0784606075 | Str. Maria Hagi Moscu, Nr. 29, Sector 1 |
| 121. | Pitiricky - Clubul celor mici - Bucuresti | 0724648513 | Str. Ialomicioarei, Nr. 13, Sector 1, Bucuresti |
| 122. | Hands-On - Centru educational Bucuresti | 0725977815 | Bd. Iuliu Maniu, nr. 7, Cotroceni Business Center, Corp U, parter, sector 6 |
| 123. | Micul Lord Gradinita - Bucuresti | 0730093603; 0745101507 | Str. Lespezi, nr. 4 , sector 5, |
| 124. | Gradinita Nr.161 (Brandusa) sector 3 | 0314250834; 0314250835 | Str. Branduselor, Nr. 37/43, sector 3 |
| 125. | Kiga 99 Luftballons - Gradinita, After School in limba germana Bucuresti | 0722395197; 0745423467 | Str. Theodor Sperantia, nr. 81, sector 3 |
| 126. | Cei Trei Muschetari - Before si After School, Bucuresti | 0724384924 | Str. Vaselor, Nr. 40, Sector 2, Bucuresti |
| 127. | Gradinita nr. 54 sector 5 | 0214231217 | Calea Ferentari, nr. 96, sector 5 |
| 128. | Oxigen Sport - Befor School, After School Bucuresti | 0722529429 | Str. Duzilor, Nr. 23, sector 2, Bucuresti |
| 129. | Happy Kids - Gradinita si after school Bucuresti | 0770708392 | Str. Scoala Floreasca, Nr. 3, Sector 1, Bucuresti |
| 130. | Gradinita din Povesti - Bucuresti | 0724987747 | Str. Costache Marinescu, Nr. 1A, Sector 1 |
| 131. | WhizKidz Hub - Afterschool, Centru educational Bucuresti | 0742602260 | Str. Gradinarilor, nr. 14, Sector 3 |
| 132. | Analesia - Gradinita & AfterSchool in limba germana Bucuresti | 0741332222; 0741332226 | Str. Paris, nr. 57, sector 1 |
| 133. | Gradinita Nr. 251 Bucuresti | 0212301417 | Str. Venezuela, nr. 11, sector 1 |
| 134. | Abcdino, Gradinita - Bucuresti | 0213231070; 0725929616; 0745397739 | Str. Chiparosului, Nr. 31, Sector 3, Bucuresti |
| 135. | Bob de Grau, Gradinita si Cresa - Bucuresti | 0720446942 | Str. Agricultori, Nr. 142, Sector 3, Bucuresti |
| 136. | Gradinita nr. 72 sector 5 | 0214233920 | Str. Sergent Scarlat, nr. 19, sector 5 |
| 137. | Sofia - Gradinita Bucuresti | 0721006006; 0212311505 | Str. Sofia, Nr. 20, Sector 1 |
| 138. | Gradinita Floarea Soarelui sector 5 | 0214202148 | Str. M?rgeanului, nr. 81, sector 5 |
| 139. | Little Princess 1 - Cresa, Gradinita Bucuresti | 0756070390; 0744321574; 0744703973 | Str. Popa Stoica Farcas, Nr. 64-66, Sector 3, Bucuresti |
| 140. | Teach Little People - Centru educational, Bucuresti | 0727401433 | Str. Alexander von Humboldt, nr. 2, sector 3 |
| 141. | Steaua Nordului - Before and Afterschool Bucuresti | 0745040940 | Str. Andrei Muresanu, nr. 27, sector 1 |
| 142. | Gradinita nr. 274 sector 6 | 0213163345 | Bd. Iuliu Maniu, nr. 11D, sector 6 |
| 143. | Smiley Kindergarten, Gradinita & After School - Bucuresti | 0314366138; 0722541744 | Str. Gabriel Cioran, nr. 6, sector 6, |
| 144. | Teddybar - Gradinita, Bucuresti | 0212224455; 0723048602 | Str. Soimarestilor, nr. 29, sector 1, Bucuresti |
| 145. | Once Upon a Time - Centrul educational adlerian Bucuresti | 0770590487 | Str. Ciobanasului, Nr. 22A, Sector 2 |
| 146. | Montessima Educational - Afterschool zona Iancului, Bucuresti | 0771421104 | Str. Constantin Zlatescu, nr. 12, sector 2 |
| 147. | Legolas - Centru Educational sector 3 | 0787322298; 0787460258; 0787298295 | Str. Nucului, nr. 55, sector 3 |
| 148. | Kids Power - Centru educational holistic pentru copii Bucuresti | 0741248260 | Str. Nucului, nr. 55, sector 3 |
| 149. | Cresa Ciobanasului | 0213223085 | Str. Ciobanasului, nr. 23, sector 2, |
| 150. | Casuta Fermecata - Gradinita sector 5 | 0214562082; 0214562083 | Str. Amurgului, nr. 2, sector 5 |
| 151. | Bulgarasi de Aur - Before & After School Bucuresti | 0723398829 | Str. Cogalnic, nr. 30, sector 3 |
| 152. | Springfield Education - Gradinita si After School Bucuresti | 0734710573; 0721707879 | Str. Soltuzului, Nr. 10, Sector 2, Bucuresti |
| 153. | ERA Kinderland - Gradinita, after school in limba germana sector 3 | 0728850073; 0213207697 | Str. Dristorului, nr. 67, sector 3 |
| 154. | Mica Printesa - Gradinita, after school Bucuresti | 0744321574; 0744703973 | Str. Vulcan Judetu, nr. 16, sector 3, |
| 155. | Little Princess 2 - After School / Before School Bucuresti | 0744703973; 0744321574; 0756070390 | Str. Vulcan Judetu, Nr. 16, Sector 3, Bucuresti |
| 156. | International Kindergarten & Nursery - Gradinita Bucuresti | 0723248978; 0314327798 | Str. Claudiu, Nr. 26, Sector 2, Bucuresti |
| 157. | Capsunica - Gradinita sector 3 | 0765516162 | Str. Constantin Nottara, nr. 27, sector 3 |
| 158. | Iuladi Kids - Cresa, gradinita Bucuresti | 0769088777 | Str. Breaza, Nr. 78, Sector 3 |
| 159. | Sfera Kinderzentrum - Gradinita, Before & After School Bucuresti | 0728024897 | Calea Grivitei, nr. 194, sector 1 |
| 160. | Arc-en-Ciel, Gradinita - Bucuresti | 0212524665; 0725519386; 0726126808 | Str. Ion Heliade Radulescu, Nr. 18, Sector 2, Bucuresti |
| 161. | Go Kids Go - Before and After-School Bucuresti | 0723076434; 0766480774 | Str. Clucerului, nr. 21, sector 1 |
| 162. | Edu & Care - After School, cursuri pentru copii Bucuresti | 0721571086 | Str. Chopin, nr. 2 B, sector 2 |
| 163. | Gradinita Nr. 111 sector 6 | 0214135161 | Str. Sibiu, Nr. 8, Sector 6 |
| 164. | Evia Kids Afterschool Bucuresti | 0734464388 | Str. Bradetului, nr. 7, sector 4 |
| 165. | The Little Artist - Gradinita Bucuresti | 0737365283; 0743814767; 0722680765 | Str. Ing. Zablovschi, Nr. 7, Sector 1, Bucuresti |
| 166. | Little Oaks Academy - Gradinita sector 3 | 0766572126; 0766572127 | Sos. Mihai Bravu, Sos. Mihai Bravu nr. 286, sector 3 |
| 167. | Luminita - Gradinita sector 2 | 0212503180 | Sos. Iancului, nr. 4A, sector 2 |
| 168. | Colt de Rai - Gradinita sector 6 | 0217965203; 0752645946 | Str. Garleni, Nr. 10, Sector 6 |
| 169. | Just4Kids - Scoala Gimnaziala cu nivel gimnazial, primar si prescolar Bucuresti | 0739674601 | Str. Vantului, Nr. 27, Sector 3, Bucuresti |
| 170. | Gradinita Quiz | 0751425562 | Str. Abrud, nr. 134-136, sector 1 |
| 171. | Rio - Gradinita & After School Bucuresti | 0740025434; 0748633314 | Str. Luigi Galvani, Nr. 13A, Sector 2, Bucuresti |
| 172. | Super Start - Gradinita, After School sector 2 | 0720528738 | Bd. Ferdinand I, nr. 156, Sector 2 |
| 173. | Corina Club - After School Bucuresti | 0744353015; 0766332833 | Str. Garleni, Nr. 11A, Sector 6, Bucuresti |
| 174. | Pick Me Academy - Gradinita si scoala, Bucuresti | 0726000640 | Str. Slt. Pompiliu Manoliu, Nr. 7,Sector 2, Bucuresti |
| 175. | Martisor AfterSchool sector 4 | 0727017553 | Str. Cararuia, nr. 1, sector 4 |
| 176. | Gradinita Nr. 239 sector 3 | 0213245490 | Str. Dristorului, nr. 102, sector 3 |
| 177. | Little Star - Gradinita, After School sector 3 | 0745531279; 0724506631 | Str. Alexandru Magatti, nr. 13 A , sector 3 |
| 178. | Gradinita Nr. 35 sector 5 | 0214207995 | Str. Crizantemelor, nr. 2, sector 5 |
| 179. | KeiKo AfterSchool Bucuresti | 0748880866 | Str. Magura Vulturului, nr. 6, Sector 2 |
| 180. | Zoom Kids Academy - Afterschool Sector 4 | 0756155660 | Str. Stejarisului, nr. 13, Sector 4 |
| 181. | Kids Palace - Gradinita & After School Bucuresti | 0722612031 | Str. Obolului, Nr. 10, Sector 4, Bucuresti |
| 182. | Centrul Multifunctional Cresa Dumbrava Minunata sector 4 | 0733200115; 0372715100; 0372715101 | Str. Stoian Militaru, nr. 84, sector 4 |
| 183. | Cami - Gradinita particulara si afterschool Bucuresti | 0757402573 | Str. Carol Knappe, nr. 45,sector 1, Bucuresti |
| 184. | Castelul Copiilor din Tei, Gradinita - Bucuresti | 0212109962; 0764738888; 0739770707 | Str. Sfanta Treime, Nr. 28, Sector 2, Bucuresti |
| 185. | WonderKids - Centru Educational Bucuresti | 0724258876 | Str. Crizantemelor, Nr. 7 sector 5 |
| 186. | Albinuta - Gradinita sector 2 | 0212303377 | Str. Dinu Lipatti, nr. 1, sector 2 |
| 187. | Cami Gradinita & After School - Bucuresti | 0757402573; 0749018642 | Str. Carol Knappe, Nr. 45, Sector 1, Bucuresti |
| 188. | Puiutul Pufos - Gradinita Bucuresti | 0740140968; 0213440010 | Str. Emanoil Marius Buteica, Nr. 30, Sector 3, Bucuresti |
| 189. | Ciupercuta - Gradinita sector 4 | 0213324431 | Str. Stoian Militaru, nr. 86-90, sector 4 |
| 190. | Gradinita nr. 97 Bucuresti | 0212241162 | Str. Islaz, nr. 13, Sector 1 |
| 191. | Smart Steps - Gradinita , After School sector 3 | 0733965133 | Str. Dristorului, nr. 91-95, bl. E, Parter, sector 3 |
| 192. | Kids\' World Nursery School - Gradinita Bucuresti | 0771242641 | Bd. Basarabia, Nr. 2, Sector 3 |
| 193. | Clopotel - Gradinita Bucuresti | 0212502197 | Str. Elev Dridu Georgescu, nr. 2, sector 2 |
| 194. | Good Family - Gradinita Bucuresti | 0748224225 | Str. Nicolae Filimon, Nr. 73A, sector 6 |
| 195. | Gradinita nr. 185 sector 5 | 0214200667; 0214205180 | Str. Garoafei, nr. 12, sector 5 |
| 196. | INNA Kids Academy - Before & Afterschool Bucuresti | 0723290372 | Str. Johann Sebastian Bach, nr. 10, Sector 2 |
| 197. | Centrul Educational Fecioara Maria - Cresa, Gradinita Bucuresti | 0799741474; 0770574645 | Str. Eufrosina Popescu, Nr. 30, Sector 3, Bucuresti |
| 198. | Teddy Club - Club educational , After school Bucuresti | 0732138368; 0723188995 | Str. Duminicii, nr. 16, sector 4 |
| 199. | Gradinita cu program prelungit Nr. 135 | 0212421805 | Str. Masina de Paine, nr. 65, sector 2 |
| 200. | Gradinita cu Program Normal si Prelungit nr. 242 sector 5 | 0214502538 | Str. Magurei, nr. 8, sector 5 |
| 201. | Gradinita nr. 262 Alba ca Zapada si Piticii sector 4 | 0213324435 | Str. Crisul Alb, nr. 30, sector 4 |
| 202. | Gradinita Nr. 256 Bucuresti | 0212506222 | Str. Atanase Ionescu, Nr. 25, Sector 2 |
| 203. | Gradinita nr. 41 sector 6 | 0214134988 | Str. Constantin Titel Petrescu, nr. 12, sector 6 |
| 204. | Zuppy - Gradinita, After School sector 2 | 0753915058 | Str. Otesani, nr. 69, Sector 2 |
| 205. | Gradinita Nr. 7 Bucuresti | 0212421714 | Str. Maica Domnului, Nr. 61 - 63, Sector 2 |
| 206. | Martisor - Gradinita sector 4 | 0213325936 | Str. Daracului, Nr. 11, Sector 4 |
| 207. | Plusica - Gradinita & Afterschool sector 3 | 0768596856 | Str. Drumeagului, nr. 51, sector 3 |
| 208. | Gradinita nr. 34 sector 5 | 0214504937 | Str. Lacul Bucura, nr. 26, Sector 5 |
| 209. | Gradinita nr. 272 sector 6 | 0311070199; 0214133878 | Bd. Timisoara, nr. 39, sector 6 |
| 210. | Sarida Kids Club - Prescolari, After school, Scoala de vara, Cursuri, Bucuresti | 0726528844; 0760132301 | Str. Crisul Alb, Nr. 9-13, Sector 4, Bucuresti |
| 211. | Gradinita nr. 57 Hillary Clinton sector 6 | 0214133928 | Aleea Pravat, nr. 16, sector 6 |
| 212. | Elefantelul curios- Afterschool & more, sector 4 | 0767332115; 0727222015 | Bd. Constantin Brancoveanu, Nr. 7D, sector 4 |
| 213. | Junior School - Gradinita Bucuresti | 0751223159 | Str. Calimachi, nr. 17, Sector 2, |
| 214. | Ingenius Club - After School Bucuresti | 0729164275; 0733975456 | Str. Virgil Plesoianu, nr. 108, sector 1 |
| 215. | Club Clever Kids - After School sector 4 | 0723791058 | Str. Preda Buzescu, nr. 12, Sector 4 |
| 216. | Cresa Pinochio (Cresa Drumul Taberei) sector 6 | 0376203313; 0376203312 | Aleea Compozitorilor, nr. 20, sector 6 |
| 217. | Mickey\'s House - Before & After School sector 6 | 0785539018 | Str. Pietrele Doamnei, nr. 18, Sector 6 |
| 218. | After School Casuta Piticilor - Drumul Taberei, Militari | 0720548870; 0723230720 | Str. Sg. Maj. Alexandru Postolache, nr. 22, sector 6 |
| 219. | Dumbo Kids Academy - Cresa, Gradinita, Before & After School sector 3 | 0722320023 | Intr. Patinoarului, nr. 42A, sector 3 |
| 220. | Apostol - After School sector 2 | 0740951411 | Str. Seneslav Voievod, Nr. 55, Sector 2 |
| 221. | Sincron - Gradinita, After School Sector 3 | 0722243877 | Calea Vitan, nr. 206, sector 3 |
| 222. | Gradinita nr. 244 sector 5 | 0723919980; 0214234008; 0769 444 163 | Str. Humulesti, nr. 31, sector 5 |
| 223. | Piccolo Grande - After School, loc de joaca sector 3 | 0754200258 | Intr. Patinoarului, nr. 52, Sector 3 |
| 224. | Fulg de Nea - Gradinita sector 6 | 0212203132 | Sos. Ciurel, Nr. 9-11, sector 6 |
| 225. | Praslea cel Voinic - Gradinita & After School Bucuresti | 0722773103; 0733839824 | Str. Competitiei, Nr. 38, Sector 2, Bucuresti |
| 226. | Kids First - Gradinita Bucuresti | 0748880866; Varnavelena@gmail.com | Str. Sica Alexandrescu, nr. 20, Sector 2, |
| 227. | Rosa Zangara - Gradinita sector 6 | 0760505738 | Drumul Taberei, nr. 38A, sector 6 |
| 228. | Gradinita Nr. 246 sector 6 | 0316208173 | Str. Fabricii, nr. 20, sector 6 |
| 229. | Land of Kids Afterschool sector 2 | 0766831831; 0726733314 | Str. Constantin Tanase, Nr. 22, Sector 2 |
| 230. | Cresa Sf. Stelian sector 5 | 0214205630; 0736500544 | Str. Leresti, nr. 22, sector 5 |
| 231. | Young Academics - AfterSchool Bucuresti | 0755095974 | Str. Trotusului, nr. 39, sector 1 |
| 232. | Veverita Jucausa - Gradinita sector 2 | 0726224859 | Str. Litovoi Voievod, Nr. 38, Sector 2 |
| 233. | Smiley After School sector 2 | 0727401829 | Bd. Basarabia, nr. 62A, sector 2 |
| 234. | Domino - Gradinita Bucuresti | 0722492047 | Str. Constantin Georgian,, nr. 27, sector 2, Bucuresti |
| 235. | City Kids - Gradinita si afterschool Bucuresti | 0756862825 | Str. Ruschita, Nr. 41, sector 2 |
| 236. | Step Up After School | 0723795703; 0723544019 | Str. Vultureni, nr. 85, Sector 4 |
| 237. | Hänsel und Gretel - Gradinita & After School Bucuresti | 0212247704; 0743332447 | Str. Mr. Av. Stefan Sanatescu, Nr. 19, sector 1, Bucuresti |
| 238. | Funny Clown, Gradinita & After School - Bucuresti | 0740806356 | Str. Ruschita, Nr. 41, Sector 2, Bucuresti |
| 239. | Alegra, Gradinita - Bucuresti | 0746167291 | Str. Finta, Nr. 25, Sector 6, Bucuresti |
| 240. | Gradinita nr. 197 Zana Florilor sector 6 | 0214302179 | Str. Cetatuia, nr. 10, sector 6 |
| 241. | Innababy - Cresa, gradinita, afterschool Bucuresti | 0722403847 | Str. Tintasului, Nr. 3, Sector 1, Bucuresti |
| 242. | Castelul Fermecat - Gradinita, After School Bucuresti | 0745770001; 0752314458; 0765957032 | Drumul Murgului, Nr. 32, Sector 3, Bucuresti |
| 243. | Gradinita nr. 40 sector 6 | 0212203340 | Str. Tabla Butii, nr. 60, sector 6 |
| 244. | Gradinita nr. 53 sector 5 | 0214232145 | Aleea Bacau, nr. 2A, sector 5 |
| 245. | Paradisul Verde - Gradinita sector 5 | 0214232570 | Str. Pucheni, nr. 55, sector 5 |
| 246. | Dora - gradinita particulara, After School Bucuresti | 0740156885; 0744644705 | Str. Farului, nr. 3, sector 4, Bucuresti |
| 247. | Gargarita - Gradinita sector 4 | 0744393654 | Str. Dumbr?veni, nr. 35, Sector 4, judetul Brasov |
| 248. | OLIMPIA KIDS - gradinita particulara, cresa si after school Bucuresti | 0731680372 | Drumul intre Vii, Nr. 24, Sector 3 |
| 249. | Casuta cu Pitici Mari si Mici - Gradinita, Afterschool Bucuresti | 0722626268 | Str. Silvia, nr. 11, Sector 2, Bucuresti |
| 250. | Castelul Fermecat Olimpia - Gradinita, scoala primara, Afterschool, Bucuresti | 0731680372 | Drumul intre Vii, Nr. 24, Sector 3, Bucuresti |
| 251. | Avenor - Gradinita Bucuresti | 0737043475 | Str. Alexandru Constantinescu, nr. 65, sector 1 |
| 252. | Gradinita nr. 233 sector 2 | 0216884518 | Str. Antonescu Petre, nr. 20, Sector 2 |
| 253. | Saga Kid - After School sector 3 | 0743266500; 0756169135 | Str. Campia Libertatii, nr. 44, sector 3, |
| 254. | RosaMaria - Gradinita, cresa Bucuresti | 0746808080 | Str. Silvia, Nr. 18, Sector 2 |
| 255. | Luca - Gradinita si Cresa, After school, Scoala primara si gimnaziala, Liceu teoretic, Bucuresti | 0721335161; 0744894206 | Str. Sanmedru, Nr. 25, Sector 2, Bucuresti |
| 256. | Happy Kids Project - After school si before school, Bucuresti | 0745152802 | Sos. Iancului, Nr. 110, Sector 2, Bucuresti |
| 257. | Olga Gudynn International School - Gradinita, scoala si liceu, Bucuresti | 0734411359; 0212311202 | Str. Ancuta Baneasa, Nr. 8, sector 1, Bucuresti |
| 258. | Gradinita Floare de colt (nr. 64) sector 3 | 0213464899 | Str. Schitului, nr. 1D, sector 3 |
| 259. | Cresa Teiul Doamnei Bucuresti | 0314104891 | Str. Teiul Doamnei, nr. 99, Sector 2 |
| 260. | Amadeus - Afterschool Bucuresti | 0770896313; 0721841416 | Str. Amidonul, nr. 2, Sector 2 |
| 261. | Prichindel, Gradinita & After School - Bucuresti | 0216861856; 0745022748 | Str. Grigore Voda, Nr. 28, Sector 4, Bucuresti |
| 262. | Aron\'s Education Center - Gradinita si After School, Bucuresti | 0734709613 | Str. Luminoasa, Nr. 8, sector 4, Bucuresti |
| 263. | Gradinita Nr. 255 sector 3 | 0213462996; 0213462994 | Bd. Energeticienilor, Nr. 3, sector 3 |
| 264. | Centrul Educational Nectarel - Afterschool Bucuresti | 0740221854 | Str. Baba Novac, nr. 17, sector 3 |
| 265. | Gradinita nr. 276 Bucuresti | 0212423280 | Str. Corabia, nr. 57, sector 2 |
| 266. | Karin\'s Kids Academy - Gradinita Bucuresti | 0212250005 | Str. Hermann Oberth, Nr. 33, Sector 1, Bucuresti |
| 267. | Lill put - Centru de educatie nonformala pentru prescolari, Bucuresti | 0722647423 | Str. Sarafinesti, Nr. 29, sector 2 |
| 268. | Gradinita nr. 245 sector 5 | 0214237424 | Str. Tunsu Petre, nr. 9, sector 5 |
| 269. | Priki - Gradinita sector 6 | 0753936611; 0742292143 | Str. Sergent Apostol Constantin, nr. 14, sector 6 |
| 270. | Smart & Fun After School Crangasi | 0765518746; 0766891844 | Intr. Sipetului, Nr. 3, Sector 6 |
| 271. | Bufnita din Tei - Club de educatie nonformala si activitati recreative | 0751020362 | Str. Sg. Nitu Vasile, nr. 26, Sector 4 |
| 272. | BritAcademy, Gradinita in limba engleza - Bucuresti | 0740329105 | Str. Olimpiadei, Nr. 36, Sector 2, Bucuresti |
| 273. | Letitia - After school sector 3 | 0733919066; 0722882558 | Str. Baba Novac, nr. 19A,Belvedere Residence, sector 3 |
| 274. | Dandi Kids, Gradinita & After School - Bucuresti | 0726758303 | Str. Rasovita, Nr. 18, Sector 3, Bucuresti |
| 275. | Centrul social multifunctional cresa Degetica sector 4 | 0733200060 | Aleea Mirea Mioara Luiza, nr. 1A, sector 4 |
| 276. | Ada - Gradinita Bucuresti | 0723595916 | Str. Gheorghe Spacu, nr. 21, sector 6, Bucuresti |
| 277. | Gradinita nr. 24 sector 3 | 0213441760 | Str. Locotenent Pascu Nicolae, nr. 12, sector 3 |
| 278. | Gradinita nr. 188 Castel sector 2 | 0212504180; 0213179946 | Bd. Pierre de Coubertin, nr. 1, sector 2 |
| 279. | A&M afterschool Bucuresti | 0723371319 | Bd. Camil Ressu, Nr. 33, bl. N4, sc. 1, ap. 4, int. 4, sector 3, |
| 280. | Gradinita nr. 3 - sector 3 | 0213464112 | Str. Plt. Nedelcu Ion, Nr. 31, sector 3 |
| 281. | Gradinita Nr. 87 Spiridusii sector 6 | 0214132440 | Str. Valea Calugareasca, Nr. 6, Sector 6 |
| 282. | Piticot - Gradinita sector 4 | 0214503827 | Str. Spinis, nr. 1, sector 4 |
| 283. | Gradinita nr. 250 Sector 6 | 0316201847 | Str. Dealul Tugulea, nr. 35, sector 6 |
| 284. | Cresa Sinaia sector 2 | 0212403528 | Aleea Sinaia, nr. 4, sector 2 |
| vezi mai multe | |||
| 1. | Clinica Medicala Sfantul Spiridon Vechi-Bucuresti | 0213351378; 0213351379; 0787820066 | Piata Natiunilor Unite, nr 5-7, sector 4, Bucuresti |
| 2. | RomGerMed - Clinica Medicala Bucuresti | Tel. 0213110075; 0725302475 | Calea Plevnei, nr. 137C, sector 6, |
| 3. | Policlinica Eforie-Bucuresti | Tel. 0213139922 | Str. Eforie, nr. 4, sector 5, |
| 4. | Institutul National de Recuperare, Medicina Fizica si Balneologie | Tel.0311302300 | Str. Sf. Dumitru, nr. 2 - ambulatoriu de recuperare clinica I si II, sector 3, |
| 5. | Spitalul Clinic de Chirurgie Oro-Maxilo-Faciala -Bucuresti | Tel/Fax. 0213158855; 0213155217 | Calea Plevnei, nr. 17-21, sector 1 , |
| 6. | Spitalul Clinic de Chirurgie Oro-Maxilo-Faciala \"Prof. Dr. Dan Theodorescu\" | Tel/Fax. 0213158855; 0213155217 | Calea Plevnei, nr. 17-21, sector 1, |
| 7. | Euromedics Stem Life | 0800.800.855 (Apel gratuit); 021 311 55 92 | Str. Lipscani, Nr. 90A, et. 3, Sector 3 , |
| 8. | Policlinica pentru copii Regina Maria - Opera | 0219268 | Str. Costache Negri, nr. 1-5, sector 5, |
| 9. | Spitalul Clinic Coltea | Tel. 0213874100; Fax 0213874101 | Bd. I.C. Bratianu, nr. 1, sector 3, |
| 10. | Clinica Medicala Data Plus-Bucuresti | 0213131491 | Str.Cobalcescu Grigore, nr. 35,sector 1, |
| 11. | Spitalul Clinic Coltea | Tel. 0213874100; Fax 0213874101 | Bd. I.C. Bratianu, nr. 1, sector 3, |
| 12. | Centrul Medical Proctoline-Bucuresti | 0213017686- programari | Bd. Dimitrie Cantemir , nr. 1, bl. B2, sc. 3, et. 2, sector 4, |
| 13. | Centrul Medical Psoremiss-Bucuresti | 0213017696 | Bd. Dimitrie Cantemir, nr. 1, bl. B2, sc. 3, et. 2, sector 4, |
| 14. | CENTRUL MEDICAL BATISTEI | 021.313.34.80; 021.313.14.55; 021.315.46.05 | Str. Tudor Arghezi nr. 28, sector 2 , |
| 15. | POLICLINICA CU PLATA NR. 1 | Tel. 021.314.81.15; Fax 021.314.81.14 | Str. Bati?tei nr. 27, sector 2, |
| 16. | Centrul de Diagnostic romano-german Medinst | 0319902 | Str.Sfanta Vineri, nr. 29, sector 3, |
| 17. | Clinica Medicala On | .0213017676 | Bd. Dimitrie Cantemir nr. 1, bl. B2, sc. 3, et. 2, sector 4, |
| 18. | Ambulatoriul Spitalului Universitar de Urgenta | Tel. 0213180519/29; 0212026147 | Splaiul Independentei, nr. 169, sector 5 , |
| 19. | Rytmomed - Clinica medicala Bucuresti | 0737181511 | Str. Popa Tatu, nr. 35, Sector 1 |
| 20. | Policlinica Regina Maria - Enescu | 0219268 | Str. George Enescu, nr.12, sector 1, |
| 21. | Podologica - Salon tratament pentru afectiunile picioarelor sector 4 | 0771458874 | Bd. Dimitrie Cantemir, nr. 15, bl.9, sc.6, sector 4, |
| 22. | Spitalul Clinic \"Prof. Dr. Theodor Burghele\" + Ambulatoriu | Tel. 0214106910; Fax 0214111055 | Sos. Panduri nr. 20, sector 5, |
| 23. | Imuno Medica - Centrul de preventie, diagnostic si tratament Sf. Ioan Botezatorul | 0314050350; 0771771333 | Str. Virgiliu nr. 81, sector 1 |
| 24. | PriMed - Clinica Medicala Bucuresti | 0219986; 0720034774 | Bd. Dinicu Golescu, nr.10, sector 1 |
| 25. | Prof. Dr. Dimitrie Gerota, Spitalul de Urgenta MAI - Bucuresti | 0212523334 | Str. Vasile Vasilievici Stroescu, nr. 29-31, sector 2, |
| 26. | Centrul Medical Bio Terra Med- Bucuresti | 0726243473; 0724262110; 0774022961 | Calea Grivitei, nr. 3, Sector 1, |
| 27. | Spitalul Clinic de Nefrologie - Dr. Carol Davila | Tel. 0213189184 (centrala) | Calea Grivitei, nr. 4, sector 1, |
| 28. | Centru Medical Mediclass - Cotroceni | 0214102727; 0214120128; 0214120129 | Str. Elefterie, nr. 47-49 (Complex Comercial Cotroceni), sector 5, |
| 29. | Centrul Medical Apolo- Bucuresti | Tel. 0214101770; 0214101615; 0744377034 | Str. Coriolan Caius Marcius, nr. 41 (lang? benzinaria MOL Tudor Vladimirescu), sector 5, |
| 30. | RomGerMed - Clinica Medicala Bucuresti | Tel. 0213110075; 0727999602 | Calea Plevnei, 137 C, sector 6, |
| 31. | Spitalul Clinic \"Prof. Dr. Theodor Burghele\" + Ambulatoriu | Tel.0214106910; Fax.0214111055 | Sos. Panduri, nr. 20, sector 5, |
| 32. | Institutul National pentru medicina complementara si alternativa | Tel.0783002934; 0214102419 | Sos. Panduri , nr. 22, sector 5, |
| 33. | Centrul Medical Dr. Stoia Ion- Bucuresti | 0212116848 int.219; 0213175025 | Str. Thomas Masaryk , nr. 5, sector 2 , |
| 34. | Spitalul Universitar de Urgenta Bucuresti - SUUB | Tel. 0213180519; Fax 0213180554 | Splaiul Independentei, nr. 169, sector 5 , |
| 35. | Spitalul Universitar de Urgenta Bucuresti - SUUB | Tel. 0213180519; 0213180554 | Splaiul Independentei nr. 169, sector 5, |
| 36. | Spitalul Prof. Dr. Constantin Angelescu | 0213233040; 0213233041 | Aleea Cauzasi, nr. 49 - 51 sector 3, |
| 37. | Centrul Medical Panduri-Bucuresti | 0731806118; 0219901 | Str. Dr. Ioan Atanasiu, nr. 34, sector 5, |
| 38. | SPITALUL PROF. DR. CONSTANTIN ANGELESCU | 0213233040; 0213233041 | Aleea Cauzasi, nr. 49-51, sector 3, |
| 39. | Standard Med-Bucuresti | 0722435435; 0314053950 | Bd. Carol, nr. 45, ap.5, parter, sector 2, |
| 40. | Spitalul de Urgente Oftalmologice + Ambulatoriu | 0213192751; 0213192752 | P-ta Lahovari nr. 1, sector 1, |
| 41. | Spitalul de Urgente Oftalmologice + Ambulatoriu | 0213192751; 0213192753 | P-ta Lahovari, nr. 1, sector 1, |
| 42. | Centrul Medical Veridia-Bucuresti | 0213029434 | Str. Matei Basarab, nr. 45, sector 3, |
| 43. | Spitalul Universitar de Urgenta Militar Central Dr. Carol Davila | Tel. 0213193052/60; Fax.0213193030 | Str. Calea Plevnei, nr. 134, sector 1, Bucuresti |
| 44. | Clinica de Excelenta in Patologia Somnului Somnolog-Bucuresti | 0213118822; 0784442277 | Str.Dr.Leonte Anastasievici, nr.11, sector 5, |
| 45. | Spitalul Clinic de Nefrologie - Dr. Carol Davila | Tel. 0213189184 (centrala); Fax 0213189184 | Calea Grivitei nr. 4, sector 1, |
| 46. | Dr. Carol Davila, Spitalul Universitar de Urgenta Militar Central Bucuresti + ambulatoriu | Tel. 0213193052/60; 0213193030 | Str. Calea Plevnei , nr. 134, sector 1, |
| 47. | Scanmed - Clinica Medicala Bucuresti | 0219215; 0317100141; 0729202202 | Sos. Panduri, nr. 71, Parter, Sector 5 |
| 48. | Bioderm Medical Cente- Bucuresti | Tel. 0722338383 | Str. Mihai Eminescu, nr. 42, sector 1, |
| 49. | Spitalul Clinic CF Witting + ambulatoriu | Tel. 0213129530; 0213129531; 0213176280 | Calea Plevnei nr. 142-144, sector 6, |
| 50. | Omnia Medical Center - Clinica medicala, Bucuresti | 0213230034; 0728841841 | Bd. Octavian Goga, Nr. 14, Bl. M61, Parter, Sector 3, Bucuresti |
| 51. | Centrul Medical M Hospital-Bucuresti | 0219136; 0744812330; 0213162049 | Str.Witting, nr. 10-12, sector 1, Bucurestu |
| 52. | Centrul Medical M Hospital-Bucuresti | Tel.0219136 | Str. Witing, nr. 10-12, sector 1 , |
| 53. | Institutul National de Diabet, Nutritie si Boli Metabolice \"Prof. Dr. N. Paulescu\" | Tel. 0212108499 (centrala); 0212106460 (secretariat); Fax 0212109092 | Str. Ion Movila, nr. 5-7, sector 2 , |
| 54. | Spitalul Clinic Dr. I. Cantacuzino | Tel. 0212107100; 0212108499 (diabetologie) | Str. Ioan Movila, nr. 5-7, sector 2, Bucuresti |
| 55. | Institutul National de Diabet, Nutritie si Boli Metabolice \"Prof. Dr. N. Paulescu\" | 0212106460 (secretariat); 0212109092 | Str. Ion Movila, nr.5-7, sector 2, |
| 56. | Spitalul Clinic Dr. I. Cantacuzino-Bucuresti | Tel.0212107100; Fax.0212106435 | Str. Ion Movila nr. 5-7, sector 2 , |
| 57. | Policlinica Regina Maria - Cotroceni | 0219268 | Sos. Cotroceni, nr. 20, sector 6, |
| 58. | Cron Phoenix - Centru de Reabilitare Ortopedica si Neurologica pentru copii Bucuresti | 0721567186; 0790667941 | Piata Pache Protopopescu, nr. 9, sector 2 |
| 59. | Optim Sano - Centrul Medical Dr. Ion Socoteanu-Bucuresti | 0728955844 | Str. Salcamilor, Nr. 6A, sector 2, |
| 60. | Societatea Civila Medicala Doctor Popescu Daniel si Asociatii | Tel/Fax 021.336.55.03 | Calea Serban Voda, nr. 211, sector 4 , |
| 61. | Centrul Medical Sanador-Bucuresti | Tel. 0219699 | |
| 62. | Centrul Medical Sana-Bucuresti | 0212128222 | Str. Dr. Sergiu Dumitru, nr. 3, sector 1, |
| 63. | Village Medical Clinic - Centru medical Bucuresti | 0212323580 | Str. Constantin Kiritescu, nr. 27, sector 2, |
| 64. | Spitalul Clinic de Urgenta pentru Copii \"Grigore Alexandrescu\" | 0213169366:Centrala telefonica; 0213110994:Unitatea Primiri Urgente | Bd.Iancu de Hunedoara, nr. 30-32, sector 1, Bucuresti |
| 65. | Spitalul Clinic de Urgenta pentru Copii \"Grigore Alexandrescu\" | Tel. 0213169366; 0213169366 int. 133/155; UPU.0213110994 | Bd. Iancu de Hunedoara, nr. 30-32, sector 1 , |
| 66. | Clinica Medicala Blaj Stefan-Bucuresti | 0742010636 | Str.Ciprian Porumbescu, nr. 12, sector 1, |
| 67. | Spitalul Clinic de Urgenta pentru Copii \"Grigore Alexandrescu\" | 0213169366:Centrala telefonica; 0213110994 :Unitatea Primiri Urgente | Bd. Iancu de Hunedoara, nr. 30-32, sector 1, Bucuresti |
| 68. | Spitalul Clinic de Ortopedie Traumatologie Foisor-Bucuresti | Tel.0212520057; Fax.0212521387; 0310056786(progamari consultatii) | Bd. Ferdinand, nr. 35-37, sector 2 , |
| 69. | Spitalul Clinic de Ortopedie Traumatologie \"Foisor\" + ambulatoriu | Tel. 0310056786; 0212520057; Fax 0212521387 | Bd. Ferdinand, nr. 35-37, sector 2, |
| 70. | Centrul Medical Ioana-Bucuresti | 0212233810; 0786486156 | Str. Alexandru Ioan Cuza, nr. 81,, et. 1,sector 1, Bucuresti |
| 71. | Ioana Medical Center | 0212233810; 0786486156 | Bd. Alexandru Ioan Cuza, nr 81, et 1, sector 1 |
| 72. | Marius Nasta, Institutul de Pneumoftiziologie Bucuresti | 0213356910; Fax 0213373801 | Sos.Viilor , nr. 90, sector 5 , |
| 73. | Marius Nasta, Institutul de Pneumoftiziologie + Ambulatoriu Bucuresti | 0213356910; 0213373801 | Sos.Viilor nr. 90, sector 5 , |
| 74. | Donna Medical Center-Bucuresti | 0219732 | Str. Traian , nr. 234, et.1, sector 2, |
| 75. | Spitalul de Urgenta Prof. Doctor Dimitrie Gerota | 0212523334; Fax 0212522829 | Str. Vasile Vasilievici Stroescu, nr. 29-31, sector 2, |
| 76. | Clinica Sanamed-Bucuresti | 0219442 | Calea Plevnei, Nr. 159,corpul B ,Sector 6, |
| 77. | Spitalul de Urgenta Floreasca | Tel. 0215992300; 0215992308; Fax.0215992257 | Calea Floreasca nr. 8, sector 1, |
| 78. | Spitalul de Urgenta Floreasca + ambulatoriu-Bucuresti | Tel.021.5992300; Fax.021.5992257 | Calea Floreasca, nr. 8, sector 1, |
| 79. | Euroclinic | 0219268; 0219208 | Calea Floreasca, 14 A, Sector 1, Bucuresti |
| 80. | Policlinica Rahova-Bucuresti | 0214232080; 0214232081; 0214232082 | Str.Malcoci., nr. 4, sector 5 , Bucuresti |
| 81. | Centrul Medical Focus | 0753035038 | Str. Dinicu Golescu, nr. 23-25 , sector 1, |
| 82. | Centrul de Transfuzie Sanguina Bucuresti | Tel. 0314053660; 0314053661; 0314053662 | Str. Constantin Caracas nr. 2-8, sector 1, |
| 83. | LookClinic, Bucuresti - Centre de diagnosticare,preventie si implant de par | 0213203477 | Calea Dorobantilor, nr.188-190, sector 1, |
| 84. | Centrul Medical de Diagnostic, Tratament Ambulator si Medicina Preventiva | 0212300402; 0212302980; 0212305923 | Str. Washington, nr. 8-10, sector 1, |
| 85. | Spitalul Euroclinic + ambulatoriu | 0219208 | Calea Floreasca, nr. 14 A, sector 1, Bucuresti |
| 86. | Clinica Life-Med-Bucuresti | 0319981 | Str. Plugarilor , nr. 18,sector 4, |
| 87. | Ambulatoriul Spitalului Euroclinic | 0219208; Call Center:0219268 | Calea Floreasca, nr. 14A, sector 1, Bucuresti |
| 88. | SPITALUL SF. STEFAN + ambulatoriu | 021.210.39.36 | Sos. Stefan cel Mare nr. 11, sector 2, |
| 89. | SPITALUL SF. STEFAN + ambulatoriu | 0212103936 | Sos. Stefan cel Mare, nr. 11, sector 2, |
| 90. | Clinica Medicala Estet Laser Medical Center | Tel/Fax 0212531797; 0721241772; 0733625687 | Str. Calusei nr. 11, sector 2, |
| 91. | Centrul Medical Prain | 0212113430; 0212108476; 0723237430 | Calea Dorobantilor, nr. 32A,7,ET 1, |
| 92. | Spitalul Clinic Sfanta Maria + ambulatoriu-Bucuresti | Tel. 0212223550; 0212223553 | Bd. Ion Mihalache nr. 37-39, sector 1, |
| 93. | Vitan Policlinica, Grupare de cabinete medicale - Bucuresti | 0727451211; 0213234970; 0213221208 | Calea Dudesti, Nr. 104-124, sector 3, Bucuresti |
| 94. | Clinica Medicover-Bucuresti | 0219896 | Str. Sergent Constantin Ghercu,, nr. 1A, sector 1, |
| 95. | Cabinet Medical Persepolis- Bucuresti | 0749065961; 0751011893 | Str. Vasile Toneanu , nr. 20, sector 3, |
| 96. | Ambulatoriul Spitalului Clinic Colentina | 0213167320 ; 0213173245 / interior 5732; Fax: 0213161952 | Sos.Stefan cel Mare, nr. 19-21, sector 2, Bucuresti |
| 97. | Spitalul Clinic Colentina + Ambulatoriu | 0213167320; 0213173245 ; Fax: 0213161952 | Sos. Stefan cel Mare, nr. 19-21, sector 2 , |
| 98. | Spitalul Clinic Sfanta Maria + ambulatoriu | Tel. 0212223553; 0212223550 | Bd. Ion Mihalache, nr. 37-39, sector 1, |
| 99. | Centrul Medical Romedical Int | Tel. 0212100381; 0723288108 | Str. Fainari nr. 35, sector 2, |
| 100. | Spitalul Clinic Colentina + Ambulatoriu | Tel. 0213167320; 0213173245; 0213165895 | Sos. Stefan cel Mare, nr. 19-21, sector 2, |
| 101. | Emergency Medical Care - Servicii medicale de urgenta la domiciliu Bucuresti & Ilfov | 0799058058; 0732528136; 0314250213 | Calea Vitan, Nr. 109B-109D, Sector 3, Bucuresti |
| 102. | Prof. Dr. Panait Sirbu, Spitalul Clinic de Obstetrica-Ginecologie Bucuresti | 0213161281; 0213161283 | Calea Giulesti, nr. 5, sector 6 , |
| 103. | Clinica Memento Med-Bucuresti | 0213260081 | Str. Brailita, nr. 1, sector 3, |
| 104. | Professional Klinic, Bucuresti - Tratament si analize | 0314250805 ; 0742207755 | Str.Agricultori, Nr. 115, bloc 79, Parter, Sector 3, Bucuresti |
| 105. | Clinica Regina Maria - Perla-Bucuresti | 0219268 | Calea Dorobanti, nr. 126-130, sector 1, |
| 106. | Prof.Dr. Agrippa Ionescu, Spitalul Clinic de Urgenta Bucuresti | 0377720000; Fax 0377726169 | Str. Arh. Ion Mincu , nr. 7, sector 1, |
| 107. | Institutul National de Boli Infectioase Prof. Dr. Matei Bals | Tel.0212010980; 0213186091 | Str. Dr. Calistrat Grozovici, nr. 1, sector 2, |
| 108. | Clinica Medicala Elite-Bucuresti | Tel. 0720260024; 0212339776 | Str. Tudor Stefan, nr. 42-44, sector 1, |
| 109. | Institutul National de Endocrinologie C. I. Parhon | Tel. 0213172041; 0213172042; Fax 0213170607 | Bd. Aviatorilor nr. 34-36, sector 1 , |
| 110. | Prof. Dr. Panait Sirbu, Spitalul Clinic de Obstetrica-Ginecologie Bucuresti | 0213161281; 0213161283; 0213161287 | Calea Giulesti, nr. 5, sector 6, bucuresti |
| 111. | Institutul National de Endocrinologie C. I. Parhon | Tel. 0213172041; 0213172042; Fax 0213170607 | Bd. Aviatorilor, nr. 34-36, sector 1 , |
| 112. | Gral Medical - Centrul Medical, Bucuresti | 0213230000; 0724242259 (programari radiologie); Fax 0213230002 | Str.Traian Popovici (fosta Unitatii), Nr. 79-91, Sector 3, Bucuresti |
| 113. | Clinica Lil Med-Bucuresti | 0214206055; Fax:0214212231 | Str. Suzana , nr. 7, corp 1,sector 5, |
| 114. | Centru Medical Stb-Bucuresti | 0213183430 (centrala); | Str. Dr. Grozovici, nr. 6, sector 2 , |
| 115. | Institutul National de Boli Infectioase Prof. Dr. Matei Bals | 0212010980 (centrala); 0213186090 | Str. Dr. Grozovici, Nr. 1, sector 2, |
| 116. | Doris - centru de testare COVID 19 Bucuresti | 0732684319 | Bd. Iuliu Maniu, nr. 11, sector 6, |
| 117. | Centrul medical Ghencea Medical Center- Bucuresti | 0219838; 0752493636 ; 0756045204 | Bd. Ghencea , Nr. 43 B, sector 6, Bucuresti |
| 118. | Clinica Psiho-Armonie-Bucuresti | 0730028680; 0311063523 | Str. N. Constantinescu, nr. 11, bl.11, sc.1, parter, ap.2, interfon 02,sector 1, |
| 119. | Medicine Park International by Tuncay Öztürk - Centru de kinetoterapie si recuperare | 0727464464 | Str. Grigore Mora, nr. 19, Sector 1 |
| 120. | Policlinica Iancului-Bucuresti | Tel.0314255277 (laborator); 0212508490 (O.R.L.); 0212503333 | Sos. Iancului , nr. 3, sector 2 , |
| 121. | Spitalul Clinic de Boli Infectioase si Tropicale Dr. Victor Babes | 0213172727 / .28 / .29/ .30 (Centrala); 0213172721 | Sos. Mihai Bravu, nr. 281, sector 3, |
| 122. | Policlinica Baba Novac | 0770218336; 0748175572 | Str. Baba Novac, nr. 2, sector 3 |
| 123. | Centrul Medical Hiperdia-Bucuresti | 0219338; Fax 0212507320 | Str.Ritmului, nr. 24, sector 2, Bucuresti |
| 124. | POLICLINICA MASINA DE PAINE | Tel.021. 242.07.82 ; 021.242.00.96 (oftalmologie); 021.242.67.04 (neuropsihiatrie) | Str. Masina de Paine nr. 47, sector 2 , |
| 125. | Centrul medical PoeMedica Bucuresti | 0214139387; 0217461632; 0757109599 | Bd. 1 Mai, nr. 24, sector 6, |
| 126. | Dr. Victor Babes, Spitalul Clinic de Boli Infectioase si Tropicale Bucuresti | 0213172727 / .28 / .29/ .30 (Centrala); Fax 021 3172721 | Sos. Mihai Bravu, nr. 281, sector 3 , |
| 127. | Centrul Medical Dr. Victor Babes-Bucuresti | 0213179503; Fax: 0213179502 | Sos. Mihai Bravu nr. 281, sector 3 , |
| 128. | Centrul Medical Rom Med 2000 | 0726366370; 0213270441; Tel/Fax 0213206087 | Intr. Baba Novac, nr. 4 A, Sector 3, |
| 129. | Clinica Medicala Provita Diagnostic si Tratament-Bucuresti | Tel. 0219432 | Str.Alexandrina, nr. 20 , sector 1, |
| 130. | Centrul Medical Endocenter-Bucuresti | Tel.0764671233; Fax 0213267660 | Str. Arh. G. Sterian, nr. 8, sector 2, |
| 131. | Policlinica Regina Maria Sun Plaza | 0219268 | Calea Vacaresti, nr.391, sector 4, mall Sun Plaza, etaj 2, intrarea prin mall, |
| 132. | Centrul Medical Amicus Med | Tel. 0766424841; Tel/Fax 0212508585 | Sos. Iancului nr. 17, bl. 106C, sc. 1, ap. 4, sector 2, |
| 133. | Centrul Medical Nicomed-Bucuresti | 0216372458; 0731338524 | Calea Crangasi, nr. 23, ap.1, sector 6, |
| 134. | Spitalul clinic de copii Dr. Victor Gomoiu | 0314136700; 0314136701 | Bd. Basarabia nr. 21, sector 2, |
| 135. | Centrul Medical Cutera Medical Center-Bucuresti | Tel. 0746141620 | Str. Giacomo Puccini , nr. 8 A, sector 1, |
| 136. | Dr. V. Gomoiu, Spitalul de Copii - Ambulatoriul de specialitate Bucuresti | 0314136700; 0314136701; 0314136706 | Bd. Basarabia, nr. 21, sector 2, |
| 137. | Centrul Medical Nicomed | 0216372458; 0731338524 | Calea Crangasi nr. 23, bl. 13, sc. 2, ap. 1, sector 6, |
| 138. | Spitalul Euroclinic | Tel. 0219268; 0219208 | Calea Floreasca nr. 14 A, sector 1, |
| 139. | Cord Blood Center-Bucuresti | 0739853208 | Str. Ramuri Tei, nr. 20, sector 2, |
| 140. | Spitalul Universitar de Urgenta Elias | 0213161600; Fax 0213161602 | Bd.Marasti, nr. 17, sector 1, |
| 141. | Spitalul Universitar de Urgenta Elias | 0213161600; Fax 0213161602; 0213112444 | Bd. Marasti nr. 17, sector 1, |
| 142. | Centrul Medical Focus | Tel. 0317111515; 0733072910 | Bd. Ferdinand nr. 141, sector 2, |
| 143. | Medisan Family Clinic - Clinica medicala Bucuresti | 0217955980 | Str. Dr. Calin Ottoi, nr. 20-22, sector 2 |
| 144. | Alfred Rusescu, Institutul pentru ocrotirea mamei si copilului (I.O.M.C.) Bucuresti | Tel.0219365 | Bd. Lacul Tei, nr. 120, sector 2 , |
| 145. | Clinica Medicala Alco San | 021.211.41.12; 0755.050.055; Fax 021.211.41.13 | Str. Barbu Vacarescu, nr. 67, sector 2, |
| 146. | Institutul national pentru sanatatea mamei si copilului Alfred Rusescu | Tel.0219365 | Bd. Lacul Tei, nr. 120, sector 2, |
| 147. | Cabinet Medical dr. Jovin | Tel. 0746418043; Tel/Fax 0212312116 | Str. Wolfgang Amadeus Mozart nr. 31, sector 2, |
| 148. | Institutul National de Medicina Sportiva | 0213184704 ; 0213184705 ; 0213184706 | Bd. Basarabia, nr. 37-39, sector 2, Bucuresti |
| 149. | Lifeline Services-Bucuresti | 0212221651; 0722279756 | Sos. Virtutii, nr. 19 D, Virtutii Business Center, Sector 6, |
| 150. | Spitalul de Urgenta de Chirurgie Plastica, Reparatorie si Arsuri | 0212240946; 0212240947; Tel/Fax 0212241800 | Calea Grivitei nr. 218, sector 1, |
| 151. | Spitalul Clinic de Urgenta pentru Copii - M.S. Curie (Budimex) + ambulatoriu | 0214603026; 0214601035 (Primiri Urgente); 0214604260 (Ambulatoriul) | Bd. Constantin Brancoveanu, Nr. 20, Sector 4, Bucuresti |
| 152. | Cabinet Medical Alfa | Tel.0319495 | Sos. Oltenitei, nr. 220, bl. 8, sc. 2, ap. 58, sector 4, |
| 153. | Spitalul de Urgenta de Chirurgie Plastica, Reparatorie si Arsuri-Bucuresti | 0212240946; 02.2240947; Tel/Fax 0212241800 | Calea Grivitei , nr. 218, sector 1 , |
| 154. | Spitalul Clinic de Urgenta pentru Copii M.S. Curie + ambulatoriu | Tel. 0214604260; 0214603026 | Bd. Constantin Brancoveanu, nr. 20, sector 4, |
| 155. | Ais companie medical farmaceutica | 0219909 | Sos. Alexandriei , nr. 144, sector 5, Bucuresti |
| 156. | Policlinica Alfa Medical | 0214604144; 0319495 | Izvorul Rece, Nr. 18A, Sector 4, Bucuresti |
| 157. | Clinica Nova ORL - Dr. Voda Ioana Alexandra-Bucuresti | 0213254422; 0799848484 | Str. Pictor Gh. Tattarascu , nr. 2, subsol Policlinica Globului, in spatele cinematografului Gloria, Baba Novac, sector 3, |
| vezi mai multe | |||
| 1. | Gheorghe Lazar, Colegiu National - Bucuresti | 0213134756 | Bd. Regina Elisabeta, Nr. 48, Sector 5, Bucuresti |
| 2. | FEG, Scoala Postliceala in domeniului medical - Bucuresti | 0213111054; 0314050362; 0788424314 | Walter Maracineanu, Nr. 1-3, Intrarea 2, Etaj. 2,, Bucuresti |
| 3. | AWEsome Primary School - Scoala clasele primare Bucuresti | 0750460737 | Str. Ienachita Vacarescu, nr. 22B, sector 4 |
| 4. | Colegiul National de Arte Dinu Lipatti - Bucuresti | 0213363588 | Str. Principatele Unite, Nr. 63, Sector 4, Bucuresti |
| 5. | Miguel de Cervantes, Liceul Bilingv - Bucuresti | 0213149311 | Calea Plevnei, Nr. 38-40, Sector 1, Bucuresti |
| 6. | Scoala Gimnaziala Nr. 128 - Bucuresti | 0214102219 | Str. Ion Creanga, Nr. 6, Sector 5, Bucuresti |
| 7. | Floria Capsali, Liceul de Coregrafie - Bucuresti | 0213363792 | Str. Capitan Preotescu, Nr. 9, Sector 4, Bucuresti |
| 8. | Vasile Alecsandri, Scoala Gimnaziala (fosta Nr. 118) - Bucuresti | 0213138287 | Str. Stirbei Voda, Nr. 32-34, Sector 1, Bucuresti |
| 9. | Sf. Sava, Colegiul National - Bucuresti | 0213149294; 0213126821 | Str. G-ral Berthelot, Nr. 23, Sector 1, Bucuresti |
| 10. | Scoala Gimnaziala Ienachita Vacarescu, Bucuresti | 0213355705 | Calea Serban Voda, Nr. 62-64, sector 4, Bucuresti |
| 11. | Ion Creanga Colegiu National - Bucuresti | 0213362695 | Str. Cuza Voda, Nr. 51, sector 4, Bucuresti |
| 12. | Scoala Gimnaziala Nr. 150 - Bucuresti | 0214108408 | Bd. Eroii Sanitari, Nr. 29-31, Sector 5, Bucuresti |
| 13. | Scoala Gimnaziala Nr. 79 - Bucuresti | 0314257884 | Str. Cuza Voda, Nr. 51, Sector 4, Bucuresti |
| 14. | Fridolin, scoala primara si gimnaziala germana - Bucuresti | 0723584872 (Adina Stoenescu); 0722502522 (Christian Comsa) | Fagaras, Nr. 9-13, Sector 1, Bucuresti |
| 15. | Scoala Gimnaziala nr. 5 - Bucuresti | 0213169918 | Calea Victoriei, Nr. 114, Sector 1, Bucuresti |
| 16. | Seminarul Teologic Ortodox Bucuresti | 0213305754; 0731205629; 0213305754 | Str. Radu Voda, Nr. 24 A, Sector 4, Bucuresti |
| 17. | Kretzulescu Nicolae, Scoala Superioara Comerciala - Bucuresti | 0213139082 | Bd. Hriso Botev, Nr. 17, Sector 3, Bucuresti |
| 18. | Tudor Arghezi, Scoala Gimnaziala Nr. 19 - Bucuresti | 0213169187 | Str. Tudor Arghezi, Nr. 46-50, Sector 2, Bucuresti |
| 19. | Spiru Haret, Colegiu National - Bucuresti | 0213136462 | Str. Italiana, Nr. 17, Sector 2, Bucuresti |
| 20. | Phoenix, Liceu Teoretic - Bucuresti | 0214341364; 0770911516 | Virgiliu, Nr. 40, Sector 1, Bucuresti |
| 21. | Laude-Reut, Complex Educational Bucuresti | 0314382046; 0318055772 | Str. Clucerul Udricani, Nr. 12, Sector 3, Bucuresti |
| 22. | Institutul de matematica Simion Stoilow | 0213196506; 0213117780; Fax: 0213196505 | Calea Grivitei, Nr. 21, Sector 1, Bucuresti |
| 23. | Uruguay, Scoala Gimnaziala - Bucuresti | 0216370361 | Str. Virgiliu, Nr. 40, Sector 1, Bucuresti |
| 24. | Barbu Delavrancea, Scoala Gimnaziala Nr.73 - Bucuresti | 0213237390 | Str. Matei Basarab, Nr. 28-30, Sector 3, Bucuresti |
| 25. | Scoala de Arta Bucuresti | 0213306700 | Str. Cuza Voda, nr. 100, |
| 26. | Smart Koala Kids Club | 0771638419; 0771638425 | Calea 13 Septembrie, Nr.126A, bl.P43, sc.1, parter, ap. 2, sector 5, Bucuresti |
| 27. | Matei Basarab, Colegiul National - Bucuresti | 0213216640 | Str. Matei Basarab, Nr. 32, Sector 3, Bucuresti |
| 28. | Mihai Ionescu, Scoala Primara, Gimnaziu, Liceu - Bucuresti | 0213235495 | Str. Cauzasi, Nr. 43, Sector 3, Bucuresti |
| 29. | EFI Bucarest - Scoala Franceza Internationala din Bucuresti | 0749098867 | Bulevardul Dacia, Nr. 12, Sector 1 |
| 30. | Mihai Ionescu, Gradinita, Gimnaziu si Liceu - Bucuresti | 0213235495; 0314054929 | Cauzasi, Nr. 43, Sector 3 , Bucuresti |
| 31. | Penticostal Emanuel, Liceul Teologic - Bucuresti | 0213311669 | Str. Cuza Voda, Nr. 116, Sector 4, Bucuresti |
| 32. | Scoala Gimnaziala Nr. 71 - Bucuresti | 0213141395; 0213141391 | Calea Mosilor, Nr. 148, Sector 2, Bucuresti |
| 33. | I.G. Duca, Scoala Gimnaziala 146 - Bucuresti | 0214100881 | Sos. Panduri, Nr. 42, Sector 5, Bucuresti |
| 34. | Colegiul National - Scoala Centrala - Bucuresti | 0212118484; 0787288528 | Str. Icoanei, Nr. 3-5, Sector 2, Bucuresti |
| 35. | Hermes, Colegiul Economic - Bucuresti | 0213147645 | Calea Mosilor, Nr. 152, Sector 2, Bucuresti |
| 36. | Viilor, Colegiul Economic - Bucuresti | 0213160973; 0213160966 | Sos. Viilor, Nr. 38, Sector 5, Bucuresti |
| 37. | Scoala Gimnaziala Nr. 115 | 0213163793; 0786401588 | Calea 13 Septembrie, Nr. 177, Sector 5, Bucuresti |
| 38. | I.N.Socolescu, Colegiul Tehnic de Arhitectura si Lucrari Publice - Bucuresti | 0213108958 | Occidentului, Nr. 12, Sector 1, Bucuresti |
| 39. | Virgil Madgearu, Colegiul Economic - Bucuresti | 0212117256 | Bd. Dacia, Nr. 34, Sector 1, Bucuresti |
| 40. | Gheorghe Sincai, Colegiul National - Bucuresti | 0213369004; 0213361455 | Calea Serban Voda, Nr. 167, Sector 4, Bucuresti |
| 41. | Ada School - Bucuresti | 0723595916; 0721424485 | Dr. Carol Davila, Nr. 101, Bucuresti |
| 42. | Scoala Gimnaziala Nr. 1 - Sfintii Voievozi | 0213127572; 0213164206; 0213179916 | Str. Atelierului, Nr. 25, Sector 1, Bucuresti |
| 43. | Liceul Teoretic National | 0720000171 | Str. Buzesti, Nr. 14-18; Sector 1, Bucuresti |
| 44. | George Enescu, Colegiu National de Muzica - Bucuresti | 0760665312; 0213108871 | Str. General Gheorghe Manu, Nr. 30, Sector 1, Bucuresti |
| 45. | Scoala Ioanid, Gradinita, Gimnaziu, Liceu - Bucuresti | 0758054401 | Str. Nicolae Iorga, nr. 21, Sector 1, Bucuresti |
| 46. | Alexandra Kids, Gradinita, After School - Bucuresti | 0788461573; 0214206927 | Calea Rahovei, Nr. 266-268, Sector 5, Bucuresti |
| 47. | Scoala Gimnaziala Nr. 81 - Bucuresti | 0213263220 | Str. Nerva Traian, Nr. 33, Sector 3, Bucuresti |
| 48. | Kids Kingdom - Before & After School Bucuresti | 0799199627 | Intrarea Traian Demetrescu, Nr. 8, sector 3 |
| 49. | Elena Vacarescu, Scoala Gimnaziala - Bucuresti | 0213163630 | Str. Stanislav Cihoschi, nr. 15, sector 1, Bucuresti |
| 50. | Montessano - Scoala primara si gradinita, Bucuresti | 0724924070; 0724919711 | Str. Labirint, nr. 97-99, sector 3 |
| 51. | Dimitrie Gusti, Liceu Tehnologic - Bucuresti | 0214562050 | Str. Samuil Vulcan, Nr. 8, Sector 5, Bucuresti |
| 52. | Monterra - Scoala primara Bucuresti | 0743119481 | Str. Vasile Lascar, nr. 87, sector 2 |
| 53. | Scoala Gimnaziala Grigore Tocilescu - Bucuresti | 0214231140 | Str. Grigore Tocilescu, Nr. 20, sector 5 |
| 54. | Goethe, Colegiul German - Bucuresti | 0212113425 | Str. Stanislav Cihoschi, Nr. 17, Sector 1, Bucuresti |
| 55. | Colegiul Tehnic de Industrie Alimentara Dumitru Motoc - Bucuresti | 0215552876 | Str. Spatarul Preda, Nr. 16, sector 5 |
| 56. | Aldo Moro, Scoala Italiana - Bucuresti | 0212104684 | Intr. Blaj, nr. 1, Sector 1, Bucuresti |
| 57. | Scoala Gimnaziala Luceafarul - Bucuresti | 0214230480 | Str. Doina, Nr. 1, sector 5 |
| 58. | Sfantul Silvestru, Scoala Gimnaziala Nr. 23 - Bucuresti | 0212102045 | Str. Oltarului, Nr. 11, Sector 2, Bucuresti |
| 59. | Scoala Gimnaziala Nr. 97 - Bucuresti | 0213302545 | Str. Viorele, Nr. 7, Sector 4, Bucuresti |
| 60. | George Cosbuc, Colegiul National Bilingv - Bucuresti | 0212528080 | Str. Olari, Nr. 29-31, Sector 2, Bucuresti |
| 61. | Cantemir Voda, Colegiul National - Bucuresti | 0212106935 | Str. Viitorului, Nr. 60, Sector 2, Bucuresti |
| 62. | A.D. Xenopol, Colegiul Economic - Bucuresti | 0213205719 | Str. Traian, Nr. 165, Sector 2, Bucuresti |
| 63. | Scoala Gimnaziala Nr. 280 - Bucuresti | 0214234068 | Str. Sergent Gheorghe Donici, Nr. 4A, Sector 5 |
| 64. | Mirunette Education, Consiliere si Programe Educationale - Bucuresti | 0212101602 | Valeriu Braniste, Nr. 37-39, Etaj 1, Ap. 3, Cam. 3, Sector 3, Bucuresti |
| 65. | Iosif Sava, Scoala Gimnaziala de Arte - Bucuresti | 0212312470 | Str. Constantin Disescu, Nr. 37, Sector 1, Bucuresti |
| 66. | Ion Barbu, Liceu Teoretic - Bucuresti | 0214102332 | Str. Nabucului, Nr. 18, Sector 5, Bucuresti |
| 67. | Nicolae Tonitza, Liceu de Arte Plastice - Bucuresti | 0212302793 | Bd. Iancu de Hunedoara, Nr. 27, Sector 1, Bucuresti |
| 68. | Mihai Eminescu, Colegiul National - Bucuresti | 0213304001 | Str. V.V. Stanciu, Nr. 6 , Sector 4, Bucuresti |
| 69. | Scoala Gimnaziala Nr. 24 - Bucuresti | 0212107185 | Str. Tunari, Nr. 52, Sector 2, Bucuresti |
| 70. | Grigore Chercez, Colegiul Tehnologic - Bucuresti | 0213365890 | Calea Serban Voda, Nr. 280, Sector 5, Bucuresti |
| 71. | Colegiul Tehnic Petru Rares - Bucuresti | 0213304001 | Str. V. V. Stanciu, nr. 6, sector 4 |
| 72. | Stefan Odobleja, Liceu teoretic - Bucuresti | 0214112213 | Str. Dorneasca, Nr. 7A, Sector 5, Bucuresti |
| 73. | Scoala Gimnaziala Iancului Nr. 52 | 0212522260 | Bd. Pache Protopopescu, Nr. 50, Sector 2, Bucuresti |
| 74. | Victoria, Liceu Teoretic - Bucuresti | 0314250543; 0759478014 | Str. Turturelelor, nr. 11A, sector 3, Bucuresti |
| 75. | Anastasia Popescu, Liceu Pedagogic Ortodox - Bucuresti | 0212524665; 0725519386; 0722805777 | Popa Nan, 47 B, Sector 2, Bucuresti |
| 76. | Nicolae Titulescu, Scoala Gimnaziala - Bucuresti | 0212236393 | Sos. Nicolae Titulescu, nr. 50-52, Sector 1, Bucuresti |
| 77. | Mihai Viteazu, Colegiul National - Bucuresti | 0212525700; 0212525871 | Bd. Pache Protopopescu, Nr. 62, Sector 2, Bucuresti |
| 78. | Scoala 114 Principesa Margareta - Bucuresti | 0735679210/ 0213351405 | Str. Pandele Rosca, Nr. 2-4, sector 5 |
| 79. | Heliade Radulescu, Scoala Gimnaziala Nr. 11 - Bucuresti | 0213163633 | Sos. Kiseleff, nr. 5, sector 1, Bucuresti |
| 80. | Dimitrie Bolintineanu, Liceu Teoretic - Bucuresti | 0214234060 | Calea Rahovei, Nr. 315, Sector 5, Bucuresti |
| 81. | Scoala Gimnaziala Nr. 95 - Bucuresti | 0770503408; 0213235185 | Str. Foisorului, Nr. 111-113, Sector 3, Bucuresti |
| 82. | Sweet Babies - Cresa, gradinita, after school, Bucuresti | 0785810011 | Strada Teleajen, 26B, sector 2 |
| 83. | UCECOM, Colegiul Spiru Haret - Bucuresti | 0213166195; 0213166196 | Str. Economu Cezarescu, Nr. 47-59, Sector 6, Bucuresti |
| 84. | Ion Neculce, Colegiul National Bucuresti | 0212224145; 0212224179 | Str. Ion Neculce, Nr. 2, Sector 1, Bucuresti |
| 85. | Scoala Gimnaziala Nr. 28 - Bucuresti | 0212105910 | Aleea Circului, Nr. 1, sector 2 |
| 86. | Maica Domnului, Scoala Gimnaziala Nr. 50 - Bucuresti | 0212520310 | Str. Ion Maiorescu, Nr. 32, Sector 2, Bucuresti |
| 87. | I.L. Caragiale, Colegiul National - Bucuresti | 0212301021 | Calea Dorobantilor, nr. 163, sector 1, Bucurersti |
| 88. | Liceul Teoretic Alexandru Vlahuta Bucuresti | 0212305292 | Str. Scoala Floreasca, nr. 5, sector 1 |
| 89. | Ady Endre, Liceu Teoretic - Bucuresti | 0212520192 | Bd. Ferdinand I, Nr. 89, Sector 2, Bucuresti |
| 90. | Cuib - After school, Bucuresti | 0751088396 | Str. Fainari, Nr. 45A, sector 2 |
| 91. | Orizont, Scoala Gimnaziala Nr. 193 - Bucuresti | 0214132355 | Str. Mihaela Ruxandra Marcu, Nr. 3, Sector 6, Bucuresti |
| 92. | Tudor Vianu, Colegiul National de Informatica - Bucuresti | 0212226670 | Str. Arh. Ion Mincu, Nr. 10, sector 1, Bucuresti |
| 93. | Titu Maiorescu, Scoala Gimnaziala Nr.45 - Bucuresti | 0212301673 | Calea Dorobantilor, Nr. 163, Sector 1, Bucuresti |
| 94. | Colegiul Tehnic Petru Maior - Bucuresti | 0736627798 | Bd. Timisoara, Nr. 6, Sector 6 |
| 95. | Iulia Hasdeu, Colegiu National - Bucuresti | 0212524508 | Bd. Ferdinand, Nr. 91, Sector 2, Bucuresti |
| 96. | Serban, Scoala de Meserii - Bucuresti | 0722302252; 0212520382 | Intrarea Baritonului, Nr. 9 (prin Str. Matei Voievod Nr. 81-83), Sector 2, Bucuresti |
| 97. | Scoala Gimnaziala Nr. 307 - Bucuresti | 0212100012 | Str. Luncsoara, Nr. 3, Sector 2, Bucuresti |
| 98. | Scoala Gimnaziala nr. 143 - Bucuresti | 0214202440 | Str. Banu Maracine, Nr. 16, Sector 5 |
| 99. | Colegiul Romano-Catolic Sfantul Iosif - Bucuresti | 0213326602 | Sos. Oltenitei, Nr. 3-7, Sector 4, Bucuresti |
| 100. | Scoala Gimnaziala Nr. 56 - Bucuresti | 0212524125; 0733087815 | Bd. Pache Protopopescu, Nr. 109A, Sector 2, Bucuresti |
| 101. | International British School - Bucuresti | 0212531698; 0745340841 | Str. Agricultori, Nr. 21-25, Sector 2, Bucuresti |
| 102. | Pick Me Academy - Scoala Primara Bucuresti | 0726000640; 0722391000 | Strada Agricultori, Nr. 79, Sector 2, Scoala Primara |
| 103. | Carol Davila, Scoala Sanitara Postliceala - Bucuresti | 0216107068 | Str. Agricultori, nr. 35, 37-39 (cladirea Codecs), sector 2, |
| 104. | Scoala Gimnaziala Nr. 85 | 0212524520 | Str. Dr. Constantin Zlatescu, Nr. 7A, sector 2, Bucuresti |
| 105. | Magia Copilariei - After-school Bucuresti | 0761912892 | Strada Nucului, Nr. 55, Sector 3 |
| 106. | Complex Scoalr Cronos Bucuresti | 0212225050; 0758107705 | Str. Chibzuintei, Nr. 15-17, Sector 1, Bucuresti |
| 107. | Scoala Gimnaziala Ion I. C. Bratianu - Bucuresti | 0214233390 | Str. Amurgului, Nr. 35, Sector 5 |
| 108. | Geo Bogza, Scoala Gimnaziala Nr. 170 - Bucuresti | 0212223072 | Str. Barbu Lautaru, Nr. 4, Sector 1, Bucuresti |
| 109. | George Calinescu, Scoala Gimnaziala 148 - Bucuresti | 0214232889 | Str. Bachus, Nr. 42, Sector 5, Bucuresti |
| 110. | Scoala Gimnaziala Nr. 168 - Bucuresti | 0314326090 | Str. Alizeului, Nr. 9, Sector 6, Bucuresti |
| 111. | Scoala Gimnaziala de Arte nr. 2 - Bucuresti | 0212525703 | Bd. Ferdinand I, Nr. 128, Sectorul 2 |
| 112. | Liceul cu Program Sportiv Mircea Eliade - Bucuresti | 0213141389 | Splaiul Independentei, Nr. 315-317, Sector 6 |
| 113. | Scoala Generala nr. 84 Nicolae Balcescu - Bucuresti | 0213216391 | Calea Vitan, Nr. 135, sector 3 |
| 114. | Scoala Gimnaziala Nr. 80 - Bucuresti | 0213214256 | Calea Dudesti, Nr. 191, Sector 3, Bucuresti |
| 115. | Cezar Bolliac, Scoala Gimnaziala Nr. 70 - Bucuresti | 0314040172 | Intr. Tiglina, Nr. 37, Sector 3, Bucuresti |
| 116. | Pia Bratianu - Scoala Gimnaziala Nr. 17 | 0212226590 | Str. Petofi Sandor, Nr. 14-16, Sector 1, Bucuresti |
| 117. | Liceul Teoretic Hyperion - Bucuresti | 0311032803 | Sos. Mihai Bravu, nr. 288C, sector 2 |
| 118. | Colegiul Tehnic Dinicu Golescu - Bucuresti | 0216370484 | Calea Giulesti, Nr. 10, Sector 1 |
| 119. | Emil Racovita, Colegiul National - Bucuresti | 0213217092; Fax 0213217092 | Sos. Mihai Bravu , nr. 169, sector 2, |
| 120. | Ion I.C. Bratianu, Liceu Tehnologic - Bucuresti | 0310699448 | Str. Popa Lazar, Nr. 8A, Sector 2, Bucuresti |
| 121. | About Scoala Metropolitana A.R.C | 0314254343; 0722522198 | Str. Esarfei, nr. 63-71, sector 3, |
| 122. | Colegiul Tehnic Mihai Bravu - Bucuresti | 0213217699 | Sos. Mihai Bravu, Nr. 428, Sector 3 |
| 123. | Mihail Sadoveanu, Liceu teoretic - Bucuresti | 0212527856 | Str. Popa Lazar, Nr. 8A, Sector 2, Bucuresti |
| 124. | Scoala Gimnaziala Nr. 311- Bucuresti | 0214133440 | Str. Garleni, Nr. 10, Sector 6, Bucuresti |
| 125. | Scoala Gimnaziala Nr.188 - Bucuresti | 0214500161 | Str. Tufisului, Nr. 13, Sector 5, Bucuresti |
| 126. | Petre Ispirescu - Scoala Gimnaziala Nr. 171 - Bucuresti | 0212241163 | Str. Vasile Gherghel, Nr. 2, Sector 1, Bucuresti |
| 127. | Scoala Gimnaziala George Bacovia - Bucuresti | 0213323396 | Str. Stoian Militaru, nr. 72, Sector 4 |
| 128. | Scoala Gimnaziala Nr. 124 - Bucuresti | 0214206365 | Str. Margeanului, Nr. 25A, Sector 5, Bucuresti |
| 129. | Alegra - After-school Bucuresti | 0729987920; 0726487124 | Str. Portaresti, Nr. 11, etaj 1, sector 6 |
| 130. | Tudor Vladimirescu, Colegiu National - Bucuresti | 0214103831 | Bd. Iuliu Maniu, Nr. 15, Sector 6, Bucuresti |
| 131. | Scoala Gimnaziala Luca Bucuresti | 0721335161; 0744894206 | Str. Sfantul Petru Tei, Nr. 67 A- 71, Sector 2, Bucuresti |
| 132. | Traian, Liceu Teoretic - Bucuresti | 0212106598; 0212105920 | Str. Luigi Galvani, Nr. 20, sector 2, Bucuresti |
| 133. | Scoala Gimnaziala Nr. 197 - Bucuresti | 0214134330; 0786332028 | Str. Obcina Mare, Nr. 2, Sector 6, Bucuresti |
| 134. | Grigore Moisil, Colegiu National - Bucuresti | 0214132696; 0768191964 | Bd. Timisoara, Nr. 33, Sector 6, Bucuresti |
| 135. | Jean Monnet, Liceu teoretic - Bucuresti | 0212305078 | Str. Jean Monnet, Nr. 2, Sector 1, Bucuresti |
| 136. | Maria Rosetti, Scoala Gimnaziala - Bucuresti | 0212305276 | Str. Garibaldi, nr. 3, Sector 2, Bucuresti |
| 137. | Scoala Gimnaziala Nr. 59 | 0314252104 | Str. Vladeasa, Nr. 9, Sector 6, Bucuresti |
| 138. | Santimbreanu Mircea, Scoala Gimnaziala Nr. 139 - Bucuresti | 0214206795 | Sos. Alexandriei, Nr. 21, Sector 5, Bucuresti |
| 139. | Liceul Tehnologic Nikola Tesla - Bucuresti | 0212527886 | Sos. Pantelimon, Nr. 25, sector 2 |
| 140. | Scoala Gimnaziala Nr. 27 Principesa Ileana - Bucuresti | 0212421645 | Str. Masina de Paine, nr. 65, sector 2 |
| 141. | Little Genius - Scoala primara Bucuresti | 0724245249 | Str. Carol Knappe, Nr. 95, sector 1 |
| 142. | Scoala Gimnaziala Nr. 120 Martisor - Bucuresti | 0213325811 | Str. Martisor, Nr. 39, sector 4 |
| 143. | Scoala Gimnaziala de Arte nr. 4 - Bucuresti | 0212421450 | Str. Maica Domnului, Nr. 61-63, Sector 2 |
| 144. | Scoala Gimnaziala Nr. 2 Bucuresti | 0214501192 | Str. Lacul Bucura, Nr. 14, Sector 5, Bucuresti |
| 145. | Scoala Gimnaziala Nr. 31 - Bucuresti | 0212421712; 0736613908 | Bd. Lacul Tei, Nr. 116, sector 2 |
| 146. | Scoala Gimnaziala Rut - Bucuresti | 0214510035; 0787358929 | Str. Lacul Bucura, Nr. 9-13, Sector 5 |
| 147. | Nicolae Iorga, Liceu teoretic - Bucuresti | 0212242026 | Bd. Ion Mihalache, Nr. 126, Sector 1, Bucuresti |
| 148. | Scoala Gimnaziala SEB - Bucuresti | 0314249675; 074502274 | Str. Martisor, Nr. 22, sector 4 |
| 149. | Scoala Gimnaziala Nr. 126 | 0214203645 | Str. Leresti, Nr. 12, Sector 5, Bucuresti |
| 150. | Mihai Botez, Scoala Gimnaziala Nr. 87 - Bucuresti | 0213462361 | Str. Ramnicu Valcea, Nr. 32, Sector 3, Bucuresti |
| 151. | Scoala Gimnaziala Nr. 164 Sfantul Calinic de la Cernica - Bucuresti | 0214131160 | Str. Pravat, Nr. 22, Sector 6, Bucuresti |
| 152. | Colegiul Tehnic Gheorghe Asachi - Bucuresti | 0214130438; 0787858675; 0214134040 | Aleea Pravat, Nr. 24, sector 6 |
| 153. | Happy Drive Lucky - Scoala de soferi, Bucuresti | 0755766849 | Strada Inginerilor Tei, Nr.9, sector 2 |
| 154. | Carol I, Colegiu Tehnic - Bucuresti | 0212202750 | Str. Porumbacu, Nr. 52, Sector 6, Bucuresti |
| 155. | C.A. Rosetti, Liceu teoretic - Bucuresti | 0212304873 | Str. Giuseppe Garibaldi, Nr. 11, Sector 2, Bucuresti |
| 156. | Scoala Gimnaziala Nr. 117 | 0214302040; 0784236131 | Str. Fabricii, Nr. 22, Sector 6, Bucuresti |
| 157. | Scoala Gimnaziala Nr. 127 - Bucuresti | 0214231092 | Str. Muntii Carpati, nr. 68, sector 5 |
| 158. | Montessori - Scoala si gradinita, Bucuresti | 0754054402 | Str. Maior Ion Coravu, Nr. 53, Sector 2 |
| 159. | Scoala Gimnaziala Nr. 49 - Bucuresti | 0212502444 | Str. Vatra Luminoasa, Nr. 99, Sector 2, Bucuresti |
| 160. | Adrian Paunescu, Scoala Gimnaziala - Bucuresti | 0214133020 | Aleea Valea Prahovei, Nr. 1, Sector 6, Bucuresti |
| 161. | Scoala Gimnaziala Nr. 131 - Bucuresti | 0214203905 | Str. Gutuilor, Nr. 1, Sector 5, Bucuresti |
| 162. | Scoala nr. 147 Petrache Poenaru - Bucuresti | 0214233987; 0214233991 | Str. Bacau, Nr. 1, sector 5 |
| 163. | Leonardo Da Vinci, Scoala Gimnaziala Nr.75 - Bucuresti | 0213248676 | Str. Pictor Gheorghe Petrascu, Nr. 55, Sector 3, Bucuresti |
| 164. | Scoala Gimnaziala Nr. 46 - Bucuresti | 0212502527 | Str. Stanescu Gheorghe, Nr. 2-18, sector 2 |
| 165. | Scoala Gimnaziala Nr. 136 - Bucuresti | 0214501892 | Prelungirea Ferentari, Nr. 74, Sector 5, Bucuresti |
| 166. | Scoala Gimnaziala Nr. 64 Ferdinand I - Bucuresti | 0213351410 | Bd. Garii Obor, Nr. 16, Sector 2 |
| 167. | Scoala Gimnaziala Nr. 25 - Bucuresti | 0212422695 | Str. Silvia, Nr. 54 Sector 2 |
| 168. | Scoala Gimnaziala Nr. 86 - Bucuresti | 0314250608 | Intr. Reconstructiei, Nr. 6A, Sector 3, Bucuresti |
| 169. | Serban Voda, Scoala Gimnaziala - Bucuresti | 0214503450 | Str. Petre Tutea, Nr. 3, Sector 4, Bucuresti |
| 170. | Eugen Barbu, Scoala Gimnaziala Nr. 173 - Bucuresti | 0212240937 | Str. Ivan Petrovici Pavlov, Nr. 2-4, Sector 1, Bucuresti |
| 171. | Colegiul Tehnic Energetic - Bucuresti | 0214500630; 0214502805 | Aleea Podul Giurgiului, nr. 5, sector 5 |
| 172. | Scoala Gimnaziala Nr. 190 - Bucuresti | 0213324689 | Str. Nitu Vasile, Nr. 16, Sector 4, Bucuresti |
| 173. | Liceul Teoretic Sfintii Trei Ierarhi - Bucuresti | 0763688448 | Str. Oltetului, nr. 15, sector 2 |
| 174. | Grigore Ghica Voievod, Scoala Gimnaziala Nr. 30 - Bucuresti | 0212421160 | Str. Laptari Tei, Nr. 23, Sector 2, Bucuresti |
| 175. | George Toparceanu, Scoala Gimnaziala Nr. 110 - Bucuresti | 0214503823 | Str. Argeselu, Nr. 6, sector 4, Bucuresti |
| 176. | Liceul tehnologic special Regina Elisabeta - Bucuresti | 0212506220 | Str. Vatra Luminoasa, Nr. 108, sector 2 |
| 177. | Colegiul Economic Costin C. Kiritescu - Bucuresti | 0314016830 | Str. Pestera Dambovicioarei, Nr. 12, Sector 6, Bucuresti |
| 178. | Scoala Gimnaziala Nr. 96 Bucuresti | 0214610108 | Str. Rezonantei, nr. 2, sector 4, |
| 179. | Benjamin Franklin, Liceu teoretic - Bucuresti | 0213244890; 0213243010 | Str. Pictor Gh. Tattarescu, Nr. 1, sector 3, Bucuresti |
| 180. | Colegiul Tehnic Mircea cel Batran - Bucuresti | 0212242376 | Str. Feroviarilor, Nr. 37, Sector 1 |
| 181. | Scoala Gimnaziala Nr. 167 - Bucuresti | 0212205770 | Calea Crangasi, Nr. 140, Sector 6, Bucuresti |
| 182. | Sfantul Nicolae, Scoala Gimnaziala Nr. 175 - Bucuresti | 0212241846 | Str. Lainici, Nr. 4-8, Sector 1, Bucuresti |
| 183. | Scoala Gimnaziala Nr. 88 - Bucuresti | 0213480445 | Str. Odobesti, Nr. 3, Sector 3, |
| 184. | Scoala Gimnaziala Nr. 54 - Bucuresti | 0213465143; 0310699824 | Str. Istriei, Nr. 19, Sector 3 |
| 185. | Scoala Gimnaziala Nr. 308 - Bucuresti | 0214503162 | Str. Raul Soimului, Nr. 8, Sector 4, Bucuresti |
| 186. | Liceul Tehnologic Sfantul Antim Ivireanu - Bucuresti | 0314380278 | Aleea Poiana Muntelui, Nr. 1, Sector 6, Bucuresti |
| vezi mai multe | |||
| 1. | Hanul Berarilor Interbelic, Restaurant - Bucuresti | 0213368009; 0729400800 | Poenaru Bordea , Nr. 2, Sector 5, Bucuresti |
| 2. | Ergo - Restaurant vegan, Bucuresti | 0770747559 | Bd. Unirii, Nr 5, sector 4 |
| 3. | Haute Pepper - Restaurant cu specific international, Bucuresti | 0726284280 | Bd. Unirii, nr 2, sector 4 |
| 4. | Energiea - Pub Bucuresti | 0736374432 | Str. Actor Ion Brezoianu, Nr. 4, Sector 5 |
| 5. | Paine si Vin - Bar cu vinuri, Bucuresti | 0755028448 | Str. Actor Ion Brezoianu, Nr. 4, sector 5 |
| 6. | Origo Coffee Shop - Bucuresti | 0757086689 | Lipscani, Nr. 9,Sector 3, Bucuresti |
| 7. | Encore Club - Bar specializat in bere | 0786247745 | Nicolae Tonitza, nr. 13, sector 3 |
| 8. | Anika - Restaurant cu specific romanesc Bucuresti | 0726400148 | Str. Pictor Nicolae Tonitza, Nr.10, sector 3 |
| 9. | Amnezia Caffe - Bistrou romanesc Bucuresti | 0770917737; 0724140931 | Str. Sf. Apostoli, Nr. 21, sector 4, |
| 10. | Barocco Bar - Bucuresti | 0755028028; 0740114132 | Domnita Anastasia, Nr.10 (In spatele McDonalds Regina Elsiabeta), Bucuresti |
| 11. | Velluto - Gelaterie, Bucuresti | 0728991969 | Splaiul Independentei, Nr 2J, sector 3 |
| 12. | Elisabeta, Restaurant - Bucuresti | 0727703703; 0724323132 | Bd. Regina Elisabeta, Nr. 45, Sector, Bucuresti |
| 13. | Linea - Closer To The Moon, Bucuresti | 0757824298 | Calea Victoriei, nr. 17, sector 3 |
| 14. | Caru\' cu Bere, Restaurant - Bucuresti | 0213137560; 0726cubere; 0726282373 | Stavropoleos , Nr. 3-5, Sector 3, Bucuresti |
| 15. | Scovergaria Micai - Patiserie, cofetarie Bucuresti | 0314253670 | Calea Victoriei, Nr. 14 colt cu Lipscani 19, sector 3 |
| 16. | Pizza Hut - Bucuresti | 0740121903 | Bd. Regina Elisabeta, nr. 15-19, sector 3 , |
| 17. | Il Peccato, Restaurant - Bucuresti | 0213116767; 0765301300 | Franceza, Nr. 30,Sector 3, Bucuresti |
| 18. | Jaristea, Restaurant - Bucuresti | 0721961936 ; 0775609233 ; 0770948868 | George Georgescu, Nr. 50-52, Sector 4, Bucuresti |
| 19. | Sublimmme - Restaurant vegetarian/vegan, Bucuresti | 0771135605 | Splaiul Independentei, NR 2F, sector 3 |
| 20. | Saray - Restaurant cu specific turcesc, Bucuresti | 0733135834 | Lipscani, Nr. 21, sector 3 |
| 21. | Hugo Bar - Cafenea cu narghilele, Bucuresti | 0732397953 | Calea Victoriei, 16-18-20, sector 3 |
| 22. | Pekin, Restaurant chinezesc - Bucuresti | 0213103160; 0723233169; 0769414020 | Calea Victoriei, Nr. 16-20, pasaj Villa Cross, Sector 3, Bucuresti |
| 23. | Distrikt 42 - Restaurant Bucuresti | 0213156699 | Str. Sfantul Dumitru, Nr. 3, sector 3 |
| 24. | Hygge - Restaurant Bucuresti | 0771114875 | Calea Victoriei, Nr. 21, sector 3 |
| 25. | Krishna Caffe - Cafenea Bucuresti | 0729745988;0740133254 | Bd. Mihail Kogalniceanu, Nr. 17, sector 5, |
| 26. | Bemolle Cafe - Bucuresti | 0213118382; 0723188953 | Calea Victoriei , Nr.16-18-20 (Pasaj Villacrosse), Sector 3, Bucuresti |
| 27. | Saint Gelato - Gelaterie Bucuresti | 0745205405 | Bulevardul Regina Elisabeta, Nr. 26, Sector 3 |
| 28. | Les Bourgeois - Bucuresti | 0720132994; 0213106052 | Smardan, Nr. 20, Sector 3, Bucuresti |
| 29. | WHYS - Bar, Bucuresti | 0785059173 | Pasajul Macca-Villacrosse, sector 3 |
| 30. | Freddo Pub - Club de noapte si de dans, Bucuresti | 0722373336 | Str Smardan, nr 24, sector 3, |
| 31. | Valea Regilor - Cafenea, Bucuresti | 0213112969 | Calea Victoriei, 16-20, Centrul Vechi, sector 3 |
| 32. | Delicii Libaneze - Gelaterie, cofetarie, ciocolaterie Bucuresti | 0725115811 | Str. Franceza, Nr. 13, sector 3 |
| 33. | Arcade Cafe - Bucuresti | 0722777674 | Smardan, Nr.30, (Centrul vechi), Sector 4, Bucuresti |
| 34. | Patrick Irish Pub & Restaurant - Bucuresti | 0213130336; 0314360112; 0755110008 | Smardan, Nr. 23-25, sector 3, Bucuresti |
| 35. | Storage Room - Bar, Bucuresti | 0732363712 | Strada Smardan, Nr. 35, sector 3 |
| 36. | Kilkenny Irish Pub - Bucuresti | 0751041110 | Str Franceza, Nr. 46-48, sector 3 |
| 37. | Efendi Doner - Restaurant fast-food, Bucuresti | 0730578472 | Str. Selari, nr. 2, sector 3 |
| 38. | Aubergine Healthy Food - Restaurant cu mancare sanatoasa, Bucuresti | 0213137548 (Smardan); 0771358661 (Aviatorilor) | Strada Smardan, Nr 33, sector 3, Bucuresti |
| 39. | Noa Restoclub - Restaurant Bucuresti | 0799747557 | Calea Victoriei, Nr 26 Sector 3 |
| 40. | Nomad Skybar - Restaurant, bar, club, Bucuresti | 0735448080 | Strada Smardan, Nr 30, sector 3 |
| 41. | Burger si Scoici - Restaurant cu burgeri Bucuresti | 0753300333 | Strada Smardan, Nr. 41, Sector 3 |
| 42. | Vilacrosse, Restaurant Cafe Bistro - Bucuresti | 0728358304 | Str. Eugen Carada, nr. 7, sector 3, |
| 43. | Q Marttinez - Restaurant cu specific european, Bucuresti | 0725682944 | Eugeniu Carada, Nr. 7, sector 3 |
| 44. | Vilacrosse, Bistro, Restaurant - Bucuresti | 0728358304; 0744796894 | Eugeniu Carada, Nr. 7, Sector 3, Bucuresti |
| 45. | Cercul Militar National, Restaurant - Bucuresti | 0213143735; 0213149551; Fax: 0372874921 | Constantin Mille, Nr.1-3, Sector 1, Bucuresti |
| 46. | Big Ben - Pub cu specific britanic, Bucuresti | 0756110089 | Str. Franceza, nr. 52, sector 3 |
| 47. | Shoteria - Shotbar, Bucuresti | 0721203039; 0372916947 | Strada Selari, Nr. 17, sector 3 |
| 48. | Tag Aperitivo Bar - Bucuresti | 0721888522 | Strada Lipscani, nr. 27, sector 3 |
| 49. | Calif - Restaurant fast-food, Bucuresti | 0756200325 | Selari, Nr. 19, sector 3, |
| 50. | Artist Cafe - Cafenea Bucuresti | 0756777577 | Str. Lipscani, Nr. 30-34, sector 3 |
| 51. | iDracula - Restaurant tematic, Bucuresti | 0753476142;0752559457 | Str. Selari, Nr. 10-12, Centrul Vechi, sector 3 |
| 52. | The Old Sibiu - Restaurant evenimente Bucuresti | 0723602560; 0723637769; 0721172390 | Str. Ion Otetelesanu,, Nr. 3A-3B, Sector 1 |
| 53. | Curtea Berarilor, Bar & Grill - Bucuresti | 0213137532; 0735861682 (Radu); 0735861681 (Sorina) | Selari, Nr. 9-11,Sector 3 (Zona Lipscani), Bucuresti |
| 54. | Sinners - Pub, Bucuresti | 0737343210 | Covaci, nr.2 , Centrul Vechi, sector 3 |
| 55. | Curtea Berarilor, Restaurant terasa - Bucuresti | 0213137532 | Selari, Nr.9-11, sector 3, Bucuresti |
| 56. | Xclusive Pub - Bar & Grill, Bucuresti | 0723166463 | Str. Lipscani, nr. 36, sector 3 |
| 57. | Old Habits - Club de noapte si de dans | 0728776699 | Strada Lipscani, Nr. 38, sector 3 |
| 58. | Kiosque des Douceurs - Cofetarie Bucuresti | 0758090763 | Str. Selari, Nr. 3, Sector. 3, Centrul Vechi |
| 59. | UAU Il Gelato - Gelaterie Bucuresti | 0723135015 | Str. Gabroveni, Nr. 1-3, sector 3, |
| 60. | Gyros Thessalonikis | 0770302148 | Strada Gabroveni, Nr. 2,sector 3 |
| 61. | Capitol Hotel si Restaurant - Bucuresti | 0213158030; 0317107007 | Calea Victoriei , Nr. 29, Sector 1 , Bucuresti |
| 62. | Taverna Covaci - Restaurant cu specific romanesc, Bucuresti | 0747226677 | Str. Covaci, Nr. 1, sector 3 |
| 63. | Boulevard Pub - Bucuresti | 0753966961 | Strada Covaci, Nr. 4, sector 3 |
| 64. | Times Cocktail Bar - Pub, Bucuresti | 0731032330 | Intrarea Nicolae Selari, nr.1,sector 3, |
| 65. | Private Hell - Club, Bucuresti | 0757508336 | Str. Soarelui, nr. 5, Sector 3 |
| 66. | Bruno Wine Bar - Bar cu vinuri, Bucuresti | 0751220229 | Strada Covaci, Nr. 3, Centrul Vechi |
| 67. | Capsa Cofetarie Bucuresti | 0213134038; 0213135999 | Calea Victoriei, Nr. 36, Sector 1, Bucuresti |
| 68. | Casa Capsa, Restaurant - Bucuresti | 0213134038; Fax: 0213135999 | Calea Victoriei, Nr. 36, Sector 1, Bucuresti |
| 69. | La Ciurucuri - Restaurant cu specific international, Bucuresti | 0752850850 | Piata Valter Maracineanu, Nr 1-3, sector 1 |
| 70. | The Drunken Lords - Pub, Bucuresti | 0736238815 | Intr. Selari, Nr. 3-5, sector 3 |
| 71. | Ramada Majestic, Hotel si Restaurant - Bucuresti | 0213102715 | Calea Victoriei, Nr. 38-40, Sector 1 , Bucuresti |
| 72. | Gilda Music Lounge - Restaurant club Bucuresti | 0786770941 | Strada Lipscani, Nr. 53, sector 3 |
| 73. | Mica Elvetie Restaurant | 0212245017 | Franceza, Nr. 60-62, Sector 3, Bucuresti |
| 74. | Fire Club Pub - Bucuresti | 0732166604 | Covaci, Nr. 7, Sector 3, Bucuresti |
| 75. | Bere si Bere - Pub, bere craft si muzica rock | 0723280040 | Str. Gabroveni, Nr. 4, sector 3 |
| 76. | The Urbanist - Bar specializat in cocktailuri, Bucuresti | 0741392558 | Strada Caldarari, Nr. 3, sector 3 |
| 77. | Bodega La Mahala - Restaurant Bucuresti | 0732166606 | Covaci, Nr. 8, Sector 3 |
| 78. | 1974 Niste Domni si Fii - Bar Restaurant Bucuresti | 0721551099; 0723629306 | Covaci, Nr. 7, Sector 3, Bucuresti |
| 79. | Pizzeria La Coco - Bucuresti | 0731744444 | Str. Gabroveni, Nr. 31, Sector 3 |
| 80. | Mica Elvetie Restaurant - Bucuresti | 0212245017 | Franceza, Nr. 60-62, Sector 3, Bucuresti |
| 81. | Bazaar - Restaurant Bucuresti | 0721999999 | Strada Covaci, Nr. 10, sector 3 |
| 82. | Hanul lui Manuc, Restaurant si Cafenea - Bucuresti | 0213131411; 0769075844; 0730188653 | Franceza, Nr. 62-64, Sector 3 , Bucuresti |
| 83. | The Pub - Bucuresti | 0728843782 | Bulevardul Regina Elisabeta, Nr. 9, sector 3 |
| 84. | Cofetaria Zora - Bucuresti | 0771119563 | Strada Uranus, Nr. 100, Sector 5 |
| 85. | Colosseum, Restaurant - Bucuresti | 0721243613; 0213131860; 0219689 | Calea Victoriei , Nr. 48-50 (Pasajul Victoria), sector 1, Bucuresti |
| 86. | Parliament, Restaurant - Bucuresti | 0214119990; 0214119991; 0721332397 | Izvor , Nr. 106, Sector 5 , Bucuresti |
| 87. | Hanul lui Manuc, Restaurant - Bucuresti | 0730188653; 0213122811; 0769075844 | Franceza , Nr. 62-64, Sector 3 , Bucuresti |
| 88. | Parliament, Restaurant - Bucuresti | 0214119990; 0214119991; 0721332397 | Str. Izvor, Nr. 106, Sector 5 , Bucuresti |
| 89. | Hanul lui Manuc, Restaurant - Bucuresti | 0213131411; 0769075844; 0730188653 | Franceza, Nr. 62-64, Sector 3, Bucuresti |
| 90. | Mojo Music Club - Bucuresti | 0737220220 | Gabroveni, Nr.14, Sector 3, Bucuresti |
| 91. | Monte Carlo Cismigiu, Restaurant - Bucuresti | 0213131344 | Parc Cismigiu, Sector 1, Bucuresti |
| 92. | Argentin - Restaurant Bucuresti | 0774462430; 0774462431 | Strada Blanari, Nr. 11-15, Sector 3 |
| 93. | Monte Carlo Cismigiu, Restaurant - Bucuresti | 0213131344 | Parcul Cismigiu, Parcul Cismigiu, Sector 1 , Bucuresti |
| 94. | Mao Pub - Bucuresti | 0771305995 | Str. Lipscani, Nr. 69, Sector 3 |
| 95. | Extra Time - Pub Bucuresti | 0732166605 | Strada Lipscani, Nr. 82A, sector 3 |
| 96. | Industry Wine Bar- Bar cu vinuri, Bucuresti | 0722777222 | str. Sepcari, Nr. 19, sector 3 |
| 97. | Lacrimi si Sfinti, Restaurant - Bucuresti | 0725558286; 0372773999 | Sepcari, Nr.16 (Centrul Vechi) Sector 3, Bucuresti |
| 98. | Jos Palaria Cafe - Bucuresti | 0314321029 | Toma Caragiu , Nr. 3, Sector 3 , Bucuresti |
| 99. | Emozia coffee manifesto - Cafenea, Bucuresti | 0742023590;0726201527 | Strada Halelor, nr. 17, sector 3 |
| 100. | La 100 de Beri - Bar specializat in bere, Bucuresti | 0733282598 | Str. Gabroveni, Nr.61, sector 3 |
| 101. | Thors Hammer - Bar Bucuresti | 0729176724 | Str Blanari, Nr. 12, sector 3 |
| 102. | Colosseum Pizza - Bucuresti | 0721243613; 0213131860; 0213121020 | Calea Victoriei, Nr. 48-50 (Pasajul Victoria), Sector 1, Bucuresti |
| 103. | Borsalino - Pizzerie Bucuresti | 0729954911; 0729954912 | Bulevardul Ion C. Bratianu, Nr. 44, Sector 3 |
| 104. | Mahala - Restaurant Bucuresti | 0729003002 | Calea Rahovei, Nr. 147- 153, sector 5 |
| 105. | Sugarography - Atelier de dulciuri Bucuresti | Bucuresti, | |
| 106. | Cofetaria Macarons - Bucuresti | 0771425575 | Bucuresti, |
| 107. | Naive - Restaurant cu bar, Bucuresti | 0725550333 | Bd. I.C. Bratianu, Nr. 36, sector 3 |
| 108. | Costelaria, Restaurant - Bucuresti | 0314055095 | Calea Rahovei, Nr. 147-150 , Sector 5, Bucuresti |
| 109. | Latin Pizza - Pizzerie, Bucuresti | 0751896358 | Bulevardul Ion C. Bratianu, Nr. 34, sector 3 |
| 110. | Kicen - Ciorbe de casa, Bucuresti | 0751012221 | str. Dr. Staicovici, nr. 43, sector 5 |
| 111. | Baroque Events & Garden - Restaurant Bucuresti | 0726350802 | Calea Rahovei, Nr. 145, Sector 5 |
| 112. | Flair Angel - Bar specializat in cocktailuri, Bucuresti | 0769771991 | Calea Rahovei, Nr. 147-153, sector 5 |
| 113. | Leonidas Cofetarie - Bucuresti | 0740014695; 0213141377 | Doamnei, Nr. 27 , Sector 3, Bucuresti |
| 114. | Boutique Du Pain - Restaurant cu specific francez, Bucuresti | 0728443300 | Academiei, Nr. 28-30, sector 1 |
| 115. | Suzana Ribs & Wings - Restaurant cu specialitati texane, Bucuresti | 0785444466 | Calea Rahovei, Nr. 147-153, Sector 5, Palatul Bragadiru |
| 116. | McDonald\'s | 0372701091 | Piata Unirii 1, Unirea Shopping Center, Bucuresti |
| 117. | Excalibur, Restaurant - Bucuresti | 0730190364; Tel Fax: 0213145670 | Academiei, Nr. 39-41, Sector 1 , Bucuresti |
| 118. | Bohemia Tea House, Ceainarie - Bucuresti | 0727333631 | Poiana Narciselor, Nr. 1 (vizavi de Conservator), Sector 1, Bucuresti |
| 119. | Time to Lunch | 0763200900 | Strada Patriei, Nr 4, sector 3 |
| 120. | Tulin, Restaurant libanez - Bucuresti | 0213144001; 0762212675 | Pictor Constantin Stahi, Nr. 2, Sector 1, Bucuresti |
| 121. | Club B52 - Bucuresti | 0753315563 | 11 Iunie, N. 50, Sector 5, Bucuresti |
| 122. | Lloyds Pub - Bucuresti | 0723133786 | Str. Coltei, Nr. 16, Sector 3 |
| 123. | Horoscop, Restaurant, Pizzerie - Bucuresti | 0767562215 | Bd.Dimitrie Cantemir, Nr 2, Sector 4, Bucuresti |
| 124. | Aria Gourmet Burger - Fast food Bucuresti | 0773778860; 0773778860 | Strada Slanic, Nr. 2, Sector 3 |
| 125. | Fabrica, Club,Pub, Tersa - Bucuresti | 0753227422; 0753315563; 0749116508 | 11 iunie, Nr,50, Sector 5, Bucuresti |
| 126. | SanThe Fitoceainarie - Ceainarie, Bucuresti | 0730370290 | Lipscani, nr 104, sector 3, |
| 127. | Bocca Lupo - Restaurant cu specific italian, Bucuresti | 0314050050 | Strada Dr. Lister, nr. 1, sector 5 |
| 128. | Vis a Vis - Restaurant Bucuresti | 0722102223 | Bd. I. C. Bratianu, |
| 129. | Level Up - Restaurant raw vegan, Bucuresti | 0721085582 | Str Sf. Vineri, Nr 10, sector 3 |
| 130. | The Clique Bistro - Restaurant cu specific international, Bucuresti | 0784901000 | Splaiul Unirii, sector 3 |
| 131. | Frufru, Fresh, natural, yummy , Fast food - Bucuresti | 0212221111; 0765346715 | Batistei , Nr. 1-3, Sector 2, Bucuresti |
| 132. | Mr. Cigkofte - Restaurant fast-food, Bucuresti | 0720802181 | Nicolae Balcescu, Nr. 18, sector 1 |
| 133. | Old School, Restaurant - Bucuresti | 0744105445; 0745110362 | Calea Plevnei, Nr. 61, Sector 6, Bucuresti |
| 134. | Edo Sushi - Restaurant cu specific japonez, Bucuresti | 0735111095 | Stirbei Voda, Nr 84A, sector 1 |
| 135. | Fabrica de mancare - Restaurant cu supe si ciorbe, Bucuresti | 0744123123 | B-dul Unirii, nr. 31, sector 3 |
| 136. | Paninaro - Restaurant pentru mic dejun si brunch | 0771783619 | Strada Luterana, Nr 3, sector 1 |
| 137. | Manasia Hub - Bar Bucuresti | 0736760063 | Str. Stelea Spatarul, Nr. 13, sector 3 |
| 138. | Moon Brasserie - Restaurant Bucuresti | 0723093170 | Bulevardul Unirii, Nr. 33, sector 3 |
| 139. | Athénée Palace Hilton,Cafenea,Baruri - Bucuresti | 0213033777; 0213152121; Fax: 0213152121 | Episcopiei, Nr. 1-3, Sector 1 , Bucuresti |
| 140. | The Owl Cocktail House - Bar specializat in cocktailuri, Bucuresti | 0743260923 | str. Stirbei Voda, Nr. 104-106, sector 1 |
| 141. | Bellini Garden - Restaurant cu specific italian, Bucuresti | 0722100111; 0314278776 | str. General Henri Mathias Berthelot, nr. 44, sector 1 |
| 142. | OPUS TNB - Bar specializat in cocktailuri | 0771595407 | Bulevardul Nicolae Balcescu, Nr. 2, sector 1 |
| 143. | Bellini Pizza - Bucuresti | 0314278776 | General Henri Matias Berthelot, Nr. 44,Sector 1, Bucuresti |
| 144. | Zoomserie - Cofetarie Bucuresti | 0751222265 | Sf. Vineri, Nr. 23, sector 3, intersectia Coposu (Calarasilor), |
| 145. | The Dock - Lounge, Bucuresti | 0743680336 | Bulevardul Unirii, nr. 30, sector 3 |
| 146. | Jazz Book - Club de jazz si blues, Bucuresti | 0752206746 | Doctor Carol Davila, Nr. 1, Cotroceni, sector 5 |
| 147. | Angelo Grasso - Restaurant cu specific italian, Bucuresti | 0739955555 | Strada Tudor Arghezi, 12-16, sector 2 |
| 148. | Kuma Bar - Bucuresti | 0766440936 | Strada Coltei, Nr. 50, sector 3 |
| 149. | Gradina Urbana - Restaurant cu specific american, Bucuresti | 0745250077 | Strada Batistei, Nr. 14, sector 2 |
| 150. | Ivan Pescar & Scrumbia Bar - Restaurant pescaresc, Bucuresti | 0729384828 | Str. Uranus, nr 150, cladirea The Ark, parter, sector 5 |
| 151. | Miss Ale - Espresso Bar, Bucuresti | 0371394059 | Calea Victoriei, Nr. 100, sector 1 |
| 152. | Grapes - Bar cu vinuri, Bucuresti | 0770463287 | Bdul. Marasesti, nr.2B, sector 4 |
| 153. | Nori Sushi - Restaurant cu specific japonez, Bucuresti | 0771179714 | Splaiul Unirii, nr 6, bl B3A, etaj 7-8 |
| 154. | The Temple Social Pub - Bucuresti | 0723469118 | Bd. Marasesti, Nr. 71-73 sector 4 |
| 155. | Get Naked by Bordello - Restaurant pentru mic dejun si brunch, Bucuresti | 0748881086 | Bd. Unirii, intre Bd Dimitrie Cantemir si Bd Mircea Voda |
| 156. | Ivy - Cafenea, Bucuresti | 0755210748 | Bulevardul Carol I, Nr. 23, sector 2 |
| 157. | Miss Ale - Bar specializat in cocktailuri | 0745089700 | Constantin F Robescu, Nr 2, sector 3 |
| 158. | Creamier - Cafenea Bucuresti | 0741234567 | Strada Benjamin Franklin, Nr. 5, Sector 1 |
| 159. | Terminus - Pub, Bucuresti | 0730222555 | Str. George Enescu, nr. 5, sector 1, |
| 160. | Primus Pub - Bucuresti | 0732222666 | George Enescu, Nr. 3, sector 1 |
| 161. | JO Lounge - Bar, Bucuresti | 0721811995 | Bd. Unirii, sector 3 |
| 162. | Ana Pan Cofetarie - Bucuresti | 0216373536; 0730262726; 0212332241 | Stirbei Voda, Nr. 166,Sector 1, Bucuresti |
| 163. | French Bakery, Cofetarie - Bucuresti | 0213114518 | Benjamin Franklin, Nr. 9, Sector 1, Bucuresti |
| 164. | Chocolat Ateneu - Boutique restaurant cu livrare de prajituri in Bucuresti | 0743777807; 0744507506 | Strada Episcopiei, Nr. 6, Sector 1, Bucuresti |
| 165. | Papila Kitchen - Restaurant, Bucuresti | 0753087799 | Strada Sfintilor, Nr 6, sector 2 |
| 166. | Savart - Arta savorilor Gourmet, Bucuresti | 0743575757 | Str. George Enescu, Nr. 2-4, sector 1 |
| 167. | B3ton - RestoBar, Bucuresti | 0217963684 | Bulevardul Marasesti, Nr. 2B, sector 4 |
| 168. | Legere - Bar, Bucuresti | 0730534373 | Piata Rosetti, nr 5, sector 2 |
| 169. | La petite bouffe - Cafenea, Bucuresti | 0733669344 | Strada Doctor Louis Pasteur, nr 38, sector 5 |
| 170. | Pe Baricade | Radu Voda, nr. 23A, sector 4 | |
| 171. | CAJU by Joseph Hadad - Braserie, Bucuresti | 0751144545 | Nicolae Golescu, Nr. 16, sector 1 |
| 172. | Buoni e Bravi - Pizzerie, Bucuresti | 0735215224 | Piata C. A. Rosetti, nr. 3, sector 2 |
| 173. | Surubelnita - Club, Bucuresti | 0768743593 | Str. Calea Mosilor, nr. 100, sector 2 |
| 174. | Wine Ambassador - Bar de vinuri, Bucuresti | 0733182037 | Intrarea Biserica Alba, nr.1, sector 1 |
| 175. | Gusto e Passione - Gelateria Artigianale, Bucuresti | 0755555453 | Calea Victoriei, Nr. 87, sector 1 |
| 176. | Bistro raw vegan, Restaurant - Bucuresti | 0726605501 | Transilvaniei, Nr. 11, Sector 1, Bucuresti |
| 177. | #Aici - Bar, Bucuresti | 0799124330 | Bulevardul Unirii, Nr 35, Sector 3, Bucuresti |
| 178. | Calderon 18 - Restaurant cu terasa, Bucuresti | 0731886789 | Str. Jean Louis Calderon, Nr.18, sector 2, |
| 179. | Bucatarasul cel Dibaci - Restaurant cu specific romanesc, Bucuresti | 0730340436;0760966360 | Strada Olteni, Nr 3, sector 3 |
| 180. | QP Pub - Bucuresti | 0736405451 | Str. General David Praporgescu, Nr. 13, sector 2 |
| 181. | Kane - Noua bucatarie romaneasca fina | 0314100016 | Str. Dianei, nr. 9 (Piata Rosetti), sector 2 |
| 182. | Barfly Bucuresti | 0727394131; 0721652899 | Olteni , Nr. 3, Sector 3, Bucuresti |
| 183. | Ambasador, Bar si Restaurant - Bucuresti | 0213159080; Fax 0213123595 | Bd. G-ral Gh. Magheru, Nr. 8-10, Sector 1, Bucuresti |
| 184. | Il Cantuccio, Restaurant - Bucuresti | 0722572957 (Sef unitate: Baieticu Ioana); 0735281669 (Sef unitate: Otvos Gabriela); 0724540839 (Manager: Florea Valentin) | Fabrica de Chibrituri , Nr. 2, Rond Autogara Filaret, sector 4, Bucuresti |
| 185. | Robescu 14 - Bar specializat in cocktailuri | 0773741922 | Strada Robescu F. Constantin, Nr. 14, sector 3 |
| 186. | Velocita - Gelaterie, Bucuresti | 0739889189 | Calea Victoriei, Nr. 122, sector 1 |
| 187. | Hanul Hangitei, Restaurant - Bucuresti | 0744827323; 0758043355 | Bd. Marasesti, Nr.70-72, Sector 4 , Bucuresti |
| 188. | Sweetology - Gelaterie, Bucuresti | 0734444889 | Calea Victoriei, Nr. 122, sector 1 |
| 189. | Fika18 - Croissanterie, Bucuresti | 0770663982 | Calea Victoriei, Nr. 101, sector 1 |
| 190. | Il Cantuccio, Restaurant - Bucuresti | 0722572957 (Sef unitate: Baieticu Ioana); 0735281669 (Sef unitate: Otvos Gabriela); 0724540839 Manager: Florea Valentin) | Fabrica de Chibrituri, Nr. 2, Rond Autogara Filaret, sector 4, Bucuresti |
| 191. | Arome - Restaurant vegetarian/vegan, Bucuresti | 0749109639 | Luigi Cazzavillan, Nr. 25, sector 1 |
| 192. | Kvala - Restaurant grecesc, Bucuresti | 0726731663 | str Louis Pasteur, nr 63, sector 5 |
| 193. | Bar A1 - Bucuresti | 0770901409 | Piata Amzei, Nr 1, sector 1 |
| 194. | Salon Golescu - Bar specializat in cocktailuri, Bucuresti | 0314360338 | Strada Nicolae Golescu, Nr 17, sector 1 |
| 195. | Beautyfood - Bistro, Bucuresti | 0759030609 | Jean Louis Calderon, Nr. 34, sector 2 |
| 196. | Imperial Turkish Cuisine & Steakhouse- Restaurant Bucuresti | 0720102222 | Strada Jean Louis Calderon, Nr. 33, Sector 2 |
| 197. | Cafe Verona - Cafenea Bucuresti | 0732003060 | Str. Arthur Verona, Nr. 13, sector 1, |
| 198. | M60 - Cafenea Bucuresti | 0314100010 | Strada Mendeleev, Nr 2, sector 1 |
| 199. | Jack Pot - Bar specializat in cocktailuri, Bucuresti | 0372916947; 0770776777 | Zborului, nr. 2, sector 3 |
| 200. | Osteria Zucca - Restaurant cu specific italian, Bucuresti | 0770287979; 0314206814 | Jean-Louis Calderon, Nr. 41, Sector 2, Bucuresti |
| 201. | Red Angus Steakhouse - Restaurant Bucuresti | 0756600000 | Piata Amzei, Nr. 10-22Sector 1, |
| 202. | Trattoria Don Vito - Restaurant Bucuresti | 0733333021 | Str. Mendeleev, Nr. 1, Sector 1 |
| 203. | Restaurant Karta - Bucuresti | 0744391111 | Bd. Unirii, Nr. 22, sector 3 |
| 204. | Lugo - Restaurant cu specific mediteranean, Bucuresti | 0785238910 | George Enescu, Nr. 23, sector 1 |
| 205. | Ceainaria Infinitea | 0723175300 | Str. Dr. Grigore Romniceanu, Nr.7, ap.2, sector 5 |
| 206. | Journey Pub - Bucuresti | 0752285286 | Strada George Enescu, Nr. 25, sector 1 |
| 207. | Rocca by The Jar - Gastropub Bucuresti | 0770857841 | Str. Pictor Theodor Aman, Nr. 36, sector 1 |
| 208. | Gran Gelato Italiano - Gelaterie Bucuresti | 0730057909 | Str. Radu Voda, Nr 28 A, Sector 4 |
| 209. | Bike Boutique and More - Magazin, terasa, service, Bucuresti | 0752405152 | Strada Profesor Doctor Victor Babes, Nr. 2, sector 5 |
| 210. | Gambino\'s Pizza - Bucuresti | 0731707070; 0725271471; 0310050209 | Vasile Lascar, Nr.24, Sector 2, Bucuresti |
| 211. | Bistro Fum de Vorbe - Restaurant Bucuresti | 0748628830; 0723686292 | Vasile Lascar, Nr. 24, Sectorul 2 |
| 212. | FoodVibe - Serviciu de livrare mancare | 0371333222 | Strada Sperantei, nr. 7, sector 2 |
| 213. | Nice Touch - Restaurant cu meniu international, Bucuresti | 0771568361 | Strada Sperantei, nr.7, sector 2 |
| 214. | Coolinart - Gastropub Bucuresti | 0772017955 | Calea Victoriei, Nr. 142-148, sector 1 |
| 215. | Newton Bar, Bucuresti | 0770718303; 0213150217 | Jean Louis Calderon, Nr. 56 (Universitate), Sector 2, Bucuresti |
| 216. | Fadel - Patiserie Bucuresti | 0786309530; 0722919132 | Strada Jean Louis Calderon, Nr. 56, Sector 2 |
| 217. | DolciConi - Gelaterie Bucuresti | 0753762549 | Vasile Lascar, Nr 26-28, sector 2 |
| 218. | Ambasador, Restaurant - Hotel Ambasador, Bucuresti | 0213159080 | Bd. G-ral Ghe. Magheru, Nr. 8-10, Sector 1, Bucuresti |
| 219. | El Pato - Restaurant Bucuresti | 0730344810; 0311072033 | Strada Dionisie Lupu, Nr. 48, sector 1 |
| 220. | Camera din fata - Ceainaria Bucuresti | 0213111512 | Str. Mendeleev, Nr. 22, sector 1, langa Piata Amzei |
| 221. | Casa Ede - Restaurant & Beauty - Barber Salon Bucuresti | 0772019516 | Strada Armeneasca, Nr. 8, sector 2 |
| 222. | La Copac - Carciuma de jupani, Bucuresti | 0722704445 | str. Pitar Mos, nr. 23, sector 1 |
| 223. | Derby Pub & Restaurant - Bucuresti | 0214108545 | Bd. Eroilor Sanitari , Nr. 49A,sector 5, Bucuresti |
| 224. | Citylicious - Restaurant Bucuresti | 0771707709 | Bld Tudor Vladimirescu, Nr. 29, sector 5 |
| 225. | Restaurant Home - Bucatarie internationala, Bucuresti | 0722509794; 0728708216; 0729811130 | Str. Alexandru Xenopol, Nr. 1 (zona Gradina Icoanei), Sector 1, Bucuresti |
| 226. | Tarta Ta - Delicii traditionale, Bucuresti | 0771522117 | Bulevardul Mircea Voda, Nr. 52, sector 3 |
| 227. | J\'ai Bistrot - Gastropub, Bucuresti | 0790229922 | Calea Grivitei, nr. 55, sector 1 |
| 228. | BEAT bar umanist - Bar, Bucuresti | 0720854187 | Vasile Lascar, Nr. 29, sector 2 |
| 229. | Barrio - Restaurant & bar, Bucuresti | 0733222777 | Biserica Amzei, Nr. 30, sector 1 |
| 230. | Tonka Soul Café - Bucuresti | 0371445255 | Biserica Amzei , Nr. 19, Sector 1, Bucuresti |
| 231. | Graffiti Urban Food, Bucuresti | 0749433433; 0733695443; 0769180180 | Str.Carol Davila, Nr. 56A, Sector 5, Bucuresti |
| 232. | Human Coffee - Cafenea Bucuresti | 0734744429 | Str. Elena Cuza, Nr. 8, Sector 4 |
| 233. | Simbio - Restaurant Bucuresti | 0756746246 | Str Negustori, nr. 26, sector 2 |
| 234. | Turkish Clasis - Restaurant, Bucuresti | 0721503011 | Sos Viilor, nr.27, sector 5 |
| 235. | Armand, Cofetarie - Bucuresti | 0310051187; 0741276263 | Armand Calinescu , Nr. 25, Sector 2, Bucuresti |
| 236. | KFC Romana, Fast Food - Bucuresti | 0740121904 | Bd. G-ral Gh. Magheru , Nr. 28-30, Sector 1 , Bucuresti |
| 237. | Rawyal brunch & cakes - Bucuresti | 0730777221 | Calea Mosilor, Nr 105, Sector 2 |
| 238. | Black Habit - Cafenea | 0770357382 | Calea Grivitei, Nr. 77, sector 1 |
| 239. | Trattoria Adagio - Restaurant cu specific italian Bucuresti | 0311061067; 0751218482 | Bd. Mircea Voda, Nr. 34, sector 3 |
| 240. | La Cena - Restaurant cu specific italian, Bucuresti | 0212116717;0730210014 | Maria Rosetti, Nr. 1, sector 2 |
| 241. | Pizzicato, Pizzerie si catering - Bucuresti | 0212111213 | Strada Icoanei, Nr. 2, Sector 2, Bucuresti |
| 242. | Lente - Restaurant pentru mic dejun si brunch, Bucuresti | 0314107585 | Dionisie Lupu, Nr 78, sector 1 |
| 243. | Sfeir Lebanese Cuisine - Bar & Grill | 0722311805 | Mircea Voda, Nr. 36, sector 3 |
| 244. | Cofetaria Casandra - Bucuresti | 0757252466 | B-dul. Magheru, Nr. 32-36, Sector 1 |
| 245. | Mezze, Restaurant libanez - Bucuresti | 0213116633; 0720044469 | Mircea Vulcanescu, Nr.153 B,Sector 1 , Bucuresti |
| 246. | Gelato D\'Amore - Magazin de inghetata Bucuresti | 0771727627 | Strada Maria Rosetti, Nr. 13, Sector 2 |
| 247. | SupaDupa - Restaurant cu supe si ciorbe, Bucuresti | 0739344281 | Strada Popa Tatu, Nr. 94, sector 1 |
| 248. | Wicked Bar - Bucuresti | 0722615188; 0723574895 | Strada Spatarului, Nr. 4, Sector 2, Bucuresti |
| 249. | Shift Pub - Bucuresti | 0212112272 | Str. General Eremia Grigorescu, Nr.17 |
| 250. | La Taifas, Bistro - Bucuresti | 0723197156; 0212127788 | Mihail Moxa, Nr. 12, Sector 1 , Bucuresti |
| 251. | Point Hub - Hub Cultural, Bucuresti | 0748291815 | Str. General Eremia Grigorescu, nr. 10, sector 1, |
| 252. | Zeppelin Pub - Bucuresti | 0722170024 | Strada Marin Serghiescu, Nr. 7, sector 2 |
| 253. | La Matache Restaurant (comenzi online si livrari la domiciliu) | 0213107327; 0213107337; 0213118888 | P-ta. Dr. Haralambie Botescu, Nr. 2, Sector 1, Bucuresti |
| 254. | Casa Oamenilor de Stiinta - Restaurant, Bucuresti | 0726664227; 0722926012; 0769293579 | P-ta Lahovari, nr. 9, Sector 1 |
| 255. | Berestroika - Beer Revolution - Bucuresti | 0722560300; 0721100000; 0733200000 | Aleea Cauzasi, Nr. 57, Sector 2, Bucuresti |
| 256. | Dines, Restaurant evenimente - Bucuresti | 0213362474; 0723634741; 0727968325 (Predescu Constantin) | Cutitul de Argint, Nr.12 (langa Arenele Romane) Sector 4, Bucuresti |
| 257. | Cald si Bun, Catering - Bucuresti | 0212339457; 0737526215 | Hatmanul Arbore, Nr. 11, Sector 1, Bucuresti |
| 258. | La Nenea Iancu - Restaurant cu specific romanesc, Bucuresti | 0745140786 | Str. Romulus, nr. 55, sector 3 |
| 259. | Boema 33 - Restaurant, Bucuresti | 0722295463 | Bd. Dacia, nr. 33, sector 1 (Piata Romana) |
| 260. | Old Kitchen - Restaurant Bucuresti | 0732773537 | Str. Sfintii Voievozi, Nr. 13, Sector 1 |
| 261. | Willy\'s Coffee Art - Bucuresti | 0769911077 | Bulevardul Carol I, Nr 62, sector 2, |
| 262. | L\'Amande - Deserturi fara gluten, Bucuresti | 0744639549 | Str. Lanariei, Nr. 93-95, sector 4 |
| 263. | EXPRESS Food & Drink - Restaurant fast-food, Bucuresti | 0732669922 | Bd. CAROL I, Nr. 62, Sector 2 |
| 264. | Noeme - Restaurant Bucuresti | 0721490270 | Anton Pann, Nr. 29, sector 3 |
| 265. | Ciao Niki - Restaurant cu specific italian, Bucuresti | 0734356217;0756044805 | Strada Bocsa, Nr 4, sector 2 |
| 266. | Burgeria Cotroceni - Restaurant fast-food, Bucuresti | 0314214777 | Soseaua Cotroceni, Nr. 9, sector 6 |
| 267. | Pizza Hut - Bucuresti | 0740121901 | Calea Dorobantilor , Nr. 5-7, Sector 1 , Bucuresti |
| 268. | Benihana - Restaurant cu specific japonez | 0751169889 | Calea Dorobantilor, Nr. 5-7 Hotel Howard Johnson, sector 1, |
| 269. | Maroon - Maroon Restaurant Cafe | 0742420000; 0764900000 | Bulevardul Unirii, Nr. 47 C, Sector 3 |
| 270. | Thalia - Restaurant cu bucatarie internationala | 0219993 | Strada Cuza Voda, Nr. 147, sector 4 |
| 271. | Dolce Principessa Cofetarie - Bucuresti | 0212115155; 0735213101 | Calea Dorobanti, nr. 50A, sector 1, Bucuresti |
| 272. | Ciccio - Pizzerie Bucuresti | 0745515510 | Strada Henri Coanda, Nr. 28 sector 1 |
| 273. | Bouzouki - Restaurant specific grecesc, Bucuresti | 0787528003 | Bulevardul Sincai Gheorghe, Nr. 3, sector 4 |
| 274. | Chaya TeaHouse - Ceainarie Bucuresti | 0755331000 | Strada Radu Ceaus, Nr. 7, sector 3 |
| 275. | The Mark - Restaurant pub Bucuresti | 0758505500 | Calea Grivitei, Nr. 84-98, sector 1 |
| 276. | Sarazin - Carol Fast food Bucuresti | 0787625505 | Bulevardul Carol I, Nr. 66, Sector 2, |
| 277. | Pizza Bar - Pizzerie, Bucuresti | 0746013623 | Lanariei, nr. 5, sector 4 |
| 278. | Zen Garden - Restaurant cu specific chinezesc, Bucuresti | 0745102272 | Strada Silvestru, Nr. 3, sector 2 |
| 279. | Mantuleasa 40 - Restaurant Bucuresti | 0754045450; 0751133141 | Str. Mantuleasa, Nr. 40, sector 2 |
| 280. | La Taifas, Restaurant - Bucuresti | 0212127788; 0723197156 | Gheorghe Manu, Nr. 16, sector 1 , Bucuresti |
| 281. | Borgo Stagioni - Restaurant Bucuresti | 0732163287; 0722220223 | Calea Calarasi, Nr. 78, Sector 3 |
| 282. | Animaletto Pizza Bar - Bucuresti | 0755019098 | Strada Visarion, Nr 10, sector 1 |
| 283. | Sardin - Restaurant cu specific italian, Bucuresti | 0729520111 | Bulevardul Mircea Voda, Nr. 39H sector 3, Bucuresti |
| 284. | Maison des Crepes - Clatitarie Bucuresti | 0770802524 | Strada Mihai Eminescu, Nr. 38, Sector 2 |
| 285. | Urban Bistro - Restaurant cu fripturi, Bucuresti | 0769918510 | Strada Piata Sfantu Stefan, Nr 6, sector 2 |
| 286. | PengYou - Restaurant specific chinezesc Bucuresti | 0787748272 | Str. Occidenului, Nr. 11, Sector 1 |
| 287. | Patiseria Tineretului - Bucuresti | 0761116622 | Bd. Gheorghe Sincai, Nr 2A, sector 4 |
| 288. | Bistro La Taifas, Restaurant - Bucuresti | 0212127788; 0723197156 | Gheorghe Manu, Nr. 16, Sector 1, Bucuresti |
| 289. | Unico Vero - Restaurant cu specific italian, Bucuresti | 0212123338;0758110265 | Strada Viitorului, Nr. 8, sector 2 |
| 290. | Panik & Pub - Pub, Bucuresti | 0728264360 | Str. Mihai Eminescu, Nr. 33 |
| 291. | Ceramic Cafe - Bucuresti | 0774007364 | I.C. Visarion, Nr 20, sector 1 |
| 292. | GinOteca - Bar, Bucuresti | 0751446446 | Strada Plantelor, Nr. 25, sector 2 |
| 293. | Madame B - Tea & Pancake House, Bucuresti | 0746030670 | Splaiul Unirii, nr.49,sector 3, |
| 294. | Nan Jing, Restaurant chinezesc - Bucuresti | 0213181285; 0726103407 | G-ral Gheorghe Manu, Nr. 2-4 (Hotel Minerva), Sector 1, Bucuresti |
| 295. | Posh Birt Select - Pub, Bucuresti | 0724004376 | Strada Plantelor, Nr. 26, sector 2 |
| 296. | Le Boutique Food Concept Store - Bucuresti | 0722538274; 0314380044 | Str. Sfantul Stefan, Nr. 13, sector 2 |
| 297. | Mon Paris Restaurant & Lounge - Restaurant cu specific european, Bucuresti | 0799973783 | Bd Dacia, Nr. 62, sector 2 |
| 298. | Nicoresti, Restaurant - Bucuresti | 0212112480; 0724290550 | Toamnei, Nr. 13 (colt cu Maria Rosetti nr. 40), Sector 2, Bucuresti |
| 299. | Quartier - Restaurant, Bucuresti | 0758222244 | Bd. Mircea Voda, Nr. 43, sector 3 |
| 300. | Grivita - Pub&Grill, Bucuresti | 0724748482 | Calea Grivita, Nr. 130 (Parter Eurohotels), |
| 301. | Trofic - Restaurant pentru mic dejun si brunch | 0751276600 | Bd. Mircea Voda, nr. 52, sector 3 |
| 302. | La Cantine de Nicolai, Restaurant - Bucuresti | 0725210608 | Povernei, Nr. 15-17, Sector 1, Bucresti |
| 303. | Bistro Cafe Carbon 14 - Bucuresti | 0790408777 | Str. Dimitrie Racovita, Nr. 18, Sector 2 |
| 304. | Cofetaria Ina - Bucuresti | 0723300213 | Str. C-tin Radulescu Motru, Nr. 6, Sector 4 |
| 305. | Decadence - Bar & Restaurant | 0741828489 | Strada Constantin Daniel, nr. 11, sector 1 |
| 306. | Gradina Olari - Terasa, Bucuresti | 0770147410 | Strada Olari, nr.8, Sector 2 |
| 307. | Ceai la Vlaicu - Ceainarie Bucuresti | 0727609699 | Str. Aurel Vlaicu, Nr. 47, sector 2 |
| 308. | Koffeev - Cafenea, Bucuresti | 0767195222 | Bulevardul Unirii, Nr. 57, sector 3 |
| 309. | The Artist Restaurant - Bucuresti | 0728318871 | Calea Victoriei, Nr.147, sector 1 |
| 310. | Time Out Cafe - Bar & Cafenea Bucuresti | 0744644400 | Strada Olari, Nr. 7, sector 2 , |
| 311. | Blue Margarita - Restaurant cu specific mexican Bucuresti | 0770944822 | Strada Povernei, Nr. 15-17, sector 1 |
| 312. | Restaurant Burebista Traditional - Bucuresti | 0755041484; 0212109704 | Calea Mosilor, Nr 195, sector 2 |
| 313. | Comics Club - Stand Up, Bucuresti | 0741426426 | Str. Nerva Traian, Numarul 4. sector 3 |
| 314. | Green Tea Ceainarie - Bucuresti | 0213209396; 0749090202 | Dr. Burghelea, Nr. 24, Sector 2, Bucuresti |
| 315. | Beraria Centrala - Restaurant Bucuresti | 0740959311 | Strada Nerva Traian, Nr. 2, Sector 3 |
| 316. | Friddi - Gelaterie, Bucuresti | 0314313295 | Str. Vasile Alecsandri, Nr. 4, sector 1 |
| 317. | Efes - Restaurant cu specific turcesc, Bucuresti | 0737018590 | Bulevardul Nerva Traian, Nr. 17 - 19, sector 3 |
| 318. | Za Lokal - Restaurant pentru mic dejun si brunch, Bucuresti | 0770557931 | Calea Victoriei, Nr 214, sector 1 |
| 319. | Luna Cafe & Bistro - Bucuresti | 0771609431; 0771211246 | Str. Viitorului, Nr. 32, sector 2, |
| 320. | Terasa Oasis - Restaurant Bucuresti | 0733638577 | Mihail Sebastian, Nr.102. Sector 5, Bucuresti |
| 321. | Veranda Casa Frumoasa - Restaurant Bucuresti | 0733735932 | Str. Clopotarii Vechi, Nr. 5, sector 1 |
| 322. | Sara Green - Restaurant vegan, Bucuresti | 0774962246;0765191076 | Bulevardul Lascar Catargiu, Nr 43, Sector 1 |
| 323. | Tabiet 41 - Restaurant, Bucuresti | 0314260278 | Strada Viorele, nr.59, sector 4 |
| 324. | Tarab - Restaurant cu specific libanez, Bucuresti | 0774411111 | Strada Nerva Traian, Sector 3 |
| 325. | So! Coffee, Cafenea - Bucuresti | 0372285718; 0314078250 | Piata Garii de Nord, Nr.1-5 (In fata peroanelor 4-5), Sector 1, Bucuresti |
| 326. | MagiCake - Atelier de dulciuri artizanale, Bucuresti | 0772072072 | Strada Alexandru Moruzzi, Nr. 4A, sector 3 |
| 327. | Gradina Eden - Terasa Bucuresti | 0722185368 | Calea Dorobanti, Nr. 44-46 sector 1 |
| 328. | Bragageria Bogdania - Bistro, Bucuresti | 0787877985 | Str. Olari, Nr. 20, Sector 2 |
| 329. | De Cartier - Restaurant de tip familial, Bucuresti | 0213305556 | Str. Viorele, Nr. 57A, sector 4 |
| 330. | Fresh Chicken - Restaurant cu preparate la gratar | 0724392216 | Str Mihail Sebastian, nr 48, sector 5 |
| 331. | Casa Bia - Restaurant Bucuresti | 0761241623 | Str. Sebastian Mihail, Nr. 19, sector 5 |
| 332. | Acuarela Bufet - Bucuresti | 0745662889; 0741403238; 0721483051 | Polona, Nr. 40,Sector 1, Bucuresti |
| 333. | Colosal - Fast Food, Bucuresti | 0737698255 | Strada Mihail Sebastian, Nr. 133, sector 5 |
| 334. | Coclinta Brasserie- Restaurant cu specific romanesc, Bucuresti | 0770238774 | Calea Victoriei, Nr. 153, sector 1 |
| 335. | Politica si Delicateturi Bucuresti - Restaurant cu specific romanesc | 0785516681 | Str. Prof. Dr. Mihail Georgescu, Nr. 24, sector 2 |
| 336. | ChefBox - Restaurant, Bucuresti | 0728800528 | Buzesti, Nr. 57-59, sector 1 |
| 337. | Shiva Coffee&Tea - Cafenea Bucuresti | 0748874482 | Strada Mihai Eminescu, Nr. 73, sector 2 |
| 338. | VINO - Bar de vinuri, Bucuresti | 0799944999 | Strada Mihai Eminescu, Nr. 71 |
| 339. | KALI - Restaurant cu bufet, Bucuresti | 0725988889 | Strada Buzesti, Nr. 71, Sector 1 |
| 340. | Trattoria Mezzaluna - Restaurant specific italian Bucuresti | 0729591469 | Calea Dorobanti, Nr. 63, sector 1 |
| 341. | Fayn Urban Eatery - Restaurant, Bucuresti | 0723257692 | Strada Buzesti, nr. 71, sector 1 |
| 342. | La Impinge Tava - Bucuresti | 0721150452 | Str. Mihai Eminescu, Nr. 73, Sector 2 |
| 343. | Naan Project - Restaurant, Bucuresti | 0730707119 | Strada Progresului, Nr. 1-3 (Razoare), sector 5 |
| 344. | Casual Pub - Restaurant Bucuresti | 0770841212 | Bd. Dacia, Nr. 104, Sector 2 |
| 345. | Coftale Coffee Shop - Cafenea, Bucuresti | 0746420874 | Strada Profesor Stefan Mihaileanu, Nr.42, sector 2 |
| 346. | Cofetaria Madlene - Bucuresti | 0753223222 | Str. Traian, Nr.103, sector 2 |
| 347. | City Grill Restaurant - Bucuresti | 0722446766; 0724599886 | Bulevardul Lascar Catargiu, Nr. 56, Sector 1, Bucuresti |
| 348. | Sare si Piper - Restaurant cu specific italian, Bucuresti | 0744663451 | Str. Viorele, nr. 26, zona Timpuri Noi, sector 4, Bucuresti |
| 349. | Nicolai To Go - Bistro Bucuresti | 0741600006 | Calea Dorobantilor, Nr. 67, sector 1 |
| 350. | Il Destino, Restaurant italian - Bucuresti | 0212103039; 0758836278; 0744318094 (Pentru evenimente) | Silvestru, Nr. 67, Sector 2, Bucuresti |
| 351. | Trattoria Buongiorno - Restaurant cu specific italian, Bucuresti | 0722446766 | Bdul. Lascar Catargiu, Nr. 56, sector 1 |
| 352. | Pizzeria Alessandro - Bucuresti | 0721886488; 0721887488 | Drumul Sarii, Nr.150, sector 6 |
| 353. | Ciorbarie - Restaurant cu supe si ciorbe, Bucuresti | 0785610628 | Calea Dorobanti, Nr. 73, sector 1 |
| 354. | Castronul Gustos - Restaurant, Bucuresti | 0749011588 | Str. Nasaud, nr. 97, Sector 5 |
| 355. | Yasmin Bakery - Cofetarie, Bucuresti | 0721076376; 0760272225 | Calea Rahovei, nr.322 sector 5 |
| 356. | La Finca by Alioli - Restaurant Bucuresti | 0767150500 | Str. Caderea Bastiliei, Nr. 78, Sector 1, |
| 357. | Golden Blitz, Restaurant - Bucuresti | 0214105100 | Razoare , Nr. 32, Sector 6 , Bucuresti |
| 358. | Golden Blitz, Restaurant - Bucuresti | 0214105100 | Razoare , Nr. 32, Sector 6 , Bucuresti |
| 359. | Domino\'s Pizza, Fast food - Bucuresti | 0736500200 | Bd. Iancu de Hunedoara, nr. 38, sector 1 , Bucuresti |
| 360. | Trafalgar Pub - Bucuresti | 0212113151; 0766625805 | David Emanuel , Nr. 4A, Sector 1, Bucuresti |
| 361. | Domino\'s Pizza - Bucuresti | 0736500200 | Bd. Iancu de Hunedoara, Nr. 38, Sector 1 , Bucuresti |
| 362. | Restaurant Sole - Bucuresti | 0722587589 | Bd. Iancu de Hunedoara, Nr. 48, etaj 15, sector 1 |
| 363. | Angeline Cake Boutique - Cofetarie, Bucuresti | 0753652144 | Str. Doctor Iacob Felix, Nr. 59, Sector 1 |
| 364. | Torna Fratre Restaurant - Bucuresti | 0212103557; 0784111890 | Tunari, Nr. 34, Sector 2, Bucuresti |
| 365. | Contesa, Restaurant - Bucuresti | 0731831891; 0722244214; 0213317171 | Sibiel, Nr. 5, sector 4, Bucuresti |
| 366. | Capital Plaza, Hotel si Restaurant - Bucuresti | 0372080080; Fax: 0372080081 | Bd. Iancu de Hunedoara, Nr. 54, Sector 1, Bucuresti |
| 367. | La Colt - Bar & Grill, Bucuresti | 0371179862 | Strada Telita, Nr 1, sector 5 |
| 368. | Coppa - Bar cu vinuri si cafea, Bucuresti | 0741594545; 0756080004 | Bd. Nicolae Titulescu, nr. 3, sector 1 |
| 369. | La Machedoni - Restaurant cu specific traditional romanesc si american | 0721512236 | Anastasie Panu, nr. 10, sector 3 |
| 370. | Ici et La - Restaurant cu specific francez Bucuresti | 0731453608 | Strada Domnita Ruxandra, Nr. 7, Sector 2 |
| 371. | Capital Plaza, Hotel si Restaurant - Bucuresti | 0372080050; 0372080081 | Bd.Iancu de Hunedoara, Nr. 54, Sector 1, Bucuresti |
| 372. | Fast Food Eminescu - Bucuresti | 0723161166 | Str. Mihai Eminescu, nr 137, sector 2 |
| 373. | Chong Qing - Restaurant cu specific chinezesc, Bucuresti | 0212525095; 0731383952 | B-dul Pache Protopopescu, Nr.28, sector 2 |
| 374. | Ciorbe si Placinte - Restaurant cu specific romanesc, Bucuresti | 0755993070 | B-dul Iancu de Hunedoara, Nr. 64, sector 1 |
| 375. | Restaurant Grill Verdetei 5 - Restaurant cu preparate la gratar, Bucuresti | 0766411338 | Strada Verdetei, nr. 5, sector 3 |
| 376. | Fendi Kebap - Restaurant fast-food, Bucuresti | 0314051091 | Str. Novaci, |
| 377. | Casa Veche - Restaurant, Ramnicu Valcea | 0747875045 ; 0748702238; 0350418155 | Stirbei Voda, Nr.162, Ramnicu Valcea, judetul Vilcea |
| 378. | Din Fu - Restaurant chinezesc Bucuresti | 0729313338; 0213260127 | Str. Alexandru Moruzzi, Nr. 76A, Sector 3 |
| 379. | Lucky Point Pub | 0742181263 | Splaiul Independentei, 204,sect.6, Bucuresti |
| 380. | No10 - Restaurant cu specific italian | 0741210003 | Strada Austrului, Nr. 10, sector 2 |
| 381. | The Soup Carousel - Restaurant cu supe si ciorbe, Bucuresti | 0725356907 | Sos. Nicolae Titulescu, Nr. 12, sector 1 |
| 382. | Casa Lazar - Restaurant Bucuresti | 0764024444; 0738794310; 0735778229 | Serg. Maj. Ion Nedeleanu, Nr. 8, sector 5 |
| 383. | Old Mike Pub si Restaurant - Bucuresti | 0787366166 | Morilor, Nr. 46 Sector 3, Bucuresti |
| 384. | Vivono Pizza - Pizzerie, Bucuresti | 0784000212 | Strada Telita, Nr.54, Sector 5 |
| 385. | Haveli, Restaurant - Bucuresti | 0212110390; 0721721640 | Episcopul Radu, Nr. 3, Sector 2, Bucuresti |
| 386. | Restaurant Interbelic - Bucuresti | 0733413133 | Str Petre Ispirescu, Nr. 6A, sector 5 |
| 387. | Springtime, Restaurant - Bucuresti | 0742224736; 0742224743; 0742224739 | Piata Victoriei, Bl. A6 Sector 1, Bucuresti |
| 388. | Blunch Bistro - Restaurant, Bucuresti | 0736898990 | Mihai Eminescu, Nr.181, sector 2 |
| 389. | Quantic Pub - Bucuresti | 0314321742 | Soseaua Grozavesti, Nr. 82, sector 6 |
| 390. | 5ENSI by BeanZ Cafe - Bucuresti | 0733888555 | Bd. Aviatorilor, Nr. 8A, sector 1, Bucuresti |
| 391. | Sweet Sophie - Cofetarie | 0748309063 | Strada Popa Nan, Nr. 22, sector 2 |
| 392. | Die Deutsche Kneipe - Restaurant cu specific german | 0722284560 | Str. Stockholm, nr. 9, sector 1, |
| 393. | China Town Restaurant - Bucuresti | 0726130138; 0788671161; Tel/Fax:0212120239 | Viitorului, Nr. 98, Sector 2, Bucuresti |
| 394. | Trattoria Della Nonna - Restaurant cu specific italian, Bucuresti | 0771697503 | Strada Popa Nan, Nr. 5, sector 2 |
| 395. | Noua - Restaurant cu specific romanesc, Bucuresti | 0217943294 | Strada Popa Nan, Nr. 7, sector 2 |
| 396. | Burger Peter - Restaurant cu burgeri Bucuresti | 0799981031 | Strada Popa Nan, Nr. 48, sector 2 |
| 397. | King Rolls - Fast Food Bucuresti | 0747887206 | Calea Vitan, Nr. 17A, sector 3 |
| 398. | Karishma, Restaurant indian - Bucuresti | 0212525157; 0737519953 | Iancu Capitanu, Nr. 36, Sector 2, Bucuresti |
| 399. | Suento - Restaurant cu specific european modern, Bucuresti | 0787605362 | Strada Toamnei, Nr. 101, sector 2 |
| 400. | Bistro Turturelelor - Restaurant, Bucuresti | 0726310583; 0758887454 | Strada Turturelelor, 11A, corpC, Parter, Sector 3 |
| 401. | La Calinescu - Restaurant cu specific romanesc, Bucuresti | 0788472725; 0213310750 | Strada Piscului, Nr. 16, sector 4 |
| 402. | Oktoberfest Pub - Bucuresti | 0724333233 | Popa Nan, Nr. 95, Sector 3, Bucuresti |
| 403. | Cucina di casa - Pizzerie, Bucuresti | 0735868318 | Calea Vacaresti, Nr. 230, sector 4 |
| 404. | Trattoria Fresca - Restaurant cu specific italian, Bucuresti | 0731333410 | Str.Popa Nan, nr.140, Sector 2 |
| 405. | Fast Food Plevnei - Restaurant Fast Food Bucuresti | 0761046444 | Calea Plevnei, Nr. 230, sector 1 |
| 406. | Banjo Jack - Restaurant cu burgeri, Bucuresti | 0770653341 | Strada Iancu Capitanu, Nr 26, sector 2 |
| 407. | Triana - Cofetarie, Bucuresti | 0740302404 | Soseaua Orhideelor, Nr. 46, sector 1 |
| 408. | El Torito, Restaurant - Bucuresti | 0212526688; 0728176059 | Iancu Capitanu , Nr. 30, Sector 2, Bucuresti |
| 409. | Ubuntu Coffee - Terasa, Bucuresti | 0758635771 | Splaiul Unirii, Nr. 195, sector 3 |
| 410. | Prajituri de Casa - Cofetarie Bucuresti | 0751135153 | Calea Mosilor, Nr. 225, sector 2 |
| 411. | Cofetaria Dinalex - Bucuresti | 0214237928; 0785137937 | Calea Ferentari, Nr. 162, sector 5 |
| 412. | Refill - Bistro cu specific international, Bucuresti | 0786372856 | Bulevardul Mihalache, Nr. 12, sector 1 |
| 413. | Elena - Restaurant cu specific romanesc, cu terasa, organizare evenimente, Bucuresti | 0747277232 | Calea 13 Septembrie, Nr. 289, Sector 5, Bucuresti |
| 414. | Rai de Dulce - Laborator de cofetarie si patiserie Bucuresti | 0735632709; 0731885888 | Calea Rahovei, Nr. 374, sector 5 |
| 415. | Sale Dolce, Restaurant - Bucuresti | 0736858430; 0735123687 | Matei Voievod, Nr. 20, Sector 2, Bucuresti |
| 416. | Volare - Pizzerie, Bucuresti | 0730622600 | Calea Vacaresti, Nr.203B, sector 4 |
| 417. | Paque Bistro - Restaurant cu bar, Bucuresti | 0722330607 | Bulevardul Pache Protopopescu, nr.60, sector 2 |
| 418. | La Giuggiola - Gelateria artizanala italiana Bucuresti | 0770107183 | Bulevardul Pache Protopopescu, Nr. 57, Sector 2 |
| 419. | Pata Negra - Restaurant cu specific spaniol, Bucuresti | 0734349076 | Strada Washington, Nr 11, sector 1 |
| 420. | Fatafit - Restaurant cu specific libanez, Bucuresti | 0760445555 | Calea Mosilor, Nr. 225, Sector 2 |
| 421. | Dabeef - Restaurant Bucuresti | 0739835658 | Calea Floreasca, Nr. 111-113, Sector 1 |
| 422. | E3 by Entourage - Restaurant Bucuresti | 0734966889 | Calea Floreasca, Nr. 111-113, Sector 1 |
| 423. | Yesterday, Hotel si Restaurant - Bucuresti | 0213408585; 0737001008 | Economu Cezarescu, Nr. 8, Sector 6, Bucuresti |
| 424. | Cesme - Restaurant cu specific turcesc, Bucuresti | 0721163176 | Str. Calea 13 Septembrie, Nr 272, sector 5 |
| 425. | Japanos - Restaurant cu specific japonez, Bucuresti | 0771621192 | Calea Dorobantilor, nr. 116-122, spatiul comercial nr. 3, parter, sector 1 |
| 426. | Templul Soarelui, Restaurant chinezesc - Bucuresti | 0212111693; 0723743878 | Vasile Lascar, Nr. 205, Sector 2, Bucuresti |
| 427. | Britannia - Restaurant, Bucuresti | 0725998899 | Strada Petre Ispirescu, Numarul 9 b, Sector 5 |
| 428. | Lolita - Boutique de dulciuri Bucuresti | 0757013453 | Strada Vasile Lascar, Nr. 212, sector 2 |
| 429. | Cuptorul cu Lemne, Pizza - Bucuresti | 021.9363; 0212524493; (021) 9363 - tasta 0 | Bd. Pache Protopopescu, Nr. 63, Sector 2, Bucuresti |
| 430. | Cuptorul cu Lemne - Restaurant pizzerie Bucuresti | 0219363 | Bd. Pache Protopopescu, Nr 65, sector 2 |
| 431. | Templul Soarelui, Restaurant chinezesc - Bucuresti | 0212111693; 0723743878 | Vasile Lascar, Nr. 205, Sector 2, Bucuresti |
| 432. | Piticot, Cofetarie Bucuresti | 0214206670; 0726714865 Whatsapp | Petre Ispirescu, Nr. 77, Sector 5, Bucuresti |
| 433. | Amareto, Cofetarie - Bucuresti | 0736659592; 0723830104; 0723830104 whatsapp | Sos. Stefan cel Mare , Nr. 36, Sector 2 (vis-a-vis de Circul Metropolitan Bucuresti), Bucuresti |
| 434. | Casa Brancoveanu Restaurant - Bucuresti | 0724640000; 0314245890; 0762643010 | Caramidarii de Jos, Nr.14, Sector 5, Bucuresti |
| 435. | Claus, Cofetarie Bucuresti | 0212220218; 0721264900 | Bd. Banu Manta, Nr. 21A, Sector 1, Bucuresti |
| 436. | Laur Express Food - Restaurant fast-food, Bucuresti | 0732455089 | Bulevardul Ferdinand I, Nr. 60, sector 2 |
| 437. | Excellence - Restaurant Bucuresti | 0723888822 | Strada Petre Ispirescu, Nr. 110-112, sector 5 |
| 438. | Said - Fast Food, Bucuresti | 0772229461; 0773755896 | Calea Rahovei, Nr. 390, sector 5 |
| 439. | Pizza PPH - Pizza si catering, Bucuresti | 0319441 | Str. Lirei, Nr. 13, sector 2 |
| 440. | Cofetaria Maia Artizan Bakery - Bucuresti | 0762298622 | Str. Margeanului, Nr. 115, sector 5 |
| 441. | Casa Banil Restaurant - Bucuresti | 0214105716; 0723391161; 0724159949 | Petre Ispirescu , Nr. 95, Sector 5, Bucuresti |
| 442. | Resto Aperto, Restaurant - Bucuresti | 0738741118 | Calea Vitan, Nr.55-59 (Bucuresti Mall) Sector 3, Bucuresti |
| 443. | Panorama Kebap - Restaurant fast food, Bucuresti | 0766244009 | Str Margeanului, Nr.115, sector 5 |
| 444. | Galletto Ristorante, Restaurant italian, catering - Bucuresti | 0212112276; 0770407519 | Soseaua Orhideelor, Nr.1 (podul nou Basarab,langa cladirile de birouri The Bridge, Sector 6, Bucuresti |
| 445. | SwitchEat - Restaurant cu burgeri Bucuresti | 0726023881 | Strada Horei, Nr 34, sector 2 ( la doi pasi de Foisorul de Foc) |
| 446. | Arogant - Restaurant & Lounge, Bucuresti | 0732764268 | Piata Alba Iulia Piata Alba Iulia, nr 8, sector 3 |
| 447. | 14th Lane - Restaurant cu mancaruri fine, organizare evenimente, Bucuresti | 0737776777 | Sos. Orhideelor, Nr. 15D, sector 6, Bucuresti |
| 448. | Modelier - Bistro, cocktails Bucuresti | 0799630693 | Strada Duzilor, Nr. 12, sector 2 |
| 449. | La Placinte - Restaurant cu specific romanesc, Bucuresti | 0756207005 | Bd. Vasile Milea, 4F (Afi Park 2) |
| 450. | Resto Aperto, Restaurant - Bucuresti | 0738741118 | Calea Vitan , Nr.55-59(Bucuresti Mall) Sector 3, Bucuresti |
| 451. | Dorobanti 140, Cofetarie - Bucuresti | 0723500025 | Calea Dorobantilor, Nr.140,Sector 1, Bucuresti |
| 452. | Marshal Garden, Restaurant - Bucuresti | 0213194444; 0213194445; 0758105310 | Calea Dorobantilor, Nr. 50 B, Sector 1, Bucuresti |
| 453. | Mazzaj Cafe - Restaurant cu specific libanez, Bucuresti | 0757292398 | Splaiul Unirii, Nr. 162, sector 4 |
| 454. | La Mama - Restaurant Bucuresti | 0721526262 | Strada Delea Veche, Nr. 51, sector 2 |
| 455. | Andros - Cofetarie, Bucuresti | 0748888847 | Str. Antiaeriana, nr. 5, sector 5, |
| 456. | Pasticceria Giuseppina Cofetarie - Bucuresti | 0730283947 | Soseaua Stefan cel Mare, Nr.46, Sector 2, Bucuresti |
| 457. | Skybar - Bucuresti | 0724759227 | Calea Dorobanti, Nr. 155, Etaj 5, sector 1 |
| 458. | Nikos Greek Taverna, Restaurant - Bucuresti | 0730001008 (Restaurant); 0215999099 (Livrari) | B-dul Burebista, Nr 2 (Piata Alba Iulia), Sector 3, Bucuresti |
| 459. | Pui de Urs, Restaurant - Bucuresti | 0213166289; 0724622226; 0765166266 | Econom Cezarescu, Nr. 42 (Grozavesti), Sector 6 , Bucuresti |
| 460. | Turquoise - Restaurant cu specific oriental, Bucuresti | 0731826222 | Strada Theodor D. Sperantia, Nr. 96, sector 3 |
| 461. | Bacania Veche - Bistro si pravalie Bucuresti | 0752202103; 0212101222 | Barbu Vacarescu, Nr. 49, sector 2 |
| 462. | Cuibul Randunelelor - Restaurant Bucuresti | 0214244218 | Strada Focsani, Nr. 38, sector 5 |
| 463. | Gio Cafe - Bucuresti | 0730030757 | Bd. Burebista, Nr.2 , Sector 3, Bucuresti |
| 464. | Giorginio Cofetarie - Bucuresti | 0722434002 | Calea Dudesti, Nr. 129 (colt cu str. Scoala Ciocanul) Sector 3, Bucuresti |
| 465. | Shorley Restaurant - Bucuresti | 0765377308; 0724710385; 0213124312 | Econom Cezarescu, Nr. 50, Sector 6 , Bucuresti |
| 466. | Royal Kebap - Restaurant fast-food, Bucuresti | 0730242360 | Strada Margeanului, Nr. 105 C, sector 4 |
| 467. | Trei Camile - Restaurant Bucuresti | 0747641564 | Blv. Pieptanari, Nr. 43, sector 5 |
| 468. | Lotus Cafe - Cafenea restaurant Bucuresti | 0722808389 | Bd. Decebal, Nr 1, sector 3 |
| 469. | Cofetaria Eduard - Bucuresti | 0760944165 | Bulevardul Pieptanari, Nr. 53, sector 4 |
| 470. | Pain Plaisir - Patiserie Bucuresti | 0745645555 | Strada Barbu Delavrancea, Nr. 1, sector 1 Pain Plaisir Kiseleff |
| 471. | La Cristi - Fast Food si catering, Bucuresti | 0729266850 | Strada Frosa Sarandy, Nr. 17, Sector 1 |
| 472. | Casa Jienilor, Restaurant - Bucuresti | 0212121951; 0722916111 | Fainari, Nr. 5, Sector 2, Bucuresti |
| 473. | Padthai - Restaurant Bucuresti | 0726637747 | Bulevardul Decebal, Nr. 3, sector 3 |
| 474. | Casa Jienilor, Restaurant - Bucuresti | 0212121951; 0722916111; Fax 0212121951 | Fainari, N. 5, Sector 2, Bucuresti |
| 475. | Casa Jienilor Fainari, Restaurant - Bucuresti | 0212121951; 0735994994 | Fainari, Nr. 5, Sector 2, Bucuresti |
| 476. | Tress Caffe&Lounge - Bucuresti | 0721988801 | Bulevardul Decebal, Nr 3, sector 3 |
| 477. | El Bacha, Restaurant - Bucuresti | 0212691392; 0722833333 | P-ta Alba Iulia, nr.6 bl.15, sector 3, |
| 478. | The Place Pub - Pub, Bucuresti | 0743951281 | Mr. Alexandru Campeanu, nr.36, sector 1 |
| 479. | Nabu - Bar Bucuresti | 0787407043 | Pache Protopopescu, Nr. 97, sector 2 |
| 480. | Club Art Papillon Restaurant - Bucuresti | 0212522520; 0732582278; 0722240930 | Matei Voievod , Nr. 66A Sector 2, Bucuresti |
| 481. | Nido Kitchen & Wine - Restaurant cu specific international, Bucuresti | 0374004488 | Aleea Alexandru, Nr. 35 |
| 482. | Casa Jienilor, Restaurant - Bucuresti | 0735994994; 0722916111 | Str. Fainari, nr. 5, sector 2, |
| 483. | Rainbow - Bar & Grill, Bucuresti | 0743205054 | Cornul Caprei, nr.53, sector 3 |
| 484. | The Canteen - Restaurant Bucuresti | 0735517630 | Str. Barbu Vacarescu, Nr. 44, Bl. 7 Sector 2 |
| 485. | Belli Siciliani - Restaurant autentic sicilian, Bucuresti | 0799090601 | Str. Matasari, Nr. 47, sevtor 2, |
| 486. | Bistro HB - Restaurant Bucuresti | 0735011736; 0735011735; 0735011737 | Strada Matasari, Nr. 49 Sector2 |
| 487. | XO Lounge - Restaurant Bucuresti | 0725585388 | B-dul Decebal, Nr. 5, sector 3 |
| 488. | Naser - Restaurant specific libanez Bucuresti | 0799980001; 0799980002; 0213135060 | Str. Fluierului, Nr. 18, sector 2 (colt cu Str. Matasari, in spatele PRO TV) |
| 489. | Casa Lica - Cofetarie Bucuresti | 0725761188 | Bulevardul Decebal, Nr. 5, Sector 3 |
| 490. | Ganesha Caffe & Garden - Bucuresti | 0764263742 | Str. Barbu Vacarescu, nr. 71, sector 2, |
| 491. | Alceva - Restaurant, Bucuresti | 0770844125 | Matei Voievod, Nr. 79, sector 2, |
| 492. | Restaurant La Teu - Bucuresti | 0723642022 | Strada Titu Maiorescu, Nr.18, sector 2 |
| 493. | Cannoleria - Cafenea Bucuresti | 0753325071 | Str.Cornescu, Nr. 4, sector 1, |
| 494. | Casa Doina, Restaurant - Bucuresti | 0212226717; 0745009009 | Soseaua. Kiseleff , Nr. 4, Sector 1, Bucuresti |
| 495. | Hop Garden - Restaurant cu preparate la gratar, Bucuresti | 0770448443 | Splaiul Unirii, Nr. 225, sector 3 |
| 496. | Roxy Pub - Bucuresti | 0742033944; 0723327117; 0785224508 | Splaiul Independentei, Nr. 290, Complex Studentesc Regie, Bucuresti |
| 497. | Hashtag Pub - Bucuresti | 0771555444 | Soseaua Mihai Bravu, Nr 32, sector 2 |
| 498. | Casa Jienilor Agricultori, Restaurant - Bucuresti | 0735994994 | Agricultori, Nr.12, Sector 2, Bucuresti |
| 499. | Casa Doina, Restaurant - Bucuresti | 0745009009; 0212226717; 0212223179 | Soseaua Pavel D. Kiseleff, Nr. 4, Sector 1, Bucuresti |
| 500. | Terasa Florilor - Restaurant cu terasa, Bucuresti | 0755097931 | Str. Ion Maiorescu, nr. 42, sector 2 |
| 501. | Agio Bistrot - Bistro, Bucuresti | 0763528818 | Bd. Decebal, Nr. 9, sector 3 |
| 502. | Funky Lounge - Terasa, Bucuresti | 0755505505 | Bd. Decebal, nr 9, sector 3 |
| 503. | Mon Cheri, Restaurant - Bucuresti | 0748750029; 0771693817; 0212310908 | Tudor Stefan, Nr. 16 (langa P-ta Dorobanti), sector 1, Bucuresti |
| 504. | Elzada - Restaurant Bucuresti | 0724519898; 0722214001; 0723019747 | Soseaua Oltenitei, Nr. 13-15, Sector 4 |
| 505. | Mercato Kultur - Restaurant cu specific international, Bucuresti | 0759134767 | Gheorghe Demetriade, nr. 6-10, Aviatorilor, sector 1 |
| 506. | Seneca Anticafe - Cafenea, Bucuresti | 0720331100 | Strada Arhitect Ion Mincu, nr. 1, sector 1 |
| 507. | Rich Vip Lounge - Restaurant Bucuresti | 0771790764 | Bd.Decebal, Nr 9, sector 3 |
| 508. | Turquoise Bakery - Bucuresti | 0739037919 | Str. Matei Voievod, nr.101, Sector 2 |
| 509. | Cofetaria Lush - Bucuresti | 0720976019?; 0721605303 | Soseaua Stefan cel Mare, Nr. 226, bloc.44, parter, sector 2 |
| 510. | Hatz Burger Studio - Restaurant cu burgeri | 0770920018 | Soseaua Stefan cel Mare, Nr. 240, Bl. 59A, Sector 2 |
| 511. | Gallo Nero, Restaurant - Bucuresti | 0726544889; 0213268128 | Bd. Decebal, Nr. 12, Sector 3, Bucuresti |
| 512. | Aphrodisia - Ceainarie Bucuresti | 0788129291 | Intrarea Tudor Stefan, nr. 39, sector 1 |
| 513. | Sweet by MarVio - Cofetarie Bucuresti | 0212105291 | Soseaua Stefan cel Mare, Nr 31, sector 2 |
| 514. | Vanilla, Cofetarie - Bucuresti | 0733058058 | Mihai Bravu, Nr. 47, Parter, Sector 2, Bucuresti |
| 515. | Game On - Restaurant Bucuresti | 0745055137 | Calea Floreasca, Nr. 91-111, sector 1 |
| 516. | Dada Restaurant - Bucuresti | 0729997405; 0724015800 | Str. Matei Voievod , nr. 94bis, sector 2, |
| 517. | Botanic - Fine dining, Bucuresti | 0721261262 | Calea Piscului, sector 4 |
| 518. | Bomb Doner Kebap - Restaurant fast-food, Bucuresti | 0727771549 | Strada Lizeanu, Nr. 5, sector 2 |
| 519. | Don Daniel Pizza | 0737444999; 0766771117; Tel/Fax: 0212225034 | Bd. Ion Mihalache, Nr. 60, Sector 1, Bucuresti |
| 520. | Gastronomika - Restaurant cu specific international, Bucuresti | 0737940512 | Str. Ion Neculce, Nr. 63, Sector 1 |
| 521. | Trattoria 20 - Restaurant Bucuresti | 0757534928; 0751267451 | Splaiul Independentei, Nr. 290, Campus Regie, sector 6 |
| 522. | VacaMuuu - Restaurant si bacanie Bucuresti | 0731351135 | Calea Floreasca, Nr. 111, sector 1 |
| 523. | La Birlic - Terasa, Bucuresti | 0722318168; 0752318168; 0212525151 | Bulevardul Pache Protopopescu, Nr. 125, sector 2 |
| 524. | Sara, Restaurant si Bacanie - Bucuresti | 0749770770 | Calea Floreasca, Nr. 111-113, Sector 2, Bucuresti |
| 525. | VacaMuuu - Restaurant cu specific american, Bucuresti | 0731351135 | Calea Floreasca, Nr.111, sector 1 |
| 526. | Pub 18 Restaurant - Bucuresti | 0722441586 (Manager Pub Oana Valeanu) | Splaiul Independentei, Nr. 290, bl. P18, parter, Sector 6, Bucuresti |
| 527. | Ana Cofetarie Bucuresti | 0212300436; 0735554986 | Lt. Av. Radu Beller, Nr. 6 Sector 1, Bucuresti |
| 528. | BaKings - Cofetarie Bucuresti | 0744642929 | Strada Ilarie Chendi, Nr. 28, sector 2 |
| 529. | Duman - Restaurant cu specific oriental, Bucuresti | 0738170063 | Bulevardul Decebal, Nr. 13, sector 3 |
| 530. | BistroMar - Restaurant pescaresc, Bucuresti | 0740085088 | Strada Banul Antonache, Nr. 55-27, sector 1 |
| 531. | Cristal - Cofetarie | 0760090324 | Str. Matei Voievod, nr. 108, sector 2 |
| 532. | Snap - Restaurant, Bucuresti | 0738888885 | Bulevard Decebal, nr. 13, sector 3 |
| 533. | Tuk Tuk - Restaurant cu specific thailandez, Bucuresti | 0311099670;0741422489 | Putul lui Zamfir, nr. 15, sector 1 |
| 534. | Ai Sapori - Restaurant cu specific italian Bucuresti | 0372713635 | Bd Timisoara, Nr. 21, sector 6, Bucuresti |
| 535. | Tip Top, Cofetarii - Bucuresti | 0212422414 | Soseaua Colentina, Nr. 2, Sector 2 (magazinul Bucur-Obor), Bucuresti |
| 536. | Delarte Pizza, Pasta & Grill - Bucuresti | 0733352783; 0755487273; 0217802500 | Corbita, Nr.3,Sector 5, Bucuresti |
| 537. | La Baraca - Bar & Grill Bucuresti | 0758986045 | Str. Pargarilor, Nr. 17bis, sector 2 |
| 538. | Pizza Venetia, Pizzerie si catering - Bucuresti | 0720800100; 0213204424; Fax: 0720800100 | Dristorului, Nr.59, Sector 3, Bucuresti |
| 539. | Grano - Restaurant cu specific italian, Bucuresti | 0212312386 | Strada Putul lui Zamfir, Nr. 40, sector 1 |
| 540. | Piccolo Mondo, Restaurant - Bucuresti | 0722205020; 0212225755 | Clucerului, Nr. 9, Sector 1 , Bucuresti |
| 541. | La Maria si Ion, Restaurant - Bucuresti | 0762295737; 0753473781 | Splaiul Independentei, Nr. 290, Complex Studentesc Regie, Sector 6, Bucuresti |
| 542. | Trattoria Angoli - Restaurant cu specific italian, Bucuresti | 0728264654 | Calea Piscului, Oraselul Copiilor, Sector 4 |
| 543. | White Horse Pub & Restaurant - Bucuresti | 0212312795 | George Calinescu , Nr. 4A, Sector 1, Bucuresti |
| 544. | Rekolta - Restaurant, Bucuresti | 0721334564 | Calea Floreasca, Nr. 102, sector 1 |
| 545. | Piccolo Mondo, Restaurant - Bucuresti | 0722205020; 0212225755 | Clucerului , Nr. 9, Sector 1 , Bucuresti |
| 546. | Trattoria Verdi, Restaurant italian - Bucuresti | 0212225098 ; 0731333411 | Bd. Aviatorilor, Nr. 19, Sector 1, Bucuresti |
| 547. | Pot Stories - Restaurant, Bucuresti | 0753348248 | Calea Floreasca, nr. 111-113, sector 1 |
| 548. | White Horse Pub & Restaurant - Bucuresti | 0212312795; Fax.0212302151 | George Calinescu , Nr. 4A, Sector 1 , Bucuresti |
| 549. | Geste - Cofetarie Bucuresti | 0730743783 | Strada Dobrota, Nr. 16, Sector 2 |
| 550. | Gelato Mio - Magazin de inghetata Bucuresti | 0765799379; 0720044495; 0744555599 | Str. Polona, Nr. 76, sector 1 |
| 551. | Pasterra - Restaurant cu mancare specifica din Abruzzo, Bucuresti | 0751222668 | strada Comandor Eugen Botez, Nr. 27, sector 2 |
| 552. | Tasting Room by Ethic Wine - Restaurant Bucuresti | 0754993953 | Putul lui Zamfir, Nr. 64, sector 1 |
| 553. | Trattoria Soleto - Restaurant cu specific italian | 0734382419 | Soseaua Colentina, nr. 1, sector 2 |
| 554. | Nuba Cafe - Restaurant pentru mic dejun si brunch, Bucuresti | 0736300000 | Street Locotenent Aviator Radu Beller, Nr. 13, sector 1 |
| 555. | Zen Sushi - Restaurant japonez, Bucuresti | 0722161718 | Str. George Calinescu, nr. 15, Sector 1 |
| 556. | Yoshi Sushi & Teppanyaky - Restaurant japonez Bucuresti | 0314290280; 0749979521 | Str. Banu Antonache, Nr. 40-44, sector 1 |
| 557. | Gabbiano - Restaurant cu specific italian Bucuresti | 0757115272 | Str. Banul Antonache, Nr. 40-44, sector 1 |
| 558. | Pub 18 Restaurant - Bucuresti | 0722441586 | Splaiul Independentei, Nr. 290, bl. P18, parter, sector 6 , Bucuresti |
| 559. | Biscotto - Cofetarie Bucuresti | 0212314099 | Strada Nicolae Constantinescu, Nr. 8, Sector 1 |
| 560. | Erra - Restaurant cu specific european modern, Bucuresti | 0734983984 | Str. Constantin Nottara, Nr 13, sector 3 |
| 561. | Delicii Gelato - Gelaterie artizanala Bucuresti | 0721632019 | Str. Constantin Aricescu, Nr. 65, sector 1 |
| 562. | Intermacedonia, Restaurant - Bucuresti | 0212522010; 0212527331; 0212522190 | Sos. Mihai Bravu, Nr.95-100, Sector 2 (P-ta Iancului) , Bucuresti |
| 563. | Mozzafiato - Restaurant Bucuresti | 0741190190 | Calea Floreasca, Nr. 133-137, Sector 1 |
| 564. | Casa Dragonului, Restaurant Bucuresti | 0213202666; 0761929019 | Calea Dudesti, nr. 198, sector 3, Bucuresti |
| 565. | Circus Pub - Restaurant cu burgeri, Bucuresti | 0725180680 | Bulevardul Lacul Tei, Nr 65, sector 2 |
| 566. | Fabio Pizza - Bucuresti | 0372188330 | Turda, Nr. 117, Sector 1, Bucuresti |
| 567. | Kanpai Bistro, Restaurant japonez si catering - Bucuresti | 0755526724; 0371184961 | George Calinescu, Nr.49, Sector 1, Bucuresti |
| 568. | Hambar Brasserie - Bucuresti | 0212226422;0787896547 | Aviatorilor, nr. 31, sector 1 |
| 569. | Mechano Pub - Bucuresti | 0722990992 | Splaiul Independentei, Nr. 290, sector 6 |
| 570. | Oby - Fast Food, Bucuresti | 0768955169 | Calea Ferentari, nr. 177, sector 5 |
| 571. | Alouette - Restaurant cu specific international, Bucuresti | 0746339793 | Splaiul Unirii, Nr. 168, sector 4, |
| 572. | Maccheroni - Restaurant Bucuresti | 0722259360 | Str. George Calinescu, Nr. 51, Sector 1, |
| 573. | Andy Park Ballroom - Salon de evenimente Bucuresti | 0724607607 | Soseaua Oltenitei, Nr. 13-15, Sector 4 |
| 574. | Delice Grill - Restaurant fast-food Bucuresti | 0721112244 | Soseaua Mihai Bravu, Nr 139-145, sector 2 |
| 575. | Alice, Cofetarie - Bucuresti | 0744486465 | Sos. Mihai Bravu, Nr. 123-135, Sector 2, (zona Piata Iancului - langa Sectia 8 de Politie), Bucuresti |
| 576. | Bravu Burger & Crepes - Restaurant fast-food, Bucuresti | 0722118100 | Soseaua Mihai Bravu, Nr 452 - 460, sector 2 |
| 577. | Donerboom - Fast food Bucuresti | 0749043440 | Str.Barbu Vacarescu, Nr. 102, Sector 2, |
| 578. | Casa Victor, hotel si Restaurant - Bucuresti | 0212225723; 0733953910 | Emanoil Porumbaru, Nr. 44, Sector 1 , Bucuresti |
| 579. | Bellagio Villa Restaurant - Bucuresti | 0213440661; 0771120177 | Vrejului, Nr. 21, Sector 3, Bucuresti |
| 580. | IDM Club Sportiv - Bucuresti | 0213161052; 0722454273 | Splaiul Independentei, Nr. 319 B, (Vizavi de campusul studentesc Regie) Sector 6, Bucuresti |
| 581. | Ublo Bistro - Bucuresti | 0743447476 | Clucerului, Nr. 54, sector 1 |
| 582. | Cofetaria Andreea | 0213228845; 0728877033 | Sos. Mihai Bravu , Nr. 286, sector 3, Bucuresti |
| 583. | Andreea, Cofetarie, torturi si patiserie - Bucuresti | 0728877033; 0213228845 | Bulevardul Mihai Bravu, Nr. 286, Sector 3, Bucuresti |
| 584. | Prajiturel - Cofetarie Bucuresti | 0760858880 | Strada Stoian Militaru, Nr. 63, sector 4 |
| 585. | Naser 2 - Restaurant traditional libanez Bucuresti | 0799997111 | Str. Maica Domnului, Nr. 5B, Sector 2 |
| 586. | Santorini - Restaurant specific grecesc Bucuresti | 0748333334 | Bulevardul Mihai Bravu, Nr. 209, Sector 2 |
| 587. | Moritz Eis - Gelaterie Bucuresti | 0722363122 | Strada Frederic Chopin, Nr. 10-12, Sector 2 |
| 588. | Restaurant Ali Baba - Specific oriental, Bucuresti | 0213274810; 0722707208 | Sos. Mihai Bravu, Nr. 213, sector 2, Bucuresti |
| 589. | Trattoria Roma - Restaurant Bucuresti | 0765723733; 0799772233 | Str. Drumul Taberei, Nr. 26, Sector 6 |
| 590. | Refresh - Restaurant Bucuresti | 0771189347 | Strada Johann Sebastian Bach, Nr. 3, sector 2 |
| 591. | Jadoo Restaurant - Bucuresti | 0724365583; 0212220502 | Nicolae Racota, Nr. 3, Sector 1, Bucuresti |
| 592. | Mateo Fast Food | 0728199827; 0752777333; 0314362033 | Strada Dristorului, Nr. 87, sector 3 |
| 593. | Qian Bao, Restaurant chinezesc - Bucuresti | 0722622865; 0314306616 | Intrarea Baba Novac, Nr. 2, Sector 3, Bucuresti |
| 594. | Jadoo Restaurant - Bucuresti | 0212220502; 0724365583 | Nicolae Racota, Nr. 3, Sector 1, Bucuresti |
| 595. | Greekos Urban Food - Restaurant fast-food, Bucuresti | 0726646976 | Soseaua Mihai Bravu, Nr. 247, sector 3 |
| 596. | Dream Pizza - Restaurant Bucuresti | 0785070079 | Drumul Taberei, Nr. 28, sector 6, |
| 597. | Bolta Rece Restaurant - Bucuresti | 0212227258; 0722527077 | Popa Savu, Nr. 53-55, Sector 1, Bucuresti |
| 598. | B4 Market - Restaurant pentru mic dejun si brunch Bucuresti | 0724588591 | Strada Locotenent Aviator Radu Beller, Nr. 54, sector 1 |
| 599. | Taverna Baba Novac, Restaurant - Bucuresti | 0771544334; 0760010784 | Intrarea Baba Novac, Nr. 3, Sector 3, Bucuresti |
| 600. | Bolta Rece, Restaurant, Terasa - Bucuresti | 0212227258; 0722527077 | Popa Savu, Nr..53- 55, Sector 1, Bucuresti |
| 601. | Casa Tosca, Cofetarie - Bucuresti | 0213461297 | Bd. Camil Ressu, Nr. 1, Sector 3, Bucuresti |
| 602. | Beirut Restaurant - Bucuresti | 0722302320; Tel/Fax: 0212220169 | Nicolae Racota, Nr. 3A, Sector 1, Bucuresti |
| 603. | Gustul Pasiunii Cofetarie - Bucuresti | 0728941816 | Racari, Nr. 5, sector 3, Bucuresti |
| 604. | Tropicana, Restaurant - Bucuresti | 0724614723 (Niculae Adrian); 0724571502 (Niculae Valentina) | Grigore Ionescu, Nr 94, Sector 2, Bucuresti |
| 605. | Zexe Braserie - Bucuresti | 0786778777 | B-dul Aviatorilor, Nr. 65, Sector 1 |
| 606. | Photo Cake Cofetarie Bucuresti | 0729737619 ; 0723564103 | Obolului, Nr.9, Sector 4, Bucuresti |
| 607. | La Coana Mare - Cofetarie Bucuresti | 0771512035 | Strada Magura Vulturului, Nr. 2, sector 2 |
| 608. | Cofetaria Ioana - Bucuresti | 0217265762 | Strada Vladeasa, Nr. 2, sector 6 |
| 609. | La Patrascu - Restaurant Bucuresti | 0771635003; 0767561149; 0754422491 | Str. Prof. Stefan Nicolau, Nr. 2A, Sector 3 |
| 610. | Hong Kong - Restaurant chinezesc, Ilfov | 0213107134; 0727834877 | Calea Grivitei, nr. 81 (langa Biserica Sf. Voievozi), sector 1, , judetul Ilfov |
| 611. | Le Bab - Restaurant cu specific oriental, Bucuresti | 0743179555 | Charles de Gaulle, Nr. 3, sector 3-1, |
| 612. | Casa Lefter - Restaurant Bucuresti | 0723568402; 0743127330 | Strada Lt. Ionescu Baican, Nr. 57, sector 2 |
| 613. | Hanul Haiducilor, Restaurant - Bucuresti | 0213307207; 0771756566 | Pridvorului, Nr. 25 (In incinta Strandul Copiilor Vacaresti) , Sector 4, Bucuresti |
| 614. | Casa Nica, Restaurant - Bucuresti | 0724373558; 0723641985 | Peroni, Nr. 28 (vis-a-vis de benzinaria Lukoil), sector 4, Bucuresti |
| 615. | Mio Cuisine - Restaurant & Home Delivery, Bucuresti | 0743287437 | Pictor Barbu Iscovescu, Nr. 19 ,Sector 1, Bucuresti |
| 616. | Hanul Drumetului, Restaurant - Bucuresti | 0214133430; 0722555083 | Bd. 1 Mai(Compozitorilor), Nr. 28, Sector 6, Bucuresti |
| 617. | La Samuelle - Restaurant cu specific international, Bucuresti | 0730173180 | Piata Charles de Gaulle, Nr. 3-5, Sector 1 |
| 618. | Hanul Vacaresti - Restaurant fast-food, Bucuresti | 0786200300 | Strada Pridvorului, nr. 23, sector 4 |
| 619. | DA Giulio - Pizzerie, Bucuresti | 0212420385 | Colentina, Nr. 23 A, sector 2 |
| 620. | Restaurant Ceaun | 0756090680 | Strada Maica Domnului, Nr. 54-56, sector 2 |
| 621. | Pizza Apetito - Bucuresti | 0770225215 | Eufrosina Popescu, Nr. 57, sector 3, |
| 622. | Refugiu - Restaurant Bucuresti | 0763478438;0727626981 | Strada Otesani, Nr 73 , Sector 2 |
| 623. | Papaciu - Bistro, Bucuresti | 0724200070; 0724955952 | Strada Complexului, Nr 3A, sector 3 |
| 624. | Influence - Restaurant, Bucuresti | 0745172403 | Soseaua Oltenitei, Nr. 39-41, sector 4 |
| 625. | Potcoava 9 Mai, Restaurant - Bucuresti | 0212202208; 0721065347 | Str. 9 Mai , Nr. 51, Sector 6, Bucuresti |
| 626. | La Gafe - Restaurant traditional Bucuresti | 0721389446 | Str Dorin Pavel, Nr 1, sector 2 |
| 627. | Cofetariile Georgy\'s, Cofetarie,torturi - Bucuresti | 0733060230; 0730618742 | Ramnicu Valcea, Nr. 14, Sector 3, Bucuresti |
| 628. | La Nasu, Restaurant - Bucuresti | 0212214285; 0722257923; 0728984754 | Calea Crangasi, Nr. 29, Sector 6, Bucuresti |
| 629. | Poesia - Restaurant cu specific mediteranean, Bucuresti | 0744502000 | Bulevardul Aviatorilor, Nr. 76, sector 1 |
| 630. | AVA Bistro - Restaurant si catering, Bucuresti | 0770888222 | Strada Dorin Pavel, Nr. 15, sector 2 |
| 631. | Stejarului 57 - Social Bar, Bucuresti | 0748701058 | Strada Fildesului, Nr. 2, sector 3 |
| 632. | Capri Pizza, Pizzerie si catering - Bucuresti | 0729442530; 0214442101 | B-dul. Timisoara, Nr. 60C, Sector 6, Bucuresti |
| 633. | Riviera Park, Restaurant - Bucuresti | 0732408408 | Bd. Basarabia , Nr. 23 (Parcul National), Sector 2, Bucuresti |
| 634. | Fior di Latte - Restaurant cu specific italian, Bucuresti | 0784420555 | Bulevardul Primaverii, Nr. 19-21 |
| 635. | Bulevard - Restaurant, Bucuresti | 0728538273 | Bulevardul Ghencea, nr.122, Bucuresti, Sectorul 6 |
| 636. | Casa Nasului - Restaurant Bucuresti | 0727825165 | Strada Cetatuia, Nr. 12, sector 6 |
| 637. | Gili Pizza - Bucuresti | 0213242387 | Str. Baba Novac, Nr. 9-11, Sector 3 |
| 638. | Osho - Restaurant cu fripturi, Bucuresti | 0758758750 | Bulevardul Primaverii, Nr. 19-21, sector 1 |
| 639. | Strada Rustica - Pizzerie Bucuresti | 0213248303; 0768676765; 0728886914 | Str. Baba Novac, Nr 9, Complex Rucar, Sector 3 |
| 640. | La Micutu - Fast Food, Bucuresti | 0765099359 | Bd Timisoara, Nr 18, sector 6 |
| 641. | Joy House - Restaurant Bucuresti | 0730443232 | Str. Teiul Doamnei, Nr. 9A, Sector 2 |
| 642. | Murad - Cafe-Restaurant, Bucuresti | 0725777000 | Str. Panait Istrati, nr, 101, sector 1 |
| 643. | Big Mic - Restaurant, terasa si pizzerie, Bucuresti | 0739244642 | Str. Gospodinelor, Nr. 31, sectorul 4 |
| 644. | Caro, Restaurant - Bucuresti | 0212086128; 0212086100; 0212086196 | Barbu Vacarescu, Nr. 164A, Sector 2, Bucuresti |
| 645. | Hard Rock Cafe Bucharest | 0212066261; 0754400900 | Sos. Kiseleff, Nr. 32C, Sector 1, Bucuresti |
| 646. | Club Floreasca, Restaurant - Bucuresti | 0213198177; 0755085967; Fax 0212307979 | Mircea Eliade, Nr. 1, Sector 1, Bucuresti |
| 647. | Club Floreasca Restaurant - Bucuresti | 0213198177; 0755085967; Fax 0212307979 | Mircea Eliade, Nr. 1, Sector 1, Bucuresti |
| 648. | One Minute Pizza | 0732841587 | Sos Alexandriei, Nr. 108, Bragadiru, judetul Ilfov |
| 649. | 7 Days - Restaurant cu terasa, organizari evenimente, Bucuresti | 0769042751; 0213241358 | Str. Campia Libertatii, Nr. 23, Sector 3, Bucuresti |
| 650. | Pizza Real - Delivery Bucuresti | 0760170649; 0725470701 | Calea Crangasi, Nr. 90, Sector 6 |
| 651. | The President, Restaurant - Bucuresti | 0720047541; 0760087384; 0766747379 | Bd. Lacul Tei, nr. 145 (in Parcul Tei - pe malul lacului), Sector 2, Bucuresti |
| 652. | Bone - Restaurant Bucuresti | 0733198200 | Calea Floreasca, Nr. 198, sector 1 |
| 653. | Brigitte - Cofetarie Bucuresti | 0727891345; 0745779722 | str. Cristea Mateescu, Nr.77, Sector 2 |
| 654. | Sabatini Pizza - Bucuresti | 0770227880; 0766606637; 0731876441 | Teiul Doamnei, Nr. 15, Sector 2, Bucuresti |
| 655. | Sabatini Pizza - Bucuresti | 0212428725; 0731876441; 0766606637 | Teiul Doamnei , Nr 15, Sector 2, Bucuresti |
| 656. | Terasa Sport House - Restaurant fast-food, Bucuresti | 0755080224 | Maior Ion Coravu, numarul 34, sector 2 |
| 657. | Speed Pizza - Bucuresti | 0219001 | Iuliu Maniu, Nr.19, Sector 6, Bucuresti |
| 658. | La Sediu - Restaurant Bucuresti | 0760729007 | Campia Libertatii, Nr. 54, sector 3 |
| 659. | Chef Gabrielle - Restaurant, Bucuresti | 0766066406 | Strada Tomis, Nr. 5A, Sector 3 |
| 660. | Mesogios, Restaurant - Bucuresti | 0722200232 | Helesteului, Nr. 30, Sector 1, Bucuresti |
| 661. | Terasa Marius - Bar & Grill, Bucuresti | 0745777799 | Sos. Pantelimon, Nr. 115-117, sector 2 |
| 662. | Armonia Cofetarie - Bucuresti | 0213244020 ; 0722616180 | Campia Libertatii, Nr. 46 , bl. 52 , Parter , Sector 3, Bucuresti |
| 663. | Pizzeria Florina - Bucuresti | 0219285 | Strada Nicolae Pascu, nr.1A, sectorul 3 |
| 664. | Rowa Garden - Locatie pentru spectacole si evenimente | 0766666600 | Parc Herastrau, |
| 665. | Neopolis Family Pizza - Bucuresti | 0734895330; 0770995973 | Gheorghe Titeica, Nr. 101, Sector 2 |
| 666. | Agora Restaurant - Bucuresti | 0212242482; 0722304431 | Str. Tintasului , Nr. 27, Sector 1, Bucuresti |
| 667. | Victoria, Cofetarie Bucuresti | 0212242033 | Bd. Ion Mihalache, Nr. 233, Sector 1, Bucuresti |
| 668. | Il Grande - Pizzerie Bucuresti | 0763544930; 0731581447 | Str. Iacob Andrei, Nr. 26, sector 5 |
| 669. | Kungfu Pizza - Bucuresti | 0774428631; 0216656866; 0314251995 | Ceahlau, Nr.17 B, Sector 6, Bucuresti |
| 670. | Kentucky Fried Chicken KFC, Fast Food - Bucuresti | 0757015948; 0212039030; 0213120023 | Soseaua Oltenitei, Nr.85, Sector 4, Bucuresti |
| 671. | Pandoras Food - Restaurant fast-food Bucuresti | 0760102012 | Strada Gheorghe Titeica, Nr. 138, Sector 2 |
| 672. | Jerry\'s Pizza - Bucuresti | 0373303030 | Calea Vitan, Nr. 236, Sector 3, Bucuresti |
| 673. | Kunnai - Restaurant cu specific thailandez | 0722687343; 0722687454 | Strada Copilului, Nr. 6-12, sector 1 |
| 674. | Pajo Garden - Restaurant Bucuresti | 0751227228 | Bulevardul Basarabiei, Nt. 37-39, sector 2 |
| 675. | Seoul - Restaurant cu specific coreean Bucuresti | 0216672119; 0725498366 | Str. Lt. Av. Mircea Zorileanu, Nr. 89, sector 1 |
| 676. | Amarillo, Restaurant - Bucuresti | 0722215615; 0722244599 | Drumul Taberei, Nr. 44A, Sector 6, Bucuresti |
| 677. | Nedelya - Cofetarie Bucuresti | 0771420388 | Strada Brasov, Nr. 25, sector 6, Centrul Comercial Drumul Taberelor |
| 678. | Green Bistro - Terasa Bucuresti | 0728237731 | Parcul Gheorghe Patrascu, |
| 679. | Coin Vert - Restaurant cu specific libanez, Bucuresti | 0721331465; 0744518200 | Str. Sandu Aldeea, nr. 75, sector 1 |
| 680. | Fresh Food - Restaurant fast-food, Bucuresti | 0761383536 | Bulevardul Ghencea, nr. 79 (in incinta Complex Tamilia), sector 6 |
| 681. | Zatara - Restaurant cu influente mediteraneene, Bucuresti | 0771670756 | Vatra Luminoasa, Nr. 108, sector 2 |
| 682. | Fratelli Social Club - Bucuresti | 0722115115; 0730878300 | Goldeni, Nr. 1-3, Sector 2, Bucuresti |
| 683. | La Felinare - Restaurant cu specific international, Bucuresti | 0751028811 | Strada Brasov, Nr. 25L, sector 6 |
| 684. | Cartofisserie - Restaurant cu bufet Bucuresti | 0726330960;0740215433 | Liviu Rebreanu, Nr. 4 (ParkLake Shopping Center Mall) |
| 685. | Pescarus, Restaurant - Bucuresti | 0731330034; 0731491849 | Aleea Pescarus, Parcul Herastrau), Sector 1 , Bucuresti |
| 686. | Pescarus, Restaurant - Bucuresti | 0731330034; 0731491849 | Aleea Pescarus (Parcul Herastrau), Sector 1 , Bucuresti |
| 687. | Divan, Restaurant - Bucuresti | 0316404450 | Barbu Vacarescu, Nr.241A, Sector 1, Bucuresti |
| 688. | Gloria Jean\'s Coffees Romania | 0760107884 | Bd.Liviu Rebreanu, nr. 4, sector 3 - Mall Park Lake, Bucuresti |
| 689. | Zexe Restaurant romanesc - Bucuresti | 0722210844 | Oltetului, Nr. 30, Sector 2, Bucuresti |
| 690. | Dancing Lobster - Restaurant cu specific portughez, Bucuresti | 0770690886 | Str. Glodeni, Nr . 3 Cladirea C22, Sector 2, Bucuresti |
| 691. | Bistro 37-39 - Restaurant Bucuresti | 0731355939 | Bulevardul Basarabia, Nr. 37-39 , Sector 3 |
| 692. | Buenasado SteakHouse - Restaurant Bucuresti | 0747865210 | Strada Glodeni, Nr. 3, sector 2 |
| 693. | Della Casa Pizza - Bucuresti | 0721312666; 0746577383; 0768720228 | Sos. Gherase, Nr. 96, (Zona Doamna Ghica) Sector 2, Bucuresti |
| 694. | La Tramvai - Terasa Bucuresti | 0729166021 | Parcul Alexandru Ioan Cuza (I.O.R). intersectie Campia Libertatii, sector 3 |
| 695. | Taverna Racilor - Restaurant pescaresc Bucuresti | 0729825528 | Parc Herastrau, Nr. 2, sector 1, |
| 696. | The Gate, Restaurant si Cafenea Bucuresti | 0728434283; 0314259425 | Aleea Primo Nebiolo , Nr. 1, (vis-a-vis Agronomie), sector 1, Bucuresti |
| 697. | You & Me - Restaurant cu specific international, Bucuresti | 0733918474 | Bd. Constantin Brancoveanu, Nr. 110 D (langa Spitalul de copii Marie Curie), Bucuresti |
| 698. | Ressu Restaurant & Lounge - Bucuresti | 0723774485; 0731607646; | B-dul Camil Ressu, Nr. 70 A, Sector 3, Bucuresti |
| 699. | S\'Agapo Gyros - Restaurant fast-food, Bucuresti | 0725532142; 0721533358 | StradaTeius, numarul 84, sector 5 |
| 700. | Mr Laziz Fast Food & Grill - Mancare libaneza | 0720451176 | Drumul Timonierului, nr. 3-5 sector 6 |
| 701. | Events by Tonyo - Restaurant Bucuresti | 0723170007 | Aleea Hobita, Nr 1 Sector 2 |
| 702. | AS Garden - Restaurant Bar & Grill, Bucuresti | 0736735244; 0731639017 | Strada Timonierului, Nr. 3-5, sector 6 |
| 703. | Casa Mara, Restaurant evenimente - Bucuresti | 0722675766; 0768793155 | Primo Nebiolo , Nr.1, Sector 1, Bucuresti |
| 704. | Arancini - Restaurant cu specific sicilian | 0756490490 | Str. Papadiei, Nr. 16-18, sector 3 |
| 705. | Sham Sweet, Cofetarie - Bucuresti | 0748242455 | Bd. Basarabia, Nr.98, Sector 3, Bucuresti |
| 706. | Dominum - Bar & Grill, Bucuresti | 0761551233 | Strada Neptun, Nr. 4, Sector 5 |
| 707. | Damascus Palace - Restaurant Bucuresti | 0746696666; 0756616666 | Bld. Basarabia, Nr. 98, sector 2, |
| 708. | Friends Pub - Bucuresti | 0728197287 | Bucovina , Nr. 6, Sector 3, Bucuresti |
| 709. | Krisperie - Restaurant fast-food, Bucuresti | 0762888844 | Strada Doamna Ghica, Nr. 235, sector 2 |
| 710. | Crosto Pizza - Pizzerie, Bucuresti | 0786200100; 0723700300 | Strada Condorului, Nr 3, Sector 5 |
| 711. | Casa Antonie, Cofetarie - Bucuresti | 0212202530; 0740150736; 0212202510 | Mehadia, Nr. 39A, Sector 6, Bucuresti |
| 712. | Nicola Cofetarie - Bucuresti | 0214603678 | Nitu Vasile , Nr. 50-54, in Complexul Pajistei (langa Taxe si Impozite) Sector 4 , Bucuresti |
| 713. | Galeto - Restaurant Bucuresti | 0765253555 | Strada Nitu Vasile, Nr 61, sector 4 |
| 714. | Monza, Trattorie si Restaurant - Bucuresti | 0722661166; 0769200002; 0724802802 | Baba Novac, Nr. 25, Sector 3, Bucuresti |
| vezi mai multe | |||
| 1. | Cocor Luxury Store | 021.312.43.10; Fax: 021.313.98.48 | Bd. I.C. Bratianu, nr. 29-33, sector 3, |
| 2. | COCOR | Tel. 021.313.14.03; 021.313.92.39; 021.314.96.64; 021.314.96.65; Fax 021.313.98.48 | Bd. I.C. Bratianu nr. 29-33, sector 3, |
| 3. | CARREFOUR | Tel. 0374.145.800; Fax 021.307.66.96 | Bd. Corneliu Coposu nr. 2, sector 3, |
| 4. | NICK CENTER | Tel. 410.06.14; Fax 410.18.94 | Calea 13 Septembrie nr. 190, sector 5 |
| 5. | THE GRAND AVENUE AT BUCHAREST MARRIOTT GRAND HOTEL | Tel.021. 403.40.98 | Calea 13 Septembrie nr. 90, sector 5 , |
| 6. | LIBERTY CENTER | 0213699871; 0213699835 | Sos. Progresului, nr. 151-171, sector 5, Bucuresti |
| 7. | INTERHOME | Tel. 021.456.31.85; Fax 021.456.31.80; 021.456.31.83 | Str. Nasaud, nr. 97, sector 5, |
| 8. | FONZI SUPERMARKET | Tel. 0729.005.260; Tel/Fax 021.323.67.52 | Str. Nerva Traian, nr. 17-19, sector 3, |
| 9. | SUPERMARKET PRIMiVARA | Tel. 031.402.58.20; Fax 021.410.96.96 | Calea 13 Septembrie nr. 221-225, sector 5 - Complex Prosper, |
| 10. | SONMEZ MARKT 4 | Tel. 211.65.39; Fax 210.13.25 | Bd. Iancu de Hunedoara nr. 64, sector 1 |
| 11. | DENISA MARKET | Tel. 021.211.71.70; 0722.691.595; 0749.263.036; Fax 021.211.71.70 | Str. Rasuri nr. 1, sector 2 |
| 12. | FONZI | Tel. 260.21.28; 0729.005.261; Fax 260.15.31 | Sos. Nicolae Titulescu nr. 121 (Fonzi Junior), sector 1 |
| 13. | AFI Cotroceni - Mall, Bucuresti | 0314257510; 0314257511; Fax 0314257513 | Vasile Milea, Nr. 4, Sector 6 (intersectia Bd. Timisoara cu Str. Vasile Milea), Bucuresti |
| 14. | GMARKET | Bucuresti | |
| 15. | CITY MALL | Tel. 021.319.35.22; Fax 021.319.35.21 | Sos.Oltenitei nr. 2, sector 4 |
| 16. | GALERIA MARIO PLAZA | Tel/Fax. 021.230.47.71 | Calea Dorobantilor, nr. 172, sector 1, Bucuresti |
| 17. | CONCORD 2002 | Tel/Fax 323.90.87 | Bd. Decebal nr. 7, sector 3 |
| 18. | FOR YOU | Tel. 0745.094.433 | Bd. Decebal nr. 24, sector 3 |
| 19. | BUCURESTI MALL | Tel. 021.327.67.00; 021.327.61.00; 021.327.61.02; Fax 021.320.92.09 | Calea Vitan nr. 55-59, sector 3, |
| 20. | SUPERMARKET MAICOM | Tel. 0722.322.573; Fax 321.78.36 | Str. Vitan nr. 104, sector 3 |
| 21. | Ava Center | 0769240700; 0213201626; 0730096166 | Mihai Bravu, Nr. 540-564, Sector 3, Bucuresti |
| 22. | ETHOS SUPERMARKET | Tel. 0735.808.451 | Str. Margeanului nr. 48, sector 5, |
| 23. | SUPERMARKET LA NEA NICU | Tel. 230.64.80 | Str. Putul lui Zamfir nr. 59, sector 1 |
| 24. | BUCUR OBOR | 021.252.59.34; 021.252.59.35; 021.252.63.82 | Sos.Colentina, nr. 2, sector 2 , Bucuresti |
| 25. | Complexul Comercial Rahova | Str. Glicinelor nr. 4-14, sector 5, | |
| 26. | PROFI | Tel. 0726.100.452; Tel/Fax 021.444.32.44 | Bd. Ghencea nr. 38, bl. C63, sector 6, |
| 27. | PRESTIGE SHOPPING CENTER | Tel. 230.16.12; 230.17.13; Fax 230.67.53 | Calea Floreasca nr. 111-113, sector 1 |
| 28. | GEMINI | Tel/Fax 230.25.49 | Calea Floreasca nr. 111-113 (Complex Prestige), sector 1 |
| 29. | GRANT SHOPPING CENTER | Tel/Fax 021.220.42.65 | Sos.Virtutii, nr. 148, sector 6, Bucuresti |
| 30. | VENGA | Tel. 021.425.05.70; Fax 021.425.05.25 | Drumul Taberei nr. 24, sector 6 |
| 31. | DANCA | Tel. 0722.546.268; Fax 212.74.84 | Intr. Panificatiei nr. 2 (P-ta Gorjului), sector 6 |
| 32. | Home & Design Mall, Bucuresti - Mobilier, covoare, mochete, perdele | 0214130742; 0214132046; Fax.0214130741 | Bulevardul Ghencea, Nr. 126-132, Sector 6, Bucuresti |
| 33. | AUCHAN | Tel. 0750.014.150 | Calea Vitan nr. 236, sector 3, |
| 34. | PLAZA ROMANIA | Tel. 021.407.84.64; 021.407.84.65; 021.319.50.51 | Bd. Timisoara , nr. 26, sector 6, |
| 35. | SUN PLAZA MALL | 021.233.17.45; 0720.200.582 | Calea Vacaresti, nr. 391, Piata Sudului, sector 4, Bucuresti |
| 36. | CENTRUL COMERCIAL SIR | Tel. 021.430.13.98; 021.430.01.27 | Sos. Virtutii, nr. 1A (pasajul Lujerului, col? cu bd. Uverturii), sector 6, Bucuresti |
| 37. | Wini Imobili | Tel.021.307.60.50; 0742.144.034, 0755.068.669; Fax.021.307.60.51 | Pierre de Coubertin, nr. 3-5, sector 2, Bucuresti |
| 38. | MEGA MALL | Str. Pierre de Coubertin, nr. 3-5, langa Arena Nationala, | |
| vezi mai multe | |||


Vezi galeria
136
,385
