Militari, zona Lidl Uverturii, str. Stupca 25-35
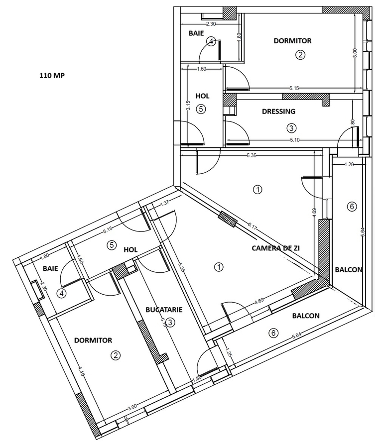
- Suprafata 110 mp
- An 2021
- Decomandat
- Etaj 4 din 5
Calculeaza distanta
Descriere anunt
Pret fara TVA.
Reducere 5% pentru etajul 5. Reducere 5% daca se cumpara si parcare.
Direct dezvoltator, de vanzare apartamente amplasate in sector 6 Militari, langa bd. Uverturii si Lidl Uverturii, pe strada Stupca nr. 25-35.
Complexul rezidential este format din 2 blocuri cu regim de inaltime D+P+5, fiecare imobil avand 3 intrari si 3 lifturi, parcari subterane.
Se vand 2 apartamente
Locuintele se predau cu centrala proprie, calorifere, usa metalica la intrare, balcon inchis, curte interioara amenajata spatiu verde, geam tripan Veka, pereti zidarie, direct dezvoltator, comision 0.
Detalii la nuferilor. ro
Utilitatile existente sunt: apa si canalizare Apanova, fibra optica, gaze naturale si energie electrica.
Termoizolatia este de 10 cm EPS70. Tamplaria este Veka, 5 camere, complet oscilo-batanta, cu feronerie Roto, geam tripan (trei foi de sticla) cu glafuri exterioare de aluminiu.
Zidurile din caramida tip Porotherm 25 cm.
Acces mijloace transport
| Statii STB | Timp |
|---|---|
|
Cimitirul Militari
106
,178
|
7 min. |
|
Bd. Uverturii
106
,178
|
10 min. |
|
Liceu
|
12 min. |
|
Apusului
|
12 min. |
|
Canal Argeș
|
15 min. |
Obiective interes
| 1. | Guguta - Cresa, Gradinita Bucuresti | 0769256924 | Drumul Manastirea Sihastria, Nr. 11A, sector 6, Bucuresti |
| 2. | Emerald - Gradinita Bucuresti | 0722493479 | Drumul Manastirea Sihastria, Nr. 13C, Sector 6, Bucuresti |
| 3. | Dianva Kids - After School, Bucuresti | 0721959335 | Str. Orsova, Nr. 129, Sector 6 |
| 4. | Planeta Copiilor - Gradinita Bucuresti | 0724212887 | Str. Gabriela Szabo, Nr. 3 - 11, Sector 6, Bucuresti |
| 5. | LifeKids Club Afterschool | 0774458673 | Str. Crisul Repede, nr. 28, sector 6 |
| 6. | Alba ca Zapada, Gradinita, After School sector 6 | 0723737939; 0773967033; 0214330220 | Str. Cernisoara, Nr. 86A, Sector 6, Bucuresti |
| 7. | International Kids Academy - Scoala Primara & Gradinita Rosu | 0723027226 | Str. Capitan Ion Ionescu, nr. 2, Rosu, judetul Ilfov |
| 8. | Harap Alb - Cresa sector 6 | 0376203298 | Str. Estacadei, Nr. 13 A, Sector 6 |
| 9. | Waldorf Eruditio - Gradinita sector 6 | 0723346791 | Str. Orsova, nr. 77, sector 6 |
| 10. | Elly\'s - Before & After School sector 6 | 0763188937 | Str. Cetatea de Balta, nr. 155, Sector 6 |
| 11. | Lilo Club - Cresa si gradinita Ilfov | 0765149367; 0747068562 | Intr. Nuferilor, nr. 1, Rosu, Chiajna, judetul Ilfov |
| 12. | Gradinita nr. 250 Sector 6 | 0316201847 | Str. Dealul Tugulea, nr. 35, sector 6 |
| 13. | Sfantul Stelian - Gradinita, afterschool Ilfov | 0734087549; 0737012035 | Str. Marasesti, Nr. 2, Sat Rosu, Com. Chiajna |
| 14. | Dumbrava Minunilor - Gradinita sector 6 | 0217962807 | Str. Apusului, nr. 71-73 , sector 6 |
| 15. | HappyKidz - Before & Afterschool sector 6 | 0726348591 | Str. Albitei, Nr. 2K, Sector 6 |
| 16. | Kids Learning Center - centru cultural-educativ Ilfov | 0762669907; 0765440404 | Drumul Bacriului, nr. 101, Rosu - Chiajna, judetul Ilfov |
| 17. | Casuta Strumfilor - Gradinita Bucuresti | 0733194605 | Intr. Jarului, Nr. 3, Sector 6 |
| 18. | David Mihai - Gradinita, Ilfov | 0767817041; 0766305131; 0765703632; 0784203520 | Drumul Bacriului, nr. 42 B, Rosu, com. Chiajna, judetul Ilfov |
| 19. | Paradisul Piticilor - Gradinita sector 6 | 0214341214; 0214341213 | Str. Moinesti, nr. 9, sector 6 |
| 20. | Albinutele - Gradinita cu program prelungit sector 6 | 0311010031 | Str. Centurii, nr. 4, sector 6 |
| 21. | Castelul Voinicilor - Cresa, Gradinita After School Militari sector 6 | 0760991977 | Str. Rosiori de Vede, nr. 12A, Sector 6 |
| 22. | Gradinita nr. 197 Zana Florilor sector 6 | 0214302179 | Str. Cetatuia, nr. 10, sector 6 |
| 23. | Gradinita nr. 195 Prichindel sector 6 | 0214304000 | Bd. Iuliu Maniu, nr. 73-75, sector 6 |
| 24. | Gradinita Nr. 246 sector 6 | 0316208173 | Str. Fabricii, nr. 20, sector 6 |
| 25. | Lumea Piticilor - Gradinita, Ilfov | 0723660168 | Str. Crinului, nr. 37A, Chiajna, judetul Ilfov |
| 26. | Ada - Gradinita Bucuresti | 0723595916 | Str. Gheorghe Spacu, nr. 21, sector 6, Bucuresti |
| 27. | Priki - Gradinita sector 6 | 0753936611; 0742292143 | Str. Sergent Apostol Constantin, nr. 14, sector 6 |
| 28. | Centrul Multifunctional Romania Kids - Gradinita & After School Bucuresti | 0217770795; 0769060790 | Str. Rasaritului, Nr. 59, Sector 6, Bucuresti |
| 29. | Mickey\'s House - Before & After School sector 6 | 0785539018 | Str. Pietrele Doamnei, nr. 18, Sector 6 |
| 30. | Kids Joy Land - Gradinita si after school, Ilfov | 0721216194 | Str. 1 Decembrie 1918, Nr. 181 A - Sediul 1, Comuna Chiajna, judetul Ilfov |
| 31. | Degetica - Gradinita si After School, Bucuresti | 0720222200; 0731313131; 0731313101 | Str. Bolidului, Nr. 4-6, Sector 6, Bucuresti |
| 32. | Aventura Kids Club After School Chiajna | 0740788017; 0741130233 | Str. Acvilei, Nr.10, Rosu, Chiajna, judetul Ilfov |
| 33. | Creative Kidz - Afterschool Rosu | 0735246217 | Str. Gospodari, Nr. 46, Sat Rosu, Com. Chiajna, judetul Ilfov |
| 34. | Fulg de Nea - Gradinita sector 6 | 0212203132 | Sos. Ciurel, Nr. 9-11, sector 6 |
| 35. | Magic World Kindergarten - Gradinita sector 6 | 0720777221 | Drumul Bacriului, nr. 37B, sector 6 |
| 36. | Scooby and Friends, Gradinita & After School - Bucuresti | 0214443344; 0766661001 | Str. Corcodusului, Nr. 9D, Sector 6, Bucuresti |
| 37. | Happy Kiddo - Gradinita, Cresa si After School | 0763033010 | Str. Padurii, Nr. 5, Sat Dudu, Com. Chiajna, judetul Ilfov |
| 38. | Genius - Afterschool Bucuresti | 0745045180 | Intrarea Craiovei, Nr. 21, Sector 6 |
| 39. | Neghinita - Centru de zi sector 6 | 0376203301; 0376203302 | Aleea Craiesti, Nr. 1, Sector 6 |
| 40. | Cambridge Success - Gradinita Bucuresti | 0764474152 | Str. Rezervelor, Nr. 24C, Sector 6 |
| 41. | Montessori British School - Gradinita, Ilfov | 0756100116 | Str. Rasaritului, nr. 3, Chiajna, judetul Ilfov |
| 42. | Gradinita Nr. 229 sector 6 | 0214443400; 0214443301 | Aleea Dealul Macinului, nr. 5, sector 6 |
| 43. | Smart & Fun After School Crangasi | 0765518746; 0766891844 | Intr. Sipetului, Nr. 3, Sector 6 |
| 44. | Gradinita nr. 272 sector 6 | 0311070199; 0214133878 | Bd. Timisoara, nr. 39, sector 6 |
| 45. | Gradinita nr. 274 sector 6 | 0213163345 | Bd. Iuliu Maniu, nr. 11D, sector 6 |
| 46. | Good Family - Gradinita Bucuresti | 0748224225 | Str. Nicolae Filimon, Nr. 73A, sector 6 |
| 47. | Gradinita Nr. 210 sector 6 | 0217787215; 0771131259 | Aleea Arinis, nr. 1bis, sector 6 |
| 48. | Gradinita nr. 57 Hillary Clinton sector 6 | 0214133928 | Aleea Pravat, nr. 16, sector 6 |
| 49. | Gradinita nr. 40 sector 6 | 0212203340 | Str. Tabla Butii, nr. 60, sector 6 |
| 50. | Alegra, Gradinita - Bucuresti | 0746167291 | Str. Finta, Nr. 25, Sector 6, Bucuresti |
| 51. | Gradinita nr. 94 sector 6 | 0214133574; 0724 531 595 | Str. Targu Neamt, Nr. 4, Sector 6 |
| 52. | Kids Club Militari, Gradinita & After School - Bucuresti | 0314362520; 0728200900 | Str. Rezervelor, Nr. 91, Sector 6, Bucuresti |
| 53. | Gradinita Kids Club Militari Bucuresti | 0314362520; 0728200900 | Str. Rezervelor, Nr. 91, Sector 6, Balotesti |
| 54. | Adeland - After school sector 6 | 0724531595 | Str. Targu Neamt, nr. 4, sector 6 |
| 55. | Centrul Educational Babylove - After School Bucuresti | 0722542715 | Aleea Muza Adormita, Nr. 12, Sector 6 |
| 56. | Rosa Zangara - Gradinita sector 6 | 0760505738 | Drumul Taberei, nr. 38A, sector 6 |
| 57. | Degetica Royal Palace - Gradinita Chiajna | 0731313131; 0733003300; 0769904269 | Str. Rezervelor, nr. 42B, Chiajna, judetul Ilfov |
| 58. | Hands-On - Centru educational Bucuresti | 0725977815 | Bd. Iuliu Maniu, nr. 7, Cotroceni Business Center, Corp U, parter, sector 6 |
| 59. | Gradinita Nr. 209 sector 6 | 0214401115; 0214134731 | Str. Pascani, nr. 15 bis, sector 6 |
| 60. | Gradinita nr. 208 sector 6 | 0217783025; 0741716 818 | Str. Valea Oltului, nr. 14, sector 6 |
| 61. | Smiley Kindergarten, Gradinita & After School - Bucuresti | 0314366138; 0722541744 | Str. Gabriel Cioran, nr. 6, sector 6, |
| 62. | Clubul Micilor Ghinde - Centru de joaca educativa Ilfov | 0720050205 | Str. Ion Luca Caragiale, nr. 43A, Dudu, judetul Ilfov |
| 63. | Gradinita Nr. 111 sector 6 | 0214135161 | Str. Sibiu, Nr. 8, Sector 6 |
| 64. | Art & Play Kindergarten - Cresa, Gradinita Bucuresti | 0760670599; 0760670980 | Drumul Valea Danului, Nr. 22, Sector 6, Bucuresti |
| 65. | Clubul Buburuzelor, Gradinita sector 6 | 0769626385; 0766634420 | Drumul Valea Danului, Nr. 22, sector 6 |
| 66. | Cresa Pinochio (Cresa Drumul Taberei) sector 6 | 0376203313; 0376203312 | Aleea Compozitorilor, nr. 20, sector 6 |
| 67. | Gradinita Nr. 87 Spiridusii sector 6 | 0214132440 | Str. Valea Calugareasca, Nr. 6, Sector 6 |
| 68. | Nicholas Kindergarten - Gradinita Bucuresti | 0217786915; 0737504977; 0724809291 | Drumul Valea Cricovului, Nr. 41-47, Sector 6, Bucuresti |
| 69. | Gradinita Nr. 230 sector 6 | 0217782808 | Aleea Potaisa, Nr. 3, sector 6 |
| 70. | Gradinita Nr. 218 sector 6 | 0314344484 | Aleea Callatis, nr. 5, sector 6 |
| 71. | Gradinita nr. 273 sector 6 | 0214133842; 0787731520 | Str. Valea lui Mihai, nr. 1, sector 6 |
| 72. | Gradinita nr. 222 Bucuresti | 0721345993; 0216673480 | Str. Arad, nr. 38 , sector 1 |
| 73. | Sfera Kinderzentrum - Gradinita, Before & After School Bucuresti | 0728024897 | Calea Grivitei, nr. 194, sector 1 |
| 74. | Roro - Gradinita sector 6 | 0731339933; 0735550500 | Drumul Valea Argovei, nr. 3-9, Sector 6 |
| 75. | Orhideea Kids - Gradinita & After School Bucuresti | 0748595311 | Calea Plevnei, Nr. 145B, sector 1, Bucuresti |
| 76. | Casa Montessori Gradinita - Bucuresti | 0726327159 | Str. Valea Oltului, nr. 31-35, sector 6, Bucuresti |
| 77. | After School Casuta Piticilor - Drumul Taberei, Militari | 0720548870; 0723230720 | Str. Sg. Maj. Alexandru Postolache, nr. 22, sector 6 |
| 78. | Innababy - Cresa, gradinita, afterschool Bucuresti | 0722403847 | Str. Tintasului, Nr. 3, Sector 1, Bucuresti |
| 79. | Gradinita nr. 41 sector 6 | 0214134988 | Str. Constantin Titel Petrescu, nr. 12, sector 6 |
| 80. | Joy - After-school Bucuresti | 0766055708 | Strada Valea Furcii, Nr. 56, sector 6 |
| 81. | Corina Club - After School Bucuresti | 0744353015; 0766332833 | Str. Garleni, Nr. 11A, Sector 6, Bucuresti |
| 82. | Colt de Rai - Gradinita sector 6 | 0217965203; 0752645946 | Str. Garleni, Nr. 10, Sector 6 |
| 83. | Teddybar - Gradinita, Bucuresti | 0212224455; 0723048602 | Str. Soimarestilor, nr. 29, sector 1, Bucuresti |
| 84. | Art\' Alegria - Gradinita, After School Bucuresti | 0736163236 | Intrarea Cascioarele, sector 6 |
| 85. | Gradinita din Povesti - Bucuresti | 0724987747 | Str. Costache Marinescu, Nr. 1A, Sector 1 |
| 86. | Kinderträume - Gradinita Bucuresti | 0744507988 | Splaiul Independentei, Nr. 195, sector 6, Bucuresti |
| 87. | Young Academics - AfterSchool Bucuresti | 0755095974 | Str. Trotusului, nr. 39, sector 1 |
| 88. | Marchengarten - Gradinita cu predare bilingva sector 6 | 0744378796 | Str. G-ral Ioan Culcer, nr. 49, sector 6 |
| 89. | Happy Feet Education - Gradinita & Afterschool Chiajna | 0770342098 | Str. Vlad Tepes, nr. 63, Chiajna, judetul Ilfov |
| 90. | Casuta cu ghidusii - Gradinita privata Chiajna | 0744307260 | Str. Vlad Tepes, nr. 63, Chiajna, judetul Ilfov |
| 91. | Gradinita nr. 97 Bucuresti | 0212241162 | Str. Islaz, nr. 13, Sector 1 |
| 92. | Pitiricky - Clubul celor mici - Bucuresti | 0724648513 | Str. Ialomicioarei, Nr. 13, Sector 1, Bucuresti |
| 93. | Zum Zum - Gradinita Bucuresti | 0745685556; 0740704922 | Str. Vespasian, Nr. 37, Sector 1, Bucuresti |
| 94. | Happy Planet Kids - Gradinita Bucuresti | 0214106984; 0722319863; 0740843914 | Str. Lt. Col. C-tin Marinescu, Nr. 17B, Sector 6, Bucuresti |
| 95. | Betty-Mar House - After / Before School, Bucuresti | 0732871827 | Str. Otescu Ion Nonna, nr. 23, sector 6 |
| 96. | GoodStart - Gradinita, After School sector 6 | 0723380015; 0744626716 | Prelungirea Ghencea, nr. 109 B, Sector 6 |
| 97. | TuMi School - gradinita, cresa si afterschool Chiajna | 0721111442 | Str. Libertatii, nr. 27, Chiajna, judetul Ilfov |
| 98. | Miro Kids World - Cresa, gradinita Bucuresti | 0767331173; 0756199161 | Str. Miroslavei, nr. 9, Sector 5 |
| 99. | Gradinita nr. 271 sector 5 | 0214109024 | Bd. Eroii Sanitari, nr. 77, sector 5 |
| 100. | Sf. Andrei - Gradinita & After School Bucuresti | 0213116823; 0767817002 | Str. Bulgarus, Nr. 44, Sector 5, Bucuresti |
| 101. | Karin\'s Kids Academy - Gradinita Bucuresti | 0212250005 | Str. Hermann Oberth, Nr. 33, Sector 1, Bucuresti |
| 102. | Gradinita M.Ap.N. nr. 1 sector 6 | 0213196009; 0766298724 | Calea Plevnei, nr. 137B, sector 6 |
| 103. | Cami - Gradinita particulara si afterschool Bucuresti | 0757402573 | Str. Carol Knappe, nr. 45,sector 1, Bucuresti |
| 104. | Cami Gradinita & After School - Bucuresti | 0757402573; 0749018642 | Str. Carol Knappe, Nr. 45, Sector 1, Bucuresti |
| 105. | Discover Me- Gradinita Bucuresti | 0747774809 | Str. Constantin Noica, Nr. 120, sector 6, Bucuresti |
| 106. | Kinderium - Before & After School Bucuresti | 0726177868 | Drumul Sarii, nr. 4A, sector 6 |
| 107. | Sunshine Edu - After School Bucuresti | 0741123340 | Str. Lt. Av. Vasile Fuica, nr. 42, Sector 1 |
| 108. | Adnan, Gradinita - Bucuresti | 0744606010; 0722205243 | Intr. Buturugeni, Nr. 7 Sector 5, Bucuresti |
| 109. | My Baby - Gradinita, After School Chiajna, Ilfov | 0732061947 | Intrarea Busuiocului, Nr. 4C, Chiajna, judetul Ilfov |
| 110. | Ingenius Club - After School Bucuresti | 0729164275; 0733975456 | Str. Virgil Plesoianu, nr. 108, sector 1 |
| 111. | Creative Minds Kindergarten - Gradinita Bucuresti | 0726152551 | Str. Alexandru Deparateanu, nr. 38, sector 1 |
| 112. | Ana si Strumfii - After school Bucuresti | 0768185720; 0760193907 | Prelungirea Ghencea, nr. 255A, sector 6 |
| 113. | Equilibrum - Gradinita Bucuresti | 0724064503; 0724862068 | Bd. Expozitiei, Nr. 2, Sector 1 |
| 114. | Iboo - Gradinita Bucuresti | 0770325689; 0773975780 | Bd. Expozitiei, nr. 2, sector 1 |
| 115. | Gradinita nr. 206 - Gradinita cu program prelungit Bucuresti | 0212229287 | Str. Constantin Disescu, nr. 37, sector 1 |
| 116. | Asociatia Conil - Gradinita pentru copii cu nevoi speciale Bucuresti | 0784412222; 0217466704; 0735847526 | Str. Dr. Victor Poloni , nr 14, Sector 5, Bucuresti |
| 117. | Gradinita Quiz | 0751425562 | Str. Abrud, nr. 134-136, sector 1 |
| 118. | The Little Artist - Gradinita Bucuresti | 0737365283; 0743814767; 0722680765 | Str. Ing. Zablovschi, Nr. 7, Sector 1, Bucuresti |
| 119. | Hänsel und Gretel - Gradinita & After School Bucuresti | 0212247704; 0743332447 | Str. Mr. Av. Stefan Sanatescu, Nr. 19, sector 1, Bucuresti |
| 120. | Gradinita Nr. 248 Bucuresti | 0212224120 | Str. Artur Vartejeanu, Nr. 15, Sector 1 |
| 121. | Olga Gudynn, Gradinita si Scoala Cotroceni - Bucuresti | 0734411332; 0214106995 | Str. Fagaras, Nr. 6, Sector 1, Bucuresti |
| 122. | Little Team - Gradinita / After School Bucuresti | 0799774767 | Calea 13 Septembrie, nr. 191, sector 5 |
| 123. | CoolTure MindS - After School Bucuresti | 0743359307 | Bd. Alexandru Ioan Cuza, nr. 37, Sector 1 |
| 124. | Monteclaris - Gradinita, before si afterschool Bucuresti | 0724671560; 0784606075 | Str. Maria Hagi Moscu, Nr. 29, Sector 1 |
| 125. | Micul Lord Gradinita - Bucuresti | 0730093603; 0745101507 | Str. Lespezi, nr. 4 , sector 5, |
| 126. | Aristokids, Gradinita & After School - Bucuresti | 0722648885 | Str. Lebedei, Nr. 25, Sector 1, Bucuresti |
| 127. | Alexandra Kids, Gradinita, After School - Bucuresti | 0722151836; 0214206927 | Str. Petre Ispirescu, Nr. 69, Sector 5, Bucuresti |
| 128. | My Universe - Afterschool si gradinita, Bucuresti | 0788416164 | Str. Costache Negri, Nr. 9-11, sector 5 |
| 129. | FourKids - Before School si After School Bucuresti | 0765589081; 0771183397 | Str. Munteniei, nr. 80, Sector 1 |
| 130. | Go Kids Go - Before and After-School Bucuresti | 0723076434; 0766480774 | Str. Clucerului, nr. 21, sector 1 |
| 131. | LTN Liceul Teoretic National - Gradinita, Gimnaziu, Liceu - Bucuresti | 0720000171; 0732151931 | Str. Dr. Iacob Felix, nr. 49, Sector 1, Bucuresti |
| 132. | Avenor - Gradinita Bucuresti | 0737043475 | Str. Alexandru Constantinescu, nr. 65, sector 1 |
| 133. | Clubul Micul Print - afterschool Bucuresti | 0733750795 | Str. Dr. Nicolae Staicovici, Nr. 51, Sector 5, Bucuresti |
| 134. | Gradinita Floarea Soarelui sector 5 | 0214202148 | Str. M?rgeanului, nr. 81, sector 5 |
| 135. | Edu Friends - Before & After School Bucuresti | 0783080096 | Str. Berzei, Nr. 5, Sector 1 |
| 136. | Oskar - Before and After School Piata Victoriei | 0730948470 | Str. Monetariei, Nr. 14, Sector 1, Bucuresti |
| 137. | Oskar - Before&After School Bucuresti | 0734040227; 0730948470 | Str. Monetariei, nr. 12, sector 1 |
| 138. | Ruffy Strumfi - Gradinita, Bucuresti | 0721305824 | Str. Pietei, Nr. 5, sector 1 |
| vezi mai multe | |||
| 1. | Polimed Apaca - Policlinica, Bucuresti | 0214348003; 0214348026; 0213113810 | Str.Dezrobirii, Nr. 13, Sector 6, Bucuresti |
| 2. | Lifeline Services-Bucuresti | 0212221651; 0722279756 | Sos. Virtutii, nr. 19 D, Virtutii Business Center, Sector 6, |
| 3. | Centrul Medical Gorjului- Bucuresti | 0214341557 | Bd. Iuliu Maniu, nr. 65, sector 6 , |
| 4. | Policlinica Regina Maria - Lujerului | 0219268 | Bd. Iuliu Maniu, nr. 51, sector , |
| 5. | Doris - centru de testare COVID 19 Bucuresti | 0732684319 | Bd. Iuliu Maniu, nr. 11, sector 6, |
| 6. | Centrul Medical Nicomed | 0216372458; 0731338524 | Calea Crangasi nr. 23, bl. 13, sc. 2, ap. 1, sector 6, |
| 7. | Centrul Medical Nicomed-Bucuresti | 0216372458; 0731338524 | Calea Crangasi, nr. 23, ap.1, sector 6, |
| 8. | Clinica Medicala Rosana Medical-Bucuresti | Tel. 0214140220; 0372734300 | Str. Cetatea Histria , nr. 12, sector 6, |
| 9. | Clinica Medicover-Bucuresti | 0219896 | Str. Sergent Constantin Ghercu,, nr. 1A, sector 1, |
| 10. | Prof. Dr. Panait Sirbu, Spitalul Clinic de Obstetrica-Ginecologie Bucuresti | 0213161281; 0213161283; 0213161287 | Calea Giulesti, nr. 5, sector 6, bucuresti |
| 11. | Prof. Dr. Panait Sirbu, Spitalul Clinic de Obstetrica-Ginecologie Bucuresti | 0213161281; 0213161283 | Calea Giulesti, nr. 5, sector 6 , |
| 12. | Centrul Medical Brancusi | 0319119 | Str. Valea Doftanei, Nr. 113, Sector 6 |
| 13. | Spitalul de Urgenta de Chirurgie Plastica, Reparatorie si Arsuri-Bucuresti | 0212240946; 02.2240947; Tel/Fax 0212241800 | Calea Grivitei , nr. 218, sector 1 , |
| 14. | Centrul medical PoeMedica Bucuresti | 0214139387; 0217461632; 0757109599 | Bd. 1 Mai, nr. 24, sector 6, |
| 15. | Spitalul de Urgenta de Chirurgie Plastica, Reparatorie si Arsuri | 0212240946; 0212240947; Tel/Fax 0212241800 | Calea Grivitei nr. 218, sector 1, |
| 16. | Clinica Sanamed-Bucuresti | 0219442 | Calea Plevnei, Nr. 159,corpul B ,Sector 6, |
| 17. | Policlinica Regina Maria - Cotroceni | 0219268 | Sos. Cotroceni, nr. 20, sector 6, |
| 18. | Centrul Medical Focus | 0753035038 | Str. Dinicu Golescu, nr. 23-25 , sector 1, |
| 19. | Clinica de Excelenta in Patologia Somnului Somnolog-Bucuresti | 0213118822; 0784442277 | Str.Dr.Leonte Anastasievici, nr.11, sector 5, |
| 20. | Clinica Doctor Acasa-Bucuresti | 0784276950; 0788629415; 0788676433 | Str.Prelungirea Ghencea, nr. 53 bis, lot1, bloc F3, scara A, etaj 1, sector 6, |
| 21. | Scanmed - Clinica Medicala Bucuresti | 0219215; 0317100141; 0729202202 | Sos. Panduri, nr. 71, Parter, Sector 5 |
| 22. | Centrul medical Ghencea Medical Center- Bucuresti | 0219838; 0752493636 ; 0756045204 | Bd. Ghencea , Nr. 43 B, sector 6, Bucuresti |
| 23. | Spitalul Clinic CF Witting + ambulatoriu | Tel. 0213129530; 0213129531; 0213176280 | Calea Plevnei nr. 142-144, sector 6, |
| 24. | Spitalul Universitar de Urgenta Militar Central Dr. Carol Davila | Tel. 0213193052/60; Fax.0213193030 | Str. Calea Plevnei, nr. 134, sector 1, Bucuresti |
| 25. | Centrul Medical M Hospital-Bucuresti | Tel.0219136 | Str. Witing, nr. 10-12, sector 1 , |
| 26. | Spitalul Clinic de Nefrologie - Dr. Carol Davila | Tel. 0213189184 (centrala); Fax 0213189184 | Calea Grivitei nr. 4, sector 1, |
| 27. | Centrul Medical M Hospital-Bucuresti | 0219136; 0744812330; 0213162049 | Str.Witting, nr. 10-12, sector 1, Bucurestu |
| 28. | Spitalul Universitar de Urgenta Bucuresti - SUUB | Tel. 0213180519; Fax 0213180554 | Splaiul Independentei, nr. 169, sector 5 , |
| 29. | Dr. Carol Davila, Spitalul Universitar de Urgenta Militar Central Bucuresti + ambulatoriu | Tel. 0213193052/60; 0213193030 | Str. Calea Plevnei , nr. 134, sector 1, |
| 30. | Spitalul Universitar de Urgenta Bucuresti - SUUB | Tel. 0213180519; 0213180554 | Splaiul Independentei nr. 169, sector 5, |
| 31. | Centru Medical Mediclass - Cotroceni | 0214102727; 0214120128; 0214120129 | Str. Elefterie, nr. 47-49 (Complex Comercial Cotroceni), sector 5, |
| 32. | Ioana Medical Center | 0212233810; 0786486156 | Bd. Alexandru Ioan Cuza, nr 81, et 1, sector 1 |
| 33. | Centrul Medical Ioana-Bucuresti | 0212233810; 0786486156 | Str. Alexandru Ioan Cuza, nr. 81,, et. 1,sector 1, Bucuresti |
| 34. | RomGerMed - Clinica Medicala Bucuresti | Tel. 0213110075; 0727999602 | Calea Plevnei, 137 C, sector 6, |
| 35. | Ambulatoriul Spitalului Universitar de Urgenta | Tel. 0213180519/29; 0212026147 | Splaiul Independentei, nr. 169, sector 5 , |
| 36. | Centrul Medical Panduri-Bucuresti | 0731806118; 0219901 | Str. Dr. Ioan Atanasiu, nr. 34, sector 5, |
| 37. | Imuno Medica - Centrul de preventie, diagnostic si tratament Sf. Ioan Botezatorul | 0314050350; 0771771333 | Str. Virgiliu nr. 81, sector 1 |
| 38. | Institutul National pentru medicina complementara si alternativa | Tel.0783002934; 0214102419 | Sos. Panduri , nr. 22, sector 5, |
| 39. | Spitalul Clinic \"Prof. Dr. Theodor Burghele\" + Ambulatoriu | Tel. 0214106910; Fax 0214111055 | Sos. Panduri nr. 20, sector 5, |
| 40. | Spitalul Clinic \"Prof. Dr. Theodor Burghele\" + Ambulatoriu | Tel.0214106910; Fax.0214111055 | Sos. Panduri, nr. 20, sector 5, |
| 41. | PriMed - Clinica Medicala Bucuresti | 0219986; 0720034774 | Bd. Dinicu Golescu, nr.10, sector 1 |
| 42. | Spitalul Universitar de Urgenta Elias | 0213161600; Fax 0213161602; 0213112444 | Bd. Marasti nr. 17, sector 1, |
| 43. | Centrul de Transfuzie Sanguina Bucuresti | Tel. 0314053660; 0314053661; 0314053662 | Str. Constantin Caracas nr. 2-8, sector 1, |
| 44. | Spitalul Clinic Sfanta Maria + ambulatoriu-Bucuresti | Tel. 0212223550; 0212223553 | Bd. Ion Mihalache nr. 37-39, sector 1, |
| 45. | Policlinica pentru copii Regina Maria - Opera | 0219268 | Str. Costache Negri, nr. 1-5, sector 5, |
| 46. | Spitalul Clinic Sfanta Maria + ambulatoriu | Tel. 0212223553; 0212223550 | Bd. Ion Mihalache, nr. 37-39, sector 1, |
| 47. | Centrul Medical Sanador-Bucuresti | Tel. 0219699 | |
| 48. | Spitalul Universitar de Urgenta Elias | 0213161600; Fax 0213161602 | Bd.Marasti, nr. 17, sector 1, |
| 49. | Centrul Medical Sana-Bucuresti | 0212128222 | Str. Dr. Sergiu Dumitru, nr. 3, sector 1, |
| 50. | Prof.Dr. Agrippa Ionescu, Spitalul Clinic de Urgenta Bucuresti | 0377720000; Fax 0377726169 | Str. Arh. Ion Mincu , nr. 7, sector 1, |
| 51. | Clinica Lil Med-Bucuresti | 0214206055; Fax:0214212231 | Str. Suzana , nr. 7, corp 1,sector 5, |
| vezi mai multe | |||
| 1. | Planeta Copiilor , Scoala Primara si Gimnaziala - Bucuresti | 0724212970; 0724212887; 0214330263 | Gabriela Szabo, Nr. 3 - 11, Sector 6, Bucuresti |
| 2. | Scoala de Aplicatie pentru Ofiteri a Jandarmeriei Romane Mihai Viteazul | 0217696120; 0214349131; 0757099804 | Str. 1 Decembrie 1918, Nr. 2-4, Sat Rosu, judetul Ilfov |
| 3. | Scoala Gimnaziala Regele Mihai I - Bucuresti | 0311011373 | Str. Dezrobirii, Nr. 41, Sector 6 |
| 4. | Constantin Brancusi, Scoala Gimnaziala Nr. 174 - Bucuresti | 0314052556 | Str. Rosia Montana, Nr. 41, Sector 6, Bucuresti |
| 5. | Sfanta Treime, Scoala Gimnaziala - Bucuresti | 0376203770 | Aleea Ghirlandei, Nr. 7, Sector 6, Bucuresti |
| 6. | Doamna Chiajna, Liceul Tehnologic - Rosu | 0730614950; 0214360404 | Str. 1 Decembrie 1918, Nr. 90, Rosu, judetul Ilfov |
| 7. | Scoala Gimnaziala Nr. 156 - Bucuresti | 0314040192 | Str. Dealul Tugulea, Nr. 35, Sector 6 |
| 8. | Regina Maria, Scoala Gimnaziala Nr.198 - Bucuresti | 0214340102; 0314040194 | Str. Apusului, Nr. 71-73, Sector 6, Bucuresti |
| 9. | Colegiul Economic Costin C. Kiritescu - Bucuresti | 0314016830 | Str. Pestera Dambovicioarei, Nr. 12, Sector 6, Bucuresti |
| 10. | Scoala Gimnaziala Nr. 142 - Bucuresti | 0314040196; 0214300511 | Str. Centurii, Nr. 4, Sector 6, Bucuresti |
| 11. | Scoala Gimnaziala Nr. 117 | 0214302040; 0784236131 | Str. Fabricii, Nr. 22, Sector 6, Bucuresti |
| 12. | Scoala Gimnaziala Nr. 309 - Bucuresti | 0314190747; 0214340426 | Str. Moinesti, Nr. 9, Sector 6 |
| 13. | Ion Dumitriu, Scoala Gimnaziala Nr. 157 - Bucuresti | 0214340401 | Str. Hanul Ancutei, Nr. 4, Sector 6, Bucuresti |
| 14. | Scoala Gimnaziala Nr. 167 - Bucuresti | 0212205770 | Calea Crangasi, Nr. 140, Sector 6, Bucuresti |
| 15. | Tudor Vladimirescu, Colegiu National - Bucuresti | 0214103831 | Bd. Iuliu Maniu, Nr. 15, Sector 6, Bucuresti |
| 16. | Liceul cu Program Sportiv Mircea Eliade - Bucuresti | 0213141389 | Splaiul Independentei, Nr. 315-317, Sector 6 |
| 17. | Sfintii Constantin si Elena, Scoala Gimnaziala Nr. 176 - Bucuresti | 0214442515 | Aleea Lunca Cernei, Nr. 3, Sector 6, Bucuresti |
| 18. | Gh. Airinei, Colegiul Tehnic de Posta si Telecomunicatii - Bucuresti | 0214134645 | Str. Romancierilor, Nr. 6, Sector 1, Bucuresti |
| 19. | Marin Preda, Liceu teoretic - Bucuresti | 0212202344 | Str. Rusetu, Nr. 17, Sector 6, Bucuresti |
| 20. | Atlas, Scoala postliceala - Bucuresti | 0214400708 | Bd. Timisoara, Nr. 60D, Sector 6, Bucuresti |
| 21. | Liceul Tehnologic Sfantul Antim Ivireanu - Bucuresti | 0314380278 | Aleea Poiana Muntelui, Nr. 1, Sector 6, Bucuresti |
| 22. | Scoala Gimnaziala Nr. 206 - Bucuresti | 0217773980 | Aleea Arinis, Nr. 5, Sector 6, Bucuresti |
| 23. | Colegiul Tehnic Gheorghe Asachi - Bucuresti | 0214130438; 0787858675; 0214134040 | Aleea Pravat, Nr. 24, sector 6 |
| 24. | Grigore Moisil, Colegiu National - Bucuresti | 0214132696; 0768191964 | Bd. Timisoara, Nr. 33, Sector 6, Bucuresti |
| 25. | Alegra - After-school Bucuresti | 0729987920; 0726487124 | Str. Portaresti, Nr. 11, etaj 1, sector 6 |
| 26. | Complex Scoalr Cronos Bucuresti | 0212225050; 0758107705 | Str. Chibzuintei, Nr. 15-17, Sector 1, Bucuresti |
| 27. | Scoala Gimnaziala Nr. 169 - Bucuresti | 0214132431 | Str. Pascani, Nr. 2, Sector 6, Bucuresti |
| 28. | Scoala Gimnaziala Nr. 164 Sfantul Calinic de la Cernica - Bucuresti | 0214131160 | Str. Pravat, Nr. 22, Sector 6, Bucuresti |
| 29. | Scoala Gimnaziala Nr.163 - Bucuresti | 0212201018 | Calea Giulesti, Nr. 54, Sector 6, Bucuresti |
| 30. | Carol I, Colegiu Tehnic - Bucuresti | 0212202750 | Str. Porumbacu, Nr. 52, Sector 6, Bucuresti |
| 31. | Scoala Gimnaziala Nr. 162 | 0212205484 | Str. Copsa Mica, Nr. 1A, Sector 1, Bucuresti |
| 32. | UCECOM, Colegiul Spiru Haret - Bucuresti | 0213166195; 0213166196 | Str. Economu Cezarescu, Nr. 47-59, Sector 6, Bucuresti |
| 33. | Petru Poni, Liceul Tehnologic - Bucuresti | 0213199316 | Bd. Preciziei, Nr. 18, Sector 6, Bucuresti |
| 34. | Colegiul Tehnic Petru Maior - Bucuresti | 0736627798 | Bd. Timisoara, Nr. 6, Sector 6 |
| 35. | Scoala Gimnaziala Nr. 168 - Bucuresti | 0314326090 | Str. Alizeului, Nr. 9, Sector 6, Bucuresti |
| 36. | Scoala Gimnaziala Nr. 153 Bucuresti | 0212217651 | Drumul Sabareni, Nr. 21, Sector 6, Bucuresti |
| 37. | Sfantul Andrei, Scoala Gimnaziala 172 - Bucuresti | 0217785959 | Aleea Parva, Nr. 3- 5, Sector 6, Bucuresti |
| 38. | Elena Cuza, Colegiul National - Bucuresti | 0214132495; 0214134768 | Str. Pestera Scarisoara, nr. 1, sector 6, Bucuresti |
| 39. | Colegiul Tehnic Dinicu Golescu - Bucuresti | 0216370484 | Calea Giulesti, Nr. 10, Sector 1 |
| 40. | Scoala Gimnaziala Nr. 197 - Bucuresti | 0214134330; 0786332028 | Str. Obcina Mare, Nr. 2, Sector 6, Bucuresti |
| 41. | Orizont, Scoala Gimnaziala Nr. 193 - Bucuresti | 0214132355 | Str. Mihaela Ruxandra Marcu, Nr. 3, Sector 6, Bucuresti |
| 42. | Adrian Paunescu, Scoala Gimnaziala - Bucuresti | 0214133020 | Aleea Valea Prahovei, Nr. 1, Sector 6, Bucuresti |
| 43. | Scoala Gimnaziala Nr. 161- Bucuresti | 0212249328 | Calea Giulesti, Nr. 486A, Sector 6, Bucuresti |
| 44. | Eugen Lovinescu, Liceu teoretic - Bucuresti | 0214132947; 0214134195 | Str. Valea lui Mihai, Nr. 6, Sector 6, Bucuresti |
| 45. | Eugen Barbu, Scoala Gimnaziala Nr. 173 - Bucuresti | 0212240937 | Str. Ivan Petrovici Pavlov, Nr. 2-4, Sector 1, Bucuresti |
| 46. | Scoala Gimnaziala Speciala Constantin Paunescu Bucuresti | 0214442288 | Aleea Istru, Nr. 4, Sector 6 |
| 47. | Colegiul Tehnic Mecanic Grivita - Bucuresti | 0212240770 | Calea Grivitei, Nr. 363, Sector 1, Bucuresti |
| 48. | Scoala Gimnaziala Nr. 279 - Bucuresti | 0217773164 | Prelungirea Ghencea, Nr. 24, Sector 6, Bucuresti |
| 49. | Scoala Profesionala Speciala pentru Deficienti de Auz Sfanta Maria - Bucuresti | 0214440331; 0217787655 | Aleea Istru, Nr. 6, Sector 6 |
| 50. | Scoala Gimnaziala Nr. 59 | 0314252104 | Str. Vladeasa, Nr. 9, Sector 6, Bucuresti |
| 51. | Sfantul Nicolae, Scoala Gimnaziala Nr. 175 - Bucuresti | 0212241846 | Str. Lainici, Nr. 4-8, Sector 1, Bucuresti |
| 52. | Geo Bogza, Scoala Gimnaziala Nr. 170 - Bucuresti | 0212223072 | Str. Barbu Lautaru, Nr. 4, Sector 1, Bucuresti |
| 53. | Scoala Gimnaziala Nr. 311- Bucuresti | 0214133440 | Str. Garleni, Nr. 10, Sector 6, Bucuresti |
| 54. | Alexandru Costescu - Scoala Gimnaziala Nr. 182 - Bucuresti | 0216674540 | Str. Amintirii, Nr. 26, Sector 1, Bucuresti |
| 55. | Colegiul Tehnic Mircea cel Batran - Bucuresti | 0212242376 | Str. Feroviarilor, Nr. 37, Sector 1 |
| 56. | Petre Ispirescu - Scoala Gimnaziala Nr. 171 - Bucuresti | 0212241163 | Str. Vasile Gherghel, Nr. 2, Sector 1, Bucuresti |
| 57. | Scoala Gimnaziala Nr. 144 - Bucuresti | 0214442093 | Str. Floarea de Gheata, Nr. 1B, Sector 5, Bucuresti |
| 58. | Alexandru Odobescu, Scoala Gimnaziala - Chiajna | 0372552412 | Str. Pacii, Nr. 72, Chiajna, judetul Ilfov |
| 59. | Ada School - Bucuresti | 0723595916; 0721424485 | Dr. Carol Davila, Nr. 101, Bucuresti |
| 60. | ForEvEr - After school, Bucuresti | 0733543937 | Strada Drumul Valea Larga, nr. 24A, sector 6 |
| 61. | Timotei Cipariu, Liceul Greco-Catolic - Bucuresti | 0216678434 | Str. Bucegi, Nr. 97, Sector 1, Bucuresti |
| 62. | Scoala Gimnaziala nr 180 - Bucuresti | 0216671835 | Bucegi, nr. 97, sector 1 |
| 63. | Ion Barbu, Liceu Teoretic - Bucuresti | 0214102332 | Str. Nabucului, Nr. 18, Sector 5, Bucuresti |
| 64. | I.G. Duca, Scoala Gimnaziala 146 - Bucuresti | 0214100881 | Sos. Panduri, Nr. 42, Sector 5, Bucuresti |
| 65. | Ion Neculce, Colegiul National Bucuresti | 0212224145; 0212224179 | Str. Ion Neculce, Nr. 2, Sector 1, Bucuresti |
| 66. | Scoala Gimnaziala Nr. 183 - Bucuresti | 0216673280 | Str. Dunei, Nr. 1, Sector 1 |
| 67. | Little Genius - Scoala primara Bucuresti | 0724245249 | Str. Carol Knappe, Nr. 95, sector 1 |
| 68. | Iosif Sava, Scoala Gimnaziala de Arte - Bucuresti | 0212312470 | Str. Constantin Disescu, Nr. 37, Sector 1, Bucuresti |
| 69. | Scoala Gimnaziala Nr. 150 - Bucuresti | 0214108408 | Bd. Eroii Sanitari, Nr. 29-31, Sector 5, Bucuresti |
| 70. | Uruguay, Scoala Gimnaziala - Bucuresti | 0216370361 | Str. Virgiliu, Nr. 40, Sector 1, Bucuresti |
| 71. | Stefan Odobleja, Liceu teoretic - Bucuresti | 0214112213 | Str. Dorneasca, Nr. 7A, Sector 5, Bucuresti |
| 72. | Nicolae Titulescu, Scoala Gimnaziala - Bucuresti | 0212236393 | Sos. Nicolae Titulescu, nr. 50-52, Sector 1, Bucuresti |
| 73. | Nicolae Iorga, Liceu teoretic - Bucuresti | 0212242026 | Bd. Ion Mihalache, Nr. 126, Sector 1, Bucuresti |
| 74. | Phoenix, Liceu Teoretic - Bucuresti | 0214341364; 0770911516 | Virgiliu, Nr. 40, Sector 1, Bucuresti |
| 75. | Scoala Gimnaziala Nr. 1 - Sfintii Voievozi | 0213127572; 0213164206; 0213179916 | Str. Atelierului, Nr. 25, Sector 1, Bucuresti |
| 76. | Fridolin, scoala primara si gimnaziala germana - Bucuresti | 0723584872 (Adina Stoenescu); 0722502522 (Christian Comsa) | Fagaras, Nr. 9-13, Sector 1, Bucuresti |
| 77. | SEB, Scoala Europeana, Invatamant primar, gimnazial si liceal - Bucuresti | 0314381212; 0720068490 | Bd. Expozitiei, Nr. 24D, sector 1, Bucuresti |
| 78. | Scoala Gimnaziala Nr. 192 - Bucuresti | 0732137634; 0216670296 | Str. Munteniei, Nr. 32, Sector 1, Bucuresti |
| 79. | Scoala Gimnaziala Nr. 115 | 0213163793; 0786401588 | Calea 13 Septembrie, Nr. 177, Sector 5, Bucuresti |
| 80. | Smart Koala Kids Club | 0771638419; 0771638425 | Calea 13 Septembrie, Nr.126A, bl.P43, sc.1, parter, ap. 2, sector 5, Bucuresti |
| 81. | Scoala Gimnaziala nr. 143 - Bucuresti | 0214202440 | Str. Banu Maracine, Nr. 16, Sector 5 |
| 82. | Scoala Gimnaziala Nr. 184 - Bucuresti | 0216672225 | Str. Stefan Magheri, Nr. 13, Sector 1 |
| 83. | Constantin Brancoveanu, Liceu teoretic - Bucuresti | 0216670890 | Str. Pajurei, Nr. 9, Sector 1, Bucuresti |
| 84. | Maryland, Scoala Primara - Drumul Taberei, Bucuresti | 0722418104 (Cristina Ignat Varlam); 0722257343 (Claudiu Ignat Varlam) | Drumul Ghindarilor, Nr.150-154, Sector 5, Bucuresti |
| 85. | Liceul Teoretic National | 0720000171 | Str. Buzesti, Nr. 14-18; Sector 1, Bucuresti |
| 86. | Tudor Vianu, Colegiul National de Informatica - Bucuresti | 0212226670 | Str. Arh. Ion Mincu, Nr. 10, sector 1, Bucuresti |
| 87. | Dimitrie Gusti, Liceu Tehnologic - Bucuresti | 0214562050 | Str. Samuil Vulcan, Nr. 8, Sector 5, Bucuresti |
| 88. | Pia Bratianu - Scoala Gimnaziala Nr. 17 | 0212226590 | Str. Petofi Sandor, Nr. 14-16, Sector 1, Bucuresti |
| 89. | I.N.Socolescu, Colegiul Tehnic de Arhitectura si Lucrari Publice - Bucuresti | 0213108958 | Occidentului, Nr. 12, Sector 1, Bucuresti |
| vezi mai multe | |||
| 1. | Weiss Beer Garden - Terasa, Bucuresti | 0733582852 | Bulevardul Uverturii, nr. 132, sector 6 |
| 2. | La Cave - Restaurant cu specific francez, Bucuresti | 0746254444 | Str. Margelelor, Nr. 139-143, sector 6 |
| 3. | Pizza Volante - Bucuresti | 0738592129; 0765401872 | Strada Cernisoara, Nr. 151, sector 6 |
| 4. | Timeout Cafe - Bucuresti | 0763700031 | Strada Reveriei, nr. 11, Sector 6 |
| 5. | Pizza KA - Bucuresti | 0219894 | B-dul Uverturii, Nr. 98, Sector 6 |
| 6. | Casa Roz - Restaurant, Bucuresti | 0721542909; 0720624500 | Str. Apusului, nr 44, sector 6 |
| 7. | Casa Roz, Restaurant - Bucuresti | 0721542909; 0720624500; 0723504103 | Apusului, Nr. 44, Sector 6, Bucuresti |
| 8. | Aniela - Cofetarie, Bucuresti | 0760237463 | Bd. Uverturi, Nr.83, sector 6 |
| 9. | Cocosu Rosu - Restaurant cu specific romanesc Bucuresti | 0747059315 | Str. Margelelor, Nr. 61 ? 63, Sector 6 |
| 10. | Cofetaria Elan - Bucuresti | 0214343438 | Bulevardul Iuliu Maniu, Nr. 73, sector 6 |
| 11. | Fortuna Pizza - Bucuresti | 0764725328; 0725416126 | Apusului, Nr. 82, Sector 6, Bucuresti |
| 12. | Candy bar by Kitty, Cofetarie - Bucuresti | 0766628112 (Letan Elena) | Iuliu Maniu, Nr.61, Sector 6, Bucuresti |
| 13. | Sweet Chocolate - Cofetarie, Bucuresti | 0733944694 | Bd. Iuliu Maniu, Nr.65, sector 6 |
| 14. | Primo - Restaurant fast food, Bucuresti | Bulevardul Iului Maniu, Nr. 184, sector 6 | |
| 15. | Joy Pizza - Ilfov | 0733360020 | Str. 1 Decembrie, Nr 141 A, Chiajna, judetul Ilfov |
| 16. | Mr Laziz Fast Food & Grill - Mancare libaneza | 0720451176 | Drumul Timonierului, nr. 3-5 sector 6 |
| 17. | AS Garden - Restaurant Bar & Grill, Bucuresti | 0736735244; 0731639017 | Strada Timonierului, Nr. 3-5, sector 6 |
| 18. | Impinge Tava - Ilfov | 0722911963 | Strada 1 Decembrie 1918, Nr.165, Rosu, judetul Ilfov |
| 19. | La Collina - Restaurant si pizzerie, Bucuresti | 0720265462; 0761806890; 0722229700 | Drumul Timonierului, nr. 26, sector 6 |
| 20. | Speed Pizza - Bucuresti | 0219001 | Iuliu Maniu, Nr.19, Sector 6, Bucuresti |
| 21. | Almondo Pizza - Pizzerie, Bucuresti | 0726000222/ 0767227722 | Str. Murguta, nr. 27, sector 6 |
| 22. | Casa Nasului - Restaurant Bucuresti | 0727825165 | Strada Cetatuia, Nr. 12, sector 6 |
| 23. | Kabo - Restaurant Bucuresti | 0769276582 | Strada Moinesti, Nr. 49, sector 6 |
| 24. | Casa Antonie, Cofetarie - Bucuresti | 0212202530; 0740150736; 0212202510 | Mehadia, Nr. 39A, Sector 6, Bucuresti |
| 25. | Turbotequila, Restaurant - Bucuresti | 0214344007; 0214301312 | Bd. Iuliu Maniu, Nr. 220C, Sector 6, Bucuresti |
| 26. | Panoramic Beer & Grill - Ilfov | 0720327223 | Str. Apeductului, Nr. 14, sat Rosu, comuna Chiajna, judetul Ilfov |
| 27. | Fast Food Selfie - Bucuresti | 0723640514; 0766356486 | Strada Moinesti, Nr. 75, sector 6 |
| 28. | IDM Club Sportiv - Bucuresti | 0213161052; 0722454273 | Splaiul Independentei, Nr. 319 B, (Vizavi de campusul studentesc Regie) Sector 6, Bucuresti |
| 29. | Pizza Real - Delivery Bucuresti | 0760170649; 0725470701 | Calea Crangasi, Nr. 90, Sector 6 |
| 30. | Alexia Garden - Restaurant Bucuresti | 0374015050; | Bulevardul Timisoara, Nr 58G, sector 6 |
| 31. | La Micutu - Fast Food, Bucuresti | 0765099359 | Bd Timisoara, Nr 18, sector 6 |
| 32. | Capri Pizza, Pizzerie si catering - Bucuresti | 0729442530; 0214442101 | B-dul. Timisoara, Nr. 60C, Sector 6, Bucuresti |
| 33. | Mechano Pub - Bucuresti | 0722990992 | Splaiul Independentei, Nr. 290, sector 6 |
| 34. | La Saveur - Brutarie artizanala, patiserie, cofetarie Bucuresti | 0770733292; 0722624525 | Drumul Taberei, Nr 68, sector 6 |
| 35. | Kungfu Pizza - Bucuresti | 0774428631; 0216656866; 0314251995 | Ceahlau, Nr.17 B, Sector 6, Bucuresti |
| 36. | La Nasu, Restaurant - Bucuresti | 0212214285; 0722257923; 0728984754 | Calea Crangasi, Nr. 29, Sector 6, Bucuresti |
| 37. | Vulturul, Restaurant - Bucuresti | 0722335116; 0213514149 | Intrarea Blejoi, Nr. 2, (B-dul Iuliu Maniu 408-410), Sector 6, Bucuresti |
| 38. | Vulturul, Restaurant - Bucuresti | 0722335116; 0213514149 | Intrarea Blejoi, (B-dul Iuliu Maniu 408-410), Nr. 2, Sector 6, Bucuresti |
| 39. | Pub 18 Restaurant - Bucuresti | 0722441586 | Splaiul Independentei, Nr. 290, bl. P18, parter, sector 6 , Bucuresti |
| 40. | Pub 18 Restaurant - Bucuresti | 0722441586 (Manager Pub Oana Valeanu) | Splaiul Independentei, Nr. 290, bl. P18, parter, Sector 6, Bucuresti |
| 41. | La Maria si Ion, Restaurant - Bucuresti | 0762295737; 0753473781 | Splaiul Independentei, Nr. 290, Complex Studentesc Regie, Sector 6, Bucuresti |
| 42. | Dum Dum Food - Restaurant fast food, Bucuresti | 0735 270 402 | Calea Giulesti, Nr. 123, sector 6 |
| 43. | Story Pizza - Pizzerie, Bucuresti | 0721985293; 0212201004; 0748581523 | Calea Giulesti, nr 202, sector 6 |
| 44. | Mamma Mia, Pizzerie - Bucuresti | 0784614600 | Calea Giulesti, Nr.230, Sector 6, Bucuresti |
| 45. | Trattoria 20 - Restaurant Bucuresti | 0757534928; 0751267451 | Splaiul Independentei, Nr. 290, Campus Regie, sector 6 |
| 46. | Ev Don Fusion - Restaurant Ilfov | 0775500777 | Strada Rezervelor 63, Chiajna, Dudu, judetul Ilfov |
| 47. | Shorley Restaurant - Bucuresti | 0765377308; 0724710385; 0213124312 | Econom Cezarescu, Nr. 50, Sector 6 , Bucuresti |
| 48. | Mai Mult Decat Un Dulce - Cofetarie, Bucuresti | 0785688229 | Str. Rezervelor, Nr.5nr.56 , bl.4, parter,sector 6, |
| 49. | Roxy Pub - Bucuresti | 0742033944; 0723327117; 0785224508 | Splaiul Independentei, Nr. 290, Complex Studentesc Regie, Bucuresti |
| 50. | Pui de Urs, Restaurant - Bucuresti | 0213166289; 0724622226; 0765166266 | Econom Cezarescu, Nr. 42 (Grozavesti), Sector 6 , Bucuresti |
| 51. | Trattoria Roz Cafe - Restaurant Bucuresti | 0774481284; 0726616358 | Strada Rezervelor, Nr. 52 bis, sector 6 |
| 52. | Militari Residence Ballroom - Bucuresti | 0723333508; 0760150392 | Rezervelor, Nr. 70, Sector 6, Chiajna, judetul Ilfov |
| 53. | Torturi de vis - Cofetarie Bucuresti | 0744364900 | Str. Rezervelor, Nr 44A, Chiajna, judetul Ilfov |
| 54. | Amarillo, Restaurant - Bucuresti | 0722215615; 0722244599 | Drumul Taberei, Nr. 44A, Sector 6, Bucuresti |
| 55. | Ai Sapori - Restaurant cu specific italian Bucuresti | 0372713635 | Bd Timisoara, Nr. 21, sector 6, Bucuresti |
| 56. | Potcoava 9 Mai, Restaurant - Bucuresti | 0212202208; 0721065347 | Str. 9 Mai , Nr. 51, Sector 6, Bucuresti |
| 57. | Dream Pizza - Restaurant Bucuresti | 0785070079 | Drumul Taberei, Nr. 28, sector 6, |
| 58. | Trattoria Roma - Restaurant Bucuresti | 0765723733; 0799772233 | Str. Drumul Taberei, Nr. 26, Sector 6 |
| 59. | Capri, Restaurant - Bucuresti | 0769812778; 022797639; 0730094662 | Iuliu Maniu, Nr.484, (inaintea benzinariei Petrom - Metro Militari), Bucuresti |
| 60. | Yesterday, Hotel si Restaurant - Bucuresti | 0213408585; 0737001008 | Economu Cezarescu, Nr. 8, Sector 6, Bucuresti |
| 61. | Urban Vibe Roastery - Cafenea, Bucuresti | 0768082833 | Valea Oltului, Nr 131-137, sector 6 |
| 62. | Verbun Pizza & Shaorma - Restaurant fast-food, Bucuresti | 0785161693 | Valea Oltului, Nr. 131-137, sector 6 |
| 63. | Rabah - Fast food, Bucuresti | 0771225412 | Strada Tineretului, nr 29, bloc 6 sc A, comuna Chiajna |
| 64. | PASSION CLUB | Tel. 021.444.36.67; 021.444.36.68; 0743.048.701; Fax 021.444.36.67 | Str. Valea Oltului, nr. 117A, sector 6, |
| 65. | 14th Lane - Restaurant cu mancaruri fine, organizare evenimente, Bucuresti | 0737776777 | Sos. Orhideelor, Nr. 15D, sector 6, Bucuresti |
| 66. | Petritis Gyros- Restaurant fast-food, Ilfov | 0754745168 | Tineretului, Nr. 63 Rosu, Militari Residence, Comuna Chiajna, judetul Ilfov |
| 67. | Galletto Ristorante, Restaurant italian, catering - Bucuresti | 0212112276; 0770407519 | Soseaua Orhideelor, Nr.1 (podul nou Basarab,langa cladirile de birouri The Bridge, Sector 6, Bucuresti |
| 68. | Liana - Cofetarie, Ilfov | 0770507598 | Strada Tineretului, Nr 63, Comuna Chiajna, judetul Ilfov |
| 69. | La Placinte - Restaurant cu specific romanesc, Bucuresti | 0756207005 | Bd. Vasile Milea, 4F (Afi Park 2) |
| 70. | Quantic Pub - Bucuresti | 0314321742 | Soseaua Grozavesti, Nr. 82, sector 6 |
| 71. | Passion Club, Restaurant - Bucuresti | 0214443668; 0745111107 | Valea Oltului, Nr. 117A,Sector 6, Bucuresti |
| 72. | Passion Club, Restaurant - Bucuresti | 0214443668; 0745111107 | Valea Oltului, Nr. 117A, Sector 6, Bucuresti |
| 73. | Restaurant Passion Club | 0214443668; 0745111107 | Str. Valea Oltului, nr. 117A, sector 6, |
| 74. | Opa Opa Greek Fast Food - Bucuresti | 0746072527 | Bd. Preciziei, Nr. 24, Sector 6 |
| 75. | 14iil Bistro Caffe - Bucuresti | 0767945297 | Str. Orhideelor, Nr. 36 Comuna Chiajna, judetul Ilfov |
| 76. | Nedelya - Cofetarie Bucuresti | 0771420388 | Strada Brasov, Nr. 25, sector 6, Centrul Comercial Drumul Taberelor |
| 77. | Lucky Point Pub | 0742181263 | Splaiul Independentei, 204,sect.6, Bucuresti |
| 78. | Hong Kong - Restaurant chinezesc, Ilfov | 0213107134; 0727834877 | Calea Grivitei, nr. 81 (langa Biserica Sf. Voievozi), sector 1, , judetul Ilfov |
| 79. | Basilico - Restaurant Bucuresti | 0770898782 | Valea Oltului, Nr. 61, Sector 6 |
| 80. | Hanul Drumetului, Restaurant - Bucuresti | 0214133430; 0722555083 | Bd. 1 Mai(Compozitorilor), Nr. 28, Sector 6, Bucuresti |
| 81. | La Felinare - Restaurant cu specific international, Bucuresti | 0751028811 | Strada Brasov, Nr. 25L, sector 6 |
| 82. | Vecchia Napoli Pizzeria - Bucuresti | 0723970317; 0212246629; 0754043666 | Calea Grivitei, Nr. 371, Sector 1, Bucuresti |
| 83. | Agora Restaurant - Bucuresti | 0212242482; 0722304431 | Str. Tintasului , Nr. 27, Sector 1, Bucuresti |
| 84. | Fast Food Plevnei - Restaurant Fast Food Bucuresti | 0761046444 | Calea Plevnei, Nr. 230, sector 1 |
| 85. | Golden Blitz, Restaurant - Bucuresti | 0214105100 | Razoare , Nr. 32, Sector 6 , Bucuresti |
| 86. | Golden Blitz, Restaurant - Bucuresti | 0214105100 | Razoare , Nr. 32, Sector 6 , Bucuresti |
| 87. | Crosto Pizza - Pizzerie, Bucuresti | 0786200100; 0723700300 | Strada Condorului, Nr 3, Sector 5 |
| 88. | Pizzeria Alessandro - Bucuresti | 0721886488; 0721887488 | Drumul Sarii, Nr.150, sector 6 |
| 89. | Fresh Food - Restaurant fast-food, Bucuresti | 0761383536 | Bulevardul Ghencea, nr. 79 (in incinta Complex Tamilia), sector 6 |
| 90. | Triana - Cofetarie, Bucuresti | 0740302404 | Soseaua Orhideelor, Nr. 46, sector 1 |
| 91. | La Sotir Jr. Ballroom - Ilfov | 0722911963; 0736560179; 0722329354 | Str. Eroului, nr. 2A, Chiajna, judetul Ilfov |
| 92. | Bulevard - Restaurant, Bucuresti | 0728538273 | Bulevardul Ghencea, nr.122, Bucuresti, Sectorul 6 |
| 93. | Naan Project - Restaurant, Bucuresti | 0730707119 | Strada Progresului, Nr. 1-3 (Razoare), sector 5 |
| 94. | Cofetaria Ioana - Bucuresti | 0217265762 | Strada Vladeasa, Nr. 2, sector 6 |
| 95. | Kunnai - Restaurant cu specific thailandez | 0722687343; 0722687454 | Strada Copilului, Nr. 6-12, sector 1 |
| 96. | Burgeria Cotroceni - Restaurant fast-food, Bucuresti | 0314214777 | Soseaua Cotroceni, Nr. 9, sector 6 |
| 97. | Perfekto Pizza - Bucuresti | 0721090553 | Strada Navigatiei, Nr. 9, Sector 1 |
| 98. | Fabio Pizza - Bucuresti | 0372188330 | Turda, Nr. 117, Sector 1, Bucuresti |
| 99. | Cinas - Restaurant Bucuresti | 0726606212 | Bucurestii Noi, Nr. 20-28, Sector 1 |
| 100. | Graffiti Urban Food, Bucuresti | 0749433433; 0733695443; 0769180180 | Str.Carol Davila, Nr. 56A, Sector 5, Bucuresti |
| 101. | Derby Pub & Restaurant - Bucuresti | 0214108545 | Bd. Eroilor Sanitari , Nr. 49A,sector 5, Bucuresti |
| 102. | Victoria, Cofetarie Bucuresti | 0212242033 | Bd. Ion Mihalache, Nr. 233, Sector 1, Bucuresti |
| 103. | Fresche Pizza - Bucuresti | 0799168000 | Soseaua Chitilei, Nr. 126, sector 1 |
| 104. | So! Coffee, Cafenea - Bucuresti | 0372285718; 0314078250 | Piata Garii de Nord, Nr.1-5 (In fata peroanelor 4-5), Sector 1, Bucuresti |
| 105. | Cesme - Restaurant cu specific turcesc, Bucuresti | 0721163176 | Str. Calea 13 Septembrie, Nr 272, sector 5 |
| 106. | Mezze, Restaurant libanez - Bucuresti | 0213116633; 0720044469 | Mircea Vulcanescu, Nr.153 B,Sector 1 , Bucuresti |
| 107. | Murad - Cafe-Restaurant, Bucuresti | 0725777000 | Str. Panait Istrati, nr, 101, sector 1 |
| 108. | Elena - Restaurant cu specific romanesc, cu terasa, organizare evenimente, Bucuresti | 0747277232 | Calea 13 Septembrie, Nr. 289, Sector 5, Bucuresti |
| 109. | Bike Boutique and More - Magazin, terasa, service, Bucuresti | 0752405152 | Strada Profesor Doctor Victor Babes, Nr. 2, sector 5 |
| 110. | Andros - Cofetarie, Bucuresti | 0748888847 | Str. Antiaeriana, nr. 5, sector 5, |
| 111. | Kvala - Restaurant grecesc, Bucuresti | 0726731663 | str Louis Pasteur, nr 63, sector 5 |
| 112. | Colosal - Fast Food, Bucuresti | 0737698255 | Strada Mihail Sebastian, Nr. 133, sector 5 |
| 113. | D&L Cuisine - Restaurant, Bucuresti | 0740305159 | Bd. Expozitiei, nr. 2, corp C3, etaj 1, sector 1 |
| 114. | Excellence - Restaurant Bucuresti | 0723888822 | Strada Petre Ispirescu, Nr. 110-112, sector 5 |
| 115. | La petite bouffe - Cafenea, Bucuresti | 0733669344 | Strada Doctor Louis Pasteur, nr 38, sector 5 |
| 116. | The Place Pub - Pub, Bucuresti | 0743951281 | Mr. Alexandru Campeanu, nr.36, sector 1 |
| 117. | La Cristi - Fast Food si catering, Bucuresti | 0729266850 | Strada Frosa Sarandy, Nr. 17, Sector 1 |
| 118. | Casa Banil Restaurant - Bucuresti | 0214105716; 0723391161; 0724159949 | Petre Ispirescu , Nr. 95, Sector 5, Bucuresti |
| 119. | Ceainaria Infinitea | 0723175300 | Str. Dr. Grigore Romniceanu, Nr.7, ap.2, sector 5 |
| 120. | Gastronomika - Restaurant cu specific international, Bucuresti | 0737940512 | Str. Ion Neculce, Nr. 63, Sector 1 |
| 121. | Grivita - Pub&Grill, Bucuresti | 0724748482 | Calea Grivita, Nr. 130 (Parter Eurohotels), |
| 122. | Jazz Book - Club de jazz si blues, Bucuresti | 0752206746 | Doctor Carol Davila, Nr. 1, Cotroceni, sector 5 |
| 123. | Ana Pan Cofetarie - Bucuresti | 0216373536; 0730262726; 0212332241 | Stirbei Voda, Nr. 166,Sector 1, Bucuresti |
| 124. | Piticot, Cofetarie Bucuresti | 0214206670; 0726714865 Whatsapp | Petre Ispirescu, Nr. 77, Sector 5, Bucuresti |
| 125. | Coin Vert - Restaurant cu specific libanez, Bucuresti | 0721331465; 0744518200 | Str. Sandu Aldeea, nr. 75, sector 1 |
| 126. | Fendi Kebap - Restaurant fast-food, Bucuresti | 0314051091 | Str. Novaci, |
| 127. | Terasa Oasis - Restaurant Bucuresti | 0733638577 | Mihail Sebastian, Nr.102. Sector 5, Bucuresti |
| 128. | Bocca Lupo - Restaurant cu specific italian, Bucuresti | 0314050050 | Strada Dr. Lister, nr. 1, sector 5 |
| 129. | Casa Lazar - Restaurant Bucuresti | 0764024444; 0738794310; 0735778229 | Serg. Maj. Ion Nedeleanu, Nr. 8, sector 5 |
| 130. | Hot Woks - Restaurant fast-food, Bucuresti | 0726393645 | B-dul Bucurestii Noi, nr. 67, sector 1 |
| 131. | Don Daniel Pizza | 0737444999; 0766771117; Tel/Fax: 0212225034 | Bd. Ion Mihalache, Nr. 60, Sector 1, Bucuresti |
| 132. | Cofetaria Maia Artizan Bakery - Bucuresti | 0762298622 | Str. Margeanului, Nr. 115, sector 5 |
| 133. | Panorama Kebap - Restaurant fast food, Bucuresti | 0766244009 | Str Margeanului, Nr.115, sector 5 |
| 134. | Old School, Restaurant - Bucuresti | 0744105445; 0745110362 | Calea Plevnei, Nr. 61, Sector 6, Bucuresti |
| 135. | The Mark - Restaurant pub Bucuresti | 0758505500 | Calea Grivitei, Nr. 84-98, sector 1 |
| 136. | Bucharest West, Restaurant si Motel - Domnesti / Ilfov | 0213505621; 0743485055 | Soseaua de Centura , Nr. 2,, Domnesti, judetul Ilfov |
| 137. | The Soup Carousel - Restaurant cu supe si ciorbe, Bucuresti | 0725356907 | Sos. Nicolae Titulescu, Nr. 12, sector 1 |
| 138. | La Matache Restaurant (comenzi online si livrari la domiciliu) | 0213107327; 0213107337; 0213118888 | P-ta. Dr. Haralambie Botescu, Nr. 2, Sector 1, Bucuresti |
| 139. | Piccolo Mondo, Restaurant - Bucuresti | 0722205020; 0212225755 | Clucerului, Nr. 9, Sector 1 , Bucuresti |
| 140. | Piccolo Mondo, Restaurant - Bucuresti | 0722205020; 0212225755 | Clucerului , Nr. 9, Sector 1 , Bucuresti |
| 141. | Jadoo Restaurant - Bucuresti | 0212220502; 0724365583 | Nicolae Racota, Nr. 3, Sector 1, Bucuresti |
| 142. | Beirut Restaurant - Bucuresti | 0722302320; Tel/Fax: 0212220169 | Nicolae Racota, Nr. 3A, Sector 1, Bucuresti |
| 143. | Jadoo Restaurant - Bucuresti | 0724365583; 0212220502 | Nicolae Racota, Nr. 3, Sector 1, Bucuresti |
| 144. | Seneca Anticafe - Cafenea, Bucuresti | 0720331100 | Strada Arhitect Ion Mincu, nr. 1, sector 1 |
| 145. | Angeline Cake Boutique - Cofetarie, Bucuresti | 0753652144 | Str. Doctor Iacob Felix, Nr. 59, Sector 1 |
| 146. | Cuptorul Dulce - Cofetarie, Ilfov | 0752086166 | Prelungirea Ghencea, nr.262, Bragadiru, judetul Ilfov |
| 147. | Royal Kebap - Restaurant fast-food, Bucuresti | 0730242360 | Strada Margeanului, Nr. 105 C, sector 4 |
| 148. | SupaDupa - Restaurant cu supe si ciorbe, Bucuresti | 0739344281 | Strada Popa Tatu, Nr. 94, sector 1 |
| 149. | Seoul - Restaurant cu specific coreean Bucuresti | 0216672119; 0725498366 | Str. Lt. Av. Mircea Zorileanu, Nr. 89, sector 1 |
| 150. | Ublo Bistro - Bucuresti | 0743447476 | Clucerului, Nr. 54, sector 1 |
| 151. | Claus, Cofetarie Bucuresti | 0212220218; 0721264900 | Bd. Banu Manta, Nr. 21A, Sector 1, Bucuresti |
| 152. | Kicen - Ciorbe de casa, Bucuresti | 0751012221 | str. Dr. Staicovici, nr. 43, sector 5 |
| 153. | Pain Plaisir - Patiserie Bucuresti | 0745645555 | Strada Barbu Delavrancea, Nr. 1, sector 1 Pain Plaisir Kiseleff |
| 154. | Coppa - Bar cu vinuri si cafea, Bucuresti | 0741594545; 0756080004 | Bd. Nicolae Titulescu, nr. 3, sector 1 |
| 155. | ChefBox - Restaurant, Bucuresti | 0728800528 | Buzesti, Nr. 57-59, sector 1 |
| 156. | Casa Bia - Restaurant Bucuresti | 0761241623 | Str. Sebastian Mihail, Nr. 19, sector 5 |
| 157. | Refill - Bistro cu specific international, Bucuresti | 0786372856 | Bulevardul Mihalache, Nr. 12, sector 1 |
| 158. | PengYou - Restaurant specific chinezesc Bucuresti | 0787748272 | Str. Occidenului, Nr. 11, Sector 1 |
| 159. | KALI - Restaurant cu bufet, Bucuresti | 0725988889 | Strada Buzesti, Nr. 71, Sector 1 |
| 160. | Fayn Urban Eatery - Restaurant, Bucuresti | 0723257692 | Strada Buzesti, nr. 71, sector 1 |
| 161. | Black Habit - Cafenea | 0770357382 | Calea Grivitei, Nr. 77, sector 1 |
| 162. | Old Kitchen - Restaurant Bucuresti | 0732773537 | Str. Sfintii Voievozi, Nr. 13, Sector 1 |
| vezi mai multe | |||
| 1. | PLUS DISCOUNT | Tel. 021.402.28.67; Fax 021.402.28.66 | Bd. Iuliu Maniu nr. 8B, sector 6, |
| 2. | CENTRUL COMERCIAL SIR | Tel. 021.430.13.98; 021.430.01.27 | Sos. Virtutii, nr. 1A (pasajul Lujerului, col? cu bd. Uverturii), sector 6, Bucuresti |
| 3. | PLAZA ROMANIA | Tel. 021.407.84.64; 021.407.84.65; 021.319.50.51 | Bd. Timisoara , nr. 26, sector 6, |
| 4. | IOVIROM | Tel. 444.18.66; Fax 444.18.69 | Bd. Timisoara nr. 84, sector 6 |
| 5. | GRANT SHOPPING CENTER | Tel/Fax 021.220.42.65 | Sos.Virtutii, nr. 148, sector 6, Bucuresti |
| 6. | VENGA | Tel. 021.425.05.70; Fax 021.425.05.25 | Drumul Taberei nr. 24, sector 6 |
| 7. | MILITARI SHOPPING | 021.380.87.82 | Bd. Iuliu Maniu nr. 546-560, sector 6, |
| 8. | AFI Cotroceni - Mall, Bucuresti | 0314257510; 0314257511; Fax 0314257513 | Vasile Milea, Nr. 4, Sector 6 (intersectia Bd. Timisoara cu Str. Vasile Milea), Bucuresti |
| 9. | Home & Design Mall, Bucuresti - Mobilier, covoare, mochete, perdele | 0214130742; 0214132046; Fax.0214130741 | Bulevardul Ghencea, Nr. 126-132, Sector 6, Bucuresti |
| 10. | PROFI | Tel. 0726.100.452; Tel/Fax 021.444.32.44 | Bd. Ghencea nr. 38, bl. C63, sector 6, |
| 11. | FONZI | Tel. 260.21.28; 0729.005.261; Fax 260.15.31 | Sos. Nicolae Titulescu nr. 121 (Fonzi Junior), sector 1 |
| 12. | SUPERMARKET PRIMiVARA | Tel. 031.402.58.20; Fax 021.410.96.96 | Calea 13 Septembrie nr. 221-225, sector 5 - Complex Prosper, |
| 13. | WORLD TRADE PLAZA SHOPPING GALLERY | Tel. 202.44.50; Fax 202.43.11 | P-ta Montreal nr10, sector 1 |
| 14. | NICK CENTER | Tel. 410.06.14; Fax 410.18.94 | Calea 13 Septembrie nr. 190, sector 5 |
| 15. | THE GRAND AVENUE AT BUCHAREST MARRIOTT GRAND HOTEL | Tel.021. 403.40.98 | Calea 13 Septembrie nr. 90, sector 5 , |
| vezi mai multe | |||


Vezi galeria
106
,178
7 min.