219.900 €
Drumul Taberei, Parc Moghioros, apartament 3 camere
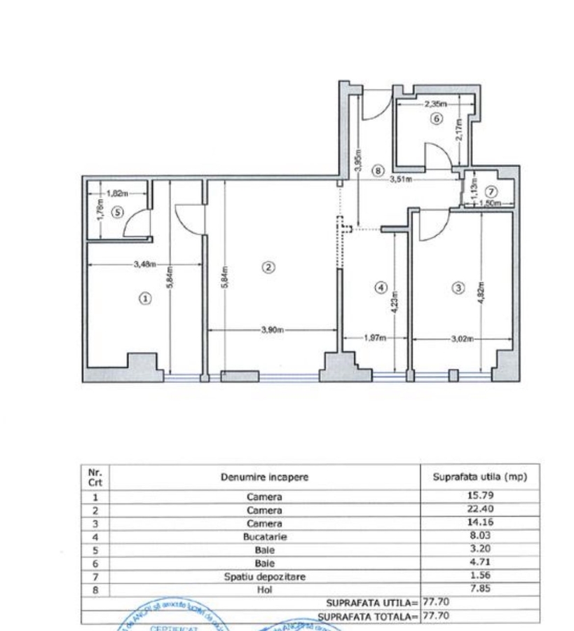
- Suprafata 78 mp
- An 2020
- Decomandat
- Etaj parter din 11
Tudor Vladimirescu ...
3 min.
Calculeaza distanta
4.378 vizite
Descriere anunt
Drumul Taberei, Parc Moghioros, apartament 3 camere
Va prezint spre vanzare un apartament cu 3 camere, 2 bai, cu suprafata utila de 78 mp, situat la parterul unui imobil cu 11 etaje, construit in 2020, in zona Drumul Taberei – Auchan Tricodava – Parc Moghioros, Sector 6. Apartamentul se vinde mobilat si utilat, fiind potrivit atat pentru o familie, cat si pentru persoane care isi doresc o locuinta moderna, intr-o zona verde si bine conectata.
Proprietatea beneficiaza de loc de parcare inclus, iar amplasarea ofera acces rapid catre Parcul Moghioros, centre comerciale, mijloace de transport in comun, scoli si alte facilitati importante ale cartierului Drumul Taberei.
Pret: 227000 €
Pentru mai multe informatii si programarea unei vizionari, sunati la tel.
Caracteristici, dotari
Optiuni interior
2 grupuri sanitare
Aer conditionat
Apometre
Centrala termica
Contor gaze
Inst. electrice noi
Inst. sanitare noi
Izolatie termica
Repartitoare caldura
Termopan
Usa metalica
Optiuni exterior
Interfon
Lift
Loc parcare
Structura caramida
Acces mijloace transport
| Statii metrou | Timp | |
|---|---|---|
![]() |
Tudor Vladimirescu | 3 min. |
![]() |
Parc Drumul Taberei | 8 min. |
![]() |
Favorit | 9 min. |
| Statii STB | Timp |
|---|---|
|
Tudor Vladimirescu
|
2 min. |
|
Drumul Taberei 34
105
,168
,368
|
3 min. |
|
Drumul Taberei 35
105
,168
,368
|
3 min. |
|
Piața Drumul Taberei
105
,168
,368
|
5 min. |
|
Drumul Taberei
|
7 min. |
|
Parc Drumul Taberei
105
,168
|
8 min. |
|
Drumețul
69
93
|
10 min. |
Obiective interes
| 1. | Rosa Zangara - Gradinita sector 6 | 0760505738 | Drumul Taberei, nr. 38A, sector 6 |
| 2. | Gradinita nr. 57 Hillary Clinton sector 6 | 0214133928 | Aleea Pravat, nr. 16, sector 6 |
| 3. | Cresa Pinochio (Cresa Drumul Taberei) sector 6 | 0376203313; 0376203312 | Aleea Compozitorilor, nr. 20, sector 6 |
| 4. | Gradinita nr. 272 sector 6 | 0311070199; 0214133878 | Bd. Timisoara, nr. 39, sector 6 |
| 5. | Gradinita Nr. 111 sector 6 | 0214135161 | Str. Sibiu, Nr. 8, Sector 6 |
| 6. | Gradinita nr. 41 sector 6 | 0214134988 | Str. Constantin Titel Petrescu, nr. 12, sector 6 |
| 7. | After School Casuta Piticilor - Drumul Taberei, Militari | 0720548870; 0723230720 | Str. Sg. Maj. Alexandru Postolache, nr. 22, sector 6 |
| 8. | Corina Club - After School Bucuresti | 0744353015; 0766332833 | Str. Garleni, Nr. 11A, Sector 6, Bucuresti |
| 9. | Colt de Rai - Gradinita sector 6 | 0217965203; 0752645946 | Str. Garleni, Nr. 10, Sector 6 |
| 10. | Gradinita Nr. 87 Spiridusii sector 6 | 0214132440 | Str. Valea Calugareasca, Nr. 6, Sector 6 |
| 11. | Gradinita nr. 94 sector 6 | 0214133574; 0724 531 595 | Str. Targu Neamt, Nr. 4, Sector 6 |
| 12. | Adeland - After school sector 6 | 0724531595 | Str. Targu Neamt, nr. 4, sector 6 |
| 13. | Priki - Gradinita sector 6 | 0753936611; 0742292143 | Str. Sergent Apostol Constantin, nr. 14, sector 6 |
| 14. | Ada - Gradinita Bucuresti | 0723595916 | Str. Gheorghe Spacu, nr. 21, sector 6, Bucuresti |
| 15. | Degetica - Gradinita si After School, Bucuresti | 0720222200; 0731313131; 0731313101 | Str. Bolidului, Nr. 4-6, Sector 6, Bucuresti |
| 16. | Gradinita Nr. 209 sector 6 | 0214401115; 0214134731 | Str. Pascani, nr. 15 bis, sector 6 |
| 17. | Gradinita nr. 273 sector 6 | 0214133842; 0787731520 | Str. Valea lui Mihai, nr. 1, sector 6 |
| 18. | Marchengarten - Gradinita cu predare bilingva sector 6 | 0744378796 | Str. G-ral Ioan Culcer, nr. 49, sector 6 |
| 19. | Gradinita nr. 274 sector 6 | 0213163345 | Bd. Iuliu Maniu, nr. 11D, sector 6 |
| 20. | Miro Kids World - Cresa, gradinita Bucuresti | 0767331173; 0756199161 | Str. Miroslavei, nr. 9, Sector 5 |
| 21. | Betty-Mar House - After / Before School, Bucuresti | 0732871827 | Str. Otescu Ion Nonna, nr. 23, sector 6 |
| 22. | Albinutele - Gradinita cu program prelungit sector 6 | 0311010031 | Str. Centurii, nr. 4, sector 6 |
| 23. | Happy Planet Kids - Gradinita Bucuresti | 0214106984; 0722319863; 0740843914 | Str. Lt. Col. C-tin Marinescu, Nr. 17B, Sector 6, Bucuresti |
| 24. | Centrul Multifunctional Romania Kids - Gradinita & After School Bucuresti | 0217770795; 0769060790 | Str. Rasaritului, Nr. 59, Sector 6, Bucuresti |
| 25. | Gradinita nr. 197 Zana Florilor sector 6 | 0214302179 | Str. Cetatuia, nr. 10, sector 6 |
| 26. | Gradinita Nr. 246 sector 6 | 0316208173 | Str. Fabricii, nr. 20, sector 6 |
| 27. | Kinderium - Before & After School Bucuresti | 0726177868 | Drumul Sarii, nr. 4A, sector 6 |
| 28. | Gradinita Nr. 230 sector 6 | 0217782808 | Aleea Potaisa, Nr. 3, sector 6 |
| 29. | Art\' Alegria - Gradinita, After School Bucuresti | 0736163236 | Intrarea Cascioarele, sector 6 |
| 30. | Neghinita - Centru de zi sector 6 | 0376203301; 0376203302 | Aleea Craiesti, Nr. 1, Sector 6 |
| 31. | Hands-On - Centru educational Bucuresti | 0725977815 | Bd. Iuliu Maniu, nr. 7, Cotroceni Business Center, Corp U, parter, sector 6 |
| 32. | Castelul Voinicilor - Cresa, Gradinita After School Militari sector 6 | 0760991977 | Str. Rosiori de Vede, nr. 12A, Sector 6 |
| 33. | Gradinita Nr. 210 sector 6 | 0217787215; 0771131259 | Aleea Arinis, nr. 1bis, sector 6 |
| 34. | Gradinita nr. 250 Sector 6 | 0316201847 | Str. Dealul Tugulea, nr. 35, sector 6 |
| 35. | Paradisul Piticilor - Gradinita sector 6 | 0214341214; 0214341213 | Str. Moinesti, nr. 9, sector 6 |
| 36. | Micul Lord Gradinita - Bucuresti | 0730093603; 0745101507 | Str. Lespezi, nr. 4 , sector 5, |
| 37. | Alexandra Kids, Gradinita, After School - Bucuresti | 0722151836; 0214206927 | Str. Petre Ispirescu, Nr. 69, Sector 5, Bucuresti |
| 38. | Gradinita Nr. 229 sector 6 | 0214443400; 0214443301 | Aleea Dealul Macinului, nr. 5, sector 6 |
| 39. | Gradinita nr. 208 sector 6 | 0217783025; 0741716 818 | Str. Valea Oltului, nr. 14, sector 6 |
| 40. | Gradinita Floarea Soarelui sector 5 | 0214202148 | Str. M?rgeanului, nr. 81, sector 5 |
| 41. | Gradinita Nr. 218 sector 6 | 0314344484 | Aleea Callatis, nr. 5, sector 6 |
| 42. | Adnan, Gradinita - Bucuresti | 0744606010; 0722205243 | Intr. Buturugeni, Nr. 7 Sector 5, Bucuresti |
| 43. | Scooby and Friends, Gradinita & After School - Bucuresti | 0214443344; 0766661001 | Str. Corcodusului, Nr. 9D, Sector 6, Bucuresti |
| 44. | Casa Montessori Gradinita - Bucuresti | 0726327159 | Str. Valea Oltului, nr. 31-35, sector 6, Bucuresti |
| 45. | Art & Play Kindergarten - Cresa, Gradinita Bucuresti | 0760670599; 0760670980 | Drumul Valea Danului, Nr. 22, Sector 6, Bucuresti |
| 46. | Clubul Buburuzelor, Gradinita sector 6 | 0769626385; 0766634420 | Drumul Valea Danului, Nr. 22, sector 6 |
| 47. | Waldorf Eruditio - Gradinita sector 6 | 0723346791 | Str. Orsova, nr. 77, sector 6 |
| 48. | Roro - Gradinita sector 6 | 0731339933; 0735550500 | Drumul Valea Argovei, nr. 3-9, Sector 6 |
| 49. | Gradinita Nr. 35 sector 5 | 0214207995 | Str. Crizantemelor, nr. 2, sector 5 |
| 50. | Little Team - Gradinita / After School Bucuresti | 0799774767 | Calea 13 Septembrie, nr. 191, sector 5 |
| 51. | WonderKids - Centru Educational Bucuresti | 0724258876 | Str. Crizantemelor, Nr. 7 sector 5 |
| 52. | Cresa Sf. Stelian sector 5 | 0214205630; 0736500544 | Str. Leresti, nr. 22, sector 5 |
| 53. | Alba ca Zapada, Gradinita, After School sector 6 | 0723737939; 0773967033; 0214330220 | Str. Cernisoara, Nr. 86A, Sector 6, Bucuresti |
| 54. | Nicholas Kindergarten - Gradinita Bucuresti | 0217786915; 0737504977; 0724809291 | Drumul Valea Cricovului, Nr. 41-47, Sector 6, Bucuresti |
| 55. | Gradinita nr. 195 Prichindel sector 6 | 0214304000 | Bd. Iuliu Maniu, nr. 73-75, sector 6 |
| 56. | Harap Alb - Cresa sector 6 | 0376203298 | Str. Estacadei, Nr. 13 A, Sector 6 |
| 57. | Dumbrava Minunilor - Gradinita sector 6 | 0217962807 | Str. Apusului, nr. 71-73 , sector 6 |
| 58. | Gradinita Nr. 178 Flori de Tei sector 5 | 0214234065 | Str. Iancu Jianu, Nr. 26, Sector 5 |
| 59. | Centrul Educational Babylove - After School Bucuresti | 0722542715 | Aleea Muza Adormita, Nr. 12, Sector 6 |
| 60. | Casuta Strumfilor - Gradinita Bucuresti | 0733194605 | Intr. Jarului, Nr. 3, Sector 6 |
| 61. | Joy - After-school Bucuresti | 0766055708 | Strada Valea Furcii, Nr. 56, sector 6 |
| 62. | Elly\'s - Before & After School sector 6 | 0763188937 | Str. Cetatea de Balta, nr. 155, Sector 6 |
| 63. | Dianva Kids - After School, Bucuresti | 0721959335 | Str. Orsova, Nr. 129, Sector 6 |
| 64. | Top Kids - Gradinita sector 5 | 0214237723; 0737215703 ; 0764392790 | Str. Sergent Gheorghe Donici, Nr. 26-28, Sector 5 |
| 65. | Gradinita nr. 271 sector 5 | 0214109024 | Bd. Eroii Sanitari, nr. 77, sector 5 |
| 66. | Sf. Andrei - Gradinita & After School Bucuresti | 0213116823; 0767817002 | Str. Bulgarus, Nr. 44, Sector 5, Bucuresti |
| 67. | Casuta Fermecata - Gradinita sector 5 | 0214562082; 0214562083 | Str. Amurgului, nr. 2, sector 5 |
| 68. | Asociatia Conil - Gradinita pentru copii cu nevoi speciale Bucuresti | 0784412222; 0217466704; 0735847526 | Str. Dr. Victor Poloni , nr 14, Sector 5, Bucuresti |
| 69. | GoodStart - Gradinita, After School sector 6 | 0723380015; 0744626716 | Prelungirea Ghencea, nr. 109 B, Sector 6 |
| 70. | Gradinita nr. 185 sector 5 | 0214200667; 0214205180 | Str. Garoafei, nr. 12, sector 5 |
| 71. | Gradinita nr. 72 sector 5 | 0214233920 | Str. Sergent Scarlat, nr. 19, sector 5 |
| 72. | LifeKids Club Afterschool | 0774458673 | Str. Crisul Repede, nr. 28, sector 6 |
| 73. | Planeta Copiilor - Gradinita Bucuresti | 0724212887 | Str. Gabriela Szabo, Nr. 3 - 11, Sector 6, Bucuresti |
| 74. | Kinderträume - Gradinita Bucuresti | 0744507988 | Splaiul Independentei, Nr. 195, sector 6, Bucuresti |
| 75. | Gradinita nr. 205 sector 5 | 0214233610 | Calea Ferentari, nr. 2, sector 5 |
| 76. | Maryl for kids - Gradinita, Cresa sector 5 | 0753157515 | Sos. Alexandriei, nr. 202 A, sector 5 |
| 77. | Mickey\'s House - Before & After School sector 6 | 0785539018 | Str. Pietrele Doamnei, nr. 18, Sector 6 |
| 78. | Electromagnetica - Gradinita sector 5 | 0218915699; 0214232110 | Calea Rahovei, nr. 266, sector 5 |
| 79. | Sfantul Nicolae, Gradinita & After School - Bucuresti | 0729611918 | Str. Sirenelor, Nr. 56-58, Sector 5, Bucuresti |
| 80. | Guguta - Cresa, Gradinita Bucuresti | 0769256924 | Drumul Manastirea Sihastria, Nr. 11A, sector 6, Bucuresti |
| 81. | Orhideea Kids - Gradinita & After School Bucuresti | 0748595311 | Calea Plevnei, Nr. 145B, sector 1, Bucuresti |
| 82. | Emerald - Gradinita Bucuresti | 0722493479 | Drumul Manastirea Sihastria, Nr. 13C, Sector 6, Bucuresti |
| 83. | Fulg de Nea - Gradinita sector 6 | 0212203132 | Sos. Ciurel, Nr. 9-11, sector 6 |
| 84. | Discover Me- Gradinita Bucuresti | 0747774809 | Str. Constantin Noica, Nr. 120, sector 6, Bucuresti |
| 85. | Clubul Micul Print - afterschool Bucuresti | 0733750795 | Str. Dr. Nicolae Staicovici, Nr. 51, Sector 5, Bucuresti |
| 86. | HappyKidz - Before & Afterschool sector 6 | 0726348591 | Str. Albitei, Nr. 2K, Sector 6 |
| 87. | Gradinita M.Ap.N. nr. 1 sector 6 | 0213196009; 0766298724 | Calea Plevnei, nr. 137B, sector 6 |
| 88. | International Kids Academy - Scoala Primara & Gradinita Rosu | 0723027226 | Str. Capitan Ion Ionescu, nr. 2, Rosu, judetul Ilfov |
| 89. | My Universe - Afterschool si gradinita, Bucuresti | 0788416164 | Str. Costache Negri, Nr. 9-11, sector 5 |
| 90. | Puisor - Gradinita Nr. 268 Bucuresti | 0214104010 | Str. Ion Creanga, Nr. 8, Sector 5, Bucuresti |
| 91. | Lilo Club - Cresa si gradinita Ilfov | 0765149367; 0747068562 | Intr. Nuferilor, nr. 1, Rosu, Chiajna, judetul Ilfov |
| 92. | Good Family - Gradinita Bucuresti | 0748224225 | Str. Nicolae Filimon, Nr. 73A, sector 6 |
| 93. | Smiley Kindergarten, Gradinita & After School - Bucuresti | 0314366138; 0722541744 | Str. Gabriel Cioran, nr. 6, sector 6, |
| 94. | Ana si Strumfii - After school Bucuresti | 0768185720; 0760193907 | Prelungirea Ghencea, nr. 255A, sector 6 |
| 95. | Paradisul Verde - Gradinita sector 5 | 0214232570 | Str. Pucheni, nr. 55, sector 5 |
| 96. | Kids Learning Center - centru cultural-educativ Ilfov | 0762669907; 0765440404 | Drumul Bacriului, nr. 101, Rosu - Chiajna, judetul Ilfov |
| 97. | Rainbow Kids - Gradinita si scoala primara Bucuresti | 0737081690; 0773349170 | Str. Ion Dragalina, Nr. 8, Sector 5, Bucuresti |
| 98. | Zum Zum - Gradinita Bucuresti | 0745685556; 0740704922 | Str. Vespasian, Nr. 37, Sector 1, Bucuresti |
| 99. | Olga Gudynn, Gradinita si Scoala Cotroceni - Bucuresti | 0734411332; 0214106995 | Str. Fagaras, Nr. 6, Sector 1, Bucuresti |
| 100. | David Mihai - Gradinita, Ilfov | 0767817041; 0766305131; 0765703632; 0784203520 | Drumul Bacriului, nr. 42 B, Rosu, com. Chiajna, judetul Ilfov |
| 101. | Magic World Kindergarten - Gradinita sector 6 | 0720777221 | Drumul Bacriului, nr. 37B, sector 6 |
| 102. | Copil Dorit - Gradinita Bucuresti | 0736820068; 0722166358 | Sos. Viilor, Nr. 33, Sector 5, Bucuresti |
| 103. | Ana Lugojana - Gradinite, Scoala Primara, Gimnaziala si After School Bucuresti | 0724342409 | Str. Constantin Miculescu, nr. 10, sector 5, Bucuresti |
| 104. | Edu Friends - Before & After School Bucuresti | 0783080096 | Str. Berzei, Nr. 5, Sector 1 |
| 105. | Maria Montessori Home - Gradinita si cresa, Ilfov | 0722599234 | Str. Vartejului, Nr. 7A, Voluntari, judetul Ilfov |
| 106. | Gradinita nr. 269 sector 5 | 0213354544 | Str. Constantin Miculescu, nr. 12, sector 5 |
| 107. | Taramul Cunoasterii - Cresa si Gradinita Bucuresti | 0724278826 | Str. Ioan G. Bibicescu, Nr. 11, Sector 1, Bucuresti |
| 108. | Gradinita nr. 73 sector 5 | 0213154355 | Splaiul Independentei, nr. 68, sector 5 |
| 109. | Carlida - Gradinita, After & Before School Bragadiru | 0722807069 | Str. Safirului, nr. 18C, Bragadiru, judetul Ilfov |
| 110. | Gradinita nr. 40 sector 6 | 0212203340 | Str. Tabla Butii, nr. 60, sector 6 |
| 111. | Alegra, Gradinita - Bucuresti | 0746167291 | Str. Finta, Nr. 25, Sector 6, Bucuresti |
| 112. | Sfantul Stelian - Gradinita, afterschool Ilfov | 0734087549; 0737012035 | Str. Marasesti, Nr. 2, Sat Rosu, Com. Chiajna |
| 113. | Gradinita nr. 244 sector 5 | 0723919980; 0214234008; 0769 444 163 | Str. Humulesti, nr. 31, sector 5 |
| 114. | Roxy Baby - Cresa Particulara Bucuresti | 0314254309; 0723274924 | Str. Slobozia, Nr. 29 , Sector 4, Bucuresti |
| 115. | Gradinita nr. 54 sector 5 | 0214231217 | Calea Ferentari, nr. 96, sector 5 |
| 116. | Gradinita din Povesti - Bucuresti | 0724987747 | Str. Costache Marinescu, Nr. 1A, Sector 1 |
| 117. | Gradinita MAPN Nr. 2 Bucuresti | 0213156889 | Str. Constantin Cristescu, nr. 5, sector 1 |
| 118. | Don Quijote - Afterschool Bucuresti | 0725737793 | Str. Ioan Slavici, nr. 4, sector 1 |
| 119. | Gradinita nr. 53 sector 5 | 0214232145 | Aleea Bacau, nr. 2A, sector 5 |
| 120. | Smart & Fun After School Crangasi | 0765518746; 0766891844 | Intr. Sipetului, Nr. 3, Sector 6 |
| 121. | Circle Time - Cresa, Gradinita Bragadiru | 0727585578 | Str. Margelelor, nr. 10F, Bragadiru, judetul Ilfov |
| 122. | Pitiricky - Clubul celor mici - Bucuresti | 0724648513 | Str. Ialomicioarei, Nr. 13, Sector 1, Bucuresti |
| 123. | Sfera Kinderzentrum - Gradinita, Before & After School Bucuresti | 0728024897 | Calea Grivitei, nr. 194, sector 1 |
| 124. | Iris Smart - After, Before School Bucuresti | 0765263865 | Str. Pucheni, nr.123 A , Sector 5 |
| 125. | Children\'s Joy, Gradinita & After School - Bucuresti | 0731258277; 0754317732 | Str. Gramont, Nr. 3, Sector 4, Bucuresti |
| 126. | Teddybar - Gradinita, Bucuresti | 0212224455; 0723048602 | Str. Soimarestilor, nr. 29, sector 1, Bucuresti |
| 127. | Creative Minds Kindergarten - Gradinita Bucuresti | 0726152551 | Str. Alexandru Deparateanu, nr. 38, sector 1 |
| 128. | Ray of Light Montessori - Gradinita, Bucuresti | Str. Gladiolelor, Nr. 15, sector 4 | |
| 129. | Lumea Piticilor - Gradinita, Ilfov | 0723660168 | Str. Crinului, nr. 37A, Chiajna, judetul Ilfov |
| 130. | Gradinita nr. 206 - Gradinita cu program prelungit Bucuresti | 0212229287 | Str. Constantin Disescu, nr. 37, sector 1 |
| 131. | Buna Vestire - Gradinita, After School sector 4 | 0787435172 | Str. Episcopul Chesarie, nr. 9, Sector 4 |
| 132. | Tara lui Piticot - Cresa, Gradinita Bragadiru | 0721445694; 0770276743 | Str. Crisul Repede, nr. 33, Bragadiru, judetul Ilfov |
| 133. | Bwell Education School - Afterschool Ilfov | 0752272566 | Str. Margelelor, Nr. 12, Bragadiru, judetul Ilfov |
| 134. | Fridolin - Gradinita, Scoala Germana Bucuresti | 0723219616; 0723584872 | Str. Temisana, Nr. 1, Sector 1, Bucuresti |
| 135. | Gradinita Nr. 3 cu Program Prelungit Bragadiru | 0214480386 | Str. Coralului, Nr. 8, Bragadiru, judetul Ilfov |
| 136. | CoolTure MindS - After School Bucuresti | 0743359307 | Bd. Alexandru Ioan Cuza, nr. 37, Sector 1 |
| 137. | Waldorf Christophori - Gradinita Bucuresti | 0770861602 | Str. Putul cu Plopi, Nr. 8, (langa Parcul Cismigiu) - sector 1, Bucuresti |
| 138. | Aventura Kids Club After School Chiajna | 0740788017; 0741130233 | Str. Acvilei, Nr.10, Rosu, Chiajna, judetul Ilfov |
| 139. | Genius - Afterschool Bucuresti | 0745045180 | Intrarea Craiovei, Nr. 21, Sector 6 |
| 140. | Gradinita Nr. 248 Bucuresti | 0212224120 | Str. Artur Vartejeanu, Nr. 15, Sector 1 |
| 141. | Piticii Nostri - Gradinita, Cresa, After School Bragadiru | 0749177710 | Str. Smardan, Nr. 10, (Cartier Independentei, Bragadiru), Bragadiru, judetul Ilfov |
| 142. | Andreea\'s Kindergarten - Gradinita Bragadiru | 0768390146 | Str. Rasaritului, Nr. 2-4, Bragadiru, judetul Ilfov |
| 143. | Pisicile Aristocrate - Gradinita sector 4 | 0213350635; 0213363680 | Bd. Regina Maria, nr. 28-30, Sector 4 |
| 144. | LTN Liceul Teoretic National - Gradinita, Gimnaziu, Liceu - Bucuresti | 0720000171; 0732151931 | Str. Dr. Iacob Felix, nr. 49, Sector 1, Bucuresti |
| 145. | Kinderakademie - Gradinita & After School Bucuresti | 0724661760; 0727427004 | Str. Sfintii Voievozi, Nr. 28, Sector 1, Bucuresti |
| 146. | Gradinita nr. 34 sector 5 | 0214504937 | Str. Lacul Bucura, nr. 26, Sector 5 |
| 147. | Gradinita Nr. 168 sector 5 | 0213363515 | Sos. Viilor, nr. 99, sector 5 |
| 148. | Lumea lui Momo - Gradinita Bucuresti | 0748055255 | Str. Ipotesti, Nr. 23, Sector 4 |
| 149. | Kids Joy Land - Gradinita si after school, Ilfov | 0721216194 | Str. 1 Decembrie 1918, Nr. 181 A - Sediul 1, Comuna Chiajna, judetul Ilfov |
| 150. | Prikindel - Cresa, Gradinita & After School - Bucuresti | 0314059269; 0722522198 | Str. Sf. Ilie, nr. 5, sector 4, |
| 151. | Aristokids, Gradinita & After School - Bucuresti | 0722648885 | Str. Lebedei, Nr. 25, Sector 1, Bucuresti |
| 152. | Gradinita nr. 97 Bucuresti | 0212241162 | Str. Islaz, nr. 13, Sector 1 |
| 153. | Innababy - Cresa, gradinita, afterschool Bucuresti | 0722403847 | Str. Tintasului, Nr. 3, Sector 1, Bucuresti |
| 154. | Kids Club Militari, Gradinita & After School - Bucuresti | 0314362520; 0728200900 | Str. Rezervelor, Nr. 91, Sector 6, Bucuresti |
| 155. | Gradinita Kids Club Militari Bucuresti | 0314362520; 0728200900 | Str. Rezervelor, Nr. 91, Sector 6, Balotesti |
| 156. | Jolly Pepe - Club educational pentru copii si adulti, Before&After School sector 4 | 0748080088 | Str. Mitropolit Grigore, nr. 4A, parter, sector 4 |
| 157. | Onix Junior - Cresa /Gradinita Ilfov | 0784459449 | Str. Plevnei, nr. 18A, Bragadiru, judetul Ilfov |
| 158. | Big Smile - Gradinita, scoala primara, After School Bucuresti | 0722557333 | Str. Cutitul de Argint, nr. 74, sector 4, Bucuresti |
| 159. | Monteclaris - Gradinita, before si afterschool Bucuresti | 0724671560; 0784606075 | Str. Maria Hagi Moscu, Nr. 29, Sector 1 |
| 160. | Maria Ward - Gradinita sector 4 | 0722789787 | Calea Serban Voda, nr. 223, sector 4 |
| 161. | Gradinita nr. 245 sector 5 | 0214237424 | Str. Tunsu Petre, nr. 9, sector 5 |
| 162. | Cami - Gradinita particulara si afterschool Bucuresti | 0757402573 | Str. Carol Knappe, nr. 45,sector 1, Bucuresti |
| 163. | Elite - Cresa, Gradinita Bucuresti | 0766687691 | Str. Lanariei, Nr. 136, Sector 4, Bucuresti |
| 164. | Cami Gradinita & After School - Bucuresti | 0757402573; 0749018642 | Str. Carol Knappe, Nr. 45, Sector 1, Bucuresti |
| 165. | Cambridge Success - Gradinita Bucuresti | 0764474152 | Str. Rezervelor, Nr. 24C, Sector 6 |
| 166. | Young Academics - AfterSchool Bucuresti | 0755095974 | Str. Trotusului, nr. 39, sector 1 |
| 167. | Gradinita Bucurie Mare Bragadiru | 0724100114 | Str. Epocii, nr. 6, Bragadiru, judetul Ilfov |
| 168. | Academia Gifted International, Gradinita & After School - Bucuresti | 0724381661; 0722277090 | Str. Sold. Simion Stefan, nr. 39, sector 4, Bucuresti |
| 169. | Maria International School - Gradinita, Scoala primara si afterschool Bucuresti | 0730432092 | Str. Piata Amzei, Nr. 6, Sector 1, Bucuresti |
| 170. | Creative Kidz - Afterschool Rosu | 0735246217 | Str. Gospodari, Nr. 46, Sat Rosu, Com. Chiajna, judetul Ilfov |
| 171. | Scufita Rosie - Gradinita sector 4 | 0766541207 | Calea Serban Voda, nr. 170 , sector 4 |
| 172. | Oskar - Before and After School Piata Victoriei | 0730948470 | Str. Monetariei, Nr. 14, Sector 1, Bucuresti |
| 173. | Melba - Centru Educational Bucuresti | 0722461015 | Str. Lanariei, Nr. 117 , Sector 4, Bucuresti |
| 174. | Happy Kiddo - Gradinita, Cresa si After School | 0763033010 | Str. Padurii, Nr. 5, Sat Dudu, Com. Chiajna, judetul Ilfov |
| 175. | Oskar - Before&After School Bucuresti | 0734040227; 0730948470 | Str. Monetariei, nr. 12, sector 1 |
| 176. | Paradisul Copiilor - Gradinita & After School Bucuresti | 0730007062 | Str. G-ral. Haralambie Nicolae, Nr. 38, Sector 4, Bucuresti |
| 177. | The Little Artist - Gradinita Bucuresti | 0737365283; 0743814767; 0722680765 | Str. Ing. Zablovschi, Nr. 7, Sector 1, Bucuresti |
| 178. | Genius Academy - Cresa, Gradinita , Scoala Primara si After School Bucuresti | 0724111678; 0744638435 | Calea Serban Voda, nr. 145, sector 4 |
| 179. | Gradinita Quiz | 0751425562 | Str. Abrud, nr. 134-136, sector 1 |
| vezi mai multe | |||
| 1. | Centrul medical PoeMedica Bucuresti | 0214139387; 0217461632; 0757109599 | Bd. 1 Mai, nr. 24, sector 6, |
| 2. | Centrul medical Ghencea Medical Center- Bucuresti | 0219838; 0752493636 ; 0756045204 | Bd. Ghencea , Nr. 43 B, sector 6, Bucuresti |
| 3. | Clinica Medicala Rosana Medical-Bucuresti | Tel. 0214140220; 0372734300 | Str. Cetatea Histria , nr. 12, sector 6, |
| 4. | Doris - centru de testare COVID 19 Bucuresti | 0732684319 | Bd. Iuliu Maniu, nr. 11, sector 6, |
| 5. | Centrul Medical Gorjului- Bucuresti | 0214341557 | Bd. Iuliu Maniu, nr. 65, sector 6 , |
| 6. | Polimed Apaca - Policlinica, Bucuresti | 0214348003; 0214348026; 0213113810 | Str.Dezrobirii, Nr. 13, Sector 6, Bucuresti |
| 7. | Clinica Lil Med-Bucuresti | 0214206055; Fax:0214212231 | Str. Suzana , nr. 7, corp 1,sector 5, |
| 8. | Scanmed - Clinica Medicala Bucuresti | 0219215; 0317100141; 0729202202 | Sos. Panduri, nr. 71, Parter, Sector 5 |
| 9. | Lifeline Services-Bucuresti | 0212221651; 0722279756 | Sos. Virtutii, nr. 19 D, Virtutii Business Center, Sector 6, |
| 10. | Policlinica Regina Maria - Lujerului | 0219268 | Bd. Iuliu Maniu, nr. 51, sector , |
| 11. | Centrul Medical Panduri-Bucuresti | 0731806118; 0219901 | Str. Dr. Ioan Atanasiu, nr. 34, sector 5, |
| 12. | Policlinica Regina Maria - Cotroceni | 0219268 | Sos. Cotroceni, nr. 20, sector 6, |
| 13. | Clinica Doctor Acasa-Bucuresti | 0784276950; 0788629415; 0788676433 | Str.Prelungirea Ghencea, nr. 53 bis, lot1, bloc F3, scara A, etaj 1, sector 6, |
| 14. | Institutul National pentru medicina complementara si alternativa | Tel.0783002934; 0214102419 | Sos. Panduri , nr. 22, sector 5, |
| 15. | Spitalul Clinic \"Prof. Dr. Theodor Burghele\" + Ambulatoriu | Tel.0214106910; Fax.0214111055 | Sos. Panduri, nr. 20, sector 5, |
| 16. | Ais companie medical farmaceutica | 0219909 | Sos. Alexandriei , nr. 144, sector 5, Bucuresti |
| 17. | Clinica de Excelenta in Patologia Somnului Somnolog-Bucuresti | 0213118822; 0784442277 | Str.Dr.Leonte Anastasievici, nr.11, sector 5, |
| 18. | Spitalul Clinic \"Prof. Dr. Theodor Burghele\" + Ambulatoriu | Tel. 0214106910; Fax 0214111055 | Sos. Panduri nr. 20, sector 5, |
| 19. | Centru Medical Mediclass - Cotroceni | 0214102727; 0214120128; 0214120129 | Str. Elefterie, nr. 47-49 (Complex Comercial Cotroceni), sector 5, |
| 20. | Centrul Medical Apolo- Bucuresti | Tel. 0214101770; 0214101615; 0744377034 | Str. Coriolan Caius Marcius, nr. 41 (lang? benzinaria MOL Tudor Vladimirescu), sector 5, |
| 21. | Policlinica Rahova-Bucuresti | 0214232080; 0214232081; 0214232082 | Str.Malcoci., nr. 4, sector 5 , Bucuresti |
| 22. | Clinica Medicover-Bucuresti | 0219896 | Str. Sergent Constantin Ghercu,, nr. 1A, sector 1, |
| 23. | Spitalul Universitar de Urgenta Bucuresti - SUUB | Tel. 0213180519; Fax 0213180554 | Splaiul Independentei, nr. 169, sector 5 , |
| 24. | Spitalul Universitar de Urgenta Bucuresti - SUUB | Tel. 0213180519; 0213180554 | Splaiul Independentei nr. 169, sector 5, |
| 25. | Centrul Medical Brancusi | 0319119 | Str. Valea Doftanei, Nr. 113, Sector 6 |
| 26. | Ambulatoriul Spitalului Universitar de Urgenta | Tel. 0213180519/29; 0212026147 | Splaiul Independentei, nr. 169, sector 5 , |
| 27. | Policlinica pentru copii Regina Maria - Opera | 0219268 | Str. Costache Negri, nr. 1-5, sector 5, |
| 28. | Spitalul Universitar de Urgenta Militar Central Dr. Carol Davila | Tel. 0213193052/60; Fax.0213193030 | Str. Calea Plevnei, nr. 134, sector 1, Bucuresti |
| 29. | RomGerMed - Clinica Medicala Bucuresti | Tel. 0213110075; 0727999602 | Calea Plevnei, 137 C, sector 6, |
| 30. | Clinica Sanamed-Bucuresti | 0219442 | Calea Plevnei, Nr. 159,corpul B ,Sector 6, |
| 31. | Spitalul Clinic CF Witting + ambulatoriu | Tel. 0213129530; 0213129531; 0213176280 | Calea Plevnei nr. 142-144, sector 6, |
| 32. | Prof. Dr. Panait Sirbu, Spitalul Clinic de Obstetrica-Ginecologie Bucuresti | 0213161281; 0213161283 | Calea Giulesti, nr. 5, sector 6 , |
| 33. | Spitalul Clinic de Nefrologie - Dr. Carol Davila | Tel. 0213189184 (centrala); Fax 0213189184 | Calea Grivitei nr. 4, sector 1, |
| 34. | Dr. Carol Davila, Spitalul Universitar de Urgenta Militar Central Bucuresti + ambulatoriu | Tel. 0213193052/60; 0213193030 | Str. Calea Plevnei , nr. 134, sector 1, |
| 35. | Prof. Dr. Panait Sirbu, Spitalul Clinic de Obstetrica-Ginecologie Bucuresti | 0213161281; 0213161283; 0213161287 | Calea Giulesti, nr. 5, sector 6, bucuresti |
| 36. | Imuno Medica - Centrul de preventie, diagnostic si tratament Sf. Ioan Botezatorul | 0314050350; 0771771333 | Str. Virgiliu nr. 81, sector 1 |
| 37. | Centrul Medical Nicomed-Bucuresti | 0216372458; 0731338524 | Calea Crangasi, nr. 23, ap.1, sector 6, |
| 38. | Centrul Medical Nicomed | 0216372458; 0731338524 | Calea Crangasi nr. 23, bl. 13, sc. 2, ap. 1, sector 6, |
| 39. | Centrul Medical M Hospital-Bucuresti | Tel.0219136 | Str. Witing, nr. 10-12, sector 1 , |
| 40. | Centrul Medical M Hospital-Bucuresti | 0219136; 0744812330; 0213162049 | Str.Witting, nr. 10-12, sector 1, Bucurestu |
| 41. | Centrul Medical Focus | 0753035038 | Str. Dinicu Golescu, nr. 23-25 , sector 1, |
| 42. | PriMed - Clinica Medicala Bucuresti | 0219986; 0720034774 | Bd. Dinicu Golescu, nr.10, sector 1 |
| 43. | Spitalul Clinic de Chirurgie Oro-Maxilo-Faciala -Bucuresti | Tel/Fax. 0213158855; 0213155217 | Calea Plevnei, nr. 17-21, sector 1 , |
| 44. | Spitalul Clinic de Chirurgie Oro-Maxilo-Faciala \"Prof. Dr. Dan Theodorescu\" | Tel/Fax. 0213158855; 0213155217 | Calea Plevnei, nr. 17-21, sector 1, |
| 45. | Clinica Medicala Data Plus-Bucuresti | 0213131491 | Str.Cobalcescu Grigore, nr. 35,sector 1, |
| 46. | RomGerMed - Clinica Medicala Bucuresti | Tel. 0213110075; 0725302475 | Calea Plevnei, nr. 137C, sector 6, |
| 47. | Rytmomed - Clinica medicala Bucuresti | 0737181511 | Str. Popa Tatu, nr. 35, Sector 1 |
| 48. | Miramed Plus - Servicii medicale la domiciliu Bucuresti, Ilfov | 0773760078 | Str. Safirului, nr. 28, Bragadiru, judetul Ilfov |
| 49. | Ioana Medical Center | 0212233810; 0786486156 | Bd. Alexandru Ioan Cuza, nr 81, et 1, sector 1 |
| 50. | Centrul Medical Ioana-Bucuresti | 0212233810; 0786486156 | Str. Alexandru Ioan Cuza, nr. 81,, et. 1,sector 1, Bucuresti |
| 51. | Marius Nasta, Institutul de Pneumoftiziologie Bucuresti | 0213356910; Fax 0213373801 | Sos.Viilor , nr. 90, sector 5 , |
| 52. | Marius Nasta, Institutul de Pneumoftiziologie + Ambulatoriu Bucuresti | 0213356910; 0213373801 | Sos.Viilor nr. 90, sector 5 , |
| 53. | Clinica Medicala Sfantul Spiridon Vechi-Bucuresti | 0213351378; 0213351379; 0787820066 | Piata Natiunilor Unite, nr 5-7, sector 4, Bucuresti |
| 54. | Centrul Medical Sanador-Bucuresti | Tel. 0219699 | |
| 55. | Centrul Medical Sana-Bucuresti | 0212128222 | Str. Dr. Sergiu Dumitru, nr. 3, sector 1, |
| 56. | Spitalul Clinic de Nefrologie - Dr. Carol Davila | Tel. 0213189184 (centrala) | Calea Grivitei, nr. 4, sector 1, |
| 57. | Policlinica Eforie-Bucuresti | Tel. 0213139922 | Str. Eforie, nr. 4, sector 5, |
| 58. | Centrul de Transfuzie Sanguina Bucuresti | Tel. 0314053660; 0314053661; 0314053662 | Str. Constantin Caracas nr. 2-8, sector 1, |
| 59. | Centrul Medical Bio Terra Med- Bucuresti | 0726243473; 0724262110; 0774022961 | Calea Grivitei, nr. 3, Sector 1, |
| 60. | Spitalul de Urgenta de Chirurgie Plastica, Reparatorie si Arsuri-Bucuresti | 0212240946; 02.2240947; Tel/Fax 0212241800 | Calea Grivitei , nr. 218, sector 1 , |
| 61. | Spitalul de Urgenta de Chirurgie Plastica, Reparatorie si Arsuri | 0212240946; 0212240947; Tel/Fax 0212241800 | Calea Grivitei nr. 218, sector 1, |
| 62. | Institutul National de Recuperare, Medicina Fizica si Balneologie | Tel.0311302300 | Str. Sf. Dumitru, nr. 2 - ambulatoriu de recuperare clinica I si II, sector 3, |
| 63. | Spitalul Clinic Sfanta Maria + ambulatoriu-Bucuresti | Tel. 0212223550; 0212223553 | Bd. Ion Mihalache nr. 37-39, sector 1, |
| 64. | Societatea Civila Medicala Doctor Popescu Daniel si Asociatii | Tel/Fax 021.336.55.03 | Calea Serban Voda, nr. 211, sector 4 , |
| 65. | Spitalul Clinic Sfanta Maria + ambulatoriu | Tel. 0212223553; 0212223550 | Bd. Ion Mihalache, nr. 37-39, sector 1, |
| vezi mai multe | |||
| 1. | Scoala Gimnaziala Nr. 164 Sfantul Calinic de la Cernica - Bucuresti | 0214131160 | Str. Pravat, Nr. 22, Sector 6, Bucuresti |
| 2. | Scoala Gimnaziala Nr. 197 - Bucuresti | 0214134330; 0786332028 | Str. Obcina Mare, Nr. 2, Sector 6, Bucuresti |
| 3. | Colegiul Tehnic Gheorghe Asachi - Bucuresti | 0214130438; 0787858675; 0214134040 | Aleea Pravat, Nr. 24, sector 6 |
| 4. | Adrian Paunescu, Scoala Gimnaziala - Bucuresti | 0214133020 | Aleea Valea Prahovei, Nr. 1, Sector 6, Bucuresti |
| 5. | Grigore Moisil, Colegiu National - Bucuresti | 0214132696; 0768191964 | Bd. Timisoara, Nr. 33, Sector 6, Bucuresti |
| 6. | Scoala Gimnaziala Nr. 59 | 0314252104 | Str. Vladeasa, Nr. 9, Sector 6, Bucuresti |
| 7. | Scoala Gimnaziala Nr. 311- Bucuresti | 0214133440 | Str. Garleni, Nr. 10, Sector 6, Bucuresti |
| 8. | Liceul Tehnologic Sfantul Antim Ivireanu - Bucuresti | 0314380278 | Aleea Poiana Muntelui, Nr. 1, Sector 6, Bucuresti |
| 9. | Orizont, Scoala Gimnaziala Nr. 193 - Bucuresti | 0214132355 | Str. Mihaela Ruxandra Marcu, Nr. 3, Sector 6, Bucuresti |
| 10. | Colegiul Tehnic Petru Maior - Bucuresti | 0736627798 | Bd. Timisoara, Nr. 6, Sector 6 |
| 11. | Eugen Lovinescu, Liceu teoretic - Bucuresti | 0214132947; 0214134195 | Str. Valea lui Mihai, Nr. 6, Sector 6, Bucuresti |
| 12. | Scoala Gimnaziala Nr. 169 - Bucuresti | 0214132431 | Str. Pascani, Nr. 2, Sector 6, Bucuresti |
| 13. | Tudor Vladimirescu, Colegiu National - Bucuresti | 0214103831 | Bd. Iuliu Maniu, Nr. 15, Sector 6, Bucuresti |
| 14. | Gh. Airinei, Colegiul Tehnic de Posta si Telecomunicatii - Bucuresti | 0214134645 | Str. Romancierilor, Nr. 6, Sector 1, Bucuresti |
| 15. | Elena Cuza, Colegiul National - Bucuresti | 0214132495; 0214134768 | Str. Pestera Scarisoara, nr. 1, sector 6, Bucuresti |
| 16. | Scoala Gimnaziala Nr. 142 - Bucuresti | 0314040196; 0214300511 | Str. Centurii, Nr. 4, Sector 6, Bucuresti |
| 17. | Sfintii Constantin si Elena, Scoala Gimnaziala Nr. 176 - Bucuresti | 0214442515 | Aleea Lunca Cernei, Nr. 3, Sector 6, Bucuresti |
| 18. | Colegiul Economic Costin C. Kiritescu - Bucuresti | 0314016830 | Str. Pestera Dambovicioarei, Nr. 12, Sector 6, Bucuresti |
| 19. | Scoala Gimnaziala Nr. 279 - Bucuresti | 0217773164 | Prelungirea Ghencea, Nr. 24, Sector 6, Bucuresti |
| 20. | Scoala Gimnaziala Nr. 117 | 0214302040; 0784236131 | Str. Fabricii, Nr. 22, Sector 6, Bucuresti |
| 21. | Ion Barbu, Liceu Teoretic - Bucuresti | 0214102332 | Str. Nabucului, Nr. 18, Sector 5, Bucuresti |
| 22. | Scoala Gimnaziala Nr. 156 - Bucuresti | 0314040192 | Str. Dealul Tugulea, Nr. 35, Sector 6 |
| 23. | Stefan Odobleja, Liceu teoretic - Bucuresti | 0214112213 | Str. Dorneasca, Nr. 7A, Sector 5, Bucuresti |
| 24. | Scoala Gimnaziala Nr. 206 - Bucuresti | 0217773980 | Aleea Arinis, Nr. 5, Sector 6, Bucuresti |
| 25. | Scoala Gimnaziala nr. 143 - Bucuresti | 0214202440 | Str. Banu Maracine, Nr. 16, Sector 5 |
| 26. | Scoala Gimnaziala Nr. 309 - Bucuresti | 0314190747; 0214340426 | Str. Moinesti, Nr. 9, Sector 6 |
| 27. | Sfantul Andrei, Scoala Gimnaziala 172 - Bucuresti | 0217785959 | Aleea Parva, Nr. 3- 5, Sector 6, Bucuresti |
| 28. | Scoala Gimnaziala Speciala Constantin Paunescu Bucuresti | 0214442288 | Aleea Istru, Nr. 4, Sector 6 |
| 29. | Scoala Profesionala Speciala pentru Deficienti de Auz Sfanta Maria - Bucuresti | 0214440331; 0217787655 | Aleea Istru, Nr. 6, Sector 6 |
| 30. | Constantin Brancusi, Scoala Gimnaziala Nr. 174 - Bucuresti | 0314052556 | Str. Rosia Montana, Nr. 41, Sector 6, Bucuresti |
| 31. | Atlas, Scoala postliceala - Bucuresti | 0214400708 | Bd. Timisoara, Nr. 60D, Sector 6, Bucuresti |
| 32. | Scoala Gimnaziala Nr. 144 - Bucuresti | 0214442093 | Str. Floarea de Gheata, Nr. 1B, Sector 5, Bucuresti |
| 33. | Scoala Gimnaziala Regele Mihai I - Bucuresti | 0311011373 | Str. Dezrobirii, Nr. 41, Sector 6 |
| 34. | I.G. Duca, Scoala Gimnaziala 146 - Bucuresti | 0214100881 | Sos. Panduri, Nr. 42, Sector 5, Bucuresti |
| 35. | UCECOM, Colegiul Spiru Haret - Bucuresti | 0213166195; 0213166196 | Str. Economu Cezarescu, Nr. 47-59, Sector 6, Bucuresti |
| 36. | Scoala Gimnaziala Nr. 124 - Bucuresti | 0214206365 | Str. Margeanului, Nr. 25A, Sector 5, Bucuresti |
| 37. | Scoala Gimnaziala Nr. 115 | 0213163793; 0786401588 | Calea 13 Septembrie, Nr. 177, Sector 5, Bucuresti |
| 38. | Ion Dumitriu, Scoala Gimnaziala Nr. 157 - Bucuresti | 0214340401 | Str. Hanul Ancutei, Nr. 4, Sector 6, Bucuresti |
| 39. | Dimitrie Gusti, Liceu Tehnologic - Bucuresti | 0214562050 | Str. Samuil Vulcan, Nr. 8, Sector 5, Bucuresti |
| 40. | Liceul cu Program Sportiv Mircea Eliade - Bucuresti | 0213141389 | Splaiul Independentei, Nr. 315-317, Sector 6 |
| 41. | Scoala Gimnaziala Nr. 126 | 0214203645 | Str. Leresti, Nr. 12, Sector 5, Bucuresti |
| 42. | Smart Koala Kids Club | 0771638419; 0771638425 | Calea 13 Septembrie, Nr.126A, bl.P43, sc.1, parter, ap. 2, sector 5, Bucuresti |
| 43. | Regina Maria, Scoala Gimnaziala Nr.198 - Bucuresti | 0214340102; 0314040194 | Str. Apusului, Nr. 71-73, Sector 6, Bucuresti |
| 44. | Santimbreanu Mircea, Scoala Gimnaziala Nr. 139 - Bucuresti | 0214206795 | Sos. Alexandriei, Nr. 21, Sector 5, Bucuresti |
| 45. | Scoala Gimnaziala Nr. 131 - Bucuresti | 0214203905 | Str. Gutuilor, Nr. 1, Sector 5, Bucuresti |
| 46. | Scoala Gimnaziala Nr. 280 - Bucuresti | 0214234068 | Str. Sergent Gheorghe Donici, Nr. 4A, Sector 5 |
| 47. | Ada School - Bucuresti | 0723595916; 0721424485 | Dr. Carol Davila, Nr. 101, Bucuresti |
| 48. | Scoala Gimnaziala Grigore Tocilescu - Bucuresti | 0214231140 | Str. Grigore Tocilescu, Nr. 20, sector 5 |
| 49. | Dimitrie Bolintineanu, Liceu Teoretic - Bucuresti | 0214234060 | Calea Rahovei, Nr. 315, Sector 5, Bucuresti |
| 50. | Sfanta Treime, Scoala Gimnaziala - Bucuresti | 0376203770 | Aleea Ghirlandei, Nr. 7, Sector 6, Bucuresti |
| 51. | Planeta Copiilor , Scoala Primara si Gimnaziala - Bucuresti | 0724212970; 0724212887; 0214330263 | Gabriela Szabo, Nr. 3 - 11, Sector 6, Bucuresti |
| 52. | Scoala Gimnaziala Ion I. C. Bratianu - Bucuresti | 0214233390 | Str. Amurgului, Nr. 35, Sector 5 |
| 53. | Alexandra Kids, Gradinita, After School - Bucuresti | 0788461573; 0214206927 | Calea Rahovei, Nr. 266-268, Sector 5, Bucuresti |
| 54. | Complex Scoalr Cronos Bucuresti | 0212225050; 0758107705 | Str. Chibzuintei, Nr. 15-17, Sector 1, Bucuresti |
| 55. | Scoala Gimnaziala Nr. 150 - Bucuresti | 0214108408 | Bd. Eroii Sanitari, Nr. 29-31, Sector 5, Bucuresti |
| 56. | ForEvEr - After school, Bucuresti | 0733543937 | Strada Drumul Valea Larga, nr. 24A, sector 6 |
| 57. | Scoala de Aplicatie pentru Ofiteri a Jandarmeriei Romane Mihai Viteazul | 0217696120; 0214349131; 0757099804 | Str. 1 Decembrie 1918, Nr. 2-4, Sat Rosu, judetul Ilfov |
| 58. | Scoala Gimnaziala Nr. 128 - Bucuresti | 0214102219 | Str. Ion Creanga, Nr. 6, Sector 5, Bucuresti |
| 59. | Scoala Gimnaziala Luceafarul - Bucuresti | 0214230480 | Str. Doina, Nr. 1, sector 5 |
| 60. | Alegra - After-school Bucuresti | 0729987920; 0726487124 | Str. Portaresti, Nr. 11, etaj 1, sector 6 |
| 61. | Scoala Gimnaziala Nr. 168 - Bucuresti | 0314326090 | Str. Alizeului, Nr. 9, Sector 6, Bucuresti |
| 62. | Uruguay, Scoala Gimnaziala - Bucuresti | 0216370361 | Str. Virgiliu, Nr. 40, Sector 1, Bucuresti |
| 63. | Scoala Gimnaziala Nr. 167 - Bucuresti | 0212205770 | Calea Crangasi, Nr. 140, Sector 6, Bucuresti |
| 64. | Phoenix, Liceu Teoretic - Bucuresti | 0214341364; 0770911516 | Virgiliu, Nr. 40, Sector 1, Bucuresti |
| 65. | Fridolin, scoala primara si gimnaziala germana - Bucuresti | 0723584872 (Adina Stoenescu); 0722502522 (Christian Comsa) | Fagaras, Nr. 9-13, Sector 1, Bucuresti |
| 66. | Scoala Gimnaziala Nr. 127 - Bucuresti | 0214231092 | Str. Muntii Carpati, nr. 68, sector 5 |
| 67. | Colegiul Tehnic de Industrie Alimentara Dumitru Motoc - Bucuresti | 0215552876 | Str. Spatarul Preda, Nr. 16, sector 5 |
| 68. | Maryland, Scoala Primara - Drumul Taberei, Bucuresti | 0722418104 (Cristina Ignat Varlam); 0722257343 (Claudiu Ignat Varlam) | Drumul Ghindarilor, Nr.150-154, Sector 5, Bucuresti |
| 69. | Colegiul Tehnic Dinicu Golescu - Bucuresti | 0216370484 | Calea Giulesti, Nr. 10, Sector 1 |
| 70. | Doamna Chiajna, Liceul Tehnologic - Rosu | 0730614950; 0214360404 | Str. 1 Decembrie 1918, Nr. 90, Rosu, judetul Ilfov |
| 71. | Miguel de Cervantes, Liceul Bilingv - Bucuresti | 0213149311 | Calea Plevnei, Nr. 38-40, Sector 1, Bucuresti |
| 72. | Viilor, Colegiul Economic - Bucuresti | 0213160973; 0213160966 | Sos. Viilor, Nr. 38, Sector 5, Bucuresti |
| 73. | Scoala Gimnaziala Nr. 125 - Bucuresti | 0217765685 | Sos. Bucuresti-Magurele, Nr. 45, sector 5 |
| 74. | Carol I, Colegiu Tehnic - Bucuresti | 0212202750 | Str. Porumbacu, Nr. 52, Sector 6, Bucuresti |
| 75. | Scoala nr. 147 Petrache Poenaru - Bucuresti | 0214233987; 0214233991 | Str. Bacau, Nr. 1, sector 5 |
| 76. | George Calinescu, Scoala Gimnaziala 148 - Bucuresti | 0214232889 | Str. Bachus, Nr. 42, Sector 5, Bucuresti |
| 77. | Scoala Gimnaziala Nr. 1 - Sfintii Voievozi | 0213127572; 0213164206; 0213179916 | Str. Atelierului, Nr. 25, Sector 1, Bucuresti |
| 78. | Marin Preda, Liceu teoretic - Bucuresti | 0212202344 | Str. Rusetu, Nr. 17, Sector 6, Bucuresti |
| 79. | Petru Poni, Liceul Tehnologic - Bucuresti | 0213199316 | Bd. Preciziei, Nr. 18, Sector 6, Bucuresti |
| 80. | Geo Bogza, Scoala Gimnaziala Nr. 170 - Bucuresti | 0212223072 | Str. Barbu Lautaru, Nr. 4, Sector 1, Bucuresti |
| 81. | Gheorghe Lazar, Colegiu National - Bucuresti | 0213134756 | Bd. Regina Elisabeta, Nr. 48, Sector 5, Bucuresti |
| 82. | Iosif Sava, Scoala Gimnaziala de Arte - Bucuresti | 0212312470 | Str. Constantin Disescu, Nr. 37, Sector 1, Bucuresti |
| 83. | Liceul Teoretic National | 0720000171 | Str. Buzesti, Nr. 14-18; Sector 1, Bucuresti |
| 84. | Scoala Gimnaziala Nr.163 - Bucuresti | 0212201018 | Calea Giulesti, Nr. 54, Sector 6, Bucuresti |
| 85. | I.N.Socolescu, Colegiul Tehnic de Arhitectura si Lucrari Publice - Bucuresti | 0213108958 | Occidentului, Nr. 12, Sector 1, Bucuresti |
| 86. | Ion Neculce, Colegiul National Bucuresti | 0212224145; 0212224179 | Str. Ion Neculce, Nr. 2, Sector 1, Bucuresti |
| 87. | Nicolae Titulescu, Scoala Gimnaziala - Bucuresti | 0212236393 | Sos. Nicolae Titulescu, nr. 50-52, Sector 1, Bucuresti |
| 88. | Petre Ispirescu - Scoala Gimnaziala Nr. 171 - Bucuresti | 0212241163 | Str. Vasile Gherghel, Nr. 2, Sector 1, Bucuresti |
| 89. | Vasile Alecsandri, Scoala Gimnaziala (fosta Nr. 118) - Bucuresti | 0213138287 | Str. Stirbei Voda, Nr. 32-34, Sector 1, Bucuresti |
| 90. | Floria Capsali, Liceul de Coregrafie - Bucuresti | 0213363792 | Str. Capitan Preotescu, Nr. 9, Sector 4, Bucuresti |
| 91. | Colegiul National de Arte Dinu Lipatti - Bucuresti | 0213363588 | Str. Principatele Unite, Nr. 63, Sector 4, Bucuresti |
| 92. | Institutul de matematica Simion Stoilow | 0213196506; 0213117780; Fax: 0213196505 | Calea Grivitei, Nr. 21, Sector 1, Bucuresti |
| 93. | Sf. Sava, Colegiul National - Bucuresti | 0213149294; 0213126821 | Str. G-ral Berthelot, Nr. 23, Sector 1, Bucuresti |
| 94. | FEG, Scoala Postliceala in domeniului medical - Bucuresti | 0213111054; 0314050362; 0788424314 | Walter Maracineanu, Nr. 1-3, Intrarea 2, Etaj. 2,, Bucuresti |
| 95. | Scoala Gimnaziala Rut - Bucuresti | 0214510035; 0787358929 | Str. Lacul Bucura, Nr. 9-13, Sector 5 |
| 96. | Scoala Gimnaziala Nr. 2 Bucuresti | 0214501192 | Str. Lacul Bucura, Nr. 14, Sector 5, Bucuresti |
| 97. | Scoala 114 Principesa Margareta - Bucuresti | 0735679210/ 0213351405 | Str. Pandele Rosca, Nr. 2-4, sector 5 |
| 98. | George Enescu, Colegiu National de Muzica - Bucuresti | 0760665312; 0213108871 | Str. General Gheorghe Manu, Nr. 30, Sector 1, Bucuresti |
| 99. | AWEsome Primary School - Scoala clasele primare Bucuresti | 0750460737 | Str. Ienachita Vacarescu, nr. 22B, sector 4 |
| 100. | Eugen Barbu, Scoala Gimnaziala Nr. 173 - Bucuresti | 0212240937 | Str. Ivan Petrovici Pavlov, Nr. 2-4, Sector 1, Bucuresti |
| 101. | Grigore Chercez, Colegiul Tehnologic - Bucuresti | 0213365890 | Calea Serban Voda, Nr. 280, Sector 5, Bucuresti |
| 102. | Scoala Gimnaziala Nr. 136 - Bucuresti | 0214501892 | Prelungirea Ferentari, Nr. 74, Sector 5, Bucuresti |
| 103. | Scoala Gimnaziala nr. 5 - Bucuresti | 0213169918 | Calea Victoriei, Nr. 114, Sector 1, Bucuresti |
| 104. | Scoala Gimnaziala Ienachita Vacarescu, Bucuresti | 0213355705 | Calea Serban Voda, Nr. 62-64, sector 4, Bucuresti |
| 105. | Sfantul Nicolae, Scoala Gimnaziala Nr. 175 - Bucuresti | 0212241846 | Str. Lainici, Nr. 4-8, Sector 1, Bucuresti |
| 106. | EFI Bucarest - Scoala Franceza Internationala din Bucuresti | 0749098867 | Bulevardul Dacia, Nr. 12, Sector 1 |
| vezi mai multe | |||
| 1. | Dream Pizza - Restaurant Bucuresti | 0785070079 | Drumul Taberei, Nr. 28, sector 6, |
| 2. | Trattoria Roma - Restaurant Bucuresti | 0765723733; 0799772233 | Str. Drumul Taberei, Nr. 26, Sector 6 |
| 3. | Amarillo, Restaurant - Bucuresti | 0722215615; 0722244599 | Drumul Taberei, Nr. 44A, Sector 6, Bucuresti |
| 4. | Hanul Drumetului, Restaurant - Bucuresti | 0214133430; 0722555083 | Bd. 1 Mai(Compozitorilor), Nr. 28, Sector 6, Bucuresti |
| 5. | La Micutu - Fast Food, Bucuresti | 0765099359 | Bd Timisoara, Nr 18, sector 6 |
| 6. | Capri Pizza, Pizzerie si catering - Bucuresti | 0729442530; 0214442101 | B-dul. Timisoara, Nr. 60C, Sector 6, Bucuresti |
| 7. | Nedelya - Cofetarie Bucuresti | 0771420388 | Strada Brasov, Nr. 25, sector 6, Centrul Comercial Drumul Taberelor |
| 8. | Ai Sapori - Restaurant cu specific italian Bucuresti | 0372713635 | Bd Timisoara, Nr. 21, sector 6, Bucuresti |
| 9. | La Felinare - Restaurant cu specific international, Bucuresti | 0751028811 | Strada Brasov, Nr. 25L, sector 6 |
| 10. | Bulevard - Restaurant, Bucuresti | 0728538273 | Bulevardul Ghencea, nr.122, Bucuresti, Sectorul 6 |
| 11. | Cofetaria Ioana - Bucuresti | 0217265762 | Strada Vladeasa, Nr. 2, sector 6 |
| 12. | Fresh Food - Restaurant fast-food, Bucuresti | 0761383536 | Bulevardul Ghencea, nr. 79 (in incinta Complex Tamilia), sector 6 |
| 13. | La Saveur - Brutarie artizanala, patiserie, cofetarie Bucuresti | 0770733292; 0722624525 | Drumul Taberei, Nr 68, sector 6 |
| 14. | Crosto Pizza - Pizzerie, Bucuresti | 0786200100; 0723700300 | Strada Condorului, Nr 3, Sector 5 |
| 15. | Speed Pizza - Bucuresti | 0219001 | Iuliu Maniu, Nr.19, Sector 6, Bucuresti |
| 16. | La Placinte - Restaurant cu specific romanesc, Bucuresti | 0756207005 | Bd. Vasile Milea, 4F (Afi Park 2) |
| 17. | La Collina - Restaurant si pizzerie, Bucuresti | 0720265462; 0761806890; 0722229700 | Drumul Timonierului, nr. 26, sector 6 |
| 18. | Mr Laziz Fast Food & Grill - Mancare libaneza | 0720451176 | Drumul Timonierului, nr. 3-5 sector 6 |
| 19. | AS Garden - Restaurant Bar & Grill, Bucuresti | 0736735244; 0731639017 | Strada Timonierului, Nr. 3-5, sector 6 |
| 20. | Casa Nasului - Restaurant Bucuresti | 0727825165 | Strada Cetatuia, Nr. 12, sector 6 |
| 21. | Cesme - Restaurant cu specific turcesc, Bucuresti | 0721163176 | Str. Calea 13 Septembrie, Nr 272, sector 5 |
| 22. | Andros - Cofetarie, Bucuresti | 0748888847 | Str. Antiaeriana, nr. 5, sector 5, |
| 23. | Elena - Restaurant cu specific romanesc, cu terasa, organizare evenimente, Bucuresti | 0747277232 | Calea 13 Septembrie, Nr. 289, Sector 5, Bucuresti |
| 24. | Excellence - Restaurant Bucuresti | 0723888822 | Strada Petre Ispirescu, Nr. 110-112, sector 5 |
| 25. | Casa Banil Restaurant - Bucuresti | 0214105716; 0723391161; 0724159949 | Petre Ispirescu , Nr. 95, Sector 5, Bucuresti |
| 26. | Candy bar by Kitty, Cofetarie - Bucuresti | 0766628112 (Letan Elena) | Iuliu Maniu, Nr.61, Sector 6, Bucuresti |
| 27. | Almondo Pizza - Pizzerie, Bucuresti | 0726000222/ 0767227722 | Str. Murguta, nr. 27, sector 6 |
| 28. | Golden Blitz, Restaurant - Bucuresti | 0214105100 | Razoare , Nr. 32, Sector 6 , Bucuresti |
| 29. | Golden Blitz, Restaurant - Bucuresti | 0214105100 | Razoare , Nr. 32, Sector 6 , Bucuresti |
| 30. | Pizzeria Alessandro - Bucuresti | 0721886488; 0721887488 | Drumul Sarii, Nr.150, sector 6 |
| 31. | Naan Project - Restaurant, Bucuresti | 0730707119 | Strada Progresului, Nr. 1-3 (Razoare), sector 5 |
| 32. | Piticot, Cofetarie Bucuresti | 0214206670; 0726714865 Whatsapp | Petre Ispirescu, Nr. 77, Sector 5, Bucuresti |
| 33. | Sweet Chocolate - Cofetarie, Bucuresti | 0733944694 | Bd. Iuliu Maniu, Nr.65, sector 6 |
| 34. | Kabo - Restaurant Bucuresti | 0769276582 | Strada Moinesti, Nr. 49, sector 6 |
| 35. | Cofetaria Maia Artizan Bakery - Bucuresti | 0762298622 | Str. Margeanului, Nr. 115, sector 5 |
| 36. | Panorama Kebap - Restaurant fast food, Bucuresti | 0766244009 | Str Margeanului, Nr.115, sector 5 |
| 37. | Colosal - Fast Food, Bucuresti | 0737698255 | Strada Mihail Sebastian, Nr. 133, sector 5 |
| 38. | Royal Kebap - Restaurant fast-food, Bucuresti | 0730242360 | Strada Margeanului, Nr. 105 C, sector 4 |
| 39. | Alexia Garden - Restaurant Bucuresti | 0374015050; | Bulevardul Timisoara, Nr 58G, sector 6 |
| 40. | Fast Food Selfie - Bucuresti | 0723640514; 0766356486 | Strada Moinesti, Nr. 75, sector 6 |
| 41. | Fendi Kebap - Restaurant fast-food, Bucuresti | 0314051091 | Str. Novaci, |
| 42. | Casa Lazar - Restaurant Bucuresti | 0764024444; 0738794310; 0735778229 | Serg. Maj. Ion Nedeleanu, Nr. 8, sector 5 |
| 43. | Aniela - Cofetarie, Bucuresti | 0760237463 | Bd. Uverturi, Nr.83, sector 6 |
| 44. | Cofetaria Elan - Bucuresti | 0214343438 | Bulevardul Iuliu Maniu, Nr. 73, sector 6 |
| 45. | PASSION CLUB | Tel. 021.444.36.67; 021.444.36.68; 0743.048.701; Fax 021.444.36.67 | Str. Valea Oltului, nr. 117A, sector 6, |
| 46. | Pizza KA - Bucuresti | 0219894 | B-dul Uverturii, Nr. 98, Sector 6 |
| 47. | Passion Club, Restaurant - Bucuresti | 0214443668; 0745111107 | Valea Oltului, Nr. 117A,Sector 6, Bucuresti |
| 48. | Delarte Pizza, Pasta & Grill - Bucuresti | 0733352783; 0755487273; 0217802500 | Corbita, Nr.3,Sector 5, Bucuresti |
| 49. | Passion Club, Restaurant - Bucuresti | 0214443668; 0745111107 | Valea Oltului, Nr. 117A, Sector 6, Bucuresti |
| 50. | Urban Vibe Roastery - Cafenea, Bucuresti | 0768082833 | Valea Oltului, Nr 131-137, sector 6 |
| 51. | Verbun Pizza & Shaorma - Restaurant fast-food, Bucuresti | 0785161693 | Valea Oltului, Nr. 131-137, sector 6 |
| 52. | Restaurant Passion Club | 0214443668; 0745111107 | Str. Valea Oltului, nr. 117A, sector 6, |
| 53. | Basilico - Restaurant Bucuresti | 0770898782 | Valea Oltului, Nr. 61, Sector 6 |
| 54. | Terasa Oasis - Restaurant Bucuresti | 0733638577 | Mihail Sebastian, Nr.102. Sector 5, Bucuresti |
| 55. | Timeout Cafe - Bucuresti | 0763700031 | Strada Reveriei, nr. 11, Sector 6 |
| 56. | Quantic Pub - Bucuresti | 0314321742 | Soseaua Grozavesti, Nr. 82, sector 6 |
| 57. | Shorley Restaurant - Bucuresti | 0765377308; 0724710385; 0213124312 | Econom Cezarescu, Nr. 50, Sector 6 , Bucuresti |
| 58. | IDM Club Sportiv - Bucuresti | 0213161052; 0722454273 | Splaiul Independentei, Nr. 319 B, (Vizavi de campusul studentesc Regie) Sector 6, Bucuresti |
| 59. | Pui de Urs, Restaurant - Bucuresti | 0213166289; 0724622226; 0765166266 | Econom Cezarescu, Nr. 42 (Grozavesti), Sector 6 , Bucuresti |
| 60. | Casa Bia - Restaurant Bucuresti | 0761241623 | Str. Sebastian Mihail, Nr. 19, sector 5 |
| 61. | Weiss Beer Garden - Terasa, Bucuresti | 0733582852 | Bulevardul Uverturii, nr. 132, sector 6 |
| 62. | One Minute Pizza | 0732841587 | Sos Alexandriei, Nr. 108, Bragadiru, judetul Ilfov |
| 63. | Cuibul Randunelelor - Restaurant Bucuresti | 0214244218 | Strada Focsani, Nr. 38, sector 5 |
| 64. | Primo - Restaurant fast food, Bucuresti | Bulevardul Iului Maniu, Nr. 184, sector 6 | |
| 65. | Yesterday, Hotel si Restaurant - Bucuresti | 0213408585; 0737001008 | Economu Cezarescu, Nr. 8, Sector 6, Bucuresti |
| 66. | Fortuna Pizza - Bucuresti | 0764725328; 0725416126 | Apusului, Nr. 82, Sector 6, Bucuresti |
| 67. | Restaurant Interbelic - Bucuresti | 0733413133 | Str Petre Ispirescu, Nr. 6A, sector 5 |
| 68. | Ceainaria Infinitea | 0723175300 | Str. Dr. Grigore Romniceanu, Nr.7, ap.2, sector 5 |
| 69. | Rai de Dulce - Laborator de cofetarie si patiserie Bucuresti | 0735632709; 0731885888 | Calea Rahovei, Nr. 374, sector 5 |
| 70. | Graffiti Urban Food, Bucuresti | 0749433433; 0733695443; 0769180180 | Str.Carol Davila, Nr. 56A, Sector 5, Bucuresti |
| 71. | Fresh Chicken - Restaurant cu preparate la gratar | 0724392216 | Str Mihail Sebastian, nr 48, sector 5 |
| 72. | Bike Boutique and More - Magazin, terasa, service, Bucuresti | 0752405152 | Strada Profesor Doctor Victor Babes, Nr. 2, sector 5 |
| 73. | Casa Roz, Restaurant - Bucuresti | 0721542909; 0720624500; 0723504103 | Apusului, Nr. 44, Sector 6, Bucuresti |
| 74. | Casa Roz - Restaurant, Bucuresti | 0721542909; 0720624500 | Str. Apusului, nr 44, sector 6 |
| 75. | Pub 18 Restaurant - Bucuresti | 0722441586 (Manager Pub Oana Valeanu) | Splaiul Independentei, Nr. 290, bl. P18, parter, Sector 6, Bucuresti |
| 76. | Said - Fast Food, Bucuresti | 0772229461; 0773755896 | Calea Rahovei, Nr. 390, sector 5 |
| 77. | Britannia - Restaurant, Bucuresti | 0725998899 | Strada Petre Ispirescu, Numarul 9 b, Sector 5 |
| 78. | Pizza Volante - Bucuresti | 0738592129; 0765401872 | Strada Cernisoara, Nr. 151, sector 6 |
| 79. | Derby Pub & Restaurant - Bucuresti | 0214108545 | Bd. Eroilor Sanitari , Nr. 49A,sector 5, Bucuresti |
| 80. | Trattoria 20 - Restaurant Bucuresti | 0757534928; 0751267451 | Splaiul Independentei, Nr. 290, Campus Regie, sector 6 |
| 81. | La Maria si Ion, Restaurant - Bucuresti | 0762295737; 0753473781 | Splaiul Independentei, Nr. 290, Complex Studentesc Regie, Sector 6, Bucuresti |
| 82. | Dominum - Bar & Grill, Bucuresti | 0761551233 | Strada Neptun, Nr. 4, Sector 5 |
| 83. | Roxy Pub - Bucuresti | 0742033944; 0723327117; 0785224508 | Splaiul Independentei, Nr. 290, Complex Studentesc Regie, Bucuresti |
| 84. | Kvala - Restaurant grecesc, Bucuresti | 0726731663 | str Louis Pasteur, nr 63, sector 5 |
| 85. | Pub 18 Restaurant - Bucuresti | 0722441586 | Splaiul Independentei, Nr. 290, bl. P18, parter, sector 6 , Bucuresti |
| 86. | Mechano Pub - Bucuresti | 0722990992 | Splaiul Independentei, Nr. 290, sector 6 |
| 87. | Yasmin Bakery - Cofetarie, Bucuresti | 0721076376; 0760272225 | Calea Rahovei, nr.322 sector 5 |
| 88. | La Colt - Bar & Grill, Bucuresti | 0371179862 | Strada Telita, Nr 1, sector 5 |
| 89. | Burgeria Cotroceni - Restaurant fast-food, Bucuresti | 0314214777 | Soseaua Cotroceni, Nr. 9, sector 6 |
| 90. | La petite bouffe - Cafenea, Bucuresti | 0733669344 | Strada Doctor Louis Pasteur, nr 38, sector 5 |
| 91. | La Cave - Restaurant cu specific francez, Bucuresti | 0746254444 | Str. Margelelor, Nr. 139-143, sector 6 |
| 92. | Jazz Book - Club de jazz si blues, Bucuresti | 0752206746 | Doctor Carol Davila, Nr. 1, Cotroceni, sector 5 |
| 93. | Cocosu Rosu - Restaurant cu specific romanesc Bucuresti | 0747059315 | Str. Margelelor, Nr. 61 ? 63, Sector 6 |
| 94. | Citylicious - Restaurant Bucuresti | 0771707709 | Bld Tudor Vladimirescu, Nr. 29, sector 5 |
| 95. | Galletto Ristorante, Restaurant italian, catering - Bucuresti | 0212112276; 0770407519 | Soseaua Orhideelor, Nr.1 (podul nou Basarab,langa cladirile de birouri The Bridge, Sector 6, Bucuresti |
| 96. | 14th Lane - Restaurant cu mancaruri fine, organizare evenimente, Bucuresti | 0737776777 | Sos. Orhideelor, Nr. 15D, sector 6, Bucuresti |
| 97. | Lucky Point Pub | 0742181263 | Splaiul Independentei, 204,sect.6, Bucuresti |
| 98. | Lara Sweets - Cofetarie Bucuresti | 0374491733 | Soseaua Alexandria, Nr. 197, Sectorul 5 |
| 99. | Vivono Pizza - Pizzerie, Bucuresti | 0784000212 | Strada Telita, Nr.54, Sector 5 |
| 100. | Turbotequila, Restaurant - Bucuresti | 0214344007; 0214301312 | Bd. Iuliu Maniu, Nr. 220C, Sector 6, Bucuresti |
| 101. | Casa Adam Events, Restaurant Evenimente - Bucuresti | 0785112233; 0765801348 | Sos. Alexandriei , Nr. 201F, Sector 5, Bucuresti |
| 102. | Bocca Lupo - Restaurant cu specific italian, Bucuresti | 0314050050 | Strada Dr. Lister, nr. 1, sector 5 |
| 103. | Kicen - Ciorbe de casa, Bucuresti | 0751012221 | str. Dr. Staicovici, nr. 43, sector 5 |
| 104. | S\'Agapo Gyros - Restaurant fast-food, Bucuresti | 0725532142; 0721533358 | StradaTeius, numarul 84, sector 5 |
| 105. | Parliament, Restaurant - Bucuresti | 0214119990; 0214119991; 0721332397 | Izvor , Nr. 106, Sector 5 , Bucuresti |
| 106. | Parliament, Restaurant - Bucuresti | 0214119990; 0214119991; 0721332397 | Str. Izvor, Nr. 106, Sector 5 , Bucuresti |
| 107. | Mezze, Restaurant libanez - Bucuresti | 0213116633; 0720044469 | Mircea Vulcanescu, Nr.153 B,Sector 1 , Bucuresti |
| 108. | Fast Food Plevnei - Restaurant Fast Food Bucuresti | 0761046444 | Calea Plevnei, Nr. 230, sector 1 |
| 109. | Castronul Gustos - Restaurant, Bucuresti | 0749011588 | Str. Nasaud, nr. 97, Sector 5 |
| 110. | La Nasu, Restaurant - Bucuresti | 0212214285; 0722257923; 0728984754 | Calea Crangasi, Nr. 29, Sector 6, Bucuresti |
| 111. | Pizza Real - Delivery Bucuresti | 0760170649; 0725470701 | Calea Crangasi, Nr. 90, Sector 6 |
| 112. | Cofetaria Dinalex - Bucuresti | 0214237928; 0785137937 | Calea Ferentari, Nr. 162, sector 5 |
| 113. | Ivan Pescar & Scrumbia Bar - Restaurant pescaresc, Bucuresti | 0729384828 | Str. Uranus, nr 150, cladirea The Ark, parter, sector 5 |
| 114. | Cofetaria Zora - Bucuresti | 0771119563 | Strada Uranus, Nr. 100, Sector 5 |
| 115. | Old School, Restaurant - Bucuresti | 0744105445; 0745110362 | Calea Plevnei, Nr. 61, Sector 6, Bucuresti |
| 116. | Ana Pan Cofetarie - Bucuresti | 0216373536; 0730262726; 0212332241 | Stirbei Voda, Nr. 166,Sector 1, Bucuresti |
| 117. | Casa Antonie, Cofetarie - Bucuresti | 0212202530; 0740150736; 0212202510 | Mehadia, Nr. 39A, Sector 6, Bucuresti |
| 118. | Triana - Cofetarie, Bucuresti | 0740302404 | Soseaua Orhideelor, Nr. 46, sector 1 |
| 119. | Baffi Cafe - Pizzerie, Ilfov | 0756021501; 0756021510 | Str. Safirului, Nr. 69R, Bragadiru, judetul Ilfov |
| 120. | Suzana Ribs & Wings - Restaurant cu specialitati texane, Bucuresti | 0785444466 | Calea Rahovei, Nr. 147-153, Sector 5, Palatul Bragadiru |
| 121. | Turkish Clasis - Restaurant, Bucuresti | 0721503011 | Sos Viilor, nr.27, sector 5 |
| 122. | Baroque Events & Garden - Restaurant Bucuresti | 0726350802 | Calea Rahovei, Nr. 145, Sector 5 |
| 123. | Flair Angel - Bar specializat in cocktailuri, Bucuresti | 0769771991 | Calea Rahovei, Nr. 147-153, sector 5 |
| 124. | So! Coffee, Cafenea - Bucuresti | 0372285718; 0314078250 | Piata Garii de Nord, Nr.1-5 (In fata peroanelor 4-5), Sector 1, Bucuresti |
| 125. | Vulturul, Restaurant - Bucuresti | 0722335116; 0213514149 | Intrarea Blejoi, (B-dul Iuliu Maniu 408-410), Nr. 2, Sector 6, Bucuresti |
| 126. | Costelaria, Restaurant - Bucuresti | 0314055095 | Calea Rahovei, Nr. 147-150 , Sector 5, Bucuresti |
| 127. | Vulturul, Restaurant - Bucuresti | 0722335116; 0213514149 | Intrarea Blejoi, Nr. 2, (B-dul Iuliu Maniu 408-410), Sector 6, Bucuresti |
| 128. | Mahala - Restaurant Bucuresti | 0729003002 | Calea Rahovei, Nr. 147- 153, sector 5 |
| 129. | Kungfu Pizza - Bucuresti | 0774428631; 0216656866; 0314251995 | Ceahlau, Nr.17 B, Sector 6, Bucuresti |
| 130. | Krishna Caffe - Cafenea Bucuresti | 0729745988;0740133254 | Bd. Mihail Kogalniceanu, Nr. 17, sector 5, |
| 131. | Potcoava 9 Mai, Restaurant - Bucuresti | 0212202208; 0721065347 | Str. 9 Mai , Nr. 51, Sector 6, Bucuresti |
| 132. | Grivita - Pub&Grill, Bucuresti | 0724748482 | Calea Grivita, Nr. 130 (Parter Eurohotels), |
| 133. | The Owl Cocktail House - Bar specializat in cocktailuri, Bucuresti | 0743260923 | str. Stirbei Voda, Nr. 104-106, sector 1 |
| 134. | La Matache Restaurant (comenzi online si livrari la domiciliu) | 0213107327; 0213107337; 0213118888 | P-ta. Dr. Haralambie Botescu, Nr. 2, Sector 1, Bucuresti |
| 135. | Cuptorul Dulce - Cofetarie, Ilfov | 0752086166 | Prelungirea Ghencea, nr.262, Bragadiru, judetul Ilfov |
| 136. | SupaDupa - Restaurant cu supe si ciorbe, Bucuresti | 0739344281 | Strada Popa Tatu, Nr. 94, sector 1 |
| 137. | Tulin, Restaurant libanez - Bucuresti | 0213144001; 0762212675 | Pictor Constantin Stahi, Nr. 2, Sector 1, Bucuresti |
| 138. | Joy Pizza - Ilfov | 0733360020 | Str. 1 Decembrie, Nr 141 A, Chiajna, judetul Ilfov |
| 139. | The Mark - Restaurant pub Bucuresti | 0758505500 | Calea Grivitei, Nr. 84-98, sector 1 |
| 140. | Edo Sushi - Restaurant cu specific japonez, Bucuresti | 0735111095 | Stirbei Voda, Nr 84A, sector 1 |
| 141. | Bistro raw vegan, Restaurant - Bucuresti | 0726605501 | Transilvaniei, Nr. 11, Sector 1, Bucuresti |
| 142. | Hong Kong - Restaurant chinezesc, Ilfov | 0213107134; 0727834877 | Calea Grivitei, nr. 81 (langa Biserica Sf. Voievozi), sector 1, , judetul Ilfov |
| 143. | Bellini Pizza - Bucuresti | 0314278776 | General Henri Matias Berthelot, Nr. 44,Sector 1, Bucuresti |
| 144. | Monte Carlo Cismigiu, Restaurant - Bucuresti | 0213131344 | Parc Cismigiu, Sector 1, Bucuresti |
| 145. | Haute Pepper - Restaurant cu specific international, Bucuresti | 0726284280 | Bd. Unirii, nr 2, sector 4 |
| 146. | Planet Trattoria - Restaurant, Bucuresti | 0319462; 0767657065 | Soseaua Salaj, Nr. 363, Sector 5, Confort Urban Residence, Bucuresti |
| 147. | Monte Carlo Cismigiu, Restaurant - Bucuresti | 0213131344 | Parcul Cismigiu, Parcul Cismigiu, Sector 1 , Bucuresti |
| 148. | Il Cantuccio, Restaurant - Bucuresti | 0722572957 (Sef unitate: Baieticu Ioana); 0735281669 (Sef unitate: Otvos Gabriela); 0724540839 (Manager: Florea Valentin) | Fabrica de Chibrituri , Nr. 2, Rond Autogara Filaret, sector 4, Bucuresti |
| 149. | Dines, Restaurant evenimente - Bucuresti | 0213362474; 0723634741; 0727968325 (Predescu Constantin) | Cutitul de Argint, Nr.12 (langa Arenele Romane) Sector 4, Bucuresti |
| 150. | Il Cantuccio, Restaurant - Bucuresti | 0722572957 (Sef unitate: Baieticu Ioana); 0735281669 (Sef unitate: Otvos Gabriela); 0724540839 Manager: Florea Valentin) | Fabrica de Chibrituri, Nr. 2, Rond Autogara Filaret, sector 4, Bucuresti |
| 151. | Bellini Garden - Restaurant cu specific italian, Bucuresti | 0722100111; 0314278776 | str. General Henri Mathias Berthelot, nr. 44, sector 1 |
| 152. | Impinge Tava - Ilfov | 0722911963 | Strada 1 Decembrie 1918, Nr.165, Rosu, judetul Ilfov |
| 153. | Black Habit - Cafenea | 0770357382 | Calea Grivitei, Nr. 77, sector 1 |
| 154. | Dum Dum Food - Restaurant fast food, Bucuresti | 0735 270 402 | Calea Giulesti, Nr. 123, sector 6 |
| 155. | Arome - Restaurant vegetarian/vegan, Bucuresti | 0749109639 | Luigi Cazzavillan, Nr. 25, sector 1 |
| 156. | Capri, Restaurant - Bucuresti | 0769812778; 022797639; 0730094662 | Iuliu Maniu, Nr.484, (inaintea benzinariei Petrom - Metro Militari), Bucuresti |
| 157. | Ergo - Restaurant vegan, Bucuresti | 0770747559 | Bd. Unirii, Nr 5, sector 4 |
| 158. | J\'ai Bistrot - Gastropub, Bucuresti | 0790229922 | Calea Grivitei, nr. 55, sector 1 |
| 159. | Jaristea, Restaurant - Bucuresti | 0721961936 ; 0775609233 ; 0770948868 | George Georgescu, Nr. 50-52, Sector 4, Bucuresti |
| 160. | Fabrica, Club,Pub, Tersa - Bucuresti | 0753227422; 0753315563; 0749116508 | 11 iunie, Nr,50, Sector 5, Bucuresti |
| 161. | Old Kitchen - Restaurant Bucuresti | 0732773537 | Str. Sfintii Voievozi, Nr. 13, Sector 1 |
| 162. | Club B52 - Bucuresti | 0753315563 | 11 Iunie, N. 50, Sector 5, Bucuresti |
| 163. | Opa Opa Greek Fast Food - Bucuresti | 0746072527 | Bd. Preciziei, Nr. 24, Sector 6 |
| 164. | Red Wok - Restaurant cu specific chinezesc, Bucuresti | 0786644125 | Prelungirea Ghencea, nr. 45, sector 6 |
| 165. | Panoramic Beer & Grill - Ilfov | 0720327223 | Str. Apeductului, Nr. 14, sat Rosu, comuna Chiajna, judetul Ilfov |
| 166. | Hanul Berarilor Interbelic, Restaurant - Bucuresti | 0213368009; 0729400800 | Poenaru Bordea , Nr. 2, Sector 5, Bucuresti |
| 167. | PengYou - Restaurant specific chinezesc Bucuresti | 0787748272 | Str. Occidenului, Nr. 11, Sector 1 |
| 168. | Bohemia Tea House, Ceainarie - Bucuresti | 0727333631 | Poiana Narciselor, Nr. 1 (vizavi de Conservator), Sector 1, Bucuresti |
| 169. | Fabio Pizza - Bucuresti | 0372188330 | Turda, Nr. 117, Sector 1, Bucuresti |
| 170. | Barocco Bar - Bucuresti | 0755028028; 0740114132 | Domnita Anastasia, Nr.10 (In spatele McDonalds Regina Elsiabeta), Bucuresti |
| 171. | Rocca by The Jar - Gastropub Bucuresti | 0770857841 | Str. Pictor Theodor Aman, Nr. 36, sector 1 |
| 172. | Elisabeta, Restaurant - Bucuresti | 0727703703; 0724323132 | Bd. Regina Elisabeta, Nr. 45, Sector, Bucuresti |
| 173. | Paine si Vin - Bar cu vinuri, Bucuresti | 0755028448 | Str. Actor Ion Brezoianu, Nr. 4, sector 5 |
| 174. | Oby - Fast Food, Bucuresti | 0768955169 | Calea Ferentari, nr. 177, sector 5 |
| 175. | Energiea - Pub Bucuresti | 0736374432 | Str. Actor Ion Brezoianu, Nr. 4, Sector 5 |
| 176. | La Ciurucuri - Restaurant cu specific international, Bucuresti | 0752850850 | Piata Valter Maracineanu, Nr 1-3, sector 1 |
| 177. | B3ton - RestoBar, Bucuresti | 0217963684 | Bulevardul Marasesti, Nr. 2B, sector 4 |
| 178. | Grapes - Bar cu vinuri, Bucuresti | 0770463287 | Bdul. Marasesti, nr.2B, sector 4 |
| 179. | Amnezia Caffe - Bistrou romanesc Bucuresti | 0770917737; 0724140931 | Str. Sf. Apostoli, Nr. 21, sector 4, |
| 180. | Origo Coffee Shop - Bucuresti | 0757086689 | Lipscani, Nr. 9,Sector 3, Bucuresti |
| 181. | Pizza Hut - Bucuresti | 0740121903 | Bd. Regina Elisabeta, nr. 15-19, sector 3 , |
| 182. | ChefBox - Restaurant, Bucuresti | 0728800528 | Buzesti, Nr. 57-59, sector 1 |
| 183. | The Soup Carousel - Restaurant cu supe si ciorbe, Bucuresti | 0725356907 | Sos. Nicolae Titulescu, Nr. 12, sector 1 |
| 184. | Angeline Cake Boutique - Cofetarie, Bucuresti | 0753652144 | Str. Doctor Iacob Felix, Nr. 59, Sector 1 |
| 185. | KALI - Restaurant cu bufet, Bucuresti | 0725988889 | Strada Buzesti, Nr. 71, Sector 1 |
| 186. | Fayn Urban Eatery - Restaurant, Bucuresti | 0723257692 | Strada Buzesti, nr. 71, sector 1 |
| 187. | Encore Club - Bar specializat in bere | 0786247745 | Nicolae Tonitza, nr. 13, sector 3 |
| 188. | Anika - Restaurant cu specific romanesc Bucuresti | 0726400148 | Str. Pictor Nicolae Tonitza, Nr.10, sector 3 |
| 189. | Paninaro - Restaurant pentru mic dejun si brunch | 0771783619 | Strada Luterana, Nr 3, sector 1 |
| 190. | Coppa - Bar cu vinuri si cafea, Bucuresti | 0741594545; 0756080004 | Bd. Nicolae Titulescu, nr. 3, sector 1 |
| 191. | La Cristi - Fast Food si catering, Bucuresti | 0729266850 | Strada Frosa Sarandy, Nr. 17, Sector 1 |
| 192. | La Taifas, Bistro - Bucuresti | 0723197156; 0212127788 | Mihail Moxa, Nr. 12, Sector 1 , Bucuresti |
| 193. | The Place Pub - Pub, Bucuresti | 0743951281 | Mr. Alexandru Campeanu, nr.36, sector 1 |
| 194. | Velluto - Gelaterie, Bucuresti | 0728991969 | Splaiul Independentei, Nr 2J, sector 3 |
| 195. | Saint Gelato - Gelaterie Bucuresti | 0745205405 | Bulevardul Regina Elisabeta, Nr. 26, Sector 3 |
| 196. | The Old Sibiu - Restaurant evenimente Bucuresti | 0723602560; 0723637769; 0721172390 | Str. Ion Otetelesanu,, Nr. 3A-3B, Sector 1 |
| 197. | Linea - Closer To The Moon, Bucuresti | 0757824298 | Calea Victoriei, nr. 17, sector 3 |
| 198. | Agora Restaurant - Bucuresti | 0212242482; 0722304431 | Str. Tintasului , Nr. 27, Sector 1, Bucuresti |
| 199. | Trei Camile - Restaurant Bucuresti | 0747641564 | Blv. Pieptanari, Nr. 43, sector 5 |
| 200. | Cofetaria Eduard - Bucuresti | 0760944165 | Bulevardul Pieptanari, Nr. 53, sector 4 |
| 201. | Scovergaria Micai - Patiserie, cofetarie Bucuresti | 0314253670 | Calea Victoriei, Nr. 14 colt cu Lipscani 19, sector 3 |
| 202. | Caru\' cu Bere, Restaurant - Bucuresti | 0213137560; 0726cubere; 0726282373 | Stavropoleos , Nr. 3-5, Sector 3, Bucuresti |
| 203. | Cercul Militar National, Restaurant - Bucuresti | 0213143735; 0213149551; Fax: 0372874921 | Constantin Mille, Nr.1-3, Sector 1, Bucuresti |
| 204. | Militari Residence Ballroom - Bucuresti | 0723333508; 0760150392 | Rezervelor, Nr. 70, Sector 6, Chiajna, judetul Ilfov |
| 205. | Il Peccato, Restaurant - Bucuresti | 0213116767; 0765301300 | Franceza, Nr. 30,Sector 3, Bucuresti |
| 206. | Hygge - Restaurant Bucuresti | 0771114875 | Calea Victoriei, Nr. 21, sector 3 |
| 207. | Saray - Restaurant cu specific turcesc, Bucuresti | 0733135834 | Lipscani, Nr. 21, sector 3 |
| 208. | Hugo Bar - Cafenea cu narghilele, Bucuresti | 0732397953 | Calea Victoriei, 16-18-20, sector 3 |
| 209. | Sublimmme - Restaurant vegetarian/vegan, Bucuresti | 0771135605 | Splaiul Independentei, NR 2F, sector 3 |
| 210. | La Taifas, Restaurant - Bucuresti | 0212127788; 0723197156 | Gheorghe Manu, Nr. 16, sector 1 , Bucuresti |
| 211. | Fika18 - Croissanterie, Bucuresti | 0770663982 | Calea Victoriei, Nr. 101, sector 1 |
| 212. | Pekin, Restaurant chinezesc - Bucuresti | 0213103160; 0723233169; 0769414020 | Calea Victoriei, Nr. 16-20, pasaj Villa Cross, Sector 3, Bucuresti |
| 213. | Bemolle Cafe - Bucuresti | 0213118382; 0723188953 | Calea Victoriei , Nr.16-18-20 (Pasaj Villacrosse), Sector 3, Bucuresti |
| 214. | Gusto e Passione - Gelateria Artigianale, Bucuresti | 0755555453 | Calea Victoriei, Nr. 87, sector 1 |
| 215. | Noa Restoclub - Restaurant Bucuresti | 0799747557 | Calea Victoriei, Nr 26 Sector 3 |
| 216. | Valea Regilor - Cafenea, Bucuresti | 0213112969 | Calea Victoriei, 16-20, Centrul Vechi, sector 3 |
| 217. | Capitol Hotel si Restaurant - Bucuresti | 0213158030; 0317107007 | Calea Victoriei , Nr. 29, Sector 1 , Bucuresti |
| 218. | Gastronomika - Restaurant cu specific international, Bucuresti | 0737940512 | Str. Ion Neculce, Nr. 63, Sector 1 |
| 219. | WHYS - Bar, Bucuresti | 0785059173 | Pasajul Macca-Villacrosse, sector 3 |
| 220. | Velocita - Gelaterie, Bucuresti | 0739889189 | Calea Victoriei, Nr. 122, sector 1 |
| 221. | Distrikt 42 - Restaurant Bucuresti | 0213156699 | Str. Sfantul Dumitru, Nr. 3, sector 3 |
| 222. | Bar A1 - Bucuresti | 0770901409 | Piata Amzei, Nr 1, sector 1 |
| 223. | Coolinart - Gastropub Bucuresti | 0772017955 | Calea Victoriei, Nr. 142-148, sector 1 |
| 224. | Casa Capsa, Restaurant - Bucuresti | 0213134038; Fax: 0213135999 | Calea Victoriei, Nr. 36, Sector 1, Bucuresti |
| 225. | Vilacrosse, Bistro, Restaurant - Bucuresti | 0728358304; 0744796894 | Eugeniu Carada, Nr. 7, Sector 3, Bucuresti |
| 226. | Freddo Pub - Club de noapte si de dans, Bucuresti | 0722373336 | Str Smardan, nr 24, sector 3, |
| 227. | Capsa Cofetarie Bucuresti | 0213134038; 0213135999 | Calea Victoriei, Nr. 36, Sector 1, Bucuresti |
| 228. | Sweetology - Gelaterie, Bucuresti | 0734444889 | Calea Victoriei, Nr. 122, sector 1 |
| 229. | Delicii Libaneze - Gelaterie, cofetarie, ciocolaterie Bucuresti | 0725115811 | Str. Franceza, Nr. 13, sector 3 |
| 230. | Efendi Doner - Restaurant fast-food, Bucuresti | 0730578472 | Str. Selari, nr. 2, sector 3 |
| 231. | Di Vino Pizza - Bucuresti | 0769316151; 0733832277 | Prelungirea Ghencea, nr. 83C, sector 6 |
| 232. | Vilacrosse, Restaurant Cafe Bistro - Bucuresti | 0728358304 | Str. Eugen Carada, nr. 7, sector 3, |
| 233. | Ramada Majestic, Hotel si Restaurant - Bucuresti | 0213102715 | Calea Victoriei, Nr. 38-40, Sector 1 , Bucuresti |
| 234. | Q Marttinez - Restaurant cu specific european, Bucuresti | 0725682944 | Eugeniu Carada, Nr. 7, sector 3 |
| 235. | Les Bourgeois - Bucuresti | 0720132994; 0213106052 | Smardan, Nr. 20, Sector 3, Bucuresti |
| 236. | Patrick Irish Pub & Restaurant - Bucuresti | 0213130336; 0314360112; 0755110008 | Smardan, Nr. 23-25, sector 3, Bucuresti |
| 237. | Kilkenny Irish Pub - Bucuresti | 0751041110 | Str Franceza, Nr. 46-48, sector 3 |
| 238. | Coclinta Brasserie- Restaurant cu specific romanesc, Bucuresti | 0770238774 | Calea Victoriei, Nr. 153, sector 1 |
| 239. | Arcade Cafe - Bucuresti | 0722777674 | Smardan, Nr.30, (Centrul vechi), Sector 4, Bucuresti |
| 240. | Nomad Skybar - Restaurant, bar, club, Bucuresti | 0735448080 | Strada Smardan, Nr 30, sector 3 |
| 241. | Primus Pub - Bucuresti | 0732222666 | George Enescu, Nr. 3, sector 1 |
| 242. | Storage Room - Bar, Bucuresti | 0732363712 | Strada Smardan, Nr. 35, sector 3 |
| 243. | Colosseum, Restaurant - Bucuresti | 0721243613; 0213131860; 0219689 | Calea Victoriei , Nr. 48-50 (Pasajul Victoria), sector 1, Bucuresti |
| 244. | Aubergine Healthy Food - Restaurant cu mancare sanatoasa, Bucuresti | 0213137548 (Smardan); 0771358661 (Aviatorilor) | Strada Smardan, Nr 33, sector 3, Bucuresti |
| 245. | The Artist Restaurant - Bucuresti | 0728318871 | Calea Victoriei, Nr.147, sector 1 |
| 246. | Athénée Palace Hilton,Cafenea,Baruri - Bucuresti | 0213033777; 0213152121; Fax: 0213152121 | Episcopiei, Nr. 1-3, Sector 1 , Bucuresti |
| 247. | Miss Ale - Espresso Bar, Bucuresti | 0371394059 | Calea Victoriei, Nr. 100, sector 1 |
| 248. | Big Ben - Pub cu specific britanic, Bucuresti | 0756110089 | Str. Franceza, nr. 52, sector 3 |
| 249. | Claus, Cofetarie Bucuresti | 0212220218; 0721264900 | Bd. Banu Manta, Nr. 21A, Sector 1, Bucuresti |
| 250. | Burger si Scoici - Restaurant cu burgeri Bucuresti | 0753300333 | Strada Smardan, Nr. 41, Sector 3 |
| 251. | Refill - Bistro cu specific international, Bucuresti | 0786372856 | Bulevardul Mihalache, Nr. 12, sector 1 |
| 252. | St. Patrick Irish Pub - Berarie & Sports Bar | 0772272420 | Str. Smardan, nr. 23-25, sector 3, Bucuresti |
| 253. | Terminus - Pub, Bucuresti | 0730222555 | Str. George Enescu, nr. 5, sector 1, |
| 254. | Calif - Restaurant fast-food, Bucuresti | 0756200325 | Selari, Nr. 19, sector 3, |
| 255. | Bistro La Taifas, Restaurant - Bucuresti | 0212127788; 0723197156 | Gheorghe Manu, Nr. 16, Sector 1, Bucuresti |
| 256. | Za Lokal - Restaurant pentru mic dejun si brunch, Bucuresti | 0770557931 | Calea Victoriei, Nr 214, sector 1 |
| 257. | Ev Don Fusion - Restaurant Ilfov | 0775500777 | Strada Rezervelor 63, Chiajna, Dudu, judetul Ilfov |
| 258. | Shoteria - Shotbar, Bucuresti | 0721203039; 0372916947 | Strada Selari, Nr. 17, sector 3 |
| 259. | Tag Aperitivo Bar - Bucuresti | 0721888522 | Strada Lipscani, nr. 27, sector 3 |
| 260. | Mai Mult Decat Un Dulce - Cofetarie, Bucuresti | 0785688229 | Str. Rezervelor, Nr.5nr.56 , bl.4, parter,sector 6, |
| 261. | Story Pizza - Pizzerie, Bucuresti | 0721985293; 0212201004; 0748581523 | Calea Giulesti, nr 202, sector 6 |
| 262. | Artist Cafe - Cafenea Bucuresti | 0756777577 | Str. Lipscani, Nr. 30-34, sector 3 |
| 263. | Curtea Berarilor, Bar & Grill - Bucuresti | 0213137532; 0735861682 (Radu); 0735861681 (Sorina) | Selari, Nr. 9-11,Sector 3 (Zona Lipscani), Bucuresti |
| 264. | Excalibur, Restaurant - Bucuresti | 0730190364; Tel Fax: 0213145670 | Academiei, Nr. 39-41, Sector 1 , Bucuresti |
| 265. | iDracula - Restaurant tematic, Bucuresti | 0753476142;0752559457 | Str. Selari, Nr. 10-12, Centrul Vechi, sector 3 |
| 266. | Savart - Arta savorilor Gourmet, Bucuresti | 0743575757 | Str. George Enescu, Nr. 2-4, sector 1 |
| 267. | Wine Ambassador - Bar de vinuri, Bucuresti | 0733182037 | Intrarea Biserica Alba, nr.1, sector 1 |
| 268. | Colosseum Pizza - Bucuresti | 0721243613; 0213131860; 0213121020 | Calea Victoriei, Nr. 48-50 (Pasajul Victoria), Sector 1, Bucuresti |
| 269. | Curtea Berarilor, Restaurant terasa - Bucuresti | 0213137532 | Selari, Nr.9-11, sector 3, Bucuresti |
| 270. | Sinners - Pub, Bucuresti | 0737343210 | Covaci, nr.2 , Centrul Vechi, sector 3 |
| 271. | The Temple Social Pub - Bucuresti | 0723469118 | Bd. Marasesti, Nr. 71-73 sector 4 |
| 272. | Gyros Thessalonikis | 0770302148 | Strada Gabroveni, Nr. 2,sector 3 |
| 273. | Boutique Du Pain - Restaurant cu specific francez, Bucuresti | 0728443300 | Academiei, Nr. 28-30, sector 1 |
| 274. | Xclusive Pub - Bar & Grill, Bucuresti | 0723166463 | Str. Lipscani, nr. 36, sector 3 |
| 275. | Boulevard Pub - Bucuresti | 0753966961 | Strada Covaci, Nr. 4, sector 3 |
| 276. | Old Habits - Club de noapte si de dans | 0728776699 | Strada Lipscani, Nr. 38, sector 3 |
| 277. | Private Hell - Club, Bucuresti | 0757508336 | Str. Soarelui, nr. 5, Sector 3 |
| 278. | Kiosque des Douceurs - Cofetarie Bucuresti | 0758090763 | Str. Selari, Nr. 3, Sector. 3, Centrul Vechi |
| 279. | UAU Il Gelato - Gelaterie Bucuresti | 0723135015 | Str. Gabroveni, Nr. 1-3, sector 3, |
| 280. | Vecchia Napoli Pizzeria - Bucuresti | 0723970317; 0212246629; 0754043666 | Calea Grivitei, Nr. 371, Sector 1, Bucuresti |
| 281. | Taverna Covaci - Restaurant cu specific romanesc, Bucuresti | 0747226677 | Str. Covaci, Nr. 1, sector 3 |
| 282. | The Pub - Bucuresti | 0728843782 | Bulevardul Regina Elisabeta, Nr. 9, sector 3 |
| 283. | The Drunken Lords - Pub, Bucuresti | 0736238815 | Intr. Selari, Nr. 3-5, sector 3 |
| 284. | Times Cocktail Bar - Pub, Bucuresti | 0731032330 | Intrarea Nicolae Selari, nr.1,sector 3, |
| 285. | Bruno Wine Bar - Bar cu vinuri, Bucuresti | 0751220229 | Strada Covaci, Nr. 3, Centrul Vechi |
| 286. | Mica Elvetie Restaurant | 0212245017 | Franceza, Nr. 60-62, Sector 3, Bucuresti |
| 287. | The Urbanist - Bar specializat in cocktailuri, Bucuresti | 0741392558 | Strada Caldarari, Nr. 3, sector 3 |
| 288. | Don Daniel Pizza | 0737444999; 0766771117; Tel/Fax: 0212225034 | Bd. Ion Mihalache, Nr. 60, Sector 1, Bucuresti |
| 289. | Red Angus Steakhouse - Restaurant Bucuresti | 0756600000 | Piata Amzei, Nr. 10-22Sector 1, |
| 290. | Kunnai - Restaurant cu specific thailandez | 0722687343; 0722687454 | Strada Copilului, Nr. 6-12, sector 1 |
| 291. | Gilda Music Lounge - Restaurant club Bucuresti | 0786770941 | Strada Lipscani, Nr. 53, sector 3 |
| vezi mai multe | |||
| 1. | VENGA | Tel. 021.425.05.70; Fax 021.425.05.25 | Drumul Taberei nr. 24, sector 6 |
| 2. | Home & Design Mall, Bucuresti - Mobilier, covoare, mochete, perdele | 0214130742; 0214132046; Fax.0214130741 | Bulevardul Ghencea, Nr. 126-132, Sector 6, Bucuresti |
| 3. | PLAZA ROMANIA | Tel. 021.407.84.64; 021.407.84.65; 021.319.50.51 | Bd. Timisoara , nr. 26, sector 6, |
| 4. | PROFI | Tel. 0726.100.452; Tel/Fax 021.444.32.44 | Bd. Ghencea nr. 38, bl. C63, sector 6, |
| 5. | AFI Cotroceni - Mall, Bucuresti | 0314257510; 0314257511; Fax 0314257513 | Vasile Milea, Nr. 4, Sector 6 (intersectia Bd. Timisoara cu Str. Vasile Milea), Bucuresti |
| 6. | CENTRUL COMERCIAL SIR | Tel. 021.430.13.98; 021.430.01.27 | Sos. Virtutii, nr. 1A (pasajul Lujerului, col? cu bd. Uverturii), sector 6, Bucuresti |
| 7. | IOVIROM | Tel. 444.18.66; Fax 444.18.69 | Bd. Timisoara nr. 84, sector 6 |
| 8. | SUPERMARKET PRIMiVARA | Tel. 031.402.58.20; Fax 021.410.96.96 | Calea 13 Septembrie nr. 221-225, sector 5 - Complex Prosper, |
| 9. | ETHOS SUPERMARKET | Tel. 0735.808.451 | Str. Margeanului nr. 48, sector 5, |
| 10. | PLUS DISCOUNT | Tel. 021.402.28.67; Fax 021.402.28.66 | Bd. Iuliu Maniu nr. 8B, sector 6, |
| 11. | Complexul Comercial Rahova | Str. Glicinelor nr. 4-14, sector 5, | |
| 12. | NICK CENTER | Tel. 410.06.14; Fax 410.18.94 | Calea 13 Septembrie nr. 190, sector 5 |
| 13. | THE GRAND AVENUE AT BUCHAREST MARRIOTT GRAND HOTEL | Tel.021. 403.40.98 | Calea 13 Septembrie nr. 90, sector 5 , |
| 14. | DANCA | Tel. 0722.546.268; Fax 212.74.84 | Intr. Panificatiei nr. 2 (P-ta Gorjului), sector 6 |
| 15. | LIBERTY CENTER | 0213699871; 0213699835 | Sos. Progresului, nr. 151-171, sector 5, Bucuresti |
| 16. | GRANT SHOPPING CENTER | Tel/Fax 021.220.42.65 | Sos.Virtutii, nr. 148, sector 6, Bucuresti |
| 17. | INTERHOME | Tel. 021.456.31.85; Fax 021.456.31.80; 021.456.31.83 | Str. Nasaud, nr. 97, sector 5, |
| 18. | BUENO SUPERMARKET | Tel/Fax 420.29.20 | Sos. Alexandriei nr. 92-94, sector 5 |
| 19. | FONZI | Tel. 260.21.28; 0729.005.261; Fax 260.15.31 | Sos. Nicolae Titulescu nr. 121 (Fonzi Junior), sector 1 |
| 20. | MILITARI SHOPPING | 021.380.87.82 | Bd. Iuliu Maniu nr. 546-560, sector 6, |
| vezi mai multe | |||


Vezi galeria
105
,168
,368
69