Unirii, Hanul lui Manuc, apartament 2 camere pentru investitie, 41 mp
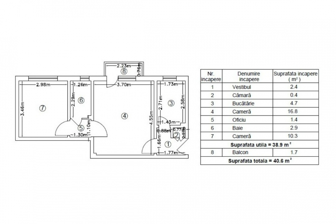
- Suprafata 38 mp
- An 1958
- Semidecomandat
- Etaj 6 din 7
Metrou Piața Unirii ...
1 min.
Calculeaza distanta
Descriere anunt
P-ta Unirii - Hanul lui Manuc, apartament 2 camere pentru investitie, 41 mp.
Pozitionare ultracentrala, la cateva minute de statia metrou Unirii si Hanul lui Manuc, cu vedere libera pe spate, catre Biserica Sf. Anton si Curtea Veche. Apartament situat la etajul 6, intr-un imobil din 1958 bine intretinut, situat pe I.C.Bratianu 44, potrivit pentru locuinta sau investitie. Interior in stare buna, bine compartimentat si confortabil, se preda mobilat conform fotografiilor.
Detalii:
• Apartament 2 camere, semidecomandat, suprafata utila 39 mp, plus balcon de 1.7 mp, aflat la etajul 6.
• Imobil de 7 etaje din 1958, cu spatii comune curate si ingrijite;
• Imobil incadrat RS2 pe lista imobilelor expertizate.
• Tamplarie PVC cu geam termopan;
• Interior in stare buna.
• Cadastru intocmit de data recenta, acte pregatite pentru vanzare, predare imediata.
• Certificat Energetic in lucru.
• Se vinde cu comision 0 pentru cumparator.
Acces mijloace transport
| Statii metrou | Timp | |
|---|---|---|
![]() |
Metrou Piața Unirii | 1 min. |
![]() |
Muzeul de istorie | 10 min. |
![]() |
Izvor | 19 min. |
| Statii STB | Timp |
|---|---|
|
Piața Unirii
104
,117
,123
,232
,312
,385
,N109
,N115
,N120
,N122
,N
|
2 min. |
|
Piața Unirii 5
|
3 min. |
|
Piața Unirii 4
|
3 min. |
|
Piața Unirii 2
|
4 min. |
|
Piața Unirii 1
|
5 min. |
|
Piața Sfânta Vineri
73
116
,117
,312
|
5 min. |
|
Bulevardul I.C. Brătianu
73
104
,116
,117
,123
,104123385
,N104
,N111
|
7 min. |
|
Piața Sfântul Gheorghe
381
|
7 min. |
|
Piața Sf. Gheorghe
|
8 min. |
|
Piața Unirii 3
|
8 min. |
|
Piața Națiunile Unite
104
,123
,124
,385
|
9 min. |
Obiective interes
| 1. | Copacelul Vietii - Gradinita Bucuresti | 0721464185 | Str. Radu Calomfirescu, nr. 9, sector 3 |
| 2. | Prikindel - Cresa, Gradinita & After School - Bucuresti | 0314059269; 0722522198 | Str. Sf. Ilie, nr. 5, sector 4, |
| 3. | Micii Poznasi - Cresa, Gradinita Bucuresti | 0725911233 | Calea Serban Voda, Nr. 22-24, Sector 4 |
| 4. | Lauder-Reut Kindergarten - Gradinita Bucuresti | 0318055772; 0723098800; 0735505395 | Str. Iuliu Barasch, Nr. 15, Sector 3, Bucuresti |
| 5. | Pisicile Aristocrate - Gradinita sector 4 | 0213350635; 0213363680 | Bd. Regina Maria, nr. 28-30, Sector 4 |
| 6. | Ina School - Gradinita si scoala primara, Bucuresti | 0722500899 | Str. Lacul Gorgova, nr. 2, Sector 2 |
| 7. | Centrul multifunctional Cresa Craiasa Zapezii sector 4 | 0371360117; 0371360127 | Str. Oitelor, nr. 50, sector 4 |
| 8. | Ray of Light Montessori - Gradinita, Bucuresti | Str. Gladiolelor, Nr. 15, sector 4 | |
| 9. | Lumea lui Momo - Gradinita Bucuresti | 0748055255 | Str. Ipotesti, Nr. 23, Sector 4 |
| 10. | Gradinita nr. 30 sector 4 | 0213362078 | Bd. Dimitrie Cantemir, nr. 16A, Sector 4 |
| 11. | Mihai Ionescu - Gradinita, Scoala, Liceu Bucuresti | 0213235495 | Str. Parfumului, Nr. 31, Sector 2, Bucuresti |
| 12. | Copii de Poveste - Gradinita sector 4 | 0740051582 | Str. Poterasi, nr. 5, sector 4 |
| 13. | Central Art Studio - After School/Cursuri Pentru Copii/Scoala de Vara Bucuresti | 0745633737; 0765454244 | Str. Popa Soare, nr. 29, sector 2 |
| 14. | Montessori Edu - Centru educational, Bucuresti | 0721833901 | Str. Mantuleasa, nr. 21, sector 2 |
| 15. | Buna Vestire - Gradinita, After School sector 4 | 0787435172 | Str. Episcopul Chesarie, nr. 9, Sector 4 |
| 16. | Clubul Boreal, Gradinita - Bucuresti | 0721124249 | Str. Valerian Prescurea, Nr. 5, Sector 4, Bucuresti |
| 17. | Copiii Montessori - Gradinita sector 3 | 0721204642 | Str. Labirint, nr. 95, Sector 3 |
| 18. | Children\'s Joy, Gradinita & After School - Bucuresti | 0731258277; 0754317732 | Str. Gramont, Nr. 3, Sector 4, Bucuresti |
| 19. | Gradinita Nr. 203 Bucuresti | 0213112352 | Str. C. A. Rosetti, nr. 32, Sector 1 |
| 20. | Scufita Rosie - Gradinita sector 4 | 0766541207 | Calea Serban Voda, nr. 170 , sector 4 |
| 21. | Licurici - Gradinita sector 4 | 0314377556; 0767503191 | Str. Cuza Voda, nr. 141 A, Sector 4 |
| 22. | Gradinita nr. 73 sector 5 | 0213154355 | Splaiul Independentei, nr. 68, sector 5 |
| 23. | Gradinita Magica, Bucuresti | 0765221341; 0723892378 | Str. Stefan Mihaileanu, Nr. 33, Sector 2, Bucuresti |
| 24. | Genius Academy - Cresa, Gradinita , Scoala Primara si After School Bucuresti | 0724111678; 0744638435 | Calea Serban Voda, nr. 145, sector 4 |
| 25. | Sf. Imparati Constantin si Elena, Gradinita Bucuresti | 0722237110; 0722293056; 0213261361 | Str. Labirint, Nr. 137 B , Sector 3, Bucuresti |
| 26. | Roxy Baby - Cresa Particulara Bucuresti | 0314254309; 0723274924 | Str. Slobozia, Nr. 29 , Sector 4, Bucuresti |
| 27. | Melba - Centru Educational Bucuresti | 0722461015 | Str. Lanariei, Nr. 117 , Sector 4, Bucuresti |
| 28. | Acorns British Style Nursery, Gradinita & After School, Bucuresti | 0722476581; 0788418186 | Str. Popa Soare, Nr. 63, Sector 2, Bucuresti |
| 29. | Gradinita Nr. 257 Alice sector 2 | 0212114524 | Str. Alexandru Donici, Nr. 23, sector 2 |
| 30. | Taramul Cunoasterii - Cresa si Gradinita Bucuresti | 0724278826 | Str. Ioan G. Bibicescu, Nr. 11, Sector 1, Bucuresti |
| 31. | Mell - Gradinita cu Program Normal sector 3 | 0744564426; 0722958683 | Str. Vlad Dracu, nr. 43, sector 3 |
| 32. | Elite - Cresa, Gradinita Bucuresti | 0766687691 | Str. Lanariei, Nr. 136, Sector 4, Bucuresti |
| 33. | Don Quijote - Afterschool Bucuresti | 0725737793 | Str. Ioan Slavici, nr. 4, sector 1 |
| 34. | Rainbow Kids - Gradinita si scoala primara Bucuresti | 0737081690; 0773349170 | Str. Ion Dragalina, Nr. 8, Sector 5, Bucuresti |
| 35. | Waldorf Christophori - Gradinita Bucuresti | 0770861602 | Str. Putul cu Plopi, Nr. 8, (langa Parcul Cismigiu) - sector 1, Bucuresti |
| 36. | Maria International School - Gradinita, Scoala primara si afterschool Bucuresti | 0730432092 | Str. Piata Amzei, Nr. 6, Sector 1, Bucuresti |
| 37. | Noel - Gradinita & After School Bucuresti | 0728459857; 0725839363 | Str. Trifoi, Nr. 10, Sector 3, Bucuresti |
| 38. | Academia Fantastica - Gradinita, Before & After School sector 3 | 0731027321; 0723337393; 0213065370 | Str. Moise Nicoara, Nr. 7, Sector 3 |
| 39. | Aurora - Gradinita & After School sector 3 | 0744317320; 0213224168 | Str. Moise Nicoar?, nr. 9-11, sector 3 |
| 40. | Ioanid - Gradinita Bucuresti | 0758054441 | Str. Polona, Nr. 4, Sector 1, |
| 41. | Gradinita Nr. 133 sector 2 | 0212116749 | Str. Aurel Vlaicu, nr. 30 - 32, sector 2 |
| 42. | Puisor - Gradinita Nr. 268 Bucuresti | 0214104010 | Str. Ion Creanga, Nr. 8, Sector 5, Bucuresti |
| 43. | Gradinita MAPN Nr. 2 Bucuresti | 0213156889 | Str. Constantin Cristescu, nr. 5, sector 1 |
| 44. | Palatul Copiilor - Gradinita, After School sector 3 | 0740673742; 0314251635 | Str. Morilor, Nr. 19, sector 3 |
| 45. | Centrul Social Multifunctional Cresa Scufita Rosie sector 4 | 0733200109; 0372874267; 0372715100, 0372715101 | Aleea Tohani, nr. 1, bl.30, sc. 1, parter, sector 4 |
| 46. | Edu Friends - Before & After School Bucuresti | 0783080096 | Str. Berzei, Nr. 5, Sector 1 |
| 47. | Ana Lugojana - Gradinite, Scoala Primara, Gimnaziala si After School Bucuresti | 0724342409 | Str. Constantin Miculescu, nr. 10, sector 5, Bucuresti |
| 48. | Gradinita nr. 269 sector 5 | 0213354544 | Str. Constantin Miculescu, nr. 12, sector 5 |
| 49. | Arlechino & Friends - Gradinita si afterschool - Bucuresti | 0723264032; 0749028820; 0213260584 | Str. Cezar Boliac, Nr. 22-24, Sector 3, Bucuresti |
| 50. | Fridolin - Gradinita, Scoala Germana Bucuresti | 0723219616; 0723584872 | Str. Temisana, Nr. 1, Sector 1, Bucuresti |
| 51. | Dani\'s Children, Cresa, Gradinita, After School - Bucuresti | 0721800099 | Str. Silvestru, Nr. 42, Sector 2, Bucuresti |
| 52. | Clubul Micul Print - afterschool Bucuresti | 0733750795 | Str. Dr. Nicolae Staicovici, Nr. 51, Sector 5, Bucuresti |
| 53. | PRO Academy Afterschool | 0744501156 | Str. Sibiel, nr. 6, Sector 4 |
| 54. | Paradisul Copiilor - Gradinita & After School Bucuresti | 0730007062 | Str. G-ral. Haralambie Nicolae, Nr. 38, Sector 4, Bucuresti |
| 55. | Centrul Educational Nordic sector 4 | 0786391446 | Splaiul Unirii, Nr. 176, Corp D3, Sector 4 |
| 56. | Bambi Step by Step- Gradinita Bucuresti | 0213273256; 0317102928 | Str. Gh. Dem Teodorescu, Nr.16 bis, Sector 3, Bucuresti |
| 57. | Licurici - Gradinita Bucuresti | 0212104790 | Bd. Dacia, Nr. 134, Sector2, Bucuresti |
| 58. | Academia Gifted International, Gradinita & After School - Bucuresti | 0724381661; 0722277090 | Str. Sold. Simion Stefan, nr. 39, sector 4, Bucuresti |
| 59. | Sfantul Nicolae, Gradinita & After School - Bucuresti | 0729611918 | Str. Sirenelor, Nr. 56-58, Sector 5, Bucuresti |
| 60. | My Universe - Afterschool si gradinita, Bucuresti | 0788416164 | Str. Costache Negri, Nr. 9-11, sector 5 |
| 61. | Gradinita Montessori Livada cu copii sector 2 | 0757467127; 0721204642 | Str. Toamnei, nr. 76-78, sector 2 |
| 62. | Family Kids, Gradinita si After School - Bucuresti | 0722565657; 0723281551 | Str. Mugur Mugurel, Nr. 21, Sector 3, Bucuresti |
| 63. | Puzzle Edu Center - Centru educational sector 2 | 0724536293 | Str. Gheorghe Pop de Basesti, nr. 17, Sector 2 |
| 64. | Kindi - Centru de educatie timpurie Montessori, Bucuresti | 0726876873 | Str. Delea Veche, Nr 35, sector 2 |
| 65. | Bell - Gradinita, Afterschool Bucuresti | 0728694516 | Str. Mecet, Nr. 53, Sector 2 |
| 66. | Iepurasul cel Istet - Cresa, Gradinita, After School sector 2 | 0731488715; 0722121779 | Str. Mihai Eminescu, nr. 179, sector 2 |
| 67. | Kiga 99 Luftballons - Gradinita, After School in limba germana Bucuresti | 0722395197; 0745423467 | Str. Theodor Sperantia, nr. 81, sector 3 |
| 68. | Copil Dorit - Gradinita Bucuresti | 0736820068; 0722166358 | Sos. Viilor, Nr. 33, Sector 5, Bucuresti |
| 69. | Casuta cu ferestre - Gradinita Bucuresti | 0721660052 | Str. Gheorghe Lupu, nr. 19, sector 4 |
| 70. | Castelul Bucuriei - Gradinita Bucuresti | 0730515181 | Str. Vasile Voiculescu, nr. 30, sector 3 |
| 71. | Gradinita Nr.161 (Brandusa) sector 3 | 0314250834; 0314250835 | Str. Branduselor, Nr. 37/43, sector 3 |
| 72. | Max und Moritz Kinder - Gradinita limba germana & After School Bucuresti | 0726374434 | Str. Plugarilor, Nr. 24, Sector 4, Bucuresti |
| 73. | Dreamland - Gradinita Bucuresti | 0787521511 | Str. Plugarilor, nr. 20-22, Sector 4, Bucuresti |
| 74. | Oxigen Sport - Befor School, After School Bucuresti | 0722529429 | Str. Duzilor, Nr. 23, sector 2, Bucuresti |
| 75. | Sonnenblume Kinderinstitut - Gradinita, Cresa Montessori Bucuresti | 0726471469 | Str. Calusei, nr. 36, sector 2 |
| 76. | Olga Gudynn, Gradinita si Scoala Cotroceni - Bucuresti | 0734411332; 0214106995 | Str. Fagaras, Nr. 6, Sector 1, Bucuresti |
| 77. | Abcdino, Gradinita - Bucuresti | 0213231070; 0725929616; 0745397739 | Str. Chiparosului, Nr. 31, Sector 3, Bucuresti |
| 78. | Don Castor, Gradinita & After School - Bucuresti | 0757073929; 0217945396 | Str. Vaselor, Nr. 17A, Sector 2, Bucuresti |
| 79. | Smart Kinder Villa - Before & After School Bucuresti | 0726285699; 0728472197 | Str. Nicolae Beldiceanu, nr. 2, sector 1 |
| 80. | Bob de Grau, Gradinita si Cresa - Bucuresti | 0720446942 | Str. Agricultori, Nr. 142, Sector 3, Bucuresti |
| 81. | Big Smile - Gradinita, scoala primara, After School Bucuresti | 0722557333 | Str. Cutitul de Argint, nr. 74, sector 4, Bucuresti |
| 82. | Kinderakademie - Gradinita & After School Bucuresti | 0724661760; 0727427004 | Str. Sfintii Voievozi, Nr. 28, Sector 1, Bucuresti |
| 83. | Alfred Fronius - Gradinita si afterschool in limba germana Bucuresti | 0729699619; 0726715499 | Str. Tunari, Nr. 39, Sector 2, Bucuresti |
| 84. | Castelino Baby - Gradinita Bucuresti | 0731995600 | Str. Prof. Ion Ursu, nr. 21, sector 2, |
| 85. | Alfred Fronius - Gradinita si afterschool in limba germana Bucuresti | 0372978427; 0726715499 | Str. Tunari, Nr. 39 (zona Stefan Cel Mare), sector 2 |
| 86. | WhizKidz Hub - Afterschool, Centru educational Bucuresti | 0742602260 | Str. Gradinarilor, nr. 14, Sector 3 |
| 87. | Nicoland - Cresa, Gradinita Bucuresti | 0766237114 | Str. Raspantiilor, Nr. 7, Sector 2 |
| 88. | Cei Trei Muschetari - Before si After School, Bucuresti | 0724384924 | Str. Vaselor, Nr. 40, Sector 2, Bucuresti |
| 89. | Jolly Pepe - Club educational pentru copii si adulti, Before&After School sector 4 | 0748080088 | Str. Mitropolit Grigore, nr. 4A, parter, sector 4 |
| 90. | Little Princess 1 - Cresa, Gradinita Bucuresti | 0756070390; 0744321574; 0744703973 | Str. Popa Stoica Farcas, Nr. 64-66, Sector 3, Bucuresti |
| 91. | Asociatia Conil - Gradinita pentru copii cu nevoi speciale Bucuresti | 0784412222; 0217466704; 0735847526 | Str. Dr. Victor Poloni , nr 14, Sector 5, Bucuresti |
| 92. | Cartea cu Povesti - Gradinita Bucuresti | 0766237114 | Str. Aurel Vlaicu, nr. 127A, sector 2, |
| 93. | Gradinita Nr. 252 Bucuresti | 0212302296 | Calea Dorobantilor, nr. 60, sector 1 |
| 94. | Maria Ward - Gradinita sector 4 | 0722789787 | Calea Serban Voda, nr. 223, sector 4 |
| 95. | Tom Sawyer - Gradinita sector 2 | 0722529958 | Str. Bratului, nr. 14, sector 2 |
| 96. | Gradinita nr. 138 sector 2 | 0212106377 | Str. Tunari, nr. 52, sector 2 |
| 97. | Teach Little People - Centru educational, Bucuresti | 0727401433 | Str. Alexander von Humboldt, nr. 2, sector 3 |
| 98. | Clubul Copiilor Sector 2 - Bucuresti | 0212106432 | Intr. Cobilitei, Nr. 8, Sector 2, Bucuresti |
| 99. | Scoala Italiana Aldo Moro - Gradinita,scoala, liceu, Bucuresti | 0212104684 | Intr. Blaj, nr. 1, Sector 1, Bucuresti |
| 100. | Once Upon a Time - Centrul educational adlerian Bucuresti | 0770590487 | Str. Ciobanasului, Nr. 22A, Sector 2 |
| 101. | Bulgarasi de Aur - Before & After School Bucuresti | 0723398829 | Str. Cogalnic, nr. 30, sector 3 |
| 102. | Cresa Ciobanasului | 0213223085 | Str. Ciobanasului, nr. 23, sector 2, |
| 103. | Electromagnetica - Gradinita sector 5 | 0218915699; 0214232110 | Calea Rahovei, nr. 266, sector 5 |
| 104. | Gradinita Nr. 168 sector 5 | 0213363515 | Sos. Viilor, nr. 99, sector 5 |
| 105. | Little Primary Education - Gradinita Bucuresti | 0733331333 | Intr. Docherilor, Nr. 3, Sector 2 |
| 106. | Montessima Educational - Afterschool zona Iancului, Bucuresti | 0771421104 | Str. Constantin Zlatescu, nr. 12, sector 2 |
| 107. | Mami si Tati - Gradinita, Before & After School Bucuresti | 0721177543; 0762616442 | Str. Grigore Alexandrescu, Nr. 58, sector 1, Bucuresti |
| 108. | ERA Kinderland - Gradinita, after school in limba germana sector 3 | 0728850073; 0213207697 | Str. Dristorului, nr. 67, sector 3 |
| 109. | Legolas - Centru Educational sector 3 | 0787322298; 0787460258; 0787298295 | Str. Nucului, nr. 55, sector 3 |
| 110. | Kids Power - Centru educational holistic pentru copii Bucuresti | 0741248260 | Str. Nucului, nr. 55, sector 3 |
| 111. | International Kindergarten & Nursery - Gradinita Bucuresti | 0723248978; 0314327798 | Str. Claudiu, Nr. 26, Sector 2, Bucuresti |
| 112. | Mica Printesa - Gradinita, after school Bucuresti | 0744321574; 0744703973 | Str. Vulcan Judetu, nr. 16, sector 3, |
| 113. | Little Princess 2 - After School / Before School Bucuresti | 0744703973; 0744321574; 0756070390 | Str. Vulcan Judetu, Nr. 16, Sector 3, Bucuresti |
| 114. | Capsunica - Gradinita sector 3 | 0765516162 | Str. Constantin Nottara, nr. 27, sector 3 |
| 115. | Iuladi Kids - Cresa, gradinita Bucuresti | 0769088777 | Str. Breaza, Nr. 78, Sector 3 |
| 116. | Gradinita nr. 271 sector 5 | 0214109024 | Bd. Eroii Sanitari, nr. 77, sector 5 |
| 117. | Discover Me- Gradinita Bucuresti | 0747774809 | Str. Constantin Noica, Nr. 120, sector 6, Bucuresti |
| 118. | Little Oaks Academy - Gradinita sector 3 | 0766572126; 0766572127 | Sos. Mihai Bravu, Sos. Mihai Bravu nr. 286, sector 3 |
| 119. | Gradinita M.Ap.N. nr. 1 sector 6 | 0213196009; 0766298724 | Calea Plevnei, nr. 137B, sector 6 |
| 120. | Little Team - Gradinita / After School Bucuresti | 0799774767 | Calea 13 Septembrie, nr. 191, sector 5 |
| 121. | Luminita - Gradinita sector 2 | 0212503180 | Sos. Iancului, nr. 4A, sector 2 |
| 122. | Adnan, Gradinita - Bucuresti | 0744606010; 0722205243 | Intr. Buturugeni, Nr. 7 Sector 5, Bucuresti |
| 123. | Arc-en-Ciel, Gradinita - Bucuresti | 0212524665; 0725519386; 0726126808 | Str. Ion Heliade Radulescu, Nr. 18, Sector 2, Bucuresti |
| 124. | Kinderträume - Gradinita Bucuresti | 0744507988 | Splaiul Independentei, Nr. 195, sector 6, Bucuresti |
| 125. | Just4Kids - Scoala Gimnaziala cu nivel gimnazial, primar si prescolar Bucuresti | 0739674601 | Str. Vantului, Nr. 27, Sector 3, Bucuresti |
| 126. | Little Star - Gradinita, After School sector 3 | 0745531279; 0724506631 | Str. Alexandru Magatti, nr. 13 A , sector 3 |
| 127. | LTN Liceul Teoretic National - Gradinita, Gimnaziu, Liceu - Bucuresti | 0720000171; 0732151931 | Str. Dr. Iacob Felix, nr. 49, Sector 1, Bucuresti |
| 128. | Gradinita Nr. 239 sector 3 | 0213245490 | Str. Dristorului, nr. 102, sector 3 |
| 129. | Pick Me Academy - Gradinita si scoala, Bucuresti | 0726000640 | Str. Slt. Pompiliu Manoliu, Nr. 7,Sector 2, Bucuresti |
| 130. | CoolTure MindS - After School Bucuresti | 0743359307 | Bd. Alexandru Ioan Cuza, nr. 37, Sector 1 |
| 131. | Smart Steps - Gradinita , After School sector 3 | 0733965133 | Str. Dristorului, nr. 91-95, bl. E, Parter, sector 3 |
| 132. | Kids\' World Nursery School - Gradinita Bucuresti | 0771242641 | Bd. Basarabia, Nr. 2, Sector 3 |
| 133. | Gradinita nr. 205 sector 5 | 0214233610 | Calea Ferentari, nr. 2, sector 5 |
| 134. | KeiKo AfterSchool Bucuresti | 0748880866 | Str. Magura Vulturului, nr. 6, Sector 2 |
| 135. | Puiutul Pufos - Gradinita Bucuresti | 0740140968; 0213440010 | Str. Emanoil Marius Buteica, Nr. 30, Sector 3, Bucuresti |
| 136. | Centrul Educational Fecioara Maria - Cresa, Gradinita Bucuresti | 0799741474; 0770574645 | Str. Eufrosina Popescu, Nr. 30, Sector 3, Bucuresti |
| 137. | Super Start - Gradinita, After School sector 2 | 0720528738 | Bd. Ferdinand I, nr. 156, Sector 2 |
| 138. | Zum Zum - Gradinita Bucuresti | 0745685556; 0740704922 | Str. Vespasian, Nr. 37, Sector 1, Bucuresti |
| 139. | Clopotel - Gradinita Bucuresti | 0212502197 | Str. Elev Dridu Georgescu, nr. 2, sector 2 |
| 140. | Top Kids - Gradinita sector 5 | 0214237723; 0737215703 ; 0764392790 | Str. Sergent Gheorghe Donici, Nr. 26-28, Sector 5 |
| 141. | Gradinita nr. 206 - Gradinita cu program prelungit Bucuresti | 0212229287 | Str. Constantin Disescu, nr. 37, sector 1 |
| 142. | Gradinita Nr. 256 Bucuresti | 0212506222 | Str. Atanase Ionescu, Nr. 25, Sector 2 |
| 143. | Springfield Education - Gradinita si After School Bucuresti | 0734710573; 0721707879 | Str. Soltuzului, Nr. 10, Sector 2, Bucuresti |
| 144. | Happy Kids - Gradinita si after school Bucuresti | 0770708392 | Str. Scoala Floreasca, Nr. 3, Sector 1, Bucuresti |
| 145. | Oskar - Before and After School Piata Victoriei | 0730948470 | Str. Monetariei, Nr. 14, Sector 1, Bucuresti |
| 146. | Oskar - Before&After School Bucuresti | 0734040227; 0730948470 | Str. Monetariei, nr. 12, sector 1 |
| 147. | Aristokids, Gradinita & After School - Bucuresti | 0722648885 | Str. Lebedei, Nr. 25, Sector 1, Bucuresti |
| 148. | Creative Minds Kindergarten - Gradinita Bucuresti | 0726152551 | Str. Alexandru Deparateanu, nr. 38, sector 1 |
| 149. | Plusica - Gradinita & Afterschool sector 3 | 0768596856 | Str. Drumeagului, nr. 51, sector 3 |
| 150. | Dumbo Kids Academy - Cresa, Gradinita, Before & After School sector 3 | 0722320023 | Intr. Patinoarului, nr. 42A, sector 3 |
| 151. | Gradinita Nr. 248 Bucuresti | 0212224120 | Str. Artur Vartejeanu, Nr. 15, Sector 1 |
| 152. | Analesia - Gradinita & AfterSchool in limba germana Bucuresti | 0741332222; 0741332226 | Str. Paris, nr. 57, sector 1 |
| 153. | Piccolo Grande - After School, loc de joaca sector 3 | 0754200258 | Intr. Patinoarului, nr. 52, Sector 3 |
| 154. | Gradinita nr. 54 sector 5 | 0214231217 | Calea Ferentari, nr. 96, sector 5 |
| 155. | Kids First - Gradinita Bucuresti | 0748880866; Varnavelena@gmail.com | Str. Sica Alexandrescu, nr. 20, Sector 2, |
| 156. | Orhideea Kids - Gradinita & After School Bucuresti | 0748595311 | Calea Plevnei, Nr. 145B, sector 1, Bucuresti |
| 157. | Land of Kids Afterschool sector 2 | 0766831831; 0726733314 | Str. Constantin Tanase, Nr. 22, Sector 2 |
| 158. | Gradinita Nr. 251 Bucuresti | 0212301417 | Str. Venezuela, nr. 11, sector 1 |
| 159. | Smiley After School sector 2 | 0727401829 | Bd. Basarabia, nr. 62A, sector 2 |
| 160. | Praslea cel Voinic - Gradinita & After School Bucuresti | 0722773103; 0733839824 | Str. Competitiei, Nr. 38, Sector 2, Bucuresti |
| 161. | Martisor AfterSchool sector 4 | 0727017553 | Str. Cararuia, nr. 1, sector 4 |
| 162. | Sincron - Gradinita, After School Sector 3 | 0722243877 | Calea Vitan, nr. 206, sector 3 |
| 163. | City Kids - Gradinita si afterschool Bucuresti | 0756862825 | Str. Ruschita, Nr. 41, sector 2 |
| 164. | Funny Clown, Gradinita & After School - Bucuresti | 0740806356 | Str. Ruschita, Nr. 41, Sector 2, Bucuresti |
| 165. | Gradinita Nr. 178 Flori de Tei sector 5 | 0214234065 | Str. Iancu Jianu, Nr. 26, Sector 5 |
| 166. | Castelul Fermecat - Gradinita, After School Bucuresti | 0745770001; 0752314458; 0765957032 | Drumul Murgului, Nr. 32, Sector 3, Bucuresti |
| 167. | Monteclaris - Gradinita, before si afterschool Bucuresti | 0724671560; 0784606075 | Str. Maria Hagi Moscu, Nr. 29, Sector 1 |
| 168. | Sofia - Gradinita Bucuresti | 0721006006; 0212311505 | Str. Sofia, Nr. 20, Sector 1 |
| 169. | Gradinita cu program prelungit Nr. 135 | 0212421805 | Str. Masina de Paine, nr. 65, sector 2 |
| 170. | Saga Kid - After School sector 3 | 0743266500; 0756169135 | Str. Campia Libertatii, nr. 44, sector 3, |
| 171. | Kids Palace - Gradinita & After School Bucuresti | 0722612031 | Str. Obolului, Nr. 10, Sector 4, Bucuresti |
| 172. | Edu & Care - After School, cursuri pentru copii Bucuresti | 0721571086 | Str. Chopin, nr. 2 B, sector 2 |
| 173. | Steaua Nordului - Before and Afterschool Bucuresti | 0745040940 | Str. Andrei Muresanu, nr. 27, sector 1 |
| 174. | Domino - Gradinita Bucuresti | 0722492047 | Str. Constantin Georgian,, nr. 27, sector 2, Bucuresti |
| 175. | Junior School - Gradinita Bucuresti | 0751223159 | Str. Calimachi, nr. 17, Sector 2, |
| 176. | Castelul Copiilor din Tei, Gradinita - Bucuresti | 0212109962; 0764738888; 0739770707 | Str. Sfanta Treime, Nr. 28, Sector 2, Bucuresti |
| 177. | Rio - Gradinita & After School Bucuresti | 0740025434; 0748633314 | Str. Luigi Galvani, Nr. 13A, Sector 2, Bucuresti |
| 178. | Alexandra Kids, Gradinita, After School - Bucuresti | 0722151836; 0214206927 | Str. Petre Ispirescu, Nr. 69, Sector 5, Bucuresti |
| 179. | Kinderium - Before & After School Bucuresti | 0726177868 | Drumul Sarii, nr. 4A, sector 6 |
| 180. | Happy Planet Kids - Gradinita Bucuresti | 0214106984; 0722319863; 0740843914 | Str. Lt. Col. C-tin Marinescu, Nr. 17B, Sector 6, Bucuresti |
| 181. | OLIMPIA KIDS - gradinita particulara, cresa si after school Bucuresti | 0731680372 | Drumul intre Vii, Nr. 24, Sector 3 |
| 182. | Apostol - After School sector 2 | 0740951411 | Str. Seneslav Voievod, Nr. 55, Sector 2 |
| 183. | Castelul Fermecat Olimpia - Gradinita, scoala primara, Afterschool, Bucuresti | 0731680372 | Drumul intre Vii, Nr. 24, Sector 3, Bucuresti |
| 184. | Martisor - Gradinita sector 4 | 0213325936 | Str. Daracului, Nr. 11, Sector 4 |
| 185. | Pitiricky - Clubul celor mici - Bucuresti | 0724648513 | Str. Ialomicioarei, Nr. 13, Sector 1, Bucuresti |
| 186. | Zuppy - Gradinita, After School sector 2 | 0753915058 | Str. Otesani, nr. 69, Sector 2 |
| 187. | Gradinita Floare de colt (nr. 64) sector 3 | 0213464899 | Str. Schitului, nr. 1D, sector 3 |
| 188. | Zoom Kids Academy - Afterschool Sector 4 | 0756155660 | Str. Stejarisului, nr. 13, Sector 4 |
| 189. | Happy Kids Project - After school si before school, Bucuresti | 0745152802 | Sos. Iancului, Nr. 110, Sector 2, Bucuresti |
| 190. | Betty-Mar House - After / Before School, Bucuresti | 0732871827 | Str. Otescu Ion Nonna, nr. 23, sector 6 |
| 191. | Centrul Educational Nectarel - Afterschool Bucuresti | 0740221854 | Str. Baba Novac, nr. 17, sector 3 |
| 192. | Gradinita Nr. 7 Bucuresti | 0212421714 | Str. Maica Domnului, Nr. 61 - 63, Sector 2 |
| 193. | Veverita Jucausa - Gradinita sector 2 | 0726224859 | Str. Litovoi Voievod, Nr. 38, Sector 2 |
| 194. | Teddy Club - Club educational , After school Bucuresti | 0732138368; 0723188995 | Str. Duminicii, nr. 16, sector 4 |
| 195. | Micul Lord Gradinita - Bucuresti | 0730093603; 0745101507 | Str. Lespezi, nr. 4 , sector 5, |
| 196. | Elefantelul curios- Afterschool & more, sector 4 | 0767332115; 0727222015 | Bd. Constantin Brancoveanu, Nr. 7D, sector 4 |
| 197. | Centrul Multifunctional Cresa Dumbrava Minunata sector 4 | 0733200115; 0372715100; 0372715101 | Str. Stoian Militaru, nr. 84, sector 4 |
| 198. | Miro Kids World - Cresa, gradinita Bucuresti | 0767331173; 0756199161 | Str. Miroslavei, nr. 9, Sector 5 |
| 199. | Ciupercuta - Gradinita sector 4 | 0213324431 | Str. Stoian Militaru, nr. 86-90, sector 4 |
| 200. | Gradinita nr. 72 sector 5 | 0214233920 | Str. Sergent Scarlat, nr. 19, sector 5 |
| 201. | Gradinita din Povesti - Bucuresti | 0724987747 | Str. Costache Marinescu, Nr. 1A, Sector 1 |
| 202. | Gradinita Nr. 255 sector 3 | 0213462996; 0213462994 | Bd. Energeticienilor, Nr. 3, sector 3 |
| 203. | Lill put - Centru de educatie nonformala pentru prescolari, Bucuresti | 0722647423 | Str. Sarafinesti, Nr. 29, sector 2 |
| 204. | Marchengarten - Gradinita cu predare bilingva sector 6 | 0744378796 | Str. G-ral Ioan Culcer, nr. 49, sector 6 |
| 205. | Albinuta - Gradinita sector 2 | 0212303377 | Str. Dinu Lipatti, nr. 1, sector 2 |
| 206. | Dandi Kids, Gradinita & After School - Bucuresti | 0726758303 | Str. Rasovita, Nr. 18, Sector 3, Bucuresti |
| 207. | Casuta cu Pitici Mari si Mici - Gradinita, Afterschool Bucuresti | 0722626268 | Str. Silvia, nr. 11, Sector 2, Bucuresti |
| 208. | RosaMaria - Gradinita, cresa Bucuresti | 0746808080 | Str. Silvia, Nr. 18, Sector 2 |
| 209. | Gradinita nr. 262 Alba ca Zapada si Piticii sector 4 | 0213324435 | Str. Crisul Alb, nr. 30, sector 4 |
| 210. | INNA Kids Academy - Before & Afterschool Bucuresti | 0723290372 | Str. Johann Sebastian Bach, nr. 10, Sector 2 |
| 211. | Hands-On - Centru educational Bucuresti | 0725977815 | Bd. Iuliu Maniu, nr. 7, Cotroceni Business Center, Corp U, parter, sector 6 |
| 212. | Gradinita nr. 24 sector 3 | 0213441760 | Str. Locotenent Pascu Nicolae, nr. 12, sector 3 |
| 213. | A&M afterschool Bucuresti | 0723371319 | Bd. Camil Ressu, Nr. 33, bl. N4, sc. 1, ap. 4, int. 4, sector 3, |
| 214. | Gradinita nr. 233 sector 2 | 0216884518 | Str. Antonescu Petre, nr. 20, Sector 2 |
| 215. | Gradinita nr. 3 - sector 3 | 0213464112 | Str. Plt. Nedelcu Ion, Nr. 31, sector 3 |
| 216. | BritAcademy, Gradinita in limba engleza - Bucuresti | 0740329105 | Str. Olimpiadei, Nr. 36, Sector 2, Bucuresti |
| 217. | Gradinita nr. 188 Castel sector 2 | 0212504180; 0213179946 | Bd. Pierre de Coubertin, nr. 1, sector 2 |
| 218. | Gradinita cu Program Normal si Prelungit nr. 242 sector 5 | 0214502538 | Str. Magurei, nr. 8, sector 5 |
| 219. | Sarida Kids Club - Prescolari, After school, Scoala de vara, Cursuri, Bucuresti | 0726528844; 0760132301 | Str. Crisul Alb, Nr. 9-13, Sector 4, Bucuresti |
| 220. | Gradinita Floarea Soarelui sector 5 | 0214202148 | Str. M?rgeanului, nr. 81, sector 5 |
| 221. | Club Clever Kids - After School sector 4 | 0723791058 | Str. Preda Buzescu, nr. 12, Sector 4 |
| 222. | Casuta Fermecata - Gradinita sector 5 | 0214562082; 0214562083 | Str. Amurgului, nr. 2, sector 5 |
| 223. | Go Kids Go - Before and After-School Bucuresti | 0723076434; 0766480774 | Str. Clucerului, nr. 21, sector 1 |
| 224. | Teddybar - Gradinita, Bucuresti | 0212224455; 0723048602 | Str. Soimarestilor, nr. 29, sector 1, Bucuresti |
| 225. | Gradinita nr. 276 Bucuresti | 0212423280 | Str. Corabia, nr. 57, sector 2 |
| 226. | Piticul Curajos - Gradinita, After School sector 3 | 0749607276; 0314373583; 0213240124 | Str. Copaceni, Nr. 64, sector 3 |
| 227. | Step Up After School | 0723795703; 0723544019 | Str. Vultureni, nr. 85, Sector 4 |
| 228. | Cresa Teiul Doamnei Bucuresti | 0314104891 | Str. Teiul Doamnei, nr. 99, Sector 2 |
| 229. | Smiley Kindergarten, Gradinita & After School - Bucuresti | 0314366138; 0722541744 | Str. Gabriel Cioran, nr. 6, sector 6, |
| 230. | The Little Artist - Gradinita Bucuresti | 0737365283; 0743814767; 0722680765 | Str. Ing. Zablovschi, Nr. 7, Sector 1, Bucuresti |
| 231. | Iulia Pantazi - Centrul psihologic pentru copii Bucuresti | 0745480458; 0317304741 | Str. Cernauti, Nr.1, Sector 2, Bucuresti |
| 232. | Maya si Prietenii - Cresa, Gradinita sector 2 | 0755359162 | Str. Herta, nr. 32A, Sector 2, |
| 233. | Madi AfterSchool sector 2 | 0757837644 | Str. Herta, nr. 32A, Sector 2 |
| 234. | Gradinita Quiz | 0751425562 | Str. Abrud, nr. 134-136, sector 1 |
| 235. | Sfera Kinderzentrum - Gradinita, Before & After School Bucuresti | 0728024897 | Calea Grivitei, nr. 194, sector 1 |
| 236. | Gradinita nr. 34 sector 5 | 0214504937 | Str. Lacul Bucura, nr. 26, Sector 5 |
| 237. | Bufnita din Tei - Club de educatie nonformala si activitati recreative | 0751020362 | Str. Sg. Nitu Vasile, nr. 26, Sector 4 |
| 238. | Dora - gradinita particulara, After School Bucuresti | 0740156885; 0744644705 | Str. Farului, nr. 3, sector 4, Bucuresti |
| 239. | Luca - Gradinita si Cresa, After school, Scoala primara si gimnaziala, Liceu teoretic, Bucuresti | 0721335161; 0744894206 | Str. Sanmedru, Nr. 25, Sector 2, Bucuresti |
| 240. | Gradinita nr. 274 sector 6 | 0213163345 | Bd. Iuliu Maniu, nr. 11D, sector 6 |
| 241. | Gargarita - Gradinita sector 4 | 0744393654 | Str. Dumbr?veni, nr. 35, Sector 4, judetul Brasov |
| 242. | Universul Zambetelor - Gradinita si Cresa Bucuresti | 0765410512 | Str. Lunca Dunarii, nr. 7, sector 3 |
| 243. | Amadeus - Afterschool Bucuresti | 0770896313; 0721841416 | Str. Amidonul, nr. 2, Sector 2 |
| 244. | Taramul Magic Voi Reusi - After School sector 2 | 0727540913 | Bd. Chisinau, nr. 6-8, sector 2 |
| 245. | Cresa Potcoava (Titan II) sector 3 | 0213244810; 0213244880 | Str. Pictor Gheorghe Tattarescu, nr. 10, sector 3 |
| 246. | Centrul social multifunctional cresa Degetica sector 4 | 0733200060 | Aleea Mirea Mioara Luiza, nr. 1A, sector 4 |
| 247. | Cresa Sinaia sector 2 | 0212403528 | Aleea Sinaia, nr. 4, sector 2 |
| 248. | Gradinita nr. 69 sector 3 | 0213244141; 0213240000 | Bd. Pictor Nicolae Grigorescu, nr. 14, sector 3 |
| 249. | Cami - Gradinita particulara si afterschool Bucuresti | 0757402573 | Str. Carol Knappe, nr. 45,sector 1, Bucuresti |
| 250. | Cami Gradinita & After School - Bucuresti | 0757402573; 0749018642 | Str. Carol Knappe, Nr. 45, Sector 1, Bucuresti |
| 251. | Olga Gudynn International School - Gradinita, scoala si liceu, Bucuresti | 0734411359; 0212311202 | Str. Ancuta Baneasa, Nr. 8, sector 1, Bucuresti |
| 252. | Prichindel, Gradinita & After School - Bucuresti | 0216861856; 0745022748 | Str. Grigore Voda, Nr. 28, Sector 4, Bucuresti |
| 253. | Gradinita nr. 97 Bucuresti | 0212241162 | Str. Islaz, nr. 13, Sector 1 |
| 254. | Gradinita Nr. 111 sector 6 | 0214135161 | Str. Sibiu, Nr. 8, Sector 6 |
| 255. | Gradinita Nr. 35 sector 5 | 0214207995 | Str. Crizantemelor, nr. 2, sector 5 |
| 256. | Colt de Rai - Gradinita sector 6 | 0217965203; 0752645946 | Str. Garleni, Nr. 10, Sector 6 |
| 257. | WonderKids - Centru Educational Bucuresti | 0724258876 | Str. Crizantemelor, Nr. 7 sector 5 |
| 258. | Gradinita nr. 71 sector 3 | 0213480894 | Aleea Fuiorului, nr. 9 , sector 3 |
| 259. | Gradinita nr. 185 sector 5 | 0214200667; 0214205180 | Str. Garoafei, nr. 12, sector 5 |
| 260. | Aron\'s Education Center - Gradinita si After School, Bucuresti | 0734709613 | Str. Luminoasa, Nr. 8, sector 4, Bucuresti |
| 261. | Gradinita nr. 244 sector 5 | 0723919980; 0214234008; 0769 444 163 | Str. Humulesti, nr. 31, sector 5 |
| 262. | Garmy Kids - Gradinita si After School Bucuresti | 0311060294; 0745342225; 0734784673 | Sos. Vitan Birzesti, Nr. 7D-7E, sector 4 |
| 263. | Iepurasul Bocanila - Scoala si Gradinita sector 4 | 0722320773; 0722239508; 0214602246 | Str. Iarba Campului, nr. 91, sector 4, judetul Brasov |
| 264. | Ingenius Club - After School Bucuresti | 0729164275; 0733975456 | Str. Virgil Plesoianu, nr. 108, sector 1 |
| 265. | Corina Club - After School Bucuresti | 0744353015; 0766332833 | Str. Garleni, Nr. 11A, Sector 6, Bucuresti |
| 266. | Iilo - Gradinita & After School Bucuresti | 0720702910 | Str. Iarba Campului, Nr. 4, Sector 4, Bucuresti |
| 267. | Gradinita nr. 137 sector 2 | 0212407581; 0217960289 | Str. Plumbuita, nr. 5, sector 2 |
| 268. | B-Happy Afterschool sector 3 | 0722396590 | Intr. Horbotei, nr. 12, bl. 4, parter, sector 3 |
| 269. | Gradinita Happy Junior - Bucuresti | 0724229250; 0730309647 | Sos. Berceni, Nr. 8, Sector 4, Bucuresti |
| 270. | Good Family - Gradinita Bucuresti | 0748224225 | Str. Nicolae Filimon, Nr. 73A, sector 6 |
| 271. | Centrul Social Multifunctional Cresa Micii Magicieni sector 4 | 0371360128 | Str. Izvorul Muresului, nr. 4 |
| 272. | Gradinita nr. 225 Veseliei sector 4 | 0214502917; 0214502915 | Str. Izvorul Muresului, nr. 6, sector 4 |
| 273. | Gradinita nr. 53 sector 5 | 0214232145 | Aleea Bacau, nr. 2A, sector 5 |
| 274. | Robotics School - After School, ateliere de robotica Bucuresti | 0721861565 | Aleea Barajul Cucuteni, nr. 2, Bl M4A, sector 3 |
| 275. | Hänsel und Gretel - Gradinita & After School Bucuresti | 0212247704; 0743332447 | Str. Mr. Av. Stefan Sanatescu, Nr. 19, sector 1, Bucuresti |
| 276. | Paradisul Verde - Gradinita sector 5 | 0214232570 | Str. Pucheni, nr. 55, sector 5 |
| 277. | Avenor - Gradinita Bucuresti | 0737043475 | Str. Alexandru Constantinescu, nr. 65, sector 1 |
| 278. | Piticot - Gradinita sector 4 | 0214503827 | Str. Spinis, nr. 1, sector 4 |
| 279. | Gradinita nr. 41 sector 6 | 0214134988 | Str. Constantin Titel Petrescu, nr. 12, sector 6 |
| 280. | Young Academics - AfterSchool Bucuresti | 0755095974 | Str. Trotusului, nr. 39, sector 1 |
| 281. | Gradinita nr. 245 sector 5 | 0214237424 | Str. Tunsu Petre, nr. 9, sector 5 |
| 282. | Gradinita Nr. 280 sector 2 | 0212557980; 0212550205 | Str. Delfinului, nr. 4, sector 2 |
| 283. | Cresa Sf. Stelian sector 5 | 0214205630; 0736500544 | Str. Leresti, nr. 22, sector 5 |
| vezi mai multe | |||
| 1. | Euromedics Stem Life | 0800.800.855 (Apel gratuit); 021 311 55 92 | Str. Lipscani, Nr. 90A, et. 3, Sector 3 , |
| 2. | Institutul National de Recuperare, Medicina Fizica si Balneologie | Tel.0311302300 | Str. Sf. Dumitru, nr. 2 - ambulatoriu de recuperare clinica I si II, sector 3, |
| 3. | Centrul Medical Proctoline-Bucuresti | 0213017686- programari | Bd. Dimitrie Cantemir , nr. 1, bl. B2, sc. 3, et. 2, sector 4, |
| 4. | Centrul Medical Psoremiss-Bucuresti | 0213017696 | Bd. Dimitrie Cantemir, nr. 1, bl. B2, sc. 3, et. 2, sector 4, |
| 5. | Centrul de Diagnostic romano-german Medinst | 0319902 | Str.Sfanta Vineri, nr. 29, sector 3, |
| 6. | Spitalul Clinic Coltea | Tel. 0213874100; Fax 0213874101 | Bd. I.C. Bratianu, nr. 1, sector 3, |
| 7. | Clinica Medicala Sfantul Spiridon Vechi-Bucuresti | 0213351378; 0213351379; 0787820066 | Piata Natiunilor Unite, nr 5-7, sector 4, Bucuresti |
| 8. | Spitalul Clinic Coltea | Tel. 0213874100; Fax 0213874101 | Bd. I.C. Bratianu, nr. 1, sector 3, |
| 9. | Prof. Dr. Dimitrie Gerota, Spitalul de Urgenta MAI - Bucuresti | 0212523334 | Str. Vasile Vasilievici Stroescu, nr. 29-31, sector 2, |
| 10. | Policlinica Eforie-Bucuresti | Tel. 0213139922 | Str. Eforie, nr. 4, sector 5, |
| 11. | Spitalul Prof. Dr. Constantin Angelescu | 0213233040; 0213233041 | Aleea Cauzasi, nr. 49 - 51 sector 3, |
| 12. | SPITALUL PROF. DR. CONSTANTIN ANGELESCU | 0213233040; 0213233041 | Aleea Cauzasi, nr. 49-51, sector 3, |
| 13. | Centrul Medical Veridia-Bucuresti | 0213029434 | Str. Matei Basarab, nr. 45, sector 3, |
| 14. | Clinica Medicala On | .0213017676 | Bd. Dimitrie Cantemir nr. 1, bl. B2, sc. 3, et. 2, sector 4, |
| 15. | Podologica - Salon tratament pentru afectiunile picioarelor sector 4 | 0771458874 | Bd. Dimitrie Cantemir, nr. 15, bl.9, sc.6, sector 4, |
| 16. | POLICLINICA CU PLATA NR. 1 | Tel. 021.314.81.15; Fax 021.314.81.14 | Str. Bati?tei nr. 27, sector 2, |
| 17. | CENTRUL MEDICAL BATISTEI | 021.313.34.80; 021.313.14.55; 021.315.46.05 | Str. Tudor Arghezi nr. 28, sector 2 , |
| 18. | Standard Med-Bucuresti | 0722435435; 0314053950 | Bd. Carol, nr. 45, ap.5, parter, sector 2, |
| 19. | RomGerMed - Clinica Medicala Bucuresti | Tel. 0213110075; 0725302475 | Calea Plevnei, nr. 137C, sector 6, |
| 20. | Omnia Medical Center - Clinica medicala, Bucuresti | 0213230034; 0728841841 | Bd. Octavian Goga, Nr. 14, Bl. M61, Parter, Sector 3, Bucuresti |
| 21. | Centrul Medical Dr. Stoia Ion- Bucuresti | 0212116848 int.219; 0213175025 | Str. Thomas Masaryk , nr. 5, sector 2 , |
| 22. | Cron Phoenix - Centru de Reabilitare Ortopedica si Neurologica pentru copii Bucuresti | 0721567186; 0790667941 | Piata Pache Protopopescu, nr. 9, sector 2 |
| 23. | Spitalul Clinic de Chirurgie Oro-Maxilo-Faciala -Bucuresti | Tel/Fax. 0213158855; 0213155217 | Calea Plevnei, nr. 17-21, sector 1 , |
| 24. | Spitalul Clinic de Chirurgie Oro-Maxilo-Faciala \"Prof. Dr. Dan Theodorescu\" | Tel/Fax. 0213158855; 0213155217 | Calea Plevnei, nr. 17-21, sector 1, |
| 25. | Village Medical Clinic - Centru medical Bucuresti | 0212323580 | Str. Constantin Kiritescu, nr. 27, sector 2, |
| 26. | Policlinica Regina Maria - Enescu | 0219268 | Str. George Enescu, nr.12, sector 1, |
| 27. | Institutul National de Diabet, Nutritie si Boli Metabolice \"Prof. Dr. N. Paulescu\" | Tel. 0212108499 (centrala); 0212106460 (secretariat); Fax 0212109092 | Str. Ion Movila, nr. 5-7, sector 2 , |
| 28. | Institutul National de Diabet, Nutritie si Boli Metabolice \"Prof. Dr. N. Paulescu\" | 0212106460 (secretariat); 0212109092 | Str. Ion Movila, nr.5-7, sector 2, |
| 29. | Clinica Medicala Data Plus-Bucuresti | 0213131491 | Str.Cobalcescu Grigore, nr. 35,sector 1, |
| 30. | Spitalul Clinic Dr. I. Cantacuzino | Tel. 0212107100; 0212108499 (diabetologie) | Str. Ioan Movila, nr. 5-7, sector 2, Bucuresti |
| 31. | Spitalul Clinic Dr. I. Cantacuzino-Bucuresti | Tel.0212107100; Fax.0212106435 | Str. Ion Movila nr. 5-7, sector 2 , |
| 32. | Optim Sano - Centrul Medical Dr. Ion Socoteanu-Bucuresti | 0728955844 | Str. Salcamilor, Nr. 6A, sector 2, |
| 33. | Spitalul de Urgente Oftalmologice + Ambulatoriu | 0213192751; 0213192752 | P-ta Lahovari nr. 1, sector 1, |
| 34. | Spitalul de Urgente Oftalmologice + Ambulatoriu | 0213192751; 0213192753 | P-ta Lahovari, nr. 1, sector 1, |
| 35. | Spitalul Clinic de Ortopedie Traumatologie Foisor-Bucuresti | Tel.0212520057; Fax.0212521387; 0310056786(progamari consultatii) | Bd. Ferdinand, nr. 35-37, sector 2 , |
| 36. | Spitalul Clinic de Ortopedie Traumatologie \"Foisor\" + ambulatoriu | Tel. 0310056786; 0212520057; Fax 0212521387 | Bd. Ferdinand, nr. 35-37, sector 2, |
| 37. | Centrul Medical Bio Terra Med- Bucuresti | 0726243473; 0724262110; 0774022961 | Calea Grivitei, nr. 3, Sector 1, |
| 38. | Spitalul de Urgenta Prof. Doctor Dimitrie Gerota | 0212523334; Fax 0212522829 | Str. Vasile Vasilievici Stroescu, nr. 29-31, sector 2, |
| 39. | Spitalul Clinic de Nefrologie - Dr. Carol Davila | Tel. 0213189184 (centrala) | Calea Grivitei, nr. 4, sector 1, |
| 40. | Policlinica pentru copii Regina Maria - Opera | 0219268 | Str. Costache Negri, nr. 1-5, sector 5, |
| 41. | Bioderm Medical Cente- Bucuresti | Tel. 0722338383 | Str. Mihai Eminescu, nr. 42, sector 1, |
| 42. | Donna Medical Center-Bucuresti | 0219732 | Str. Traian , nr. 234, et.1, sector 2, |
| 43. | Rytmomed - Clinica medicala Bucuresti | 0737181511 | Str. Popa Tatu, nr. 35, Sector 1 |
| 44. | Vitan Policlinica, Grupare de cabinete medicale - Bucuresti | 0727451211; 0213234970; 0213221208 | Calea Dudesti, Nr. 104-124, sector 3, Bucuresti |
| 45. | Cabinet Medical Persepolis- Bucuresti | 0749065961; 0751011893 | Str. Vasile Toneanu , nr. 20, sector 3, |
| 46. | Clinica Life-Med-Bucuresti | 0319981 | Str. Plugarilor , nr. 18,sector 4, |
| 47. | Societatea Civila Medicala Doctor Popescu Daniel si Asociatii | Tel/Fax 021.336.55.03 | Calea Serban Voda, nr. 211, sector 4 , |
| 48. | Clinica Medicala Estet Laser Medical Center | Tel/Fax 0212531797; 0721241772; 0733625687 | Str. Calusei nr. 11, sector 2, |
| 49. | PriMed - Clinica Medicala Bucuresti | 0219986; 0720034774 | Bd. Dinicu Golescu, nr.10, sector 1 |
| 50. | Emergency Medical Care - Servicii medicale de urgenta la domiciliu Bucuresti & Ilfov | 0799058058; 0732528136; 0314250213 | Calea Vitan, Nr. 109B-109D, Sector 3, Bucuresti |
| 51. | Imuno Medica - Centrul de preventie, diagnostic si tratament Sf. Ioan Botezatorul | 0314050350; 0771771333 | Str. Virgiliu nr. 81, sector 1 |
| 52. | Professional Klinic, Bucuresti - Tratament si analize | 0314250805 ; 0742207755 | Str.Agricultori, Nr. 115, bloc 79, Parter, Sector 3, Bucuresti |
| 53. | Clinica Memento Med-Bucuresti | 0213260081 | Str. Brailita, nr. 1, sector 3, |
| 54. | Ambulatoriul Spitalului Universitar de Urgenta | Tel. 0213180519/29; 0212026147 | Splaiul Independentei, nr. 169, sector 5 , |
| 55. | Centrul Medical Apolo- Bucuresti | Tel. 0214101770; 0214101615; 0744377034 | Str. Coriolan Caius Marcius, nr. 41 (lang? benzinaria MOL Tudor Vladimirescu), sector 5, |
| 56. | Spitalul Clinic \"Prof. Dr. Theodor Burghele\" + Ambulatoriu | Tel. 0214106910; Fax 0214111055 | Sos. Panduri nr. 20, sector 5, |
| 57. | Gral Medical - Centrul Medical, Bucuresti | 0213230000; 0724242259 (programari radiologie); Fax 0213230002 | Str.Traian Popovici (fosta Unitatii), Nr. 79-91, Sector 3, Bucuresti |
| 58. | RomGerMed - Clinica Medicala Bucuresti | Tel. 0213110075; 0727999602 | Calea Plevnei, 137 C, sector 6, |
| 59. | Spitalul Clinic \"Prof. Dr. Theodor Burghele\" + Ambulatoriu | Tel.0214106910; Fax.0214111055 | Sos. Panduri, nr. 20, sector 5, |
| 60. | Centru Medical Mediclass - Cotroceni | 0214102727; 0214120128; 0214120129 | Str. Elefterie, nr. 47-49 (Complex Comercial Cotroceni), sector 5, |
| 61. | Institutul National pentru medicina complementara si alternativa | Tel.0783002934; 0214102419 | Sos. Panduri , nr. 22, sector 5, |
| 62. | Spitalul Universitar de Urgenta Bucuresti - SUUB | Tel. 0213180519; Fax 0213180554 | Splaiul Independentei, nr. 169, sector 5 , |
| 63. | Spitalul Universitar de Urgenta Bucuresti - SUUB | Tel. 0213180519; 0213180554 | Splaiul Independentei nr. 169, sector 5, |
| 64. | Centrul Medical Romedical Int | Tel. 0212100381; 0723288108 | Str. Fainari nr. 35, sector 2, |
| 65. | Spitalul Clinic de Urgenta pentru Copii \"Grigore Alexandrescu\" | 0213169366:Centrala telefonica; 0213110994:Unitatea Primiri Urgente | Bd.Iancu de Hunedoara, nr. 30-32, sector 1, Bucuresti |
| 66. | Centrul Medical Panduri-Bucuresti | 0731806118; 0219901 | Str. Dr. Ioan Atanasiu, nr. 34, sector 5, |
| 67. | Clinica Medicala Blaj Stefan-Bucuresti | 0742010636 | Str.Ciprian Porumbescu, nr. 12, sector 1, |
| 68. | Spitalul Clinic de Urgenta pentru Copii \"Grigore Alexandrescu\" | Tel. 0213169366; 0213169366 int. 133/155; UPU.0213110994 | Bd. Iancu de Hunedoara, nr. 30-32, sector 1 , |
| 69. | Spitalul Clinic de Urgenta pentru Copii \"Grigore Alexandrescu\" | 0213169366:Centrala telefonica; 0213110994 :Unitatea Primiri Urgente | Bd. Iancu de Hunedoara, nr. 30-32, sector 1, Bucuresti |
| 70. | SPITALUL SF. STEFAN + ambulatoriu | 021.210.39.36 | Sos. Stefan cel Mare nr. 11, sector 2, |
| 71. | SPITALUL SF. STEFAN + ambulatoriu | 0212103936 | Sos. Stefan cel Mare, nr. 11, sector 2, |
| 72. | Spitalul de Urgenta Floreasca | Tel. 0215992300; 0215992308; Fax.0215992257 | Calea Floreasca nr. 8, sector 1, |
| 73. | Spitalul de Urgenta Floreasca + ambulatoriu-Bucuresti | Tel.021.5992300; Fax.021.5992257 | Calea Floreasca, nr. 8, sector 1, |
| 74. | Ambulatoriul Spitalului Clinic Colentina | 0213167320 ; 0213173245 / interior 5732; Fax: 0213161952 | Sos.Stefan cel Mare, nr. 19-21, sector 2, Bucuresti |
| 75. | Euroclinic | 0219268; 0219208 | Calea Floreasca, 14 A, Sector 1, Bucuresti |
| 76. | Spitalul Clinic Colentina + Ambulatoriu | 0213167320; 0213173245 ; Fax: 0213161952 | Sos. Stefan cel Mare, nr. 19-21, sector 2 , |
| 77. | Spitalul Clinic de Nefrologie - Dr. Carol Davila | Tel. 0213189184 (centrala); Fax 0213189184 | Calea Grivitei nr. 4, sector 1, |
| 78. | Spitalul Clinic de Boli Infectioase si Tropicale Dr. Victor Babes | 0213172727 / .28 / .29/ .30 (Centrala); 0213172721 | Sos. Mihai Bravu, nr. 281, sector 3, |
| 79. | Dr. Carol Davila, Spitalul Universitar de Urgenta Militar Central Bucuresti + ambulatoriu | Tel. 0213193052/60; 0213193030 | Str. Calea Plevnei , nr. 134, sector 1, |
| 80. | Ambulatoriul Spitalului Euroclinic | 0219208; Call Center:0219268 | Calea Floreasca, nr. 14A, sector 1, Bucuresti |
| 81. | Spitalul Clinic Colentina + Ambulatoriu | Tel. 0213167320; 0213173245; 0213165895 | Sos. Stefan cel Mare, nr. 19-21, sector 2, |
| 82. | Spitalul Euroclinic + ambulatoriu | 0219208 | Calea Floreasca, nr. 14 A, sector 1, Bucuresti |
| 83. | Spitalul Universitar de Urgenta Militar Central Dr. Carol Davila | Tel. 0213193052/60; Fax.0213193030 | Str. Calea Plevnei, nr. 134, sector 1, Bucuresti |
| 84. | Policlinica Baba Novac | 0770218336; 0748175572 | Str. Baba Novac, nr. 2, sector 3 |
| 85. | Marius Nasta, Institutul de Pneumoftiziologie Bucuresti | 0213356910; Fax 0213373801 | Sos.Viilor , nr. 90, sector 5 , |
| 86. | Marius Nasta, Institutul de Pneumoftiziologie + Ambulatoriu Bucuresti | 0213356910; 0213373801 | Sos.Viilor nr. 90, sector 5 , |
| 87. | Centrul Medical Sanador-Bucuresti | Tel. 0219699 | |
| 88. | Centrul Medical Sana-Bucuresti | 0212128222 | Str. Dr. Sergiu Dumitru, nr. 3, sector 1, |
| 89. | Dr. Victor Babes, Spitalul Clinic de Boli Infectioase si Tropicale Bucuresti | 0213172727 / .28 / .29/ .30 (Centrala); Fax 021 3172721 | Sos. Mihai Bravu, nr. 281, sector 3 , |
| 90. | Spitalul Clinic CF Witting + ambulatoriu | Tel. 0213129530; 0213129531; 0213176280 | Calea Plevnei nr. 142-144, sector 6, |
| 91. | Centrul Medical M Hospital-Bucuresti | 0219136; 0744812330; 0213162049 | Str.Witting, nr. 10-12, sector 1, Bucurestu |
| 92. | Policlinica Iancului-Bucuresti | Tel.0314255277 (laborator); 0212508490 (O.R.L.); 0212503333 | Sos. Iancului , nr. 3, sector 2 , |
| 93. | Centrul Medical Dr. Victor Babes-Bucuresti | 0213179503; Fax: 0213179502 | Sos. Mihai Bravu nr. 281, sector 3 , |
| 94. | Centrul Medical M Hospital-Bucuresti | Tel.0219136 | Str. Witing, nr. 10-12, sector 1 , |
| 95. | Clinica de Excelenta in Patologia Somnului Somnolog-Bucuresti | 0213118822; 0784442277 | Str.Dr.Leonte Anastasievici, nr.11, sector 5, |
| 96. | Centrul Medical Rom Med 2000 | 0726366370; 0213270441; Tel/Fax 0213206087 | Intr. Baba Novac, nr. 4 A, Sector 3, |
| 97. | LookClinic, Bucuresti - Centre de diagnosticare,preventie si implant de par | 0213203477 | Calea Dorobantilor, nr.188-190, sector 1, |
| 98. | Scanmed - Clinica Medicala Bucuresti | 0219215; 0317100141; 0729202202 | Sos. Panduri, nr. 71, Parter, Sector 5 |
| 99. | Institutul National de Boli Infectioase Prof. Dr. Matei Bals | Tel.0212010980; 0213186091 | Str. Dr. Calistrat Grozovici, nr. 1, sector 2, |
| 100. | Centrul Medical Hiperdia-Bucuresti | 0219338; Fax 0212507320 | Str.Ritmului, nr. 24, sector 2, Bucuresti |
| 101. | Centrul Medical Endocenter-Bucuresti | Tel.0764671233; Fax 0213267660 | Str. Arh. G. Sterian, nr. 8, sector 2, |
| 102. | Centrul Medical de Diagnostic, Tratament Ambulator si Medicina Preventiva | 0212300402; 0212302980; 0212305923 | Str. Washington, nr. 8-10, sector 1, |
| 103. | Centru Medical Stb-Bucuresti | 0213183430 (centrala); | Str. Dr. Grozovici, nr. 6, sector 2 , |
| 104. | Institutul National de Boli Infectioase Prof. Dr. Matei Bals | 0212010980 (centrala); 0213186090 | Str. Dr. Grozovici, Nr. 1, sector 2, |
| 105. | Centrul Medical Prain | 0212113430; 0212108476; 0723237430 | Calea Dorobantilor, nr. 32A,7,ET 1, |
| 106. | Spitalul clinic de copii Dr. Victor Gomoiu | 0314136700; 0314136701 | Bd. Basarabia nr. 21, sector 2, |
| 107. | Dr. V. Gomoiu, Spitalul de Copii - Ambulatoriul de specialitate Bucuresti | 0314136700; 0314136701; 0314136706 | Bd. Basarabia, nr. 21, sector 2, |
| 108. | Policlinica Regina Maria - Cotroceni | 0219268 | Sos. Cotroceni, nr. 20, sector 6, |
| 109. | Centrul Medical Amicus Med | Tel. 0766424841; Tel/Fax 0212508585 | Sos. Iancului nr. 17, bl. 106C, sc. 1, ap. 4, sector 2, |
| 110. | POLICLINICA MASINA DE PAINE | Tel.021. 242.07.82 ; 021.242.00.96 (oftalmologie); 021.242.67.04 (neuropsihiatrie) | Str. Masina de Paine nr. 47, sector 2 , |
| 111. | Centrul Medical Ioana-Bucuresti | 0212233810; 0786486156 | Str. Alexandru Ioan Cuza, nr. 81,, et. 1,sector 1, Bucuresti |
| 112. | Ioana Medical Center | 0212233810; 0786486156 | Bd. Alexandru Ioan Cuza, nr 81, et 1, sector 1 |
| 113. | Centrul de Transfuzie Sanguina Bucuresti | Tel. 0314053660; 0314053661; 0314053662 | Str. Constantin Caracas nr. 2-8, sector 1, |
| 114. | Policlinica Rahova-Bucuresti | 0214232080; 0214232081; 0214232082 | Str.Malcoci., nr. 4, sector 5 , Bucuresti |
| 115. | Clinica Medicala Elite-Bucuresti | Tel. 0720260024; 0212339776 | Str. Tudor Stefan, nr. 42-44, sector 1, |
| 116. | Medisan Family Clinic - Clinica medicala Bucuresti | 0217955980 | Str. Dr. Calin Ottoi, nr. 20-22, sector 2 |
| 117. | Policlinica Regina Maria Sun Plaza | 0219268 | Calea Vacaresti, nr.391, sector 4, mall Sun Plaza, etaj 2, intrarea prin mall, |
| 118. | Clinica Regina Maria - Perla-Bucuresti | 0219268 | Calea Dorobanti, nr. 126-130, sector 1, |
| 119. | Spitalul Clinic Sfanta Maria + ambulatoriu-Bucuresti | Tel. 0212223550; 0212223553 | Bd. Ion Mihalache nr. 37-39, sector 1, |
| 120. | Centrul Medical Focus | 0753035038 | Str. Dinicu Golescu, nr. 23-25 , sector 1, |
| 121. | Clinica Sanamed-Bucuresti | 0219442 | Calea Plevnei, Nr. 159,corpul B ,Sector 6, |
| 122. | Centrul Medical Focus | Tel. 0317111515; 0733072910 | Bd. Ferdinand nr. 141, sector 2, |
| 123. | Spitalul Clinic Sfanta Maria + ambulatoriu | Tel. 0212223553; 0212223550 | Bd. Ion Mihalache, nr. 37-39, sector 1, |
| 124. | Institutul National de Endocrinologie C. I. Parhon | Tel. 0213172041; 0213172042; Fax 0213170607 | Bd. Aviatorilor nr. 34-36, sector 1 , |
| 125. | Institutul National de Endocrinologie C. I. Parhon | Tel. 0213172041; 0213172042; Fax 0213170607 | Bd. Aviatorilor, nr. 34-36, sector 1 , |
| 126. | Institutul National de Medicina Sportiva | 0213184704 ; 0213184705 ; 0213184706 | Bd. Basarabia, nr. 37-39, sector 2, Bucuresti |
| 127. | Clinica Psiho-Armonie-Bucuresti | 0730028680; 0311063523 | Str. N. Constantinescu, nr. 11, bl.11, sc.1, parter, ap.2, interfon 02,sector 1, |
| 128. | Prof.Dr. Agrippa Ionescu, Spitalul Clinic de Urgenta Bucuresti | 0377720000; Fax 0377726169 | Str. Arh. Ion Mincu , nr. 7, sector 1, |
| 129. | Clinica Nova ORL - Dr. Voda Ioana Alexandra-Bucuresti | 0213254422; 0799848484 | Str. Pictor Gh. Tattarascu , nr. 2, subsol Policlinica Globului, in spatele cinematografului Gloria, Baba Novac, sector 3, |
| 130. | Clinica Medicover-Bucuresti | 0219896 | Str. Sergent Constantin Ghercu,, nr. 1A, sector 1, |
| 131. | Medicine Park International by Tuncay Öztürk - Centru de kinetoterapie si recuperare | 0727464464 | Str. Grigore Mora, nr. 19, Sector 1 |
| 132. | Alfred Rusescu, Institutul pentru ocrotirea mamei si copilului (I.O.M.C.) Bucuresti | Tel.0219365 | Bd. Lacul Tei, nr. 120, sector 2 , |
| 133. | Prof. Dr. Panait Sirbu, Spitalul Clinic de Obstetrica-Ginecologie Bucuresti | 0213161281; 0213161283 | Calea Giulesti, nr. 5, sector 6 , |
| 134. | Centrul Medical Cutera Medical Center-Bucuresti | Tel. 0746141620 | Str. Giacomo Puccini , nr. 8 A, sector 1, |
| 135. | Cord Blood Center-Bucuresti | 0739853208 | Str. Ramuri Tei, nr. 20, sector 2, |
| 136. | Institutul national pentru sanatatea mamei si copilului Alfred Rusescu | Tel.0219365 | Bd. Lacul Tei, nr. 120, sector 2, |
| 137. | Clinica Lil Med-Bucuresti | 0214206055; Fax:0214212231 | Str. Suzana , nr. 7, corp 1,sector 5, |
| 138. | Prof. Dr. Panait Sirbu, Spitalul Clinic de Obstetrica-Ginecologie Bucuresti | 0213161281; 0213161283; 0213161287 | Calea Giulesti, nr. 5, sector 6, bucuresti |
| 139. | Spitalul Euroclinic | Tel. 0219268; 0219208 | Calea Floreasca nr. 14 A, sector 1, |
| 140. | Cabinet Medical Alfa | Tel.0319495 | Sos. Oltenitei, nr. 220, bl. 8, sc. 2, ap. 58, sector 4, |
| 141. | Clinica Medicala Provita Diagnostic si Tratament-Bucuresti | Tel. 0219432 | Str.Alexandrina, nr. 20 , sector 1, |
| 142. | Clinica Medicala Alco San | 021.211.41.12; 0755.050.055; Fax 021.211.41.13 | Str. Barbu Vacarescu, nr. 67, sector 2, |
| 143. | Spitalul Clinic Judetean de Urgenta Ilfov | Tel.0213243312; 0213241161; Fax 0213243296 | Bd. Basarabia nr. 49-51, sector 2, |
| 144. | Spitalul Clinic Judetean de Urgenta Ilfov + ambulatoriu-Bucuresti | Tel.021.3243312; 0213241161; Fax .0213243296 | Bd. Basarabia nr. 49-51, sector 2 , |
| 145. | Centrul medical Ghencea Medical Center- Bucuresti | 0219838; 0752493636 ; 0756045204 | Bd. Ghencea , Nr. 43 B, sector 6, Bucuresti |
| 146. | Cabinet Medical dr. Jovin | Tel. 0746418043; Tel/Fax 0212312116 | Str. Wolfgang Amadeus Mozart nr. 31, sector 2, |
| 147. | Spitalul Clinic de Urgenta pentru Copii - M.S. Curie (Budimex) + ambulatoriu | 0214603026; 0214601035 (Primiri Urgente); 0214604260 (Ambulatoriul) | Bd. Constantin Brancoveanu, Nr. 20, Sector 4, Bucuresti |
| 148. | Doris - centru de testare COVID 19 Bucuresti | 0732684319 | Bd. Iuliu Maniu, nr. 11, sector 6, |
| 149. | Spitalul Clinic de Urgenta pentru Copii M.S. Curie + ambulatoriu | Tel. 0214604260; 0214603026 | Bd. Constantin Brancoveanu, nr. 20, sector 4, |
| 150. | Hipocrat 2000-clinica medicala-Bucuresti | 0219605 | Bd. Chisinau, nr. 16, sector 2, |
| 151. | Policlinica Alfa Medical | 0214604144; 0319495 | Izvorul Rece, Nr. 18A, Sector 4, Bucuresti |
| 152. | Centrul medical PoeMedica Bucuresti | 0214139387; 0217461632; 0757109599 | Bd. 1 Mai, nr. 24, sector 6, |
| 153. | Clinica Medicala Medlife-Bucuresti | 0219646; 0742299843 | Str.Liviu Rebreanu, nr. 8,sector 3, |
| 154. | Spitalul Universitar de Urgenta Elias | 0213161600; Fax 0213161602 | Bd.Marasti, nr. 17, sector 1, |
| 155. | Dr. V. Gomoiu, Centrul Medical Bucuresti | 0314136700; 0314136701 | Bd. Basarabia nr. 21, sector 2, |
| 156. | Spitalul Universitar de Urgenta Elias | 0213161600; Fax 0213161602; 0213112444 | Bd. Marasti nr. 17, sector 1, |
| 157. | Centrul Medical Nicomed-Bucuresti | 0216372458; 0731338524 | Calea Crangasi, nr. 23, ap.1, sector 6, |
| 158. | Centrul Medical Nicomed | 0216372458; 0731338524 | Calea Crangasi nr. 23, bl. 13, sc. 2, ap. 1, sector 6, |
| 159. | Centrul Medical Hiperdia | 0213021160; Tel/Fax: 0213340030 | Sos. Berceni, Nr. 10-12, sector 4 (incinta Spitalului de Urgenta Bagdasar Arseni), Bucuresti |
| vezi mai multe | |||
| 1. | Laude-Reut, Complex Educational Bucuresti | 0314382046; 0318055772 | Str. Clucerul Udricani, Nr. 12, Sector 3, Bucuresti |
| 2. | AWEsome Primary School - Scoala clasele primare Bucuresti | 0750460737 | Str. Ienachita Vacarescu, nr. 22B, sector 4 |
| 3. | Kretzulescu Nicolae, Scoala Superioara Comerciala - Bucuresti | 0213139082 | Bd. Hriso Botev, Nr. 17, Sector 3, Bucuresti |
| 4. | Ion Creanga Colegiu National - Bucuresti | 0213362695 | Str. Cuza Voda, Nr. 51, sector 4, Bucuresti |
| 5. | Barbu Delavrancea, Scoala Gimnaziala Nr.73 - Bucuresti | 0213237390 | Str. Matei Basarab, Nr. 28-30, Sector 3, Bucuresti |
| 6. | Scoala Gimnaziala Nr. 79 - Bucuresti | 0314257884 | Str. Cuza Voda, Nr. 51, Sector 4, Bucuresti |
| 7. | Seminarul Teologic Ortodox Bucuresti | 0213305754; 0731205629; 0213305754 | Str. Radu Voda, Nr. 24 A, Sector 4, Bucuresti |
| 8. | Matei Basarab, Colegiul National - Bucuresti | 0213216640 | Str. Matei Basarab, Nr. 32, Sector 3, Bucuresti |
| 9. | Mihai Ionescu, Scoala Primara, Gimnaziu, Liceu - Bucuresti | 0213235495 | Str. Cauzasi, Nr. 43, Sector 3, Bucuresti |
| 10. | Mihai Ionescu, Gradinita, Gimnaziu si Liceu - Bucuresti | 0213235495; 0314054929 | Cauzasi, Nr. 43, Sector 3 , Bucuresti |
| 11. | Scoala Gimnaziala Ienachita Vacarescu, Bucuresti | 0213355705 | Calea Serban Voda, Nr. 62-64, sector 4, Bucuresti |
| 12. | Colegiul National de Arte Dinu Lipatti - Bucuresti | 0213363588 | Str. Principatele Unite, Nr. 63, Sector 4, Bucuresti |
| 13. | Floria Capsali, Liceul de Coregrafie - Bucuresti | 0213363792 | Str. Capitan Preotescu, Nr. 9, Sector 4, Bucuresti |
| 14. | Spiru Haret, Colegiu National - Bucuresti | 0213136462 | Str. Italiana, Nr. 17, Sector 2, Bucuresti |
| 15. | Scoala Gimnaziala Nr. 71 - Bucuresti | 0213141395; 0213141391 | Calea Mosilor, Nr. 148, Sector 2, Bucuresti |
| 16. | Hermes, Colegiul Economic - Bucuresti | 0213147645 | Calea Mosilor, Nr. 152, Sector 2, Bucuresti |
| 17. | Scoala de Arta Bucuresti | 0213306700 | Str. Cuza Voda, nr. 100, |
| 18. | FEG, Scoala Postliceala in domeniului medical - Bucuresti | 0213111054; 0314050362; 0788424314 | Walter Maracineanu, Nr. 1-3, Intrarea 2, Etaj. 2,, Bucuresti |
| 19. | Gheorghe Lazar, Colegiu National - Bucuresti | 0213134756 | Bd. Regina Elisabeta, Nr. 48, Sector 5, Bucuresti |
| 20. | Tudor Arghezi, Scoala Gimnaziala Nr. 19 - Bucuresti | 0213169187 | Str. Tudor Arghezi, Nr. 46-50, Sector 2, Bucuresti |
| 21. | Montessano - Scoala primara si gradinita, Bucuresti | 0724924070; 0724919711 | Str. Labirint, nr. 97-99, sector 3 |
| 22. | Penticostal Emanuel, Liceul Teologic - Bucuresti | 0213311669 | Str. Cuza Voda, Nr. 116, Sector 4, Bucuresti |
| 23. | Kids Kingdom - Before & After School Bucuresti | 0799199627 | Intrarea Traian Demetrescu, Nr. 8, sector 3 |
| 24. | Scoala Gimnaziala Nr. 81 - Bucuresti | 0213263220 | Str. Nerva Traian, Nr. 33, Sector 3, Bucuresti |
| 25. | Vasile Alecsandri, Scoala Gimnaziala (fosta Nr. 118) - Bucuresti | 0213138287 | Str. Stirbei Voda, Nr. 32-34, Sector 1, Bucuresti |
| 26. | Mirunette Education, Consiliere si Programe Educationale - Bucuresti | 0212101602 | Valeriu Braniste, Nr. 37-39, Etaj 1, Ap. 3, Cam. 3, Sector 3, Bucuresti |
| 27. | Gheorghe Sincai, Colegiul National - Bucuresti | 0213369004; 0213361455 | Calea Serban Voda, Nr. 167, Sector 4, Bucuresti |
| 28. | Colegiul National - Scoala Centrala - Bucuresti | 0212118484; 0787288528 | Str. Icoanei, Nr. 3-5, Sector 2, Bucuresti |
| 29. | Sf. Sava, Colegiul National - Bucuresti | 0213149294; 0213126821 | Str. G-ral Berthelot, Nr. 23, Sector 1, Bucuresti |
| 30. | Scoala Gimnaziala nr. 5 - Bucuresti | 0213169918 | Calea Victoriei, Nr. 114, Sector 1, Bucuresti |
| 31. | A.D. Xenopol, Colegiul Economic - Bucuresti | 0213205719 | Str. Traian, Nr. 165, Sector 2, Bucuresti |
| 32. | George Cosbuc, Colegiul National Bilingv - Bucuresti | 0212528080 | Str. Olari, Nr. 29-31, Sector 2, Bucuresti |
| 33. | Miguel de Cervantes, Liceul Bilingv - Bucuresti | 0213149311 | Calea Plevnei, Nr. 38-40, Sector 1, Bucuresti |
| 34. | Sfantul Silvestru, Scoala Gimnaziala Nr. 23 - Bucuresti | 0212102045 | Str. Oltarului, Nr. 11, Sector 2, Bucuresti |
| 35. | Monterra - Scoala primara Bucuresti | 0743119481 | Str. Vasile Lascar, nr. 87, sector 2 |
| 36. | Victoria, Liceu Teoretic - Bucuresti | 0314250543; 0759478014 | Str. Turturelelor, nr. 11A, sector 3, Bucuresti |
| 37. | Scoala Gimnaziala Nr. 128 - Bucuresti | 0214102219 | Str. Ion Creanga, Nr. 6, Sector 5, Bucuresti |
| 38. | Scoala Gimnaziala Nr. 97 - Bucuresti | 0213302545 | Str. Viorele, Nr. 7, Sector 4, Bucuresti |
| 39. | Anastasia Popescu, Liceu Pedagogic Ortodox - Bucuresti | 0212524665; 0725519386; 0722805777 | Popa Nan, 47 B, Sector 2, Bucuresti |
| 40. | Virgil Madgearu, Colegiul Economic - Bucuresti | 0212117256 | Bd. Dacia, Nr. 34, Sector 1, Bucuresti |
| 41. | Scoala Gimnaziala Iancului Nr. 52 | 0212522260 | Bd. Pache Protopopescu, Nr. 50, Sector 2, Bucuresti |
| 42. | Cantemir Voda, Colegiul National - Bucuresti | 0212106935 | Str. Viitorului, Nr. 60, Sector 2, Bucuresti |
| 43. | Mihai Eminescu, Colegiul National - Bucuresti | 0213304001 | Str. V.V. Stanciu, Nr. 6 , Sector 4, Bucuresti |
| 44. | Mihai Viteazu, Colegiul National - Bucuresti | 0212525700; 0212525871 | Bd. Pache Protopopescu, Nr. 62, Sector 2, Bucuresti |
| 45. | EFI Bucarest - Scoala Franceza Internationala din Bucuresti | 0749098867 | Bulevardul Dacia, Nr. 12, Sector 1 |
| 46. | Colegiul Tehnic Petru Rares - Bucuresti | 0213304001 | Str. V. V. Stanciu, nr. 6, sector 4 |
| 47. | Institutul de matematica Simion Stoilow | 0213196506; 0213117780; Fax: 0213196505 | Calea Grivitei, Nr. 21, Sector 1, Bucuresti |
| 48. | Sweet Babies - Cresa, gradinita, after school, Bucuresti | 0785810011 | Strada Teleajen, 26B, sector 2 |
| 49. | Scoala Gimnaziala Nr. 95 - Bucuresti | 0770503408; 0213235185 | Str. Foisorului, Nr. 111-113, Sector 3, Bucuresti |
| 50. | Scoala Ioanid, Gradinita, Gimnaziu, Liceu - Bucuresti | 0758054401 | Str. Nicolae Iorga, nr. 21, Sector 1, Bucuresti |
| 51. | Elena Vacarescu, Scoala Gimnaziala - Bucuresti | 0213163630 | Str. Stanislav Cihoschi, nr. 15, sector 1, Bucuresti |
| 52. | Viilor, Colegiul Economic - Bucuresti | 0213160973; 0213160966 | Sos. Viilor, Nr. 38, Sector 5, Bucuresti |
| 53. | Fridolin, scoala primara si gimnaziala germana - Bucuresti | 0723584872 (Adina Stoenescu); 0722502522 (Christian Comsa) | Fagaras, Nr. 9-13, Sector 1, Bucuresti |
| 54. | Goethe, Colegiul German - Bucuresti | 0212113425 | Str. Stanislav Cihoschi, Nr. 17, Sector 1, Bucuresti |
| 55. | Scoala Gimnaziala Nr. 150 - Bucuresti | 0214108408 | Bd. Eroii Sanitari, Nr. 29-31, Sector 5, Bucuresti |
| 56. | Phoenix, Liceu Teoretic - Bucuresti | 0214341364; 0770911516 | Virgiliu, Nr. 40, Sector 1, Bucuresti |
| 57. | Serban, Scoala de Meserii - Bucuresti | 0722302252; 0212520382 | Intrarea Baritonului, Nr. 9 (prin Str. Matei Voievod Nr. 81-83), Sector 2, Bucuresti |
| 58. | Ady Endre, Liceu Teoretic - Bucuresti | 0212520192 | Bd. Ferdinand I, Nr. 89, Sector 2, Bucuresti |
| 59. | Uruguay, Scoala Gimnaziala - Bucuresti | 0216370361 | Str. Virgiliu, Nr. 40, Sector 1, Bucuresti |
| 60. | George Enescu, Colegiu National de Muzica - Bucuresti | 0760665312; 0213108871 | Str. General Gheorghe Manu, Nr. 30, Sector 1, Bucuresti |
| 61. | Scoala Gimnaziala Nr. 24 - Bucuresti | 0212107185 | Str. Tunari, Nr. 52, Sector 2, Bucuresti |
| 62. | Pick Me Academy - Scoala Primara Bucuresti | 0726000640; 0722391000 | Strada Agricultori, Nr. 79, Sector 2, Scoala Primara |
| 63. | Maica Domnului, Scoala Gimnaziala Nr. 50 - Bucuresti | 0212520310 | Str. Ion Maiorescu, Nr. 32, Sector 2, Bucuresti |
| 64. | I.N.Socolescu, Colegiul Tehnic de Arhitectura si Lucrari Publice - Bucuresti | 0213108958 | Occidentului, Nr. 12, Sector 1, Bucuresti |
| 65. | Iulia Hasdeu, Colegiu National - Bucuresti | 0212524508 | Bd. Ferdinand, Nr. 91, Sector 2, Bucuresti |
| 66. | Carol Davila, Scoala Sanitara Postliceala - Bucuresti | 0216107068 | Str. Agricultori, nr. 35, 37-39 (cladirea Codecs), sector 2, |
| 67. | International British School - Bucuresti | 0212531698; 0745340841 | Str. Agricultori, Nr. 21-25, Sector 2, Bucuresti |
| 68. | Scoala Gimnaziala Nr. 56 - Bucuresti | 0212524125; 0733087815 | Bd. Pache Protopopescu, Nr. 109A, Sector 2, Bucuresti |
| 69. | Aldo Moro, Scoala Italiana - Bucuresti | 0212104684 | Intr. Blaj, nr. 1, Sector 1, Bucuresti |
| 70. | Liceul Teoretic National | 0720000171 | Str. Buzesti, Nr. 14-18; Sector 1, Bucuresti |
| 71. | Scoala Gimnaziala Nr. 85 | 0212524520 | Str. Dr. Constantin Zlatescu, Nr. 7A, sector 2, Bucuresti |
| 72. | Smart Koala Kids Club | 0771638419; 0771638425 | Calea 13 Septembrie, Nr.126A, bl.P43, sc.1, parter, ap. 2, sector 5, Bucuresti |
| 73. | Magia Copilariei - After-school Bucuresti | 0761912892 | Strada Nucului, Nr. 55, Sector 3 |
| 74. | Grigore Chercez, Colegiul Tehnologic - Bucuresti | 0213365890 | Calea Serban Voda, Nr. 280, Sector 5, Bucuresti |
| 75. | Scoala Gimnaziala Nr. 1 - Sfintii Voievozi | 0213127572; 0213164206; 0213179916 | Str. Atelierului, Nr. 25, Sector 1, Bucuresti |
| 76. | Colegiul Tehnic de Industrie Alimentara Dumitru Motoc - Bucuresti | 0215552876 | Str. Spatarul Preda, Nr. 16, sector 5 |
| 77. | Cuib - After school, Bucuresti | 0751088396 | Str. Fainari, Nr. 45A, sector 2 |
| 78. | Cezar Bolliac, Scoala Gimnaziala Nr. 70 - Bucuresti | 0314040172 | Intr. Tiglina, Nr. 37, Sector 3, Bucuresti |
| 79. | Alexandra Kids, Gradinita, After School - Bucuresti | 0788461573; 0214206927 | Calea Rahovei, Nr. 266-268, Sector 5, Bucuresti |
| 80. | Scoala Gimnaziala Nr. 80 - Bucuresti | 0213214256 | Calea Dudesti, Nr. 191, Sector 3, Bucuresti |
| 81. | Scoala Gimnaziala Nr. 307 - Bucuresti | 0212100012 | Str. Luncsoara, Nr. 3, Sector 2, Bucuresti |
| 82. | Liceul Teoretic Hyperion - Bucuresti | 0311032803 | Sos. Mihai Bravu, nr. 288C, sector 2 |
| 83. | Scoala Gimnaziala Nr. 115 | 0213163793; 0786401588 | Calea 13 Septembrie, Nr. 177, Sector 5, Bucuresti |
| 84. | Scoala Generala nr. 84 Nicolae Balcescu - Bucuresti | 0213216391 | Calea Vitan, Nr. 135, sector 3 |
| 85. | I.G. Duca, Scoala Gimnaziala 146 - Bucuresti | 0214100881 | Sos. Panduri, Nr. 42, Sector 5, Bucuresti |
| 86. | Colegiul Tehnic Mihai Bravu - Bucuresti | 0213217699 | Sos. Mihai Bravu, Nr. 428, Sector 3 |
| 87. | Scoala Gimnaziala Luceafarul - Bucuresti | 0214230480 | Str. Doina, Nr. 1, sector 5 |
| 88. | Emil Racovita, Colegiul National - Bucuresti | 0213217092; Fax 0213217092 | Sos. Mihai Bravu , nr. 169, sector 2, |
| 89. | Scoala Gimnaziala de Arte nr. 2 - Bucuresti | 0212525703 | Bd. Ferdinand I, Nr. 128, Sectorul 2 |
| 90. | Scoala 114 Principesa Margareta - Bucuresti | 0735679210/ 0213351405 | Str. Pandele Rosca, Nr. 2-4, sector 5 |
| 91. | Nicolae Tonitza, Liceu de Arte Plastice - Bucuresti | 0212302793 | Bd. Iancu de Hunedoara, Nr. 27, Sector 1, Bucuresti |
| 92. | Scoala Gimnaziala Nr. 28 - Bucuresti | 0212105910 | Aleea Circului, Nr. 1, sector 2 |
| 93. | Ada School - Bucuresti | 0723595916; 0721424485 | Dr. Carol Davila, Nr. 101, Bucuresti |
| 94. | Scoala Gimnaziala Grigore Tocilescu - Bucuresti | 0214231140 | Str. Grigore Tocilescu, Nr. 20, sector 5 |
| 95. | Mihail Sadoveanu, Liceu teoretic - Bucuresti | 0212527856 | Str. Popa Lazar, Nr. 8A, Sector 2, Bucuresti |
| 96. | About Scoala Metropolitana A.R.C | 0314254343; 0722522198 | Str. Esarfei, nr. 63-71, sector 3, |
| 97. | Ion I.C. Bratianu, Liceu Tehnologic - Bucuresti | 0310699448 | Str. Popa Lazar, Nr. 8A, Sector 2, Bucuresti |
| 98. | Dimitrie Gusti, Liceu Tehnologic - Bucuresti | 0214562050 | Str. Samuil Vulcan, Nr. 8, Sector 5, Bucuresti |
| 99. | Colegiul Romano-Catolic Sfantul Iosif - Bucuresti | 0213326602 | Sos. Oltenitei, Nr. 3-7, Sector 4, Bucuresti |
| 100. | Scoala Gimnaziala Nr. 280 - Bucuresti | 0214234068 | Str. Sergent Gheorghe Donici, Nr. 4A, Sector 5 |
| 101. | Iosif Sava, Scoala Gimnaziala de Arte - Bucuresti | 0212312470 | Str. Constantin Disescu, Nr. 37, Sector 1, Bucuresti |
| 102. | Liceul Teoretic Alexandru Vlahuta Bucuresti | 0212305292 | Str. Scoala Floreasca, nr. 5, sector 1 |
| 103. | I.L. Caragiale, Colegiul National - Bucuresti | 0212301021 | Calea Dorobantilor, nr. 163, sector 1, Bucurersti |
| 104. | Heliade Radulescu, Scoala Gimnaziala Nr. 11 - Bucuresti | 0213163633 | Sos. Kiseleff, nr. 5, sector 1, Bucuresti |
| 105. | Liceul Tehnologic Nikola Tesla - Bucuresti | 0212527886 | Sos. Pantelimon, Nr. 25, sector 2 |
| 106. | Nicolae Titulescu, Scoala Gimnaziala - Bucuresti | 0212236393 | Sos. Nicolae Titulescu, nr. 50-52, Sector 1, Bucuresti |
| 107. | Titu Maiorescu, Scoala Gimnaziala Nr.45 - Bucuresti | 0212301673 | Calea Dorobantilor, Nr. 163, Sector 1, Bucuresti |
| 108. | Mihai Botez, Scoala Gimnaziala Nr. 87 - Bucuresti | 0213462361 | Str. Ramnicu Valcea, Nr. 32, Sector 3, Bucuresti |
| 109. | Ion Barbu, Liceu Teoretic - Bucuresti | 0214102332 | Str. Nabucului, Nr. 18, Sector 5, Bucuresti |
| 110. | Dimitrie Bolintineanu, Liceu Teoretic - Bucuresti | 0214234060 | Calea Rahovei, Nr. 315, Sector 5, Bucuresti |
| 111. | Stefan Odobleja, Liceu teoretic - Bucuresti | 0214112213 | Str. Dorneasca, Nr. 7A, Sector 5, Bucuresti |
| 112. | Montessori - Scoala si gradinita, Bucuresti | 0754054402 | Str. Maior Ion Coravu, Nr. 53, Sector 2 |
| 113. | Leonardo Da Vinci, Scoala Gimnaziala Nr.75 - Bucuresti | 0213248676 | Str. Pictor Gheorghe Petrascu, Nr. 55, Sector 3, Bucuresti |
| 114. | Scoala Gimnaziala Nr. 49 - Bucuresti | 0212502444 | Str. Vatra Luminoasa, Nr. 99, Sector 2, Bucuresti |
| 115. | Scoala Gimnaziala Nr. 27 Principesa Ileana - Bucuresti | 0212421645 | Str. Masina de Paine, nr. 65, sector 2 |
| 116. | Scoala Gimnaziala Nr. 86 - Bucuresti | 0314250608 | Intr. Reconstructiei, Nr. 6A, Sector 3, Bucuresti |
| 117. | Scoala Gimnaziala Nr. 46 - Bucuresti | 0212502527 | Str. Stanescu Gheorghe, Nr. 2-18, sector 2 |
| 118. | Scoala Gimnaziala Nr. 120 Martisor - Bucuresti | 0213325811 | Str. Martisor, Nr. 39, sector 4 |
| 119. | Traian, Liceu Teoretic - Bucuresti | 0212106598; 0212105920 | Str. Luigi Galvani, Nr. 20, sector 2, Bucuresti |
| 120. | Tudor Vianu, Colegiul National de Informatica - Bucuresti | 0212226670 | Str. Arh. Ion Mincu, Nr. 10, sector 1, Bucuresti |
| 121. | Scoala Gimnaziala Nr. 64 Ferdinand I - Bucuresti | 0213351410 | Bd. Garii Obor, Nr. 16, Sector 2 |
| 122. | Ion Neculce, Colegiul National Bucuresti | 0212224145; 0212224179 | Str. Ion Neculce, Nr. 2, Sector 1, Bucuresti |
| 123. | Scoala Gimnaziala George Bacovia - Bucuresti | 0213323396 | Str. Stoian Militaru, nr. 72, Sector 4 |
| 124. | Scoala Gimnaziala Luca Bucuresti | 0721335161; 0744894206 | Str. Sfantul Petru Tei, Nr. 67 A- 71, Sector 2, Bucuresti |
| 125. | Scoala Gimnaziala SEB - Bucuresti | 0314249675; 074502274 | Str. Martisor, Nr. 22, sector 4 |
| 126. | Scoala Gimnaziala de Arte nr. 4 - Bucuresti | 0212421450 | Str. Maica Domnului, Nr. 61-63, Sector 2 |
| 127. | Scoala Gimnaziala Nr.188 - Bucuresti | 0214500161 | Str. Tufisului, Nr. 13, Sector 5, Bucuresti |
| 128. | Scoala Gimnaziala Nr. 31 - Bucuresti | 0212421712; 0736613908 | Bd. Lacul Tei, Nr. 116, sector 2 |
| 129. | George Calinescu, Scoala Gimnaziala 148 - Bucuresti | 0214232889 | Str. Bachus, Nr. 42, Sector 5, Bucuresti |
| 130. | Liceul tehnologic special Regina Elisabeta - Bucuresti | 0212506220 | Str. Vatra Luminoasa, Nr. 108, sector 2 |
| 131. | Maria Rosetti, Scoala Gimnaziala - Bucuresti | 0212305276 | Str. Garibaldi, nr. 3, Sector 2, Bucuresti |
| 132. | Benjamin Franklin, Liceu teoretic - Bucuresti | 0213244890; 0213243010 | Str. Pictor Gh. Tattarescu, Nr. 1, sector 3, Bucuresti |
| 133. | Scoala Gimnaziala Nr. 25 - Bucuresti | 0212422695 | Str. Silvia, Nr. 54 Sector 2 |
| 134. | Happy Drive Lucky - Scoala de soferi, Bucuresti | 0755766849 | Strada Inginerilor Tei, Nr.9, sector 2 |
| 135. | Scoala Gimnaziala Nr. 88 - Bucuresti | 0213480445 | Str. Odobesti, Nr. 3, Sector 3, |
| 136. | UCECOM, Colegiul Spiru Haret - Bucuresti | 0213166195; 0213166196 | Str. Economu Cezarescu, Nr. 47-59, Sector 6, Bucuresti |
| 137. | Scoala Gimnaziala Nr. 54 - Bucuresti | 0213465143; 0310699824 | Str. Istriei, Nr. 19, Sector 3 |
| 138. | Scoala Gimnaziala nr. 143 - Bucuresti | 0214202440 | Str. Banu Maracine, Nr. 16, Sector 5 |
| 139. | Scoala Gimnaziala Ion I. C. Bratianu - Bucuresti | 0214233390 | Str. Amurgului, Nr. 35, Sector 5 |
| 140. | Pia Bratianu - Scoala Gimnaziala Nr. 17 | 0212226590 | Str. Petofi Sandor, Nr. 14-16, Sector 1, Bucuresti |
| 141. | Jean Monnet, Liceu teoretic - Bucuresti | 0212305078 | Str. Jean Monnet, Nr. 2, Sector 1, Bucuresti |
| 142. | Orizont, Scoala Gimnaziala Nr. 193 - Bucuresti | 0214132355 | Str. Mihaela Ruxandra Marcu, Nr. 3, Sector 6, Bucuresti |
| 143. | Dimitrie Leonida, Colegiul Tehnic - Bucuresti | 0213243294; 0213243295; 0213243293; 0213246902 | Bd. Basarabia, Nr. 47, Sector 2, Bucuresti |
| 144. | Colegiul Tehnic Petru Maior - Bucuresti | 0736627798 | Bd. Timisoara, Nr. 6, Sector 6 |
| 145. | Decebal, Liceul Bilingv - Bucuresti | 0213469233 | Bd. Energeticienilor, Nr. 9-11, Sector 3, Bucuresti |
| 146. | Liceul Tehnologic Sfantul Pantelimon - Bucuresti | 0212559943 | Str. Hambarului, Nr. 12A, sector 2 |
| 147. | Geo Bogza, Scoala Gimnaziala Nr. 170 - Bucuresti | 0212223072 | Str. Barbu Lautaru, Nr. 4, Sector 1, Bucuresti |
| 148. | Scoala Gimnaziala Nr. 4 - Bucuresti | 0212556425 | Str. Herta, Nr. 14 A, Sector 2, Bucuresti |
| 149. | Scoala Gimnaziala Nr. 190 - Bucuresti | 0213324689 | Str. Nitu Vasile, Nr. 16, Sector 4, Bucuresti |
| 150. | C.A. Rosetti, Liceu teoretic - Bucuresti | 0212304873 | Str. Giuseppe Garibaldi, Nr. 11, Sector 2, Bucuresti |
| 151. | Grigore Ghica Voievod, Scoala Gimnaziala Nr. 30 - Bucuresti | 0212421160 | Str. Laptari Tei, Nr. 23, Sector 2, Bucuresti |
| 152. | Scoala Gimnaziala Nr. 2 Bucuresti | 0214501192 | Str. Lacul Bucura, Nr. 14, Sector 5, Bucuresti |
| 153. | Complex Scoalr Cronos Bucuresti | 0212225050; 0758107705 | Str. Chibzuintei, Nr. 15-17, Sector 1, Bucuresti |
| 154. | Ghelmez Petre, Scoala gimnaziala Nr. 58 - Bucuresti | 0213245135 | Str. Pescarusului, Nr. 124, Sector 2, Bucuresti |
| 155. | Scoala Gimnaziala Nr. 145 - Bucuresti | 0212407036 | Str. Heliade Intre Vii, Nr. 36, sector 2 |
| 156. | Scoala Gimnaziala Nr. 168 - Bucuresti | 0314326090 | Str. Alizeului, Nr. 9, Sector 6, Bucuresti |
| 157. | Scoala Gimnaziala Rut - Bucuresti | 0214510035; 0787358929 | Str. Lacul Bucura, Nr. 9-13, Sector 5 |
| 158. | Scoala Gimnaziala Nr. 51 - Bucuresti | 0212554060 | Str. Herta, Nr. 1, Sector 2, Bucuresti |
| 159. | Colegiul Tehnic Dinicu Golescu - Bucuresti | 0216370484 | Calea Giulesti, Nr. 10, Sector 1 |
| 160. | Scoala Gimnaziala Nr. 96 Bucuresti | 0214610108 | Str. Rezonantei, nr. 2, sector 4, |
| 161. | Petre Ispirescu - Scoala Gimnaziala Nr. 171 - Bucuresti | 0212241163 | Str. Vasile Gherghel, Nr. 2, Sector 1, Bucuresti |
| 162. | Liceul cu Program Sportiv Mircea Eliade - Bucuresti | 0213141389 | Splaiul Independentei, Nr. 315-317, Sector 6 |
| 163. | Anghel Saligny, Colegiu Tehnic - Bucuresti | 0213402654 | Bd. Nicolae Grigorescu, Nr. 12, Sector 3, Bucuresti |
| 164. | Alexandru Ioan Cuza, Scoala Gimnaziala Nr. 199 - Bucuresti | 0213243970 | Bd. Nicolae Grigorescu, Nr. 14, Sector 3, Bucuresti |
| 165. | Scoala Gimnaziala Nr. 124 - Bucuresti | 0214206365 | Str. Margeanului, Nr. 25A, Sector 5, Bucuresti |
| 166. | Scoala Gimnaziala Nr. 113 | 0213322347 | Str. Parincea, Nr. 4, Sector 4, Bucuresti |
| 167. | Liceul Teoretic Sfintii Trei Ierarhi - Bucuresti | 0763688448 | Str. Oltetului, nr. 15, sector 2 |
| 168. | Kidos - Before & after school, Bucuresti | 0770775730 | Bulevardul Nicolae Grigorescu, nr. 2 D, sector 3 |
| 169. | Serban Voda, Scoala Gimnaziala - Bucuresti | 0214503450 | Str. Petre Tutea, Nr. 3, Sector 4, Bucuresti |
| 170. | Waldorf, Liceul Teoretic - Bucuresti | 0212553051 | Str. Sold. Marin Savu, Nr. 29, Sector 2, Bucuresti |
| 171. | George Toparceanu, Scoala Gimnaziala Nr. 110 - Bucuresti | 0214503823 | Str. Argeselu, Nr. 6, sector 4, Bucuresti |
| 172. | Little Genius - Scoala primara Bucuresti | 0724245249 | Str. Carol Knappe, Nr. 95, sector 1 |
| 173. | Dante Alighieri, Liceu teoretic - Bucuresti | 0213481950; 0213481545 | Aleea Fuiorului, Nr. 9, Sector 3, Bucuresti |
| 174. | Scoala Gimnaziala Nr. 311- Bucuresti | 0214133440 | Str. Garleni, Nr. 10, Sector 6, Bucuresti |
| 175. | Santimbreanu Mircea, Scoala Gimnaziala Nr. 139 - Bucuresti | 0214206795 | Sos. Alexandriei, Nr. 21, Sector 5, Bucuresti |
| 176. | Scoala Gimnaziala Nr. 136 - Bucuresti | 0214501892 | Prelungirea Ferentari, Nr. 74, Sector 5, Bucuresti |
| 177. | Hamburg, Scoala Gimnaziala Nr.195 - Bucuresti | 0318058603 | Str. Lunca Bradului, Nr. 2, sector 3, Bucuresti |
| 178. | Alegra - After-school Bucuresti | 0729987920; 0726487124 | Str. Portaresti, Nr. 11, etaj 1, sector 6 |
| 179. | Colegiul Tehnic Energetic - Bucuresti | 0214500630; 0214502805 | Aleea Podul Giurgiului, nr. 5, sector 5 |
| 180. | Nicolae Iorga, Liceu teoretic - Bucuresti | 0212242026 | Bd. Ion Mihalache, Nr. 126, Sector 1, Bucuresti |
| 181. | Scoala Gimnaziala Nr. 197 - Bucuresti | 0214134330; 0786332028 | Str. Obcina Mare, Nr. 2, Sector 6, Bucuresti |
| 182. | Scoala Gimnaziala Nr. 308 - Bucuresti | 0214503162 | Str. Raul Soimului, Nr. 8, Sector 4, Bucuresti |
| 183. | Tudor Vladimirescu, Colegiu National - Bucuresti | 0214103831 | Bd. Iuliu Maniu, Nr. 15, Sector 6, Bucuresti |
| 184. | Scoala Gimnaziala Nr. 59 | 0314252104 | Str. Vladeasa, Nr. 9, Sector 6, Bucuresti |
| 185. | Nicolae Labis, Scoala Gimnaziala Nr. 89 - Bucuresti | 0213486271 | Str. Firidei, Nr. 2, Sector 3, Bucuresti |
| 186. | Colegiul National Octav Onicescu - Bucuresti | 0214603544 | Str. Trivale, Nr. 29, Sector 4 |
| 187. | Scoala nr. 147 Petrache Poenaru - Bucuresti | 0214233987; 0214233991 | Str. Bacau, Nr. 1, sector 5 |
| 188. | Scoala Gimnaziala Nr. 129 - Elena Farago | 0214503775 | Str. Izvorul Crisului, Nr. 6, Sector 4, Bucuresti |
| 189. | Scoala Gimnaziala Nr. 127 - Bucuresti | 0214231092 | Str. Muntii Carpati, nr. 68, sector 5 |
| 190. | Grigore Moisil, Colegiu National - Bucuresti | 0214132696; 0768191964 | Bd. Timisoara, Nr. 33, Sector 6, Bucuresti |
| 191. | Neagoe Basarab Voievod, Scoala Gimnaziala (fosta Nr.16) - Bucuresti | 0213403313; 0374464076 | Intr. Constantin Brancusi, nr. 7, sector 3, Bucuresti |
| 192. | Sfantul Ioan, Scoala Postliceala Sanitara - Bucuresti | 0724355298; 0787889809 | Str. Ilioara, nr. 16, et. 2, sector 3, Bucuresti |
| 193. | Scoala Gimnaziala Nr. 126 | 0214203645 | Str. Leresti, Nr. 12, Sector 5, Bucuresti |
| 194. | Marin Sorescu, Scoala Gimnaziala Nr. 194 - Bucuresti | 0214610790 | Bd. Alexandru Obregia, Nr. 3A, Sector 4, Bucuresti |
| 195. | Profesia, Liceu profil Economic - Bucuresti | 0213486638; 0787889809 | Ilioara , Nr. 16 (in cladirea Scolii de Soferi), et. 2, sector 3 , Bucuresti |
| vezi mai multe | |||
| 1. | Emozia coffee manifesto - Cafenea, Bucuresti | 0742023590;0726201527 | Strada Halelor, nr. 17, sector 3 |
| 2. | Hanul lui Manuc, Restaurant - Bucuresti | 0213131411; 0769075844; 0730188653 | Franceza, Nr. 62-64, Sector 3, Bucuresti |
| 3. | Hanul lui Manuc, Restaurant si Cafenea - Bucuresti | 0213131411; 0769075844; 0730188653 | Franceza, Nr. 62-64, Sector 3 , Bucuresti |
| 4. | Mica Elvetie Restaurant - Bucuresti | 0212245017 | Franceza, Nr. 60-62, Sector 3, Bucuresti |
| 5. | Hanul lui Manuc, Restaurant - Bucuresti | 0730188653; 0213122811; 0769075844 | Franceza , Nr. 62-64, Sector 3 , Bucuresti |
| 6. | The Urbanist - Bar specializat in cocktailuri, Bucuresti | 0741392558 | Strada Caldarari, Nr. 3, sector 3 |
| 7. | McDonald\'s | 0372701091 | Piata Unirii 1, Unirea Shopping Center, Bucuresti |
| 8. | Time to Lunch | 0763200900 | Strada Patriei, Nr 4, sector 3 |
| 9. | Borsalino - Pizzerie Bucuresti | 0729954911; 0729954912 | Bulevardul Ion C. Bratianu, Nr. 44, Sector 3 |
| 10. | Lacrimi si Sfinti, Restaurant - Bucuresti | 0725558286; 0372773999 | Sepcari, Nr.16 (Centrul Vechi) Sector 3, Bucuresti |
| 11. | Mica Elvetie Restaurant | 0212245017 | Franceza, Nr. 60-62, Sector 3, Bucuresti |
| 12. | Industry Wine Bar- Bar cu vinuri, Bucuresti | 0722777222 | str. Sepcari, Nr. 19, sector 3 |
| 13. | Bazaar - Restaurant Bucuresti | 0721999999 | Strada Covaci, Nr. 10, sector 3 |
| 14. | 1974 Niste Domni si Fii - Bar Restaurant Bucuresti | 0721551099; 0723629306 | Covaci, Nr. 7, Sector 3, Bucuresti |
| 15. | Bodega La Mahala - Restaurant Bucuresti | 0732166606 | Covaci, Nr. 8, Sector 3 |
| 16. | Fire Club Pub - Bucuresti | 0732166604 | Covaci, Nr. 7, Sector 3, Bucuresti |
| 17. | Private Hell - Club, Bucuresti | 0757508336 | Str. Soarelui, nr. 5, Sector 3 |
| 18. | La 100 de Beri - Bar specializat in bere, Bucuresti | 0733282598 | Str. Gabroveni, Nr.61, sector 3 |
| 19. | Mojo Music Club - Bucuresti | 0737220220 | Gabroveni, Nr.14, Sector 3, Bucuresti |
| 20. | Big Ben - Pub cu specific britanic, Bucuresti | 0756110089 | Str. Franceza, nr. 52, sector 3 |
| 21. | Shoteria - Shotbar, Bucuresti | 0721203039; 0372916947 | Strada Selari, Nr. 17, sector 3 |
| 22. | Calif - Restaurant fast-food, Bucuresti | 0756200325 | Selari, Nr. 19, sector 3, |
| 23. | Curtea Berarilor, Restaurant terasa - Bucuresti | 0213137532 | Selari, Nr.9-11, sector 3, Bucuresti |
| 24. | Boulevard Pub - Bucuresti | 0753966961 | Strada Covaci, Nr. 4, sector 3 |
| 25. | Curtea Berarilor, Bar & Grill - Bucuresti | 0213137532; 0735861682 (Radu); 0735861681 (Sorina) | Selari, Nr. 9-11,Sector 3 (Zona Lipscani), Bucuresti |
| 26. | Bruno Wine Bar - Bar cu vinuri, Bucuresti | 0751220229 | Strada Covaci, Nr. 3, Centrul Vechi |
| 27. | Naive - Restaurant cu bar, Bucuresti | 0725550333 | Bd. I.C. Bratianu, Nr. 36, sector 3 |
| 28. | Kilkenny Irish Pub - Bucuresti | 0751041110 | Str Franceza, Nr. 46-48, sector 3 |
| 29. | Efendi Doner - Restaurant fast-food, Bucuresti | 0730578472 | Str. Selari, nr. 2, sector 3 |
| 30. | Taverna Covaci - Restaurant cu specific romanesc, Bucuresti | 0747226677 | Str. Covaci, Nr. 1, sector 3 |
| 31. | Nomad Skybar - Restaurant, bar, club, Bucuresti | 0735448080 | Strada Smardan, Nr 30, sector 3 |
| 32. | Sinners - Pub, Bucuresti | 0737343210 | Covaci, nr.2 , Centrul Vechi, sector 3 |
| 33. | Bere si Bere - Pub, bere craft si muzica rock | 0723280040 | Str. Gabroveni, Nr. 4, sector 3 |
| 34. | Extra Time - Pub Bucuresti | 0732166605 | Strada Lipscani, Nr. 82A, sector 3 |
| 35. | Sugarography - Atelier de dulciuri Bucuresti | Bucuresti, | |
| 36. | Delicii Libaneze - Gelaterie, cofetarie, ciocolaterie Bucuresti | 0725115811 | Str. Franceza, Nr. 13, sector 3 |
| 37. | Cofetaria Macarons - Bucuresti | 0771425575 | Bucuresti, |
| 38. | Arcade Cafe - Bucuresti | 0722777674 | Smardan, Nr.30, (Centrul vechi), Sector 4, Bucuresti |
| 39. | Burger si Scoici - Restaurant cu burgeri Bucuresti | 0753300333 | Strada Smardan, Nr. 41, Sector 3 |
| 40. | Pizzeria La Coco - Bucuresti | 0731744444 | Str. Gabroveni, Nr. 31, Sector 3 |
| 41. | iDracula - Restaurant tematic, Bucuresti | 0753476142;0752559457 | Str. Selari, Nr. 10-12, Centrul Vechi, sector 3 |
| 42. | Level Up - Restaurant raw vegan, Bucuresti | 0721085582 | Str Sf. Vineri, Nr 10, sector 3 |
| 43. | Mao Pub - Bucuresti | 0771305995 | Str. Lipscani, Nr. 69, Sector 3 |
| 44. | Kiosque des Douceurs - Cofetarie Bucuresti | 0758090763 | Str. Selari, Nr. 3, Sector. 3, Centrul Vechi |
| 45. | Gyros Thessalonikis | 0770302148 | Strada Gabroveni, Nr. 2,sector 3 |
| 46. | UAU Il Gelato - Gelaterie Bucuresti | 0723135015 | Str. Gabroveni, Nr. 1-3, sector 3, |
| 47. | Latin Pizza - Pizzerie, Bucuresti | 0751896358 | Bulevardul Ion C. Bratianu, Nr. 34, sector 3 |
| 48. | Old Habits - Club de noapte si de dans | 0728776699 | Strada Lipscani, Nr. 38, sector 3 |
| 49. | Freddo Pub - Club de noapte si de dans, Bucuresti | 0722373336 | Str Smardan, nr 24, sector 3, |
| 50. | Sublimmme - Restaurant vegetarian/vegan, Bucuresti | 0771135605 | Splaiul Independentei, NR 2F, sector 3 |
| 51. | Les Bourgeois - Bucuresti | 0720132994; 0213106052 | Smardan, Nr. 20, Sector 3, Bucuresti |
| 52. | Storage Room - Bar, Bucuresti | 0732363712 | Strada Smardan, Nr. 35, sector 3 |
| 53. | Aubergine Healthy Food - Restaurant cu mancare sanatoasa, Bucuresti | 0213137548 (Smardan); 0771358661 (Aviatorilor) | Strada Smardan, Nr 33, sector 3, Bucuresti |
| 54. | Fabrica de mancare - Restaurant cu supe si ciorbe, Bucuresti | 0744123123 | B-dul Unirii, nr. 31, sector 3 |
| 55. | Gilda Music Lounge - Restaurant club Bucuresti | 0786770941 | Strada Lipscani, Nr. 53, sector 3 |
| 56. | Vis a Vis - Restaurant Bucuresti | 0722102223 | Bd. I. C. Bratianu, |
| 57. | Xclusive Pub - Bar & Grill, Bucuresti | 0723166463 | Str. Lipscani, nr. 36, sector 3 |
| 58. | Zoomserie - Cofetarie Bucuresti | 0751222265 | Sf. Vineri, Nr. 23, sector 3, intersectia Coposu (Calarasilor), |
| 59. | Distrikt 42 - Restaurant Bucuresti | 0213156699 | Str. Sfantul Dumitru, Nr. 3, sector 3 |
| 60. | Patrick Irish Pub & Restaurant - Bucuresti | 0213130336; 0314360112; 0755110008 | Smardan, Nr. 23-25, sector 3, Bucuresti |
| 61. | Artist Cafe - Cafenea Bucuresti | 0756777577 | Str. Lipscani, Nr. 30-34, sector 3 |
| 62. | The Clique Bistro - Restaurant cu specific international, Bucuresti | 0784901000 | Splaiul Unirii, sector 3 |
| 63. | Argentin - Restaurant Bucuresti | 0774462430; 0774462431 | Strada Blanari, Nr. 11-15, Sector 3 |
| 64. | Times Cocktail Bar - Pub, Bucuresti | 0731032330 | Intrarea Nicolae Selari, nr.1,sector 3, |
| 65. | Thors Hammer - Bar Bucuresti | 0729176724 | Str Blanari, Nr. 12, sector 3 |
| 66. | Il Peccato, Restaurant - Bucuresti | 0213116767; 0765301300 | Franceza, Nr. 30,Sector 3, Bucuresti |
| 67. | SanThe Fitoceainarie - Ceainarie, Bucuresti | 0730370290 | Lipscani, nr 104, sector 3, |
| 68. | The Drunken Lords - Pub, Bucuresti | 0736238815 | Intr. Selari, Nr. 3-5, sector 3 |
| 69. | Manasia Hub - Bar Bucuresti | 0736760063 | Str. Stelea Spatarul, Nr. 13, sector 3 |
| 70. | Moon Brasserie - Restaurant Bucuresti | 0723093170 | Bulevardul Unirii, Nr. 33, sector 3 |
| 71. | Tag Aperitivo Bar - Bucuresti | 0721888522 | Strada Lipscani, nr. 27, sector 3 |
| 72. | Velluto - Gelaterie, Bucuresti | 0728991969 | Splaiul Independentei, Nr 2J, sector 3 |
| 73. | The Dock - Lounge, Bucuresti | 0743680336 | Bulevardul Unirii, nr. 30, sector 3 |
| 74. | Horoscop, Restaurant, Pizzerie - Bucuresti | 0767562215 | Bd.Dimitrie Cantemir, Nr 2, Sector 4, Bucuresti |
| 75. | Encore Club - Bar specializat in bere | 0786247745 | Nicolae Tonitza, nr. 13, sector 3 |
| 76. | Get Naked by Bordello - Restaurant pentru mic dejun si brunch, Bucuresti | 0748881086 | Bd. Unirii, intre Bd Dimitrie Cantemir si Bd Mircea Voda |
| 77. | Anika - Restaurant cu specific romanesc Bucuresti | 0726400148 | Str. Pictor Nicolae Tonitza, Nr.10, sector 3 |
| 78. | Leonidas Cofetarie - Bucuresti | 0740014695; 0213141377 | Doamnei, Nr. 27 , Sector 3, Bucuresti |
| 79. | JO Lounge - Bar, Bucuresti | 0721811995 | Bd. Unirii, sector 3 |
| 80. | Lloyds Pub - Bucuresti | 0723133786 | Str. Coltei, Nr. 16, Sector 3 |
| 81. | Caru\' cu Bere, Restaurant - Bucuresti | 0213137560; 0726cubere; 0726282373 | Stavropoleos , Nr. 3-5, Sector 3, Bucuresti |
| 82. | Nori Sushi - Restaurant cu specific japonez, Bucuresti | 0771179714 | Splaiul Unirii, nr 6, bl B3A, etaj 7-8 |
| 83. | Bucatarasul cel Dibaci - Restaurant cu specific romanesc, Bucuresti | 0730340436;0760966360 | Strada Olteni, Nr 3, sector 3 |
| 84. | Amnezia Caffe - Bistrou romanesc Bucuresti | 0770917737; 0724140931 | Str. Sf. Apostoli, Nr. 21, sector 4, |
| 85. | Barfly Bucuresti | 0727394131; 0721652899 | Olteni , Nr. 3, Sector 3, Bucuresti |
| 86. | Aria Gourmet Burger - Fast food Bucuresti | 0773778860; 0773778860 | Strada Slanic, Nr. 2, Sector 3 |
| 87. | Saray - Restaurant cu specific turcesc, Bucuresti | 0733135834 | Lipscani, Nr. 21, sector 3 |
| 88. | Miss Ale - Bar specializat in cocktailuri | 0745089700 | Constantin F Robescu, Nr 2, sector 3 |
| 89. | Vilacrosse, Restaurant Cafe Bistro - Bucuresti | 0728358304 | Str. Eugen Carada, nr. 7, sector 3, |
| 90. | Pekin, Restaurant chinezesc - Bucuresti | 0213103160; 0723233169; 0769414020 | Calea Victoriei, Nr. 16-20, pasaj Villa Cross, Sector 3, Bucuresti |
| 91. | Vilacrosse, Bistro, Restaurant - Bucuresti | 0728358304; 0744796894 | Eugeniu Carada, Nr. 7, Sector 3, Bucuresti |
| 92. | Bemolle Cafe - Bucuresti | 0213118382; 0723188953 | Calea Victoriei , Nr.16-18-20 (Pasaj Villacrosse), Sector 3, Bucuresti |
| 93. | WHYS - Bar, Bucuresti | 0785059173 | Pasajul Macca-Villacrosse, sector 3 |
| 94. | #Aici - Bar, Bucuresti | 0799124330 | Bulevardul Unirii, Nr 35, Sector 3, Bucuresti |
| 95. | Q Marttinez - Restaurant cu specific european, Bucuresti | 0725682944 | Eugeniu Carada, Nr. 7, sector 3 |
| 96. | Hugo Bar - Cafenea cu narghilele, Bucuresti | 0732397953 | Calea Victoriei, 16-18-20, sector 3 |
| 97. | Valea Regilor - Cafenea, Bucuresti | 0213112969 | Calea Victoriei, 16-20, Centrul Vechi, sector 3 |
| 98. | Scovergaria Micai - Patiserie, cofetarie Bucuresti | 0314253670 | Calea Victoriei, Nr. 14 colt cu Lipscani 19, sector 3 |
| 99. | Jos Palaria Cafe - Bucuresti | 0314321029 | Toma Caragiu , Nr. 3, Sector 3 , Bucuresti |
| 100. | Pe Baricade | Radu Voda, nr. 23A, sector 4 | |
| 101. | Robescu 14 - Bar specializat in cocktailuri | 0773741922 | Strada Robescu F. Constantin, Nr. 14, sector 3 |
| 102. | Noa Restoclub - Restaurant Bucuresti | 0799747557 | Calea Victoriei, Nr 26 Sector 3 |
| 103. | Linea - Closer To The Moon, Bucuresti | 0757824298 | Calea Victoriei, nr. 17, sector 3 |
| 104. | Hanul Berarilor Interbelic, Restaurant - Bucuresti | 0213368009; 0729400800 | Poenaru Bordea , Nr. 2, Sector 5, Bucuresti |
| 105. | Restaurant Karta - Bucuresti | 0744391111 | Bd. Unirii, Nr. 22, sector 3 |
| 106. | Hygge - Restaurant Bucuresti | 0771114875 | Calea Victoriei, Nr. 21, sector 3 |
| 107. | The Pub - Bucuresti | 0728843782 | Bulevardul Regina Elisabeta, Nr. 9, sector 3 |
| 108. | Kuma Bar - Bucuresti | 0766440936 | Strada Coltei, Nr. 50, sector 3 |
| 109. | Jack Pot - Bar specializat in cocktailuri, Bucuresti | 0372916947; 0770776777 | Zborului, nr. 2, sector 3 |
| 110. | Ergo - Restaurant vegan, Bucuresti | 0770747559 | Bd. Unirii, Nr 5, sector 4 |
| 111. | Surubelnita - Club, Bucuresti | 0768743593 | Str. Calea Mosilor, nr. 100, sector 2 |
| 112. | Papila Kitchen - Restaurant, Bucuresti | 0753087799 | Strada Sfintilor, Nr 6, sector 2 |
| 113. | Tarta Ta - Delicii traditionale, Bucuresti | 0771522117 | Bulevardul Mircea Voda, Nr. 52, sector 3 |
| 114. | Origo Coffee Shop - Bucuresti | 0757086689 | Lipscani, Nr. 9,Sector 3, Bucuresti |
| 115. | Capsa Cofetarie Bucuresti | 0213134038; 0213135999 | Calea Victoriei, Nr. 36, Sector 1, Bucuresti |
| 116. | Casa Capsa, Restaurant - Bucuresti | 0213134038; Fax: 0213135999 | Calea Victoriei, Nr. 36, Sector 1, Bucuresti |
| 117. | Energiea - Pub Bucuresti | 0736374432 | Str. Actor Ion Brezoianu, Nr. 4, Sector 5 |
| 118. | Cercul Militar National, Restaurant - Bucuresti | 0213143735; 0213149551; Fax: 0372874921 | Constantin Mille, Nr.1-3, Sector 1, Bucuresti |
| 119. | Jaristea, Restaurant - Bucuresti | 0721961936 ; 0775609233 ; 0770948868 | George Georgescu, Nr. 50-52, Sector 4, Bucuresti |
| 120. | Paine si Vin - Bar cu vinuri, Bucuresti | 0755028448 | Str. Actor Ion Brezoianu, Nr. 4, sector 5 |
| 121. | Gran Gelato Italiano - Gelaterie Bucuresti | 0730057909 | Str. Radu Voda, Nr 28 A, Sector 4 |
| 122. | Capitol Hotel si Restaurant - Bucuresti | 0213158030; 0317107007 | Calea Victoriei , Nr. 29, Sector 1 , Bucuresti |
| 123. | Ivy - Cafenea, Bucuresti | 0755210748 | Bulevardul Carol I, Nr. 23, sector 2 |
| 124. | Saint Gelato - Gelaterie Bucuresti | 0745205405 | Bulevardul Regina Elisabeta, Nr. 26, Sector 3 |
| 125. | Legere - Bar, Bucuresti | 0730534373 | Piata Rosetti, nr 5, sector 2 |
| 126. | Ramada Majestic, Hotel si Restaurant - Bucuresti | 0213102715 | Calea Victoriei, Nr. 38-40, Sector 1 , Bucuresti |
| 127. | Haute Pepper - Restaurant cu specific international, Bucuresti | 0726284280 | Bd. Unirii, nr 2, sector 4 |
| 128. | Buoni e Bravi - Pizzerie, Bucuresti | 0735215224 | Piata C. A. Rosetti, nr. 3, sector 2 |
| 129. | Hanul Hangitei, Restaurant - Bucuresti | 0744827323; 0758043355 | Bd. Marasesti, Nr.70-72, Sector 4 , Bucuresti |
| 130. | Colosseum, Restaurant - Bucuresti | 0721243613; 0213131860; 0219689 | Calea Victoriei , Nr. 48-50 (Pasajul Victoria), sector 1, Bucuresti |
| 131. | Barocco Bar - Bucuresti | 0755028028; 0740114132 | Domnita Anastasia, Nr.10 (In spatele McDonalds Regina Elsiabeta), Bucuresti |
| 132. | Colosseum Pizza - Bucuresti | 0721243613; 0213131860; 0213121020 | Calea Victoriei, Nr. 48-50 (Pasajul Victoria), Sector 1, Bucuresti |
| 133. | OPUS TNB - Bar specializat in cocktailuri | 0771595407 | Bulevardul Nicolae Balcescu, Nr. 2, sector 1 |
| 134. | Pizza Hut - Bucuresti | 0740121903 | Bd. Regina Elisabeta, nr. 15-19, sector 3 , |
| 135. | Berestroika - Beer Revolution - Bucuresti | 0722560300; 0721100000; 0733200000 | Aleea Cauzasi, Nr. 57, Sector 2, Bucuresti |
| 136. | Elisabeta, Restaurant - Bucuresti | 0727703703; 0724323132 | Bd. Regina Elisabeta, Nr. 45, Sector, Bucuresti |
| 137. | Angelo Grasso - Restaurant cu specific italian, Bucuresti | 0739955555 | Strada Tudor Arghezi, 12-16, sector 2 |
| 138. | The Old Sibiu - Restaurant evenimente Bucuresti | 0723602560; 0723637769; 0721172390 | Str. Ion Otetelesanu,, Nr. 3A-3B, Sector 1 |
| 139. | The Temple Social Pub - Bucuresti | 0723469118 | Bd. Marasesti, Nr. 71-73 sector 4 |
| 140. | Frufru, Fresh, natural, yummy , Fast food - Bucuresti | 0212221111; 0765346715 | Batistei , Nr. 1-3, Sector 2, Bucuresti |
| 141. | Simbio - Restaurant Bucuresti | 0756746246 | Str Negustori, nr. 26, sector 2 |
| 142. | La Nenea Iancu - Restaurant cu specific romanesc, Bucuresti | 0745140786 | Str. Romulus, nr. 55, sector 3 |
| 143. | Trattoria Adagio - Restaurant cu specific italian Bucuresti | 0311061067; 0751218482 | Bd. Mircea Voda, Nr. 34, sector 3 |
| 144. | Noeme - Restaurant Bucuresti | 0721490270 | Anton Pann, Nr. 29, sector 3 |
| 145. | Kane - Noua bucatarie romaneasca fina | 0314100016 | Str. Dianei, nr. 9 (Piata Rosetti), sector 2 |
| 146. | Casa Ede - Restaurant & Beauty - Barber Salon Bucuresti | 0772019516 | Strada Armeneasca, Nr. 8, sector 2 |
| 147. | Gradina Urbana - Restaurant cu specific american, Bucuresti | 0745250077 | Strada Batistei, Nr. 14, sector 2 |
| 148. | Calderon 18 - Restaurant cu terasa, Bucuresti | 0731886789 | Str. Jean Louis Calderon, Nr.18, sector 2, |
| 149. | Mr. Cigkofte - Restaurant fast-food, Bucuresti | 0720802181 | Nicolae Balcescu, Nr. 18, sector 1 |
| 150. | Sfeir Lebanese Cuisine - Bar & Grill | 0722311805 | Mircea Voda, Nr. 36, sector 3 |
| 151. | Boutique Du Pain - Restaurant cu specific francez, Bucuresti | 0728443300 | Academiei, Nr. 28-30, sector 1 |
| 152. | Maroon - Maroon Restaurant Cafe | 0742420000; 0764900000 | Bulevardul Unirii, Nr. 47 C, Sector 3 |
| 153. | FoodVibe - Serviciu de livrare mancare | 0371333222 | Strada Sperantei, nr. 7, sector 2 |
| 154. | Gambino\'s Pizza - Bucuresti | 0731707070; 0725271471; 0310050209 | Vasile Lascar, Nr.24, Sector 2, Bucuresti |
| 155. | Rawyal brunch & cakes - Bucuresti | 0730777221 | Calea Mosilor, Nr 105, Sector 2 |
| 156. | Nice Touch - Restaurant cu meniu international, Bucuresti | 0771568361 | Strada Sperantei, nr.7, sector 2 |
| 157. | Chaya TeaHouse - Ceainarie Bucuresti | 0755331000 | Strada Radu Ceaus, Nr. 7, sector 3 |
| 158. | Bistro Fum de Vorbe - Restaurant Bucuresti | 0748628830; 0723686292 | Vasile Lascar, Nr. 24, Sectorul 2 |
| 159. | Excalibur, Restaurant - Bucuresti | 0730190364; Tel Fax: 0213145670 | Academiei, Nr. 39-41, Sector 1 , Bucuresti |
| 160. | DolciConi - Gelaterie Bucuresti | 0753762549 | Vasile Lascar, Nr 26-28, sector 2 |
| 161. | Beautyfood - Bistro, Bucuresti | 0759030609 | Jean Louis Calderon, Nr. 34, sector 2 |
| 162. | QP Pub - Bucuresti | 0736405451 | Str. General David Praporgescu, Nr. 13, sector 2 |
| 163. | Human Coffee - Cafenea Bucuresti | 0734744429 | Str. Elena Cuza, Nr. 8, Sector 4 |
| 164. | Borgo Stagioni - Restaurant Bucuresti | 0732163287; 0722220223 | Calea Calarasi, Nr. 78, Sector 3 |
| 165. | Imperial Turkish Cuisine & Steakhouse- Restaurant Bucuresti | 0720102222 | Strada Jean Louis Calderon, Nr. 33, Sector 2 |
| 166. | Wicked Bar - Bucuresti | 0722615188; 0723574895 | Strada Spatarului, Nr. 4, Sector 2, Bucuresti |
| 167. | Club B52 - Bucuresti | 0753315563 | 11 Iunie, N. 50, Sector 5, Bucuresti |
| 168. | La Ciurucuri - Restaurant cu specific international, Bucuresti | 0752850850 | Piata Valter Maracineanu, Nr 1-3, sector 1 |
| 169. | Willy\'s Coffee Art - Bucuresti | 0769911077 | Bulevardul Carol I, Nr 62, sector 2, |
| 170. | EXPRESS Food & Drink - Restaurant fast-food, Bucuresti | 0732669922 | Bd. CAROL I, Nr. 62, Sector 2 |
| 171. | Urban Bistro - Restaurant cu fripturi, Bucuresti | 0769918510 | Strada Piata Sfantu Stefan, Nr 6, sector 2 |
| 172. | Fabrica, Club,Pub, Tersa - Bucuresti | 0753227422; 0753315563; 0749116508 | 11 iunie, Nr,50, Sector 5, Bucuresti |
| 173. | BEAT bar umanist - Bar, Bucuresti | 0720854187 | Vasile Lascar, Nr. 29, sector 2 |
| 174. | Osteria Zucca - Restaurant cu specific italian, Bucuresti | 0770287979; 0314206814 | Jean-Louis Calderon, Nr. 41, Sector 2, Bucuresti |
| 175. | Armand, Cofetarie - Bucuresti | 0310051187; 0741276263 | Armand Calinescu , Nr. 25, Sector 2, Bucuresti |
| 176. | Koffeev - Cafenea, Bucuresti | 0767195222 | Bulevardul Unirii, Nr. 57, sector 3 |
| 177. | Mantuleasa 40 - Restaurant Bucuresti | 0754045450; 0751133141 | Str. Mantuleasa, Nr. 40, sector 2 |
| 178. | Grapes - Bar cu vinuri, Bucuresti | 0770463287 | Bdul. Marasesti, nr.2B, sector 4 |
| 179. | Sardin - Restaurant cu specific italian, Bucuresti | 0729520111 | Bulevardul Mircea Voda, Nr. 39H sector 3, Bucuresti |
| 180. | Sarazin - Carol Fast food Bucuresti | 0787625505 | Bulevardul Carol I, Nr. 66, Sector 2, |
| 181. | Comics Club - Stand Up, Bucuresti | 0741426426 | Str. Nerva Traian, Numarul 4. sector 3 |
| 182. | Zeppelin Pub - Bucuresti | 0722170024 | Strada Marin Serghiescu, Nr. 7, sector 2 |
| 183. | GinOteca - Bar, Bucuresti | 0751446446 | Strada Plantelor, Nr. 25, sector 2 |
| 184. | Posh Birt Select - Pub, Bucuresti | 0724004376 | Strada Plantelor, Nr. 26, sector 2 |
| 185. | Beraria Centrala - Restaurant Bucuresti | 0740959311 | Strada Nerva Traian, Nr. 2, Sector 3 |
| 186. | Le Boutique Food Concept Store - Bucuresti | 0722538274; 0314380044 | Str. Sfantul Stefan, Nr. 13, sector 2 |
| 187. | Newton Bar, Bucuresti | 0770718303; 0213150217 | Jean Louis Calderon, Nr. 56 (Universitate), Sector 2, Bucuresti |
| 188. | Fadel - Patiserie Bucuresti | 0786309530; 0722919132 | Strada Jean Louis Calderon, Nr. 56, Sector 2 |
| 189. | Green Tea Ceainarie - Bucuresti | 0213209396; 0749090202 | Dr. Burghelea, Nr. 24, Sector 2, Bucuresti |
| 190. | B3ton - RestoBar, Bucuresti | 0217963684 | Bulevardul Marasesti, Nr. 2B, sector 4 |
| 191. | Ciao Niki - Restaurant cu specific italian, Bucuresti | 0734356217;0756044805 | Strada Bocsa, Nr 4, sector 2 |
| 192. | Bistro Cafe Carbon 14 - Bucuresti | 0790408777 | Str. Dimitrie Racovita, Nr. 18, Sector 2 |
| 193. | Madame B - Tea & Pancake House, Bucuresti | 0746030670 | Splaiul Unirii, nr.49,sector 3, |
| 194. | Quartier - Restaurant, Bucuresti | 0758222244 | Bd. Mircea Voda, Nr. 43, sector 3 |
| 195. | Creamier - Cafenea Bucuresti | 0741234567 | Strada Benjamin Franklin, Nr. 5, Sector 1 |
| 196. | French Bakery, Cofetarie - Bucuresti | 0213114518 | Benjamin Franklin, Nr. 9, Sector 1, Bucuresti |
| 197. | Efes - Restaurant cu specific turcesc, Bucuresti | 0737018590 | Bulevardul Nerva Traian, Nr. 17 - 19, sector 3 |
| 198. | Athénée Palace Hilton,Cafenea,Baruri - Bucuresti | 0213033777; 0213152121; Fax: 0213152121 | Episcopiei, Nr. 1-3, Sector 1 , Bucuresti |
| 199. | Politica si Delicateturi Bucuresti - Restaurant cu specific romanesc | 0785516681 | Str. Prof. Dr. Mihail Georgescu, Nr. 24, sector 2 |
| 200. | Zen Garden - Restaurant cu specific chinezesc, Bucuresti | 0745102272 | Strada Silvestru, Nr. 3, sector 2 |
| 201. | Ambasador, Bar si Restaurant - Bucuresti | 0213159080; Fax 0213123595 | Bd. G-ral Gh. Magheru, Nr. 8-10, Sector 1, Bucuresti |
| 202. | MagiCake - Atelier de dulciuri artizanale, Bucuresti | 0772072072 | Strada Alexandru Moruzzi, Nr. 4A, sector 3 |
| 203. | Trofic - Restaurant pentru mic dejun si brunch | 0751276600 | Bd. Mircea Voda, nr. 52, sector 3 |
| 204. | Thalia - Restaurant cu bucatarie internationala | 0219993 | Strada Cuza Voda, Nr. 147, sector 4 |
| 205. | La Cena - Restaurant cu specific italian, Bucuresti | 0212116717;0730210014 | Maria Rosetti, Nr. 1, sector 2 |
| 206. | Monte Carlo Cismigiu, Restaurant - Bucuresti | 0213131344 | Parcul Cismigiu, Parcul Cismigiu, Sector 1 , Bucuresti |
| 207. | Gelato D\'Amore - Magazin de inghetata Bucuresti | 0771727627 | Strada Maria Rosetti, Nr. 13, Sector 2 |
| 208. | Monte Carlo Cismigiu, Restaurant - Bucuresti | 0213131344 | Parc Cismigiu, Sector 1, Bucuresti |
| 209. | CAJU by Joseph Hadad - Braserie, Bucuresti | 0751144545 | Nicolae Golescu, Nr. 16, sector 1 |
| 210. | Gradina Olari - Terasa, Bucuresti | 0770147410 | Strada Olari, nr.8, Sector 2 |
| 211. | Chocolat Ateneu - Boutique restaurant cu livrare de prajituri in Bucuresti | 0743777807; 0744507506 | Strada Episcopiei, Nr. 6, Sector 1, Bucuresti |
| 212. | Mahala - Restaurant Bucuresti | 0729003002 | Calea Rahovei, Nr. 147- 153, sector 5 |
| 213. | Cofetaria Madlene - Bucuresti | 0753223222 | Str. Traian, Nr.103, sector 2 |
| 214. | Costelaria, Restaurant - Bucuresti | 0314055095 | Calea Rahovei, Nr. 147-150 , Sector 5, Bucuresti |
| 215. | El Pato - Restaurant Bucuresti | 0730344810; 0311072033 | Strada Dionisie Lupu, Nr. 48, sector 1 |
| 216. | Bohemia Tea House, Ceainarie - Bucuresti | 0727333631 | Poiana Narciselor, Nr. 1 (vizavi de Conservator), Sector 1, Bucuresti |
| 217. | Time Out Cafe - Bar & Cafenea Bucuresti | 0744644400 | Strada Olari, Nr. 7, sector 2 , |
| 218. | Krishna Caffe - Cafenea Bucuresti | 0729745988;0740133254 | Bd. Mihail Kogalniceanu, Nr. 17, sector 5, |
| 219. | Pizzicato, Pizzerie si catering - Bucuresti | 0212111213 | Strada Icoanei, Nr. 2, Sector 2, Bucuresti |
| 220. | Miss Ale - Espresso Bar, Bucuresti | 0371394059 | Calea Victoriei, Nr. 100, sector 1 |
| 221. | Restaurant Home - Bucatarie internationala, Bucuresti | 0722509794; 0728708216; 0729811130 | Str. Alexandru Xenopol, Nr. 1 (zona Gradina Icoanei), Sector 1, Bucuresti |
| 222. | Flair Angel - Bar specializat in cocktailuri, Bucuresti | 0769771991 | Calea Rahovei, Nr. 147-153, sector 5 |
| 223. | Baroque Events & Garden - Restaurant Bucuresti | 0726350802 | Calea Rahovei, Nr. 145, Sector 5 |
| 224. | Restaurant Burebista Traditional - Bucuresti | 0755041484; 0212109704 | Calea Mosilor, Nr 195, sector 2 |
| 225. | Coftale Coffee Shop - Cafenea, Bucuresti | 0746420874 | Strada Profesor Stefan Mihaileanu, Nr.42, sector 2 |
| 226. | Paninaro - Restaurant pentru mic dejun si brunch | 0771783619 | Strada Luterana, Nr 3, sector 1 |
| 227. | Tarab - Restaurant cu specific libanez, Bucuresti | 0774411111 | Strada Nerva Traian, Sector 3 |
| 228. | Pizza Bar - Pizzerie, Bucuresti | 0746013623 | Lanariei, nr. 5, sector 4 |
| 229. | Cald si Bun, Catering - Bucuresti | 0212339457; 0737526215 | Hatmanul Arbore, Nr. 11, Sector 1, Bucuresti |
| 230. | L\'Amande - Deserturi fara gluten, Bucuresti | 0744639549 | Str. Lanariei, Nr. 93-95, sector 4 |
| 231. | Cafe Verona - Cafenea Bucuresti | 0732003060 | Str. Arthur Verona, Nr. 13, sector 1, |
| 232. | Bragageria Bogdania - Bistro, Bucuresti | 0787877985 | Str. Olari, Nr. 20, Sector 2 |
| 233. | Suzana Ribs & Wings - Restaurant cu specialitati texane, Bucuresti | 0785444466 | Calea Rahovei, Nr. 147-153, Sector 5, Palatul Bragadiru |
| 234. | Savart - Arta savorilor Gourmet, Bucuresti | 0743575757 | Str. George Enescu, Nr. 2-4, sector 1 |
| 235. | Bouzouki - Restaurant specific grecesc, Bucuresti | 0787528003 | Bulevardul Sincai Gheorghe, Nr. 3, sector 4 |
| 236. | La Copac - Carciuma de jupani, Bucuresti | 0722704445 | str. Pitar Mos, nr. 23, sector 1 |
| 237. | Terminus - Pub, Bucuresti | 0730222555 | Str. George Enescu, nr. 5, sector 1, |
| 238. | Salon Golescu - Bar specializat in cocktailuri, Bucuresti | 0314360338 | Strada Nicolae Golescu, Nr 17, sector 1 |
| 239. | Il Cantuccio, Restaurant - Bucuresti | 0722572957 (Sef unitate: Baieticu Ioana); 0735281669 (Sef unitate: Otvos Gabriela); 0724540839 (Manager: Florea Valentin) | Fabrica de Chibrituri , Nr. 2, Rond Autogara Filaret, sector 4, Bucuresti |
| 240. | Primus Pub - Bucuresti | 0732222666 | George Enescu, Nr. 3, sector 1 |
| 241. | Wine Ambassador - Bar de vinuri, Bucuresti | 0733182037 | Intrarea Biserica Alba, nr.1, sector 1 |
| 242. | Nicoresti, Restaurant - Bucuresti | 0212112480; 0724290550 | Toamnei, Nr. 13 (colt cu Maria Rosetti nr. 40), Sector 2, Bucuresti |
| 243. | Il Cantuccio, Restaurant - Bucuresti | 0722572957 (Sef unitate: Baieticu Ioana); 0735281669 (Sef unitate: Otvos Gabriela); 0724540839 Manager: Florea Valentin) | Fabrica de Chibrituri, Nr. 2, Rond Autogara Filaret, sector 4, Bucuresti |
| 244. | M60 - Cafenea Bucuresti | 0314100010 | Strada Mendeleev, Nr 2, sector 1 |
| 245. | Cofetaria Zora - Bucuresti | 0771119563 | Strada Uranus, Nr. 100, Sector 5 |
| 246. | Lugo - Restaurant cu specific mediteranean, Bucuresti | 0785238910 | George Enescu, Nr. 23, sector 1 |
| 247. | Trattoria Don Vito - Restaurant Bucuresti | 0733333021 | Str. Mendeleev, Nr. 1, Sector 1 |
| 248. | Restaurant Grill Verdetei 5 - Restaurant cu preparate la gratar, Bucuresti | 0766411338 | Strada Verdetei, nr. 5, sector 3 |
| 249. | Journey Pub - Bucuresti | 0752285286 | Strada George Enescu, Nr. 25, sector 1 |
| 250. | La Machedoni - Restaurant cu specific traditional romanesc si american | 0721512236 | Anastasie Panu, nr. 10, sector 3 |
| 251. | Patiseria Tineretului - Bucuresti | 0761116622 | Bd. Gheorghe Sincai, Nr 2A, sector 4 |
| 252. | Ambasador, Restaurant - Hotel Ambasador, Bucuresti | 0213159080 | Bd. G-ral Ghe. Magheru, Nr. 8-10, Sector 1, Bucuresti |
| 253. | Unico Vero - Restaurant cu specific italian, Bucuresti | 0212123338;0758110265 | Strada Viitorului, Nr. 8, sector 2 |
| 254. | Gusto e Passione - Gelateria Artigianale, Bucuresti | 0755555453 | Calea Victoriei, Nr. 87, sector 1 |
| 255. | Red Angus Steakhouse - Restaurant Bucuresti | 0756600000 | Piata Amzei, Nr. 10-22Sector 1, |
| 256. | Cofetaria Ina - Bucuresti | 0723300213 | Str. C-tin Radulescu Motru, Nr. 6, Sector 4 |
| 257. | Lente - Restaurant pentru mic dejun si brunch, Bucuresti | 0314107585 | Dionisie Lupu, Nr 78, sector 1 |
| 258. | Point Hub - Hub Cultural, Bucuresti | 0748291815 | Str. General Eremia Grigorescu, nr. 10, sector 1, |
| 259. | Tulin, Restaurant libanez - Bucuresti | 0213144001; 0762212675 | Pictor Constantin Stahi, Nr. 2, Sector 1, Bucuresti |
| 260. | Din Fu - Restaurant chinezesc Bucuresti | 0729313338; 0213260127 | Str. Alexandru Moruzzi, Nr. 76A, Sector 3 |
| 261. | Velocita - Gelaterie, Bucuresti | 0739889189 | Calea Victoriei, Nr. 122, sector 1 |
| 262. | Sweetology - Gelaterie, Bucuresti | 0734444889 | Calea Victoriei, Nr. 122, sector 1 |
| 263. | Shift Pub - Bucuresti | 0212112272 | Str. General Eremia Grigorescu, Nr.17 |
| 264. | Sare si Piper - Restaurant cu specific italian, Bucuresti | 0744663451 | Str. Viorele, nr. 26, zona Timpuri Noi, sector 4, Bucuresti |
| 265. | Bar A1 - Bucuresti | 0770901409 | Piata Amzei, Nr 1, sector 1 |
| 266. | Camera din fata - Ceainaria Bucuresti | 0213111512 | Str. Mendeleev, Nr. 22, sector 1, langa Piata Amzei |
| 267. | Luna Cafe & Bistro - Bucuresti | 0771609431; 0771211246 | Str. Viitorului, Nr. 32, sector 2, |
| 268. | Fika18 - Croissanterie, Bucuresti | 0770663982 | Calea Victoriei, Nr. 101, sector 1 |
| 269. | De Cartier - Restaurant de tip familial, Bucuresti | 0213305556 | Str. Viorele, Nr. 57A, sector 4 |
| 270. | Tabiet 41 - Restaurant, Bucuresti | 0314260278 | Strada Viorele, nr.59, sector 4 |
| 271. | Chong Qing - Restaurant cu specific chinezesc, Bucuresti | 0212525095; 0731383952 | B-dul Pache Protopopescu, Nr.28, sector 2 |
| 272. | Edo Sushi - Restaurant cu specific japonez, Bucuresti | 0735111095 | Stirbei Voda, Nr 84A, sector 1 |
| 273. | Bistro Turturelelor - Restaurant, Bucuresti | 0726310583; 0758887454 | Strada Turturelelor, 11A, corpC, Parter, Sector 3 |
| 274. | King Rolls - Fast Food Bucuresti | 0747887206 | Calea Vitan, Nr. 17A, sector 3 |
| 275. | Parliament, Restaurant - Bucuresti | 0214119990; 0214119991; 0721332397 | Izvor , Nr. 106, Sector 5 , Bucuresti |
| 276. | No10 - Restaurant cu specific italian | 0741210003 | Strada Austrului, Nr. 10, sector 2 |
| 277. | Parliament, Restaurant - Bucuresti | 0214119990; 0214119991; 0721332397 | Str. Izvor, Nr. 106, Sector 5 , Bucuresti |
| 278. | Bellini Garden - Restaurant cu specific italian, Bucuresti | 0722100111; 0314278776 | str. General Henri Mathias Berthelot, nr. 44, sector 1 |
| 279. | Trattoria Fresca - Restaurant cu specific italian, Bucuresti | 0731333410 | Str.Popa Nan, nr.140, Sector 2 |
| 280. | Il Destino, Restaurant italian - Bucuresti | 0212103039; 0758836278; 0744318094 (Pentru evenimente) | Silvestru, Nr. 67, Sector 2, Bucuresti |
| 281. | KFC Romana, Fast Food - Bucuresti | 0740121904 | Bd. G-ral Gh. Magheru , Nr. 28-30, Sector 1 , Bucuresti |
| 282. | Oktoberfest Pub - Bucuresti | 0724333233 | Popa Nan, Nr. 95, Sector 3, Bucuresti |
| 283. | Bellini Pizza - Bucuresti | 0314278776 | General Henri Matias Berthelot, Nr. 44,Sector 1, Bucuresti |
| 284. | Burger Peter - Restaurant cu burgeri Bucuresti | 0799981031 | Strada Popa Nan, Nr. 48, sector 2 |
| 285. | Casa Veche - Restaurant, Ramnicu Valcea | 0747875045 ; 0748702238; 0350418155 | Stirbei Voda, Nr.162, Ramnicu Valcea, judetul Vilcea |
| 286. | Barrio - Restaurant & bar, Bucuresti | 0733222777 | Biserica Amzei, Nr. 30, sector 1 |
| 287. | Cofetaria Casandra - Bucuresti | 0757252466 | B-dul. Magheru, Nr. 32-36, Sector 1 |
| 288. | Sweet Sophie - Cofetarie | 0748309063 | Strada Popa Nan, Nr. 22, sector 2 |
| 289. | Casa Oamenilor de Stiinta - Restaurant, Bucuresti | 0726664227; 0722926012; 0769293579 | P-ta Lahovari, nr. 9, Sector 1 |
| 290. | Tonka Soul Café - Bucuresti | 0371445255 | Biserica Amzei , Nr. 19, Sector 1, Bucuresti |
| 291. | Old Mike Pub si Restaurant - Bucuresti | 0787366166 | Morilor, Nr. 46 Sector 3, Bucuresti |
| 292. | Trattoria Della Nonna - Restaurant cu specific italian, Bucuresti | 0771697503 | Strada Popa Nan, Nr. 5, sector 2 |
| 293. | Noua - Restaurant cu specific romanesc, Bucuresti | 0217943294 | Strada Popa Nan, Nr. 7, sector 2 |
| 294. | Mon Paris Restaurant & Lounge - Restaurant cu specific european, Bucuresti | 0799973783 | Bd Dacia, Nr. 62, sector 2 |
| 295. | Ivan Pescar & Scrumbia Bar - Restaurant pescaresc, Bucuresti | 0729384828 | Str. Uranus, nr 150, cladirea The Ark, parter, sector 5 |
| 296. | Coolinart - Gastropub Bucuresti | 0772017955 | Calea Victoriei, Nr. 142-148, sector 1 |
| 297. | Casual Pub - Restaurant Bucuresti | 0770841212 | Bd. Dacia, Nr. 104, Sector 2 |
| 298. | The Owl Cocktail House - Bar specializat in cocktailuri, Bucuresti | 0743260923 | str. Stirbei Voda, Nr. 104-106, sector 1 |
| 299. | Kicen - Ciorbe de casa, Bucuresti | 0751012221 | str. Dr. Staicovici, nr. 43, sector 5 |
| 300. | Contesa, Restaurant - Bucuresti | 0731831891; 0722244214; 0213317171 | Sibiel, Nr. 5, sector 4, Bucuresti |
| 301. | Ceai la Vlaicu - Ceainarie Bucuresti | 0727609699 | Str. Aurel Vlaicu, Nr. 47, sector 2 |
| 302. | Benihana - Restaurant cu specific japonez | 0751169889 | Calea Dorobantilor, Nr. 5-7 Hotel Howard Johnson, sector 1, |
| 303. | Dolce Principessa Cofetarie - Bucuresti | 0212115155; 0735213101 | Calea Dorobanti, nr. 50A, sector 1, Bucuresti |
| 304. | Pizza Hut - Bucuresti | 0740121901 | Calea Dorobantilor , Nr. 5-7, Sector 1 , Bucuresti |
| 305. | Dines, Restaurant evenimente - Bucuresti | 0213362474; 0723634741; 0727968325 (Predescu Constantin) | Cutitul de Argint, Nr.12 (langa Arenele Romane) Sector 4, Bucuresti |
| 306. | Karishma, Restaurant indian - Bucuresti | 0212525157; 0737519953 | Iancu Capitanu, Nr. 36, Sector 2, Bucuresti |
| 307. | Maison des Crepes - Clatitarie Bucuresti | 0770802524 | Strada Mihai Eminescu, Nr. 38, Sector 2 |
| 308. | Sale Dolce, Restaurant - Bucuresti | 0736858430; 0735123687 | Matei Voievod, Nr. 20, Sector 2, Bucuresti |
| 309. | Rocca by The Jar - Gastropub Bucuresti | 0770857841 | Str. Pictor Theodor Aman, Nr. 36, sector 1 |
| 310. | Bistro raw vegan, Restaurant - Bucuresti | 0726605501 | Transilvaniei, Nr. 11, Sector 1, Bucuresti |
| 311. | Arome - Restaurant vegetarian/vegan, Bucuresti | 0749109639 | Luigi Cazzavillan, Nr. 25, sector 1 |
| 312. | Panik & Pub - Pub, Bucuresti | 0728264360 | Str. Mihai Eminescu, Nr. 33 |
| 313. | Boema 33 - Restaurant, Bucuresti | 0722295463 | Bd. Dacia, nr. 33, sector 1 (Piata Romana) |
| 314. | Arogant - Restaurant & Lounge, Bucuresti | 0732764268 | Piata Alba Iulia Piata Alba Iulia, nr 8, sector 3 |
| 315. | Paque Bistro - Restaurant cu bar, Bucuresti | 0722330607 | Bulevardul Pache Protopopescu, nr.60, sector 2 |
| 316. | La Giuggiola - Gelateria artizanala italiana Bucuresti | 0770107183 | Bulevardul Pache Protopopescu, Nr. 57, Sector 2 |
| 317. | Old School, Restaurant - Bucuresti | 0744105445; 0745110362 | Calea Plevnei, Nr. 61, Sector 6, Bucuresti |
| 318. | Blunch Bistro - Restaurant, Bucuresti | 0736898990 | Mihai Eminescu, Nr.181, sector 2 |
| 319. | Resto Aperto, Restaurant - Bucuresti | 0738741118 | Calea Vitan, Nr.55-59 (Bucuresti Mall) Sector 3, Bucuresti |
| 320. | Haveli, Restaurant - Bucuresti | 0212110390; 0721721640 | Episcopul Radu, Nr. 3, Sector 2, Bucuresti |
| 321. | Banjo Jack - Restaurant cu burgeri, Bucuresti | 0770653341 | Strada Iancu Capitanu, Nr 26, sector 2 |
| 322. | Bocca Lupo - Restaurant cu specific italian, Bucuresti | 0314050050 | Strada Dr. Lister, nr. 1, sector 5 |
| 323. | Ubuntu Coffee - Terasa, Bucuresti | 0758635771 | Splaiul Unirii, Nr. 195, sector 3 |
| 324. | Cuptorul cu Lemne, Pizza - Bucuresti | 021.9363; 0212524493; (021) 9363 - tasta 0 | Bd. Pache Protopopescu, Nr. 63, Sector 2, Bucuresti |
| 325. | El Torito, Restaurant - Bucuresti | 0212526688; 0728176059 | Iancu Capitanu , Nr. 30, Sector 2, Bucuresti |
| 326. | Shiva Coffee&Tea - Cafenea Bucuresti | 0748874482 | Strada Mihai Eminescu, Nr. 73, sector 2 |
| 327. | VINO - Bar de vinuri, Bucuresti | 0799944999 | Strada Mihai Eminescu, Nr. 71 |
| 328. | La Mama - Restaurant Bucuresti | 0721526262 | Strada Delea Veche, Nr. 51, sector 2 |
| 329. | La Impinge Tava - Bucuresti | 0721150452 | Str. Mihai Eminescu, Nr. 73, Sector 2 |
| 330. | Cuptorul cu Lemne - Restaurant pizzerie Bucuresti | 0219363 | Bd. Pache Protopopescu, Nr 65, sector 2 |
| 331. | Fast Food Eminescu - Bucuresti | 0723161166 | Str. Mihai Eminescu, nr 137, sector 2 |
| 332. | Resto Aperto, Restaurant - Bucuresti | 0738741118 | Calea Vitan , Nr.55-59(Bucuresti Mall) Sector 3, Bucuresti |
| 333. | Turkish Clasis - Restaurant, Bucuresti | 0721503011 | Sos Viilor, nr.27, sector 5 |
| 334. | Modelier - Bistro, cocktails Bucuresti | 0799630693 | Strada Duzilor, Nr. 12, sector 2 |
| 335. | Turquoise - Restaurant cu specific oriental, Bucuresti | 0731826222 | Strada Theodor D. Sperantia, Nr. 96, sector 3 |
| 336. | Nikos Greek Taverna, Restaurant - Bucuresti | 0730001008 (Restaurant); 0215999099 (Livrari) | B-dul Burebista, Nr 2 (Piata Alba Iulia), Sector 3, Bucuresti |
| 337. | Gio Cafe - Bucuresti | 0730030757 | Bd. Burebista, Nr.2 , Sector 3, Bucuresti |
| 338. | Lotus Cafe - Cafenea restaurant Bucuresti | 0722808389 | Bd. Decebal, Nr 1, sector 3 |
| 339. | Giorginio Cofetarie - Bucuresti | 0722434002 | Calea Dudesti, Nr. 129 (colt cu str. Scoala Ciocanul) Sector 3, Bucuresti |
| 340. | Cucina di casa - Pizzerie, Bucuresti | 0735868318 | Calea Vacaresti, Nr. 230, sector 4 |
| 341. | Pizza PPH - Pizza si catering, Bucuresti | 0319441 | Str. Lirei, Nr. 13, sector 2 |
| 342. | Prajituri de Casa - Cofetarie Bucuresti | 0751135153 | Calea Mosilor, Nr. 225, sector 2 |
| 343. | Laur Express Food - Restaurant fast-food, Bucuresti | 0732455089 | Bulevardul Ferdinand I, Nr. 60, sector 2 |
| 344. | Padthai - Restaurant Bucuresti | 0726637747 | Bulevardul Decebal, Nr. 3, sector 3 |
| 345. | Acuarela Bufet - Bucuresti | 0745662889; 0741403238; 0721483051 | Polona, Nr. 40,Sector 1, Bucuresti |
| 346. | Tress Caffe&Lounge - Bucuresti | 0721988801 | Bulevardul Decebal, Nr 3, sector 3 |
| 347. | Animaletto Pizza Bar - Bucuresti | 0755019098 | Strada Visarion, Nr 10, sector 1 |
| 348. | Ana Pan Cofetarie - Bucuresti | 0216373536; 0730262726; 0212332241 | Stirbei Voda, Nr. 166,Sector 1, Bucuresti |
| 349. | El Bacha, Restaurant - Bucuresti | 0212691392; 0722833333 | P-ta Alba Iulia, nr.6 bl.15, sector 3, |
| 350. | La Calinescu - Restaurant cu specific romanesc, Bucuresti | 0788472725; 0213310750 | Strada Piscului, Nr. 16, sector 4 |
| 351. | J\'ai Bistrot - Gastropub, Bucuresti | 0790229922 | Calea Grivitei, nr. 55, sector 1 |
| 352. | Fatafit - Restaurant cu specific libanez, Bucuresti | 0760445555 | Calea Mosilor, Nr. 225, Sector 2 |
| 353. | Volare - Pizzerie, Bucuresti | 0730622600 | Calea Vacaresti, Nr.203B, sector 4 |
| 354. | Ciccio - Pizzerie Bucuresti | 0745515510 | Strada Henri Coanda, Nr. 28 sector 1 |
| 355. | Jazz Book - Club de jazz si blues, Bucuresti | 0752206746 | Doctor Carol Davila, Nr. 1, Cotroceni, sector 5 |
| 356. | China Town Restaurant - Bucuresti | 0726130138; 0788671161; Tel/Fax:0212120239 | Viitorului, Nr. 98, Sector 2, Bucuresti |
| 357. | Ici et La - Restaurant cu specific francez Bucuresti | 0731453608 | Strada Domnita Ruxandra, Nr. 7, Sector 2 |
| 358. | XO Lounge - Restaurant Bucuresti | 0725585388 | B-dul Decebal, Nr. 5, sector 3 |
| 359. | Rainbow - Bar & Grill, Bucuresti | 0743205054 | Cornul Caprei, nr.53, sector 3 |
| 360. | Suento - Restaurant cu specific european modern, Bucuresti | 0787605362 | Strada Toamnei, Nr. 101, sector 2 |
| 361. | Casa Lica - Cofetarie Bucuresti | 0725761188 | Bulevardul Decebal, Nr. 5, Sector 3 |
| 362. | SwitchEat - Restaurant cu burgeri Bucuresti | 0726023881 | Strada Horei, Nr 34, sector 2 ( la doi pasi de Foisorul de Foc) |
| 363. | La Taifas, Bistro - Bucuresti | 0723197156; 0212127788 | Mihail Moxa, Nr. 12, Sector 1 , Bucuresti |
| 364. | Ceramic Cafe - Bucuresti | 0774007364 | I.C. Visarion, Nr 20, sector 1 |
| 365. | Gradina Eden - Terasa Bucuresti | 0722185368 | Calea Dorobanti, Nr. 44-46 sector 1 |
| 366. | Torna Fratre Restaurant - Bucuresti | 0212103557; 0784111890 | Tunari, Nr. 34, Sector 2, Bucuresti |
| 367. | Club Art Papillon Restaurant - Bucuresti | 0212522520; 0732582278; 0722240930 | Matei Voievod , Nr. 66A Sector 2, Bucuresti |
| 368. | Black Habit - Cafenea | 0770357382 | Calea Grivitei, Nr. 77, sector 1 |
| 369. | Casa Jienilor Agricultori, Restaurant - Bucuresti | 0735994994 | Agricultori, Nr.12, Sector 2, Bucuresti |
| 370. | Agio Bistrot - Bistro, Bucuresti | 0763528818 | Bd. Decebal, Nr. 9, sector 3 |
| 371. | Decadence - Bar & Restaurant | 0741828489 | Strada Constantin Daniel, nr. 11, sector 1 |
| 372. | La petite bouffe - Cafenea, Bucuresti | 0733669344 | Strada Doctor Louis Pasteur, nr 38, sector 5 |
| 373. | Casa Brancoveanu Restaurant - Bucuresti | 0724640000; 0314245890; 0762643010 | Caramidarii de Jos, Nr.14, Sector 5, Bucuresti |
| 374. | Alceva - Restaurant, Bucuresti | 0770844125 | Matei Voievod, Nr. 79, sector 2, |
| 375. | Funky Lounge - Terasa, Bucuresti | 0755505505 | Bd. Decebal, nr 9, sector 3 |
| 376. | Mazzaj Cafe - Restaurant cu specific libanez, Bucuresti | 0757292398 | Splaiul Unirii, Nr. 162, sector 4 |
| 377. | Nabu - Bar Bucuresti | 0787407043 | Pache Protopopescu, Nr. 97, sector 2 |
| 378. | Trattoria Mezzaluna - Restaurant specific italian Bucuresti | 0729591469 | Calea Dorobanti, Nr. 63, sector 1 |
| 379. | Rich Vip Lounge - Restaurant Bucuresti | 0771790764 | Bd.Decebal, Nr 9, sector 3 |
| 380. | Citylicious - Restaurant Bucuresti | 0771707709 | Bld Tudor Vladimirescu, Nr. 29, sector 5 |
| 381. | Belli Siciliani - Restaurant autentic sicilian, Bucuresti | 0799090601 | Str. Matasari, Nr. 47, sevtor 2, |
| 382. | Nan Jing, Restaurant chinezesc - Bucuresti | 0213181285; 0726103407 | G-ral Gheorghe Manu, Nr. 2-4 (Hotel Minerva), Sector 1, Bucuresti |
| 383. | Gallo Nero, Restaurant - Bucuresti | 0726544889; 0213268128 | Bd. Decebal, Nr. 12, Sector 3, Bucuresti |
| 384. | La Cantine de Nicolai, Restaurant - Bucuresti | 0725210608 | Povernei, Nr. 15-17, Sector 1, Bucresti |
| 385. | Bistro HB - Restaurant Bucuresti | 0735011736; 0735011735; 0735011737 | Strada Matasari, Nr. 49 Sector2 |
| 386. | La Taifas, Restaurant - Bucuresti | 0212127788; 0723197156 | Gheorghe Manu, Nr. 16, sector 1 , Bucuresti |
| 387. | Bistro La Taifas, Restaurant - Bucuresti | 0212127788; 0723197156 | Gheorghe Manu, Nr. 16, Sector 1, Bucuresti |
| 388. | Old Kitchen - Restaurant Bucuresti | 0732773537 | Str. Sfintii Voievozi, Nr. 13, Sector 1 |
| 389. | Naser - Restaurant specific libanez Bucuresti | 0799980001; 0799980002; 0213135060 | Str. Fluierului, Nr. 18, sector 2 (colt cu Str. Matasari, in spatele PRO TV) |
| 390. | Friddi - Gelaterie, Bucuresti | 0314313295 | Str. Vasile Alecsandri, Nr. 4, sector 1 |
| 391. | Nicolai To Go - Bistro Bucuresti | 0741600006 | Calea Dorobantilor, Nr. 67, sector 1 |
| 392. | Blue Margarita - Restaurant cu specific mexican Bucuresti | 0770944822 | Strada Povernei, Nr. 15-17, sector 1 |
| 393. | Kvala - Restaurant grecesc, Bucuresti | 0726731663 | str Louis Pasteur, nr 63, sector 5 |
| 394. | SupaDupa - Restaurant cu supe si ciorbe, Bucuresti | 0739344281 | Strada Popa Tatu, Nr. 94, sector 1 |
| 395. | Turquoise Bakery - Bucuresti | 0739037919 | Str. Matei Voievod, nr.101, Sector 2 |
| 396. | Ciorbarie - Restaurant cu supe si ciorbe, Bucuresti | 0785610628 | Calea Dorobanti, Nr. 73, sector 1 |
| 397. | Ceainaria Infinitea | 0723175300 | Str. Dr. Grigore Romniceanu, Nr.7, ap.2, sector 5 |
| 398. | La Matache Restaurant (comenzi online si livrari la domiciliu) | 0213107327; 0213107337; 0213118888 | P-ta. Dr. Haralambie Botescu, Nr. 2, Sector 1, Bucuresti |
| 399. | Dada Restaurant - Bucuresti | 0729997405; 0724015800 | Str. Matei Voievod , nr. 94bis, sector 2, |
| 400. | Trafalgar Pub - Bucuresti | 0212113151; 0766625805 | David Emanuel , Nr. 4A, Sector 1, Bucuresti |
| 401. | Duman - Restaurant cu specific oriental, Bucuresti | 0738170063 | Bulevardul Decebal, Nr. 13, sector 3 |
| 402. | Snap - Restaurant, Bucuresti | 0738888885 | Bulevard Decebal, nr. 13, sector 3 |
| 403. | Bike Boutique and More - Magazin, terasa, service, Bucuresti | 0752405152 | Strada Profesor Doctor Victor Babes, Nr. 2, sector 5 |
| 404. | Pizza Venetia, Pizzerie si catering - Bucuresti | 0720800100; 0213204424; Fax: 0720800100 | Dristorului, Nr.59, Sector 3, Bucuresti |
| 405. | Casa Jienilor, Restaurant - Bucuresti | 0212121951; 0722916111 | Fainari, Nr. 5, Sector 2, Bucuresti |
| 406. | Hop Garden - Restaurant cu preparate la gratar, Bucuresti | 0770448443 | Splaiul Unirii, Nr. 225, sector 3 |
| 407. | Veranda Casa Frumoasa - Restaurant Bucuresti | 0733735932 | Str. Clopotarii Vechi, Nr. 5, sector 1 |
| 408. | Restaurant La Teu - Bucuresti | 0723642022 | Strada Titu Maiorescu, Nr.18, sector 2 |
| 409. | Casa Jienilor Fainari, Restaurant - Bucuresti | 0212121951; 0735994994 | Fainari, Nr. 5, Sector 2, Bucuresti |
| 410. | Casa Jienilor, Restaurant - Bucuresti | 0212121951; 0722916111; Fax 0212121951 | Fainari, N. 5, Sector 2, Bucuresti |
| 411. | The Artist Restaurant - Bucuresti | 0728318871 | Calea Victoriei, Nr.147, sector 1 |
| 412. | Lolita - Boutique de dulciuri Bucuresti | 0757013453 | Strada Vasile Lascar, Nr. 212, sector 2 |
| 413. | Templul Soarelui, Restaurant chinezesc - Bucuresti | 0212111693; 0723743878 | Vasile Lascar, Nr. 205, Sector 2, Bucuresti |
| 414. | Templul Soarelui, Restaurant chinezesc - Bucuresti | 0212111693; 0723743878 | Vasile Lascar, Nr. 205, Sector 2, Bucuresti |
| 415. | Cristal - Cofetarie | 0760090324 | Str. Matei Voievod, nr. 108, sector 2 |
| 416. | PengYou - Restaurant specific chinezesc Bucuresti | 0787748272 | Str. Occidenului, Nr. 11, Sector 1 |
| 417. | La Finca by Alioli - Restaurant Bucuresti | 0767150500 | Str. Caderea Bastiliei, Nr. 78, Sector 1, |
| 418. | La Birlic - Terasa, Bucuresti | 0722318168; 0752318168; 0212525151 | Bulevardul Pache Protopopescu, Nr. 125, sector 2 |
| 419. | Sara Green - Restaurant vegan, Bucuresti | 0774962246;0765191076 | Bulevardul Lascar Catargiu, Nr 43, Sector 1 |
| 420. | Za Lokal - Restaurant pentru mic dejun si brunch, Bucuresti | 0770557931 | Calea Victoriei, Nr 214, sector 1 |
| 421. | Hashtag Pub - Bucuresti | 0771555444 | Soseaua Mihai Bravu, Nr 32, sector 2 |
| 422. | Derby Pub & Restaurant - Bucuresti | 0214108545 | Bd. Eroilor Sanitari , Nr. 49A,sector 5, Bucuresti |
| 423. | BaKings - Cofetarie Bucuresti | 0744642929 | Strada Ilarie Chendi, Nr. 28, sector 2 |
| 424. | The Mark - Restaurant pub Bucuresti | 0758505500 | Calea Grivitei, Nr. 84-98, sector 1 |
| 425. | Vanilla, Cofetarie - Bucuresti | 0733058058 | Mihai Bravu, Nr. 47, Parter, Sector 2, Bucuresti |
| 426. | Capital Plaza, Hotel si Restaurant - Bucuresti | 0372080080; Fax: 0372080081 | Bd. Iancu de Hunedoara, Nr. 54, Sector 1, Bucuresti |
| 427. | Terasa Florilor - Restaurant cu terasa, Bucuresti | 0755097931 | Str. Ion Maiorescu, nr. 42, sector 2 |
| 428. | Mezze, Restaurant libanez - Bucuresti | 0213116633; 0720044469 | Mircea Vulcanescu, Nr.153 B,Sector 1 , Bucuresti |
| 429. | Ciorbe si Placinte - Restaurant cu specific romanesc, Bucuresti | 0755993070 | B-dul Iancu de Hunedoara, Nr. 64, sector 1 |
| 430. | Casa Jienilor, Restaurant - Bucuresti | 0735994994; 0722916111 | Str. Fainari, nr. 5, sector 2, |
| 431. | Restaurant Sole - Bucuresti | 0722587589 | Bd. Iancu de Hunedoara, Nr. 48, etaj 15, sector 1 |
| 432. | Amareto, Cofetarie - Bucuresti | 0736659592; 0723830104; 0723830104 whatsapp | Sos. Stefan cel Mare , Nr. 36, Sector 2 (vis-a-vis de Circul Metropolitan Bucuresti), Bucuresti |
| 433. | Graffiti Urban Food, Bucuresti | 0749433433; 0733695443; 0769180180 | Str.Carol Davila, Nr. 56A, Sector 5, Bucuresti |
| 434. | Erra - Restaurant cu specific european modern, Bucuresti | 0734983984 | Str. Constantin Nottara, Nr 13, sector 3 |
| 435. | Capital Plaza, Hotel si Restaurant - Bucuresti | 0372080050; 0372080081 | Bd.Iancu de Hunedoara, Nr. 54, Sector 1, Bucuresti |
| 436. | Casa Dragonului, Restaurant Bucuresti | 0213202666; 0761929019 | Calea Dudesti, nr. 198, sector 3, Bucuresti |
| 437. | Domino\'s Pizza, Fast food - Bucuresti | 0736500200 | Bd. Iancu de Hunedoara, nr. 38, sector 1 , Bucuresti |
| 438. | Coclinta Brasserie- Restaurant cu specific romanesc, Bucuresti | 0770238774 | Calea Victoriei, Nr. 153, sector 1 |
| 439. | Pasticceria Giuseppina Cofetarie - Bucuresti | 0730283947 | Soseaua Stefan cel Mare, Nr.46, Sector 2, Bucuresti |
| 440. | Domino\'s Pizza - Bucuresti | 0736500200 | Bd. Iancu de Hunedoara, Nr. 38, Sector 1 , Bucuresti |
| 441. | City Grill Restaurant - Bucuresti | 0722446766; 0724599886 | Bulevardul Lascar Catargiu, Nr. 56, Sector 1, Bucuresti |
| 442. | Trattoria Buongiorno - Restaurant cu specific italian, Bucuresti | 0722446766 | Bdul. Lascar Catargiu, Nr. 56, sector 1 |
| 443. | Hatz Burger Studio - Restaurant cu burgeri | 0770920018 | Soseaua Stefan cel Mare, Nr. 240, Bl. 59A, Sector 2 |
| 444. | Intermacedonia, Restaurant - Bucuresti | 0212522010; 0212527331; 0212522190 | Sos. Mihai Bravu, Nr.95-100, Sector 2 (P-ta Iancului) , Bucuresti |
| 445. | Delice Grill - Restaurant fast-food Bucuresti | 0721112244 | Soseaua Mihai Bravu, Nr 139-145, sector 2 |
| 446. | Die Deutsche Kneipe - Restaurant cu specific german | 0722284560 | Str. Stockholm, nr. 9, sector 1, |
| 447. | Grivita - Pub&Grill, Bucuresti | 0724748482 | Calea Grivita, Nr. 130 (Parter Eurohotels), |
| 448. | Alice, Cofetarie - Bucuresti | 0744486465 | Sos. Mihai Bravu, Nr. 123-135, Sector 2, (zona Piata Iancului - langa Sectia 8 de Politie), Bucuresti |
| 449. | KALI - Restaurant cu bufet, Bucuresti | 0725988889 | Strada Buzesti, Nr. 71, Sector 1 |
| 450. | Fayn Urban Eatery - Restaurant, Bucuresti | 0723257692 | Strada Buzesti, nr. 71, sector 1 |
| 451. | ChefBox - Restaurant, Bucuresti | 0728800528 | Buzesti, Nr. 57-59, sector 1 |
| 452. | Cofetaria Andreea | 0213228845; 0728877033 | Sos. Mihai Bravu , Nr. 286, sector 3, Bucuresti |
| 453. | Andreea, Cofetarie, torturi si patiserie - Bucuresti | 0728877033; 0213228845 | Bulevardul Mihai Bravu, Nr. 286, Sector 3, Bucuresti |
| 454. | Bravu Burger & Crepes - Restaurant fast-food, Bucuresti | 0722118100 | Soseaua Mihai Bravu, Nr 452 - 460, sector 2 |
| 455. | Cofetaria Lush - Bucuresti | 0720976019?; 0721605303 | Soseaua Stefan cel Mare, Nr. 226, bloc.44, parter, sector 2 |
| 456. | Burgeria Cotroceni - Restaurant fast-food, Bucuresti | 0314214777 | Soseaua Cotroceni, Nr. 9, sector 6 |
| 457. | Restaurant Ali Baba - Specific oriental, Bucuresti | 0213274810; 0722707208 | Sos. Mihai Bravu, Nr. 213, sector 2, Bucuresti |
| 458. | Santorini - Restaurant specific grecesc Bucuresti | 0748333334 | Bulevardul Mihai Bravu, Nr. 209, Sector 2 |
| 459. | Dabeef - Restaurant Bucuresti | 0739835658 | Calea Floreasca, Nr. 111-113, Sector 1 |
| 460. | E3 by Entourage - Restaurant Bucuresti | 0734966889 | Calea Floreasca, Nr. 111-113, Sector 1 |
| 461. | Mateo Fast Food | 0728199827; 0752777333; 0314362033 | Strada Dristorului, Nr. 87, sector 3 |
| 462. | Bellagio Villa Restaurant - Bucuresti | 0213440661; 0771120177 | Vrejului, Nr. 21, Sector 3, Bucuresti |
| 463. | Castronul Gustos - Restaurant, Bucuresti | 0749011588 | Str. Nasaud, nr. 97, Sector 5 |
| 464. | Sweet by MarVio - Cofetarie Bucuresti | 0212105291 | Soseaua Stefan cel Mare, Nr 31, sector 2 |
| 465. | Greekos Urban Food - Restaurant fast-food, Bucuresti | 0726646976 | Soseaua Mihai Bravu, Nr. 247, sector 3 |
| 466. | Qian Bao, Restaurant chinezesc - Bucuresti | 0722622865; 0314306616 | Intrarea Baba Novac, Nr. 2, Sector 3, Bucuresti |
| 467. | Taverna Baba Novac, Restaurant - Bucuresti | 0771544334; 0760010784 | Intrarea Baba Novac, Nr. 3, Sector 3, Bucuresti |
| 468. | Tip Top, Cofetarii - Bucuresti | 0212422414 | Soseaua Colentina, Nr. 2, Sector 2 (magazinul Bucur-Obor), Bucuresti |
| 469. | Bomb Doner Kebap - Restaurant fast-food, Bucuresti | 0727771549 | Strada Lizeanu, Nr. 5, sector 2 |
| 470. | Casa Tosca, Cofetarie - Bucuresti | 0213461297 | Bd. Camil Ressu, Nr. 1, Sector 3, Bucuresti |
| 471. | Alouette - Restaurant cu specific international, Bucuresti | 0746339793 | Splaiul Unirii, Nr. 168, sector 4, |
| 472. | Japanos - Restaurant cu specific japonez, Bucuresti | 0771621192 | Calea Dorobantilor, nr. 116-122, spatiul comercial nr. 3, parter, sector 1 |
| 473. | Bacania Veche - Bistro si pravalie Bucuresti | 0752202103; 0212101222 | Barbu Vacarescu, Nr. 49, sector 2 |
| 474. | Gustul Pasiunii Cofetarie - Bucuresti | 0728941816 | Racari, Nr. 5, sector 3, Bucuresti |
| 475. | La Patrascu - Restaurant Bucuresti | 0771635003; 0767561149; 0754422491 | Str. Prof. Stefan Nicolau, Nr. 2A, Sector 3 |
| 476. | Trattoria Soleto - Restaurant cu specific italian | 0734382419 | Soseaua Colentina, nr. 1, sector 2 |
| 477. | Fresh Chicken - Restaurant cu preparate la gratar | 0724392216 | Str Mihail Sebastian, nr 48, sector 5 |
| 478. | Botanic - Fine dining, Bucuresti | 0721261262 | Calea Piscului, sector 4 |
| 479. | Elzada - Restaurant Bucuresti | 0724519898; 0722214001; 0723019747 | Soseaua Oltenitei, Nr. 13-15, Sector 4 |
| 480. | So! Coffee, Cafenea - Bucuresti | 0372285718; 0314078250 | Piata Garii de Nord, Nr.1-5 (In fata peroanelor 4-5), Sector 1, Bucuresti |
| 481. | Coppa - Bar cu vinuri si cafea, Bucuresti | 0741594545; 0756080004 | Bd. Nicolae Titulescu, nr. 3, sector 1 |
| 482. | Angeline Cake Boutique - Cofetarie, Bucuresti | 0753652144 | Str. Doctor Iacob Felix, Nr. 59, Sector 1 |
| 483. | Springtime, Restaurant - Bucuresti | 0742224736; 0742224743; 0742224739 | Piata Victoriei, Bl. A6 Sector 1, Bucuresti |
| 484. | 5ENSI by BeanZ Cafe - Bucuresti | 0733888555 | Bd. Aviatorilor, Nr. 8A, sector 1, Bucuresti |
| 485. | La Coana Mare - Cofetarie Bucuresti | 0771512035 | Strada Magura Vulturului, Nr. 2, sector 2 |
| 486. | Casa Bia - Restaurant Bucuresti | 0761241623 | Str. Sebastian Mihail, Nr. 19, sector 5 |
| 487. | Terasa Oasis - Restaurant Bucuresti | 0733638577 | Mihail Sebastian, Nr.102. Sector 5, Bucuresti |
| 488. | Yasmin Bakery - Cofetarie, Bucuresti | 0721076376; 0760272225 | Calea Rahovei, nr.322 sector 5 |
| 489. | The Canteen - Restaurant Bucuresti | 0735517630 | Str. Barbu Vacarescu, Nr. 44, Bl. 7 Sector 2 |
| 490. | Pata Negra - Restaurant cu specific spaniol, Bucuresti | 0734349076 | Strada Washington, Nr 11, sector 1 |
| 491. | Ganesha Caffe & Garden - Bucuresti | 0764263742 | Str. Barbu Vacarescu, nr. 71, sector 2, |
| 492. | Casa Lefter - Restaurant Bucuresti | 0723568402; 0743127330 | Strada Lt. Ionescu Baican, Nr. 57, sector 2 |
| 493. | Dorobanti 140, Cofetarie - Bucuresti | 0723500025 | Calea Dorobantilor, Nr.140,Sector 1, Bucuresti |
| 494. | Marshal Garden, Restaurant - Bucuresti | 0213194444; 0213194445; 0758105310 | Calea Dorobantilor, Nr. 50 B, Sector 1, Bucuresti |
| 495. | La Colt - Bar & Grill, Bucuresti | 0371179862 | Strada Telita, Nr 1, sector 5 |
| 496. | La Baraca - Bar & Grill Bucuresti | 0758986045 | Str. Pargarilor, Nr. 17bis, sector 2 |
| 497. | Pizza Apetito - Bucuresti | 0770225215 | Eufrosina Popescu, Nr. 57, sector 3, |
| 498. | Trattoria Angoli - Restaurant cu specific italian, Bucuresti | 0728264654 | Calea Piscului, Oraselul Copiilor, Sector 4 |
| 499. | Trei Camile - Restaurant Bucuresti | 0747641564 | Blv. Pieptanari, Nr. 43, sector 5 |
| 500. | The Soup Carousel - Restaurant cu supe si ciorbe, Bucuresti | 0725356907 | Sos. Nicolae Titulescu, Nr. 12, sector 1 |
| 501. | Cofetaria Eduard - Bucuresti | 0760944165 | Bulevardul Pieptanari, Nr. 53, sector 4 |
| 502. | Colosal - Fast Food, Bucuresti | 0737698255 | Strada Mihail Sebastian, Nr. 133, sector 5 |
| 503. | Skybar - Bucuresti | 0724759227 | Calea Dorobanti, Nr. 155, Etaj 5, sector 1 |
| 504. | Vivono Pizza - Pizzerie, Bucuresti | 0784000212 | Strada Telita, Nr.54, Sector 5 |
| 505. | Papaciu - Bistro, Bucuresti | 0724200070; 0724955952 | Strada Complexului, Nr 3A, sector 3 |
| 506. | Cofetaria Dinalex - Bucuresti | 0214237928; 0785137937 | Calea Ferentari, Nr. 162, sector 5 |
| 507. | Gelato Mio - Magazin de inghetata Bucuresti | 0765799379; 0720044495; 0744555599 | Str. Polona, Nr. 76, sector 1 |
| 508. | Cannoleria - Cafenea Bucuresti | 0753325071 | Str.Cornescu, Nr. 4, sector 1, |
| 509. | Cofetariile Georgy\'s, Cofetarie,torturi - Bucuresti | 0733060230; 0730618742 | Ramnicu Valcea, Nr. 14, Sector 3, Bucuresti |
| 510. | Refill - Bistro cu specific international, Bucuresti | 0786372856 | Bulevardul Mihalache, Nr. 12, sector 1 |
| 511. | Stejarului 57 - Social Bar, Bucuresti | 0748701058 | Strada Fildesului, Nr. 2, sector 3 |
| 512. | Naan Project - Restaurant, Bucuresti | 0730707119 | Strada Progresului, Nr. 1-3 (Razoare), sector 5 |
| 513. | Riviera Park, Restaurant - Bucuresti | 0732408408 | Bd. Basarabia , Nr. 23 (Parcul National), Sector 2, Bucuresti |
| 514. | Gili Pizza - Bucuresti | 0213242387 | Str. Baba Novac, Nr. 9-11, Sector 3 |
| 515. | Andy Park Ballroom - Salon de evenimente Bucuresti | 0724607607 | Soseaua Oltenitei, Nr. 13-15, Sector 4 |
| 516. | Restaurant Interbelic - Bucuresti | 0733413133 | Str Petre Ispirescu, Nr. 6A, sector 5 |
| 517. | Pizzeria Alessandro - Bucuresti | 0721886488; 0721887488 | Drumul Sarii, Nr.150, sector 6 |
| 518. | Naser 2 - Restaurant traditional libanez Bucuresti | 0799997111 | Str. Maica Domnului, Nr. 5B, Sector 2 |
| 519. | Strada Rustica - Pizzerie Bucuresti | 0213248303; 0768676765; 0728886914 | Str. Baba Novac, Nr 9, Complex Rucar, Sector 3 |
| 520. | Game On - Restaurant Bucuresti | 0745055137 | Calea Floreasca, Nr. 91-111, sector 1 |
| 521. | Fendi Kebap - Restaurant fast-food, Bucuresti | 0314051091 | Str. Novaci, |
| 522. | Circus Pub - Restaurant cu burgeri, Bucuresti | 0725180680 | Bulevardul Lacul Tei, Nr 65, sector 2 |
| 523. | Claus, Cofetarie Bucuresti | 0212220218; 0721264900 | Bd. Banu Manta, Nr. 21A, Sector 1, Bucuresti |
| 524. | Golden Blitz, Restaurant - Bucuresti | 0214105100 | Razoare , Nr. 32, Sector 6 , Bucuresti |
| 525. | Mon Cheri, Restaurant - Bucuresti | 0748750029; 0771693817; 0212310908 | Tudor Stefan, Nr. 16 (langa P-ta Dorobanti), sector 1, Bucuresti |
| 526. | Golden Blitz, Restaurant - Bucuresti | 0214105100 | Razoare , Nr. 32, Sector 6 , Bucuresti |
| 527. | Aphrodisia - Ceainarie Bucuresti | 0788129291 | Intrarea Tudor Stefan, nr. 39, sector 1 |
| 528. | Sara, Restaurant si Bacanie - Bucuresti | 0749770770 | Calea Floreasca, Nr. 111-113, Sector 2, Bucuresti |
| 529. | Tropicana, Restaurant - Bucuresti | 0724614723 (Niculae Adrian); 0724571502 (Niculae Valentina) | Grigore Ionescu, Nr 94, Sector 2, Bucuresti |
| 530. | VacaMuuu - Restaurant si bacanie Bucuresti | 0731351135 | Calea Floreasca, Nr. 111, sector 1 |
| 531. | VacaMuuu - Restaurant cu specific american, Bucuresti | 0731351135 | Calea Floreasca, Nr.111, sector 1 |
| 532. | Pasterra - Restaurant cu mancare specifica din Abruzzo, Bucuresti | 0751222668 | strada Comandor Eugen Botez, Nr. 27, sector 2 |
| 533. | Casa Lazar - Restaurant Bucuresti | 0764024444; 0738794310; 0735778229 | Serg. Maj. Ion Nedeleanu, Nr. 8, sector 5 |
| 534. | Nido Kitchen & Wine - Restaurant cu specific international, Bucuresti | 0374004488 | Aleea Alexandru, Nr. 35 |
| 535. | Rai de Dulce - Laborator de cofetarie si patiserie Bucuresti | 0735632709; 0731885888 | Calea Rahovei, Nr. 374, sector 5 |
| 536. | 7 Days - Restaurant cu terasa, organizari evenimente, Bucuresti | 0769042751; 0213241358 | Str. Campia Libertatii, Nr. 23, Sector 3, Bucuresti |
| 537. | BistroMar - Restaurant pescaresc, Bucuresti | 0740085088 | Strada Banul Antonache, Nr. 55-27, sector 1 |
| 538. | Lucky Point Pub | 0742181263 | Splaiul Independentei, 204,sect.6, Bucuresti |
| 539. | Hanul Haiducilor, Restaurant - Bucuresti | 0213307207; 0771756566 | Pridvorului, Nr. 25 (In incinta Strandul Copiilor Vacaresti) , Sector 4, Bucuresti |
| 540. | Geste - Cofetarie Bucuresti | 0730743783 | Strada Dobrota, Nr. 16, Sector 2 |
| 541. | DA Giulio - Pizzerie, Bucuresti | 0212420385 | Colentina, Nr. 23 A, sector 2 |
| 542. | Britannia - Restaurant, Bucuresti | 0725998899 | Strada Petre Ispirescu, Numarul 9 b, Sector 5 |
| 543. | Photo Cake Cofetarie Bucuresti | 0729737619 ; 0723564103 | Obolului, Nr.9, Sector 4, Bucuresti |
| 544. | Rekolta - Restaurant, Bucuresti | 0721334564 | Calea Floreasca, Nr. 102, sector 1 |
| 545. | Hanul Vacaresti - Restaurant fast-food, Bucuresti | 0786200300 | Strada Pridvorului, nr. 23, sector 4 |
| 546. | La Sediu - Restaurant Bucuresti | 0760729007 | Campia Libertatii, Nr. 54, sector 3 |
| 547. | Triana - Cofetarie, Bucuresti | 0740302404 | Soseaua Orhideelor, Nr. 46, sector 1 |
| 548. | Terasa Sport House - Restaurant fast-food, Bucuresti | 0755080224 | Maior Ion Coravu, numarul 34, sector 2 |
| 549. | Pot Stories - Restaurant, Bucuresti | 0753348248 | Calea Floreasca, nr. 111-113, sector 1 |
| 550. | Armonia Cofetarie - Bucuresti | 0213244020 ; 0722616180 | Campia Libertatii, Nr. 46 , bl. 52 , Parter , Sector 3, Bucuresti |
| 551. | Donerboom - Fast food Bucuresti | 0749043440 | Str.Barbu Vacarescu, Nr. 102, Sector 2, |
| 552. | Chef Gabrielle - Restaurant, Bucuresti | 0766066406 | Strada Tomis, Nr. 5A, Sector 3 |
| 553. | Fast Food Plevnei - Restaurant Fast Food Bucuresti | 0761046444 | Calea Plevnei, Nr. 230, sector 1 |
| 554. | Said - Fast Food, Bucuresti | 0772229461; 0773755896 | Calea Rahovei, Nr. 390, sector 5 |
| 555. | Grano - Restaurant cu specific italian, Bucuresti | 0212312386 | Strada Putul lui Zamfir, Nr. 40, sector 1 |
| 556. | Tasting Room by Ethic Wine - Restaurant Bucuresti | 0754993953 | Putul lui Zamfir, Nr. 64, sector 1 |
| 557. | Prajiturel - Cofetarie Bucuresti | 0760858880 | Strada Stoian Militaru, Nr. 63, sector 4 |
| 558. | Tuk Tuk - Restaurant cu specific thailandez, Bucuresti | 0311099670;0741422489 | Putul lui Zamfir, nr. 15, sector 1 |
| 559. | Yoshi Sushi & Teppanyaky - Restaurant japonez Bucuresti | 0314290280; 0749979521 | Str. Banu Antonache, Nr. 40-44, sector 1 |
| 560. | Mozzafiato - Restaurant Bucuresti | 0741190190 | Calea Floreasca, Nr. 133-137, Sector 1 |
| 561. | Gabbiano - Restaurant cu specific italian Bucuresti | 0757115272 | Str. Banul Antonache, Nr. 40-44, sector 1 |
| 562. | Mercato Kultur - Restaurant cu specific international, Bucuresti | 0759134767 | Gheorghe Demetriade, nr. 6-10, Aviatorilor, sector 1 |
| 563. | Pain Plaisir - Patiserie Bucuresti | 0745645555 | Strada Barbu Delavrancea, Nr. 1, sector 1 Pain Plaisir Kiseleff |
| 564. | Quantic Pub - Bucuresti | 0314321742 | Soseaua Grozavesti, Nr. 82, sector 6 |
| 565. | Ana Cofetarie Bucuresti | 0212300436; 0735554986 | Lt. Av. Radu Beller, Nr. 6 Sector 1, Bucuresti |
| 566. | Delicii Gelato - Gelaterie artizanala Bucuresti | 0721632019 | Str. Constantin Aricescu, Nr. 65, sector 1 |
| 567. | Casa Doina, Restaurant - Bucuresti | 0212226717; 0745009009 | Soseaua. Kiseleff , Nr. 4, Sector 1, Bucuresti |
| 568. | White Horse Pub & Restaurant - Bucuresti | 0212312795 | George Calinescu , Nr. 4A, Sector 1, Bucuresti |
| 569. | White Horse Pub & Restaurant - Bucuresti | 0212312795; Fax.0212302151 | George Calinescu , Nr. 4A, Sector 1 , Bucuresti |
| 570. | Elena - Restaurant cu specific romanesc, cu terasa, organizare evenimente, Bucuresti | 0747277232 | Calea 13 Septembrie, Nr. 289, Sector 5, Bucuresti |
| 571. | Casa Doina, Restaurant - Bucuresti | 0745009009; 0212226717; 0212223179 | Soseaua Pavel D. Kiseleff, Nr. 4, Sector 1, Bucuresti |
| 572. | Zen Sushi - Restaurant japonez, Bucuresti | 0722161718 | Str. George Calinescu, nr. 15, Sector 1 |
| 573. | Pajo Garden - Restaurant Bucuresti | 0751227228 | Bulevardul Basarabiei, Nt. 37-39, sector 2 |
| 574. | Terasa Marius - Bar & Grill, Bucuresti | 0745777799 | Sos. Pantelimon, Nr. 115-117, sector 2 |
| 575. | Moritz Eis - Gelaterie Bucuresti | 0722363122 | Strada Frederic Chopin, Nr. 10-12, Sector 2 |
| 576. | Pizzeria Florina - Bucuresti | 0219285 | Strada Nicolae Pascu, nr.1A, sectorul 3 |
| 577. | Kanpai Bistro, Restaurant japonez si catering - Bucuresti | 0755526724; 0371184961 | George Calinescu, Nr.49, Sector 1, Bucuresti |
| 578. | Maccheroni - Restaurant Bucuresti | 0722259360 | Str. George Calinescu, Nr. 51, Sector 1, |
| 579. | Biscotto - Cofetarie Bucuresti | 0212314099 | Strada Nicolae Constantinescu, Nr. 8, Sector 1 |
| 580. | La Cristi - Fast Food si catering, Bucuresti | 0729266850 | Strada Frosa Sarandy, Nr. 17, Sector 1 |
| 581. | Nuba Cafe - Restaurant pentru mic dejun si brunch, Bucuresti | 0736300000 | Street Locotenent Aviator Radu Beller, Nr. 13, sector 1 |
| 582. | Piticot, Cofetarie Bucuresti | 0214206670; 0726714865 Whatsapp | Petre Ispirescu, Nr. 77, Sector 5, Bucuresti |
| 583. | The Place Pub - Pub, Bucuresti | 0743951281 | Mr. Alexandru Campeanu, nr.36, sector 1 |
| 584. | Cofetaria Maia Artizan Bakery - Bucuresti | 0762298622 | Str. Margeanului, Nr. 115, sector 5 |
| 585. | Restaurant Ceaun | 0756090680 | Strada Maica Domnului, Nr. 54-56, sector 2 |
| 586. | Cesme - Restaurant cu specific turcesc, Bucuresti | 0721163176 | Str. Calea 13 Septembrie, Nr 272, sector 5 |
| 587. | Cuibul Randunelelor - Restaurant Bucuresti | 0214244218 | Strada Focsani, Nr. 38, sector 5 |
| 588. | Influence - Restaurant, Bucuresti | 0745172403 | Soseaua Oltenitei, Nr. 39-41, sector 4 |
| 589. | Panorama Kebap - Restaurant fast food, Bucuresti | 0766244009 | Str Margeanului, Nr.115, sector 5 |
| 590. | Refugiu - Restaurant Bucuresti | 0763478438;0727626981 | Strada Otesani, Nr 73 , Sector 2 |
| 591. | Excellence - Restaurant Bucuresti | 0723888822 | Strada Petre Ispirescu, Nr. 110-112, sector 5 |
| 592. | Casa Banil Restaurant - Bucuresti | 0214105716; 0723391161; 0724159949 | Petre Ispirescu , Nr. 95, Sector 5, Bucuresti |
| 593. | Green Bistro - Terasa Bucuresti | 0728237731 | Parcul Gheorghe Patrascu, |
| 594. | Jerry\'s Pizza - Bucuresti | 0373303030 | Calea Vitan, Nr. 236, Sector 3, Bucuresti |
| 595. | Refresh - Restaurant Bucuresti | 0771189347 | Strada Johann Sebastian Bach, Nr. 3, sector 2 |
| 596. | Yesterday, Hotel si Restaurant - Bucuresti | 0213408585; 0737001008 | Economu Cezarescu, Nr. 8, Sector 6, Bucuresti |
| 597. | Seneca Anticafe - Cafenea, Bucuresti | 0720331100 | Strada Arhitect Ion Mincu, nr. 1, sector 1 |
| 598. | La Gafe - Restaurant traditional Bucuresti | 0721389446 | Str Dorin Pavel, Nr 1, sector 2 |
| 599. | Cartofisserie - Restaurant cu bufet Bucuresti | 0726330960;0740215433 | Liviu Rebreanu, Nr. 4 (ParkLake Shopping Center Mall) |
| 600. | Oby - Fast Food, Bucuresti | 0768955169 | Calea Ferentari, nr. 177, sector 5 |
| 601. | Casa Nica, Restaurant - Bucuresti | 0724373558; 0723641985 | Peroni, Nr. 28 (vis-a-vis de benzinaria Lukoil), sector 4, Bucuresti |
| 602. | Galletto Ristorante, Restaurant italian, catering - Bucuresti | 0212112276; 0770407519 | Soseaua Orhideelor, Nr.1 (podul nou Basarab,langa cladirile de birouri The Bridge, Sector 6, Bucuresti |
| 603. | Gloria Jean\'s Coffees Romania | 0760107884 | Bd.Liviu Rebreanu, nr. 4, sector 3 - Mall Park Lake, Bucuresti |
| 604. | AVA Bistro - Restaurant si catering, Bucuresti | 0770888222 | Strada Dorin Pavel, Nr. 15, sector 2 |
| 605. | Trattoria Verdi, Restaurant italian - Bucuresti | 0212225098 ; 0731333411 | Bd. Aviatorilor, Nr. 19, Sector 1, Bucuresti |
| 606. | Zatara - Restaurant cu influente mediteraneene, Bucuresti | 0771670756 | Vatra Luminoasa, Nr. 108, sector 2 |
| 607. | Royal Kebap - Restaurant fast-food, Bucuresti | 0730242360 | Strada Margeanului, Nr. 105 C, sector 4 |
| 608. | 14th Lane - Restaurant cu mancaruri fine, organizare evenimente, Bucuresti | 0737776777 | Sos. Orhideelor, Nr. 15D, sector 6, Bucuresti |
| 609. | Andros - Cofetarie, Bucuresti | 0748888847 | Str. Antiaeriana, nr. 5, sector 5, |
| 610. | Joy House - Restaurant Bucuresti | 0730443232 | Str. Teiul Doamnei, Nr. 9A, Sector 2 |
| 611. | Don Daniel Pizza | 0737444999; 0766771117; Tel/Fax: 0212225034 | Bd. Ion Mihalache, Nr. 60, Sector 1, Bucuresti |
| 612. | Bistro 37-39 - Restaurant Bucuresti | 0731355939 | Bulevardul Basarabia, Nr. 37-39 , Sector 3 |
| 613. | La Tramvai - Terasa Bucuresti | 0729166021 | Parcul Alexandru Ioan Cuza (I.O.R). intersectie Campia Libertatii, sector 3 |
| 614. | Gastronomika - Restaurant cu specific international, Bucuresti | 0737940512 | Str. Ion Neculce, Nr. 63, Sector 1 |
| 615. | Hambar Brasserie - Bucuresti | 0212226422;0787896547 | Aviatorilor, nr. 31, sector 1 |
| 616. | B4 Market - Restaurant pentru mic dejun si brunch Bucuresti | 0724588591 | Strada Locotenent Aviator Radu Beller, Nr. 54, sector 1 |
| 617. | Arancini - Restaurant cu specific sicilian | 0756490490 | Str. Papadiei, Nr. 16-18, sector 3 |
| 618. | La Placinte - Restaurant cu specific romanesc, Bucuresti | 0756207005 | Bd. Vasile Milea, 4F (Afi Park 2) |
| 619. | Ressu Restaurant & Lounge - Bucuresti | 0723774485; 0731607646; | B-dul Camil Ressu, Nr. 70 A, Sector 3, Bucuresti |
| 620. | Sham Sweet, Cofetarie - Bucuresti | 0748242455 | Bd. Basarabia, Nr.98, Sector 3, Bucuresti |
| 621. | Piccolo Mondo, Restaurant - Bucuresti | 0722205020; 0212225755 | Clucerului, Nr. 9, Sector 1 , Bucuresti |
| 622. | Sabatini Pizza - Bucuresti | 0770227880; 0766606637; 0731876441 | Teiul Doamnei, Nr. 15, Sector 2, Bucuresti |
| 623. | Piccolo Mondo, Restaurant - Bucuresti | 0722205020; 0212225755 | Clucerului , Nr. 9, Sector 1 , Bucuresti |
| 624. | Pui de Urs, Restaurant - Bucuresti | 0213166289; 0724622226; 0765166266 | Econom Cezarescu, Nr. 42 (Grozavesti), Sector 6 , Bucuresti |
| 625. | Sabatini Pizza - Bucuresti | 0212428725; 0731876441; 0766606637 | Teiul Doamnei , Nr 15, Sector 2, Bucuresti |
| 626. | Damascus Palace - Restaurant Bucuresti | 0746696666; 0756616666 | Bld. Basarabia, Nr. 98, sector 2, |
| 627. | Shorley Restaurant - Bucuresti | 0765377308; 0724710385; 0213124312 | Econom Cezarescu, Nr. 50, Sector 6 , Bucuresti |
| 628. | Big Mic - Restaurant, terasa si pizzerie, Bucuresti | 0739244642 | Str. Gospodinelor, Nr. 31, sectorul 4 |
| 629. | Casa Victor, hotel si Restaurant - Bucuresti | 0212225723; 0733953910 | Emanoil Porumbaru, Nr. 44, Sector 1 , Bucuresti |
| 630. | Friends Pub - Bucuresti | 0728197287 | Bucovina , Nr. 6, Sector 3, Bucuresti |
| 631. | Brigitte - Cofetarie Bucuresti | 0727891345; 0745779722 | str. Cristea Mateescu, Nr.77, Sector 2 |
| 632. | Events by Tonyo - Restaurant Bucuresti | 0723170007 | Aleea Hobita, Nr 1 Sector 2 |
| 633. | Monza, Trattorie si Restaurant - Bucuresti | 0722661166; 0769200002; 0724802802 | Baba Novac, Nr. 25, Sector 3, Bucuresti |
| 634. | The President, Restaurant - Bucuresti | 0720047541; 0760087384; 0766747379 | Bd. Lacul Tei, nr. 145 (in Parcul Tei - pe malul lacului), Sector 2, Bucuresti |
| 635. | Kentucky Fried Chicken KFC, Fast Food - Bucuresti | 0757015948; 0212039030; 0213120023 | Soseaua Oltenitei, Nr.85, Sector 4, Bucuresti |
| 636. | Roxy Pub - Bucuresti | 0742033944; 0723327117; 0785224508 | Splaiul Independentei, Nr. 290, Complex Studentesc Regie, Bucuresti |
| 637. | Bolta Rece Restaurant - Bucuresti | 0212227258; 0722527077 | Popa Savu, Nr. 53-55, Sector 1, Bucuresti |
| 638. | Monza, Trattorie si Restaurant - Bucuresti | 0724802802; 0722661166; 0769200002 | Baba Novac, Nr. 25, Sector 3, Bucuresti |
| 639. | Bolta Rece, Restaurant, Terasa - Bucuresti | 0212227258; 0722527077 | Popa Savu, Nr..53- 55, Sector 1, Bucuresti |
| 640. | Ublo Bistro - Bucuresti | 0743447476 | Clucerului, Nr. 54, sector 1 |
| 641. | Delarte Pizza, Pasta & Grill - Bucuresti | 0733352783; 0755487273; 0217802500 | Corbita, Nr.3,Sector 5, Bucuresti |
| 642. | Zexe Braserie - Bucuresti | 0786778777 | B-dul Aviatorilor, Nr. 65, Sector 1 |
| 643. | Della Casa Pizza - Bucuresti | 0721312666; 0746577383; 0768720228 | Sos. Gherase, Nr. 96, (Zona Doamna Ghica) Sector 2, Bucuresti |
| 644. | Sabatini Pizza, Restaurant - Bucuresti | 0314266069; 0737148520; 0784699751 | B-dul Basarabia, Nr. 108, Bucuresti |
| 645. | Mio Cuisine - Restaurant & Home Delivery, Bucuresti | 0743287437 | Pictor Barbu Iscovescu, Nr. 19 ,Sector 1, Bucuresti |
| 646. | Caro, Restaurant - Bucuresti | 0212086128; 0212086100; 0212086196 | Barbu Vacarescu, Nr. 164A, Sector 2, Bucuresti |
| 647. | Fabio Pizza - Bucuresti | 0372188330 | Turda, Nr. 117, Sector 1, Bucuresti |
| 648. | Jadoo Restaurant - Bucuresti | 0724365583; 0212220502 | Nicolae Racota, Nr. 3, Sector 1, Bucuresti |
| 649. | Jadoo Restaurant - Bucuresti | 0212220502; 0724365583 | Nicolae Racota, Nr. 3, Sector 1, Bucuresti |
| 650. | Le Bab - Restaurant cu specific oriental, Bucuresti | 0743179555 | Charles de Gaulle, Nr. 3, sector 3-1, |
| 651. | Trattoria 20 - Restaurant Bucuresti | 0757534928; 0751267451 | Splaiul Independentei, Nr. 290, Campus Regie, sector 6 |
| 652. | Krisperie - Restaurant fast-food, Bucuresti | 0762888844 | Strada Doamna Ghica, Nr. 235, sector 2 |
| 653. | Beirut Restaurant - Bucuresti | 0722302320; Tel/Fax: 0212220169 | Nicolae Racota, Nr. 3A, Sector 1, Bucuresti |
| 654. | Neopolis Family Pizza - Bucuresti | 0734895330; 0770995973 | Gheorghe Titeica, Nr. 101, Sector 2 |
| 655. | La Samuelle - Restaurant cu specific international, Bucuresti | 0730173180 | Piata Charles de Gaulle, Nr. 3-5, Sector 1 |
| 656. | Pub 18 Restaurant - Bucuresti | 0722441586 (Manager Pub Oana Valeanu) | Splaiul Independentei, Nr. 290, bl. P18, parter, Sector 6, Bucuresti |
| 657. | La Maria si Ion, Restaurant - Bucuresti | 0762295737; 0753473781 | Splaiul Independentei, Nr. 290, Complex Studentesc Regie, Sector 6, Bucuresti |
| 658. | Pandoras Food - Restaurant fast-food Bucuresti | 0760102012 | Strada Gheorghe Titeica, Nr. 138, Sector 2 |
| 659. | Bone - Restaurant Bucuresti | 0733198200 | Calea Floreasca, Nr. 198, sector 1 |
| 660. | Ai Sapori - Restaurant cu specific italian Bucuresti | 0372713635 | Bd Timisoara, Nr. 21, sector 6, Bucuresti |
| 661. | Poesia - Restaurant cu specific mediteranean, Bucuresti | 0744502000 | Bulevardul Aviatorilor, Nr. 76, sector 1 |
| 662. | Pub 18 Restaurant - Bucuresti | 0722441586 | Splaiul Independentei, Nr. 290, bl. P18, parter, sector 6 , Bucuresti |
| 663. | M&I Clasic Cuisine - Fast-food si catering Bucuresti | 0732948408 | Strada Baicului, Nr 104 Sector 2 |
| 664. | Fior di Latte - Restaurant cu specific italian, Bucuresti | 0784420555 | Bulevardul Primaverii, Nr. 19-21 |
| 665. | Osho - Restaurant cu fripturi, Bucuresti | 0758758750 | Bulevardul Primaverii, Nr. 19-21, sector 1 |
| 666. | Mechano Pub - Bucuresti | 0722990992 | Splaiul Independentei, Nr. 290, sector 6 |
| 667. | La Dolceria, Cofetarie - Bucuresti | 0724315256 | Basarabia, Nr.55, M22, Sector 3, Bucuresti |
| 668. | Club Floreasca, Restaurant - Bucuresti | 0213198177; 0755085967; Fax 0212307979 | Mircea Eliade, Nr. 1, Sector 1, Bucuresti |
| 669. | Club Floreasca Restaurant - Bucuresti | 0213198177; 0755085967; Fax 0212307979 | Mircea Eliade, Nr. 1, Sector 1, Bucuresti |
| 670. | You & Me - Restaurant cu specific international, Bucuresti | 0733918474 | Bd. Constantin Brancoveanu, Nr. 110 D (langa Spitalul de copii Marie Curie), Bucuresti |
| 671. | Benjamins Restaurant - Nunti, botezuri, evenimente, Bucuresti | 0724248428 | Sos.Vitan-Barzesti, Nr. 5, Sector 4, Bucuresti |
| 672. | Fratelli Social Club - Bucuresti | 0722115115; 0730878300 | Goldeni, Nr. 1-3, Sector 2, Bucuresti |
| 673. | IDM Club Sportiv - Bucuresti | 0213161052; 0722454273 | Splaiul Independentei, Nr. 319 B, (Vizavi de campusul studentesc Regie) Sector 6, Bucuresti |
| 674. | Nicola Cofetarie - Bucuresti | 0214603678 | Nitu Vasile , Nr. 50-54, in Complexul Pajistei (langa Taxe si Impozite) Sector 4 , Bucuresti |
| 675. | Zexe Restaurant romanesc - Bucuresti | 0722210844 | Oltetului, Nr. 30, Sector 2, Bucuresti |
| 676. | Casa Diham - Restaurant Bucuresti | 0213406006; 0727171220 | Bd. Nicolae Grigorescu, Nr. 1 A, Sector 3 |
| 677. | Ribs Bar&Grill - Restaurant american, Bucuresti | 0720788818 | Str. Constantin Brancusi, Nr. 13, Complex Potcoava, sector 3 |
| 678. | Divan, Restaurant - Bucuresti | 0316404450 | Barbu Vacarescu, Nr.241A, Sector 1, Bucuresti |
| 679. | KLANdestin - Restaurant Bucuresti | 0731954592 | Str. Liviu Rebreanu, Nr. 6A, Sector 3 |
| 680. | Trenta Pizza - Bucuresti | 0219645 | Bd.Chisinau, Nr.5 , sector 2 , Bucuresti |
| 681. | Casa Dante - Restaurant cu specific italian, Bucuresti | 0314358069 | Strada Rotunda, nr 4C, sector 3 |
| 682. | Hong Kong - Restaurant chinezesc, Ilfov | 0213107134; 0727834877 | Calea Grivitei, nr. 81 (langa Biserica Sf. Voievozi), sector 1, , judetul Ilfov |
| 683. | Galeto - Restaurant Bucuresti | 0765253555 | Strada Nitu Vasile, Nr 61, sector 4 |
| 684. | Dancing Lobster - Restaurant cu specific portughez, Bucuresti | 0770690886 | Str. Glodeni, Nr . 3 Cladirea C22, Sector 2, Bucuresti |
| 685. | Trattoria Roma - Restaurant Bucuresti | 0765723733; 0799772233 | Str. Drumul Taberei, Nr. 26, Sector 6 |
| 686. | Carina Sweets - Cofetarie Bucuresti | 0771261485 | Sos Oltenitei, Nr. 230, Sector 4 |
| 687. | Il Grande - Pizzerie Bucuresti | 0763544930; 0731581447 | Str. Iacob Andrei, Nr. 26, sector 5 |
| 688. | Mesogios, Restaurant - Bucuresti | 0722200232 | Helesteului, Nr. 30, Sector 1, Bucuresti |
| 689. | Buenasado SteakHouse - Restaurant Bucuresti | 0747865210 | Strada Glodeni, Nr. 3, sector 2 |
| 690. | Gedi, Restaurant - Bucuresti | 0371119901; 0734207029 | Bd. Basarabia, Nr. 176 B, Sector 2, Bucuresti |
| 691. | Dream Pizza - Restaurant Bucuresti | 0785070079 | Drumul Taberei, Nr. 28, sector 6, |
| 692. | Ivan\'s bar & grill - Restaurant traditional, Bucuresti | 0723893545;0737276284 | Bulevardul Basarabia, Nr. 170 - 174, sector 2 |
| 693. | Michelle - Cofetarie, Bucuresti | 0213340084; 0723384312 | Soseaua Berceni, Nr. 35, bl. 104, sector 4 |
| 694. | Cofetaria Ioana - Bucuresti | 0217265762 | Strada Vladeasa, Nr. 2, sector 6 |
| 695. | Hard Rock Cafe Bucharest | 0212066261; 0754400900 | Sos. Kiseleff, Nr. 32C, Sector 1, Bucuresti |
| 696. | Rowa Garden - Locatie pentru spectacole si evenimente | 0766666600 | Parc Herastrau, |
| 697. | Trattoria la Nave - Restaurant Bucuresti | 0743454626 | Sos. Pantelimon, Nr. 264, Sector 2 |
| 698. | Restaurant Paunita - Bucuresti | 0724145707 | Bulevardul Nicolae Grigorescu, Nr. 31A, sector 3 |
| 699. | Allegro Restaurant - Bucuresti | 0751055536; 0744649177 | Bd. Nicolae Grigorescu, Nr. 20A, Sector 3, Bucuresti |
| 700. | Vio Cofetarie - Bucuresti | 0213412082 | Bd. Nicolae Grigorescu, Nr. 20, Sector 3, Bucuresti |
| 701. | Shaormeria Titan - Fast food Bucuresti | 0771332861; 0755864686 | Bd. Nicolae Grigorescu, Nr. 20, Sector 3 |
| 702. | Velveto Ballrooms - Centru pentru evenimente Bucuresti | 0752182255; 0734810385; 0764118347 | Str. Oltetului, Nr. 30, sector 2 |
| 703. | Potcoava 9 Mai, Restaurant - Bucuresti | 0212202208; 0721065347 | Str. 9 Mai , Nr. 51, Sector 6, Bucuresti |
| 704. | Hanul Drumetului, Restaurant - Bucuresti | 0214133430; 0722555083 | Bd. 1 Mai(Compozitorilor), Nr. 28, Sector 6, Bucuresti |
| 705. | Murad - Cafe-Restaurant, Bucuresti | 0725777000 | Str. Panait Istrati, nr, 101, sector 1 |
| 706. | Ilioara - Restaurant si piscina Bucuresti | 0766379289; 0721244247 | Strada Ilioara, Nr. 16L, sector 3 |
| 707. | Babylon Fast Food - Bucuresti | 0799666267 | Soseaua Pantelimon, nr. 255, sector 2 |
| 708. | Irina Casa cu Prajituri, Cofetarie - Bucuresti | 0731323192 | Liviu Rebreanu, Nr.12, bl. K2, Cartier Titan Sector 3, Bucuresti |
| 709. | La Nasu, Restaurant - Bucuresti | 0212214285; 0722257923; 0728984754 | Calea Crangasi, Nr. 29, Sector 6, Bucuresti |
| 710. | Nasu & Finu, Restaurant - Bucuresti | 0727933656 ; 0768101345; 0214602572 | Cimpoierilor, Nr. 12, Sector 4, Bucuresti |
| 711. | Nasu & Finu, Restaurant | 0739648277; 0727933656; 0768101345 | Cimpoierilor , Nr. 12, Sector 4, Bucuresti |
| vezi mai multe | |||
| 1. | COCOR | Tel. 021.313.14.03; 021.313.92.39; 021.314.96.64; 021.314.96.65; Fax 021.313.98.48 | Bd. I.C. Bratianu nr. 29-33, sector 3, |
| 2. | Cocor Luxury Store | 021.312.43.10; Fax: 021.313.98.48 | Bd. I.C. Bratianu, nr. 29-33, sector 3, |
| 3. | CARREFOUR | Tel. 0374.145.800; Fax 021.307.66.96 | Bd. Corneliu Coposu nr. 2, sector 3, |
| 4. | FONZI SUPERMARKET | Tel. 0729.005.260; Tel/Fax 021.323.67.52 | Str. Nerva Traian, nr. 17-19, sector 3, |
| 5. | GMARKET | Bucuresti | |
| 6. | DENISA MARKET | Tel. 021.211.71.70; 0722.691.595; 0749.263.036; Fax 021.211.71.70 | Str. Rasuri nr. 1, sector 2 |
| 7. | CONCORD 2002 | Tel/Fax 323.90.87 | Bd. Decebal nr. 7, sector 3 |
| 8. | FOR YOU | Tel. 0745.094.433 | Bd. Decebal nr. 24, sector 3 |
| 9. | LIBERTY CENTER | 0213699871; 0213699835 | Sos. Progresului, nr. 151-171, sector 5, Bucuresti |
| 10. | NICK CENTER | Tel. 410.06.14; Fax 410.18.94 | Calea 13 Septembrie nr. 190, sector 5 |
| 11. | THE GRAND AVENUE AT BUCHAREST MARRIOTT GRAND HOTEL | Tel.021. 403.40.98 | Calea 13 Septembrie nr. 90, sector 5 , |
| 12. | BUCURESTI MALL | Tel. 021.327.67.00; 021.327.61.00; 021.327.61.02; Fax 021.320.92.09 | Calea Vitan nr. 55-59, sector 3, |
| 13. | SUPERMARKET MAICOM | Tel. 0722.322.573; Fax 321.78.36 | Str. Vitan nr. 104, sector 3 |
| 14. | INTERHOME | Tel. 021.456.31.85; Fax 021.456.31.80; 021.456.31.83 | Str. Nasaud, nr. 97, sector 5, |
| 15. | Ava Center | 0769240700; 0213201626; 0730096166 | Mihai Bravu, Nr. 540-564, Sector 3, Bucuresti |
| 16. | SONMEZ MARKT 4 | Tel. 211.65.39; Fax 210.13.25 | Bd. Iancu de Hunedoara nr. 64, sector 1 |
| 17. | BUCUR OBOR | 021.252.59.34; 021.252.59.35; 021.252.63.82 | Sos.Colentina, nr. 2, sector 2 , Bucuresti |
| 18. | CITY MALL | Tel. 021.319.35.22; Fax 021.319.35.21 | Sos.Oltenitei nr. 2, sector 4 |
| 19. | SUPERMARKET PRIMiVARA | Tel. 031.402.58.20; Fax 021.410.96.96 | Calea 13 Septembrie nr. 221-225, sector 5 - Complex Prosper, |
| 20. | FONZI | Tel. 260.21.28; 0729.005.261; Fax 260.15.31 | Sos. Nicolae Titulescu nr. 121 (Fonzi Junior), sector 1 |
| 21. | GALERIA MARIO PLAZA | Tel/Fax. 021.230.47.71 | Calea Dorobantilor, nr. 172, sector 1, Bucuresti |
| 22. | SUPERMARKET LA NEA NICU | Tel. 230.64.80 | Str. Putul lui Zamfir nr. 59, sector 1 |
| 23. | AUCHAN | Tel. 0750.014.150 | Calea Vitan nr. 236, sector 3, |
| 24. | AFI Cotroceni - Mall, Bucuresti | 0314257510; 0314257511; Fax 0314257513 | Vasile Milea, Nr. 4, Sector 6 (intersectia Bd. Timisoara cu Str. Vasile Milea), Bucuresti |
| 25. | Wini Imobili | Tel.021.307.60.50; 0742.144.034, 0755.068.669; Fax.021.307.60.51 | Pierre de Coubertin, nr. 3-5, sector 2, Bucuresti |
| 26. | MEGA MALL | Str. Pierre de Coubertin, nr. 3-5, langa Arena Nationala, | |
| 27. | SUN PLAZA MALL | 021.233.17.45; 0720.200.582 | Calea Vacaresti, nr. 391, Piata Sudului, sector 4, Bucuresti |
| 28. | PRESTIGE SHOPPING CENTER | Tel. 230.16.12; 230.17.13; Fax 230.67.53 | Calea Floreasca nr. 111-113, sector 1 |
| 29. | GEMINI | Tel/Fax 230.25.49 | Calea Floreasca nr. 111-113 (Complex Prestige), sector 1 |
| 30. | ETHOS SUPERMARKET | Tel. 0735.808.451 | Str. Margeanului nr. 48, sector 5, |
| 31. | Complexul Comercial Rahova | Str. Glicinelor nr. 4-14, sector 5, | |
| 32. | TITAN | Tel. 0732.995.515 | Str. Liviu Rebreanu nr. 6A, sector 3, |
| 33. | PROFI | Tel. 0726.100.452; Tel/Fax 021.444.32.44 | Bd. Ghencea nr. 38, bl. C63, sector 6, |
| 34. | DANCA | Tel. 0722.546.268; Fax 212.74.84 | Intr. Panificatiei nr. 2 (P-ta Gorjului), sector 6 |
| 35. | Vitantis Shopping Center Bucuresti - Magazine retail Praktiker, Diego si Casa Rusu | 0213104513; Fax: 0213150813 | Soseaua Vitan-Barzesti, nr. 7A, sector 4, Bucuresti |
| vezi mai multe | |||


Vezi galeria
104
,117
,123
,232
,312
,385
,N109
,N115
,N120
,N122
,N
73