1.700 €
Gheorghe Magheru 12-14, Piata Romana
- Suprafata utila 73 mp
- Sp. comercial
Piața Romană ...
5 min.
Calculeaza distanta
Descriere anunt
Gheorghe Magheru 12-14, Piata Romana
Companie Imobiliara va ofera in exclusivitate spre inchiriere un spatiu comercial stradal situat pe Bd. Gheorghe Magheru 12-14, ultracentral, in imediata apropiere de Piata Romana, Sectorul 1.
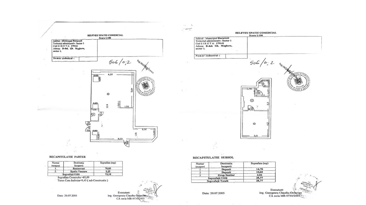
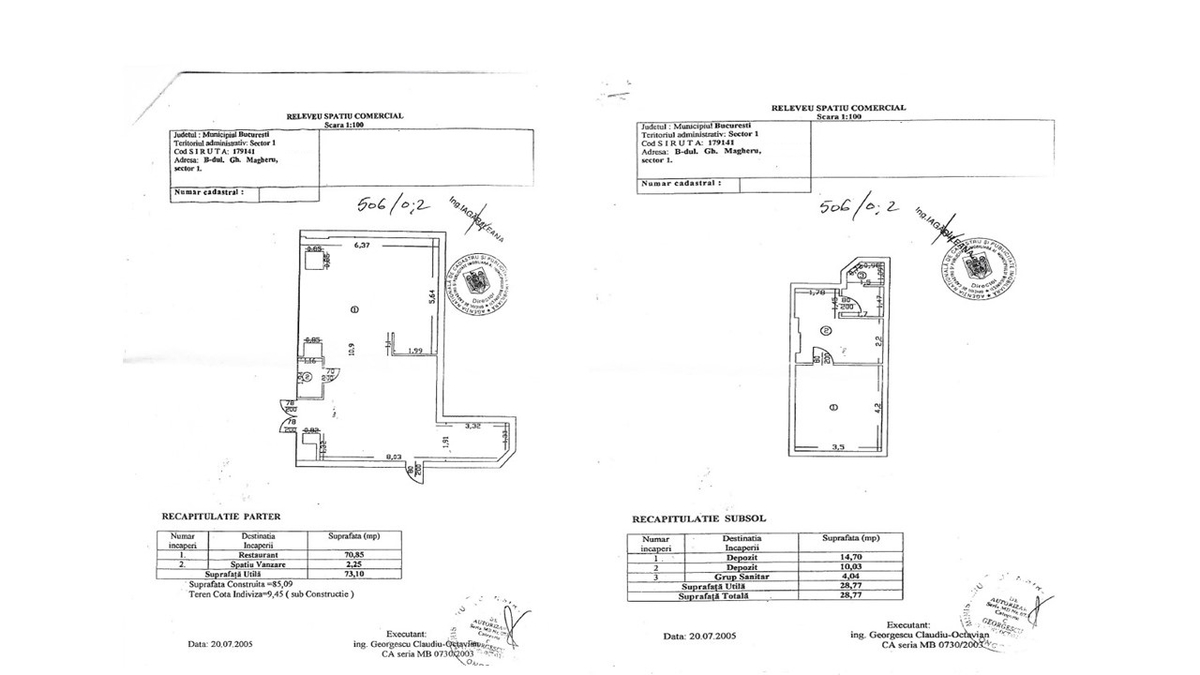
Suprafata totala: 101,87 mp.
Parter: 73,10 mp utili - Open space.
Subsol: 28,77 mp utili.
Deschidere/Vitrina: 11 ml.
Plan atasat.
Spatiul beneficiaza de o vizibilitate foarte buna, trafic pietonal si auto intens pe tot parcursul zilei.
Pret inchiriere: 1,700 EUR+TVA/luna. Negociabil.
Comision: 50% din valoarea unei chirii lunare.
Caracteristici, dotari
Detalii Suplimentare
Aer conditionat
Alarma
Apa
curent electric
Grup sanitar
Internet
Vad comercial
Vitrina stradala
Acces mijloace transport
| Statii metrou | Timp | |
|---|---|---|
![]() |
Piața Romană | 5 min. |
![]() |
Strada Batiștei | 9 min. |
| Statii STB | Timp |
|---|---|
|
Arthur Verona
|
1 min. |
|
Piața Romană
126
,168
,226
,301
,331
,368
,381
,783
|
5 min. |
|
Bd. Nicolae Bălcescu
122
,126
,137
,138
,168
,226
,268
,300
,311
,368
,381
|
5 min. |
|
Piața Alexandru Lahovari
|
6 min. |
|
C.A. Rosetti
311
|
8 min. |
|
Calea Dorobanților
79
86
,97
|
8 min. |
|
Colegiul Economic Virgil Madgearu
79
86
,97
|
9 min. |
|
Nicolae Golescu
126
,300
,368
|
10 min. |


Vezi galeria
126
,168
,226
,301
,331
,368
,381
,783
79