Calea Calarasilor, inchiriere vila central Bucuresti pentru angajati straini sau alte activitati
- Suprafata 300
- Curte 200
- 9
Piața Muncii M1 ...
16 min.
Calculeaza distanta
Descriere anunt
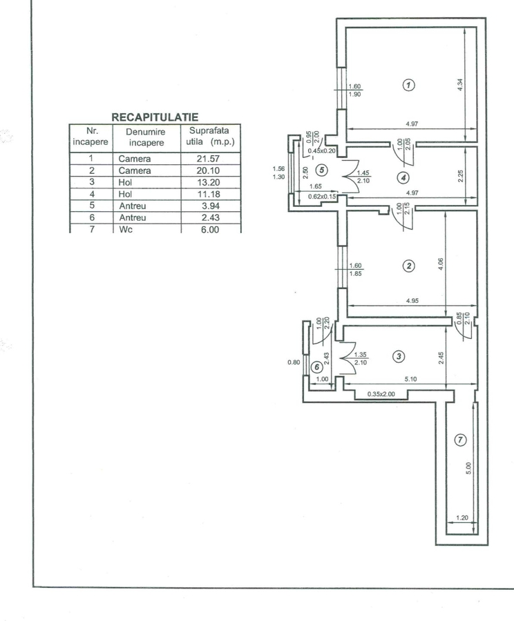
Cladirea se afla la intersectia Calea Calarasilor cu strada Popa Nan. Este construita in ani 1920, are o arhitectura deosebita, camere inalte, circulatii functionale. Beneficiaza de un corp separat cu 3 camere, 2 holuri si 2 grupuri sanitare plus o terasa imprejmuita de gard verde.
Cu o suprafat totala utila de aproximativ 300mp, 9 camere si 3 grupuri sanitare se pot creea functiuni pentru onumeroase activitati comerciale, educationale . in domeniul medical s.a.
Este ideala pentru restaurant, cafenea, birou de avocatura/ notariat, birouri, cabinete medicale individuale, afterschool, gradinita, centru recuperare, birouri
Parterul are cumulat in ambele case aproximativ 250mp utili avand cumulat 9 camere spatioase si inalte, 4 holuri, 3 grupuri sanitare, bucatarie din doua camere, beneficiind de 4 intrari- una principala si una de serviciu la fiecare corp, curent electric 220/380V cu putere instalata mare.
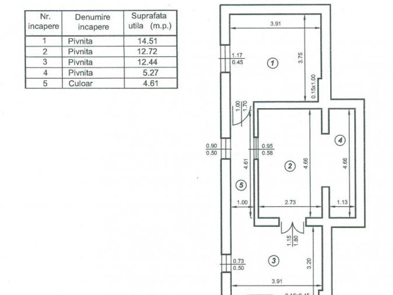
Demisolul format din 3 spatii cu o suprafata de 50mp poate fi utilizat ca arhiva, depozitare sau bucatarie iar podul ce ofera un spatiu de peste 120mp poate fi un spatiu deschispentru multiple destinatii.
Conditii inchiriere: pentru angajati straini - 15€/persoana/zi, pentru alte activitati 2 luni avans si 2 luni garantie. Contract minim 3 ani.
Caracteristici, dotari
Acces mijloace transport
| Statii metrou | Timp | |
|---|---|---|
![]() |
Piața Muncii M1 | 16 min. |
| Statii STB | Timp |
|---|---|
|
Universitatea Hyperion
|
2 min. |
|
Țepeș Vodă
|
5 min. |
|
Delea Veche
|
6 min. |
|
Biserica Delea Veche
|
6 min. |
|
Calea Călărașilor
|
6 min. |
|
Hala Traian
97
|
6 min. |
|
Matei Basarab
97
|
10 min. |
|
Mecet
14
55
97
|
10 min. |
Obiective interes
| 1. | Noel - Gradinita & After School Bucuresti | 0728459857; 0725839363 | Str. Trifoi, Nr. 10, Sector 3, Bucuresti |
| 2. | Kindi - Centru de educatie timpurie Montessori, Bucuresti | 0726876873 | Str. Delea Veche, Nr 35, sector 2 |
| 3. | Sf. Imparati Constantin si Elena, Gradinita Bucuresti | 0722237110; 0722293056; 0213261361 | Str. Labirint, Nr. 137 B , Sector 3, Bucuresti |
| 4. | Academia Fantastica - Gradinita, Before & After School sector 3 | 0731027321; 0723337393; 0213065370 | Str. Moise Nicoara, Nr. 7, Sector 3 |
| 5. | Bambi Step by Step- Gradinita Bucuresti | 0213273256; 0317102928 | Str. Gh. Dem Teodorescu, Nr.16 bis, Sector 3, Bucuresti |
| 6. | Aurora - Gradinita & After School sector 3 | 0744317320; 0213224168 | Str. Moise Nicoar?, nr. 9-11, sector 3 |
| 7. | Arlechino & Friends - Gradinita si afterschool - Bucuresti | 0723264032; 0749028820; 0213260584 | Str. Cezar Boliac, Nr. 22-24, Sector 3, Bucuresti |
| 8. | Oxigen Sport - Befor School, After School Bucuresti | 0722529429 | Str. Duzilor, Nr. 23, sector 2, Bucuresti |
| 9. | Acorns British Style Nursery, Gradinita & After School, Bucuresti | 0722476581; 0788418186 | Str. Popa Soare, Nr. 63, Sector 2, Bucuresti |
| 10. | Bell - Gradinita, Afterschool Bucuresti | 0728694516 | Str. Mecet, Nr. 53, Sector 2 |
| 11. | Bob de Grau, Gradinita si Cresa - Bucuresti | 0720446942 | Str. Agricultori, Nr. 142, Sector 3, Bucuresti |
| 12. | Copiii Montessori - Gradinita sector 3 | 0721204642 | Str. Labirint, nr. 95, Sector 3 |
| 13. | Kiga 99 Luftballons - Gradinita, After School in limba germana Bucuresti | 0722395197; 0745423467 | Str. Theodor Sperantia, nr. 81, sector 3 |
| 14. | Gradinita Magica, Bucuresti | 0765221341; 0723892378 | Str. Stefan Mihaileanu, Nr. 33, Sector 2, Bucuresti |
| 15. | Once Upon a Time - Centrul educational adlerian Bucuresti | 0770590487 | Str. Ciobanasului, Nr. 22A, Sector 2 |
| 16. | Cresa Ciobanasului | 0213223085 | Str. Ciobanasului, nr. 23, sector 2, |
| 17. | International Kindergarten & Nursery - Gradinita Bucuresti | 0723248978; 0314327798 | Str. Claudiu, Nr. 26, Sector 2, Bucuresti |
| 18. | Montessima Educational - Afterschool zona Iancului, Bucuresti | 0771421104 | Str. Constantin Zlatescu, nr. 12, sector 2 |
| 19. | Abcdino, Gradinita - Bucuresti | 0213231070; 0725929616; 0745397739 | Str. Chiparosului, Nr. 31, Sector 3, Bucuresti |
| 20. | Mihai Ionescu - Gradinita, Scoala, Liceu Bucuresti | 0213235495 | Str. Parfumului, Nr. 31, Sector 2, Bucuresti |
| 21. | Central Art Studio - After School/Cursuri Pentru Copii/Scoala de Vara Bucuresti | 0745633737; 0765454244 | Str. Popa Soare, nr. 29, sector 2 |
| 22. | Puzzle Edu Center - Centru educational sector 2 | 0724536293 | Str. Gheorghe Pop de Basesti, nr. 17, Sector 2 |
| 23. | Little Oaks Academy - Gradinita sector 3 | 0766572126; 0766572127 | Sos. Mihai Bravu, Sos. Mihai Bravu nr. 286, sector 3 |
| 24. | ERA Kinderland - Gradinita, after school in limba germana sector 3 | 0728850073; 0213207697 | Str. Dristorului, nr. 67, sector 3 |
| 25. | Montessori Edu - Centru educational, Bucuresti | 0721833901 | Str. Mantuleasa, nr. 21, sector 2 |
| 26. | Pick Me Academy - Gradinita si scoala, Bucuresti | 0726000640 | Str. Slt. Pompiliu Manoliu, Nr. 7,Sector 2, Bucuresti |
| 27. | Bulgarasi de Aur - Before & After School Bucuresti | 0723398829 | Str. Cogalnic, nr. 30, sector 3 |
| 28. | Luminita - Gradinita sector 2 | 0212503180 | Sos. Iancului, nr. 4A, sector 2 |
| 29. | Sonnenblume Kinderinstitut - Gradinita, Cresa Montessori Bucuresti | 0726471469 | Str. Calusei, nr. 36, sector 2 |
| 30. | Kids\' World Nursery School - Gradinita Bucuresti | 0771242641 | Bd. Basarabia, Nr. 2, Sector 3 |
| 31. | KeiKo AfterSchool Bucuresti | 0748880866 | Str. Magura Vulturului, nr. 6, Sector 2 |
| 32. | Little Star - Gradinita, After School sector 3 | 0745531279; 0724506631 | Str. Alexandru Magatti, nr. 13 A , sector 3 |
| 33. | Little Princess 1 - Cresa, Gradinita Bucuresti | 0756070390; 0744321574; 0744703973 | Str. Popa Stoica Farcas, Nr. 64-66, Sector 3, Bucuresti |
| 34. | Lauder-Reut Kindergarten - Gradinita Bucuresti | 0318055772; 0723098800; 0735505395 | Str. Iuliu Barasch, Nr. 15, Sector 3, Bucuresti |
| 35. | Cei Trei Muschetari - Before si After School, Bucuresti | 0724384924 | Str. Vaselor, Nr. 40, Sector 2, Bucuresti |
| 36. | Don Castor, Gradinita & After School - Bucuresti | 0757073929; 0217945396 | Str. Vaselor, Nr. 17A, Sector 2, Bucuresti |
| 37. | Gradinita Nr. 256 Bucuresti | 0212506222 | Str. Atanase Ionescu, Nr. 25, Sector 2 |
| 38. | Dani\'s Children, Cresa, Gradinita, After School - Bucuresti | 0721800099 | Str. Silvestru, Nr. 42, Sector 2, Bucuresti |
| 39. | Clopotel - Gradinita Bucuresti | 0212502197 | Str. Elev Dridu Georgescu, nr. 2, sector 2 |
| 40. | Copacelul Vietii - Gradinita Bucuresti | 0721464185 | Str. Radu Calomfirescu, nr. 9, sector 3 |
| 41. | Little Princess 2 - After School / Before School Bucuresti | 0744703973; 0744321574; 0756070390 | Str. Vulcan Judetu, Nr. 16, Sector 3, Bucuresti |
| 42. | Iepurasul cel Istet - Cresa, Gradinita, After School sector 2 | 0731488715; 0722121779 | Str. Mihai Eminescu, nr. 179, sector 2 |
| 43. | Mica Printesa - Gradinita, after school Bucuresti | 0744321574; 0744703973 | Str. Vulcan Judetu, nr. 16, sector 3, |
| 44. | Licurici - Gradinita Bucuresti | 0212104790 | Bd. Dacia, Nr. 134, Sector2, Bucuresti |
| 45. | Ina School - Gradinita si scoala primara, Bucuresti | 0722500899 | Str. Lacul Gorgova, nr. 2, Sector 2 |
| 46. | Kids First - Gradinita Bucuresti | 0748880866; Varnavelena@gmail.com | Str. Sica Alexandrescu, nr. 20, Sector 2, |
| 47. | Dumbo Kids Academy - Cresa, Gradinita, Before & After School sector 3 | 0722320023 | Intr. Patinoarului, nr. 42A, sector 3 |
| 48. | Smart Steps - Gradinita , After School sector 3 | 0733965133 | Str. Dristorului, nr. 91-95, bl. E, Parter, sector 3 |
| 49. | Land of Kids Afterschool sector 2 | 0766831831; 0726733314 | Str. Constantin Tanase, Nr. 22, Sector 2 |
| 50. | Mell - Gradinita cu Program Normal sector 3 | 0744564426; 0722958683 | Str. Vlad Dracu, nr. 43, sector 3 |
| 51. | Piccolo Grande - After School, loc de joaca sector 3 | 0754200258 | Intr. Patinoarului, nr. 52, Sector 3 |
| 52. | Smiley After School sector 2 | 0727401829 | Bd. Basarabia, nr. 62A, sector 2 |
| 53. | Super Start - Gradinita, After School sector 2 | 0720528738 | Bd. Ferdinand I, nr. 156, Sector 2 |
| 54. | Teach Little People - Centru educational, Bucuresti | 0727401433 | Str. Alexander von Humboldt, nr. 2, sector 3 |
| 55. | Arc-en-Ciel, Gradinita - Bucuresti | 0212524665; 0725519386; 0726126808 | Str. Ion Heliade Radulescu, Nr. 18, Sector 2, Bucuresti |
| 56. | City Kids - Gradinita si afterschool Bucuresti | 0756862825 | Str. Ruschita, Nr. 41, sector 2 |
| 57. | Funny Clown, Gradinita & After School - Bucuresti | 0740806356 | Str. Ruschita, Nr. 41, Sector 2, Bucuresti |
| 58. | Centrul Educational Fecioara Maria - Cresa, Gradinita Bucuresti | 0799741474; 0770574645 | Str. Eufrosina Popescu, Nr. 30, Sector 3, Bucuresti |
| 59. | Praslea cel Voinic - Gradinita & After School Bucuresti | 0722773103; 0733839824 | Str. Competitiei, Nr. 38, Sector 2, Bucuresti |
| 60. | Gradinita Montessori Livada cu copii sector 2 | 0757467127; 0721204642 | Str. Toamnei, nr. 76-78, sector 2 |
| 61. | Capsunica - Gradinita sector 3 | 0765516162 | Str. Constantin Nottara, nr. 27, sector 3 |
| 62. | Gradinita Nr. 239 sector 3 | 0213245490 | Str. Dristorului, nr. 102, sector 3 |
| 63. | Gradinita Nr. 257 Alice sector 2 | 0212114524 | Str. Alexandru Donici, Nr. 23, sector 2 |
| 64. | Gradinita Nr.161 (Brandusa) sector 3 | 0314250834; 0314250835 | Str. Branduselor, Nr. 37/43, sector 3 |
| 65. | Saga Kid - After School sector 3 | 0743266500; 0756169135 | Str. Campia Libertatii, nr. 44, sector 3, |
| 66. | Iuladi Kids - Cresa, gradinita Bucuresti | 0769088777 | Str. Breaza, Nr. 78, Sector 3 |
| 67. | Clubul Copiilor Sector 2 - Bucuresti | 0212106432 | Intr. Cobilitei, Nr. 8, Sector 2, Bucuresti |
| 68. | Domino - Gradinita Bucuresti | 0722492047 | Str. Constantin Georgian,, nr. 27, sector 2, Bucuresti |
| 69. | Family Kids, Gradinita si After School - Bucuresti | 0722565657; 0723281551 | Str. Mugur Mugurel, Nr. 21, Sector 3, Bucuresti |
| 70. | Happy Kids Project - After school si before school, Bucuresti | 0745152802 | Sos. Iancului, Nr. 110, Sector 2, Bucuresti |
| 71. | Puiutul Pufos - Gradinita Bucuresti | 0740140968; 0213440010 | Str. Emanoil Marius Buteica, Nr. 30, Sector 3, Bucuresti |
| 72. | Centrul multifunctional Cresa Craiasa Zapezii sector 4 | 0371360117; 0371360127 | Str. Oitelor, nr. 50, sector 4 |
| 73. | Palatul Copiilor - Gradinita, After School sector 3 | 0740673742; 0314251635 | Str. Morilor, Nr. 19, sector 3 |
| 74. | Lill put - Centru de educatie nonformala pentru prescolari, Bucuresti | 0722647423 | Str. Sarafinesti, Nr. 29, sector 2 |
| 75. | Castelino Baby - Gradinita Bucuresti | 0731995600 | Str. Prof. Ion Ursu, nr. 21, sector 2, |
| 76. | Centrul Educational Nectarel - Afterschool Bucuresti | 0740221854 | Str. Baba Novac, nr. 17, sector 3 |
| 77. | Gradinita Nr. 203 Bucuresti | 0213112352 | Str. C. A. Rosetti, nr. 32, Sector 1 |
| 78. | Legolas - Centru Educational sector 3 | 0787322298; 0787460258; 0787298295 | Str. Nucului, nr. 55, sector 3 |
| 79. | Kids Power - Centru educational holistic pentru copii Bucuresti | 0741248260 | Str. Nucului, nr. 55, sector 3 |
| 80. | Micii Poznasi - Cresa, Gradinita Bucuresti | 0725911233 | Calea Serban Voda, Nr. 22-24, Sector 4 |
| 81. | Gradinita Nr. 133 sector 2 | 0212116749 | Str. Aurel Vlaicu, nr. 30 - 32, sector 2 |
| 82. | WhizKidz Hub - Afterschool, Centru educational Bucuresti | 0742602260 | Str. Gradinarilor, nr. 14, Sector 3 |
| 83. | Dandi Kids, Gradinita & After School - Bucuresti | 0726758303 | Str. Rasovita, Nr. 18, Sector 3, Bucuresti |
| 84. | Castelul Fermecat - Gradinita, After School Bucuresti | 0745770001; 0752314458; 0765957032 | Drumul Murgului, Nr. 32, Sector 3, Bucuresti |
| 85. | Letitia - After school sector 3 | 0733919066; 0722882558 | Str. Baba Novac, nr. 19A,Belvedere Residence, sector 3 |
| 86. | Gradinita nr. 188 Castel sector 2 | 0212504180; 0213179946 | Bd. Pierre de Coubertin, nr. 1, sector 2 |
| 87. | Castelul Bucuriei - Gradinita Bucuresti | 0730515181 | Str. Vasile Voiculescu, nr. 30, sector 3 |
| 88. | Centrul Educational Nordic sector 4 | 0786391446 | Splaiul Unirii, Nr. 176, Corp D3, Sector 4 |
| 89. | Ioanid - Gradinita Bucuresti | 0758054441 | Str. Polona, Nr. 4, Sector 1, |
| 90. | BritAcademy, Gradinita in limba engleza - Bucuresti | 0740329105 | Str. Olimpiadei, Nr. 36, Sector 2, Bucuresti |
| 91. | Gradinita nr. 30 sector 4 | 0213362078 | Bd. Dimitrie Cantemir, nr. 16A, Sector 4 |
| 92. | Prikindel - Cresa, Gradinita & After School - Bucuresti | 0314059269; 0722522198 | Str. Sf. Ilie, nr. 5, sector 4, |
| 93. | Tom Sawyer - Gradinita sector 2 | 0722529958 | Str. Bratului, nr. 14, sector 2 |
| 94. | Piticul Curajos - Gradinita, After School sector 3 | 0749607276; 0314373583; 0213240124 | Str. Copaceni, Nr. 64, sector 3 |
| 95. | Just4Kids - Scoala Gimnaziala cu nivel gimnazial, primar si prescolar Bucuresti | 0739674601 | Str. Vantului, Nr. 27, Sector 3, Bucuresti |
| 96. | Licurici - Gradinita sector 4 | 0314377556; 0767503191 | Str. Cuza Voda, nr. 141 A, Sector 4 |
| 97. | Copii de Poveste - Gradinita sector 4 | 0740051582 | Str. Poterasi, nr. 5, sector 4 |
| 98. | Iulia Pantazi - Centrul psihologic pentru copii Bucuresti | 0745480458; 0317304741 | Str. Cernauti, Nr.1, Sector 2, Bucuresti |
| 99. | Maya si Prietenii - Cresa, Gradinita sector 2 | 0755359162 | Str. Herta, nr. 32A, Sector 2, |
| 100. | PRO Academy Afterschool | 0744501156 | Str. Sibiel, nr. 6, Sector 4 |
| 101. | Madi AfterSchool sector 2 | 0757837644 | Str. Herta, nr. 32A, Sector 2 |
| 102. | Little Primary Education - Gradinita Bucuresti | 0733331333 | Intr. Docherilor, Nr. 3, Sector 2 |
| 103. | Max und Moritz Kinder - Gradinita limba germana & After School Bucuresti | 0726374434 | Str. Plugarilor, Nr. 24, Sector 4, Bucuresti |
| 104. | Clubul Boreal, Gradinita - Bucuresti | 0721124249 | Str. Valerian Prescurea, Nr. 5, Sector 4, Bucuresti |
| 105. | Nicoland - Cresa, Gradinita Bucuresti | 0766237114 | Str. Raspantiilor, Nr. 7, Sector 2 |
| 106. | Apostol - After School sector 2 | 0740951411 | Str. Seneslav Voievod, Nr. 55, Sector 2 |
| 107. | Junior School - Gradinita Bucuresti | 0751223159 | Str. Calimachi, nr. 17, Sector 2, |
| 108. | Dreamland - Gradinita Bucuresti | 0787521511 | Str. Plugarilor, nr. 20-22, Sector 4, Bucuresti |
| 109. | Alfred Fronius - Gradinita si afterschool in limba germana Bucuresti | 0729699619; 0726715499 | Str. Tunari, Nr. 39, Sector 2, Bucuresti |
| 110. | Pisicile Aristocrate - Gradinita sector 4 | 0213350635; 0213363680 | Bd. Regina Maria, nr. 28-30, Sector 4 |
| 111. | Alfred Fronius - Gradinita si afterschool in limba germana Bucuresti | 0372978427; 0726715499 | Str. Tunari, Nr. 39 (zona Stefan Cel Mare), sector 2 |
| 112. | Gradinita cu program prelungit Nr. 135 | 0212421805 | Str. Masina de Paine, nr. 65, sector 2 |
| 113. | Gradinita nr. 138 sector 2 | 0212106377 | Str. Tunari, nr. 52, sector 2 |
| 114. | Gradinita Floare de colt (nr. 64) sector 3 | 0213464899 | Str. Schitului, nr. 1D, sector 3 |
| 115. | Taramul Magic Voi Reusi - After School sector 2 | 0727540913 | Bd. Chisinau, nr. 6-8, sector 2 |
| 116. | Veverita Jucausa - Gradinita sector 2 | 0726224859 | Str. Litovoi Voievod, Nr. 38, Sector 2 |
| 117. | A&M afterschool Bucuresti | 0723371319 | Bd. Camil Ressu, Nr. 33, bl. N4, sc. 1, ap. 4, int. 4, sector 3, |
| 118. | Lumea lui Momo - Gradinita Bucuresti | 0748055255 | Str. Ipotesti, Nr. 23, Sector 4 |
| 119. | Cresa Potcoava (Titan II) sector 3 | 0213244810; 0213244880 | Str. Pictor Gheorghe Tattarescu, nr. 10, sector 3 |
| 120. | Centrul Social Multifunctional Cresa Scufita Rosie sector 4 | 0733200109; 0372874267; 0372715100, 0372715101 | Aleea Tohani, nr. 1, bl.30, sc. 1, parter, sector 4 |
| 121. | Cartea cu Povesti - Gradinita Bucuresti | 0766237114 | Str. Aurel Vlaicu, nr. 127A, sector 2, |
| 122. | Gradinita nr. 69 sector 3 | 0213244141; 0213240000 | Bd. Pictor Nicolae Grigorescu, nr. 14, sector 3 |
| 123. | Sincron - Gradinita, After School Sector 3 | 0722243877 | Calea Vitan, nr. 206, sector 3 |
| 124. | Scufita Rosie - Gradinita sector 4 | 0766541207 | Calea Serban Voda, nr. 170 , sector 4 |
| 125. | Genius Academy - Cresa, Gradinita , Scoala Primara si After School Bucuresti | 0724111678; 0744638435 | Calea Serban Voda, nr. 145, sector 4 |
| 126. | Plusica - Gradinita & Afterschool sector 3 | 0768596856 | Str. Drumeagului, nr. 51, sector 3 |
| 127. | Gradinita nr. 3 - sector 3 | 0213464112 | Str. Plt. Nedelcu Ion, Nr. 31, sector 3 |
| 128. | Maria International School - Gradinita, Scoala primara si afterschool Bucuresti | 0730432092 | Str. Piata Amzei, Nr. 6, Sector 1, Bucuresti |
| 129. | RosaMaria - Gradinita, cresa Bucuresti | 0746808080 | Str. Silvia, Nr. 18, Sector 2 |
| 130. | Springfield Education - Gradinita si After School Bucuresti | 0734710573; 0721707879 | Str. Soltuzului, Nr. 10, Sector 2, Bucuresti |
| 131. | Casuta cu Pitici Mari si Mici - Gradinita, Afterschool Bucuresti | 0722626268 | Str. Silvia, nr. 11, Sector 2, Bucuresti |
| 132. | Melba - Centru Educational Bucuresti | 0722461015 | Str. Lanariei, Nr. 117 , Sector 4, Bucuresti |
| 133. | Smart Kinder Villa - Before & After School Bucuresti | 0726285699; 0728472197 | Str. Nicolae Beldiceanu, nr. 2, sector 1 |
| 134. | Ray of Light Montessori - Gradinita, Bucuresti | Str. Gladiolelor, Nr. 15, sector 4 | |
| 135. | Buna Vestire - Gradinita, After School sector 4 | 0787435172 | Str. Episcopul Chesarie, nr. 9, Sector 4 |
| 136. | Gradinita Nr. 252 Bucuresti | 0212302296 | Calea Dorobantilor, nr. 60, sector 1 |
| 137. | Gradinita nr. 276 Bucuresti | 0212423280 | Str. Corabia, nr. 57, sector 2 |
| 138. | Elite - Cresa, Gradinita Bucuresti | 0766687691 | Str. Lanariei, Nr. 136, Sector 4, Bucuresti |
| 139. | B-Happy Afterschool sector 3 | 0722396590 | Intr. Horbotei, nr. 12, bl. 4, parter, sector 3 |
| 140. | OLIMPIA KIDS - gradinita particulara, cresa si after school Bucuresti | 0731680372 | Drumul intre Vii, Nr. 24, Sector 3 |
| 141. | Castelul Fermecat Olimpia - Gradinita, scoala primara, Afterschool, Bucuresti | 0731680372 | Drumul intre Vii, Nr. 24, Sector 3, Bucuresti |
| 142. | Gradinita nr. 24 sector 3 | 0213441760 | Str. Locotenent Pascu Nicolae, nr. 12, sector 3 |
| 143. | Castelul Copiilor din Tei, Gradinita - Bucuresti | 0212109962; 0764738888; 0739770707 | Str. Sfanta Treime, Nr. 28, Sector 2, Bucuresti |
| 144. | Gradinita nr. 233 sector 2 | 0216884518 | Str. Antonescu Petre, nr. 20, Sector 2 |
| 145. | Zuppy - Gradinita, After School sector 2 | 0753915058 | Str. Otesani, nr. 69, Sector 2 |
| 146. | Gradinita Nr. 255 sector 3 | 0213462996; 0213462994 | Bd. Energeticienilor, Nr. 3, sector 3 |
| 147. | Children\'s Joy, Gradinita & After School - Bucuresti | 0731258277; 0754317732 | Str. Gramont, Nr. 3, Sector 4, Bucuresti |
| 148. | Waldorf Christophori - Gradinita Bucuresti | 0770861602 | Str. Putul cu Plopi, Nr. 8, (langa Parcul Cismigiu) - sector 1, Bucuresti |
| 149. | Robotics School - After School, ateliere de robotica Bucuresti | 0721861565 | Aleea Barajul Cucuteni, nr. 2, Bl M4A, sector 3 |
| 150. | Gradinita nr. 71 sector 3 | 0213480894 | Aleea Fuiorului, nr. 9 , sector 3 |
| 151. | Paradisul Copiilor - Gradinita & After School Bucuresti | 0730007062 | Str. G-ral. Haralambie Nicolae, Nr. 38, Sector 4, Bucuresti |
| 152. | Gradinita Nr. 280 sector 2 | 0212557980; 0212550205 | Str. Delfinului, nr. 4, sector 2 |
| 153. | Academia Gifted International, Gradinita & After School - Bucuresti | 0724381661; 0722277090 | Str. Sold. Simion Stefan, nr. 39, sector 4, Bucuresti |
| 154. | Gradinita Nr. 7 Bucuresti | 0212421714 | Str. Maica Domnului, Nr. 61 - 63, Sector 2 |
| 155. | Gradinita nr. 73 sector 5 | 0213154355 | Splaiul Independentei, nr. 68, sector 5 |
| 156. | Don Quijote - Afterschool Bucuresti | 0725737793 | Str. Ioan Slavici, nr. 4, sector 1 |
| 157. | Scoala Italiana Aldo Moro - Gradinita,scoala, liceu, Bucuresti | 0212104684 | Intr. Blaj, nr. 1, Sector 1, Bucuresti |
| 158. | Fridolin - Gradinita, Scoala Germana Bucuresti | 0723219616; 0723584872 | Str. Temisana, Nr. 1, Sector 1, Bucuresti |
| 159. | Casuta cu ferestre - Gradinita Bucuresti | 0721660052 | Str. Gheorghe Lupu, nr. 19, sector 4 |
| 160. | Rio - Gradinita & After School Bucuresti | 0740025434; 0748633314 | Str. Luigi Galvani, Nr. 13A, Sector 2, Bucuresti |
| 161. | Taramul Cunoasterii - Cresa si Gradinita Bucuresti | 0724278826 | Str. Ioan G. Bibicescu, Nr. 11, Sector 1, Bucuresti |
| 162. | Roxy Baby - Cresa Particulara Bucuresti | 0314254309; 0723274924 | Str. Slobozia, Nr. 29 , Sector 4, Bucuresti |
| 163. | Mami si Tati - Gradinita, Before & After School Bucuresti | 0721177543; 0762616442 | Str. Grigore Alexandrescu, Nr. 58, sector 1, Bucuresti |
| 164. | Cresa Sinaia sector 2 | 0212403528 | Aleea Sinaia, nr. 4, sector 2 |
| 165. | Cresa Teiul Doamnei Bucuresti | 0314104891 | Str. Teiul Doamnei, nr. 99, Sector 2 |
| 166. | La Turn - Gradinita sector 2 | 0212751772; 0732122336 | Sos. Morarilor, Nr.1, Sector 2 |
| 167. | Gradinita MAPN Nr. 2 Bucuresti | 0213156889 | Str. Constantin Cristescu, nr. 5, sector 1 |
| 168. | Kinderakademie - Gradinita & After School Bucuresti | 0724661760; 0727427004 | Str. Sfintii Voievozi, Nr. 28, Sector 1, Bucuresti |
| 169. | Rainbow Kids - Gradinita si scoala primara Bucuresti | 0737081690; 0773349170 | Str. Ion Dragalina, Nr. 8, Sector 5, Bucuresti |
| 170. | Edu Friends - Before & After School Bucuresti | 0783080096 | Str. Berzei, Nr. 5, Sector 1 |
| 171. | Edu & Care - After School, cursuri pentru copii Bucuresti | 0721571086 | Str. Chopin, nr. 2 B, sector 2 |
| 172. | Gradinita Nr. 241 (Pestisorul De Aur) sector 3 | 0213482910 | Str. Rotunda, nr. 19, Sector 3 |
| 173. | Universul Zambetelor - Gradinita si Cresa Bucuresti | 0765410512 | Str. Lunca Dunarii, nr. 7, sector 3 |
| 174. | Gradinita Nr. 191 sector 3 | 0213403046; 0213401059 | Str. Cozla, nr. 1, sector 3 |
| 175. | Big Smile - Gradinita, scoala primara, After School Bucuresti | 0722557333 | Str. Cutitul de Argint, nr. 74, sector 4, Bucuresti |
| 176. | Gradinita Nr. 154 sector 3 | 0213400130 | Aleea Barajul Uzului, Nr. 9, sector 3 |
| 177. | Ana Lugojana - Gradinite, Scoala Primara, Gimnaziala si After School Bucuresti | 0724342409 | Str. Constantin Miculescu, nr. 10, sector 5, Bucuresti |
| 178. | Gradinita nr. 269 sector 5 | 0213354544 | Str. Constantin Miculescu, nr. 12, sector 5 |
| 179. | Happy Kids - Gradinita si after school Bucuresti | 0770708392 | Str. Scoala Floreasca, Nr. 3, Sector 1, Bucuresti |
| 180. | Gradinita nr. 70 sector 3 | 0213400228 | Str. Lucretiu Patrascanu, nr. 12, sector 3 |
| 181. | Maria Ward - Gradinita sector 4 | 0722789787 | Calea Serban Voda, nr. 223, sector 4 |
| 182. | Jolly Pepe - Club educational pentru copii si adulti, Before&After School sector 4 | 0748080088 | Str. Mitropolit Grigore, nr. 4A, parter, sector 4 |
| 183. | Ghiocelul - Cresa sector 3 | 0729330319 | Bd. 1 Decembrie 1918, nr. 12-14, sector 3 |
| 184. | Clubul Diandra - Gradinita si After School, Bucuresti | 0745075332 | Str. Prisaca Dornei, Nr. 2H, Sector 3, Bucuresti |
| 185. | Puisor - Gradinita Nr. 268 Bucuresti | 0214104010 | Str. Ion Creanga, Nr. 8, Sector 5, Bucuresti |
| 186. | Gradinita nr. 137 sector 2 | 0212407581; 0217960289 | Str. Plumbuita, nr. 5, sector 2 |
| 187. | Zambete Colorate - Gradinita Ilfov | 0749262383 | Sos. Dobroesti, Nr. 30, judetul Ilfov |
| 188. | Clubul Micul Print - afterschool Bucuresti | 0733750795 | Str. Dr. Nicolae Staicovici, Nr. 51, Sector 5, Bucuresti |
| 189. | Neverland Afterschool Bucuresti | 0742139992 | Str. Prisaca Dornei, nr. 16, sector 3 |
| 190. | My Universe - Afterschool si gradinita, Bucuresti | 0788416164 | Str. Costache Negri, Nr. 9-11, sector 5 |
| 191. | Copil Dorit - Gradinita Bucuresti | 0736820068; 0722166358 | Sos. Viilor, Nr. 33, Sector 5, Bucuresti |
| 192. | Olga Gudynn, Gradinita si Scoala Cotroceni - Bucuresti | 0734411332; 0214106995 | Str. Fagaras, Nr. 6, Sector 1, Bucuresti |
| 193. | Albinuta - Gradinita sector 2 | 0212303377 | Str. Dinu Lipatti, nr. 1, sector 2 |
| 194. | Ramy\'s Kids - After School sector 3 | 0723523721 | Bd. Nicolae Grigorescu, nr. 46, sector 3 |
| 195. | Martisor AfterSchool sector 4 | 0727017553 | Str. Cararuia, nr. 1, sector 4 |
| 196. | Gradinita nr. 216 sector 3 | 0213400395 | Str. Barajul Rovinari, nr. 10, sector 3 |
| 197. | Gradinita Nr. 168 sector 5 | 0213363515 | Sos. Viilor, nr. 99, sector 5 |
| 198. | Sfantul Nicolae, Gradinita & After School - Bucuresti | 0729611918 | Str. Sirenelor, Nr. 56-58, Sector 5, Bucuresti |
| 199. | Analesia - Gradinita & AfterSchool in limba germana Bucuresti | 0741332222; 0741332226 | Str. Paris, nr. 57, sector 1 |
| 200. | Luca - Gradinita si Cresa, After school, Scoala primara si gimnaziala, Liceu teoretic, Bucuresti | 0721335161; 0744894206 | Str. Sanmedru, Nr. 25, Sector 2, Bucuresti |
| 201. | Anna Afterschool sector 3 | 0733305865 | Aleea Calistrat Hogas, nr. 28 D-E, Sector 3 |
| 202. | Happy Tree - Gradinita & After School Bucuresti | 0761600082; 0763630634; 0213401308 | Aleea Calistrat Hogas, nr. 28A, sector 3, Bucuresti |
| 203. | INNA Kids Academy - Before & Afterschool Bucuresti | 0723290372 | Str. Johann Sebastian Bach, nr. 10, Sector 2 |
| 204. | Amadeus - Afterschool Bucuresti | 0770896313; 0721841416 | Str. Amidonul, nr. 2, Sector 2 |
| 205. | Gradinita Nr. 232 sector 3 | 0213485518 | Str. Patriotilor, nr. 3, sector 3 |
| 206. | Kids Palace - Gradinita & After School Bucuresti | 0722612031 | Str. Obolului, Nr. 10, Sector 4, Bucuresti |
| 207. | Gradinita Nr. 251 Bucuresti | 0212301417 | Str. Venezuela, nr. 11, sector 1 |
| 208. | Sofia - Gradinita Bucuresti | 0721006006; 0212311505 | Str. Sofia, Nr. 20, Sector 1 |
| 209. | Steaua Nordului - Before and Afterschool Bucuresti | 0745040940 | Str. Andrei Muresanu, nr. 27, sector 1 |
| 210. | Gradinita nr. 277 Steluta sector 2 | 0212551195 | Sos. Vergului, nr. 14, Sector 2 |
| 211. | Gradinita nr. 231 sector 3 | 0310699994; 0314370742 | Str. Codrii Neamtului, nr. 68, sector 3 |
| 212. | Martisor - Gradinita sector 4 | 0213325936 | Str. Daracului, Nr. 11, Sector 4 |
| 213. | Gradinita Nr. 189 Malaxa Bucuresti | 0212554870 | Sos. Vergului, Nr. 12, Sector 2, Bucuresti |
| 214. | Primii Pasi - Gradinita si Cresa Fundeni | 0212400469; 0722522898 | Str. Sucidava, nr. 27, Sector 2, Bucuresti |
| 215. | LTN Liceul Teoretic National - Gradinita, Gimnaziu, Liceu - Bucuresti | 0720000171; 0732151931 | Str. Dr. Iacob Felix, nr. 49, Sector 1, Bucuresti |
| 216. | Garmy Kids - Gradinita si After School Bucuresti | 0311060294; 0745342225; 0734784673 | Sos. Vitan Birzesti, Nr. 7D-7E, sector 4 |
| 217. | Smart Children - After School Bucuresti | 0774613480; 0760757410 | Str. Prevederii, nr. 6, bl. D2, Ap. 1, Interfon 1, Sector 3, |
| 218. | CoolTure MindS - After School Bucuresti | 0743359307 | Bd. Alexandru Ioan Cuza, nr. 37, Sector 1 |
| 219. | Oskar - Before and After School Piata Victoriei | 0730948470 | Str. Monetariei, Nr. 14, Sector 1, Bucuresti |
| 220. | Oskar - Before&After School Bucuresti | 0734040227; 0730948470 | Str. Monetariei, nr. 12, sector 1 |
| 221. | Strumfisor - Gradinita Bucuresti | 0744709237 | Bd. Nicolae Grigorescu, Nr. 105 - 109, Sector 3, Bucuresti |
| 222. | Asociatia Conil - Gradinita pentru copii cu nevoi speciale Bucuresti | 0784412222; 0217466704; 0735847526 | Str. Dr. Victor Poloni , nr 14, Sector 5, Bucuresti |
| 223. | Gradinita nr. 23 sector 2 | 0216275013; 0212550840 | Str. Soldat Gheorghe Raduta, nr. 1, sector 2 |
| 224. | Elefantelul curios- Afterschool & more, sector 4 | 0767332115; 0727222015 | Bd. Constantin Brancoveanu, Nr. 7D, sector 4 |
| 225. | Aristokids, Gradinita & After School - Bucuresti | 0722648885 | Str. Lebedei, Nr. 25, Sector 1, Bucuresti |
| 226. | Electromagnetica - Gradinita sector 5 | 0218915699; 0214232110 | Calea Rahovei, nr. 266, sector 5 |
| 227. | BBIS Bucharest-Beirut International School | 0744309199; 0314381572 | Sos. Vergului, Nr. 14, Sector 2, Bucuresti |
| 228. | Discover Me- Gradinita Bucuresti | 0747774809 | Str. Constantin Noica, Nr. 120, sector 6, Bucuresti |
| 229. | Gradinita M.Ap.N. nr. 1 sector 6 | 0213196009; 0766298724 | Calea Plevnei, nr. 137B, sector 6 |
| 230. | Centrul Educational BUBU | 0735531156 | Sos. Pantelimon, Nr. 355, sector 2 |
| 231. | Gradinita nr. 206 - Gradinita cu program prelungit Bucuresti | 0212229287 | Str. Constantin Disescu, nr. 37, sector 1 |
| 232. | Olga Gudynn International School - Gradinita, scoala si liceu, Bucuresti | 0734411359; 0212311202 | Str. Ancuta Baneasa, Nr. 8, sector 1, Bucuresti |
| 233. | Fundatia School and Fun - Gradinita Sotron | 0216555398 ; 0721727323 | Str. Gherghitei, Nr.7, Sector 2 (Cartier Colentina), Bucuresti |
| 234. | Gradinita Nr. 248 Bucuresti | 0212224120 | Str. Artur Vartejeanu, Nr. 15, Sector 1 |
| 235. | Aripi spre Succes - Gradinita si Afterschool sector 3 | 0740137944 | Aleea Manastirea Agapia, nr. 32, Sector 3 |
| 236. | Teddy Club - Club educational , After school Bucuresti | 0732138368; 0723188995 | Str. Duminicii, nr. 16, sector 4 |
| 237. | Mini Club Condor - Gradinita, Bucuresti | 0725211112; 0722368662; 0314310407 | Str. Col Iosif Albu, Nr. 80 Sector 3, Bucuresti |
| 238. | Gradinita nr. 271 sector 5 | 0214109024 | Bd. Eroii Sanitari, nr. 77, sector 5 |
| 239. | Monteclaris - Gradinita, before si afterschool Bucuresti | 0724671560; 0784606075 | Str. Maria Hagi Moscu, Nr. 29, Sector 1 |
| 240. | Creative Minds Kindergarten - Gradinita Bucuresti | 0726152551 | Str. Alexandru Deparateanu, nr. 38, sector 1 |
| 241. | Gradinita Nr. 196 sector 3 | 0213450636 | Str. Plutonier Ionescu Petre, nr. 76, sector 3 |
| 242. | Zoom Kids Academy - Afterschool Sector 4 | 0756155660 | Str. Stejarisului, nr. 13, Sector 4 |
| 243. | Zum Zum - Gradinita Bucuresti | 0745685556; 0740704922 | Str. Vespasian, Nr. 37, Sector 1, Bucuresti |
| 244. | Bufnita din Tei - Club de educatie nonformala si activitati recreative | 0751020362 | Str. Sg. Nitu Vasile, nr. 26, Sector 4 |
| 245. | Evia Kids Afterschool Bucuresti | 0734464388 | Str. Bradetului, nr. 7, sector 4 |
| 246. | Kinderträume - Gradinita Bucuresti | 0744507988 | Splaiul Independentei, Nr. 195, sector 6, Bucuresti |
| 247. | Gradinita Nr. 211 sector 3 | 0213451165 | Str. Trapezului, Nr. 1A, sector 3 |
| 248. | Diamond Kids - Cresa, Gradinita si After School Bucuresti | 0751048000 | Str. Trapezului, nr. 44, Sector 3 |
| 249. | Little Team - Gradinita / After School Bucuresti | 0799774767 | Calea 13 Septembrie, nr. 191, sector 5 |
| 250. | Centrul Multifunctional Cresa Dumbrava Minunata sector 4 | 0733200115; 0372715100; 0372715101 | Str. Stoian Militaru, nr. 84, sector 4 |
| 251. | Adnan, Gradinita - Bucuresti | 0744606010; 0722205243 | Intr. Buturugeni, Nr. 7 Sector 5, Bucuresti |
| 252. | Gradinita nr. 205 sector 5 | 0214233610 | Calea Ferentari, nr. 2, sector 5 |
| 253. | Ciupercuta - Gradinita sector 4 | 0213324431 | Str. Stoian Militaru, nr. 86-90, sector 4 |
| 254. | Stelutele, After School - Bucuresti | 0734716769 | Str. Vitioara, Nr. 46, Sector 3, Bucuresti |
| 255. | Cresa Greierasul sector 3 | 0737799585 | Str. Plutonier Major Marin Pazon, nr. 2, sector 3 |
| 256. | Gradinita nr. 1 Dobroesti | 0212556121; 0212553765 | Str. Nicolae Balcescu, nr. 16-18, Dobroesti, judetul Ilfov |
| 257. | Gradinita nr. 262 Alba ca Zapada si Piticii sector 4 | 0213324435 | Str. Crisul Alb, nr. 30, sector 4 |
| 258. | Gradinita nr. 54 sector 5 | 0214231217 | Calea Ferentari, nr. 96, sector 5 |
| 259. | Centrul social multifunctional cresa Degetica sector 4 | 0733200060 | Aleea Mirea Mioara Luiza, nr. 1A, sector 4 |
| 260. | Ingerul Albastru - Centrul educational pentru copii, Bucuresti | 0727868575 | Str. Serg Cuibaru Ion, Nr. 44, sector 3 |
| 261. | Alice si Taramul Fermecat - Afterschool, Bucuresti | 0741495713; 0748013790 | Str. Jean Alexandru Steriadi, Nr. 14D, Sector 3, Bucuresti |
| 262. | Gradinita Happy Junior - Bucuresti | 0724229250; 0730309647 | Sos. Berceni, Nr. 8, Sector 4, Bucuresti |
| 263. | Ortense - Gradinita si After School, Ilfov | 0735642345 | Intrarea Ciresului, 16c, Dobroesti, judetul Ilfov |
| 264. | Orhideea Kids - Gradinita & After School Bucuresti | 0748595311 | Calea Plevnei, Nr. 145B, sector 1, Bucuresti |
| 265. | Step Up After School | 0723795703; 0723544019 | Str. Vultureni, nr. 85, Sector 4 |
| 266. | Pitiricky - Clubul celor mici - Bucuresti | 0724648513 | Str. Ialomicioarei, Nr. 13, Sector 1, Bucuresti |
| 267. | Top Kids - Gradinita sector 5 | 0214237723; 0737215703 ; 0764392790 | Str. Sergent Gheorghe Donici, Nr. 26-28, Sector 5 |
| 268. | Sarida Kids Club - Prescolari, After school, Scoala de vara, Cursuri, Bucuresti | 0726528844; 0760132301 | Str. Crisul Alb, Nr. 9-13, Sector 4, Bucuresti |
| 269. | Go Kids Go - Before and After-School Bucuresti | 0723076434; 0766480774 | Str. Clucerului, nr. 21, sector 1 |
| 270. | Club Clever Kids - After School sector 4 | 0723791058 | Str. Preda Buzescu, nr. 12, Sector 4 |
| 271. | Gradinita Nr. 160 sector 3 | 0213453650 | Aleea Perisoru, nr. 9, sector 3 |
| 272. | Marilank - Gradinita si cresa Bucuresti | 0768316808 | Strada Lemnisorului, Nr 21-27, Sector 3 |
| vezi mai multe | |||
| 1. | Professional Klinic, Bucuresti - Tratament si analize | 0314250805 ; 0742207755 | Str.Agricultori, Nr. 115, bloc 79, Parter, Sector 3, Bucuresti |
| 2. | Village Medical Clinic - Centru medical Bucuresti | 0212323580 | Str. Constantin Kiritescu, nr. 27, sector 2, |
| 3. | Spitalul de Urgenta Prof. Doctor Dimitrie Gerota | 0212523334; Fax 0212522829 | Str. Vasile Vasilievici Stroescu, nr. 29-31, sector 2, |
| 4. | Centrul Medical Veridia-Bucuresti | 0213029434 | Str. Matei Basarab, nr. 45, sector 3, |
| 5. | Cron Phoenix - Centru de Reabilitare Ortopedica si Neurologica pentru copii Bucuresti | 0721567186; 0790667941 | Piata Pache Protopopescu, nr. 9, sector 2 |
| 6. | Spitalul Clinic de Ortopedie Traumatologie Foisor-Bucuresti | Tel.0212520057; Fax.0212521387; 0310056786(progamari consultatii) | Bd. Ferdinand, nr. 35-37, sector 2 , |
| 7. | Spitalul Clinic de Ortopedie Traumatologie \"Foisor\" + ambulatoriu | Tel. 0310056786; 0212520057; Fax 0212521387 | Bd. Ferdinand, nr. 35-37, sector 2, |
| 8. | Spitalul Prof. Dr. Constantin Angelescu | 0213233040; 0213233041 | Aleea Cauzasi, nr. 49 - 51 sector 3, |
| 9. | Donna Medical Center-Bucuresti | 0219732 | Str. Traian , nr. 234, et.1, sector 2, |
| 10. | SPITALUL PROF. DR. CONSTANTIN ANGELESCU | 0213233040; 0213233041 | Aleea Cauzasi, nr. 49-51, sector 3, |
| 11. | Spitalul Clinic de Boli Infectioase si Tropicale Dr. Victor Babes | 0213172727 / .28 / .29/ .30 (Centrala); 0213172721 | Sos. Mihai Bravu, nr. 281, sector 3, |
| 12. | Clinica Medicala Estet Laser Medical Center | Tel/Fax 0212531797; 0721241772; 0733625687 | Str. Calusei nr. 11, sector 2, |
| 13. | Centrul Medical Endocenter-Bucuresti | Tel.0764671233; Fax 0213267660 | Str. Arh. G. Sterian, nr. 8, sector 2, |
| 14. | Prof. Dr. Dimitrie Gerota, Spitalul de Urgenta MAI - Bucuresti | 0212523334 | Str. Vasile Vasilievici Stroescu, nr. 29-31, sector 2, |
| 15. | Dr. Victor Babes, Spitalul Clinic de Boli Infectioase si Tropicale Bucuresti | 0213172727 / .28 / .29/ .30 (Centrala); Fax 021 3172721 | Sos. Mihai Bravu, nr. 281, sector 3 , |
| 16. | Policlinica Iancului-Bucuresti | Tel.0314255277 (laborator); 0212508490 (O.R.L.); 0212503333 | Sos. Iancului , nr. 3, sector 2 , |
| 17. | Centrul Medical Dr. Victor Babes-Bucuresti | 0213179503; Fax: 0213179502 | Sos. Mihai Bravu nr. 281, sector 3 , |
| 18. | Standard Med-Bucuresti | 0722435435; 0314053950 | Bd. Carol, nr. 45, ap.5, parter, sector 2, |
| 19. | Gral Medical - Centrul Medical, Bucuresti | 0213230000; 0724242259 (programari radiologie); Fax 0213230002 | Str.Traian Popovici (fosta Unitatii), Nr. 79-91, Sector 3, Bucuresti |
| 20. | Cabinet Medical Persepolis- Bucuresti | 0749065961; 0751011893 | Str. Vasile Toneanu , nr. 20, sector 3, |
| 21. | Vitan Policlinica, Grupare de cabinete medicale - Bucuresti | 0727451211; 0213234970; 0213221208 | Calea Dudesti, Nr. 104-124, sector 3, Bucuresti |
| 22. | Spitalul clinic de copii Dr. Victor Gomoiu | 0314136700; 0314136701 | Bd. Basarabia nr. 21, sector 2, |
| 23. | Dr. V. Gomoiu, Spitalul de Copii - Ambulatoriul de specialitate Bucuresti | 0314136700; 0314136701; 0314136706 | Bd. Basarabia, nr. 21, sector 2, |
| 24. | Omnia Medical Center - Clinica medicala, Bucuresti | 0213230034; 0728841841 | Bd. Octavian Goga, Nr. 14, Bl. M61, Parter, Sector 3, Bucuresti |
| 25. | Policlinica Baba Novac | 0770218336; 0748175572 | Str. Baba Novac, nr. 2, sector 3 |
| 26. | Centrul de Diagnostic romano-german Medinst | 0319902 | Str.Sfanta Vineri, nr. 29, sector 3, |
| 27. | Centrul Medical Amicus Med | Tel. 0766424841; Tel/Fax 0212508585 | Sos. Iancului nr. 17, bl. 106C, sc. 1, ap. 4, sector 2, |
| 28. | Centrul Medical Rom Med 2000 | 0726366370; 0213270441; Tel/Fax 0213206087 | Intr. Baba Novac, nr. 4 A, Sector 3, |
| 29. | Centrul Medical Hiperdia-Bucuresti | 0219338; Fax 0212507320 | Str.Ritmului, nr. 24, sector 2, Bucuresti |
| 30. | Emergency Medical Care - Servicii medicale de urgenta la domiciliu Bucuresti & Ilfov | 0799058058; 0732528136; 0314250213 | Calea Vitan, Nr. 109B-109D, Sector 3, Bucuresti |
| 31. | Medisan Family Clinic - Clinica medicala Bucuresti | 0217955980 | Str. Dr. Calin Ottoi, nr. 20-22, sector 2 |
| 32. | Optim Sano - Centrul Medical Dr. Ion Socoteanu-Bucuresti | 0728955844 | Str. Salcamilor, Nr. 6A, sector 2, |
| 33. | Clinica Memento Med-Bucuresti | 0213260081 | Str. Brailita, nr. 1, sector 3, |
| 34. | Spitalul Clinic Coltea | Tel. 0213874100; Fax 0213874101 | Bd. I.C. Bratianu, nr. 1, sector 3, |
| 35. | Euromedics Stem Life | 0800.800.855 (Apel gratuit); 021 311 55 92 | Str. Lipscani, Nr. 90A, et. 3, Sector 3 , |
| 36. | Institutul National de Diabet, Nutritie si Boli Metabolice \"Prof. Dr. N. Paulescu\" | Tel. 0212108499 (centrala); 0212106460 (secretariat); Fax 0212109092 | Str. Ion Movila, nr. 5-7, sector 2 , |
| 37. | POLICLINICA CU PLATA NR. 1 | Tel. 021.314.81.15; Fax 021.314.81.14 | Str. Bati?tei nr. 27, sector 2, |
| 38. | Spitalul Clinic Coltea | Tel. 0213874100; Fax 0213874101 | Bd. I.C. Bratianu, nr. 1, sector 3, |
| 39. | Centrul Medical Dr. Stoia Ion- Bucuresti | 0212116848 int.219; 0213175025 | Str. Thomas Masaryk , nr. 5, sector 2 , |
| 40. | Spitalul Clinic Dr. I. Cantacuzino | Tel. 0212107100; 0212108499 (diabetologie) | Str. Ioan Movila, nr. 5-7, sector 2, Bucuresti |
| 41. | Institutul National de Diabet, Nutritie si Boli Metabolice \"Prof. Dr. N. Paulescu\" | 0212106460 (secretariat); 0212109092 | Str. Ion Movila, nr.5-7, sector 2, |
| 42. | Spitalul Clinic Dr. I. Cantacuzino-Bucuresti | Tel.0212107100; Fax.0212106435 | Str. Ion Movila nr. 5-7, sector 2 , |
| 43. | Institutul National de Medicina Sportiva | 0213184704 ; 0213184705 ; 0213184706 | Bd. Basarabia, nr. 37-39, sector 2, Bucuresti |
| 44. | CENTRUL MEDICAL BATISTEI | 021.313.34.80; 021.313.14.55; 021.315.46.05 | Str. Tudor Arghezi nr. 28, sector 2 , |
| 45. | Centrul Medical Romedical Int | Tel. 0212100381; 0723288108 | Str. Fainari nr. 35, sector 2, |
| 46. | Centrul Medical Proctoline-Bucuresti | 0213017686- programari | Bd. Dimitrie Cantemir , nr. 1, bl. B2, sc. 3, et. 2, sector 4, |
| 47. | Centrul Medical Psoremiss-Bucuresti | 0213017696 | Bd. Dimitrie Cantemir, nr. 1, bl. B2, sc. 3, et. 2, sector 4, |
| 48. | Centrul Medical Focus | Tel. 0317111515; 0733072910 | Bd. Ferdinand nr. 141, sector 2, |
| 49. | Institutul National de Recuperare, Medicina Fizica si Balneologie | Tel.0311302300 | Str. Sf. Dumitru, nr. 2 - ambulatoriu de recuperare clinica I si II, sector 3, |
| 50. | Clinica Nova ORL - Dr. Voda Ioana Alexandra-Bucuresti | 0213254422; 0799848484 | Str. Pictor Gh. Tattarascu , nr. 2, subsol Policlinica Globului, in spatele cinematografului Gloria, Baba Novac, sector 3, |
| 51. | Clinica Medicala On | .0213017676 | Bd. Dimitrie Cantemir nr. 1, bl. B2, sc. 3, et. 2, sector 4, |
| 52. | Podologica - Salon tratament pentru afectiunile picioarelor sector 4 | 0771458874 | Bd. Dimitrie Cantemir, nr. 15, bl.9, sc.6, sector 4, |
| 53. | Policlinica Eforie-Bucuresti | Tel. 0213139922 | Str. Eforie, nr. 4, sector 5, |
| 54. | POLICLINICA MASINA DE PAINE | Tel.021. 242.07.82 ; 021.242.00.96 (oftalmologie); 021.242.67.04 (neuropsihiatrie) | Str. Masina de Paine nr. 47, sector 2 , |
| 55. | Clinica Medicala Sfantul Spiridon Vechi-Bucuresti | 0213351378; 0213351379; 0787820066 | Piata Natiunilor Unite, nr 5-7, sector 4, Bucuresti |
| 56. | Clinica Life-Med-Bucuresti | 0319981 | Str. Plugarilor , nr. 18,sector 4, |
| 57. | Ambulatoriul Spitalului Clinic Colentina | 0213167320 ; 0213173245 / interior 5732; Fax: 0213161952 | Sos.Stefan cel Mare, nr. 19-21, sector 2, Bucuresti |
| 58. | Spitalul Clinic Colentina + Ambulatoriu | 0213167320; 0213173245 ; Fax: 0213161952 | Sos. Stefan cel Mare, nr. 19-21, sector 2 , |
| 59. | Spitalul Clinic Colentina + Ambulatoriu | Tel. 0213167320; 0213173245; 0213165895 | Sos. Stefan cel Mare, nr. 19-21, sector 2, |
| 60. | Spitalul de Urgente Oftalmologice + Ambulatoriu | 0213192751; 0213192752 | P-ta Lahovari nr. 1, sector 1, |
| 61. | Spitalul Clinic Judetean de Urgenta Ilfov | Tel.0213243312; 0213241161; Fax 0213243296 | Bd. Basarabia nr. 49-51, sector 2, |
| 62. | Spitalul Clinic Judetean de Urgenta Ilfov + ambulatoriu-Bucuresti | Tel.021.3243312; 0213241161; Fax .0213243296 | Bd. Basarabia nr. 49-51, sector 2 , |
| 63. | Spitalul de Urgente Oftalmologice + Ambulatoriu | 0213192751; 0213192753 | P-ta Lahovari, nr. 1, sector 1, |
| 64. | Bioderm Medical Cente- Bucuresti | Tel. 0722338383 | Str. Mihai Eminescu, nr. 42, sector 1, |
| 65. | Policlinica Regina Maria - Enescu | 0219268 | Str. George Enescu, nr.12, sector 1, |
| 66. | Institutul National de Boli Infectioase Prof. Dr. Matei Bals | Tel.0212010980; 0213186091 | Str. Dr. Calistrat Grozovici, nr. 1, sector 2, |
| 67. | Centru Medical Stb-Bucuresti | 0213183430 (centrala); | Str. Dr. Grozovici, nr. 6, sector 2 , |
| 68. | Hipocrat 2000-clinica medicala-Bucuresti | 0219605 | Bd. Chisinau, nr. 16, sector 2, |
| 69. | Institutul National de Boli Infectioase Prof. Dr. Matei Bals | 0212010980 (centrala); 0213186090 | Str. Dr. Grozovici, Nr. 1, sector 2, |
| 70. | SPITALUL SF. STEFAN + ambulatoriu | 021.210.39.36 | Sos. Stefan cel Mare nr. 11, sector 2, |
| 71. | SPITALUL SF. STEFAN + ambulatoriu | 0212103936 | Sos. Stefan cel Mare, nr. 11, sector 2, |
| 72. | RomGerMed - Clinica Medicala Bucuresti | Tel. 0213110075; 0725302475 | Calea Plevnei, nr. 137C, sector 6, |
| 73. | Dr. V. Gomoiu, Centrul Medical Bucuresti | 0314136700; 0314136701 | Bd. Basarabia nr. 21, sector 2, |
| 74. | Clinica Medicala Medlife-Bucuresti | 0219646; 0742299843 | Str.Liviu Rebreanu, nr. 8,sector 3, |
| 75. | Spitalul de Urgenta Floreasca | Tel. 0215992300; 0215992308; Fax.0215992257 | Calea Floreasca nr. 8, sector 1, |
| 76. | Spitalul de Urgenta Floreasca + ambulatoriu-Bucuresti | Tel.021.5992300; Fax.021.5992257 | Calea Floreasca, nr. 8, sector 1, |
| 77. | Centrul Medical Bio Terra Med- Bucuresti | 0726243473; 0724262110; 0774022961 | Calea Grivitei, nr. 3, Sector 1, |
| 78. | Euroclinic | 0219268; 0219208 | Calea Floreasca, 14 A, Sector 1, Bucuresti |
| 79. | Ambulatoriul Spitalului Euroclinic | 0219208; Call Center:0219268 | Calea Floreasca, nr. 14A, sector 1, Bucuresti |
| 80. | Spitalul Euroclinic + ambulatoriu | 0219208 | Calea Floreasca, nr. 14 A, sector 1, Bucuresti |
| 81. | Spitalul Clinic de Nefrologie - Dr. Carol Davila | Tel. 0213189184 (centrala) | Calea Grivitei, nr. 4, sector 1, |
| 82. | Spitalul Clinic de Chirurgie Oro-Maxilo-Faciala -Bucuresti | Tel/Fax. 0213158855; 0213155217 | Calea Plevnei, nr. 17-21, sector 1 , |
| 83. | Spitalul Clinic de Chirurgie Oro-Maxilo-Faciala \"Prof. Dr. Dan Theodorescu\" | Tel/Fax. 0213158855; 0213155217 | Calea Plevnei, nr. 17-21, sector 1, |
| 84. | Alfred Rusescu, Institutul pentru ocrotirea mamei si copilului (I.O.M.C.) Bucuresti | Tel.0219365 | Bd. Lacul Tei, nr. 120, sector 2 , |
| 85. | Clinica Medicala Blaj Stefan-Bucuresti | 0742010636 | Str.Ciprian Porumbescu, nr. 12, sector 1, |
| 86. | Clinica Medicala Data Plus-Bucuresti | 0213131491 | Str.Cobalcescu Grigore, nr. 35,sector 1, |
| 87. | Institutul national pentru sanatatea mamei si copilului Alfred Rusescu | Tel.0219365 | Bd. Lacul Tei, nr. 120, sector 2, |
| 88. | Spitalul Clinic de Urgenta pentru Copii \"Grigore Alexandrescu\" | 0213169366:Centrala telefonica; 0213110994:Unitatea Primiri Urgente | Bd.Iancu de Hunedoara, nr. 30-32, sector 1, Bucuresti |
| 89. | Spitalul Clinic de Urgenta pentru Copii \"Grigore Alexandrescu\" | Tel. 0213169366; 0213169366 int. 133/155; UPU.0213110994 | Bd. Iancu de Hunedoara, nr. 30-32, sector 1 , |
| 90. | Societatea Civila Medicala Doctor Popescu Daniel si Asociatii | Tel/Fax 021.336.55.03 | Calea Serban Voda, nr. 211, sector 4 , |
| 91. | Policlinica Titan | 0213400335; Fax 0213400745 | Bd. Nicolae Grigorescu, nr. 41, sector 3, |
| 92. | Spitalul Clinic de Urgenta pentru Copii \"Grigore Alexandrescu\" | 0213169366:Centrala telefonica; 0213110994 :Unitatea Primiri Urgente | Bd. Iancu de Hunedoara, nr. 30-32, sector 1, Bucuresti |
| 93. | Rytmomed - Clinica medicala Bucuresti | 0737181511 | Str. Popa Tatu, nr. 35, Sector 1 |
| 94. | Centrul Medical Prain | 0212113430; 0212108476; 0723237430 | Calea Dorobantilor, nr. 32A,7,ET 1, |
| 95. | LookClinic, Bucuresti - Centre de diagnosticare,preventie si implant de par | 0213203477 | Calea Dorobantilor, nr.188-190, sector 1, |
| 96. | Policlinica Regina Maria Sun Plaza | 0219268 | Calea Vacaresti, nr.391, sector 4, mall Sun Plaza, etaj 2, intrarea prin mall, |
| 97. | Cord Blood Center-Bucuresti | 0739853208 | Str. Ramuri Tei, nr. 20, sector 2, |
| 98. | Clinica Medicala Elite-Bucuresti | Tel. 0720260024; 0212339776 | Str. Tudor Stefan, nr. 42-44, sector 1, |
| 99. | Centrul Medical de Diagnostic, Tratament Ambulator si Medicina Preventiva | 0212300402; 0212302980; 0212305923 | Str. Washington, nr. 8-10, sector 1, |
| 100. | PriMed - Clinica Medicala Bucuresti | 0219986; 0720034774 | Bd. Dinicu Golescu, nr.10, sector 1 |
| 101. | Policlinica pentru copii Regina Maria - Opera | 0219268 | Str. Costache Negri, nr. 1-5, sector 5, |
| 102. | Ambulatoriul spitalului Sf. Pantelimon | 0212554090; Fax 0212554025 | Sos. Pantelimon nr. 340-342, sector 2, |
| 103. | Spitalul de Urgenta Sf. Pantelimon + ambulatoriu | 0212554090; 0212554025 | Sos. Pantelimon nr. 340-342, sector 2, |
| 104. | Spitalul de Urgenta Sf. Pantelimon + ambulatoriu | 0212554090; Fax .0212554099 | Sos. Pantelimon nr. 340-342, sector 2, |
| 105. | Clinica Regina Maria - Perla-Bucuresti | 0219268 | Calea Dorobanti, nr. 126-130, sector 1, |
| 106. | Imuno Medica - Centrul de preventie, diagnostic si tratament Sf. Ioan Botezatorul | 0314050350; 0771771333 | Str. Virgiliu nr. 81, sector 1 |
| 107. | Centrul Medical Sanador-Bucuresti | Tel. 0219699 | |
| 108. | Centrul Medical Sana-Bucuresti | 0212128222 | Str. Dr. Sergiu Dumitru, nr. 3, sector 1, |
| 109. | Pandora Medical Center - Bucuresti | 0213413098; 0732263626 | Aleea Calistrat Hogas, Nr. 45B, sector 3 |
| 110. | Clinica Psiho-Armonie-Bucuresti | 0730028680; 0311063523 | Str. N. Constantinescu, nr. 11, bl.11, sc.1, parter, ap.2, interfon 02,sector 1, |
| 111. | Centrul Medical Cutera Medical Center-Bucuresti | Tel. 0746141620 | Str. Giacomo Puccini , nr. 8 A, sector 1, |
| 112. | Clinica Medicala Alco San | 021.211.41.12; 0755.050.055; Fax 021.211.41.13 | Str. Barbu Vacarescu, nr. 67, sector 2, |
| 113. | RomGerMed - Clinica Medicala Bucuresti | Tel. 0213110075; 0727999602 | Calea Plevnei, 137 C, sector 6, |
| 114. | Ambulatoriul Spitalului Universitar de Urgenta | Tel. 0213180519/29; 0212026147 | Splaiul Independentei, nr. 169, sector 5 , |
| 115. | Spitalul Clinic Nicolae Malaxa + Ambulatoriu | 0212555405; Fax: 0212555275 | Sos. Vergului, Nr. 12, Sector 2 , Bucuresti |
| 116. | Cabinet Medical dr. Jovin | Tel. 0746418043; Tel/Fax 0212312116 | Str. Wolfgang Amadeus Mozart nr. 31, sector 2, |
| 117. | Institutul Clinic Fundeni | Tel. 0212750500; Fax.0212750700 | Sos.Fundeni, nr. 258, sector 2, Bucuresti |
| 118. | Spitalul Euroclinic | Tel. 0219268; 0219208 | Calea Floreasca nr. 14 A, sector 1, |
| 119. | Marius Nasta, Institutul de Pneumoftiziologie + Ambulatoriu Bucuresti | 0213356910; 0213373801 | Sos.Viilor nr. 90, sector 5 , |
| 120. | Institutul National de Endocrinologie C. I. Parhon | Tel. 0213172041; 0213172042; Fax 0213170607 | Bd. Aviatorilor nr. 34-36, sector 1 , |
| 121. | Marius Nasta, Institutul de Pneumoftiziologie Bucuresti | 0213356910; Fax 0213373801 | Sos.Viilor , nr. 90, sector 5 , |
| 122. | Institutul Clinic Fundeni | 0212750500; Fax.0213180444; 0212750700 | Sos.Fundeni, nr. 258, sector 2, |
| 123. | Centrul Medical Apolo- Bucuresti | Tel. 0214101770; 0214101615; 0744377034 | Str. Coriolan Caius Marcius, nr. 41 (lang? benzinaria MOL Tudor Vladimirescu), sector 5, |
| 124. | Spitalul Clinic \"Prof. Dr. Theodor Burghele\" + Ambulatoriu | Tel. 0214106910; Fax 0214111055 | Sos. Panduri nr. 20, sector 5, |
| 125. | Spitalul Clinic Nicolae Malaxa + Ambulatoriu | Tel. 0212555405; Fax 0212555275 | Sos. Vergului, nr. 12, sector 2, |
| 126. | Spitalul Universitar de Urgenta Bucuresti - SUUB | Tel. 0213180519; Fax 0213180554 | Splaiul Independentei, nr. 169, sector 5 , |
| 127. | Spitalul Universitar de Urgenta Bucuresti - SUUB | Tel. 0213180519; 0213180554 | Splaiul Independentei nr. 169, sector 5, |
| 128. | Dr. Carol Davila, Spitalul Universitar de Urgenta Militar Central Bucuresti + ambulatoriu | Tel. 0213193052/60; 0213193030 | Str. Calea Plevnei , nr. 134, sector 1, |
| 129. | Institutul National de Endocrinologie C. I. Parhon | Tel. 0213172041; 0213172042; Fax 0213170607 | Bd. Aviatorilor, nr. 34-36, sector 1 , |
| 130. | Spitalul Clinic de Nefrologie - Dr. Carol Davila | Tel. 0213189184 (centrala); Fax 0213189184 | Calea Grivitei nr. 4, sector 1, |
| 131. | Centru Medical Mediclass - Cotroceni | 0214102727; 0214120128; 0214120129 | Str. Elefterie, nr. 47-49 (Complex Comercial Cotroceni), sector 5, |
| 132. | Centrul de Transfuzie Sanguina Bucuresti | Tel. 0314053660; 0314053661; 0314053662 | Str. Constantin Caracas nr. 2-8, sector 1, |
| 133. | Spitalul Universitar de Urgenta Militar Central Dr. Carol Davila | Tel. 0213193052/60; Fax.0213193030 | Str. Calea Plevnei, nr. 134, sector 1, Bucuresti |
| 134. | Centrul Medical M Hospital-Bucuresti | 0219136; 0744812330; 0213162049 | Str.Witting, nr. 10-12, sector 1, Bucurestu |
| 135. | Spitalul Clinic \"Prof. Dr. Theodor Burghele\" + Ambulatoriu | Tel.0214106910; Fax.0214111055 | Sos. Panduri, nr. 20, sector 5, |
| 136. | Cabinet Medical Alfa | Tel.0319495 | Sos. Oltenitei, nr. 220, bl. 8, sc. 2, ap. 58, sector 4, |
| 137. | Centrul Medical M Hospital-Bucuresti | Tel.0219136 | Str. Witing, nr. 10-12, sector 1 , |
| 138. | Spitalul Clinic CF Witting + ambulatoriu | Tel. 0213129530; 0213129531; 0213176280 | Calea Plevnei nr. 142-144, sector 6, |
| 139. | Institutul National pentru medicina complementara si alternativa | Tel.0783002934; 0214102419 | Sos. Panduri , nr. 22, sector 5, |
| 140. | Spitalul Clinic Sfanta Maria + ambulatoriu-Bucuresti | Tel. 0212223550; 0212223553 | Bd. Ion Mihalache nr. 37-39, sector 1, |
| 141. | Centrul Medical Panduri-Bucuresti | 0731806118; 0219901 | Str. Dr. Ioan Atanasiu, nr. 34, sector 5, |
| 142. | Centrul Medical Ioana-Bucuresti | 0212233810; 0786486156 | Str. Alexandru Ioan Cuza, nr. 81,, et. 1,sector 1, Bucuresti |
| 143. | Ioana Medical Center | 0212233810; 0786486156 | Bd. Alexandru Ioan Cuza, nr 81, et 1, sector 1 |
| 144. | Medicine Park International by Tuncay Öztürk - Centru de kinetoterapie si recuperare | 0727464464 | Str. Grigore Mora, nr. 19, Sector 1 |
| 145. | Spitalul Clinic Sfanta Maria + ambulatoriu | Tel. 0212223553; 0212223550 | Bd. Ion Mihalache, nr. 37-39, sector 1, |
| 146. | Prof.Dr. Agrippa Ionescu, Spitalul Clinic de Urgenta Bucuresti | 0377720000; Fax 0377726169 | Str. Arh. Ion Mincu , nr. 7, sector 1, |
| 147. | Clinica de Excelenta in Patologia Somnului Somnolog-Bucuresti | 0213118822; 0784442277 | Str.Dr.Leonte Anastasievici, nr.11, sector 5, |
| 148. | Scanmed - Clinica Medicala Bucuresti | 0219215; 0317100141; 0729202202 | Sos. Panduri, nr. 71, Parter, Sector 5 |
| 149. | Spitalul Clinic de Urgenta \"Sf. Ioan\" Bucuresti | Tel. 0213345190; 0213345170; Fax 0213345970 | Sos. Vitan Barzesti, nr.13, sector 4, |
| 150. | Policlinica Regina Maria - Cotroceni | 0219268 | Sos. Cotroceni, nr. 20, sector 6, |
| 151. | Centrul Medical Focus | 0753035038 | Str. Dinicu Golescu, nr. 23-25 , sector 1, |
| 152. | Clinica Medicala Provita Diagnostic si Tratament-Bucuresti | Tel. 0219432 | Str.Alexandrina, nr. 20 , sector 1, |
| 153. | Spitalul Clinic de Urgenta pentru Copii - M.S. Curie (Budimex) + ambulatoriu | 0214603026; 0214601035 (Primiri Urgente); 0214604260 (Ambulatoriul) | Bd. Constantin Brancoveanu, Nr. 20, Sector 4, Bucuresti |
| 154. | Spitalul Clinic de Urgenta \"Sf. Ioan\" Bucuresti | Tel. 0213345190; 0213345170; Tel/Fax 0213345970 | Sos. Vitan-Barzesti nr. 13, sector 4, |
| 155. | Spitalul Clinic de Urgenta Sfantul Ioan Bucuresti | Tel. 0213345190; 0213345170 | Sos. Vitan Barzesti, nr. 13, sector 4, Bucuresti |
| 156. | Centrul Medical Hiperdia | 0213021160; Tel/Fax: 0213340030 | Sos. Berceni, Nr. 10-12, sector 4 (incinta Spitalului de Urgenta Bagdasar Arseni), Bucuresti |
| vezi mai multe | |||
| 1. | Anastasia Popescu, Liceu Pedagogic Ortodox - Bucuresti | 0212524665; 0725519386; 0722805777 | Popa Nan, 47 B, Sector 2, Bucuresti |
| 2. | Mirunette Education, Consiliere si Programe Educationale - Bucuresti | 0212101602 | Valeriu Braniste, Nr. 37-39, Etaj 1, Ap. 3, Cam. 3, Sector 3, Bucuresti |
| 3. | Sweet Babies - Cresa, gradinita, after school, Bucuresti | 0785810011 | Strada Teleajen, 26B, sector 2 |
| 4. | Pick Me Academy - Scoala Primara Bucuresti | 0726000640; 0722391000 | Strada Agricultori, Nr. 79, Sector 2, Scoala Primara |
| 5. | Montessano - Scoala primara si gradinita, Bucuresti | 0724924070; 0724919711 | Str. Labirint, nr. 97-99, sector 3 |
| 6. | Victoria, Liceu Teoretic - Bucuresti | 0314250543; 0759478014 | Str. Turturelelor, nr. 11A, sector 3, Bucuresti |
| 7. | Serban, Scoala de Meserii - Bucuresti | 0722302252; 0212520382 | Intrarea Baritonului, Nr. 9 (prin Str. Matei Voievod Nr. 81-83), Sector 2, Bucuresti |
| 8. | Mihai Viteazu, Colegiul National - Bucuresti | 0212525700; 0212525871 | Bd. Pache Protopopescu, Nr. 62, Sector 2, Bucuresti |
| 9. | A.D. Xenopol, Colegiul Economic - Bucuresti | 0213205719 | Str. Traian, Nr. 165, Sector 2, Bucuresti |
| 10. | Scoala Gimnaziala Iancului Nr. 52 | 0212522260 | Bd. Pache Protopopescu, Nr. 50, Sector 2, Bucuresti |
| 11. | Carol Davila, Scoala Sanitara Postliceala - Bucuresti | 0216107068 | Str. Agricultori, nr. 35, 37-39 (cladirea Codecs), sector 2, |
| 12. | International British School - Bucuresti | 0212531698; 0745340841 | Str. Agricultori, Nr. 21-25, Sector 2, Bucuresti |
| 13. | Scoala Gimnaziala Nr. 85 | 0212524520 | Str. Dr. Constantin Zlatescu, Nr. 7A, sector 2, Bucuresti |
| 14. | Emil Racovita, Colegiul National - Bucuresti | 0213217092; Fax 0213217092 | Sos. Mihai Bravu , nr. 169, sector 2, |
| 15. | George Cosbuc, Colegiul National Bilingv - Bucuresti | 0212528080 | Str. Olari, Nr. 29-31, Sector 2, Bucuresti |
| 16. | Scoala Gimnaziala Nr. 56 - Bucuresti | 0212524125; 0733087815 | Bd. Pache Protopopescu, Nr. 109A, Sector 2, Bucuresti |
| 17. | Cezar Bolliac, Scoala Gimnaziala Nr. 70 - Bucuresti | 0314040172 | Intr. Tiglina, Nr. 37, Sector 3, Bucuresti |
| 18. | Matei Basarab, Colegiul National - Bucuresti | 0213216640 | Str. Matei Basarab, Nr. 32, Sector 3, Bucuresti |
| 19. | Mihai Ionescu, Gradinita, Gimnaziu si Liceu - Bucuresti | 0213235495; 0314054929 | Cauzasi, Nr. 43, Sector 3 , Bucuresti |
| 20. | Mihai Ionescu, Scoala Primara, Gimnaziu, Liceu - Bucuresti | 0213235495 | Str. Cauzasi, Nr. 43, Sector 3, Bucuresti |
| 21. | Liceul Teoretic Hyperion - Bucuresti | 0311032803 | Sos. Mihai Bravu, nr. 288C, sector 2 |
| 22. | Hermes, Colegiul Economic - Bucuresti | 0213147645 | Calea Mosilor, Nr. 152, Sector 2, Bucuresti |
| 23. | Ady Endre, Liceu Teoretic - Bucuresti | 0212520192 | Bd. Ferdinand I, Nr. 89, Sector 2, Bucuresti |
| 24. | Barbu Delavrancea, Scoala Gimnaziala Nr.73 - Bucuresti | 0213237390 | Str. Matei Basarab, Nr. 28-30, Sector 3, Bucuresti |
| 25. | Scoala Gimnaziala Nr. 71 - Bucuresti | 0213141395; 0213141391 | Calea Mosilor, Nr. 148, Sector 2, Bucuresti |
| 26. | Iulia Hasdeu, Colegiu National - Bucuresti | 0212524508 | Bd. Ferdinand, Nr. 91, Sector 2, Bucuresti |
| 27. | Laude-Reut, Complex Educational Bucuresti | 0314382046; 0318055772 | Str. Clucerul Udricani, Nr. 12, Sector 3, Bucuresti |
| 28. | Kretzulescu Nicolae, Scoala Superioara Comerciala - Bucuresti | 0213139082 | Bd. Hriso Botev, Nr. 17, Sector 3, Bucuresti |
| 29. | Sfantul Silvestru, Scoala Gimnaziala Nr. 23 - Bucuresti | 0212102045 | Str. Oltarului, Nr. 11, Sector 2, Bucuresti |
| 30. | Scoala Gimnaziala de Arte nr. 2 - Bucuresti | 0212525703 | Bd. Ferdinand I, Nr. 128, Sectorul 2 |
| 31. | Maica Domnului, Scoala Gimnaziala Nr. 50 - Bucuresti | 0212520310 | Str. Ion Maiorescu, Nr. 32, Sector 2, Bucuresti |
| 32. | Mihail Sadoveanu, Liceu teoretic - Bucuresti | 0212527856 | Str. Popa Lazar, Nr. 8A, Sector 2, Bucuresti |
| 33. | Scoala Gimnaziala Nr. 80 - Bucuresti | 0213214256 | Calea Dudesti, Nr. 191, Sector 3, Bucuresti |
| 34. | Ion I.C. Bratianu, Liceu Tehnologic - Bucuresti | 0310699448 | Str. Popa Lazar, Nr. 8A, Sector 2, Bucuresti |
| 35. | Spiru Haret, Colegiu National - Bucuresti | 0213136462 | Str. Italiana, Nr. 17, Sector 2, Bucuresti |
| 36. | Kids Kingdom - Before & After School Bucuresti | 0799199627 | Intrarea Traian Demetrescu, Nr. 8, sector 3 |
| 37. | Montessori - Scoala si gradinita, Bucuresti | 0754054402 | Str. Maior Ion Coravu, Nr. 53, Sector 2 |
| 38. | Colegiul Tehnic Mihai Bravu - Bucuresti | 0213217699 | Sos. Mihai Bravu, Nr. 428, Sector 3 |
| 39. | Scoala Gimnaziala Nr. 81 - Bucuresti | 0213263220 | Str. Nerva Traian, Nr. 33, Sector 3, Bucuresti |
| 40. | Scoala Gimnaziala Nr. 49 - Bucuresti | 0212502444 | Str. Vatra Luminoasa, Nr. 99, Sector 2, Bucuresti |
| 41. | Leonardo Da Vinci, Scoala Gimnaziala Nr.75 - Bucuresti | 0213248676 | Str. Pictor Gheorghe Petrascu, Nr. 55, Sector 3, Bucuresti |
| 42. | Cantemir Voda, Colegiul National - Bucuresti | 0212106935 | Str. Viitorului, Nr. 60, Sector 2, Bucuresti |
| 43. | Monterra - Scoala primara Bucuresti | 0743119481 | Str. Vasile Lascar, nr. 87, sector 2 |
| 44. | Seminarul Teologic Ortodox Bucuresti | 0213305754; 0731205629; 0213305754 | Str. Radu Voda, Nr. 24 A, Sector 4, Bucuresti |
| 45. | Liceul Tehnologic Nikola Tesla - Bucuresti | 0212527886 | Sos. Pantelimon, Nr. 25, sector 2 |
| 46. | Scoala Gimnaziala Nr. 46 - Bucuresti | 0212502527 | Str. Stanescu Gheorghe, Nr. 2-18, sector 2 |
| 47. | Ion Creanga Colegiu National - Bucuresti | 0213362695 | Str. Cuza Voda, Nr. 51, sector 4, Bucuresti |
| 48. | Scoala Gimnaziala Nr. 307 - Bucuresti | 0212100012 | Str. Luncsoara, Nr. 3, Sector 2, Bucuresti |
| 49. | Scoala Gimnaziala Nr. 79 - Bucuresti | 0314257884 | Str. Cuza Voda, Nr. 51, Sector 4, Bucuresti |
| 50. | Scoala Gimnaziala Nr. 95 - Bucuresti | 0770503408; 0213235185 | Str. Foisorului, Nr. 111-113, Sector 3, Bucuresti |
| 51. | Tudor Arghezi, Scoala Gimnaziala Nr. 19 - Bucuresti | 0213169187 | Str. Tudor Arghezi, Nr. 46-50, Sector 2, Bucuresti |
| 52. | Scoala Generala nr. 84 Nicolae Balcescu - Bucuresti | 0213216391 | Calea Vitan, Nr. 135, sector 3 |
| 53. | Cuib - After school, Bucuresti | 0751088396 | Str. Fainari, Nr. 45A, sector 2 |
| 54. | Colegiul National - Scoala Centrala - Bucuresti | 0212118484; 0787288528 | Str. Icoanei, Nr. 3-5, Sector 2, Bucuresti |
| 55. | Scoala Gimnaziala Nr. 64 Ferdinand I - Bucuresti | 0213351410 | Bd. Garii Obor, Nr. 16, Sector 2 |
| 56. | Liceul tehnologic special Regina Elisabeta - Bucuresti | 0212506220 | Str. Vatra Luminoasa, Nr. 108, sector 2 |
| 57. | Scoala Gimnaziala Nr. 86 - Bucuresti | 0314250608 | Intr. Reconstructiei, Nr. 6A, Sector 3, Bucuresti |
| 58. | Magia Copilariei - After-school Bucuresti | 0761912892 | Strada Nucului, Nr. 55, Sector 3 |
| 59. | Benjamin Franklin, Liceu teoretic - Bucuresti | 0213244890; 0213243010 | Str. Pictor Gh. Tattarescu, Nr. 1, sector 3, Bucuresti |
| 60. | Scoala de Arta Bucuresti | 0213306700 | Str. Cuza Voda, nr. 100, |
| 61. | Scoala Gimnaziala Ienachita Vacarescu, Bucuresti | 0213355705 | Calea Serban Voda, Nr. 62-64, sector 4, Bucuresti |
| 62. | Penticostal Emanuel, Liceul Teologic - Bucuresti | 0213311669 | Str. Cuza Voda, Nr. 116, Sector 4, Bucuresti |
| 63. | Dimitrie Leonida, Colegiul Tehnic - Bucuresti | 0213243294; 0213243295; 0213243293; 0213246902 | Bd. Basarabia, Nr. 47, Sector 2, Bucuresti |
| 64. | Colegiul Tehnic Petru Rares - Bucuresti | 0213304001 | Str. V. V. Stanciu, nr. 6, sector 4 |
| 65. | Mihai Eminescu, Colegiul National - Bucuresti | 0213304001 | Str. V.V. Stanciu, Nr. 6 , Sector 4, Bucuresti |
| 66. | AWEsome Primary School - Scoala clasele primare Bucuresti | 0750460737 | Str. Ienachita Vacarescu, nr. 22B, sector 4 |
| 67. | Liceul Tehnologic Sfantul Pantelimon - Bucuresti | 0212559943 | Str. Hambarului, Nr. 12A, sector 2 |
| 68. | Scoala Gimnaziala Nr. 4 - Bucuresti | 0212556425 | Str. Herta, Nr. 14 A, Sector 2, Bucuresti |
| 69. | Scoala Gimnaziala Nr. 97 - Bucuresti | 0213302545 | Str. Viorele, Nr. 7, Sector 4, Bucuresti |
| 70. | Ghelmez Petre, Scoala gimnaziala Nr. 58 - Bucuresti | 0213245135 | Str. Pescarusului, Nr. 124, Sector 2, Bucuresti |
| 71. | Virgil Madgearu, Colegiul Economic - Bucuresti | 0212117256 | Bd. Dacia, Nr. 34, Sector 1, Bucuresti |
| 72. | Scoala Gimnaziala Nr. 24 - Bucuresti | 0212107185 | Str. Tunari, Nr. 52, Sector 2, Bucuresti |
| 73. | Scoala Gimnaziala Nr. 88 - Bucuresti | 0213480445 | Str. Odobesti, Nr. 3, Sector 3, |
| 74. | Scoala Gimnaziala Nr. 51 - Bucuresti | 0212554060 | Str. Herta, Nr. 1, Sector 2, Bucuresti |
| 75. | Mihai Botez, Scoala Gimnaziala Nr. 87 - Bucuresti | 0213462361 | Str. Ramnicu Valcea, Nr. 32, Sector 3, Bucuresti |
| 76. | Colegiul National de Arte Dinu Lipatti - Bucuresti | 0213363588 | Str. Principatele Unite, Nr. 63, Sector 4, Bucuresti |
| 77. | FEG, Scoala Postliceala in domeniului medical - Bucuresti | 0213111054; 0314050362; 0788424314 | Walter Maracineanu, Nr. 1-3, Intrarea 2, Etaj. 2,, Bucuresti |
| 78. | Scoala Gimnaziala Nr. 27 Principesa Ileana - Bucuresti | 0212421645 | Str. Masina de Paine, nr. 65, sector 2 |
| 79. | Scoala Gimnaziala Nr. 25 - Bucuresti | 0212422695 | Str. Silvia, Nr. 54 Sector 2 |
| 80. | Floria Capsali, Liceul de Coregrafie - Bucuresti | 0213363792 | Str. Capitan Preotescu, Nr. 9, Sector 4, Bucuresti |
| 81. | About Scoala Metropolitana A.R.C | 0314254343; 0722522198 | Str. Esarfei, nr. 63-71, sector 3, |
| 82. | Scoala Gimnaziala Nr. 28 - Bucuresti | 0212105910 | Aleea Circului, Nr. 1, sector 2 |
| 83. | Gheorghe Sincai, Colegiul National - Bucuresti | 0213369004; 0213361455 | Calea Serban Voda, Nr. 167, Sector 4, Bucuresti |
| 84. | Anghel Saligny, Colegiu Tehnic - Bucuresti | 0213402654 | Bd. Nicolae Grigorescu, Nr. 12, Sector 3, Bucuresti |
| 85. | Kidos - Before & after school, Bucuresti | 0770775730 | Bulevardul Nicolae Grigorescu, nr. 2 D, sector 3 |
| 86. | Scoala Gimnaziala nr. 5 - Bucuresti | 0213169918 | Calea Victoriei, Nr. 114, Sector 1, Bucuresti |
| 87. | Alexandru Ioan Cuza, Scoala Gimnaziala Nr. 199 - Bucuresti | 0213243970 | Bd. Nicolae Grigorescu, Nr. 14, Sector 3, Bucuresti |
| 88. | Waldorf, Liceul Teoretic - Bucuresti | 0212553051 | Str. Sold. Marin Savu, Nr. 29, Sector 2, Bucuresti |
| 89. | Scoala Gimnaziala Nr. 54 - Bucuresti | 0213465143; 0310699824 | Str. Istriei, Nr. 19, Sector 3 |
| 90. | Gheorghe Lazar, Colegiu National - Bucuresti | 0213134756 | Bd. Regina Elisabeta, Nr. 48, Sector 5, Bucuresti |
| 91. | Scoala Gimnaziala Nr. 145 - Bucuresti | 0212407036 | Str. Heliade Intre Vii, Nr. 36, sector 2 |
| 92. | Elena Vacarescu, Scoala Gimnaziala - Bucuresti | 0213163630 | Str. Stanislav Cihoschi, nr. 15, sector 1, Bucuresti |
| 93. | Vasile Alecsandri, Scoala Gimnaziala (fosta Nr. 118) - Bucuresti | 0213138287 | Str. Stirbei Voda, Nr. 32-34, Sector 1, Bucuresti |
| 94. | Goethe, Colegiul German - Bucuresti | 0212113425 | Str. Stanislav Cihoschi, Nr. 17, Sector 1, Bucuresti |
| 95. | Sf. Sava, Colegiul National - Bucuresti | 0213149294; 0213126821 | Str. G-ral Berthelot, Nr. 23, Sector 1, Bucuresti |
| 96. | EFI Bucarest - Scoala Franceza Internationala din Bucuresti | 0749098867 | Bulevardul Dacia, Nr. 12, Sector 1 |
| 97. | Neagoe Basarab Voievod, Scoala Gimnaziala (fosta Nr.16) - Bucuresti | 0213403313; 0374464076 | Intr. Constantin Brancusi, nr. 7, sector 3, Bucuresti |
| 98. | Hamburg, Scoala Gimnaziala Nr.195 - Bucuresti | 0318058603 | Str. Lunca Bradului, Nr. 2, sector 3, Bucuresti |
| 99. | Scoala Ioanid, Gradinita, Gimnaziu, Liceu - Bucuresti | 0758054401 | Str. Nicolae Iorga, nr. 21, Sector 1, Bucuresti |
| 100. | Dante Alighieri, Liceu teoretic - Bucuresti | 0213481950; 0213481545 | Aleea Fuiorului, Nr. 9, Sector 3, Bucuresti |
| 101. | Scoala Gimnaziala de Arte nr. 4 - Bucuresti | 0212421450 | Str. Maica Domnului, Nr. 61-63, Sector 2 |
| 102. | Scoala Gimnaziala Nr. 31 - Bucuresti | 0212421712; 0736613908 | Bd. Lacul Tei, Nr. 116, sector 2 |
| 103. | Decebal, Liceul Bilingv - Bucuresti | 0213469233 | Bd. Energeticienilor, Nr. 9-11, Sector 3, Bucuresti |
| 104. | Institutul de matematica Simion Stoilow | 0213196506; 0213117780; Fax: 0213196505 | Calea Grivitei, Nr. 21, Sector 1, Bucuresti |
| 105. | Aldo Moro, Scoala Italiana - Bucuresti | 0212104684 | Intr. Blaj, nr. 1, Sector 1, Bucuresti |
| 106. | Scoala Gimnaziala Nr. 62 - Bucuresti | 0212553635 | Str. Potarnichii, Nr. 3, Sector 2, Bucuresti |
| 107. | Happy Drive Lucky - Scoala de soferi, Bucuresti | 0755766849 | Strada Inginerilor Tei, Nr.9, sector 2 |
| 108. | Traian, Liceu Teoretic - Bucuresti | 0212106598; 0212105920 | Str. Luigi Galvani, Nr. 20, sector 2, Bucuresti |
| 109. | Miguel de Cervantes, Liceul Bilingv - Bucuresti | 0213149311 | Calea Plevnei, Nr. 38-40, Sector 1, Bucuresti |
| 110. | Nicolae Labis, Scoala Gimnaziala Nr. 89 - Bucuresti | 0213486271 | Str. Firidei, Nr. 2, Sector 3, Bucuresti |
| 111. | Grigore Ghica Voievod, Scoala Gimnaziala Nr. 30 - Bucuresti | 0212421160 | Str. Laptari Tei, Nr. 23, Sector 2, Bucuresti |
| 112. | Liceul Teoretic Nichita Stanescu - Bucuresti | 0213400440 | Str. Lucretiu Patrascanu, Nr. 12, Sector 3, Bucuresti |
| 113. | Scoala Gimnaziala Luca Bucuresti | 0721335161; 0744894206 | Str. Sfantul Petru Tei, Nr. 67 A- 71, Sector 2, Bucuresti |
| 114. | Alexandru Ioan Cuza, Liceu Teoretic - Bucuresti | 0213404811 | Aleea Barajul Dunarii, Nr. 5, sector 3, Bucuresti |
| 115. | George Enescu, Colegiu National de Muzica - Bucuresti | 0760665312; 0213108871 | Str. General Gheorghe Manu, Nr. 30, Sector 1, Bucuresti |
| 116. | Nicolae Tonitza, Liceu de Arte Plastice - Bucuresti | 0212302793 | Bd. Iancu de Hunedoara, Nr. 27, Sector 1, Bucuresti |
| 117. | Liceul Teoretic Alexandru Vlahuta Bucuresti | 0212305292 | Str. Scoala Floreasca, nr. 5, sector 1 |
| 118. | Scoala Gimnaziala Nr. 128 - Bucuresti | 0214102219 | Str. Ion Creanga, Nr. 6, Sector 5, Bucuresti |
| 119. | Scoala Gimnaziala Nr. 77 - Bucuresti | 0212553945 | Sos. Pantelimon, Nr. 289, sector 2 |
| 120. | Liviu Rebreanu, Scoala Gimnaziala - Bucuresti | 0213401845 | Aleea Barajul Rovinari, Nr. 1, Sector 3, Bucuresti |
| 121. | I.N.Socolescu, Colegiul Tehnic de Arhitectura si Lucrari Publice - Bucuresti | 0213108958 | Occidentului, Nr. 12, Sector 1, Bucuresti |
| 122. | Sfantul Ioan, Scoala Postliceala Sanitara - Bucuresti | 0724355298; 0787889809 | Str. Ilioara, nr. 16, et. 2, sector 3, Bucuresti |
| 123. | I.L. Caragiale, Colegiul National - Bucuresti | 0212301021 | Calea Dorobantilor, nr. 163, sector 1, Bucurersti |
| 124. | Federico Garcia Lorca, Scoala Gimnaziala Nr.196 | 0213403710 | Str. Cozla, nr. 2, sector 3, Bucuresti |
| 125. | Profesia, Liceu profil Economic - Bucuresti | 0213486638; 0787889809 | Ilioara , Nr. 16 (in cladirea Scolii de Soferi), et. 2, sector 3 , Bucuresti |
| 126. | Liceul Teoretic National | 0720000171 | Str. Buzesti, Nr. 14-18; Sector 1, Bucuresti |
| 127. | Titu Maiorescu, Scoala Gimnaziala Nr.45 - Bucuresti | 0212301673 | Calea Dorobantilor, Nr. 163, Sector 1, Bucuresti |
| 128. | Viilor, Colegiul Economic - Bucuresti | 0213160973; 0213160966 | Sos. Viilor, Nr. 38, Sector 5, Bucuresti |
| 129. | Scoala Gimnaziala Nr. 112 | 0213483331 | Str. Patulului, Nr. 2, Sector 3, Bucuresti |
| 130. | Grigore Chercez, Colegiul Tehnologic - Bucuresti | 0213365890 | Calea Serban Voda, Nr. 280, Sector 5, Bucuresti |
| 131. | Fridolin, scoala primara si gimnaziala germana - Bucuresti | 0723584872 (Adina Stoenescu); 0722502522 (Christian Comsa) | Fagaras, Nr. 9-13, Sector 1, Bucuresti |
| 132. | Maria Rosetti, Scoala Gimnaziala - Bucuresti | 0212305276 | Str. Garibaldi, nr. 3, Sector 2, Bucuresti |
| 133. | Scoala Gimnaziala Nr. 200 - Bucuresti | 0213453119 | Str. Postavarul, Nr. 13, Sector 3, Bucuresti |
| 134. | Phoenix, Liceu Teoretic - Bucuresti | 0214341364; 0770911516 | Virgiliu, Nr. 40, Sector 1, Bucuresti |
| 135. | Scoala Gimnaziala Nr. 1 - Sfintii Voievozi | 0213127572; 0213164206; 0213179916 | Str. Atelierului, Nr. 25, Sector 1, Bucuresti |
| 136. | Uruguay, Scoala Gimnaziala - Bucuresti | 0216370361 | Str. Virgiliu, Nr. 40, Sector 1, Bucuresti |
| 137. | Scoala Gimnaziala Nr. 120 Martisor - Bucuresti | 0213325811 | Str. Martisor, Nr. 39, sector 4 |
| 138. | Colegiul Romano-Catolic Sfantul Iosif - Bucuresti | 0213326602 | Sos. Oltenitei, Nr. 3-7, Sector 4, Bucuresti |
| 139. | Scoala Gimnaziala SEB - Bucuresti | 0314249675; 074502274 | Str. Martisor, Nr. 22, sector 4 |
| 140. | Scoala Gimnaziala Nr. 150 - Bucuresti | 0214108408 | Bd. Eroii Sanitari, Nr. 29-31, Sector 5, Bucuresti |
| 141. | Spectrum Colentina, Scoala Primara - Bucuresti | 0314338500; 0733314741 | Sos. Colentina, Nr. 64B, Sector 2, Bucuresti |
| 142. | Scoala 114 Principesa Margareta - Bucuresti | 0735679210/ 0213351405 | Str. Pandele Rosca, Nr. 2-4, sector 5 |
| 143. | Scoala Gimnaziala Nr. 39 - Bucuresti | 0783292969; 0212403025; 0212400034 | Sos. Colentina, Nr. 91, Sector 2, Bucuresti |
| 144. | C.A. Rosetti, Liceu teoretic - Bucuresti | 0212304873 | Str. Giuseppe Garibaldi, Nr. 11, Sector 2, Bucuresti |
| 145. | Heliade Radulescu, Scoala Gimnaziala Nr. 11 - Bucuresti | 0213163633 | Sos. Kiseleff, nr. 5, sector 1, Bucuresti |
| 146. | Liceul Teoretic Sfintii Trei Ierarhi - Bucuresti | 0763688448 | Str. Oltetului, nr. 15, sector 2 |
| 147. | Mexic, Scoala Gimnaziala Nr. 22 - Bucuresti | 0213401124 | Bd. 1 Decembie 1918, Nr. 34, Sector 3, Bucuresti |
| 148. | Scoala Gimnaziala Mexic - Bucuresti | 0213401124 | Bd. 1 Decembrie 1918, Nr. 34, sector 3 |
| 149. | Victor Babes, Colegiul National - Bucuresti | 0212407870 | Sos. Fundeni, Nr. 254, Sector 2, Bucuresti |
| 150. | Scoala Gimnaziala Nr. 92 - Bucuresti | 0213480375 | Aleea Vlahita, Nr. 1A, sector 3 |
| 151. | Scoala Gimnaziala Nr. 66 - Bucuresti | 0212554580 | Str. Logofatul Dan, Nr. 1, Sector 2, Bucuresti |
| 152. | Scoala Postliceala Sanitara Fundeni - Bucuresti | 0212405135 | Sos. Fundeni, Nr. 254, Sector 2, Bucuresti |
| 153. | Colegiul Tehnic de Industrie Alimentara Dumitru Motoc - Bucuresti | 0215552876 | Str. Spatarul Preda, Nr. 16, sector 5 |
| 154. | BBIS Bucharest - Beirut International School | 0744309199 | Sos. Vergului, Nr. 14, Sector 2, Bucuresti |
| 155. | Iosif Sava, Scoala Gimnaziala de Arte - Bucuresti | 0212312470 | Str. Constantin Disescu, Nr. 37, Sector 1, Bucuresti |
| 156. | Smart Koala Kids Club | 0771638419; 0771638425 | Calea 13 Septembrie, Nr.126A, bl.P43, sc.1, parter, ap. 2, sector 5, Bucuresti |
| 157. | Lucian Blaga, Liceu teoretic - Bucuresti | 0212551265; 0786108825 | Sos. Pantelimon, Nr. 355, Sector 2, Bucuresti |
| 158. | Jean Monnet, Liceu teoretic - Bucuresti | 0212305078 | Str. Jean Monnet, Nr. 2, Sector 1, Bucuresti |
| 159. | Scoala Gimnaziala Luceafarul - Bucuresti | 0214230480 | Str. Doina, Nr. 1, sector 5 |
| 160. | Alexandra Kids, Gradinita, After School - Bucuresti | 0788461573; 0214206927 | Calea Rahovei, Nr. 266-268, Sector 5, Bucuresti |
| 161. | Nicolae Titulescu, Scoala Gimnaziala - Bucuresti | 0212236393 | Sos. Nicolae Titulescu, nr. 50-52, Sector 1, Bucuresti |
| 162. | Scoala Gimnaziala Nr. 190 - Bucuresti | 0213324689 | Str. Nitu Vasile, Nr. 16, Sector 4, Bucuresti |
| 163. | Tudor Vianu, Colegiul National de Informatica - Bucuresti | 0212226670 | Str. Arh. Ion Mincu, Nr. 10, sector 1, Bucuresti |
| 164. | Ada School - Bucuresti | 0723595916; 0721424485 | Dr. Carol Davila, Nr. 101, Bucuresti |
| 165. | Scoala Gimnaziala Nr. 113 | 0213322347 | Str. Parincea, Nr. 4, Sector 4, Bucuresti |
| 166. | I.G. Duca, Scoala Gimnaziala 146 - Bucuresti | 0214100881 | Sos. Panduri, Nr. 42, Sector 5, Bucuresti |
| 167. | Scoala Gimnaziala Nr. 115 | 0213163793; 0786401588 | Calea 13 Septembrie, Nr. 177, Sector 5, Bucuresti |
| 168. | Scoala Gimnaziala George Bacovia - Bucuresti | 0213323396 | Str. Stoian Militaru, nr. 72, Sector 4 |
| 169. | Scoala Gimnaziala nr. 32 - Bucuresti | 0216556240 | Str. Sportului, Nr. 21, sector 2 |
| 170. | Scoala Gimnaziala Nr. 82 - Bucuresti | 0213450962 | Jean Steriad, Nr. 17, Sector 3, Bucuresti |
| 171. | Scoala Gimnaziala Grigore Tocilescu - Bucuresti | 0214231140 | Str. Grigore Tocilescu, Nr. 20, sector 5 |
| 172. | Liceul Economic nr. 1 - Bucuresti | 0371417419 | Sos. Vitan Barzesti, Nr. 11, Sector 4, Bucuresti |
| 173. | Traian Vuia, Liceu Tehnologic de Metrologie - Bucuresti | 0213345915; 0372942097 | Sos. Vitan Barzesti, Nr. 11, Sector 4, Bucuresti |
| 174. | Liceul Teologic Baptist Logos Bucuresti | 0213451072 | Bd. Theodor Pallady, Nr. 26, sector 3, Bucuresti |
| 175. | Costin D. Nenitescu, Colegiul Tehnic - Bucuresti | 0213450920 | Bd. Theodor Pallady, Nr. 26, Sector 3, Bucuresti |
| 176. | Scoala Gimnaziala Nr. 20 - Bucuresti | 0213452485 | Str. Prevederii, Nr. 19, Sector 3, Bucuresti |
| 177. | Dimitrie Gusti, Liceu Tehnologic - Bucuresti | 0214562050 | Str. Samuil Vulcan, Nr. 8, Sector 5, Bucuresti |
| 178. | Ion Neculce, Colegiul National Bucuresti | 0212224145; 0212224179 | Str. Ion Neculce, Nr. 2, Sector 1, Bucuresti |
| 179. | Scoala Gimnaziala Nr. 96 Bucuresti | 0214610108 | Str. Rezonantei, nr. 2, sector 4, |
| 180. | Scoala Gimnaziala Nr. 280 - Bucuresti | 0214234068 | Str. Sergent Gheorghe Donici, Nr. 4A, Sector 5 |
| 181. | Scoala Gimnaziala Nr.188 - Bucuresti | 0214500161 | Str. Tufisului, Nr. 13, Sector 5, Bucuresti |
| 182. | Pia Bratianu - Scoala Gimnaziala Nr. 17 | 0212226590 | Str. Petofi Sandor, Nr. 14-16, Sector 1, Bucuresti |
| 183. | Scoala Gimnaziala Nr. 149 - Bucuresti | 0213451985 | Aleea Perisoru, nr. 4, Sector 3, Bucuresti |
| 184. | Scoala Gimaziala Nr. 133 - Bucuresti | 0213325837 | Str. Stanjeneilor, Nr. 3, sector 4, Bucuresti |
| vezi mai multe | |||
| 1. | Oktoberfest Pub - Bucuresti | 0724333233 | Popa Nan, Nr. 95, Sector 3, Bucuresti |
| 2. | La Mama - Restaurant Bucuresti | 0721526262 | Strada Delea Veche, Nr. 51, sector 2 |
| 3. | Trattoria Fresca - Restaurant cu specific italian, Bucuresti | 0731333410 | Str.Popa Nan, nr.140, Sector 2 |
| 4. | Modelier - Bistro, cocktails Bucuresti | 0799630693 | Strada Duzilor, Nr. 12, sector 2 |
| 5. | Burger Peter - Restaurant cu burgeri Bucuresti | 0799981031 | Strada Popa Nan, Nr. 48, sector 2 |
| 6. | Cofetaria Madlene - Bucuresti | 0753223222 | Str. Traian, Nr.103, sector 2 |
| 7. | Politica si Delicateturi Bucuresti - Restaurant cu specific romanesc | 0785516681 | Str. Prof. Dr. Mihail Georgescu, Nr. 24, sector 2 |
| 8. | Sweet Sophie - Cofetarie | 0748309063 | Strada Popa Nan, Nr. 22, sector 2 |
| 9. | Club Art Papillon Restaurant - Bucuresti | 0212522520; 0732582278; 0722240930 | Matei Voievod , Nr. 66A Sector 2, Bucuresti |
| 10. | Green Tea Ceainarie - Bucuresti | 0213209396; 0749090202 | Dr. Burghelea, Nr. 24, Sector 2, Bucuresti |
| 11. | Sale Dolce, Restaurant - Bucuresti | 0736858430; 0735123687 | Matei Voievod, Nr. 20, Sector 2, Bucuresti |
| 12. | Alceva - Restaurant, Bucuresti | 0770844125 | Matei Voievod, Nr. 79, sector 2, |
| 13. | Bistro Turturelelor - Restaurant, Bucuresti | 0726310583; 0758887454 | Strada Turturelelor, 11A, corpC, Parter, Sector 3 |
| 14. | No10 - Restaurant cu specific italian | 0741210003 | Strada Austrului, Nr. 10, sector 2 |
| 15. | Casa Jienilor Agricultori, Restaurant - Bucuresti | 0735994994 | Agricultori, Nr.12, Sector 2, Bucuresti |
| 16. | Trattoria Della Nonna - Restaurant cu specific italian, Bucuresti | 0771697503 | Strada Popa Nan, Nr. 5, sector 2 |
| 17. | Restaurant Grill Verdetei 5 - Restaurant cu preparate la gratar, Bucuresti | 0766411338 | Strada Verdetei, nr. 5, sector 3 |
| 18. | Coftale Coffee Shop - Cafenea, Bucuresti | 0746420874 | Strada Profesor Stefan Mihaileanu, Nr.42, sector 2 |
| 19. | Noua - Restaurant cu specific romanesc, Bucuresti | 0217943294 | Strada Popa Nan, Nr. 7, sector 2 |
| 20. | Turquoise - Restaurant cu specific oriental, Bucuresti | 0731826222 | Strada Theodor D. Sperantia, Nr. 96, sector 3 |
| 21. | Turquoise Bakery - Bucuresti | 0739037919 | Str. Matei Voievod, nr.101, Sector 2 |
| 22. | Padthai - Restaurant Bucuresti | 0726637747 | Bulevardul Decebal, Nr. 3, sector 3 |
| 23. | Tress Caffe&Lounge - Bucuresti | 0721988801 | Bulevardul Decebal, Nr 3, sector 3 |
| 24. | Casa Lica - Cofetarie Bucuresti | 0725761188 | Bulevardul Decebal, Nr. 5, Sector 3 |
| 25. | XO Lounge - Restaurant Bucuresti | 0725585388 | B-dul Decebal, Nr. 5, sector 3 |
| 26. | Funky Lounge - Terasa, Bucuresti | 0755505505 | Bd. Decebal, nr 9, sector 3 |
| 27. | Lotus Cafe - Cafenea restaurant Bucuresti | 0722808389 | Bd. Decebal, Nr 1, sector 3 |
| 28. | Dada Restaurant - Bucuresti | 0729997405; 0724015800 | Str. Matei Voievod , nr. 94bis, sector 2, |
| 29. | Agio Bistrot - Bistro, Bucuresti | 0763528818 | Bd. Decebal, Nr. 9, sector 3 |
| 30. | Rich Vip Lounge - Restaurant Bucuresti | 0771790764 | Bd.Decebal, Nr 9, sector 3 |
| 31. | Paque Bistro - Restaurant cu bar, Bucuresti | 0722330607 | Bulevardul Pache Protopopescu, nr.60, sector 2 |
| 32. | Borgo Stagioni - Restaurant Bucuresti | 0732163287; 0722220223 | Calea Calarasi, Nr. 78, Sector 3 |
| 33. | Chong Qing - Restaurant cu specific chinezesc, Bucuresti | 0212525095; 0731383952 | B-dul Pache Protopopescu, Nr.28, sector 2 |
| 34. | Cuptorul cu Lemne, Pizza - Bucuresti | 021.9363; 0212524493; (021) 9363 - tasta 0 | Bd. Pache Protopopescu, Nr. 63, Sector 2, Bucuresti |
| 35. | Gallo Nero, Restaurant - Bucuresti | 0726544889; 0213268128 | Bd. Decebal, Nr. 12, Sector 3, Bucuresti |
| 36. | Urban Bistro - Restaurant cu fripturi, Bucuresti | 0769918510 | Strada Piata Sfantu Stefan, Nr 6, sector 2 |
| 37. | La Giuggiola - Gelateria artizanala italiana Bucuresti | 0770107183 | Bulevardul Pache Protopopescu, Nr. 57, Sector 2 |
| 38. | Duman - Restaurant cu specific oriental, Bucuresti | 0738170063 | Bulevardul Decebal, Nr. 13, sector 3 |
| 39. | Cuptorul cu Lemne - Restaurant pizzerie Bucuresti | 0219363 | Bd. Pache Protopopescu, Nr 65, sector 2 |
| 40. | Snap - Restaurant, Bucuresti | 0738888885 | Bulevard Decebal, nr. 13, sector 3 |
| 41. | Cristal - Cofetarie | 0760090324 | Str. Matei Voievod, nr. 108, sector 2 |
| 42. | Le Boutique Food Concept Store - Bucuresti | 0722538274; 0314380044 | Str. Sfantul Stefan, Nr. 13, sector 2 |
| 43. | Posh Birt Select - Pub, Bucuresti | 0724004376 | Strada Plantelor, Nr. 26, sector 2 |
| 44. | Chaya TeaHouse - Ceainarie Bucuresti | 0755331000 | Strada Radu Ceaus, Nr. 7, sector 3 |
| 45. | GinOteca - Bar, Bucuresti | 0751446446 | Strada Plantelor, Nr. 25, sector 2 |
| 46. | Pizza PPH - Pizza si catering, Bucuresti | 0319441 | Str. Lirei, Nr. 13, sector 2 |
| 47. | Nabu - Bar Bucuresti | 0787407043 | Pache Protopopescu, Nr. 97, sector 2 |
| 48. | Casa Veche - Restaurant, Ramnicu Valcea | 0747875045 ; 0748702238; 0350418155 | Stirbei Voda, Nr.162, Ramnicu Valcea, judetul Vilcea |
| 49. | La Nenea Iancu - Restaurant cu specific romanesc, Bucuresti | 0745140786 | Str. Romulus, nr. 55, sector 3 |
| 50. | Belli Siciliani - Restaurant autentic sicilian, Bucuresti | 0799090601 | Str. Matasari, Nr. 47, sevtor 2, |
| 51. | Bistro Cafe Carbon 14 - Bucuresti | 0790408777 | Str. Dimitrie Racovita, Nr. 18, Sector 2 |
| 52. | Arogant - Restaurant & Lounge, Bucuresti | 0732764268 | Piata Alba Iulia Piata Alba Iulia, nr 8, sector 3 |
| 53. | BaKings - Cofetarie Bucuresti | 0744642929 | Strada Ilarie Chendi, Nr. 28, sector 2 |
| 54. | Bistro HB - Restaurant Bucuresti | 0735011736; 0735011735; 0735011737 | Strada Matasari, Nr. 49 Sector2 |
| 55. | Koffeev - Cafenea, Bucuresti | 0767195222 | Bulevardul Unirii, Nr. 57, sector 3 |
| 56. | Rainbow - Bar & Grill, Bucuresti | 0743205054 | Cornul Caprei, nr.53, sector 3 |
| 57. | Bragageria Bogdania - Bistro, Bucuresti | 0787877985 | Str. Olari, Nr. 20, Sector 2 |
| 58. | El Bacha, Restaurant - Bucuresti | 0212691392; 0722833333 | P-ta Alba Iulia, nr.6 bl.15, sector 3, |
| 59. | Laur Express Food - Restaurant fast-food, Bucuresti | 0732455089 | Bulevardul Ferdinand I, Nr. 60, sector 2 |
| 60. | La Birlic - Terasa, Bucuresti | 0722318168; 0752318168; 0212525151 | Bulevardul Pache Protopopescu, Nr. 125, sector 2 |
| 61. | Santorini - Restaurant specific grecesc Bucuresti | 0748333334 | Bulevardul Mihai Bravu, Nr. 209, Sector 2 |
| 62. | Naser - Restaurant specific libanez Bucuresti | 0799980001; 0799980002; 0213135060 | Str. Fluierului, Nr. 18, sector 2 (colt cu Str. Matasari, in spatele PRO TV) |
| 63. | Delice Grill - Restaurant fast-food Bucuresti | 0721112244 | Soseaua Mihai Bravu, Nr 139-145, sector 2 |
| 64. | Pizza Venetia, Pizzerie si catering - Bucuresti | 0720800100; 0213204424; Fax: 0720800100 | Dristorului, Nr.59, Sector 3, Bucuresti |
| 65. | Nikos Greek Taverna, Restaurant - Bucuresti | 0730001008 (Restaurant); 0215999099 (Livrari) | B-dul Burebista, Nr 2 (Piata Alba Iulia), Sector 3, Bucuresti |
| 66. | Karishma, Restaurant indian - Bucuresti | 0212525157; 0737519953 | Iancu Capitanu, Nr. 36, Sector 2, Bucuresti |
| 67. | Restaurant Ali Baba - Specific oriental, Bucuresti | 0213274810; 0722707208 | Sos. Mihai Bravu, Nr. 213, sector 2, Bucuresti |
| 68. | Gradina Olari - Terasa, Bucuresti | 0770147410 | Strada Olari, nr.8, Sector 2 |
| 69. | Gio Cafe - Bucuresti | 0730030757 | Bd. Burebista, Nr.2 , Sector 3, Bucuresti |
| 70. | Mantuleasa 40 - Restaurant Bucuresti | 0754045450; 0751133141 | Str. Mantuleasa, Nr. 40, sector 2 |
| 71. | Time Out Cafe - Bar & Cafenea Bucuresti | 0744644400 | Strada Olari, Nr. 7, sector 2 , |
| 72. | Alice, Cofetarie - Bucuresti | 0744486465 | Sos. Mihai Bravu, Nr. 123-135, Sector 2, (zona Piata Iancului - langa Sectia 8 de Politie), Bucuresti |
| 73. | Noeme - Restaurant Bucuresti | 0721490270 | Anton Pann, Nr. 29, sector 3 |
| 74. | Sarazin - Carol Fast food Bucuresti | 0787625505 | Bulevardul Carol I, Nr. 66, Sector 2, |
| 75. | Andreea, Cofetarie, torturi si patiserie - Bucuresti | 0728877033; 0213228845 | Bulevardul Mihai Bravu, Nr. 286, Sector 3, Bucuresti |
| 76. | Cofetaria Andreea | 0213228845; 0728877033 | Sos. Mihai Bravu , Nr. 286, sector 3, Bucuresti |
| 77. | SwitchEat - Restaurant cu burgeri Bucuresti | 0726023881 | Strada Horei, Nr 34, sector 2 ( la doi pasi de Foisorul de Foc) |
| 78. | Maroon - Maroon Restaurant Cafe | 0742420000; 0764900000 | Bulevardul Unirii, Nr. 47 C, Sector 3 |
| 79. | Berestroika - Beer Revolution - Bucuresti | 0722560300; 0721100000; 0733200000 | Aleea Cauzasi, Nr. 57, Sector 2, Bucuresti |
| 80. | Restaurant Burebista Traditional - Bucuresti | 0755041484; 0212109704 | Calea Mosilor, Nr 195, sector 2 |
| 81. | Giorginio Cofetarie - Bucuresti | 0722434002 | Calea Dudesti, Nr. 129 (colt cu str. Scoala Ciocanul) Sector 3, Bucuresti |
| 82. | EXPRESS Food & Drink - Restaurant fast-food, Bucuresti | 0732669922 | Bd. CAROL I, Nr. 62, Sector 2 |
| 83. | Intermacedonia, Restaurant - Bucuresti | 0212522010; 0212527331; 0212522190 | Sos. Mihai Bravu, Nr.95-100, Sector 2 (P-ta Iancului) , Bucuresti |
| 84. | Comics Club - Stand Up, Bucuresti | 0741426426 | Str. Nerva Traian, Numarul 4. sector 3 |
| 85. | Greekos Urban Food - Restaurant fast-food, Bucuresti | 0726646976 | Soseaua Mihai Bravu, Nr. 247, sector 3 |
| 86. | King Rolls - Fast Food Bucuresti | 0747887206 | Calea Vitan, Nr. 17A, sector 3 |
| 87. | Banjo Jack - Restaurant cu burgeri, Bucuresti | 0770653341 | Strada Iancu Capitanu, Nr 26, sector 2 |
| 88. | Simbio - Restaurant Bucuresti | 0756746246 | Str Negustori, nr. 26, sector 2 |
| 89. | Willy\'s Coffee Art - Bucuresti | 0769911077 | Bulevardul Carol I, Nr 62, sector 2, |
| 90. | Beraria Centrala - Restaurant Bucuresti | 0740959311 | Strada Nerva Traian, Nr. 2, Sector 3 |
| 91. | El Torito, Restaurant - Bucuresti | 0212526688; 0728176059 | Iancu Capitanu , Nr. 30, Sector 2, Bucuresti |
| 92. | La Coana Mare - Cofetarie Bucuresti | 0771512035 | Strada Magura Vulturului, Nr. 2, sector 2 |
| 93. | Wicked Bar - Bucuresti | 0722615188; 0723574895 | Strada Spatarului, Nr. 4, Sector 2, Bucuresti |
| 94. | Rawyal brunch & cakes - Bucuresti | 0730777221 | Calea Mosilor, Nr 105, Sector 2 |
| 95. | La Patrascu - Restaurant Bucuresti | 0771635003; 0767561149; 0754422491 | Str. Prof. Stefan Nicolau, Nr. 2A, Sector 3 |
| 96. | Jack Pot - Bar specializat in cocktailuri, Bucuresti | 0372916947; 0770776777 | Zborului, nr. 2, sector 3 |
| 97. | Tarta Ta - Delicii traditionale, Bucuresti | 0771522117 | Bulevardul Mircea Voda, Nr. 52, sector 3 |
| 98. | Casa Lefter - Restaurant Bucuresti | 0723568402; 0743127330 | Strada Lt. Ionescu Baican, Nr. 57, sector 2 |
| 99. | Robescu 14 - Bar specializat in cocktailuri | 0773741922 | Strada Robescu F. Constantin, Nr. 14, sector 3 |
| 100. | Vanilla, Cofetarie - Bucuresti | 0733058058 | Mihai Bravu, Nr. 47, Parter, Sector 2, Bucuresti |
| 101. | Casa Ede - Restaurant & Beauty - Barber Salon Bucuresti | 0772019516 | Strada Armeneasca, Nr. 8, sector 2 |
| 102. | Din Fu - Restaurant chinezesc Bucuresti | 0729313338; 0213260127 | Str. Alexandru Moruzzi, Nr. 76A, Sector 3 |
| 103. | Barfly Bucuresti | 0727394131; 0721652899 | Olteni , Nr. 3, Sector 3, Bucuresti |
| 104. | Bucatarasul cel Dibaci - Restaurant cu specific romanesc, Bucuresti | 0730340436;0760966360 | Strada Olteni, Nr 3, sector 3 |
| 105. | Zen Garden - Restaurant cu specific chinezesc, Bucuresti | 0745102272 | Strada Silvestru, Nr. 3, sector 2 |
| 106. | Prajituri de Casa - Cofetarie Bucuresti | 0751135153 | Calea Mosilor, Nr. 225, sector 2 |
| 107. | Fatafit - Restaurant cu specific libanez, Bucuresti | 0760445555 | Calea Mosilor, Nr. 225, Sector 2 |
| 108. | Miss Ale - Bar specializat in cocktailuri | 0745089700 | Constantin F Robescu, Nr 2, sector 3 |
| 109. | Resto Aperto, Restaurant - Bucuresti | 0738741118 | Calea Vitan , Nr.55-59(Bucuresti Mall) Sector 3, Bucuresti |
| 110. | Blunch Bistro - Restaurant, Bucuresti | 0736898990 | Mihai Eminescu, Nr.181, sector 2 |
| 111. | Resto Aperto, Restaurant - Bucuresti | 0738741118 | Calea Vitan, Nr.55-59 (Bucuresti Mall) Sector 3, Bucuresti |
| 112. | Surubelnita - Club, Bucuresti | 0768743593 | Str. Calea Mosilor, nr. 100, sector 2 |
| 113. | Il Destino, Restaurant italian - Bucuresti | 0212103039; 0758836278; 0744318094 (Pentru evenimente) | Silvestru, Nr. 67, Sector 2, Bucuresti |
| 114. | MagiCake - Atelier de dulciuri artizanale, Bucuresti | 0772072072 | Strada Alexandru Moruzzi, Nr. 4A, sector 3 |
| 115. | Riviera Park, Restaurant - Bucuresti | 0732408408 | Bd. Basarabia , Nr. 23 (Parcul National), Sector 2, Bucuresti |
| 116. | Taverna Baba Novac, Restaurant - Bucuresti | 0771544334; 0760010784 | Intrarea Baba Novac, Nr. 3, Sector 3, Bucuresti |
| 117. | La Machedoni - Restaurant cu specific traditional romanesc si american | 0721512236 | Anastasie Panu, nr. 10, sector 3 |
| 118. | Nicoresti, Restaurant - Bucuresti | 0212112480; 0724290550 | Toamnei, Nr. 13 (colt cu Maria Rosetti nr. 40), Sector 2, Bucuresti |
| 119. | Zeppelin Pub - Bucuresti | 0722170024 | Strada Marin Serghiescu, Nr. 7, sector 2 |
| 120. | Mateo Fast Food | 0728199827; 0752777333; 0314362033 | Strada Dristorului, Nr. 87, sector 3 |
| 121. | Qian Bao, Restaurant chinezesc - Bucuresti | 0722622865; 0314306616 | Intrarea Baba Novac, Nr. 2, Sector 3, Bucuresti |
| 122. | Restaurant La Teu - Bucuresti | 0723642022 | Strada Titu Maiorescu, Nr.18, sector 2 |
| 123. | Haveli, Restaurant - Bucuresti | 0212110390; 0721721640 | Episcopul Radu, Nr. 3, Sector 2, Bucuresti |
| 124. | Papila Kitchen - Restaurant, Bucuresti | 0753087799 | Strada Sfintilor, Nr 6, sector 2 |
| 125. | Hashtag Pub - Bucuresti | 0771555444 | Soseaua Mihai Bravu, Nr 32, sector 2 |
| 126. | Zoomserie - Cofetarie Bucuresti | 0751222265 | Sf. Vineri, Nr. 23, sector 3, intersectia Coposu (Calarasilor), |
| 127. | Ciao Niki - Restaurant cu specific italian, Bucuresti | 0734356217;0756044805 | Strada Bocsa, Nr 4, sector 2 |
| 128. | FoodVibe - Serviciu de livrare mancare | 0371333222 | Strada Sperantei, nr. 7, sector 2 |
| 129. | Nice Touch - Restaurant cu meniu international, Bucuresti | 0771568361 | Strada Sperantei, nr.7, sector 2 |
| 130. | Manasia Hub - Bar Bucuresti | 0736760063 | Str. Stelea Spatarul, Nr. 13, sector 3 |
| 131. | Armand, Cofetarie - Bucuresti | 0310051187; 0741276263 | Armand Calinescu , Nr. 25, Sector 2, Bucuresti |
| 132. | Restaurant Karta - Bucuresti | 0744391111 | Bd. Unirii, Nr. 22, sector 3 |
| 133. | Kuma Bar - Bucuresti | 0766440936 | Strada Coltei, Nr. 50, sector 3 |
| 134. | Gambino\'s Pizza - Bucuresti | 0731707070; 0725271471; 0310050209 | Vasile Lascar, Nr.24, Sector 2, Bucuresti |
| 135. | Casa Dragonului, Restaurant Bucuresti | 0213202666; 0761929019 | Calea Dudesti, nr. 198, sector 3, Bucuresti |
| 136. | Legere - Bar, Bucuresti | 0730534373 | Piata Rosetti, nr 5, sector 2 |
| 137. | Bistro Fum de Vorbe - Restaurant Bucuresti | 0748628830; 0723686292 | Vasile Lascar, Nr. 24, Sectorul 2 |
| 138. | DolciConi - Gelaterie Bucuresti | 0753762549 | Vasile Lascar, Nr 26-28, sector 2 |
| 139. | #Aici - Bar, Bucuresti | 0799124330 | Bulevardul Unirii, Nr 35, Sector 3, Bucuresti |
| 140. | Terasa Florilor - Restaurant cu terasa, Bucuresti | 0755097931 | Str. Ion Maiorescu, nr. 42, sector 2 |
| 141. | Buoni e Bravi - Pizzerie, Bucuresti | 0735215224 | Piata C. A. Rosetti, nr. 3, sector 2 |
| 142. | BEAT bar umanist - Bar, Bucuresti | 0720854187 | Vasile Lascar, Nr. 29, sector 2 |
| 143. | Efes - Restaurant cu specific turcesc, Bucuresti | 0737018590 | Bulevardul Nerva Traian, Nr. 17 - 19, sector 3 |
| 144. | Level Up - Restaurant raw vegan, Bucuresti | 0721085582 | Str Sf. Vineri, Nr 10, sector 3 |
| 145. | Erra - Restaurant cu specific european modern, Bucuresti | 0734983984 | Str. Constantin Nottara, Nr 13, sector 3 |
| 146. | Stejarului 57 - Social Bar, Bucuresti | 0748701058 | Strada Fildesului, Nr. 2, sector 3 |
| 147. | JO Lounge - Bar, Bucuresti | 0721811995 | Bd. Unirii, sector 3 |
| 148. | Trattoria Adagio - Restaurant cu specific italian Bucuresti | 0311061067; 0751218482 | Bd. Mircea Voda, Nr. 34, sector 3 |
| 149. | SanThe Fitoceainarie - Ceainarie, Bucuresti | 0730370290 | Lipscani, nr 104, sector 3, |
| 150. | Pizza Apetito - Bucuresti | 0770225215 | Eufrosina Popescu, Nr. 57, sector 3, |
| 151. | Luna Cafe & Bistro - Bucuresti | 0771609431; 0771211246 | Str. Viitorului, Nr. 32, sector 2, |
| 152. | Ivy - Cafenea, Bucuresti | 0755210748 | Bulevardul Carol I, Nr. 23, sector 2 |
| 153. | Get Naked by Bordello - Restaurant pentru mic dejun si brunch, Bucuresti | 0748881086 | Bd. Unirii, intre Bd Dimitrie Cantemir si Bd Mircea Voda |
| 154. | Sfeir Lebanese Cuisine - Bar & Grill | 0722311805 | Mircea Voda, Nr. 36, sector 3 |
| 155. | 7 Days - Restaurant cu terasa, organizari evenimente, Bucuresti | 0769042751; 0213241358 | Str. Campia Libertatii, Nr. 23, Sector 3, Bucuresti |
| 156. | Kane - Noua bucatarie romaneasca fina | 0314100016 | Str. Dianei, nr. 9 (Piata Rosetti), sector 2 |
| 157. | Gili Pizza - Bucuresti | 0213242387 | Str. Baba Novac, Nr. 9-11, Sector 3 |
| 158. | Terasa Sport House - Restaurant fast-food, Bucuresti | 0755080224 | Maior Ion Coravu, numarul 34, sector 2 |
| 159. | Casa Jienilor, Restaurant - Bucuresti | 0212121951; 0722916111 | Fainari, Nr. 5, Sector 2, Bucuresti |
| 160. | Calderon 18 - Restaurant cu terasa, Bucuresti | 0731886789 | Str. Jean Louis Calderon, Nr.18, sector 2, |
| 161. | Casa Tosca, Cofetarie - Bucuresti | 0213461297 | Bd. Camil Ressu, Nr. 1, Sector 3, Bucuresti |
| 162. | Aria Gourmet Burger - Fast food Bucuresti | 0773778860; 0773778860 | Strada Slanic, Nr. 2, Sector 3 |
| 163. | The Dock - Lounge, Bucuresti | 0743680336 | Bulevardul Unirii, nr. 30, sector 3 |
| 164. | Casa Jienilor, Restaurant - Bucuresti | 0212121951; 0722916111; Fax 0212121951 | Fainari, N. 5, Sector 2, Bucuresti |
| 165. | Casa Jienilor Fainari, Restaurant - Bucuresti | 0212121951; 0735994994 | Fainari, Nr. 5, Sector 2, Bucuresti |
| 166. | Lloyds Pub - Bucuresti | 0723133786 | Str. Coltei, Nr. 16, Sector 3 |
| 167. | Strada Rustica - Pizzerie Bucuresti | 0213248303; 0768676765; 0728886914 | Str. Baba Novac, Nr 9, Complex Rucar, Sector 3 |
| 168. | Time to Lunch | 0763200900 | Strada Patriei, Nr 4, sector 3 |
| 169. | Fabrica de mancare - Restaurant cu supe si ciorbe, Bucuresti | 0744123123 | B-dul Unirii, nr. 31, sector 3 |
| 170. | Pe Baricade | Radu Voda, nr. 23A, sector 4 | |
| 171. | Moon Brasserie - Restaurant Bucuresti | 0723093170 | Bulevardul Unirii, Nr. 33, sector 3 |
| 172. | Nori Sushi - Restaurant cu specific japonez, Bucuresti | 0771179714 | Splaiul Unirii, nr 6, bl B3A, etaj 7-8 |
| 173. | Gran Gelato Italiano - Gelaterie Bucuresti | 0730057909 | Str. Radu Voda, Nr 28 A, Sector 4 |
| 174. | Sardin - Restaurant cu specific italian, Bucuresti | 0729520111 | Bulevardul Mircea Voda, Nr. 39H sector 3, Bucuresti |
| 175. | The Clique Bistro - Restaurant cu specific international, Bucuresti | 0784901000 | Splaiul Unirii, sector 3 |
| 176. | Unico Vero - Restaurant cu specific italian, Bucuresti | 0212123338;0758110265 | Strada Viitorului, Nr. 8, sector 2 |
| 177. | Casual Pub - Restaurant Bucuresti | 0770841212 | Bd. Dacia, Nr. 104, Sector 2 |
| 178. | La Sediu - Restaurant Bucuresti | 0760729007 | Campia Libertatii, Nr. 54, sector 3 |
| 179. | Suento - Restaurant cu specific european modern, Bucuresti | 0787605362 | Strada Toamnei, Nr. 101, sector 2 |
| 180. | Beautyfood - Bistro, Bucuresti | 0759030609 | Jean Louis Calderon, Nr. 34, sector 2 |
| 181. | McDonald\'s | 0372701091 | Piata Unirii 1, Unirea Shopping Center, Bucuresti |
| 182. | Latin Pizza - Pizzerie, Bucuresti | 0751896358 | Bulevardul Ion C. Bratianu, Nr. 34, sector 3 |
| 183. | Armonia Cofetarie - Bucuresti | 0213244020 ; 0722616180 | Campia Libertatii, Nr. 46 , bl. 52 , Parter , Sector 3, Bucuresti |
| 184. | Borsalino - Pizzerie Bucuresti | 0729954911; 0729954912 | Bulevardul Ion C. Bratianu, Nr. 44, Sector 3 |
| 185. | OPUS TNB - Bar specializat in cocktailuri | 0771595407 | Bulevardul Nicolae Balcescu, Nr. 2, sector 1 |
| 186. | Naive - Restaurant cu bar, Bucuresti | 0725550333 | Bd. I.C. Bratianu, Nr. 36, sector 3 |
| 187. | Angelo Grasso - Restaurant cu specific italian, Bucuresti | 0739955555 | Strada Tudor Arghezi, 12-16, sector 2 |
| 188. | Pajo Garden - Restaurant Bucuresti | 0751227228 | Bulevardul Basarabiei, Nt. 37-39, sector 2 |
| 189. | Papaciu - Bistro, Bucuresti | 0724200070; 0724955952 | Strada Complexului, Nr 3A, sector 3 |
| 190. | Vis a Vis - Restaurant Bucuresti | 0722102223 | Bd. I. C. Bratianu, |
| 191. | La 100 de Beri - Bar specializat in bere, Bucuresti | 0733282598 | Str. Gabroveni, Nr.61, sector 3 |
| 192. | Fast Food Eminescu - Bucuresti | 0723161166 | Str. Mihai Eminescu, nr 137, sector 2 |
| 193. | Hatz Burger Studio - Restaurant cu burgeri | 0770920018 | Soseaua Stefan cel Mare, Nr. 240, Bl. 59A, Sector 2 |
| 194. | Imperial Turkish Cuisine & Steakhouse- Restaurant Bucuresti | 0720102222 | Strada Jean Louis Calderon, Nr. 33, Sector 2 |
| 195. | Gelato D\'Amore - Magazin de inghetata Bucuresti | 0771727627 | Strada Maria Rosetti, Nr. 13, Sector 2 |
| 196. | Leonidas Cofetarie - Bucuresti | 0740014695; 0213141377 | Doamnei, Nr. 27 , Sector 3, Bucuresti |
| 197. | Industry Wine Bar- Bar cu vinuri, Bucuresti | 0722777222 | str. Sepcari, Nr. 19, sector 3 |
| 198. | Thors Hammer - Bar Bucuresti | 0729176724 | Str Blanari, Nr. 12, sector 3 |
| 199. | Lacrimi si Sfinti, Restaurant - Bucuresti | 0725558286; 0372773999 | Sepcari, Nr.16 (Centrul Vechi) Sector 3, Bucuresti |
| 200. | Quartier - Restaurant, Bucuresti | 0758222244 | Bd. Mircea Voda, Nr. 43, sector 3 |
| 201. | Emozia coffee manifesto - Cafenea, Bucuresti | 0742023590;0726201527 | Strada Halelor, nr. 17, sector 3 |
| 202. | Extra Time - Pub Bucuresti | 0732166605 | Strada Lipscani, Nr. 82A, sector 3 |
| 203. | China Town Restaurant - Bucuresti | 0726130138; 0788671161; Tel/Fax:0212120239 | Viitorului, Nr. 98, Sector 2, Bucuresti |
| 204. | Osteria Zucca - Restaurant cu specific italian, Bucuresti | 0770287979; 0314206814 | Jean-Louis Calderon, Nr. 41, Sector 2, Bucuresti |
| 205. | Mao Pub - Bucuresti | 0771305995 | Str. Lipscani, Nr. 69, Sector 3 |
| 206. | Gradina Urbana - Restaurant cu specific american, Bucuresti | 0745250077 | Strada Batistei, Nr. 14, sector 2 |
| 207. | Old Mike Pub si Restaurant - Bucuresti | 0787366166 | Morilor, Nr. 46 Sector 3, Bucuresti |
| 208. | Mojo Music Club - Bucuresti | 0737220220 | Gabroveni, Nr.14, Sector 3, Bucuresti |
| 209. | Tarab - Restaurant cu specific libanez, Bucuresti | 0774411111 | Strada Nerva Traian, Sector 3 |
| 210. | QP Pub - Bucuresti | 0736405451 | Str. General David Praporgescu, Nr. 13, sector 2 |
| 211. | Casa Jienilor, Restaurant - Bucuresti | 0735994994; 0722916111 | Str. Fainari, nr. 5, sector 2, |
| 212. | La Cena - Restaurant cu specific italian, Bucuresti | 0212116717;0730210014 | Maria Rosetti, Nr. 1, sector 2 |
| 213. | Argentin - Restaurant Bucuresti | 0774462430; 0774462431 | Strada Blanari, Nr. 11-15, Sector 3 |
| 214. | Hanul lui Manuc, Restaurant si Cafenea - Bucuresti | 0213131411; 0769075844; 0730188653 | Franceza, Nr. 62-64, Sector 3 , Bucuresti |
| 215. | Fadel - Patiserie Bucuresti | 0786309530; 0722919132 | Strada Jean Louis Calderon, Nr. 56, Sector 2 |
| 216. | Madame B - Tea & Pancake House, Bucuresti | 0746030670 | Splaiul Unirii, nr.49,sector 3, |
| 217. | Pizzeria La Coco - Bucuresti | 0731744444 | Str. Gabroveni, Nr. 31, Sector 3 |
| 218. | Mica Elvetie Restaurant - Bucuresti | 0212245017 | Franceza, Nr. 60-62, Sector 3, Bucuresti |
| 219. | Hanul lui Manuc, Restaurant - Bucuresti | 0730188653; 0213122811; 0769075844 | Franceza , Nr. 62-64, Sector 3 , Bucuresti |
| 220. | Bazaar - Restaurant Bucuresti | 0721999999 | Strada Covaci, Nr. 10, sector 3 |
| 221. | Hanul lui Manuc, Restaurant - Bucuresti | 0213131411; 0769075844; 0730188653 | Franceza, Nr. 62-64, Sector 3, Bucuresti |
| 222. | 1974 Niste Domni si Fii - Bar Restaurant Bucuresti | 0721551099; 0723629306 | Covaci, Nr. 7, Sector 3, Bucuresti |
| 223. | Newton Bar, Bucuresti | 0770718303; 0213150217 | Jean Louis Calderon, Nr. 56 (Universitate), Sector 2, Bucuresti |
| 224. | Trofic - Restaurant pentru mic dejun si brunch | 0751276600 | Bd. Mircea Voda, nr. 52, sector 3 |
| 225. | Fire Club Pub - Bucuresti | 0732166604 | Covaci, Nr. 7, Sector 3, Bucuresti |
| 226. | Terasa Marius - Bar & Grill, Bucuresti | 0745777799 | Sos. Pantelimon, Nr. 115-117, sector 2 |
| 227. | Bodega La Mahala - Restaurant Bucuresti | 0732166606 | Covaci, Nr. 8, Sector 3 |
| 228. | Bere si Bere - Pub, bere craft si muzica rock | 0723280040 | Str. Gabroveni, Nr. 4, sector 3 |
| 229. | Tip Top, Cofetarii - Bucuresti | 0212422414 | Soseaua Colentina, Nr. 2, Sector 2 (magazinul Bucur-Obor), Bucuresti |
| 230. | Green Bistro - Terasa Bucuresti | 0728237731 | Parcul Gheorghe Patrascu, |
| 231. | The Urbanist - Bar specializat in cocktailuri, Bucuresti | 0741392558 | Strada Caldarari, Nr. 3, sector 3 |
| 232. | Horoscop, Restaurant, Pizzerie - Bucuresti | 0767562215 | Bd.Dimitrie Cantemir, Nr 2, Sector 4, Bucuresti |
| 233. | Gilda Music Lounge - Restaurant club Bucuresti | 0786770941 | Strada Lipscani, Nr. 53, sector 3 |
| 234. | Jos Palaria Cafe - Bucuresti | 0314321029 | Toma Caragiu , Nr. 3, Sector 3 , Bucuresti |
| 235. | Private Hell - Club, Bucuresti | 0757508336 | Str. Soarelui, nr. 5, Sector 3 |
| 236. | Bruno Wine Bar - Bar cu vinuri, Bucuresti | 0751220229 | Strada Covaci, Nr. 3, Centrul Vechi |
| 237. | Pizzicato, Pizzerie si catering - Bucuresti | 0212111213 | Strada Icoanei, Nr. 2, Sector 2, Bucuresti |
| 238. | Mica Elvetie Restaurant | 0212245017 | Franceza, Nr. 60-62, Sector 3, Bucuresti |
| 239. | Boulevard Pub - Bucuresti | 0753966961 | Strada Covaci, Nr. 4, sector 3 |
| 240. | Sugarography - Atelier de dulciuri Bucuresti | Bucuresti, | |
| 241. | Cofetaria Macarons - Bucuresti | 0771425575 | Bucuresti, |
| 242. | UAU Il Gelato - Gelaterie Bucuresti | 0723135015 | Str. Gabroveni, Nr. 1-3, sector 3, |
| 243. | Frufru, Fresh, natural, yummy , Fast food - Bucuresti | 0212221111; 0765346715 | Batistei , Nr. 1-3, Sector 2, Bucuresti |
| 244. | Taverna Covaci - Restaurant cu specific romanesc, Bucuresti | 0747226677 | Str. Covaci, Nr. 1, sector 3 |
| 245. | Old Habits - Club de noapte si de dans | 0728776699 | Strada Lipscani, Nr. 38, sector 3 |
| 246. | The Drunken Lords - Pub, Bucuresti | 0736238815 | Intr. Selari, Nr. 3-5, sector 3 |
| 247. | Times Cocktail Bar - Pub, Bucuresti | 0731032330 | Intrarea Nicolae Selari, nr.1,sector 3, |
| 248. | Kiosque des Douceurs - Cofetarie Bucuresti | 0758090763 | Str. Selari, Nr. 3, Sector. 3, Centrul Vechi |
| 249. | Gyros Thessalonikis | 0770302148 | Strada Gabroveni, Nr. 2,sector 3 |
| 250. | Sinners - Pub, Bucuresti | 0737343210 | Covaci, nr.2 , Centrul Vechi, sector 3 |
| 251. | Zatara - Restaurant cu influente mediteraneene, Bucuresti | 0771670756 | Vatra Luminoasa, Nr. 108, sector 2 |
| 252. | Xclusive Pub - Bar & Grill, Bucuresti | 0723166463 | Str. Lipscani, nr. 36, sector 3 |
| 253. | Curtea Berarilor, Restaurant terasa - Bucuresti | 0213137532 | Selari, Nr.9-11, sector 3, Bucuresti |
| 254. | Curtea Berarilor, Bar & Grill - Bucuresti | 0213137532; 0735861682 (Radu); 0735861681 (Sorina) | Selari, Nr. 9-11,Sector 3 (Zona Lipscani), Bucuresti |
| 255. | iDracula - Restaurant tematic, Bucuresti | 0753476142;0752559457 | Str. Selari, Nr. 10-12, Centrul Vechi, sector 3 |
| 256. | Trattoria Soleto - Restaurant cu specific italian | 0734382419 | Soseaua Colentina, nr. 1, sector 2 |
| 257. | Bravu Burger & Crepes - Restaurant fast-food, Bucuresti | 0722118100 | Soseaua Mihai Bravu, Nr 452 - 460, sector 2 |
| 258. | Hanul Hangitei, Restaurant - Bucuresti | 0744827323; 0758043355 | Bd. Marasesti, Nr.70-72, Sector 4 , Bucuresti |
| 259. | Artist Cafe - Cafenea Bucuresti | 0756777577 | Str. Lipscani, Nr. 30-34, sector 3 |
| 260. | Shoteria - Shotbar, Bucuresti | 0721203039; 0372916947 | Strada Selari, Nr. 17, sector 3 |
| 261. | Mr. Cigkofte - Restaurant fast-food, Bucuresti | 0720802181 | Nicolae Balcescu, Nr. 18, sector 1 |
| 262. | Calif - Restaurant fast-food, Bucuresti | 0756200325 | Selari, Nr. 19, sector 3, |
| 263. | Bistro 37-39 - Restaurant Bucuresti | 0731355939 | Bulevardul Basarabia, Nr. 37-39 , Sector 3 |
| 264. | The Pub - Bucuresti | 0728843782 | Bulevardul Regina Elisabeta, Nr. 9, sector 3 |
| 265. | Big Ben - Pub cu specific britanic, Bucuresti | 0756110089 | Str. Franceza, nr. 52, sector 3 |
| 266. | Tag Aperitivo Bar - Bucuresti | 0721888522 | Strada Lipscani, nr. 27, sector 3 |
| 267. | Burger si Scoici - Restaurant cu burgeri Bucuresti | 0753300333 | Strada Smardan, Nr. 41, Sector 3 |
| 268. | Arcade Cafe - Bucuresti | 0722777674 | Smardan, Nr.30, (Centrul vechi), Sector 4, Bucuresti |
| 269. | Nomad Skybar - Restaurant, bar, club, Bucuresti | 0735448080 | Strada Smardan, Nr 30, sector 3 |
| 270. | Storage Room - Bar, Bucuresti | 0732363712 | Strada Smardan, Nr. 35, sector 3 |
| 271. | Aubergine Healthy Food - Restaurant cu mancare sanatoasa, Bucuresti | 0213137548 (Smardan); 0771358661 (Aviatorilor) | Strada Smardan, Nr 33, sector 3, Bucuresti |
| 272. | Les Bourgeois - Bucuresti | 0720132994; 0213106052 | Smardan, Nr. 20, Sector 3, Bucuresti |
| 273. | Patrick Irish Pub & Restaurant - Bucuresti | 0213130336; 0314360112; 0755110008 | Smardan, Nr. 23-25, sector 3, Bucuresti |
| 274. | Freddo Pub - Club de noapte si de dans, Bucuresti | 0722373336 | Str Smardan, nr 24, sector 3, |
| 275. | Kilkenny Irish Pub - Bucuresti | 0751041110 | Str Franceza, Nr. 46-48, sector 3 |
| 276. | Delicii Libaneze - Gelaterie, cofetarie, ciocolaterie Bucuresti | 0725115811 | Str. Franceza, Nr. 13, sector 3 |
| 277. | Efendi Doner - Restaurant fast-food, Bucuresti | 0730578472 | Str. Selari, nr. 2, sector 3 |
| 278. | Gustul Pasiunii Cofetarie - Bucuresti | 0728941816 | Racari, Nr. 5, sector 3, Bucuresti |
| 279. | Cofetaria Lush - Bucuresti | 0720976019?; 0721605303 | Soseaua Stefan cel Mare, Nr. 226, bloc.44, parter, sector 2 |
| 280. | Cofetariile Georgy\'s, Cofetarie,torturi - Bucuresti | 0733060230; 0730618742 | Ramnicu Valcea, Nr. 14, Sector 3, Bucuresti |
| 281. | Distrikt 42 - Restaurant Bucuresti | 0213156699 | Str. Sfantul Dumitru, Nr. 3, sector 3 |
| 282. | Vilacrosse, Bistro, Restaurant - Bucuresti | 0728358304; 0744796894 | Eugeniu Carada, Nr. 7, Sector 3, Bucuresti |
| 283. | Human Coffee - Cafenea Bucuresti | 0734744429 | Str. Elena Cuza, Nr. 8, Sector 4 |
| 284. | Sham Sweet, Cofetarie - Bucuresti | 0748242455 | Bd. Basarabia, Nr.98, Sector 3, Bucuresti |
| 285. | Vilacrosse, Restaurant Cafe Bistro - Bucuresti | 0728358304 | Str. Eugen Carada, nr. 7, sector 3, |
| 286. | Q Marttinez - Restaurant cu specific european, Bucuresti | 0725682944 | Eugeniu Carada, Nr. 7, sector 3 |
| 287. | WHYS - Bar, Bucuresti | 0785059173 | Pasajul Macca-Villacrosse, sector 3 |
| 288. | Sublimmme - Restaurant vegetarian/vegan, Bucuresti | 0771135605 | Splaiul Independentei, NR 2F, sector 3 |
| 289. | Ici et La - Restaurant cu specific francez Bucuresti | 0731453608 | Strada Domnita Ruxandra, Nr. 7, Sector 2 |
| 290. | Damascus Palace - Restaurant Bucuresti | 0746696666; 0756616666 | Bld. Basarabia, Nr. 98, sector 2, |
| 291. | Mon Paris Restaurant & Lounge - Restaurant cu specific european, Bucuresti | 0799973783 | Bd Dacia, Nr. 62, sector 2 |
| 292. | Bemolle Cafe - Bucuresti | 0213118382; 0723188953 | Calea Victoriei , Nr.16-18-20 (Pasaj Villacrosse), Sector 3, Bucuresti |
| 293. | Valea Regilor - Cafenea, Bucuresti | 0213112969 | Calea Victoriei, 16-20, Centrul Vechi, sector 3 |
| 294. | Pekin, Restaurant chinezesc - Bucuresti | 0213103160; 0723233169; 0769414020 | Calea Victoriei, Nr. 16-20, pasaj Villa Cross, Sector 3, Bucuresti |
| 295. | Il Peccato, Restaurant - Bucuresti | 0213116767; 0765301300 | Franceza, Nr. 30,Sector 3, Bucuresti |
| 296. | El Pato - Restaurant Bucuresti | 0730344810; 0311072033 | Strada Dionisie Lupu, Nr. 48, sector 1 |
| 297. | Colosseum Pizza - Bucuresti | 0721243613; 0213131860; 0213121020 | Calea Victoriei, Nr. 48-50 (Pasajul Victoria), Sector 1, Bucuresti |
| 298. | Saray - Restaurant cu specific turcesc, Bucuresti | 0733135834 | Lipscani, Nr. 21, sector 3 |
| 299. | Restaurant Home - Bucatarie internationala, Bucuresti | 0722509794; 0728708216; 0729811130 | Str. Alexandru Xenopol, Nr. 1 (zona Gradina Icoanei), Sector 1, Bucuresti |
| 300. | Hugo Bar - Cafenea cu narghilele, Bucuresti | 0732397953 | Calea Victoriei, 16-18-20, sector 3 |
| 301. | Noa Restoclub - Restaurant Bucuresti | 0799747557 | Calea Victoriei, Nr 26 Sector 3 |
| 302. | Friends Pub - Bucuresti | 0728197287 | Bucovina , Nr. 6, Sector 3, Bucuresti |
| 303. | Ceai la Vlaicu - Ceainarie Bucuresti | 0727609699 | Str. Aurel Vlaicu, Nr. 47, sector 2 |
| 304. | Sweet by MarVio - Cofetarie Bucuresti | 0212105291 | Soseaua Stefan cel Mare, Nr 31, sector 2 |
| 305. | Caru\' cu Bere, Restaurant - Bucuresti | 0213137560; 0726cubere; 0726282373 | Stavropoleos , Nr. 3-5, Sector 3, Bucuresti |
| 306. | Arancini - Restaurant cu specific sicilian | 0756490490 | Str. Papadiei, Nr. 16-18, sector 3 |
| 307. | Capsa Cofetarie Bucuresti | 0213134038; 0213135999 | Calea Victoriei, Nr. 36, Sector 1, Bucuresti |
| 308. | Bomb Doner Kebap - Restaurant fast-food, Bucuresti | 0727771549 | Strada Lizeanu, Nr. 5, sector 2 |
| 309. | Casa Capsa, Restaurant - Bucuresti | 0213134038; Fax: 0213135999 | Calea Victoriei, Nr. 36, Sector 1, Bucuresti |
| 310. | Hygge - Restaurant Bucuresti | 0771114875 | Calea Victoriei, Nr. 21, sector 3 |
| 311. | Velluto - Gelaterie, Bucuresti | 0728991969 | Splaiul Independentei, Nr 2J, sector 3 |
| 312. | Boutique Du Pain - Restaurant cu specific francez, Bucuresti | 0728443300 | Academiei, Nr. 28-30, sector 1 |
| 313. | Ramada Majestic, Hotel si Restaurant - Bucuresti | 0213102715 | Calea Victoriei, Nr. 38-40, Sector 1 , Bucuresti |
| 314. | Ubuntu Coffee - Terasa, Bucuresti | 0758635771 | Splaiul Unirii, Nr. 195, sector 3 |
| 315. | Scovergaria Micai - Patiserie, cofetarie Bucuresti | 0314253670 | Calea Victoriei, Nr. 14 colt cu Lipscani 19, sector 3 |
| 316. | Colosseum, Restaurant - Bucuresti | 0721243613; 0213131860; 0219689 | Calea Victoriei , Nr. 48-50 (Pasajul Victoria), sector 1, Bucuresti |
| 317. | Capitol Hotel si Restaurant - Bucuresti | 0213158030; 0317107007 | Calea Victoriei , Nr. 29, Sector 1 , Bucuresti |
| 318. | Sare si Piper - Restaurant cu specific italian, Bucuresti | 0744663451 | Str. Viorele, nr. 26, zona Timpuri Noi, sector 4, Bucuresti |
| 319. | Events by Tonyo - Restaurant Bucuresti | 0723170007 | Aleea Hobita, Nr 1 Sector 2 |
| 320. | Point Hub - Hub Cultural, Bucuresti | 0748291815 | Str. General Eremia Grigorescu, nr. 10, sector 1, |
| 321. | La Tramvai - Terasa Bucuresti | 0729166021 | Parcul Alexandru Ioan Cuza (I.O.R). intersectie Campia Libertatii, sector 3 |
| 322. | Encore Club - Bar specializat in bere | 0786247745 | Nicolae Tonitza, nr. 13, sector 3 |
| 323. | Linea - Closer To The Moon, Bucuresti | 0757824298 | Calea Victoriei, nr. 17, sector 3 |
| 324. | Bellagio Villa Restaurant - Bucuresti | 0213440661; 0771120177 | Vrejului, Nr. 21, Sector 3, Bucuresti |
| 325. | Anika - Restaurant cu specific romanesc Bucuresti | 0726400148 | Str. Pictor Nicolae Tonitza, Nr.10, sector 3 |
| 326. | VINO - Bar de vinuri, Bucuresti | 0799944999 | Strada Mihai Eminescu, Nr. 71 |
| 327. | Cartofisserie - Restaurant cu bufet Bucuresti | 0726330960;0740215433 | Liviu Rebreanu, Nr. 4 (ParkLake Shopping Center Mall) |
| 328. | Excalibur, Restaurant - Bucuresti | 0730190364; Tel Fax: 0213145670 | Academiei, Nr. 39-41, Sector 1 , Bucuresti |
| 329. | Cercul Militar National, Restaurant - Bucuresti | 0213143735; 0213149551; Fax: 0372874921 | Constantin Mille, Nr.1-3, Sector 1, Bucuresti |
| 330. | Shiva Coffee&Tea - Cafenea Bucuresti | 0748874482 | Strada Mihai Eminescu, Nr. 73, sector 2 |
| 331. | Monza, Trattorie si Restaurant - Bucuresti | 0722661166; 0769200002; 0724802802 | Baba Novac, Nr. 25, Sector 3, Bucuresti |
| 332. | La Copac - Carciuma de jupani, Bucuresti | 0722704445 | str. Pitar Mos, nr. 23, sector 1 |
| 333. | La Impinge Tava - Bucuresti | 0721150452 | Str. Mihai Eminescu, Nr. 73, Sector 2 |
| 334. | Ambasador, Bar si Restaurant - Bucuresti | 0213159080; Fax 0213123595 | Bd. G-ral Gh. Magheru, Nr. 8-10, Sector 1, Bucuresti |
| 335. | The Temple Social Pub - Bucuresti | 0723469118 | Bd. Marasesti, Nr. 71-73 sector 4 |
| 336. | Gloria Jean\'s Coffees Romania | 0760107884 | Bd.Liviu Rebreanu, nr. 4, sector 3 - Mall Park Lake, Bucuresti |
| 337. | Shift Pub - Bucuresti | 0212112272 | Str. General Eremia Grigorescu, Nr.17 |
| 338. | Chef Gabrielle - Restaurant, Bucuresti | 0766066406 | Strada Tomis, Nr. 5A, Sector 3 |
| 339. | Saint Gelato - Gelaterie Bucuresti | 0745205405 | Bulevardul Regina Elisabeta, Nr. 26, Sector 3 |
| 340. | Sabatini Pizza, Restaurant - Bucuresti | 0314266069; 0737148520; 0784699751 | B-dul Basarabia, Nr. 108, Bucuresti |
| 341. | Lente - Restaurant pentru mic dejun si brunch, Bucuresti | 0314107585 | Dionisie Lupu, Nr 78, sector 1 |
| 342. | Lolita - Boutique de dulciuri Bucuresti | 0757013453 | Strada Vasile Lascar, Nr. 212, sector 2 |
| 343. | Templul Soarelui, Restaurant chinezesc - Bucuresti | 0212111693; 0723743878 | Vasile Lascar, Nr. 205, Sector 2, Bucuresti |
| 344. | Templul Soarelui, Restaurant chinezesc - Bucuresti | 0212111693; 0723743878 | Vasile Lascar, Nr. 205, Sector 2, Bucuresti |
| 345. | Thalia - Restaurant cu bucatarie internationala | 0219993 | Strada Cuza Voda, Nr. 147, sector 4 |
| 346. | Amnezia Caffe - Bistrou romanesc Bucuresti | 0770917737; 0724140931 | Str. Sf. Apostoli, Nr. 21, sector 4, |
| 347. | French Bakery, Cofetarie - Bucuresti | 0213114518 | Benjamin Franklin, Nr. 9, Sector 1, Bucuresti |
| 348. | Pasticceria Giuseppina Cofetarie - Bucuresti | 0730283947 | Soseaua Stefan cel Mare, Nr.46, Sector 2, Bucuresti |
| 349. | Monza, Trattorie si Restaurant - Bucuresti | 0724802802; 0722661166; 0769200002 | Baba Novac, Nr. 25, Sector 3, Bucuresti |
| 350. | The Old Sibiu - Restaurant evenimente Bucuresti | 0723602560; 0723637769; 0721172390 | Str. Ion Otetelesanu,, Nr. 3A-3B, Sector 1 |
| 351. | Creamier - Cafenea Bucuresti | 0741234567 | Strada Benjamin Franklin, Nr. 5, Sector 1 |
| 352. | Torna Fratre Restaurant - Bucuresti | 0212103557; 0784111890 | Tunari, Nr. 34, Sector 2, Bucuresti |
| 353. | Origo Coffee Shop - Bucuresti | 0757086689 | Lipscani, Nr. 9,Sector 3, Bucuresti |
| 354. | Contesa, Restaurant - Bucuresti | 0731831891; 0722244214; 0213317171 | Sibiel, Nr. 5, sector 4, Bucuresti |
| 355. | CAJU by Joseph Hadad - Braserie, Bucuresti | 0751144545 | Nicolae Golescu, Nr. 16, sector 1 |
| 356. | Energiea - Pub Bucuresti | 0736374432 | Str. Actor Ion Brezoianu, Nr. 4, Sector 5 |
| 357. | DA Giulio - Pizzerie, Bucuresti | 0212420385 | Colentina, Nr. 23 A, sector 2 |
| 358. | Mazzaj Cafe - Restaurant cu specific libanez, Bucuresti | 0757292398 | Splaiul Unirii, Nr. 162, sector 4 |
| 359. | Paine si Vin - Bar cu vinuri, Bucuresti | 0755028448 | Str. Actor Ion Brezoianu, Nr. 4, sector 5 |
| 360. | Pizza Bar - Pizzerie, Bucuresti | 0746013623 | Lanariei, nr. 5, sector 4 |
| 361. | De Cartier - Restaurant de tip familial, Bucuresti | 0213305556 | Str. Viorele, Nr. 57A, sector 4 |
| 362. | Cafe Verona - Cafenea Bucuresti | 0732003060 | Str. Arthur Verona, Nr. 13, sector 1, |
| 363. | Chocolat Ateneu - Boutique restaurant cu livrare de prajituri in Bucuresti | 0743777807; 0744507506 | Strada Episcopiei, Nr. 6, Sector 1, Bucuresti |
| 364. | Pizza Hut - Bucuresti | 0740121903 | Bd. Regina Elisabeta, nr. 15-19, sector 3 , |
| 365. | Hanul Berarilor Interbelic, Restaurant - Bucuresti | 0213368009; 0729400800 | Poenaru Bordea , Nr. 2, Sector 5, Bucuresti |
| 366. | Tabiet 41 - Restaurant, Bucuresti | 0314260278 | Strada Viorele, nr.59, sector 4 |
| 367. | Barocco Bar - Bucuresti | 0755028028; 0740114132 | Domnita Anastasia, Nr.10 (In spatele McDonalds Regina Elsiabeta), Bucuresti |
| 368. | Ambasador, Restaurant - Hotel Ambasador, Bucuresti | 0213159080 | Bd. G-ral Ghe. Magheru, Nr. 8-10, Sector 1, Bucuresti |
| 369. | Panik & Pub - Pub, Bucuresti | 0728264360 | Str. Mihai Eminescu, Nr. 33 |
| 370. | Salon Golescu - Bar specializat in cocktailuri, Bucuresti | 0314360338 | Strada Nicolae Golescu, Nr 17, sector 1 |
| 371. | Cofetaria Ina - Bucuresti | 0723300213 | Str. C-tin Radulescu Motru, Nr. 6, Sector 4 |
| 372. | Elisabeta, Restaurant - Bucuresti | 0727703703; 0724323132 | Bd. Regina Elisabeta, Nr. 45, Sector, Bucuresti |
| 373. | Hop Garden - Restaurant cu preparate la gratar, Bucuresti | 0770448443 | Splaiul Unirii, Nr. 225, sector 3 |
| 374. | Acuarela Bufet - Bucuresti | 0745662889; 0741403238; 0721483051 | Polona, Nr. 40,Sector 1, Bucuresti |
| 375. | Amareto, Cofetarie - Bucuresti | 0736659592; 0723830104; 0723830104 whatsapp | Sos. Stefan cel Mare , Nr. 36, Sector 2 (vis-a-vis de Circul Metropolitan Bucuresti), Bucuresti |
| 376. | Maison des Crepes - Clatitarie Bucuresti | 0770802524 | Strada Mihai Eminescu, Nr. 38, Sector 2 |
| 377. | Volare - Pizzerie, Bucuresti | 0730622600 | Calea Vacaresti, Nr.203B, sector 4 |
| 378. | Cucina di casa - Pizzerie, Bucuresti | 0735868318 | Calea Vacaresti, Nr. 230, sector 4 |
| 379. | Bouzouki - Restaurant specific grecesc, Bucuresti | 0787528003 | Bulevardul Sincai Gheorghe, Nr. 3, sector 4 |
| 380. | Athénée Palace Hilton,Cafenea,Baruri - Bucuresti | 0213033777; 0213152121; Fax: 0213152121 | Episcopiei, Nr. 1-3, Sector 1 , Bucuresti |
| 381. | Journey Pub - Bucuresti | 0752285286 | Strada George Enescu, Nr. 25, sector 1 |
| 382. | Ergo - Restaurant vegan, Bucuresti | 0770747559 | Bd. Unirii, Nr 5, sector 4 |
| 383. | Casa Oamenilor de Stiinta - Restaurant, Bucuresti | 0726664227; 0722926012; 0769293579 | P-ta Lahovari, nr. 9, Sector 1 |
| 384. | Lugo - Restaurant cu specific mediteranean, Bucuresti | 0785238910 | George Enescu, Nr. 23, sector 1 |
| 385. | M60 - Cafenea Bucuresti | 0314100010 | Strada Mendeleev, Nr 2, sector 1 |
| 386. | Dolce Principessa Cofetarie - Bucuresti | 0212115155; 0735213101 | Calea Dorobanti, nr. 50A, sector 1, Bucuresti |
| 387. | Benihana - Restaurant cu specific japonez | 0751169889 | Calea Dorobantilor, Nr. 5-7 Hotel Howard Johnson, sector 1, |
| 388. | Trattoria Don Vito - Restaurant Bucuresti | 0733333021 | Str. Mendeleev, Nr. 1, Sector 1 |
| 389. | Jaristea, Restaurant - Bucuresti | 0721961936 ; 0775609233 ; 0770948868 | George Georgescu, Nr. 50-52, Sector 4, Bucuresti |
| 390. | Miss Ale - Espresso Bar, Bucuresti | 0371394059 | Calea Victoriei, Nr. 100, sector 1 |
| 391. | Cofetaria Casandra - Bucuresti | 0757252466 | B-dul. Magheru, Nr. 32-36, Sector 1 |
| 392. | La Ciurucuri - Restaurant cu specific international, Bucuresti | 0752850850 | Piata Valter Maracineanu, Nr 1-3, sector 1 |
| 393. | Savart - Arta savorilor Gourmet, Bucuresti | 0743575757 | Str. George Enescu, Nr. 2-4, sector 1 |
| 394. | KFC Romana, Fast Food - Bucuresti | 0740121904 | Bd. G-ral Gh. Magheru , Nr. 28-30, Sector 1 , Bucuresti |
| 395. | Camera din fata - Ceainaria Bucuresti | 0213111512 | Str. Mendeleev, Nr. 22, sector 1, langa Piata Amzei |
| 396. | Wine Ambassador - Bar de vinuri, Bucuresti | 0733182037 | Intrarea Biserica Alba, nr.1, sector 1 |
| 397. | Patiseria Tineretului - Bucuresti | 0761116622 | Bd. Gheorghe Sincai, Nr 2A, sector 4 |
| 398. | Ressu Restaurant & Lounge - Bucuresti | 0723774485; 0731607646; | B-dul Camil Ressu, Nr. 70 A, Sector 3, Bucuresti |
| 399. | Naser 2 - Restaurant traditional libanez Bucuresti | 0799997111 | Str. Maica Domnului, Nr. 5B, Sector 2 |
| 400. | Pizza Hut - Bucuresti | 0740121901 | Calea Dorobantilor , Nr. 5-7, Sector 1 , Bucuresti |
| 401. | La Dolceria, Cofetarie - Bucuresti | 0724315256 | Basarabia, Nr.55, M22, Sector 3, Bucuresti |
| 402. | L\'Amande - Deserturi fara gluten, Bucuresti | 0744639549 | Str. Lanariei, Nr. 93-95, sector 4 |
| 403. | Terminus - Pub, Bucuresti | 0730222555 | Str. George Enescu, nr. 5, sector 1, |
| 404. | Cald si Bun, Catering - Bucuresti | 0212339457; 0737526215 | Hatmanul Arbore, Nr. 11, Sector 1, Bucuresti |
| 405. | Haute Pepper - Restaurant cu specific international, Bucuresti | 0726284280 | Bd. Unirii, nr 2, sector 4 |
| 406. | Primus Pub - Bucuresti | 0732222666 | George Enescu, Nr. 3, sector 1 |
| 407. | Tropicana, Restaurant - Bucuresti | 0724614723 (Niculae Adrian); 0724571502 (Niculae Valentina) | Grigore Ionescu, Nr 94, Sector 2, Bucuresti |
| 408. | La Baraca - Bar & Grill Bucuresti | 0758986045 | Str. Pargarilor, Nr. 17bis, sector 2 |
| 409. | Red Angus Steakhouse - Restaurant Bucuresti | 0756600000 | Piata Amzei, Nr. 10-22Sector 1, |
| 410. | La Calinescu - Restaurant cu specific romanesc, Bucuresti | 0788472725; 0213310750 | Strada Piscului, Nr. 16, sector 4 |
| 411. | Casa Brancoveanu Restaurant - Bucuresti | 0724640000; 0314245890; 0762643010 | Caramidarii de Jos, Nr.14, Sector 5, Bucuresti |
| 412. | M&I Clasic Cuisine - Fast-food si catering Bucuresti | 0732948408 | Strada Baicului, Nr 104 Sector 2 |
| 413. | Barrio - Restaurant & bar, Bucuresti | 0733222777 | Biserica Amzei, Nr. 30, sector 1 |
| 414. | Casa Diham - Restaurant Bucuresti | 0213406006; 0727171220 | Bd. Nicolae Grigorescu, Nr. 1 A, Sector 3 |
| 415. | Tonka Soul Café - Bucuresti | 0371445255 | Biserica Amzei , Nr. 19, Sector 1, Bucuresti |
| 416. | Paninaro - Restaurant pentru mic dejun si brunch | 0771783619 | Strada Luterana, Nr 3, sector 1 |
| 417. | Gusto e Passione - Gelateria Artigianale, Bucuresti | 0755555453 | Calea Victoriei, Nr. 87, sector 1 |
| 418. | Alouette - Restaurant cu specific international, Bucuresti | 0746339793 | Splaiul Unirii, Nr. 168, sector 4, |
| 419. | Gradina Eden - Terasa Bucuresti | 0722185368 | Calea Dorobanti, Nr. 44-46 sector 1 |
| 420. | Club B52 - Bucuresti | 0753315563 | 11 Iunie, N. 50, Sector 5, Bucuresti |
| 421. | Grapes - Bar cu vinuri, Bucuresti | 0770463287 | Bdul. Marasesti, nr.2B, sector 4 |
| 422. | Sweetology - Gelaterie, Bucuresti | 0734444889 | Calea Victoriei, Nr. 122, sector 1 |
| 423. | Trenta Pizza - Bucuresti | 0219645 | Bd.Chisinau, Nr.5 , sector 2 , Bucuresti |
| 424. | Pizzeria Florina - Bucuresti | 0219285 | Strada Nicolae Pascu, nr.1A, sectorul 3 |
| 425. | Della Casa Pizza - Bucuresti | 0721312666; 0746577383; 0768720228 | Sos. Gherase, Nr. 96, (Zona Doamna Ghica) Sector 2, Bucuresti |
| 426. | Ribs Bar&Grill - Restaurant american, Bucuresti | 0720788818 | Str. Constantin Brancusi, Nr. 13, Complex Potcoava, sector 3 |
| 427. | Bar A1 - Bucuresti | 0770901409 | Piata Amzei, Nr 1, sector 1 |
| 428. | Velocita - Gelaterie, Bucuresti | 0739889189 | Calea Victoriei, Nr. 122, sector 1 |
| 429. | Fabrica, Club,Pub, Tersa - Bucuresti | 0753227422; 0753315563; 0749116508 | 11 iunie, Nr,50, Sector 5, Bucuresti |
| 430. | Bohemia Tea House, Ceainarie - Bucuresti | 0727333631 | Poiana Narciselor, Nr. 1 (vizavi de Conservator), Sector 1, Bucuresti |
| 431. | Gelato Mio - Magazin de inghetata Bucuresti | 0765799379; 0720044495; 0744555599 | Str. Polona, Nr. 76, sector 1 |
| 432. | Fika18 - Croissanterie, Bucuresti | 0770663982 | Calea Victoriei, Nr. 101, sector 1 |
| 433. | Boema 33 - Restaurant, Bucuresti | 0722295463 | Bd. Dacia, nr. 33, sector 1 (Piata Romana) |
| 434. | Gedi, Restaurant - Bucuresti | 0371119901; 0734207029 | Bd. Basarabia, Nr. 176 B, Sector 2, Bucuresti |
| 435. | B3ton - RestoBar, Bucuresti | 0217963684 | Bulevardul Marasesti, Nr. 2B, sector 4 |
| 436. | Krisperie - Restaurant fast-food, Bucuresti | 0762888844 | Strada Doamna Ghica, Nr. 235, sector 2 |
| 437. | Ivan\'s bar & grill - Restaurant traditional, Bucuresti | 0723893545;0737276284 | Bulevardul Basarabia, Nr. 170 - 174, sector 2 |
| 438. | Trattoria Mezzaluna - Restaurant specific italian Bucuresti | 0729591469 | Calea Dorobanti, Nr. 63, sector 1 |
| 439. | Nicolai To Go - Bistro Bucuresti | 0741600006 | Calea Dorobantilor, Nr. 67, sector 1 |
| 440. | Trafalgar Pub - Bucuresti | 0212113151; 0766625805 | David Emanuel , Nr. 4A, Sector 1, Bucuresti |
| 441. | Trattoria la Nave - Restaurant Bucuresti | 0743454626 | Sos. Pantelimon, Nr. 264, Sector 2 |
| 442. | Coolinart - Gastropub Bucuresti | 0772017955 | Calea Victoriei, Nr. 142-148, sector 1 |
| 443. | Ciorbarie - Restaurant cu supe si ciorbe, Bucuresti | 0785610628 | Calea Dorobanti, Nr. 73, sector 1 |
| 444. | KLANdestin - Restaurant Bucuresti | 0731954592 | Str. Liviu Rebreanu, Nr. 6A, Sector 3 |
| 445. | Monte Carlo Cismigiu, Restaurant - Bucuresti | 0213131344 | Parcul Cismigiu, Parcul Cismigiu, Sector 1 , Bucuresti |
| 446. | Animaletto Pizza Bar - Bucuresti | 0755019098 | Strada Visarion, Nr 10, sector 1 |
| 447. | Monte Carlo Cismigiu, Restaurant - Bucuresti | 0213131344 | Parc Cismigiu, Sector 1, Bucuresti |
| 448. | Joy House - Restaurant Bucuresti | 0730443232 | Str. Teiul Doamnei, Nr. 9A, Sector 2 |
| 449. | Jerry\'s Pizza - Bucuresti | 0373303030 | Calea Vitan, Nr. 236, Sector 3, Bucuresti |
| 450. | Ceramic Cafe - Bucuresti | 0774007364 | I.C. Visarion, Nr 20, sector 1 |
| 451. | Bacania Veche - Bistro si pravalie Bucuresti | 0752202103; 0212101222 | Barbu Vacarescu, Nr. 49, sector 2 |
| 452. | Decadence - Bar & Restaurant | 0741828489 | Strada Constantin Daniel, nr. 11, sector 1 |
| 453. | Refugiu - Restaurant Bucuresti | 0763478438;0727626981 | Strada Otesani, Nr 73 , Sector 2 |
| 454. | The Canteen - Restaurant Bucuresti | 0735517630 | Str. Barbu Vacarescu, Nr. 44, Bl. 7 Sector 2 |
| 455. | Babylon Fast Food - Bucuresti | 0799666267 | Soseaua Pantelimon, nr. 255, sector 2 |
| 456. | Restaurant Paunita - Bucuresti | 0724145707 | Bulevardul Nicolae Grigorescu, Nr. 31A, sector 3 |
| 457. | Restaurant Ceaun | 0756090680 | Strada Maica Domnului, Nr. 54-56, sector 2 |
| 458. | Ciorbe si Placinte - Restaurant cu specific romanesc, Bucuresti | 0755993070 | B-dul Iancu de Hunedoara, Nr. 64, sector 1 |
| 459. | Ganesha Caffe & Garden - Bucuresti | 0764263742 | Str. Barbu Vacarescu, nr. 71, sector 2, |
| 460. | Sabatini Pizza - Bucuresti | 0770227880; 0766606637; 0731876441 | Teiul Doamnei, Nr. 15, Sector 2, Bucuresti |
| 461. | Ciccio - Pizzerie Bucuresti | 0745515510 | Strada Henri Coanda, Nr. 28 sector 1 |
| 462. | Sabatini Pizza - Bucuresti | 0212428725; 0731876441; 0766606637 | Teiul Doamnei , Nr 15, Sector 2, Bucuresti |
| 463. | La Gafe - Restaurant traditional Bucuresti | 0721389446 | Str Dorin Pavel, Nr 1, sector 2 |
| 464. | Circus Pub - Restaurant cu burgeri, Bucuresti | 0725180680 | Bulevardul Lacul Tei, Nr 65, sector 2 |
| 465. | Friddi - Gelaterie, Bucuresti | 0314313295 | Str. Vasile Alecsandri, Nr. 4, sector 1 |
| 466. | Casa Dante - Restaurant cu specific italian, Bucuresti | 0314358069 | Strada Rotunda, nr 4C, sector 3 |
| 467. | Il Cantuccio, Restaurant - Bucuresti | 0722572957 (Sef unitate: Baieticu Ioana); 0735281669 (Sef unitate: Otvos Gabriela); 0724540839 (Manager: Florea Valentin) | Fabrica de Chibrituri , Nr. 2, Rond Autogara Filaret, sector 4, Bucuresti |
| 468. | Dabeef - Restaurant Bucuresti | 0739835658 | Calea Floreasca, Nr. 111-113, Sector 1 |
| 469. | E3 by Entourage - Restaurant Bucuresti | 0734966889 | Calea Floreasca, Nr. 111-113, Sector 1 |
| 470. | Il Cantuccio, Restaurant - Bucuresti | 0722572957 (Sef unitate: Baieticu Ioana); 0735281669 (Sef unitate: Otvos Gabriela); 0724540839 Manager: Florea Valentin) | Fabrica de Chibrituri, Nr. 2, Rond Autogara Filaret, sector 4, Bucuresti |
| 471. | Krishna Caffe - Cafenea Bucuresti | 0729745988;0740133254 | Bd. Mihail Kogalniceanu, Nr. 17, sector 5, |
| 472. | Capital Plaza, Hotel si Restaurant - Bucuresti | 0372080050; 0372080081 | Bd.Iancu de Hunedoara, Nr. 54, Sector 1, Bucuresti |
| 473. | Bellini Garden - Restaurant cu specific italian, Bucuresti | 0722100111; 0314278776 | str. General Henri Mathias Berthelot, nr. 44, sector 1 |
| 474. | Tulin, Restaurant libanez - Bucuresti | 0213144001; 0762212675 | Pictor Constantin Stahi, Nr. 2, Sector 1, Bucuresti |
| 475. | Capital Plaza, Hotel si Restaurant - Bucuresti | 0372080080; Fax: 0372080081 | Bd. Iancu de Hunedoara, Nr. 54, Sector 1, Bucuresti |
| 476. | AVA Bistro - Restaurant si catering, Bucuresti | 0770888222 | Strada Dorin Pavel, Nr. 15, sector 2 |
| 477. | Tosca Food - Pizzerie Bucuresti | 0756435785;0757170957 | Strada Intrarea Muncii, Nr. 23, sector 3 |
| 478. | La Cantine de Nicolai, Restaurant - Bucuresti | 0725210608 | Povernei, Nr. 15-17, Sector 1, Bucresti |
| 479. | Edo Sushi - Restaurant cu specific japonez, Bucuresti | 0735111095 | Stirbei Voda, Nr 84A, sector 1 |
| 480. | La Finca by Alioli - Restaurant Bucuresti | 0767150500 | Str. Caderea Bastiliei, Nr. 78, Sector 1, |
| 481. | Bellini Pizza - Bucuresti | 0314278776 | General Henri Matias Berthelot, Nr. 44,Sector 1, Bucuresti |
| 482. | Allegro Restaurant - Bucuresti | 0751055536; 0744649177 | Bd. Nicolae Grigorescu, Nr. 20A, Sector 3, Bucuresti |
| 483. | Rocca by The Jar - Gastropub Bucuresti | 0770857841 | Str. Pictor Theodor Aman, Nr. 36, sector 1 |
| 484. | Irina Casa cu Prajituri, Cofetarie - Bucuresti | 0731323192 | Liviu Rebreanu, Nr.12, bl. K2, Cartier Titan Sector 3, Bucuresti |
| 485. | Blue Margarita - Restaurant cu specific mexican Bucuresti | 0770944822 | Strada Povernei, Nr. 15-17, sector 1 |
| 486. | Vio Cofetarie - Bucuresti | 0213412082 | Bd. Nicolae Grigorescu, Nr. 20, Sector 3, Bucuresti |
| 487. | Restaurant Sole - Bucuresti | 0722587589 | Bd. Iancu de Hunedoara, Nr. 48, etaj 15, sector 1 |
| 488. | Shaormeria Titan - Fast food Bucuresti | 0771332861; 0755864686 | Bd. Nicolae Grigorescu, Nr. 20, Sector 3 |
| 489. | Die Deutsche Kneipe - Restaurant cu specific german | 0722284560 | Str. Stockholm, nr. 9, sector 1, |
| 490. | Brigitte - Cofetarie Bucuresti | 0727891345; 0745779722 | str. Cristea Mateescu, Nr.77, Sector 2 |
| 491. | Nan Jing, Restaurant chinezesc - Bucuresti | 0213181285; 0726103407 | G-ral Gheorghe Manu, Nr. 2-4 (Hotel Minerva), Sector 1, Bucuresti |
| 492. | Mahala - Restaurant Bucuresti | 0729003002 | Calea Rahovei, Nr. 147- 153, sector 5 |
| 493. | Costelaria, Restaurant - Bucuresti | 0314055095 | Calea Rahovei, Nr. 147-150 , Sector 5, Bucuresti |
| 494. | Casa Morarilor - Restaurant, Bucuresti | 0765064409 | Soseaua Morarilor, Nr. 2 |
| 495. | Arome - Restaurant vegetarian/vegan, Bucuresti | 0749109639 | Luigi Cazzavillan, Nr. 25, sector 1 |
| 496. | Flair Angel - Bar specializat in cocktailuri, Bucuresti | 0769771991 | Calea Rahovei, Nr. 147-153, sector 5 |
| 497. | Baroque Events & Garden - Restaurant Bucuresti | 0726350802 | Calea Rahovei, Nr. 145, Sector 5 |
| 498. | La Taifas, Bistro - Bucuresti | 0723197156; 0212127788 | Mihail Moxa, Nr. 12, Sector 1 , Bucuresti |
| 499. | The President, Restaurant - Bucuresti | 0720047541; 0760087384; 0766747379 | Bd. Lacul Tei, nr. 145 (in Parcul Tei - pe malul lacului), Sector 2, Bucuresti |
| 500. | Bistro La Taifas, Restaurant - Bucuresti | 0212127788; 0723197156 | Gheorghe Manu, Nr. 16, Sector 1, Bucuresti |
| 501. | Bistro raw vegan, Restaurant - Bucuresti | 0726605501 | Transilvaniei, Nr. 11, Sector 1, Bucuresti |
| 502. | Suzana Ribs & Wings - Restaurant cu specialitati texane, Bucuresti | 0785444466 | Calea Rahovei, Nr. 147-153, Sector 5, Palatul Bragadiru |
| 503. | Japanos - Restaurant cu specific japonez, Bucuresti | 0771621192 | Calea Dorobantilor, nr. 116-122, spatiul comercial nr. 3, parter, sector 1 |
| 504. | The Owl Cocktail House - Bar specializat in cocktailuri, Bucuresti | 0743260923 | str. Stirbei Voda, Nr. 104-106, sector 1 |
| 505. | Domino\'s Pizza - Bucuresti | 0736500200 | Bd. Iancu de Hunedoara, Nr. 38, Sector 1 , Bucuresti |
| 506. | Pasterra - Restaurant cu mancare specifica din Abruzzo, Bucuresti | 0751222668 | strada Comandor Eugen Botez, Nr. 27, sector 2 |
| 507. | Veranda Casa Frumoasa - Restaurant Bucuresti | 0733735932 | Str. Clopotarii Vechi, Nr. 5, sector 1 |
| 508. | Domino\'s Pizza, Fast food - Bucuresti | 0736500200 | Bd. Iancu de Hunedoara, nr. 38, sector 1 , Bucuresti |
| 509. | La Taifas, Restaurant - Bucuresti | 0212127788; 0723197156 | Gheorghe Manu, Nr. 16, sector 1 , Bucuresti |
| 510. | Donerboom - Fast food Bucuresti | 0749043440 | Str.Barbu Vacarescu, Nr. 102, Sector 2, |
| 511. | J\'ai Bistrot - Gastropub, Bucuresti | 0790229922 | Calea Grivitei, nr. 55, sector 1 |
| 512. | Cofetaria Zora - Bucuresti | 0771119563 | Strada Uranus, Nr. 100, Sector 5 |
| 513. | Cannoleria - Cafenea Bucuresti | 0753325071 | Str.Cornescu, Nr. 4, sector 1, |
| 514. | Dines, Restaurant evenimente - Bucuresti | 0213362474; 0723634741; 0727968325 (Predescu Constantin) | Cutitul de Argint, Nr.12 (langa Arenele Romane) Sector 4, Bucuresti |
| 515. | Sara Green - Restaurant vegan, Bucuresti | 0774962246;0765191076 | Bulevardul Lascar Catargiu, Nr 43, Sector 1 |
| 516. | The Artist Restaurant - Bucuresti | 0728318871 | Calea Victoriei, Nr.147, sector 1 |
| 517. | Dorobanti 140, Cofetarie - Bucuresti | 0723500025 | Calea Dorobantilor, Nr.140,Sector 1, Bucuresti |
| 518. | Marshal Garden, Restaurant - Bucuresti | 0213194444; 0213194445; 0758105310 | Calea Dorobantilor, Nr. 50 B, Sector 1, Bucuresti |
| 519. | Za Lokal - Restaurant pentru mic dejun si brunch, Bucuresti | 0770557931 | Calea Victoriei, Nr 214, sector 1 |
| 520. | Botanic - Fine dining, Bucuresti | 0721261262 | Calea Piscului, sector 4 |
| 521. | Black Habit - Cafenea | 0770357382 | Calea Grivitei, Nr. 77, sector 1 |
| 522. | Game On - Restaurant Bucuresti | 0745055137 | Calea Floreasca, Nr. 91-111, sector 1 |
| 523. | City Grill Restaurant - Bucuresti | 0722446766; 0724599886 | Bulevardul Lascar Catargiu, Nr. 56, Sector 1, Bucuresti |
| 524. | Geste - Cofetarie Bucuresti | 0730743783 | Strada Dobrota, Nr. 16, Sector 2 |
| 525. | Trattoria Buongiorno - Restaurant cu specific italian, Bucuresti | 0722446766 | Bdul. Lascar Catargiu, Nr. 56, sector 1 |
| 526. | Sara, Restaurant si Bacanie - Bucuresti | 0749770770 | Calea Floreasca, Nr. 111-113, Sector 2, Bucuresti |
| 527. | Skybar - Bucuresti | 0724759227 | Calea Dorobanti, Nr. 155, Etaj 5, sector 1 |
| 528. | Moritz Eis - Gelaterie Bucuresti | 0722363122 | Strada Frederic Chopin, Nr. 10-12, Sector 2 |
| 529. | Old Kitchen - Restaurant Bucuresti | 0732773537 | Str. Sfintii Voievozi, Nr. 13, Sector 1 |
| 530. | VacaMuuu - Restaurant cu specific american, Bucuresti | 0731351135 | Calea Floreasca, Nr.111, sector 1 |
| 531. | VacaMuuu - Restaurant si bacanie Bucuresti | 0731351135 | Calea Floreasca, Nr. 111, sector 1 |
| 532. | Parliament, Restaurant - Bucuresti | 0214119990; 0214119991; 0721332397 | Izvor , Nr. 106, Sector 5 , Bucuresti |
| 533. | Parliament, Restaurant - Bucuresti | 0214119990; 0214119991; 0721332397 | Str. Izvor, Nr. 106, Sector 5 , Bucuresti |
| 534. | Rekolta - Restaurant, Bucuresti | 0721334564 | Calea Floreasca, Nr. 102, sector 1 |
| 535. | Coclinta Brasserie- Restaurant cu specific romanesc, Bucuresti | 0770238774 | Calea Victoriei, Nr. 153, sector 1 |
| 536. | BistroMar - Restaurant pescaresc, Bucuresti | 0740085088 | Strada Banul Antonache, Nr. 55-27, sector 1 |
| 537. | Ivan Pescar & Scrumbia Bar - Restaurant pescaresc, Bucuresti | 0729384828 | Str. Uranus, nr 150, cladirea The Ark, parter, sector 5 |
| 538. | Hanul Haiducilor, Restaurant - Bucuresti | 0213307207; 0771756566 | Pridvorului, Nr. 25 (In incinta Strandul Copiilor Vacaresti) , Sector 4, Bucuresti |
| 539. | Ilioara - Restaurant si piscina Bucuresti | 0766379289; 0721244247 | Strada Ilioara, Nr. 16L, sector 3 |
| 540. | Aphrodisia - Ceainarie Bucuresti | 0788129291 | Intrarea Tudor Stefan, nr. 39, sector 1 |
| 541. | Hanul Vacaresti - Restaurant fast-food, Bucuresti | 0786200300 | Strada Pridvorului, nr. 23, sector 4 |
| 542. | Pata Negra - Restaurant cu specific spaniol, Bucuresti | 0734349076 | Strada Washington, Nr 11, sector 1 |
| 543. | Kicen - Ciorbe de casa, Bucuresti | 0751012221 | str. Dr. Staicovici, nr. 43, sector 5 |
| 544. | Pot Stories - Restaurant, Bucuresti | 0753348248 | Calea Floreasca, nr. 111-113, sector 1 |
| 545. | Old School, Restaurant - Bucuresti | 0744105445; 0745110362 | Calea Plevnei, Nr. 61, Sector 6, Bucuresti |
| 546. | Mozzafiato - Restaurant Bucuresti | 0741190190 | Calea Floreasca, Nr. 133-137, Sector 1 |
| 547. | Camizo, Restaurant - Bucuresti | 0733018778 | Prisaca Dornei, Nr.10A, Sector 3, Bucuresti |
| 548. | Yoshi Sushi & Teppanyaky - Restaurant japonez Bucuresti | 0314290280; 0749979521 | Str. Banu Antonache, Nr. 40-44, sector 1 |
| 549. | Elzada - Restaurant Bucuresti | 0724519898; 0722214001; 0723019747 | Soseaua Oltenitei, Nr. 13-15, Sector 4 |
| 550. | Mon Cheri, Restaurant - Bucuresti | 0748750029; 0771693817; 0212310908 | Tudor Stefan, Nr. 16 (langa P-ta Dorobanti), sector 1, Bucuresti |
| 551. | SupaDupa - Restaurant cu supe si ciorbe, Bucuresti | 0739344281 | Strada Popa Tatu, Nr. 94, sector 1 |
| 552. | PengYou - Restaurant specific chinezesc Bucuresti | 0787748272 | Str. Occidenului, Nr. 11, Sector 1 |
| 553. | Trattoria Angoli - Restaurant cu specific italian, Bucuresti | 0728264654 | Calea Piscului, Oraselul Copiilor, Sector 4 |
| 554. | Gabbiano - Restaurant cu specific italian Bucuresti | 0757115272 | Str. Banul Antonache, Nr. 40-44, sector 1 |
| 555. | Tasting Room by Ethic Wine - Restaurant Bucuresti | 0754993953 | Putul lui Zamfir, Nr. 64, sector 1 |
| 556. | Ana Pan Cofetarie - Bucuresti | 0216373536; 0730262726; 0212332241 | Stirbei Voda, Nr. 166,Sector 1, Bucuresti |
| 557. | Vibes Cafe - Restaurant terasa Bucuresti | 0788221270 | Liviu Rebreanu, Nr. 29, Sector 3 |
| 558. | Refresh - Restaurant Bucuresti | 0771189347 | Strada Johann Sebastian Bach, Nr. 3, sector 2 |
| 559. | Turkish Clasis - Restaurant, Bucuresti | 0721503011 | Sos Viilor, nr.27, sector 5 |
| 560. | BigBoy - Pizzerie Bucuresti | 0725570450; 0760925495 | Soseaua Vergului, Nr. 8, Sector 3 |
| 561. | Alba, Restaurant - Bucuresti | 0213404491; 0722820287 | Liviu Rebreanu , Nr. 29 A, Sector. 3, Bucuresti |
| 562. | Delicii Gelato - Gelaterie artizanala Bucuresti | 0721632019 | Str. Constantin Aricescu, Nr. 65, sector 1 |
| 563. | La Matache Restaurant (comenzi online si livrari la domiciliu) | 0213107327; 0213107337; 0213118888 | P-ta. Dr. Haralambie Botescu, Nr. 2, Sector 1, Bucuresti |
| 564. | Grano - Restaurant cu specific italian, Bucuresti | 0212312386 | Strada Putul lui Zamfir, Nr. 40, sector 1 |
| 565. | Taverna Fierarilor - Restaurant Bucuresti | 0758105629 | Str.Ilioara, Nr. 18, Sector 3, |
| 566. | Bocca Lupo - Restaurant cu specific italian, Bucuresti | 0314050050 | Strada Dr. Lister, nr. 1, sector 5 |
| 567. | Maccheroni - Restaurant Bucuresti | 0722259360 | Str. George Calinescu, Nr. 51, Sector 1, |
| 568. | 5ENSI by BeanZ Cafe - Bucuresti | 0733888555 | Bd. Aviatorilor, Nr. 8A, sector 1, Bucuresti |
| 569. | Springtime, Restaurant - Bucuresti | 0742224736; 0742224743; 0742224739 | Piata Victoriei, Bl. A6 Sector 1, Bucuresti |
| 570. | Kanpai Bistro, Restaurant japonez si catering - Bucuresti | 0755526724; 0371184961 | George Calinescu, Nr.49, Sector 1, Bucuresti |
| 571. | KALI - Restaurant cu bufet, Bucuresti | 0725988889 | Strada Buzesti, Nr. 71, Sector 1 |
| 572. | Fayn Urban Eatery - Restaurant, Bucuresti | 0723257692 | Strada Buzesti, nr. 71, sector 1 |
| 573. | The Mark - Restaurant pub Bucuresti | 0758505500 | Calea Grivitei, Nr. 84-98, sector 1 |
| 574. | Tuk Tuk - Restaurant cu specific thailandez, Bucuresti | 0311099670;0741422489 | Putul lui Zamfir, nr. 15, sector 1 |
| 575. | Andy Park Ballroom - Salon de evenimente Bucuresti | 0724607607 | Soseaua Oltenitei, Nr. 13-15, Sector 4 |
| 576. | ChefBox - Restaurant, Bucuresti | 0728800528 | Buzesti, Nr. 57-59, sector 1 |
| 577. | Neopolis Family Pizza - Bucuresti | 0734895330; 0770995973 | Gheorghe Titeica, Nr. 101, Sector 2 |
| 578. | Benjamins Restaurant - Nunti, botezuri, evenimente, Bucuresti | 0724248428 | Sos.Vitan-Barzesti, Nr. 5, Sector 4, Bucuresti |
| 579. | Zen Sushi - Restaurant japonez, Bucuresti | 0722161718 | Str. George Calinescu, nr. 15, Sector 1 |
| 580. | White Horse Pub & Restaurant - Bucuresti | 0212312795; Fax.0212302151 | George Calinescu , Nr. 4A, Sector 1 , Bucuresti |
| 581. | White Horse Pub & Restaurant - Bucuresti | 0212312795 | George Calinescu , Nr. 4A, Sector 1, Bucuresti |
| 582. | Ana Cofetarie Bucuresti | 0212300436; 0735554986 | Lt. Av. Radu Beller, Nr. 6 Sector 1, Bucuresti |
| 583. | L\'incontro, Restaurant - Bucuresti | 0732113702; 0751906137; 0767241745 | Postavarul, Nr. 92, Sector 3, Bucuresti |
| 584. | Photo Cake Cofetarie Bucuresti | 0729737619 ; 0723564103 | Obolului, Nr.9, Sector 4, Bucuresti |
| 585. | Myti Pizza - Pizzerie, Bucuresti | 0734378358; 0744478578 | Bulevardul 1 Decembrie, Nr 7 D, sector 3 |
| 586. | Eleven - Restaurant Bucuresti | 0723211222; 0786112411 | Strada Postavarul, Nr. 86-90, sector 3 |
| 587. | Biscotto - Cofetarie Bucuresti | 0212314099 | Strada Nicolae Constantinescu, Nr. 8, Sector 1 |
| 588. | Margineni, Restaurant - Bucuresti | 0733986867; 0212405631; 0720679350 | Sos. Fundeni , Nr. 185, Sector 2, Bucuresti |
| 589. | Caro, Restaurant - Bucuresti | 0212086128; 0212086100; 0212086196 | Barbu Vacarescu, Nr. 164A, Sector 2, Bucuresti |
| 590. | Pandoras Food - Restaurant fast-food Bucuresti | 0760102012 | Strada Gheorghe Titeica, Nr. 138, Sector 2 |
| 591. | Jazz Book - Club de jazz si blues, Bucuresti | 0752206746 | Doctor Carol Davila, Nr. 1, Cotroceni, sector 5 |
| 592. | Nuba Cafe - Restaurant pentru mic dejun si brunch, Bucuresti | 0736300000 | Street Locotenent Aviator Radu Beller, Nr. 13, sector 1 |
| 593. | Coppa - Bar cu vinuri si cafea, Bucuresti | 0741594545; 0756080004 | Bd. Nicolae Titulescu, nr. 3, sector 1 |
| 594. | Nido Kitchen & Wine - Restaurant cu specific international, Bucuresti | 0374004488 | Aleea Alexandru, Nr. 35 |
| 595. | Trattoria Venti - Restaurant Bucuresti | 0731315513 | Str Postavarului, Nr. 84, Sector 3 |
| 596. | Grivita - Pub&Grill, Bucuresti | 0724748482 | Calea Grivita, Nr. 130 (Parter Eurohotels), |
| 597. | Angeline Cake Boutique - Cofetarie, Bucuresti | 0753652144 | Str. Doctor Iacob Felix, Nr. 59, Sector 1 |
| 598. | La petite bouffe - Cafenea, Bucuresti | 0733669344 | Strada Doctor Louis Pasteur, nr 38, sector 5 |
| 599. | Influence - Restaurant, Bucuresti | 0745172403 | Soseaua Oltenitei, Nr. 39-41, sector 4 |
| 600. | Kentucky Fried Chicken KFC, Fast Food - Bucuresti | 0757015948; 0212039030; 0213120023 | Soseaua Oltenitei, Nr.85, Sector 4, Bucuresti |
| 601. | Mezze, Restaurant libanez - Bucuresti | 0213116633; 0720044469 | Mircea Vulcanescu, Nr.153 B,Sector 1 , Bucuresti |
| 602. | Citylicious - Restaurant Bucuresti | 0771707709 | Bld Tudor Vladimirescu, Nr. 29, sector 5 |
| 603. | Zexe Restaurant romanesc - Bucuresti | 0722210844 | Oltetului, Nr. 30, Sector 2, Bucuresti |
| 604. | Refill - Bistro cu specific international, Bucuresti | 0786372856 | Bulevardul Mihalache, Nr. 12, sector 1 |
| 605. | B4 Market - Restaurant pentru mic dejun si brunch Bucuresti | 0724588591 | Strada Locotenent Aviator Radu Beller, Nr. 54, sector 1 |
| 606. | Altfel, Cofetarie - Bucuresti | 0213454005; 0744347848; 0741553448 | Bd 1 Decembrie 1918, Nr 21 ,Sector 3, Bucuresti |
| 607. | Kvala - Restaurant grecesc, Bucuresti | 0726731663 | str Louis Pasteur, nr 63, sector 5 |
| 608. | Xanadu Restaurant, Pub - Bucuresti | 0726212114; 0722621717 | Postavarului, Nr. 102, Sector 3, Bucuresti |
| 609. | Mercato Kultur - Restaurant cu specific international, Bucuresti | 0759134767 | Gheorghe Demetriade, nr. 6-10, Aviatorilor, sector 1 |
| 610. | Xanadu Restaurant - Bucuresti | 0726212114; 0722621717 | Postavarul, Nr. 102, Sector 3, Bucuresti |
| 611. | The Soup Carousel - Restaurant cu supe si ciorbe, Bucuresti | 0725356907 | Sos. Nicolae Titulescu, Nr. 12, sector 1 |
| 612. | Savi - Restaurant si club biliard Bucuresti | 0775123051; 0722418555 | B-dul 1 Decembrie 1918, Nr. 56L, Sector 3 |
| 613. | Ceainaria Infinitea | 0723175300 | Str. Dr. Grigore Romniceanu, Nr.7, ap.2, sector 5 |
| 614. | Casa Anca 72, Restaurant - Bucuresti | 0724334499; 0744777499 | Bd. 1 Decembrie 1918 , Nr. 56A, Sector 3, Bucuresti |
| 615. | Fratelli Social Club - Bucuresti | 0722115115; 0730878300 | Goldeni, Nr. 1-3, Sector 2, Bucuresti |
| 616. | Paradis, Cofetarie - Bucuresti | 0724398400 | Sos Pantelimon, Nr.354,Bloc 2, Sector 2, Bucuresti |
| 617. | Bike Boutique and More - Magazin, terasa, service, Bucuresti | 0752405152 | Strada Profesor Doctor Victor Babes, Nr. 2, sector 5 |
| 618. | Kral CigKofte - Restaurant vegan, Bucuresti | 0725025700 | Soseaua Andronache, Nr. 5, sector 2 |
| 619. | Bone - Restaurant Bucuresti | 0733198200 | Calea Floreasca, Nr. 198, sector 1 |
| 620. | Claus, Cofetarie Bucuresti | 0212220218; 0721264900 | Bd. Banu Manta, Nr. 21A, Sector 1, Bucuresti |
| 621. | Derby Pub & Restaurant - Bucuresti | 0214108545 | Bd. Eroilor Sanitari , Nr. 49A,sector 5, Bucuresti |
| 622. | Trei Camile - Restaurant Bucuresti | 0747641564 | Blv. Pieptanari, Nr. 43, sector 5 |
| 623. | So! Coffee, Cafenea - Bucuresti | 0372285718; 0314078250 | Piata Garii de Nord, Nr.1-5 (In fata peroanelor 4-5), Sector 1, Bucuresti |
| 624. | Cofetaria Eduard - Bucuresti | 0760944165 | Bulevardul Pieptanari, Nr. 53, sector 4 |
| 625. | Victorita Pescarita - Restaurant pescaresc, Bucuresti | 0764400437 | Sos Andronache, Nr 17, sector 2 |
| 626. | Prajiturel - Cofetarie Bucuresti | 0760858880 | Strada Stoian Militaru, Nr. 63, sector 4 |
| 627. | Divan, Restaurant - Bucuresti | 0316404450 | Barbu Vacarescu, Nr.241A, Sector 1, Bucuresti |
| 628. | Dancing Lobster - Restaurant cu specific portughez, Bucuresti | 0770690886 | Str. Glodeni, Nr . 3 Cladirea C22, Sector 2, Bucuresti |
| 629. | Casa Doina, Restaurant - Bucuresti | 0212226717; 0745009009 | Soseaua. Kiseleff , Nr. 4, Sector 1, Bucuresti |
| 630. | Buenasado SteakHouse - Restaurant Bucuresti | 0747865210 | Strada Glodeni, Nr. 3, sector 2 |
| 631. | Graffiti Urban Food, Bucuresti | 0749433433; 0733695443; 0769180180 | Str.Carol Davila, Nr. 56A, Sector 5, Bucuresti |
| 632. | Velveto Ballrooms - Centru pentru evenimente Bucuresti | 0752182255; 0734810385; 0764118347 | Str. Oltetului, Nr. 30, sector 2 |
| 633. | Casa Doina, Restaurant - Bucuresti | 0745009009; 0212226717; 0212223179 | Soseaua Pavel D. Kiseleff, Nr. 4, Sector 1, Bucuresti |
| 634. | Edessa - Restaurant cu specific turcesc | 0735636363;0723656325 | Soseaua Colentina, Nr. 281A, sector 2 |
| 635. | Big Mic - Restaurant, terasa si pizzerie, Bucuresti | 0739244642 | Str. Gospodinelor, Nr. 31, sectorul 4 |
| 636. | Pain Plaisir - Patiserie Bucuresti | 0745645555 | Strada Barbu Delavrancea, Nr. 1, sector 1 Pain Plaisir Kiseleff |
| 637. | Trattoria Verdi, Restaurant italian - Bucuresti | 0212225098 ; 0731333411 | Bd. Aviatorilor, Nr. 19, Sector 1, Bucuresti |
| 638. | Burgeria Cotroceni - Restaurant fast-food, Bucuresti | 0314214777 | Soseaua Cotroceni, Nr. 9, sector 6 |
| 639. | Castronul Gustos - Restaurant, Bucuresti | 0749011588 | Str. Nasaud, nr. 97, Sector 5 |
| 640. | Marenka - Cofetarie Bucuresti | 0728028827; 0736273652 | Bulevardul Theodor Pallady, Nr. 21, Sector 3 |
| 641. | Hambar Brasserie - Bucuresti | 0212226422;0787896547 | Aviatorilor, nr. 31, sector 1 |
| 642. | Aleppo Sweet - Cofetarie specializata in briose, Bucuresti | 0731800000; 0767609329 | Soseaua Andronache, nr. 53, sector 2 |
| 643. | Casa Nica, Restaurant - Bucuresti | 0724373558; 0723641985 | Peroni, Nr. 28 (vis-a-vis de benzinaria Lukoil), sector 4, Bucuresti |
| 644. | Mio Cuisine - Restaurant & Home Delivery, Bucuresti | 0743287437 | Pictor Barbu Iscovescu, Nr. 19 ,Sector 1, Bucuresti |
| 645. | Carina Sweets - Cofetarie Bucuresti | 0771261485 | Sos Oltenitei, Nr. 230, Sector 4 |
| 646. | TAP Pizza - Pizzerie, Ilfov | 0771382184 | Strada Doinei, 48, Sat Fundeni, Comuna Dobroesti, judetul Ilfov |
| 647. | Casa Victor, hotel si Restaurant - Bucuresti | 0212225723; 0733953910 | Emanoil Porumbaru, Nr. 44, Sector 1 , Bucuresti |
| 648. | Seneca Anticafe - Cafenea, Bucuresti | 0720331100 | Strada Arhitect Ion Mincu, nr. 1, sector 1 |
| 649. | La Cristi - Fast Food si catering, Bucuresti | 0729266850 | Strada Frosa Sarandy, Nr. 17, Sector 1 |
| 650. | Bolta Rece Restaurant - Bucuresti | 0212227258; 0722527077 | Popa Savu, Nr. 53-55, Sector 1, Bucuresti |
| 651. | Zexe Braserie - Bucuresti | 0786778777 | B-dul Aviatorilor, Nr. 65, Sector 1 |
| 652. | Bolta Rece, Restaurant, Terasa - Bucuresti | 0212227258; 0722527077 | Popa Savu, Nr..53- 55, Sector 1, Bucuresti |
| 653. | The Place Pub - Pub, Bucuresti | 0743951281 | Mr. Alexandru Campeanu, nr.36, sector 1 |
| 654. | Fresh Chicken - Restaurant cu preparate la gratar | 0724392216 | Str Mihail Sebastian, nr 48, sector 5 |
| 655. | Club Floreasca, Restaurant - Bucuresti | 0213198177; 0755085967; Fax 0212307979 | Mircea Eliade, Nr. 1, Sector 1, Bucuresti |
| 656. | Yasmin Bakery - Cofetarie, Bucuresti | 0721076376; 0760272225 | Calea Rahovei, nr.322 sector 5 |
| 657. | Club Floreasca Restaurant - Bucuresti | 0213198177; 0755085967; Fax 0212307979 | Mircea Eliade, Nr. 1, Sector 1, Bucuresti |
| 658. | Cofetaria Dinalex - Bucuresti | 0214237928; 0785137937 | Calea Ferentari, Nr. 162, sector 5 |
| 659. | Don Daniel Pizza | 0737444999; 0766771117; Tel/Fax: 0212225034 | Bd. Ion Mihalache, Nr. 60, Sector 1, Bucuresti |
| 660. | Le Bab - Restaurant cu specific oriental, Bucuresti | 0743179555 | Charles de Gaulle, Nr. 3, sector 3-1, |
| 661. | Vivono Pizza - Pizzerie, Bucuresti | 0784000212 | Strada Telita, Nr.54, Sector 5 |
| 662. | Osho - Restaurant cu fripturi, Bucuresti | 0758758750 | Bulevardul Primaverii, Nr. 19-21, sector 1 |
| 663. | Michelle - Cofetarie, Bucuresti | 0213340084; 0723384312 | Soseaua Berceni, Nr. 35, bl. 104, sector 4 |
| 664. | Piccolo Mondo, Restaurant - Bucuresti | 0722205020; 0212225755 | Clucerului, Nr. 9, Sector 1 , Bucuresti |
| 665. | Fior di Latte - Restaurant cu specific italian, Bucuresti | 0784420555 | Bulevardul Primaverii, Nr. 19-21 |
| 666. | La Colt - Bar & Grill, Bucuresti | 0371179862 | Strada Telita, Nr 1, sector 5 |
| 667. | Casa Bia - Restaurant Bucuresti | 0761241623 | Str. Sebastian Mihail, Nr. 19, sector 5 |
| 668. | Piccolo Mondo, Restaurant - Bucuresti | 0722205020; 0212225755 | Clucerului , Nr. 9, Sector 1 , Bucuresti |
| 669. | Poesia - Restaurant cu specific mediteranean, Bucuresti | 0744502000 | Bulevardul Aviatorilor, Nr. 76, sector 1 |
| 670. | Terasa Oasis - Restaurant Bucuresti | 0733638577 | Mihail Sebastian, Nr.102. Sector 5, Bucuresti |
| 671. | La Samuelle - Restaurant cu specific international, Bucuresti | 0730173180 | Piata Charles de Gaulle, Nr. 3-5, Sector 1 |
| 672. | Triana - Cofetarie, Bucuresti | 0740302404 | Soseaua Orhideelor, Nr. 46, sector 1 |
| 673. | Gastronomika - Restaurant cu specific international, Bucuresti | 0737940512 | Str. Ion Neculce, Nr. 63, Sector 1 |
| 674. | Nicola Cofetarie - Bucuresti | 0214603678 | Nitu Vasile , Nr. 50-54, in Complexul Pajistei (langa Taxe si Impozite) Sector 4 , Bucuresti |
| vezi mai multe | |||
| 1. | CONCORD 2002 | Tel/Fax 323.90.87 | Bd. Decebal nr. 7, sector 3 |
| 2. | FOR YOU | Tel. 0745.094.433 | Bd. Decebal nr. 24, sector 3 |
| 3. | CARREFOUR | Tel. 0374.145.800; Fax 021.307.66.96 | Bd. Corneliu Coposu nr. 2, sector 3, |
| 4. | GMARKET | Bucuresti | |
| 5. | FONZI SUPERMARKET | Tel. 0729.005.260; Tel/Fax 021.323.67.52 | Str. Nerva Traian, nr. 17-19, sector 3, |
| 6. | Cocor Luxury Store | 021.312.43.10; Fax: 021.313.98.48 | Bd. I.C. Bratianu, nr. 29-33, sector 3, |
| 7. | COCOR | Tel. 021.313.14.03; 021.313.92.39; 021.314.96.64; 021.314.96.65; Fax 021.313.98.48 | Bd. I.C. Bratianu nr. 29-33, sector 3, |
| 8. | BUCURESTI MALL | Tel. 021.327.67.00; 021.327.61.00; 021.327.61.02; Fax 021.320.92.09 | Calea Vitan nr. 55-59, sector 3, |
| 9. | SUPERMARKET MAICOM | Tel. 0722.322.573; Fax 321.78.36 | Str. Vitan nr. 104, sector 3 |
| 10. | BUCUR OBOR | 021.252.59.34; 021.252.59.35; 021.252.63.82 | Sos.Colentina, nr. 2, sector 2 , Bucuresti |
| 11. | DENISA MARKET | Tel. 021.211.71.70; 0722.691.595; 0749.263.036; Fax 021.211.71.70 | Str. Rasuri nr. 1, sector 2 |
| 12. | Wini Imobili | Tel.021.307.60.50; 0742.144.034, 0755.068.669; Fax.021.307.60.51 | Pierre de Coubertin, nr. 3-5, sector 2, Bucuresti |
| 13. | MEGA MALL | Str. Pierre de Coubertin, nr. 3-5, langa Arena Nationala, | |
| 14. | Ava Center | 0769240700; 0213201626; 0730096166 | Mihai Bravu, Nr. 540-564, Sector 3, Bucuresti |
| 15. | TITAN | Tel. 0732.995.515 | Str. Liviu Rebreanu nr. 6A, sector 3, |
| 16. | AUCHAN | Tel. 0750.014.150 | Calea Vitan nr. 236, sector 3, |
| 17. | SONMEZ MARKT 4 | Tel. 211.65.39; Fax 210.13.25 | Bd. Iancu de Hunedoara nr. 64, sector 1 |
| 18. | AUCHAN | Tel. 021.408.01.07; 021.408.01.08 | Bd. 1 Decembrie 1918 nr. 33A, sector 3, |
| 19. | GALERIA MARIO PLAZA | Tel/Fax. 021.230.47.71 | Calea Dorobantilor, nr. 172, sector 1, Bucuresti |
| 20. | Penny Market | 0800.110.111 | Bd.1 Decembrie 1918, nr. 33, sector 3, |
| 21. | SUPERMARKET LA NEA NICU | Tel. 230.64.80 | Str. Putul lui Zamfir nr. 59, sector 1 |
| 22. | BILLA | Tel. 021.345.27.51; Fax 021.345.26.46 | Str. Postavarul 24-52, sector 3 |
| 23. | Penny Market XXL | 0800.110.111 | Sos.Fundeni, nr. 38-40, sector 2, Bucuresti |
| 24. | LIBERTY CENTER | 0213699871; 0213699835 | Sos. Progresului, nr. 151-171, sector 5, Bucuresti |
| 25. | PRESTIGE SHOPPING CENTER | Tel. 230.16.12; 230.17.13; Fax 230.67.53 | Calea Floreasca nr. 111-113, sector 1 |
| 26. | GEMINI | Tel/Fax 230.25.49 | Calea Floreasca nr. 111-113 (Complex Prestige), sector 1 |
| 27. | KAUFLAND | Tel. 0372.091.001 | Sos. Colentina nr. 6, sector 2, |
| 28. | CITY MALL | Tel. 021.319.35.22; Fax 021.319.35.21 | Sos.Oltenitei nr. 2, sector 4 |
| 29. | IRIS SHOPPING CENTER | 0314.38.29.70 Cine Grand | Bd. 1 Decembrie 1918, nr. 33A, sector 3, Bucuresti |
| 30. | INTERHOME | Tel. 021.456.31.85; Fax 021.456.31.80; 021.456.31.83 | Str. Nasaud, nr. 97, sector 5, |
| 31. | IRIS SHOPPING CENTER | 021.345.01.29 | Bd. 1 Decembrie 1918, nr. 33A, sector 3, Bucuresti |
| 32. | SUN PLAZA MALL | 021.233.17.45; 0720.200.582 | Calea Vacaresti, nr. 391, Piata Sudului, sector 4, Bucuresti |
| 33. | NICK CENTER | Tel. 410.06.14; Fax 410.18.94 | Calea 13 Septembrie nr. 190, sector 5 |
| 34. | THE GRAND AVENUE AT BUCHAREST MARRIOTT GRAND HOTEL | Tel.021. 403.40.98 | Calea 13 Septembrie nr. 90, sector 5 , |
| 35. | CORA | Tel. 021.205.35.00 | Sos. Vergului, nr. 20, sector 2, |
| 36. | FONZI | Tel. 260.21.28; 0729.005.261; Fax 260.15.31 | Sos. Nicolae Titulescu nr. 121 (Fonzi Junior), sector 1 |
| 37. | Vitantis Shopping Center Bucuresti - Magazine retail Praktiker, Diego si Casa Rusu | 0213104513; Fax: 0213150813 | Soseaua Vitan-Barzesti, nr. 7A, sector 4, Bucuresti |
| vezi mai multe | |||


Vezi galeria
97
97
